Skip to main content

Portifolio

Page 1

ARCHITECTURAL DESIGN

PORTFOLIO AR TUMAINI MILLANGA LinkedIn: https://www.linkedin.com/in/tumaini millanga 673a8 Email address:dottumaini@gmail.com

ARTISTIC DESIGN PROJECTS

DRIVING FORCES

CLIENT’S REQUIREMENT , BUDGET COST ,SITE LOCATION ,ARTISTIC IMAGINATION AND RESPECT FOR ENVIRONMENT .

PROJECT DETAILS: •Location : Usangi,Kilimanjaro. Revisions date Scale Date Job No. Drawing Consultant Client ARQES Job title: 5,322 1,072 477 1,569 477 828 0.00 -0.30 28° Display ENTRY VERANDAH GROUND 75 35 220 30 206 30 230 35 860 ELEVATION 01 960 ELEVATION 01 ELEVATION 02 THIRD FLOOR PALN PROPOSED CHACHIKA MUSEUM Scale Date Job No. Drawing Title Consultant Client ARQES A R C H T E C T S & N T E P.O.BOX 31919 TEL/FAX E-MAIL:[arqesafrica@gmail.com] DAR ES SALAAM Job title: CHACHIKA 3D VIEWS APRIL, 2020 INTERIOR VIEWS 1:40 PROPOSED DESIGN OF CHACHIKA MEMORIAL MUSEUM Scale Date Job No. Drawing No. Rev. Checked by Drawn by Drawing Title Consultant Client LP/HMN AFRICA ARQES A R C H I T E C T S & N T E R I O R D E S G N E R S LTD P.O.BOX 31919 TEL/FAX +255 2700211 E-MAIL:[arqesafrica@gmail.com] DAR ES SALAAM Job title: PS CHACHIKA FAMILY 3D VIEWS APRIL, 2020
INTERIOR VIEWS 1:40 PROPOSED DESIGN OF CHACHIKA MEMORIAL MUSEUM Notes Revisions no. date description Drawing Title Consultant Client AFRICA ARQES A R C H I T E C T S & I N T E R O R D E S I G N E R S LTD P.O.BOX 31919 TEL/FAX +255 2700211 E-MAIL:[arqesafrica@gmail.com] DAR ES SALAAM Job title: CHACHIKA FAMILY 3D VIEWS INTERIOR VIEWS Notes Revisions no. date description INTERIOR VIEWS
EXTERIOR VIEWS

FARM HOUSE

PROJECT DETAILS:

•Location Kibaha .

•Client :Dr Geraldine Kikwasi.

PROJECT ROLE: Project architect: (Design & Draft)

PROJECT BRIEF:

The client required a small and simple farm house well ventilated of easy maintainance .the house big verandah at the front with an open kitchen island ,two rooms and one public full bath.

PROJECT ACHIEVEMENT: came up with a suitable architectural design on how a farm house should be pictured in Tanzanian building context that is very functional , minimalistic,budget friendly with a bonus of retreat feel.

Ground Level

Non slip cement screen finish to Architect's approval on 150mm floor screed to engineer's details and specifications on well compacted hardcore on earth fill all to architect's approval

200mm high, 150mm wide R.C. beam to engineer's details and specifications

150mm wide CS Block unfinished with weather guard gloss paste finish to architect's approval.

C
1100 2600 3000 600 2400 2550 450 970 150 150 150 5 0 0 ° 3650 4520 230 950 230 630 230 630 450 3150 1500
B A
28 Gauge I.T. Sheets on 50mm timber batten on 150x100mm timber rafter on timber truss to engineer's details. 230x950mm R.C. Strip foundation to engineer's details and specifications 230x690mm R.C. Strip foundation to engineer's details and specifications
Timber columns
20.00°

NEIGHBOUR HOOD

SITE DEVELOPMENT

ROOF PROPOSED DESIGN OF A HEALTHY CLUB

DESIGN PROCESS

USERS 'S CHOICE TO USE THE PLACE

OUTDOOR ARCHITECTURAL

OUTLINE

EASY ACCESSIBILITY SERVICES

MLALAKUA RIVER

Solutions was a two story building which had a biomimicry architecture for the form and materials raw finish form for harsh coastal salt conditions, low maintainance and a timeless architecture .The ground floor was left for temporary use of petty food business and resting places with open public toilate this was to enhance the socializing culture of the indigenous ( commonly known as kijiwe) the rest of the floors where , rental space for retail outlets like cafes ,clothing storesand supermarket along with the individual office wings taht have supporting amenities APPROACH
60M OFFSET FROM SHORELINE MAXIMUM HEIGHT OF 4 STOREY USE OF TRADITIONAL BUILDING MATERIALS
SITE WEAKNESS & THREAT
BUILDING LEVEL SPATIAL ARRANGEMENT
Site Zoning
SIDE ELEVATION REAR ELEVATION
PROPOSED DESIGN OF A HEALTHY CLUB 2 8 10 11 13 15 IN 18OUT 17 19 20 50 SITE LAYOUT SECTION TREES SURFACE MATERIALS SHRUBS STRUCTURES VARIATIES OF TROPICAL SPIECIES OF TREES THAT HAVE EVER GREEN LUSH USED IN GARDENS MAIN CIRCULATIONS POND AREAS DECKING AND FENCING GARDEN MINOR CIRCULATION AREAS TROPICAL FLOWER BUSHES TO ADD CHARACTER AND VIBRANCE MATERIALS CIRCULATION PATTERN DESIGN IS IN SUCH OFFER ITS USERS VARIETY OF CHOICES AND INTERESTING JOURNEY AS THEY DESTINATION POINTS WITHIN THE SITE PART LAYOUTS LAYOUT SCALE 1 ; 170 2 3 4

MIXED USE OFFICE BUILDING DESIGN PROPOSAL

PROJECT DETAILS:

•Location : Bonde La Mpunga ,Dar es Salaam,Tanzania

PROJECT BRIEF:

The design was an office mixed used building . The architectural original concept was to fit in with the urban fabric concept in terms of masterplan guide lines proposed in the studio project of master plan design .So for this project there were challenges of four stories including the ground floor (low rise ),the site was the flood prone area and to top it up the site along the brigding belt of low income and higher income residency.

Solutions was a four story building which had a brutal architecture for the form and materials raw finish form for harsh coastal salt conditions, low maintainance and a timeless architecture .The ground floor was left for temporary use of petty food business and resting places with open public toilate this was to enhance the socializing culture of the indigenous ( commonly known as kijiwe) the rest of the floors where , rental space for retail outlets like cafes ,clothing storesand supermarket along with the individual office wings taht have supporting amenities like wcs, storage spaces duct spaces for plumbing ,IT networking,fire fighting service plumbing and electrical wiring s o as to bring in vibrance and interarction amongs all the classes living at the Bonde La Mpunga area

HOSPITALITY DESIGN PROJECTS

DRIVING FORCES

CLIENT’S REQUIREMENT , BUDGET COST ,SITE LOCATION ,PROJECT TIME LINE ,BEAUTY AND RESPECT FOR ENVIRONMENT .

BEACH RESORT HOTEL

PROJECT DETAILS:

•Location :Kenya.

PROJECT BRIEF:

The project was designed to not only cutter for holiday retreats but also external customers enjoyment.

QATAR EXPRESS

GARAGE

PROJECT DETAILS:

•Location : Qatar

PROJECT ROLE:

Project architect: (Design & Draft)

PAINT BALL ARENA

PROJECT DETAILS:

• Area:Approximately 2000sqm

•Location : Fumba,Zanzibar

•Client :Mr Emil Sylvester .

PROJECT ROLE:

(Design & Supervision)

PROJECT BRIEF:

The client required a Paint ball Field design which consisted of one Arena ,Target shooting area with supporting amenities.

SILVER SANDS VILLAS

HOTEL CABINS

RESIDENTIAL DESIGN PROJECTS

DRIVING FORCES

CLIENT’S REQUIREMENT , BUDGET COST ,SITE LOCATION ,PROJECT TIME LINE AND RESPECT FOR ENVIRONMENT .

ROCKCITY MANSION

VACATION HOUSE

PROJECT DETAILS:

• Area:180sqm

•Location : Kagera ,Bukoba.

•Client :Prof Kahamba and Family.

PROJECT ROLE: (Design & Draft)

PROJECT BRIEF:

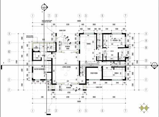
The client specifically required 10m by 10m ,simple vacation house of both modern and contemporary architecture ascents that has two levels ground and first floor.Firstfloor had three self contained rooms ,foyer and balcony overseeing the groundfloor .Ground floor lever has open floor plan one self contained bedroom ,livingroom with fullheight headroom ,half bath ,island kitchen and a dining area,

GSPublisherVersion 0.21.100.100 DESIGNED MS PROJECT CURRENT REVISION : KONCEPT SCALE DRAWING SHEET DRAWING DATE NOTES H G F E D C B A DARK GREY WEATHER GUARD PAINT ON Omm WINDOW WALL INSET WALL COPPING IN WHITE SELF CLEANING WEATHER GUARD PAINT OUTDOOR SOLAR LIGHTS INSITU HARD WOOD VENT WINDOWS WITH VENTS SCREWED TO POSITION SCALE 100 10 03 2 East Elevation A B C D E F G H SMOOTH SAND BLASTED TEXTURE EXTERIOR RENDER PAINTED IN SELF CLEANING LIGHT CARAMEL WEATHER GUARD PAINT MATT FINISHED EXTERIOR RENDER PAINTED IN SELF CLEANING WHITE WEATHER GUARD PAINT INSITU HARD WOOD VENT WINDOWS WITH VENTS SCREWED TO POSITION DARK GREY WEATHER GUARD PAINT ON 5Omm WINDOW WALL INSET SCALE 100 10 03 2 -04

GOBA HOUSE

PROJECT DETAILS:

• Area:340sqm

•Location : Goba ,Dar-es-Salaam.

•Client :Dr Kikwasi .

PROJECT ROLE: (Design & Supervision)

PROJECT BRIEF:

The client required a spacious house vacation house with a contemporary space arrangement of both modern and contemporary architecture ascents that has two levels ground and first floor. Firstfloor had four self contained rooms ,foyer and balcony overseeing the groundfloor .Ground floor lever has open floor plan one self contained bedroom ,livingroom ,Half bath ,island kitchen and a dining area,

TUANGOMA HOUSE

PROJECT DETAILS:

• Area:231sqm

•Location : Tuangoma ,Dar-es-Salaam.

•Client :Eng Kizoba.

PROJECT ROLE: (Design )

SERVANT QUARTER.

PROJECT DETAILS:

• Area:80sqm

•Location : Kimara ,Dar-es-Salaam.

•Client :Dr Mpando and Family.

PROJECT ROLE:

Project architect: (Design )

FOUR BEDROOM HOUSE RENOVATION

PROJECT DETAILS:

•Location : Msasani ,Dar es Salaam,Tanzania

MADALE VILLAS

MODERN MANSION DESIGN PROJECT

OFFICE WORK

OTHER DESIGN PROJECT

CHAMWINO APARTMENTS

PROJECT DETAILS:

•Location : Chamwino,Dodoma

•Client :President’s office

PROJECT ROLE: (Design ,visualisation & Draft)

PERSONAL WORK

MBWENI OPEN SPACE

PROJECT DETAILS:

•Location : Dar -es-Salaam

•Client :Mr Robert Kintu

PROJECT ROLE: Project architect (Design , Draft and building permit)

OFFICE INTERIORDESIGN

PROJECT DETAILS:

•Location : Stone Town

•Client :Mr Yusuph

PROJECT ROLE: Project architect

PRE SCHOOL DESIGN

PROJECT DETAILS:

•Location : Ununio,DSM

•Client :Mr james

PROJECT ROLE: Project architect (Design , and supervision)

Turn static files into dynamic content formats.

Create a flipbook