

HOI CHING LUK
PERSONAL STATEMENT
Exploring diverse ideas and design possibilities is my true passion. As an architectural professional, hold a Bachelor's degree in Architectural and Landscape Studies (5 years) and a Master’s degree in Architecture (2 years).
Following my undergraduate studies, I gained five years of industry experience in interior design (lighting) and architectural engineering (council approvals), where I developed a strong understanding of artistic spatial design while navigating complex structural considerations. After completing my Master of Architecture at the University of Queensland, I became deeply invested in exploring and integrating Australian architectural styles into my work.
By combining my previous experience with my architectural studies, I bring a holistic approach to design—blending functionality, aesthetics, and local context to create meaningful spaces. have prepared a portfolio that highlights my experience and training. If you require any further information regarding my suitability, please feel free to reach out.
Yours sincerely, Doris
Luk
EXPERIENCE
EDUCATION
BAAHOUSE+BAASTUDIO
GRADUATE ARCHITECT (Full Time)
DESIGNATION ARCHITECTS
GRADUATE ARCHITECT (Full Time)
2023- PRESENT
UNIVERSITY OF QUEENSLAND
BACHELOR OF ARCHITECTURE (LANDSCAPE)
CHINA
HONG KONG MACAU (ASIS) ENG.CO.,LTD 2014- 2017
TECHNICA ASSISTANT (Full Time) 2021- 2022
HONG KONG HING FAT
LIGHTING INTERNATIONAL LTD 2013- 2014
DESIGNER & DRAFTER (Full Time)
SKILLS
REVIT
AUTOCAD
SKETCHUP
ENSCAPE
ARCHICAD
INDESIGN
LANGUAGE
ENGLISH CANTONESE MANDARIN
ILLUSTRATOR
FREEHAND SKETCHING PREMIERE PRO PHOTOSHOP LUMION








6.
5.
PROFESSIONAL EXPERIENCE
1. 2
2. 152
3. 87 PINELANDS,
4. 81 PINELANDS,



CUSTOM BAAHOUSE
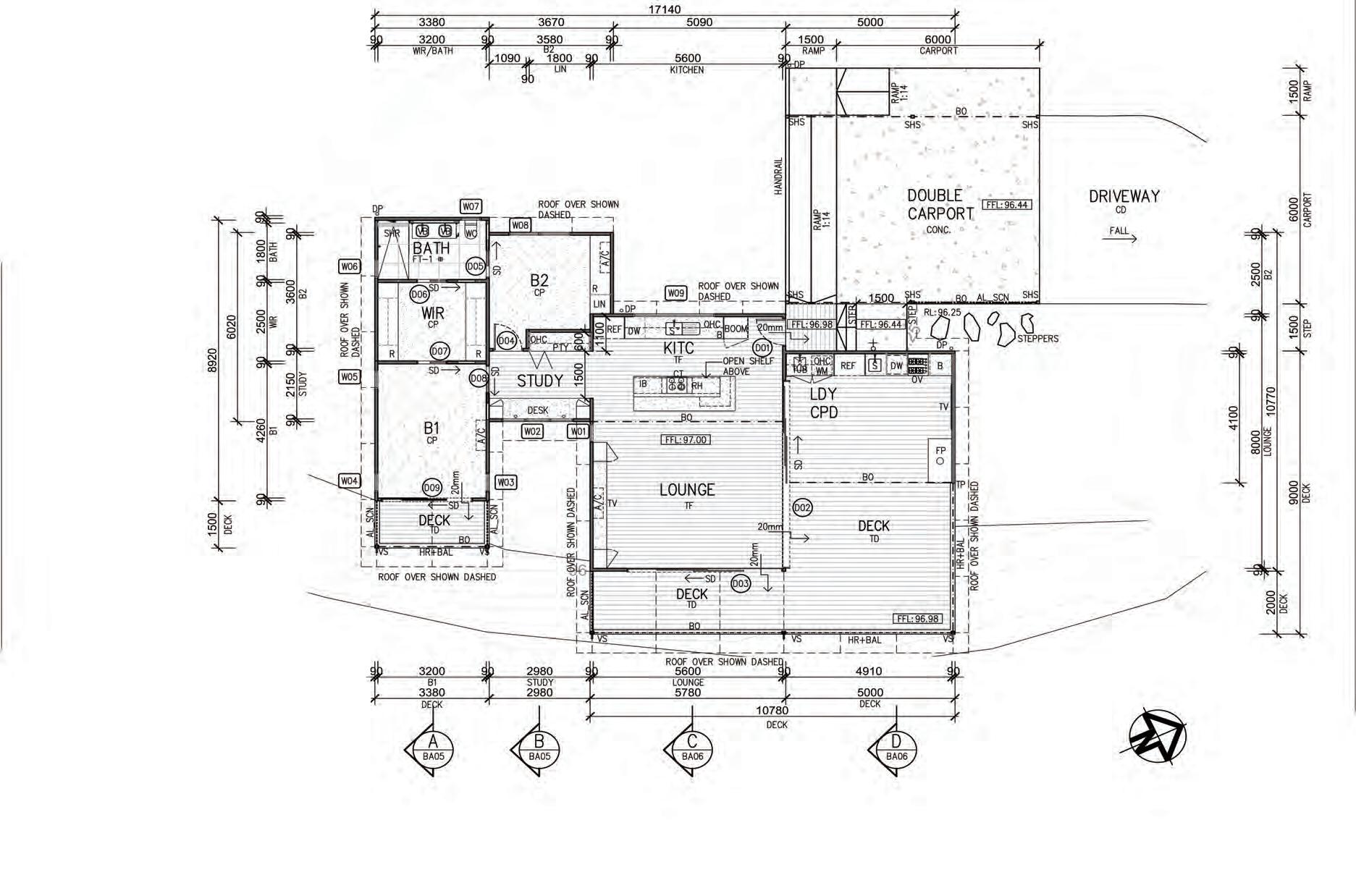
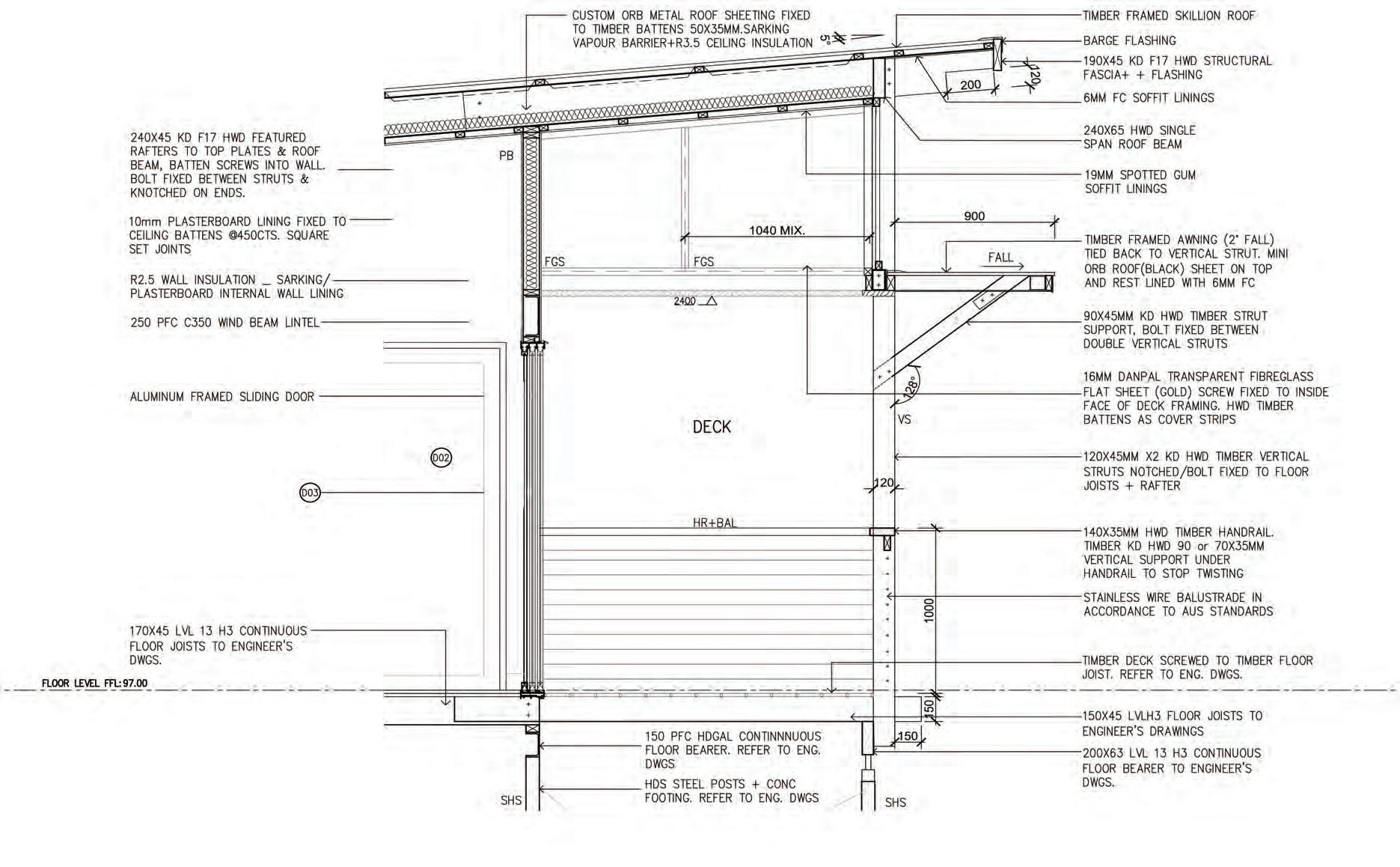
152McleanRoad,QLD4520 - Residence - On Process - AutoCAD/ Sketchup/ Enscape - 2024 - Under Construction
This morden retreat seamlessly integrates with its lush surroundings, embracing a contemporary pavilion-style design. Elevated on stilts, the structure follows the natural terrain, minimizing site impact while maximizing views and ventilation. The expansive deck, enclosed with sleek cable railings, blurs the boundary between indoor and outdoor spaces. Floor-to-ceiling sliding doors open the living area to nature, enhancing airflow and natural light.
The translucent fiberglass screens along the roofline introduce soft diffused daylight while maintaining privacy. Vertical timber cladding and deep eaves contribute to a warm and inviting aesthetic, making this home a perfect fusion of sustainability and modern living.
of
and






87 PINELANDS APARTMENT
87Pinelands,QLD4109
- Residence - 12 Months - Revit/ Lumion - 2022
- Under Construction
Located at 81 Pineland, Brisbane, this contemporary multi-residential development is designed to embrace modern urban living while maximizing natural light and views. The building features a sleek façade with expansive floor-to-ceiling glass windows, allowing seamless indoor-outdoor connections and enhancing spatial openness.
Wide balconies extend from each apartment, providing residents with private outdoor areas and panoramic city or garden views. The development offers five distinct apartment layouts along with two exclusive lofts on the top floor. The material palette of glass, metal, and textured panels brings a refined yet warm aesthetic, complementing the surrounding environment.
Australian



81 PINELANDS VILLA
81Pinelands,QLD4109
- Residence
- 11 Months
- Revit/ Lumion
- 2021
- Under Construction
81 Pinelands is situated in a gated community with a sloping ground facing the street. According to the guest's request, we create a unique project core. The first level, with the garage and uses the exterior wall to create a street front that blends terraces, walls and the building itself. The second level gathers the sleeping areas.
The living area on the ground floor is hollow, with a 6.2-meter ceiling providing excellent views and light, while residents can enjoy other views. Huge floor-to-ceiling glass also blurs the line between inside and outside, making the space more flexible.



PRIMARY SCHOOL REFURBISHMENT
Ashmore,QLD4214
- Education - 12 Months
- Revit/ Lumion - 2022
- Construction Documentation
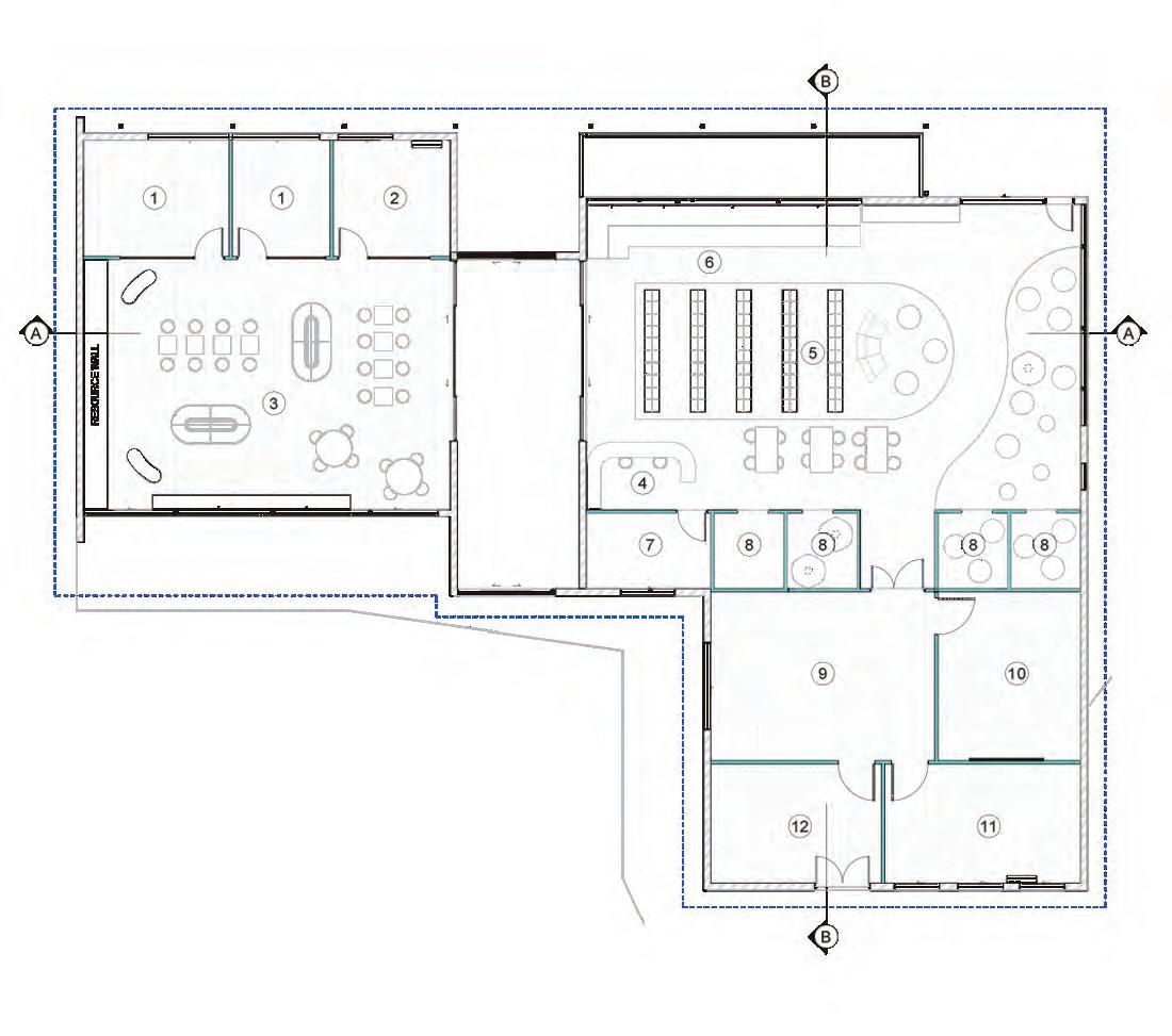
The site is situated on significant slope, necessitating the buildings and pathways to be carefully integrated with the natural terrain. The McKillop Centre has been identified as underutilized and inefficient in supporting Learning Support programs. Transforming this building into a dedicated Music Centre will enhance the school's capacity to foster musical education while alleviating pressure on the existing music room adjacent to the Hall.
The refurbishment of the McKillop Building will provide additional classrooms, specialized practice spaces, and expanded storage, creating a more functional and inspiring environment for students.
My key roles in this project are
Services coordination
CC documentation with regulated design
Reviewing shop drawings and giving comments prior for team leader's approval
Responsible to achieve compliances Australian Standards & NCC
The school benefits from an extensive network of covered walkways that seamlessly connect different areas of the campus. At its core lies a spacious central courtyard, serving as the heart of the school. Surrounding this vibrant space are key facilities, including the Resource Centre, McKillop Centre, and Hall, which together define a distinct and cohesive learning zone. The campus is further enriched by thoughtfully designed landscapes along its perimeter, with small, curated garden beds lining the pathways to enhance the overall experience.
Existing Site Plan - Ground
While these buildings frame the Central Zone, their connection to this communal heart can be further strengthened. A school's environment is defined by its functionality, the experiences it fosters, and the meaning it conveys. A well-designed setting enhances all these aspects, creating a positive and engaging atmosphere.





The proposed layout features new thoroughfare connecting the main quad and the Years 3-6 at the south of the campus, through the Resource Centre. This link creates natural and soft divide between the Main Library and the Learning Support Area. The Main Library features an open plan with smaller study spaces its southern edge. Behind them are nested the main staff areas, including a shared office, a resource room, meeting room and an office.

The Learning Support area consists of a Group Learning space feeding into three smaller support rooms.

The store and shed removal allow space for new thoroughfare linking the main quad with the Grounds Maintenance area if the school. This connection will assist with the completion of the new build works.
The refurbished Music Room features new floor coverings and joinery items. Existing amenities are refurbished to be on par with the new Music Room.


THE CLIFORD PLER
FULLERTONBAYHOTEL,SINGAPORE
- Chandelier - 4 Months
- Auto CAD / Sketchup - 2014
- Construction Documentaton
Built in 1933, the majestic Clifford Pier Building was a landing point for immigrants and other passengers who arrived in Singapore by sea. In May 2014, a new restaurant was reopened on the former pier under the same namesake The Clifford Pier, as part of the Fullerton Bay Hotel. The absence of main vehicular access from Collyer Quay Road to the hotel provided the opportunity for entry to the development via the conserved Clifford Pier. The heritage theme thus became continuous thread in the conceptualization of the architecture as well as the design of the interior spaces.
Guests arrive from the drop-off at Clifford Pier to the hotel via single-story structure. The team's lighting concept was designed to incorporate the ribbon-shaped concrete arched truss roof, the lighting of the hotel compound slowly transits from a heritage appearance to the new intervention, in terms of materials and color, combining vintage with modern.





CENTURY GATEWAY
TMTL447WESTRAILTUENMUN,HONGKONG
- Chandelier
- 6 Months
- Auto CAD / Sketchup - 2013 - Construction Documentaton
Century Gateway is located next to Tuen Mun MTR station as a development project for Sun Hung Kai Properties. The project is developed in two phases and provides 2,011 units.
Our team was awarded the lighting design contract for this project in 2013. The design concept needs to be integrated with the building design while providing a novel and modern design approach, which interrupted the orderly space of the lobby with a curved effect.






ACADEMIC PROJECTS
Designer/ Drawings
In this proposal, we focus on the demand from people who need short-term living places from 6 months to 2 years. Our target customers are overseas students, travelers having working holidays, families experiencing domestic violence, business people and professionals working away from home. Traditional housing supplies such as student flats and rental properties are not flexible and affordable enough to accommodate these ever changing demands. It is not only because these buildings take a long time to build and cost developers a significant amount of capital expenditure, but service providers also need to charge at higher rate to compensate the risk associated with the fuctuation of demand.


Structural Design & Layout
- Design for Manufacture and Assembly + Disassembly is the main principle of the structural design.
- With industry 4.0 and proposed automated production line, this principle is possible to be applied to our structural design as special fixings and connectors require low tolerance in manufacture and assembly.
- The module is not only designed for quick connectons between two residential units, but for easy maintenance of individual structural panels and elements.
- These panels are fully reversible, to offer easy maintenance/ reuse/ recycle and achieve the circular economy. At the end of life cycle of the module, design for disassembly makes it possible to recycle and reuse the entire building.









OTHER WORKS



