


![]()



Dora Neroutsou
Dipl. Architect, MSc Environmental Design and Engineering

Graduate of MSc Architecture, NTUA
Environmental Design and Engineering, Bartlett UCL Member of AKNW
dora.neroutsou@gmail.com
Am Gatherhof 23 | 40423 | Düsseldorf | Germany
Mobile: 015238069670
May 21 - now
Architect, Rekowski Architects, Düsseldorf
Refurbishment and extensions at existing buildings (building permit, implementation phase)
Apr 20 - Apr 21
Architect, Ingenhoven Architects, Düsseldorf
Refurbishment and extension at an existing listed building (building permit, implementation phase)
Office, Conference, Restaurant (design and building permit phase)
Jan 17 - Mar 20
Architect, Lieb und Lieb Architects, Freudenstadt
Industrial (building permit, implementation phase)
Office, Conference, Exhibition (initial design, design phase)
Housing (design phase)
Jun 15 - Jan 17
&Sep14 - Dec14
Freelance Architect, Athens
Residential Renovations
Jan 15-May 15
Junior Architect, Jouel Architects, Athens, Greece
5 star hotel in Paros (design, construction phase)
Residential development in Menidi (initial design phase)
Mar14 - Jun14
Graduate Micro-climate Consultant: WSP, London
3d design in urban scale
Calculation and analysis of the effects of new developments on wind patterns on the area’s micro-climate and on the pedestrian safety, check for possible turbulence creation
Calculation and analysis of the effects of new developments on natural light (direct and diffuse) and visible sky of adjacent buildings
Calculation and analysis of the effects of new developments on natural light and shading of adjacent open spaces
Jan14 - Mar14
Technical Intern: Zero Carbon Hub, London
Participation in the Performance Gap Research Project (Revision of Reports)
Revision of SAP Assessments
Intern: Touliatos Panayiotis Constructions, Athens
Indoor swimming hall with an open-able roof (design phase)
On site visits to projects - check of progress
Education
MSc Environmental Design and Engineering, University College London
Mark: Distinction
Dissertation Title: Life Cycle Costing of Low Energy House Retrofit
Dipl Architecture Engineering, National Technical University of Athens
Mark: 8,46/10
Final Year Project: Serafio Swimming Complex
Skills
English: Fluent Knowledge (C2)
German: Very good (C1)
Italian: Good (B2)
Greek : Mother tongue
Publications
Good command on Archicad, Office, AutoCad 2D/3D, TAS Engineering, Photoshop, Indesign, Microstation
Basic knowledge of Ecotect, PHPP, Sketchup, Revit, Illustrator Artlantis, 3dsMax, Vray, IES,AGi32
T.I. Neroutsou, Lifecycle costing of low energy housing refurbishment: A case study of a 7 year retrofit in Chester Road, London, Energy and Buildings, Volume 128, 15 September 2016, Pages 178-189 (http://www.sciencedirect.com/science/article/pii/S0378778816305291)
T.I. Neroutsou, Lifecycle costing of low energy housing refurbishment, LAP LAMBERT Academic Publishing, Düsseldorf, Germany, 2 September 2016, ISBN 978-3-659-94542-7
Presentations at Conferences
6th Low Carbon Earth Summit, Poster presentation of Master Thesis, Quingdao China
3rd Hellenic Passive House Institute Conference
3rd ASHRAE Hellenic Chapter, Energy in Buildings Conference
8th Windsor Conference, Counting the cost of comfort in a changing world
Professional

Gerling Quartier | Office | p.: 10 - 13
Kavallaris 5 star hotel | Accommodation - Tourism | p.: 18 - 19 Pier One | Office - Urban Planning | p.: 6 - 9
Homag Global Center | Exhibition - Administration | p.: 14 - 15 Harry Roth Manufacturing | Industrial - Administration | p.: 16 - 17

Serafeio swimming complex | Sports - Public | p. : 20-25

Ingenhoven Architects| 2021 | Düsseldorf
LPH: 2-5
Microstation
Floor Plan
The Pier One project creates a platform on the water built on stilts, which is connected by four Bridges, which are also part of the planned construction project, with the adjacent ones headlands is connected.
An office and commercial building with gastronomy on the ground floor and a parking
deck on the first floor is planned. In terms of urban planning, Pier One means the consistent further development of the Düsseldorf port an area that is closely linked to the urban development of the Rhine metropolis. The architecture is based on the lightness of typical pier buildings. Two five-storey parts
of the building with additional staggered floors and expansive roof terraces rise above one parking level and are connected via an atrium. The appearance of the building is characterized in particular by the elementary curtain wall. This is primarily due to the intensive use of the environmentally friendly
material wood. Horizontal, wood-clad parapets stretch around the entire building crossed by vertical ventilation boxes, also clad in wood. In the course of the new construction of the “Pier One” building in the port of Düsseldorf, two jetties are also to be erected.


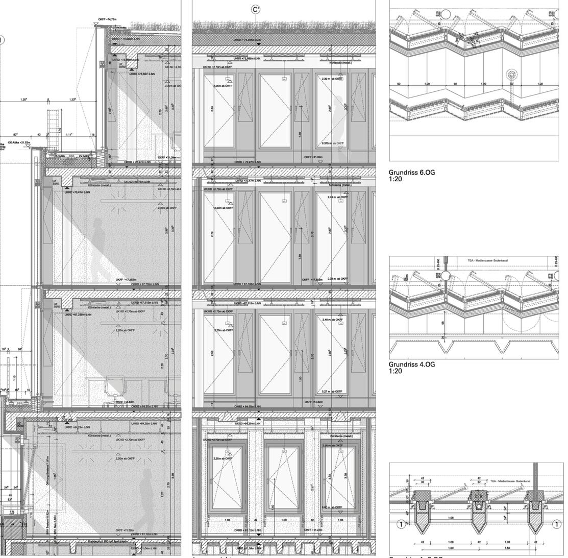
Ingenhoven Architects| 2020 | Cologne
LPH: 3-4
Microstation



Innenansicht - Farbige Darstellung | Maßstab 1:100






The listed object in Cologne, consisting of two parts of the building, the Hufeisen building and the century hall, is renovated and converted into an office and commercial building.
In addition, an extension of at least two and three floors accordingly is planned. The building of the 50s is to be preserved both to what concerns the facade and the listed interior structures and components. The Gerling Quartier is characterized by attention to ecology, economy and Developed into a sustainable building, taking into account socio-cultural aspects.

Based on the preliminary building inquiry the expansion floors on the Hufeisen building are enclosed with a ventilated, folded facade with opaque and glazed elements. The folding is coordinated and in harmony with the vertical structures and facade grid of the existing building. The narrow side should be opaque and with tilt opening sashes to allow the natural ventilation of the office space behind it. The wider Façade element receives a rotary wing for cleaning and maintenance purposes as well as an electrically operated sun protection system. The color and quality characteristics of the profiles and opaque Surfaces are based on the original profiles of the existing facade .

ingenhoven - 1709 Gerling Quartier - 09.07.2020
Grundriss - Variante 4 - Achser
2.Obergeschoss - Büroeinheit 028




























ingenhoven - 1709 Gerling Quartier - 09.07.2020
Langschnitt
Grundriss - Maßstab 1:33 - farbige Darstellung
2.Obergeschoss - Büroeinheit 028
Detail floor plan offices











Detail Section Offices
Langschnitt - Maßstab 1:33 - farbige Darstellung
LPH: 1-3
Archicad

Homag Global Center is an extension to the already existing headquarters of the woodworking machine company in Schopfloch.
The new building is organised in 3 levels and has a total area of approximately 8.000 m2. Those include an Exhibition Space, a big Meeting Room, an ‘‘Experience Space’’ and a Restaurant.
The primary synthetic goal was to connect the existing production building with the new built, which was achieved through the creation of a mid-level that distributes the employees either
to the restaurant and meeting area (1st floor) or to the foyer and exhibition space (ground floor).
Special attention was paid to the natural light through the design of skylights in foyer and the lightwell running through all the floors.
Finally, part of the concept was the creation of various outdoor spaces such as the arcades on the ground floor, that offer a protected access to the building and the terraces that connect the meeting and restaurant areas and provide outdoor seating areas for the visitors and employees.
South-West view perspective





Lieb & Lieb Architekten| 2017 - 2018 | Waldkirch
LPH: 3-5
Archicad

The new building hosting the production and administration of the metal company Harry Roth is located at the prominent B 294 highway and forms a welcoming to the city of Waldkirch in Southern Germany.
The building fits to the topography, taking into account the steep inclination and the main views, with appropriately located glazed surfaces. Delivery and pickup are optimally placed on the plot. The administration and a small eating area are placed on the upper floor, using the surrounding valley’s nice view and at the same time having an inner view of the production hall.

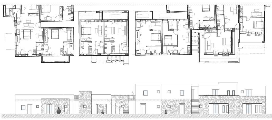
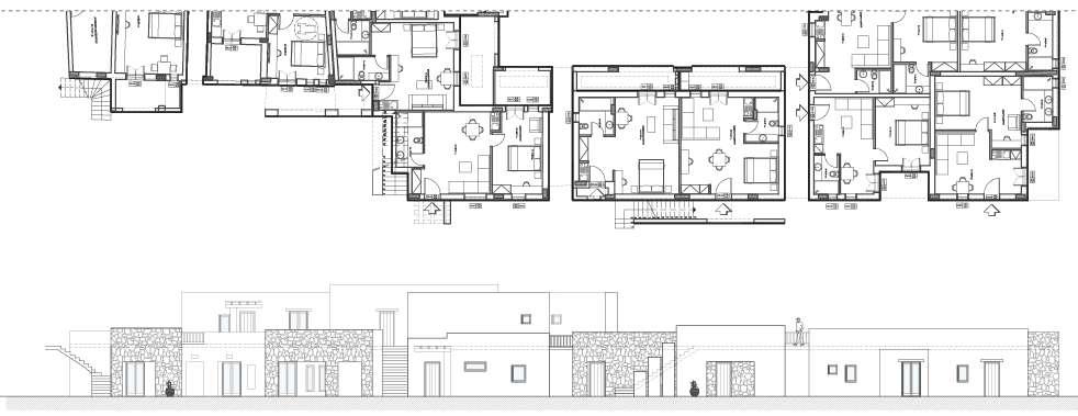
This is the design of a 5 star hotel in Paros, a Greek island with specific laws regarding architectural heritage and morphology. The project was undertaken, after the construction of the load -bearing elements, since the client was not satisfied with the previous design, a fact that challenged the design but decreased the synthetic freedom.

The initial design provided for the construction of eight building entities, which were kept. The total capacity is 35 studios, 27 doublebed rooms and 89 beds. The client wished the maximum exploitation of the plot and the compliance with the specifications in order to be declared as a 5-star hotel.
TThe main design idea was to fragment the elevations so that the previously designed as one – volume buildings would resemble the cubic Cycladic houses. This combined with the narrow pedestrian streets, would make a striking reference to a small traditional settlement. This is developed around a main courtyard where there is the pool and the bar. Due to the initial master-planning, there were rooms with no view either at the pool or the sea, therefore those have been provided with individual pools or jacuzzis, where this was possible. In addition, all rooms were designed to have access to a terrace.
The entrance building at the south of the plot includes all the indoor common spaces: foyer and reception, restaurant and breakfast hall, bar, offices, a conference hall, luggage storage and circulation.
Finally, the interiors were designed once again based on the Cycladic tradition, with plastered walls, built – in seats, wooden ceilings and floors and wooden furniture.

Buildings 2 & 3 west view and plan

Buildings 3 & 5 east view and plan

Master thesis | 2012 | Athens
Autocad | Sketchup |Artlantis | Photoshop



This master thesis is the design of a swimming complex in the previous place of Serafeio swimming complex in the intersection of Petrou Rali and Pireos St. in Athens.
After a survey in the broader area and based on population, functional and geographical criteria a building program was formed. It includes the design of 1 indoor and 2 outdoor swimming pools.
The building was formed in 4 levels with a clear organization of the movements in order to prevent the osmosis of viewers, visitors and athletes and to allow the view of the sports hall as much from the outside as from a lot spaces of the inside.








Entrance level plan (+1.00m)




As long as the roof of the indoor complex is concerned, this constituted a challenge of covering a long span. Steel was chosen from the start as the main material, because it combines great strength both in stress and tension.
The form was a result of the need to be open-able, in order to refresh the air and the incorporation of the principles of the industrial roof.
The orientation was also a major shaping factor with the openings facing north and the cladding facing south, giving the capability of the installation of PV panels, which are necessary for this really energy consuming building type.
Finally, great attention was paid to the design of the outdoor space, in order to connect the swimming complex with the adjacent sport facilities of the area, to offer good viewing to the sport spaces, both indoor and outdoor with the appropriate levelling and to offer enough space for high plantation, a very important aspect for an urban project.






1. Metal cladding with integrated PV panels
2. Insulation
3. Metal cladding clips
4. Vapour barrier
5. Trapezoidal Cladding
6. Steel beam 400/200
7. Spandrel
8. Metal plate
9. Upper truss member (d=200mm)
10. Diagonal truss member (d=100mm)
11. Lower truss member (d=200mm)
12. Diagonal member for truss - column connection (d=200mm)
13. Steel column (d=800mm/d=500mm)
14. Windscreen structure for glass facade
15. Glazing
16. Frame
17. Windscreen’s brace
18. Edging 250x80mm
19. Cobbles
20. Geotextile
21. Drainage membrane
22. Waterproofing membrane
23. Reinforced concrete
24. Screed with 1.5% inclination for drainage
25. Paving 40x40x4
26. Screed 20mm
27. Concrete column base
28. Metal column base
29. Excavation limit
30. Filling materials
31. Drainage pipe
32. Concrete
33. Reinforced concrete column
34. Shear wall
35. Paving 20x10x1
36. Tile adhesive
37. Pool drainage channel
38. Stainless pool ladder
39. Cement rendering
40. Screed
41. Foundation
42. Waterproofing membrane




Collaboration with Borkowski E., Krampe F., Straume J. | 2012 | London
Vectorworks | Illustrator| Photoshop | TAS

This project aimed to the design of a naturally ventilated public building in the centre of London.
The UAL has a central facility, located on High Holborn, used as a “student hub”. Close to it there is the site that was used as an extension of the University’s facilities on High Holborn, offering the opportunity to give the UAL a centre for exhibitions, lectures and performances.
Being in the very centre of London, the area is a extremely dense in terms of its urban fabric and contains several quiet parks and public spaces, which contrast with the busy streets.
On the street side of the site nitric oxide and noise levels are high, whereas on the backside these levels drop considerably. The site is orientated towards north and south letting it exposed to the typical southwest wind direction.







make the park accessible on the ground floor

PROGRAM : PUBLIC - PRIVATE
combine access with public use link between road and park
ATRIUM: ACCESS - LIGHTING - VENTILATION
distribute access to university uses
stack ventilation
natural light penetration



The contrast informs the initial architectural strategy of creating a new public access to the park from High Holborn.
The ground floor is therefore used as a public café. All other uses of the exhibition and performance centre are stacked on top of this open space, and accessed through a public atrium.
The upper floors are used for the UAL keeping the public spaces in the lower floors and the more private ones in the upper floors. The main atrium is designed as a circulation space for lighting purposes, on the one hand and to bring light into the deep plan building and for ventilation purposes through the stack effect, on to the other hand.
Finally, the primary uses were arranged on the south side and the secondary ones on the north side. Thus, the ground floor is formed as a stepped threshold to the park,
accommodating the entrance and the tables and serving areas of the café. The space is open able to the south, providing external seating.
Because of the uses, all rooms are provided with generous ceiling heights of 4.75 m.
For keeping the spaces free of columns the structure comprises of a concrete slab and beam construction spanning over the whole width of the site.
The closed northern side, containing service zones that serve as a buffer to the noisy road are lit through translucent
glass walls facing the atrium.
All closed wall and floor surfaces consist of concrete or screed, giving the building a robust and neutral appearance that provides a background for the varying activities within the building. Staircases and landings within the atrium are made of frosted glass to provide a maximum of daylighting. The main spaces are provided with open able windows to the park and windows facing the auditorium for ventilation purposes. The whole building is highly insulated to reduce heat losses and infiltration.
Auditorium – Observations, Summer Day (Day 199).
Day 4.8-6.1 kg/s
Day 0.9-1.4 kg/s
Night 0.8-1.3 kg/s
Night 2.1-3.0 kg/s peak 950 ppm
25.6-28.4 °C
24.6-29.2 °C
Day 0.1-0.3 kg/s
Night 0.8-1.4 kg/s
acceptable peak levels of CO2 almost acceptable operative temperatures low airflow in occupied hours, high airflow at night
Cafe – Observations, Summer Day (Day 199).
low levels of CO2 acceptable operative temperatures very high airflow at daytime, high airflows at night
26.9-29.6 °C
24.3-28.2 °C
Night 0.0 - 0.8 kg/s peak 420 ppm
Day 5.2 - 7.8 kg/s
Looking at the development of temperature ranges, it becomes obvious that the amount of temperatures within the defined comfort levels could significantly be improved.
Since the building was freerunning throughout the whole year there is a relatively high amount of underheated hours left.
However, there are no cooling loads necessary to maintain comfort levels in the summer.
The remaining average heating loads necessary to reach the target conditions in the spaces that were analysed in detail (auditorium and café) are 30 kWh/m2.a, which assuming that the heating is provided by a gas condensing boiler with 95% efficiency results in CO2 emissions of around 5.5 kg/ m2.a. Looking in detail at the annual temperature distribution, it becomes obvious that the building is at comfortable temperatures for most of the occupied hours.
Auditorium – temperature levels at occupancy. Café – temperature levels at occupancy.
Auditorium : temperature distribution in occupied hours. Café : temperature distribution in occupied hours.
Collaboration with Moreira J., Thoua C. | 2013 | Washington DC
Revit | Artlantis |Sketchup| Photoshop |TAS | AGi32
South - West view perspective





This is a low - energy house in Washington DC for a 4 member family, which reflects the idea of the ‘Tangram’, providing a dynamic interaction between spaces, forms and environmental conditions. It derives from a single shape, broken down to many pieces, which are rearranged . The architectural arrangement of spaces reflects the environmental strategy for heating and cooling by taking advantage of the optimum orientation for insolation, shading and cross ventilation.
The ground floor is connected to a conservatory to the south, which is used during the winter for passive heating. The separated staircase shaft is combined with the main entrance hall and it is used as a buffer zone to the north, protecting the main living spaces from the cold northern prevailing winds. Adequate shading is provided by roof overhangs that allow sun penetration during the winter, but prevent it during the summer. Moveable louvres slide along the roof slab when extended shading is required. Vertical louvres along the west side protect the building from west sunlight exposure during afternoon hours.



Collaboration with Gkiola D. | 2006 | Athens
Autocad | Sketchup | Artlantis| Photoshop



South view perspective
This one -family house is located in the centre of Athens. The plot is characterized by 3 strong boarders with the roads and the neighbouring plot and one softer, with the park nearby. It is also a long and narrow plot, with a steep inclination. The main synthetic idea was to ‘‘incorporate’’ the nearby park in
the house’s open spaces, basically by creating optical connection from all the rooms and outdoor spaces. Thus, the house opens like a window overlooking the park.
The first level (-0.30) is used for auxiliary spaces, the entrance level (+2,50) hosts the public spaces, living room, dinning room
(with double height), kitchen and office and has access to the garden and the back entrance. The second floor (+5.70) is consisted by two bedrooms and the third by the master bedroom. Special importance was given to the creation of outdoor spaces and terraces of different orientations.



Ecoweek | Collaboration with Derizioti S., Karagianni S., Kladopoulos Y. Kyritsi O., Liokas G., Petrous D. | 2011 | Thessaloniki
Archicad | V ray | Photoshop | Ecotect

T his proposal refers to the energy and functional refurbishment of two schools in Thessaloniki. Due to urgent conditions that have emerged after the 1978 earthquake, these buildings were created to house only teaching uses for five years. However, in their 32 year lifetime they have not been refurbished or replaced.


The concept involves the creation of a lightweight roofing system, which unifies the two buildings, creating an atrium in the space between them. At the same time the steel structure is used for the addition of a new level above the existing buildings to house the new functions of a multi-use space, a gym and a library. On this new level the open areas are planted, creating green roofs, which enhances the insulation of the building. Addition of external insulation and the replacement of old openings is proposed as well.



Ecoweek | Collaboration with Zerefos S., Tessas C.| 2010 | Thessaloniki
3dsMax | V ray | Photoshop | Ecotect

This residential project was designed based on bio - climatic principles and the need to minimize cooling and heating loads.
The main concept was the creation of a double south facade incorporating reflecting louvres.
The interior layout was based on zoning, with bedrooms and living areas facing south, having direct daylight access and auxiliary spaces creating a buffer zone in the north.
A thermal labyrinth on the basement and the incorporation of a stack are used as cooling strategies and a wood pellet boiler and direct solar gains are used for heating.




Environmental strategies per plan
