

King Salman International Airport
Master Plan for 2050 Detailed Master Plan Consolidated Public Realm
Typology: Masterplan
Coen+Partners
Ongoing
Teamwork 2023-2026
Location: Riyadh, Saudi Arabia
Concept Masterplan
2024 Feb- 2024 Aug
Key Role: Cultural and environmental research informed the foundational public-realm framework, grounding the masterplan in Riyadh’s geo-heritage, regional wadi systems, and Najdi traditions.
Work focused on translating Vision 2030 principles into landscape strategies through regulatory coordination, performance-driven KPIs, softscape and restoration frameworks, and bird-strike mitigation studies. These efforts established a nature-led public realm structure that integrates ecology, culture, and long-term resilience at airport scale.







Detailed Masterplan and Design Guideline 2024 Aug- 2025 Dec
The conceptual framework was advanced into coordinated, site-specific landscape systems integrated with airfield operations, mobility networks, and real estate assets. Contributions included micromobility and landform strategies, user-experience-driven public-realm design, and asset-specific development across Aerotropolis South and Aerotropolis North. Ongoing design development of the Wadi Loop translated a green-infrastructure spine into a legible, buildable public-realm network supporting movement, microclimate moderation, and ecological performance.











Roshn Public Realm Vision
Connecting Mobility, Landscape, and Daily Life in Riyadh’s Next Urban Chapter
Typology: Vision Master Plan
Coen+Partners
Complete
Teamwork 2025 Jun - 2025 Sep
Location: Riyadh, Saudi Arabia
ROSHN proposes three development schemes, each defining the public realm in a distinct way as the connective tissue of the masterplan— transforming architectural vision into lived urban experience. Conceived as a foundational system shaped by mobility, landscape, and culture, each scheme draws from Najdi heritage, wadi ecologies, and Riyadh’ climate, allowing city and nature to coexist within a flexible, evolving framework.
Strategically located between King Salman International Airport, Expo 2030, King Abdulaziz Park, and the Sports Boulevard, the site emerges as a key node within Riyadh’s expanding mobility corridor. Transit-oriented living, walkability, and soft mobility position movement as a catalyst for daily interaction and community life.
Through integrated planning, the project establishes a new benchmark for how people move, gather, and belong in a rapidly transforming city.
Vision Master Plan 2025 Jun- 2025 Sep
Key Role: Contributed to the overall landscape strategy, including the development of landscape typologies and open space systems, pedestrian network planning, streetscape design, and the integration of buffer zone landscapes into a cohesive public realm framework.
















The Diriyah Sports Club
A Living Framework for Movement, Health, and Balance
Typology: Concept Design
Coen+Partners
Complete
Teamwork 2023-2024
Location: Riyadh, Saudi Arabia
The Diriyah Sports Club in Wadi Hanifah is envisioned as a destination where sport, landscape, and culture converge to create a singular experience within the Diriyah Masterplan. Shaped through close collaboration with the client and design team, the project translates a shared vision into a place deeply inspired by the natural rhythms of Wadi Hanifah and the enduring traditions of Najd.
Rooted in a careful reading of landform, ecology, and heritage, the design weaves architecture, landscape, and program into a cohesive whole. A series of interconnected zones offers diverse athletic, social, and wellness experiences, framed by a landscape that responds to climate, topography, and seasonal change. Architectural, interior, lighting, and wayfinding strategies reinforce a seamless indoor–outdoor experience, while integrated engineering and sustainability frameworks ensure long-term performance and environmental responsibility
Together, the project aspires to become a reference for how contemporary sports environments can honor tradition, celebrate nature, and embody the vision of Diriyah Gate.
Concept Design 2023 Oct - 2023 Dec
Key Role:
Developed sports programming frameworks, court parameters, and performance-based KPIs to guide facility layout, user capacity, and operational efficiency. Contributed to user experience optimization through circulation planning and internal road network development, integrating pedestrian, service, and vehicular movement into a cohesive, user-centered sports and wellbeing campus.


















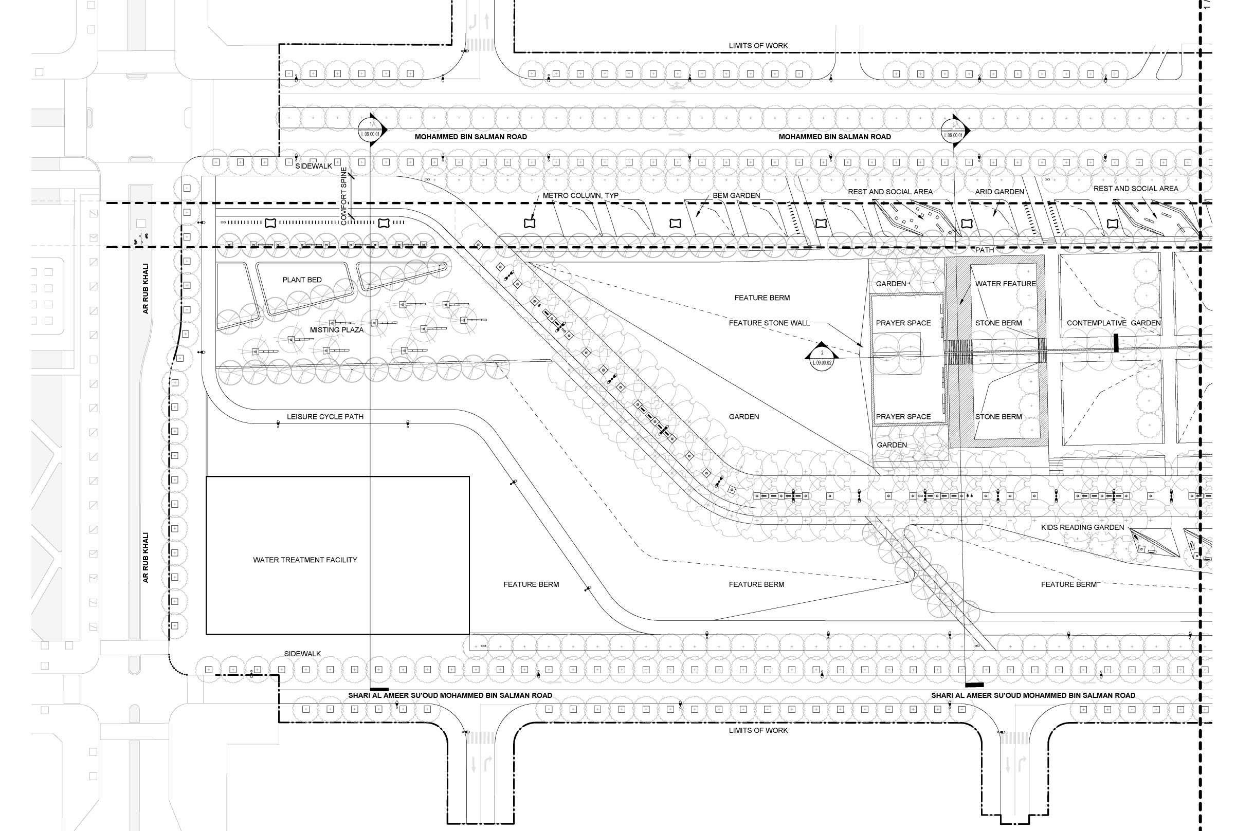
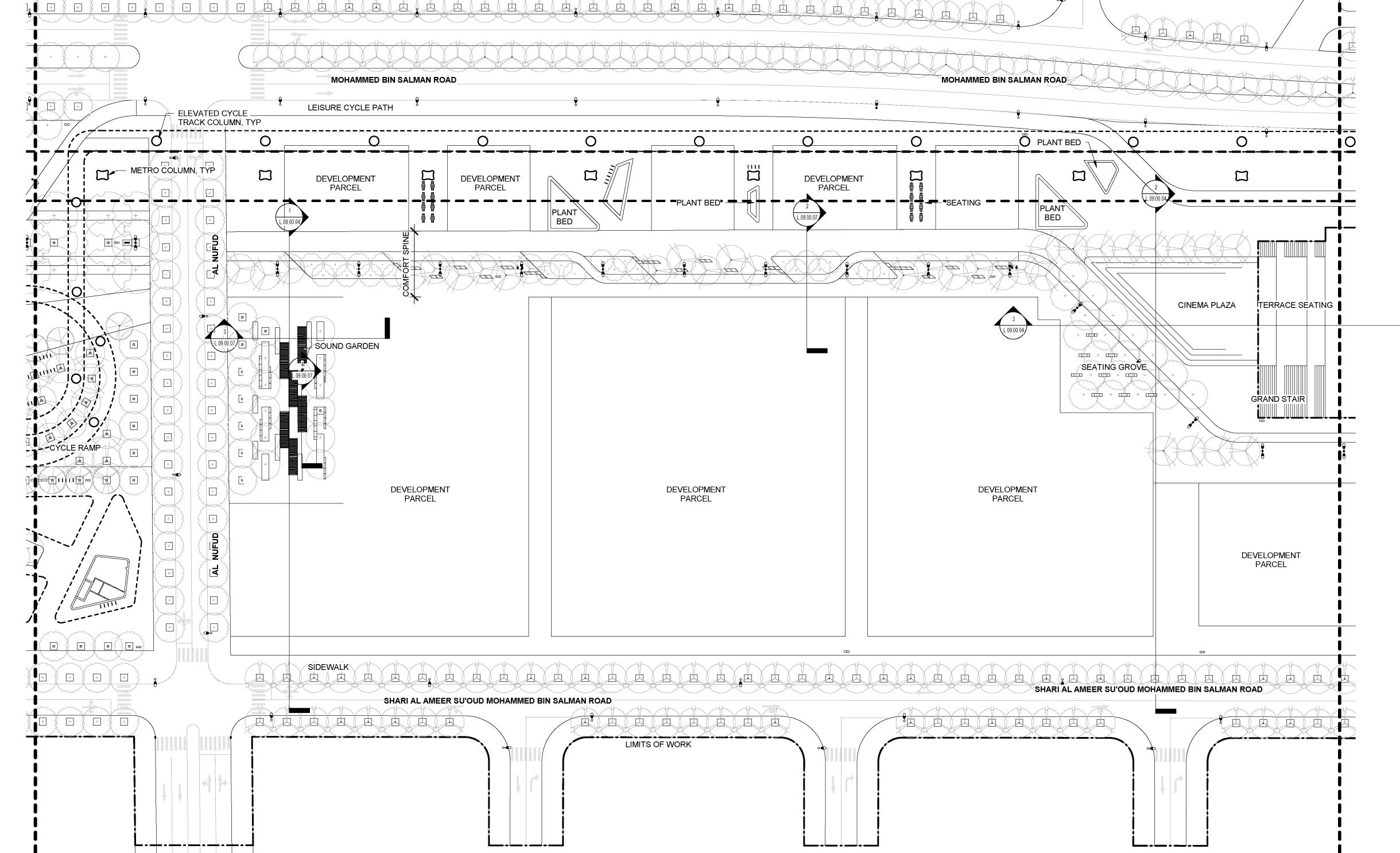
SPORTS BOULEVARD
PNU LOOP Cycling Corridor
Typology: Construction Documents/and Bid
Coen+Partners
Complete
Teamwork 2023
Location: Riyadh, Saudi Arabia
Construction Documents
2023 Aug - 2023 Oct
Key Role: Worked closely within the Revit model to set the coordination system, develop 5km bike path and realignments based on CRS and civil engineers inputs. Produced detailed construction drawings for paving systems, bike racks, and shade structures, ensuring coordination across disciplines and constructability on site.










Construction Documents
2023 Aug - 2023 Oct
Key Role: Worked closely within the Revit model to set the coordination system, develop 5km bike path and realignments based on CRS and civil engineers inputs. Produced detailed construction drawings for paving systems, bike racks, and shade structures, ensuring coordination across disciplines and constructability on site.


Typology: Construction Documents/and Bid
Coen+Partners
Complete
Teamwork 2023
Location: Riyadh, Saudi Arabia



that unfolds in space and time. Serving both as a public art installation and a functional seed library, the project invites visitors to engage with local seed stories while supporting biodiversity, conservation, and community connection in Giarre.












Landscape is an interactive installation that celebrates the invisible nature. Like wind, sunlight that shape our environment and daily lives. Though often unnoticed, these elements are constantly at work, transforming the urban landscape and influencing how we feel, move, and connect.
This piece turns the natural process like wind and sunlight into a visible and playful experience. As ribbons respond to movement and light, the installation invites people to engage with the environment and rediscover its quiet power. It advocates for landscape urbanism: the belief that landscapes are not just background spaces, but vital, expressive parts of urban life—a bridge between nature, history, and modernity.
Detailing Title: Dynamic Landscape
Media: 6061 Aluminum and Ribbon
Year: Complete in June 2025
Dimensions: 6.5’ tall 4.5’ in Radius
Location Slatterly Park, Rochester, Minnesota Budget: $3,000
Timeline: 2024 December Call End 2025 Jan Winner Announced
Jan to March Fabrication Drawing
April to May Construction
June Installation on site
Commissioning Entity: Rochester Art Center Art4Trails







