Skip to main content

Domenic Maiorano Portfolio - Drexel University 2021-2023

Page 1

ARCHITECTURE PORTFOLIO 2023
DOMENIC MAIORANO
"Modernism is the art of simplicity. It is the essence of order, of elegance, an - Le Corbusier
THE
THE BOATHOUSE THE BEACON ELEVATED WELLNESS MISCELLANEOUS 4-11 12-19 20-27 28-37 38-48
SOLEIT HOUSE
d of style."

THE SOLEIL HOUSE

STUDIO 2A FALL 2022

PROF. JAMES ROWE

PROJECT BRIEF

The objective of this project was to design an intergenerational row house that would be a part of a larger development of differing programmatic row houses. The site was in West Philadelphia, Mantua neighborhood, in between the 3700th block of Mt Vernon St and the 3600 block of Wallace St.

THE CONCEPT

The project encourages a connection between the first-gene second/third-generation. The First-generation unit was plac ground floor, primarily for ease of access, while the second/third was placed on the third floor, leaving the second floor shared whole family. The glass balcony connects to the curtain wall er the southwestern side of the building, projecting up, termina skylight. The glazing promotes openness making te space in also fostering circulation throughout the building.

6 PRIVATE SPACE
SUNLIGHT

eration and ced on the generation among the rected from ating at the viting while

CIRCULATION

7
E
3RD AND 2ND GENERATION SHARED 1ST GENERATION
8
SITE PLAN WITH FIRST FLOOR PLAN
FRONT ELEVATION WITH DETAIL SECTION

3RD AND 2ND GENERATION : PRIVATE

SHARED

THIRD FLOOR

1ST GENERATION : PRIVATE CIRCULATION

SECOND FLOOR

9
FIRST FLOOR ROOF
10 SECTION PERSPECTIVE
11

THE BOAT HOUSE

STUDIO 1C SPRING 2021 PROF. JENNIFER HOFER JEFFREY

PROJECT BRIEF

The objective of this project was to design a row house for Philadelphia City Rowing (PCR). Philadelphia City Rowing is an organization that provides students of the Philadelphia public school with a structured athletic rowing program while also offering academic support, mentoring,and other activities that promote personal development. PCR currently doesn’t have a boat house, the goal of the assignment was to design a boat house that also serves as a facility for all the programs the organization offers. The site was located on a Boathouse Row in Philadelphia in between The Lighthouse at Turtle Rock and Philadelphia Girls Rowing Club.

CONNECTION MODEL AND PLANS

THE CONCEPT

The project aimed to break the mold of along Kelly Drive, fostering more welcoming atmosphere. The building funnel, offering visitors a distinctive s approach the river. It compresses and to the water. Wrapped in stone with a c structure creates a pathway and fram of the Schuylkill River from Kelly Drive space can accommodate large group suitable for hosting weddings and othe

FUNNELING MODEL AND PLANS

14

the existing boathouses transparency and a g's design resembles a sense of arrival as they releases in its approach central glass atrium, the es the picturesque view Inside, the open interior ps of people, making it er rental events.

CONNECTION FUNNELING

15

SECTION LOOKING NORTH

16 SITE PLAN WITH FIRST FLOOR PLAN
BUILDING

FLEX SPACE

BOAT STORAGE

RESTROOMS

STUDY ROOMS

CAHNGING ROOMS

LOBBY

CUBBY STORAGE

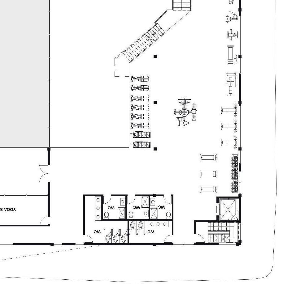
FITNESS AREA

OFFICES

ROOFTOP GARDEN

BOAT STORAGE

17
SECOND FLOOR THIRD FLOOR ROOF TOP

THE BEACON

STUDIO 2B WINTER 2023 PROF. ALESA RUBENDALL

PROJECT BRIEF

The objective of this project was to design a branch library along with residential housing in the Francisville neighborhood of Philadelphia. The site is located between 19th street and Wylie St, while the projected focused on the library and the residential housing we also had to account placeholders for twenty rowhouse on the site.

FOUR STORIES

THREE STORIES

TWO STORIES

ONE STORY

OPEN AREA

SITE

BUILDING HIGHT STUDY

THE CONCEPT

The project aimed to influence the m community center that is ascent to the si at the north end of the site, as the topo the building starts to rise eventually crea structure that serves as the beacon for t

EAST ELEVATION

22
SHIRLEYST WYLIEST PARRISH ST CAMERONST N 19TH ST

ovement to the park and the te. The building being on grade ography descent moving west, ating a welcoming, transparent the small community.

APARTMENTS

LIBRARY

PARKING

PUBLIC INTERIOR SPACE

PRIVATE INTERIOR SPACE

WALKING CONNECTION

23

BUILDING SECTION LOOKING NORTH

BUILDING SECTION LOOKING WEST

24 SITE PLAN WITH FIRST FLOOR PLAN

FIFTH FLOOR

LIBERY APARTMENTS

CIRCULATION

PARKING

FORTH FLOOR

LIBERY FLOOR

MEETING ROOMS

RESTROOMS

PARKING

ONE BEDROOM

TWO BEDROOMS

STUDIOS

SERVICE ROOMS

THIRD FLOOR

SECOND FLOOR

25
26 PERSPECTIVE SECTION LOOKING EAST
LOOKING SOUTH ON SECOND FLOOR
27
LOOKING SOUTH ON 19TH ST

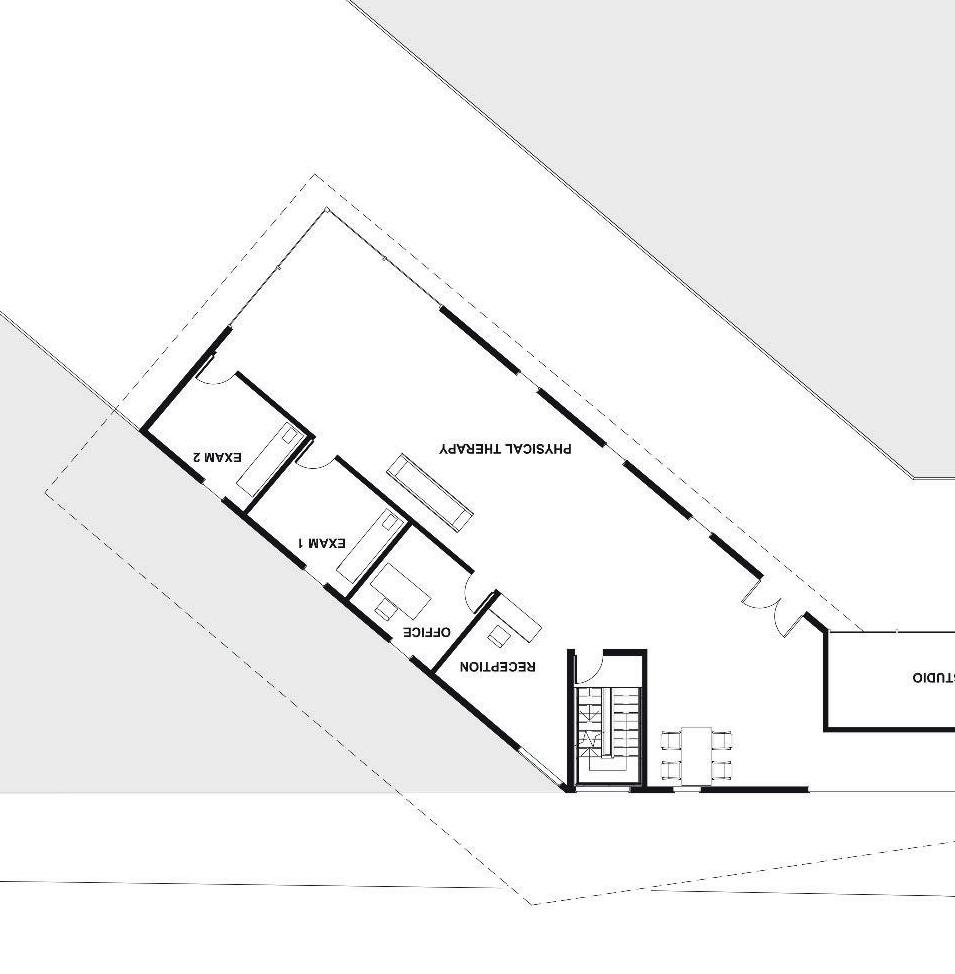
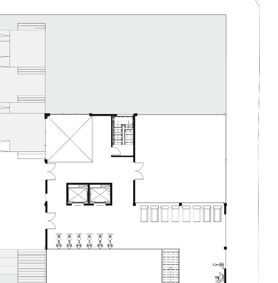
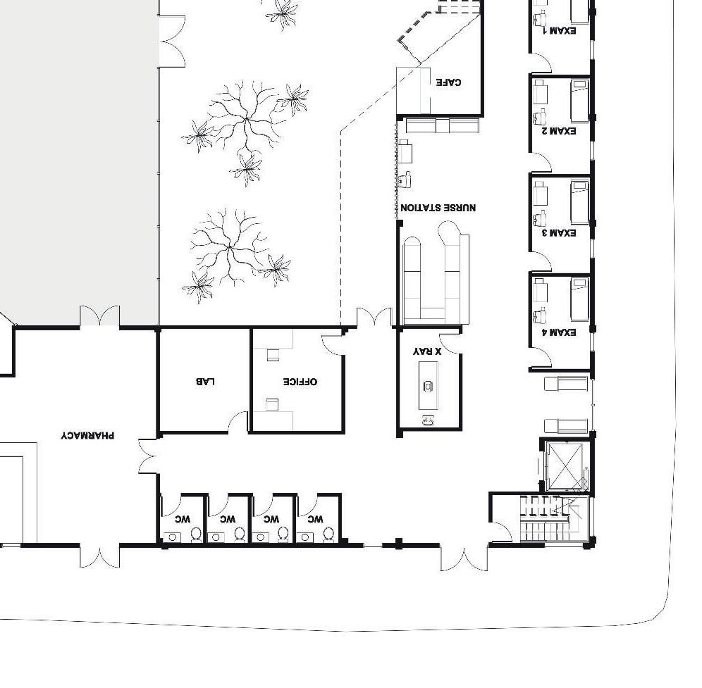
ELEVATED WELLNESS

STUDIO 2C SPRING 2023 PROF. JENNIFER HOFER JEFFREY

PROJECT BRIEF

The objective of this project was to design a community center along Powelton Ave and 36th Street in West Philadelphia. The lot had a rectangular shape, spanning one block, and featured an old middle school building. The challenge for the design was to incorporate and repurpose the existing steel-framed middle school building into the new community center.

THE CONCEPT

The project aimed to design a building with the community while enhancing the w Inspired by tree branches, horizontal planes pathways for physical activity and a close planes also form canopies and a courtyard being and community. The glass facade is connection between occupants and nature

30
POWELTON AVE
36TH ST SITE PLAN
PEARL ST

that harmoniously coexists well-being of its inhabitants. s shape the building, creating r connection to nature. The d, fostering a sense of wells penetrated, enhancing the e

PHYSICAL HEALTH FITNESS CENTER

HEALTH

MENTAL HEALTH

PHARMACY PHYSICAL THERAPY

BANK

31
35TH ST
FOOD

FIRST FLOOR

32
SITE SECTION LOOKING WEST
33 FOOD BANK NURSE STATION

SECOND FLOOR

34 SITE SECTION LOOKING SOTUH
35 COURT
YARD SECOND FLOOR PATH

THIRD FLOOR

36
37
THIRD FLOOR FLEX SPACE FRONT OUTDOOR BALCONY

SITE SKETCH

38
39
NORTH ELEVATION
WEST ELEVATION EAST ELEVATION
4 ATRIUM PERSPECTIVE
41

ROW HOUSE FRAME

MATERIALS & METHODS I FALL 2023 PROF. JAMES ROWE

DETAIL AXONOMETRIC

DETAIL AX O N O METRI C

REPRESENTATION IV FALL 2022 PROF. JEREMIAH WOODRING

42
43
44
HOUSE RENDERING REPRESENTATION V SPRING 2023 PROF. JEREMIAH WOODRING
EAMES
45 MULTIMEDIA RENDER
EAMES HOUSE STORM RENDERING

THE PAVILION

STUDIO 1A FALL 2021 PROF. STÉPHANIE FELDMAN

48

Turn static files into dynamic content formats.

Create a flipbook