Skip to main content

DSPortfolio_2024

Page 1

PORTFOLIO

DOMINIC SARGEANT

TABLE OF CONTENTS RESUME

Houston Food Bank

Project Site: Houston, Texas

Campsite at Shield Ranch

Project Site: Austin, Texas

Elizita Ranch

Project Site: Hebbronville, Texas

Energyscape

Project Site: Ciudad Miguel Aleman, Tamaulipas, Mexico

Goose Island State Park Pavilion**

Project Site: Rockport, Texas

dts726@gmail.com (216)-906-9472

1401 S. State Street Apt. 1803 Chicago, IL 60605

EDUCATION

University of Texas at Austin

Bachelor of Architecture (May 2017)

Bridging Disciplines Program

Certificate of Environment and Sustainability (May 2017)

SKILLS

Acrobat

Autocad

Code Analysis & Compliance

Consultant Coordination

Enscape

Facility Condition Assessments

Hand Sketching

Illustrator

InDesign

Model Building

Microsoft Office Suite

Photoshop

Revit

Rhino

Sketchup AWARDS

Design Excellence Nominee & Winner (Fall 2014, Fall 2015)

Overland Partners Scholarship (2012 - 2014)

Ford, Powell, & Carson Scholarship (2012 - 2013)

WORK EXPERIENCE

RDLR (REY DE LA REZA)

Architectural Designer (February 2021 - November 2023) Houston, TX

Involved in all stages of design of a variety of transit, commercial, and renovation projects for several public entities such as:

• Houston Airport Systems (HAS)

• Houston METRO

• The Harris Center for Mental Health and IDD

• Houston Food Bank

• Harris County Toll Road Authority (HCTRA)

• Harris County Sheriff’s Office (HCSO)

I was part of a larger LAN-led team that performed a statewide TxDOT facility assessment to identify non-compliance with the Americans with Disabilities Act (ADA) and building systems in need of repair or maintenance. I also assisted with scheduling the coordination of when third-party contractors would join the teams.

ANDERSSON / WISE

Architectural Designer (November 2017 - March 2020) Austin, TX

I was a part of multiple design teams that worked on all phases of commercial, institutional and residential design work. That work included drawing and making modifications to construction details as indicated by the project architect, building physical models, rendering plans, elevations, and other 2D linework.

In addition to my architectural responsibilities, I assisted with the firm’s marketing efforts. That work included preparing RFQ submittals, creating portfolios to show to prospective clients, and archiving past work for various marketing purposes.

02
**= Design Excellence Winner pg. 04 pg. 12 pg. 20 pg. 30 pg. 40

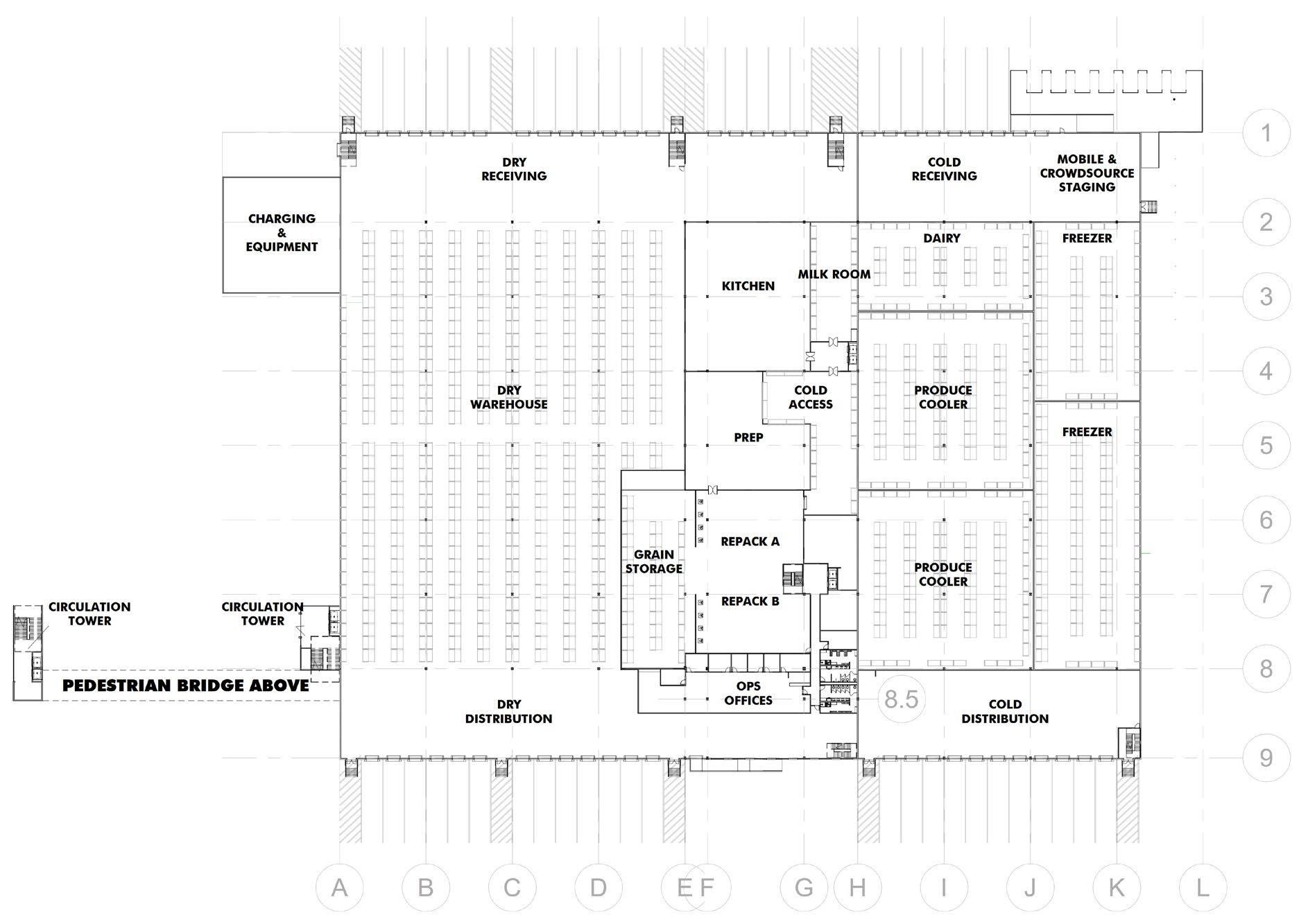
HOUSTON FOOD BANK WEST

Houston, Texas

To meet the growing issue of hunger and expand its distribution capacity over three-fold, the Houston Food Bank (HFB) tasked RDLR with renovating a neglected, thirty year old, “tilt-up” warehouse. Completed in 2011, that building has served as the main warehouse and headquarters for the largest food bank in the country in terms of facility size and distribution.

Now, once again, HFB has asked us to design another food bank in northwest Houston. The client expressed to us the desire to increase operational efficiency, accomodate new programs, provide a unique and alternate volunteer experience, and increase the space provided for already existing programs such as a cafe and meeting spaces. In addtion, HFBW campus will also have a five acre farm with a pavilion that will hold events for up to 100 people. The pavilion will prioritize sustainable design with features such as rainwater harvesting and solar power.

One of the ways we provided a new type of volunteer experience was through the roof plaza located on the second floor of the warehouse building. Visitors must pass through the roof plaza to enter the building. Along the way large glass windows show the dry warehouse below, allowing visitors to visually interact with the spaces before entering the food bank. Once inside the volunteer area, visitors can see automated grain packing through a series of custom dispensing machines and bulk bag unloaders.

It is our hope, that, once completed HFBW will carry on the HFB philosophy of positive teamwork and good stewardship.

04
06 Second Floor Plan First Floor Plan
08 Exterior View of Roof Plaza
10 Interior View of Volunteer Repacking Area

CAMPSITE AT SHIELD RANCH

Austin, Texas

The Campsite at Shield Ranch is a kid’s nature discovery camp in Austin, TX. When the client approached us about the project, they expressed a desire to have a more permanent central structure to feed and educate the campers. Lodging would be provided through the use of surrounding cabins, while all buildings would have a minimal impact on the local environment.

The design we came up with consists of a large pavilion at the center of the campus surrounded by smaller cabins and outhouses. Educating children about the natural environment was a big compotent of the project and as such a lot of the design decisions were made to reinforce this idea. Many of the cabins surrounding the central pavilion are elevated off the ground using steel columns to help reduce the building’s footprint. Screens set in wooden frames are used throughout the project in place of windows to provide natural ventilation and airflow. In addition to having solar panels on the roof to provide electricity, the pavilion is also home to large water tanks that will be used to store collected rainwater throughout the year. Even the stays that make up the facade provide a learning opportunity as they are sourced from nearby juniper trees.

The new structures will also provide year-round programming opportunities for non-profits, community groups, and other partners to convene in and experience nature. Once completed vistors that come through the camp will have a better appreciation for the Texas Hill Country ecosystem.

14
Ground Floor Plan A2.01 A3.01 PD PC 1 A2.01 A2.02 A2.02 P3 U UP P2 P4 PE PG 615 SF WEATHER ROOM 101 239 SF STORAGE 103 A5.03 3 A5.02 12'-1" 22'-6" 12'-1" 2 A2 03 3 A2 03 2 A2 0 3 A2 04 2 A204 A2.06 A2.07 1 A2.06 A2.07 1 A2 03 PB PF 159 SF ELECTRICAL 106 07.2 122 SF RESTROOM 102 03.8 C1 A6 E21 A6 P10 P11 P12 KB KC K1 K2 M1 2 A3.01 P13 MC MA A2.05 A2.04 21.2 M2 M3 M4 M5 K3 P1 P5 46'-8" 16'-0" 16'-0" 16'-0" 16'-0" 240 163 SF WATER EQUIPMENT 105 5'-7 1/2" 5'-7 1/2" 14 14° 20 5 20 5° 64'-0" 44-0 300 PA 90'-10" A5.01 2 A5.02 A5.03 2 A5.04 A5.01 A7.52 A7.03 1 KA 05.40 05.40 60 08.15 08.15 32.2 4 A203 107 DW4(50) F3-HDWE-5 108 DW5(48) F3-HDWE-5 101A DM1(36) F1-HDWE-2 101B DM1(36) F1-HDWE-2 A6 A6 A6 A6 A6 A6 A6 E5 E5 C1 C1 C1 B1 B1 B1 B1 B1 B1 B1 E4 E4 B1 A21 A20 11'-3" 11'-3" 22.2 22.2 22.2 32.3 32.3 05.12 03.8 03.8 23.5 23.5 23.5 23.5 03.8 A7.03 A3.55 1 EQ EQ 3'-0" 05.40 05.40 05.40 E5 14 SF FIRE RISER ROOM 104 6'-0" 7'-2 3/4" CL37 1/2 C L2-6 9'-10 1/2" 4'-1 1/4" 6'-2 3/4" ALIGN A3.52 A3.51 1 03.12 E21 A7.03 6 A6.50 4 106 DM2(36) 24'-7" 10'-0" 56'-3" 3'-11 3/4" 8'-0 1/4" 15'-4 1/2" 3 3/4" 6'-8" 10'-0" 6'-0" 03.12 03.12 03.12 10-0 34-0 17-0 17-0 05.40 05.40 102A DM1(34) F1-HDWE-8 C 68 1/2 A6 09.1 MB E1 11.12 STA WEST STAIR ANDERSSON WISE 807 BRAZOS STREET, SUITE 800 AUSTIN, TX 78701 T 512.476.5780 © COPYRIGHT THESE DRAWINGS ARE PROPERTY OF THE ARCHITECT AND MAY NOT BE REPRODUCED WITHOUT THE PERMISSION OF REPRESENTATIVE OF ANDERSSON WISE ARCHITECTS INC. PROJECT NO. ISSUE DATE ARCHITECT: ARTHUR W. ANDERSSON TX REGISTRATION 13257 FREDERICK C. WISE TX REGISTRATION 16659 CONSTRUCTION DOCUMENTS SUBMITTAL PAVILIONGROUND FLOOR PLAN A1.01 1805 19 DEC 2019 10417 CRUMLEY RANCH RD AUSTIN, TX 78738 CAMPSITE AT SHIELD RANCH Scale: 1/8" 1'-0" 1 GROUND FLOOR PLAN KEYNOTES 03.8C.I.P. CONCRETE SLAB; REF: STRUCTURAL 03.12STONE PAVER 05.12STEEL COLUMN; MTL-2 REF: STRUCTURAL 05.40DOWNSPOUT 07.2LINE OF FLOOR ABOVE 07.9LINE OF BRIDGE ABOVE 08.15MECHANICAL DROP DOOR TRACK 09.1TILE 11.12WASTE BIN 21.2FEXI-B 22.2CISTERN 23.5HEAT PUMP; REF: MEP 32.2COBBLE BED 32.3STABILIZED DECOMPOSED GRANITE GENERAL NOTES 1SEE SHEET A6.00 A6.01 FOR WINDOW LOUVER FENESTRATION TYPES SCHEDULES 2SEE SHEET A6.50 FOR DOOR PANEL TYPES & SCHEDULES 3SEE SHEET G0.50 FOR FINISH, EQUIPMENT, AND ACCESSORIES SCHEDULE 4ALL DIMENSIONS ARE TO STRUCTURAL GRID OR FACE OF GWB/SHEATHING UNLESS NOTED OTHERWISE 5ALL WINDOW FENESTRATION LOCATION DIMENSIONS TO CENTERLINE. SEE SHEETS A6.00/A6.01 FOR ROUGH OPENING DIMENSIONS. 6ALL EXTERIOR ELECTRICAL OUTLETS HOSE BIBS ARE LOCATED 1'-3" A.F.F. TO CENTERLINE 16 Second Floor Plan 2 A2.01 1 A3.01 PD PC 1 A2.01 A2.02 2 A2.02 P3 1845 SF DINING 203 254 SF OFFICE 207 DN DN P2 P4 PE PG A7.01 3 A5.03 3 A5.02 12'-1" 22'-6" 12'-1" 2 A2 03 3 A2 03 A2 05 3 A2 04 2 A204 2 A2.06 A2.07 A2.06 1 A2.07 1 A2 03 PB PF 14.1 12.6 03.6 08.4 05.10 05.10 A3 A6 E10 P10 P11 P12 KB KC K1 K2 M1 2 A3.01 P13 MC MA 1 A2.05 1 A2.04 A7.01 M2 M3 M4 M5 K3 10-0 34-0 A7.02 A7.02 A7.02 P1 P5 46'-8" 64'-0" 697 SF KITCHEN 201 213 SF PANTRY 202 16'-0" 16'-0" 16'-0" 16'-0" 159 SF NURSE'S OFFICE 206 233 SF RESTROOM 205 A3.51 1 1 14° 14 20 5° 20 5 11'-3" 11'-3" 11'-3" 11'-3" 11'-3" 5'-7 1/2" 5'-7 1/2" 44-0 90'-10" 24'-7" 10'-0" 56'-3" PA 1 A5.01 2 A5.02 3 A5.04 A5.02 A5.04 A5.03 A5.04 A5.01 A7.51 1 A5.41 1 A7.52 2 A3.52 1 A7.01 4 A7.01 2 KA A7.02 3 4 1 07.1 05.10 207A DW1(36) F1-HDWE-4 206A DW1(36) F1-HDWE-4 206B DM1(36) F1-HDWE-6 203B DM1(36) F1-HDWE-2 201C DM1(36) F1-HDWE-2 6-SP SPW1(149) F4-HDWE-5 6-SP SPW1(149) F4-HDWE-5 7-SP SPW2(144) F4-HDWE-5 E8 E4 E4 A4 A4 E8 A2 A8 E7 E7 A3 A3 A6 A6 E6 E7 E6 E7 A20 E20 D1 B1 B1 B1 B1 B1 B1 B1 B1 8-SP MDP(277) F4-HDWE-5 E3 4-SP SPC(47) N/A-HDWE-5 4-SP SPC(47) N/A-HDWE-5 4-SP SPC(47) N/A-HDWE-5 4-SP SPC(47) N/A-HDWE-5 5-SP SPC(93) N/A-HDWE-5 3-SP SPC(45) N/A-HDWE-5 5-SP SPC(93) N/A-HDWE-5 11'-3" 11'-3" 6'-0" 10'-0" 05.1 A3 300 60 240 05.40 05.40 05.40 A5.42 202C DM1(36) F1-HDWE-6 202 DM1(36) F1-HDWE-6 111 SF STORAGE 204 12 SF JANITOR'S CLOSET 208 16 SF JANITOR'S CLOSET 202C A4 A21 C FOUNTAINS C L 4-0 L 43 03.11 03.11 03.11 03.11 03.11 03.11 03.11 05.40 05.40 21.1 961/2-512 27 145 1/4 ALIGN 3'-11" 12'-0" 11'-9 1/2" 19'-10" 4'-9" E21 201B DW1(39) F2-HDWE-7 201A DW1(39) F2-HDWE-7 203A DW2(48) F1-HDWE-1 204 DW5(84) F3-HDWE-5 C LAVATORY DOOR 3'-10" 11'-11 3/4" 4-31/2 05.40 05.40 CL OOR C L DO R CL DOOR 17-0 17-0 EQ EQ CL CO MN C CO MN C C UM C C UM EQ EQ CL UM C OLUMN EQ EQ 21 1/2 25 1/4 19 1/2 22 3/4 5-612 8-912 A2 FEX1-C FEX1-B FEX1-C FEX1-C A8 09.1 205A DW1(36) F1-HDWE-3 05.67 05.67 22.6 EQ EQ MB 05.67 05.67 05.67 05.67 05.29 05.67 05.67 05.29 FEX2-C ST R WEST STAIR EQ EQ Scale: 1/8" = 1'-0" 1 SECOND FLOOR PLAN KEYNOTES 03.6CONCRETE ON METAL DECKING; STRUCTURAL 03.11CONTROL JOINT 05.1METAL GRATE FLOOR; MTL-4 05.10METAL GUARD SYSTEM; MTL-2 05.29STEEL WALL CAP; REF: 1/A8.11 05.40DOWNSPOUT 05.671/4" STEEL FRAME; MTL-2 07.1LINE OF ROOF ABOVE 08.4WOOD BOARD SLIDING PANEL 09.1TILE 12.6COMPOSITE WOOD CABINETS 14.1ELEVATOR 21.1FIRE RISER 22.6DRINKING FOUNTAIN GENERAL NOTES 1SEE SHEET A6.00 A6.01 FOR WINDOW + FENESTRATION TYPES & SCHEDULES 2SEE SHEET A6.50 FOR DOOR SCHEDULES 3SEE SHEET G0.50 FOR FINISH, EQUIPMENT, ACCESSORIES SCHEDULE 4ALL DIMENSIONS ARE TO STRUCTURAL OR FACE OF GWB/SHEATHING OTHERWISE 5ALL WINDOW FENESTRATION DIMENSIONS TO CENTERLINE. A6.00/A6.01 FOR ROUGH OPENING 6ALL EXTERIOR ELECTRICAL OUTLETS BIBS ARE LOCATED 1'-3" A.F.F.
06
18 Scale: 2 CC -CAMPER CABIN AXON EXPLODED Scale: 1 CC 320 SF QUARTERS 501 3 A1.13 5 A1.13 A1.13 A3.11 A3.11 A1.13 07.1 06.10 13.1 LF16 16'-0" A7.13 3 1 C1 C2 C3 C4 CA CB CD CC A5.11 SIM A5.11 SIM 2 A5.11 SIM 20'-0" 1-SP SPC(48) N/A-HDWE-5 1-SP SPC(48) N/A-HDWE-5 1-SP SPC(48) N/A-HDWE-5 1-SP SPC(48) N/A-HDWE-5 1-SP SPC(48) N/A-HDWE-5 1-SP SPC(48) N/A-HDWE-5 4'-0" 8'-0" 4'-0" 4'-0" 12'-0" 4'-0" 501 DW1(43) F2-HDWE-3 26.6 12.11 12.11 12.11 12.11 12.11 12.11 1 A6.90 1-SP SPC(48) N/A-HDWE-5 12.8 1'-6" VARIES 12.12 FEXI-B A3.11 STEEL ANGLE; MTL-2 REF: STRUCTURAL STEEL BEAM; MTL- REF: STRUCTURAL FORMED METAL ROOFING; MTLSTEEL PURLIN; MTL- REF: STRUCTURAL F.F. FLOOR: VARIES T.O. BEAM: 8'-6" CROSS BRACING; MTL-2 REF: STRUCTURAL C1 C2 C3 C4 MF-28 MF-28 MF-28 WF-21.1 WF-21.1 MF-28 STEEL COLUMN; MTL- REF: STRUCTURAL WF-23.2 BENCH WOOD SCREEN DOOR 1 A5.11 SIM A3.11 STEEL ANGLE; MTL- REF: STRUCTURAL STEEL BEAM; MTL-2 REF: STRUCTURAL FORMED METAL ROOFING; MTLSTEEL PURLIN; MTL- REF: STRUCTURAL STEEL BEAM; MTL-2 REF: STRUCTURAL F.F. FLOOR: VARIES T.O. BEAM: 8'-6" STEEL COLUMN; MTL-2 REF: STRUCTURAL CA CB CD CC INSECT SCREEN; IS-3 IN WOOD FRAME CROSS BRACING; MTL- REF: STRUCTURAL T+G WOOD BOARDS IN WOOD FRAME WF-21.2 WF-25.1 MF-27 MF-25 MF-26 MF-24 MF-23 C.I.P. CONCRETE FOOTING; REF: STRUCTURAL WF-21.1 BENCH O.H. O.H. O.H. O.H. O.H. O.H. 6 A3.11 STEEL ANGLE; MTL-2 REF: STRUCTURAL FORMED METAL ROOFING; MTL-3 F.F. FLOOR: VARIES T.O. BEAM: 8'-6" CROSS BRACING; MTL-2 REF: STRUCTURAL STEEL COLUMN; MTL- REF: STRUCTURAL C1 C2 C3 C4 STEEL BEAM; MTL- REF: STRUCTURAL INSECT SCREEN; IS- IN WOOD FRAME C.I.P. CONCRETE FOOTING; REF: STRUCTURAL WF-24.1 WF-21.2 WF-21.2 STEEL BEAM; MTL- REF: STRUCTURAL STEEL BEAM; MTL- REF: STRUCTURAL 2 A5.11 SIM INSECT SCREEN; IS- IN WOOD FRAME 1/2" 12" 07.6 21'-0" C1 C2 C3 C4 CA CB CD CC 25'-0" 2'-6" 2'-6" 2'-6" 2'-6" A3.11 T+G WOOD BOARDS IN WOOD FRAME STEEL ANGLE; MTL- REF: STRUCTURAL STEEL BEAM; MTL- REF: STRUCTURAL FORMED METAL ROOFING; MTL-3 STEEL BEAM; MTL- REF: STRUCTURAL F.F. FLOOR: VARIES T.O. BEAM: 8'-6" CROSS BRACING; MTL- REF: STRUCTURAL CA CB CD CC WF-25.1 WF-21.2 MF-23 MF-25 MF-26 MF-24 STEEL BEAM; MTL- REF: STRUCTURAL WF-21.1 MF-27 A5.11 SIM O.H. ANDERSSON WISE 807 BRAZOS STREET, SUITE 800 AUSTIN, TX 78701 T 512.476.5780 © COPYRIGHT THESE DRAWINGS ARE PROPERTY OF THE ARCHITECT AND MAY NOT BE REPRODUCED WITHOUT THE PERMISSION OF REPRESENTATIVE OF ANDERSSON WISE ARCHITECTS INC. PROJECT NO. ISSUE DATE ARCHITECT: ARTHUR W. ANDERSSON TX REGISTRATION 13257 FREDERICK C. WISE TX REGISTRATION 16659 CONSTRUCTION DOCUMENTS SUBMITTAL CCCA - PLANS + ELEVATIONS A1.13 1805 19 DEC 2019 10417 CRUMLEY RANCH RD AUSTIN, TX 78738 CAMPSITE AT SHIELD RANCH Scale: 1/4" 1'-0" 1 CCCA -GROUND FLOOR PLAN Scale: 1/4" 1'-0" 3 CCCA -SOUTH ELEVATION Scale: 1/4" = 1'-0" 4 CCCA -WEST ELEVATION Scale: 1/4" = 1'-0" 5 CCCA -NORTH ELEVATION Scale: 1/4" = 1'-0" 2 CCCA -ROOF PLAN Scale: 1/4" = 1'-0" 6 CCCA -EAST ELEVATION SHELTER KEYNOTES 06.10WOOD BOARD DECKING 06.21WOOD SCREEN DOOR 07.1LINE OF ROOF ABOVE 07.6FORMED METAL ROOFING; MTL-3 12.8BENCH 12.11ROLL-UP FABRIC PRIVACY PANEL 12.12STORAGE UNIT 13.1BRIDGE 21.2FEXI-B 26.6LOCATION OF INVERTER BENEATH DECK CCCA GENERAL NOTES 1SEE SHEET A6.01 FOR FENESTRATION TYPES & SCHEDULES 2SEE SHEET A6.50 FOR DOOR TYPES & SCHEDULES 3SEE SHEET G0.50 FOR FINISH, EQUIPMENT, AND ACCESSORIES SCHEDULE 4ALL DIMENSIONS ARE TO STRUCTURAL GRID OR CENTERLINE OF WALL UNLESS NOTED OTHERWISE 5THERE ARE FOUR CONSERVATION CORE CAMPER (CCCA) STRUCTURES. FINISH FLOOR ELEVATION VARIES, REFERENCE LANDSCAPE ARCHITECT'S DRAWINGS FOR SPECIFIC FLOOR ELEVATIONS. Scale: 2 CC -CAMPER CABIN AXON EXPLODED Scale: 1 CC -CAMPER CABIN AXON A1.13 6 A3.11 07.1 16'-0" C1 C2 C3 C4 CA 2 A5.11 SIM 4'-0" 8'-0" 4'-0" 6 A3.11 STEEL ANGLE; MTL-2 REF: STRUCTURAL STEEL BEAM; MTL- REF: STRUCTURAL FORMED METAL ROOFING; MTL-3 STEEL PURLIN; MTL-2 REF: STRUCTURAL F.F. FLOOR: VARIES T.O. BEAM: 8'-6" CROSS BRACING; MTL- REF: STRUCTURAL C1 C2 C3 C4 MF-28 MF-28 MF-28 WF-21.1 WF-21.1 MF-28 STEEL COLUMN; MTL-2 REF: STRUCTURAL WF-23.2 BENCH WOOD SCREEN DOOR A5.11 SIM 5 A3.11 STEEL ANGLE; MTL-2 REF: STRUCTURAL STEEL BEAM; MTL- REF: STRUCTURAL FORMED METAL ROOFING; MTL-3 STEEL PURLIN; MTL-2 REF: STRUCTURAL STEEL BEAM; MTL- REF: STRUCTURAL F.F. FLOOR: VARIES T.O. BEAM: 8'-6" STEEL COLUMN; MTL-2 REF: STRUCTURAL CA CB CD CC INSECT SCREEN; IS-3 IN WOOD FRAME CROSS BRACING; MTL-2 REF: STRUCTURAL T+G WOOD BOARDS IN WOOD FRAME WF-21.2 WF-25.1 MF-27 MF-25 MF-26 MF-24 MF-23 C.I.P. CONCRETE FOOTING; REF: STRUCTURAL WF-21.1 BENCH O.H. O.H. O.H. O.H. O.H. O.H. 6 A3.11 STEEL ANGLE; MTL-2 REF: STRUCTURAL FORMED METAL ROOFING; MTL-3 F.F. FLOOR: VARIES T.O. BEAM: 8'-6" CROSS BRACING; MTL- REF: STRUCTURAL STEEL COLUMN; MTL-2 REF: STRUCTURAL C1 C2 C3 C4 STEEL BEAM; MTL- REF: STRUCTURAL INSECT SCREEN; IS- IN WOOD FRAME C.I.P. CONCRETE FOOTING; REF: STRUCTURAL WF-24.1 WF-21.2 WF-21.2 STEEL BEAM; MTL- REF: STRUCTURAL STEEL BEAM; MTL- REF: STRUCTURAL A5.11 SIM INSECT SCREEN; IS- IN WOOD FRAME 21'-0" C1 C2 C3 C4 CA 2'-6" 2'-6" 2'-6" 5 A3.11 T+G WOOD BOARDS IN WOOD FRAME STEEL ANGLE; MTL- REF: STRUCTURAL STEEL BEAM; MTL-2 REF: STRUCTURAL FORMED METAL ROOFING; MTL-3 STEEL BEAM; MTL-2 REF: STRUCTURAL F.F. FLOOR: VARIES T.O. BEAM: 8'-6" CROSS BRACING; MTL-2 REF: STRUCTURAL CA CB CD CC WF-25.1 WF-21.2 MF-23 MF-25 MF-26 MF-24 STEEL BEAM; MTL-2 REF: STRUCTURAL WF-21.1 MF-27 A5.11 SIM O.H. Scale: 1/4" = 1'-0" 3 CCCA -SOUTH ELEVATION Scale: 1/4" = 1'-0" 4 CCCA -WEST ELEVATION Scale: 1/4" = 1'-0" 5 CCCA -NORTH ELEVATION Scale: 1/4" = 1'-0" 6 CCCA -EAST ELEVATION 06.10WOOD 06.21WOOD 07.1LINE 07.6FORMED 12.8BENCH 12.11ROLL-UP 12.12STORAGE 13.1BRIDGE 21.2FEXI-B 26.6LOCATION CCCA 1SEE 2SEE 3SEE 4ALL 5THERE 5 A1.13 6 A3.11 07.1 16'-0" C1 C2 C3 C4 CA A5.11 SIM 4'-0" 8'-0" 4'-0" 6 A3.11 STEEL ANGLE; MTL-2 REF: STRUCTURAL STEEL BEAM; MTL-2 REF: STRUCTURAL FORMED METAL ROOFING; MTLSTEEL PURLIN; MTL- REF: STRUCTURAL F.F. FLOOR: VARIES T.O. BEAM: 8'-6" CROSS BRACING; MTL-2 REF: STRUCTURAL C1 C2 C3 C4 MF-28 MF-28 MF-28 WF-21.1 WF-21.1 MF-28 STEEL COLUMN; MTL- REF: STRUCTURAL WF-23.2 BENCH WOOD SCREEN DOOR 1 A5.11 SIM 5 A3.11 STEEL ANGLE; MTL-2 REF: STRUCTURAL STEEL BEAM; MTL-2 REF: STRUCTURAL FORMED METAL ROOFING; MTLSTEEL PURLIN; MTL- REF: STRUCTURAL STEEL BEAM; MTL-2 REF: STRUCTURAL F.F. FLOOR: VARIES T.O. BEAM: 8'-6" STEEL COLUMN; MTL- REF: STRUCTURAL CA CB CD CC INSECT SCREEN; IS- IN WOOD FRAME CROSS BRACING; MTL- REF: STRUCTURAL T+G WOOD BOARDS IN WOOD FRAME WF-21.2 WF-25.1 MF-27 MF-25 MF-26 MF-24 MF-23 C.I.P. CONCRETE FOOTING; REF: STRUCTURAL WF-21.1 BENCH O.H. O.H. O.H. O.H. O.H. O.H. A3.11 STEEL ANGLE; MTL- REF: STRUCTURAL FORMED METAL ROOFING; MTLF.F. FLOOR: VARIES T.O. BEAM: 8'-6" CROSS BRACING; MTL-2 REF: STRUCTURAL STEEL COLUMN; MTL- REF: STRUCTURAL C1 C2 C3 C4 STEEL BEAM; MTL-2 REF: STRUCTURAL INSECT SCREEN; IS-3 IN WOOD FRAME C.I.P. CONCRETE FOOTING; REF: STRUCTURAL WF-24.1 WF-21.2 WF-21.2 STEEL BEAM; MTL-2 REF: STRUCTURAL STEEL BEAM; MTL-2 REF: STRUCTURAL 2 A5.11 SIM INSECT SCREEN; IS-3 IN WOOD FRAME 21'-0" C1 C2 C3 C4 CA 2'-6" 2'-6" 2'-6" A3.11 T+G WOOD BOARDS IN WOOD FRAME STEEL ANGLE; MTL-2 REF: STRUCTURAL STEEL BEAM; MTL- REF: STRUCTURAL FORMED METAL ROOFING; MTL-3 STEEL BEAM; MTL- REF: STRUCTURAL F.F. FLOOR: VARIES T.O. BEAM: 8'-6" CROSS BRACING; MTL- REF: STRUCTURAL CA CB CD CC WF-25.1 WF-21.2 MF-23 MF-25 MF-26 MF-24 STEEL BEAM; MTL- REF: STRUCTURAL WF-21.1 MF-27 3 A5.11 SIM O.H. Scale: 1/4" = 1'-0" 3 CCCA -SOUTH ELEVATION Scale: 1/4" 1'-0" 4 CCCA -WEST ELEVATION Scale: 1/4" 1'-0" 5 CCCA -NORTH ELEVATION Scale: 1/4" = 1'-0" 6 CCCA -EAST ELEVATION SHELTER 06.10WOOD 06.21WOOD 07.1LINE 07.6FORMED MTL-3 12.8BENCH 12.11ROLL-UP PANEL 12.12STORAGE 13.1BRIDGE 21.2FEXI-B 26.6LOCATION BENEATH CCCA 1SEE SHEET FENESTRATION SCHEDULES 2SEE SHEET TYPES 3SEE SHEET EQUIPMENT, ACCESSORIES 4ALL DIMENSIONS STRUCTURAL CENTERLINE NOTED 5THERE CONSERVATION (CCCA) FLOOR REFERENCE ARCHITECT'S SPECIFIC
Top: Model shows pavilion in site context and visual impact of solar panels Bottom: Wooden stays illustrate how to shade walkways and hide water tanks

FORMED METAL ROOFING; MTL-3

SHEET METAL FLASHING UNDERLAYMENT P.T. PLYWOOD

STEEL PURLIN; MTL-2 REF: STRUCTURAL INSULATION; INS-4

MTL-2 REF: STRUCTURAL

FORMED METAL ROOFING; MTL-3

STEEL ANGLE BEYOND; MTL-2 REF: STRUCTURAL WOOD FRAME BEYOND

COMPOSITE WOOD SLIDING PANEL CONTINUOUS STEEL SHIM WOOD FRAME

CLOSURE STRIP

SHEET METAL FLASHING

1/2" PLYWOOD; REF: STRUCTURAL

MTL-3 UNDERLAYMENT INSULATION; INS-4 STEEL BEAM; MTL-2 REF: STRUCTURAL

SLIDING DOOR BRACKET & CHANNEL

1/2" BOLT FOR WOOD BLOCKING STAGGERED; 3'-0" O.C. OR AS REQ'D.

INSECT SCREEN; IS-3

STEEL BEAM; MTL-2 REF: STRUCTURAL WOOD BOARD DECKING F.F. FLOOR: VARIES T.O BEAM: 8'-6" UNDERLAYMENT NC ND A6.91 2 A6.91 3 C.I.P. CONCRETE FOOTING; REF: STRUCTURAL STEEL COLUMN; MTL-2 REF: STRUCTURAL STEEL BEAM; MTL-2 REF: STRUCTURAL INSECT SCREEN; IS-4 IN WOOD FRAME BEYOND T+G WOOD BOARDS IN WOOD FRAME INSECT SCREEN; IS-3 IN WOOD FRAME STEEL BEAM; MTL-2 REF: STRUCTURAL 1/2" PLYWOOD; REF: STRUCTURAL STEEL BEAM; MTL-2 REF: STRUCTURAL INSECT SCREEN; IS-3 INSECT SCREEN; IS-3 IN METAL FRAME; MTL-2 BEYOND T+G WOOD BOARDS IN METAL FRAME; MTL-2 BEYOND INSULATION; INS-4 SHEET METAL FLASHING STEEL PURLIN; MTL-2 REF: STRUCTURAL FORMED METAL ROOFING; MTL-3 STEEL SHORT COLUMN BEYOND; MTL-2 REF: STRUCTURAL 1 A6.91 NA F.F. FLOOR: VARIES T.O BEAM: 8'-6" STEEL BEAM; MTL-2 REF: STRUCTURAL WOOD BOARD DECKING STEEL BEAM; MTL-2 REF: STRUCTURAL INSULATION; INS-4 UNDERLAYMENT STEEL BEAM; MTL-2 REF: STRUCTURAL INSECT SCREEN; IS-4 IN WOOD FRAME 1/2" PLYWOOD; REF: STRUCTURAL INSECT SCREEN; IS-3 INSECT SCREEN; IS-3 IN WOOD FRAME FORMED METAL ROOFING; MTL-3 SHEET METAL FLASHING A6.91 5 A6.91 13 SIM 4 A6.91 A6.91 6 A6.91 8 ROLL-UP FABRIC PRIVACY PANEL COMPOSITE WOOD SLIDING PANEL ANDERSSON WISE 807 BRAZOS STREET, SUITE 800 AUSTIN, TX 78701 T 512.476.5780 © COPYRIGHT THESE DRAWINGS ARE PROPERTY OF THE ARCHITECT AND MAY NOT BE REPRODUCED WITHOUT THE PERMISSION OF A REPRESENTATIVE OF ANDERSSON WISE ARCHITECTS INC. PROJECT NO. ISSUE DATE ARCHITECT: ARTHUR W. ANDERSSON TX REGISTRATION 13257 FREDERICK C. WISE TX REGISTRATION 16659 CONSTRUCTION DOCUMENTS SUBMITTAL SHELTERS - WALL SECTIONS 1805 19 DEC 2019 10417 CRUMLEY RANCH RD AUSTIN, TX 78738 CAMPSITE AT SHIELD RANCH Scale: 3/4" = 1'-0" 1 NDC WALL SECTION @ DOOR Scale: 3/4" = 1'-0" 2 NDC WALL SECTION @ SCREEN PANEL STEEL BEAM; MTL-2 REF: STRUCTURAL WOOD BOARD DECKING F.F. FLOOR: VARIES T.O BEAM: 8'-6" UNDERLAYMENT NC ND A6.91 2 A6.91 3 C.I.P. CONCRETE FOOTING; REF: STRUCTURAL STEEL COLUMN; MTL-2 REF: STRUCTURAL STEEL BEAM; MTL-2 REF: STRUCTURAL INSECT SCREEN; IS-4 IN WOOD FRAME BEYOND T+G WOOD BOARDS IN WOOD FRAME INSECT SCREEN; IS-3 IN WOOD FRAME STEEL BEAM; MTL-2 REF: STRUCTURAL 1/2" PLYWOOD; REF: STRUCTURAL STEEL BEAM; MTL-2 REF: STRUCTURAL INSECT SCREEN; IS-3 INSECT SCREEN; IS-3 IN METAL FRAME; MTL-2 BEYOND T+G WOOD BOARDS IN METAL FRAME; MTL-2 BEYOND INSULATION; INS-4 SHEET METAL FLASHING STEEL PURLIN; MTL-2 REF: STRUCTURAL FORMED METAL ROOFING; MTL-3 STEEL SHORT COLUMN BEYOND; MTL-2 REF: STRUCTURAL 1 A6.91 NA F.F. FLOOR: VARIES T.O BEAM: 8'-6" STEEL BEAM; MTL-2 REF: STRUCTURAL WOOD BOARD DECKING STEEL BEAM; MTL-2 REF: STRUCTURAL INSULATION; INS-4 UNDERLAYMENT STEEL BEAM; MTL-2 REF: STRUCTURAL INSECT SCREEN; IS-4 IN WOOD FRAME 1/2" PLYWOOD; REF: STRUCTURAL INSECT SCREEN; IS-3 INSECT SCREEN; IS-3 IN WOOD FRAME FORMED METAL ROOFING; MTL-3 SHEET METAL FLASHING A6.91 5 A6.91 13 SIM 4 A6.91 A6.91 6 A6.91 8 ROLL-UP FABRIC PRIVACY PANEL COMPOSITE WOOD SLIDING PANEL ANDERSSON WISE 807 BRAZOS STREET, SUITE 800 AUSTIN, TX 78701 T 512.476.5780 © COPYRIGHT THESE DRAWINGS ARE PROPERTY OF THE ARCHITECT AND MAY NOT BE REPRODUCED WITHOUT THE PERMISSION OF A REPRESENTATIVE OF ANDERSSON WISE ARCHITECTS INC. PROJECT NO. ISSUE DATE ARCHITECT: ARTHUR W. ANDERSSON TX REGISTRATION 13257 FREDERICK C. WISE TX REGISTRATION 16659 CONSTRUCTION DOCUMENTS SUBMITTAL SHELTERS - WALL SECTIONS 1805 19 DEC 2019 10417 CRUMLEY RANCH RD AUSTIN, TX 78738 CAMPSITE AT SHIELD RANCH Scale: 3/4" = 1'-0" 1 NDC WALL SECTION @ DOOR Scale: 3/4" = 1'-0" 2 NDC WALL SECTION @ SCREEN PANEL 20 WOOD FRAME LINE OF BASE PLATE BELOW; REF: STRUCTURAL LINE OF SILL BELOW CL COLUMN STEEL COLUMN; MTLT+G WOOD BOARDS A6.91 13 SIM WOOD SILL BELOW INSECT SCREEN; IS-3 INSECT SCREEN; IS-4 MORTISED BRUSH GASKET STEEL BEAM; MTL-2 REF: STRUCTURAL INSECT SCREEN; IS-3 WOOD SCREEN DOOR STEEL COLUMN BEYOND; MTL-2 REF: STRUCTURAL CROSS BRACING BEYOND; MTL-2 REF: STRUCTURAL LINE 24 BRASS SNAP FOR FABRIC WINTERIZATION WOOD DECKING WOOD FRAME BEYOND INSECT SCREEN; IS-3 WOOD STOP 1 1 / 2 " CL DOOR FORMED METAL ROOFING; UNDERLAYMENT INSULATION; INS-4 STEEL STOP; MTL-1 STEEL SHORT COLUMN; MTL-2 REF: STRUCTURAL STEEL BEAM; MTL-2 REF: STRUCTURAL CONTINUOUS STEEL SHIM WOOD FRAME STEEL BEAM; MTL-2 REF: STRUCTURAL STEEL ANGLE BEYOND; MTL-2 REF: STRUCTURAL WOOD SCREEN DOOR CROSS BRACING BEYOND; MTL-2 REF: STRUCTURAL A6.91 15 SHEET METAL FLASHING FOAM CLOSURE STRIP 1/2" PLYWOOD; REF: STRUCTRUAL INSECT SCREEN; IS-3 INSECT SCREEN; IS-3 WOOD STOP ROLL-UP FABRIC WINTERIZATION PANEL CL DOOR STEEL STOP SPOT WELDED TO BEAM; MTL 1/2" BOLT FOR WOOD STAGGERED; 3'-0" O.C. WOOD FRAME WOOD SILL COMPOSITE WOOD SLIDING PANEL STEEL ANGLE BEYOND; MTL-2 REF: STRUCTURAL INSECT SCREEN; IS-3 STEEL COLUMN BEYOND; MTL-2 REF: STRUCTURAL WOOD FRAME BEYOND WOOD STOP COMPOSITE RESIN PANEL STEEL BEAM; MTL-2 REF: STRUCTURAL WOOD DECKING DOOR GUIDE SET IN FLOOR T+G WOOD BOARDS A6.91 12 CL COLUMN STEEL BAR BEYOND STEEL BAR 7 8 1 / 2 1/2" INSECT SCREEN; IS-3 WOOD STOP WOOD SCREEN DOOR CL COLUMN SMOKE PARTITION PER CODE MODIFICATION REQUEST FIRE RETARDANT TREATED T+G WOOD BOARDS A6.91 13 SIM COMPOSITE WOOD SLIDING PANEL BEYOND STEEL COLUMN BEYOND; MTL-2 REF: STRUCTURAL WOOD FRAME WOOD SILL STEEL BEAM; MTL-2 REF: STRUCTURAL INSECT SCREEN; IS-3 WOOD FRAME BEYOND WOOD STOP WOOD DECKING INSECT SCREEN; IS-3 DOOR GUIDE SET IN FLOOR INSECT SCREEN; IS-4 WOOD FRAME WOOD STOP ALIGN 5 / 8 5 / 8 INSECT SCREEN; IS-4 1 / 8 1 / 8 1 1 / 2 CL COLUMN 3 1/2" 3/4" 3/4" INSECT SCREEN; IS-3 WOOD STOP WOOD FRAME WOOD FRAME BEYOND STEEL COLUMN BEYOND; MTL-2 REF: STRUCTURAL COMPOSITE WOOD SLIDING PANEL STEEL BEAM; MTL-2 REF: STRUCTURAL CONTINUOUS STEEL SHIM FORMED METAL ROOFING;
FOAM
CL
COLUMN
STEEL SHORT COLUMN BEYOND; MTL-2 REF: STRUCTURAL STEEL STOP SPOT WELDED TO BEAM; MTL 1 STEEL ANGLE BEYOND; MTL-2 REF: STRUCTURAL
BEAM;
STEEL
WOOD
A6.91 16 3 1 / 2 1 / 8 T+G WOOD BOARDS T+G WOOD BOARDS CL COLUMN STEEL STOP; MTL-1 A6.91 14 STEEL BAR STEEL BAR BEYOND 1/2" BOLT FOR WOOD BLOCKING STAGGERED; 3'-0" O.C. OR AS REQ'D. SLIDING DOOR BRACKET & CHANNEL FORMED METAL ROOFING; MTL-3 STEEL PURLIN; MTL-2 REF: STRUCTURAL STEEL SHIM 3 / 4 " STEEL STOP; MTL-1 STEEL BEAM; MTL-2 REF: STRUCTURAL 1/2" 1/4" 1 1/4" STEEL STOP SPOT WELDED TO BEAM; MTL-1 INSECT SCREEN; IS-3 1/2" 1/4" STEEL STOP; MTL-1 STEEL ANGLE BEYOND; MTL-2 REF: STRUCTURAL STEEL BEAM; MTL-2 REF: STRUCTURAL CL BEAM EQ EQ T+G WOOD BOARDS 3 / 4 STEEL STOP SPOT WELDED TO BEAM; MTL-1 1 1/4" STEEL COLUMN BEYOND; MTL-2 REF: STRUCTURAL WOOD FRAME BEYOND T&G WOOD BOARDS COMPOSITE WOOD SLIDING PANEL CL COLUMN 1" 1" 1/4"1/2" MONOLITHIC GLASS WOOD STOP COMPOSITE WOOD SLIDING PANEL 1 / 2 1 / 2 Scale: 3" = 1'-0" 2 SECTION DETAIL -SCREEN DOOR Scale: 3" = 1'-0" 3 SECTION DETAIL -SCREEN DOOR Scale: 3" = 1'-0" 10 SECTION DETAIL -WOOD PANEL SILL Scale: 3" = 1'-0" 5 SECTION DETAIL -SCREEN PANEL SILL Scale: 6" = 1'-0" 13 SECTION DETAIL -MULLION Scale: 3" = 1'-0" 6 SECTION DETAIL -SCREEN PANEL HEAD Scale: 6" = 1'-0" 8 ROOF EDGE DETAIL -EAVE Scale: 3" = 1'-0" 11 SECTION DETAIL -WOOD PANEL HEAD Scale: 6" = 1'-0" 7 ROOF EDGE DETAIL -RAKE Scale: 6" = 1'-0" 15 SECTION DETAIL -SCREEN PANEL STEEL STOP Scale: 6" = 1'-0" 16 SECTION DETAIL -WOOD PANEL STEEL STOP Scale: 6" = 1'-0" 14 SECTION DETAIL -RICHLITE BARN DOOR WOOD STOP LINE OF SILL BELOW CL COLUMN T+G WOOD BOARDS SIM INSECT SCREEN; IS-3 INSECT SCREEN; IS-4 MORTISED BRUSH GASKET STEEL BEAM; MTL-2 REF: STRUCTURAL INSECT SCREEN; IS-3 WOOD SCREEN DOOR STEEL COLUMN BEYOND; MTL-2 REF: STRUCTURAL CROSS BRACING BEYOND; MTL-2 REF: STRUCTURAL LINE 24 BRASS SNAP FOR ROLL FABRIC WINTERIZATION PANEL WOOD DECKING WOOD FRAME BEYOND INSECT SCREEN; IS-3 WOOD STOP 1 1 / 2 CL DOOR FORMED METAL ROOFING; UNDERLAYMENT INSULATION; INS-4 STEEL STOP; MTL-1 STEEL SHORT COLUMN; MTL-2 REF: STRUCTURAL STEEL BEAM; MTL-2 REF: STRUCTURAL CONTINUOUS STEEL SHIM WOOD FRAME STEEL BEAM; MTL-2 REF: STRUCTURAL STEEL ANGLE BEYOND; MTL-2 REF: STRUCTURAL WOOD SCREEN DOOR CROSS BRACING BEYOND; MTL-2 REF: STRUCTURAL A6.91 15 SHEET METAL FLASHING FOAM CLOSURE STRIP 1/2" PLYWOOD; REF: STRUCTRUAL INSECT SCREEN; IS-3 INSECT SCREEN; IS-3 WOOD STOP ROLL-UP FABRIC WINTERIZATION PANEL CL DOOR STEEL STOP SPOT WELDED TO BEAM; MTL-1 1/2" BOLT FOR WOOD BLOCKING STAGGERED; 3'-0" O.C. OR WOOD FRAME WOOD SILL COMPOSITE WOOD SLIDING PANEL STEEL ANGLE BEYOND; MTL-2 REF: STRUCTURAL INSECT SCREEN; IS-3 STEEL COLUMN BEYOND; MTL-2 REF: STRUCTURAL WOOD FRAME BEYOND WOOD STOP COMPOSITE RESIN PANEL STEEL BEAM; MTL-2 REF: STRUCTURAL WOOD DECKING DOOR GUIDE SET IN FLOOR T+G WOOD BOARDS A6.91 12 CL COLUMN STEEL BAR BEYOND STEEL BAR 7 / 8 " 1 / 2 1/2" CL COLUMN FIRE RETARDANT TREATED T+G WOOD BOARDS A6.91 13 SIM COMPOSITE WOOD SLIDING PANEL BEYOND STEEL COLUMN BEYOND; MTL-2 REF: STRUCTURAL WOOD FRAME WOOD SILL STEEL BEAM; MTL-2 REF: STRUCTURAL INSECT SCREEN; IS-3 WOOD FRAME BEYOND WOOD STOP WOOD DECKING INSECT SCREEN; IS-3 DOOR GUIDE SET IN FLOOR INSECT SCREEN; IS-4 WOOD FRAME WOOD STOP ALIGN 5 / 8 5 8 INSECT SCREEN; IS-4 1 / 8 1 / 8 1 1 / 2 CL COLUMN 3 1/2" 3/4" 3/4" INSECT SCREEN; IS-3 WOOD STOP WOOD FRAME WOOD FRAME BEYOND STEEL COLUMN BEYOND; MTL-2 REF: STRUCTURAL COMPOSITE WOOD SLIDING PANEL STEEL BEAM; MTL-2 REF: STRUCTURAL CONTINUOUS
FORMED METAL
UNDERLAYMENT INSULATION; INS-4 STEEL BEAM;
STRUCTURAL SHEET METAL
FOAM CLOSURE STRIP INSECT
1/2" PLYWOOD; REF: STRUCTURAL CL COLUMN 1/2"
AS
FORMED METAL
FORMED METAL ROOFING; MTL-3 SHEET METAL FLASHING UNDERLAYMENT P.T.
STEEL PURLIN; MTL-2 REF: STRUCTURAL INSULATION; INS-4 STEEL SHORT COLUMN BEYOND; MTL-2 REF: STRUCTURAL STEEL STOP SPOT WELDED TO BEAM; MTL 1 STEEL ANGLE BEYOND; MTL-2 REF: STRUCTURAL STEEL BEAM; MTL-2 REF: STRUCTURAL COMPOSITE WOOD SLIDING PANEL CONTINUOUS STEEL SHIM WOOD FRAME STEEL ANGLE BEYOND; MTL-2 REF: STRUCTURAL WOOD FRAME BEYOND WOOD STOP A6.91 16 3 1 / 2 1 / 8 T+G WOOD BOARDS T+G WOOD BOARDS CL COLUMN STEEL STOP; MTL-1 A6.91 14 STEEL BAR STEEL BAR BEYOND 1/2" BOLT FOR WOOD BLOCKING STAGGERED; 3'-0" O.C. OR AS REQ'D. SLIDING DOOR BRACKET & CHANNEL FORMED METAL ROOFING; MTL-3 STEEL PURLIN; MTL-2 REF: STRUCTURAL STEEL SHIM 3 / 4 STEEL STOP; MTL-1 STEEL BEAM; MTL-2 REF: STRUCTURAL 1/2" 1/4" 1 1/4" STEEL STOP SPOT WELDED TO BEAM; MTL-1 INSECT SCREEN; IS-3 1/2" 1/4" STEEL STOP; MTL-1 STEEL ANGLE BEYOND; MTL-2 REF: STRUCTURAL STEEL BEAM; MTL-2 REF: STRUCTURAL CL BEAM EQ EQ T+G WOOD BOARDS 3 / 4 STEEL STOP SPOT WELDED TO BEAM; MTL-1 1 1/4" COMPOSITE WOOD SLIDING PANEL CL COLUMN 1" 1" 1/4"1/2" MONOLITHIC GLASS WOOD STOP COMPOSITE WOOD SLIDING PANEL 1 / 2 1 / 2 Scale: 3" = 1'-0" 2 SECTION DETAIL -SCREEN DOOR Scale: 3" = 1'-0" 3 SECTION DETAIL -SCREEN DOOR Scale: 3" = 1'-0" 10 SECTION DETAIL -WOOD PANEL SILL Scale: 3" = 1'-0" 5 SECTION DETAIL -SCREEN PANEL SILL Scale: 6" = 1'-0" 13 SECTION DETAIL -MULLION Scale: 3" = 1'-0" 6 SECTION DETAIL -SCREEN PANEL HEAD Scale: 6" = 1'-0" 8 ROOF EDGE DETAIL -EAVE Scale: 3" = 1'-0" 11 SECTION DETAIL -WOOD PANEL HEAD Scale: 6" = 1'-0" 7 ROOF EDGE DETAIL -RAKE Scale: 6" = 1'-0" 15 SECTION DETAIL -SCREEN PANEL STEEL STOP Scale: 6" = 1'-0" 16 SECTION DETAIL -WOOD PANEL STEEL STOP Scale: 6" = 1'-0" 14 SECTION DETAIL -RICHLITE BARN DOOR WOOD STOP A6.91 CL PANEL A6.91 WOOD STOP WOOD FRAME STEEL COLUMN; MTL-2 REF: STRUCTURAL 1" 5 / 8 1 1 2 1 / 4 BACKER ROD AND JOINT SEALANT 1 / 4 1 1 2 5 / 8 1 / 8 INSECT SCREEN; IS-3 CL COLUMN 5 / 8 1 / 8 1/2" INSECT SCREEN; IS-3 WOOD STOP WOOD SCREEN DOOR WOOD FRAME WOOD STOP ALIGN 5 / 8 5 / 8 INSECT SCREEN; IS-4 1 / 8 1 / 8 1 1 / 2 CL COLUMN 3 1/2" 3/4" 3/4" INSECT SCREEN; IS-3 3 / 4 STEEL STOP; MTL-1 STEEL BEAM; MTL-2 REF: STRUCTURAL 1/2" 1/4" 1 1/4" STEEL STOP SPOT WELDED TO BEAM; MTL-1 INSECT SCREEN; IS-3 3 1/2" 3/4" 4 3/4" 1 / 8 1 3 8 1 1 / 2 STEEL COLUMN BEYOND; MTL-2 REF: STRUCTURAL WOOD FRAME BEYOND T&G WOOD BOARDS COMPOSITE WOOD SLIDING PANEL WOOD STOP WOOD FRAME DOOR GUIDE SET IN FLOOR WOOD SILL STEEL ANGLE BEYOND; MTL-2 REF: STRUCTURAL STEEL BEAM; MTL-2 REF: STRUCTURAL INSECT SCREEN; IS-3 7 / 8 1 8 1 1 1 / 2 1 4 CL COLUMN 1" STEEL BAR STEEL BAR BEYOND 1" 1 / 2 1/4"1/2" MONOLITHIC GLASS WOOD STOP COMPOSITE WOOD SLIDING PANEL 1 2 1 / 2 Scale: 6" = 1'-0" 17 PLAN DETAIL -SCREEN PANEL WOOD STOP & SCREEN DOOR WOOD STOP Scale: 6" = 1'-0" 13 SECTION DETAIL -MULLION Scale: 6" = 1'-0" 15 SECTION DETAIL -SCREEN PANEL STEEL STOP Scale: 6" = 1'-0" 16 SECTION DETAIL -WOOD PANEL STEEL STOP Scale: 6" = 1'-0" 12 SECTION DETAIL -WOOD PANEL WOOD STOP Scale: 6" = 1'-0" 14 SECTION DETAIL -RICHLITE BARN DOOR WOOD STOP
STOP
STEEL SHIM
ROOFING; MTL-3
MTL-2 REF:
FLASHING
SCREEN; IS-3
BOLT FOR WOOD BLOCKING STAGGERED; 3'-0" O.C. OR
REQ'D. SLIDING DOOR BRACKET & CHANNEL
ROOFING; MTL-3
PLYWOOD

ELIZITA RANCH

Hebbronville, Texas

Located within the arid landscape of south Texas, the Elizita Ranch design concept is based on creating a sequence of controlled and protected spaces that organize and connect all of the various buildings within the compound then dramatically expose the remarkable view from the new structures.

The buildings of the ranch are made of traditional plaster walls with corrugated metal roofing. A number of wooden canopies next to the buildings provide shade as well as a protected shelter connecting all of the structures. The concept is to celebrate the connection between indoor-outdoor by positioning the primary rooms of the program deeply recessed and protected by a broad roof line. Much like a tent, the outer edge of the roof is supported by poles and exterior curtains that can close or open the space as desired. Large glass walls of the public rooms can slide or swing open, creating an al fresco experience when the weather permits.

When I worked on Elizita Ranch I mostly focused on the covered parking and trophy room area. The trophy room was designed to be a large gathering space for socializing and entertainment. To help facilitate that program a bar area was introduced with plate steel cabinetry and stone countertop space to make and store drinks. The hope is that once people get their refreshments they can socialize either in the large living room space or outside under the shaded canopy.

22
Catina
A Casita B Casita D
Future Trophy Room Footprint Pool Casita
C Ranch Plan
Casita
LKP LKP LKP LKP 2 A3.02 1 A3.02 A3.03 A7.01 1 2 A7.03 2 A7.04 K.J 2 6 C F H K.12 4 D E T.5 A T.4 G CASITA C CENTERLINE OF FIREPIT TO ALIGN C 90 SF AV/STORAGE 113 1012 SF TROPHY ROOM 101 489 SF FIREPLACE LOUNGE 103 1 A3.03 1 A3.01 A5.01 A7.03 6 A2.02 1 A5.01 A5.03 A5.04 1 A5.03 A2.01 1 A2.02 A2.01 5 A2.02 60 SF MECH. CLOSET EAST 110 341 SF ENTRY VESTIBULE 107 A3.01 5 ROOM 36 SF VESTIBULE NORTH 111 7 5 B1 C2 219 SF (E) LAUNDRY 001 29 SF (E) AV/COMP 002 119 D4(36) F2-H4 23.2 23.2 53 SF POWDER ROOM 112 T.3 T.6 T.14 T.15 112 D8(32) F1-H5 A2.02 5 A5.02 3'-7" 3'-2" 10'-10" 9'-10" 14'-3" 14'-6" 14'-6" 4'-0" 1'-2" 9'-1 1/2" 8'-5" 9'-1 1/2" HB HB 23.3 23.3 26.2 A7.02 1 3/4" 13'-0 1/2" 9'-8 3/4" 10" 5'-7 1/2" 35'-10 1/2" 5'-9" 3/4" 71'-7" 23'-11 5/8" 30'-8 3/8" 1'-5" 4'-7" 3'-0" 69'-11" WC-1 K.F A5.32 3 A7.51 A7.52 31 SF MECH. CHASE 114 B 367 SF SITTING ROOM 105 23.3 21'-3 1/4" 5'-9" 42'-1 3/4" 9" DS DS 1'-3 1/2" 113 D8(34) F1-H15 196 SF MAP ROOM 106 101 D2(55) F2-H2 110 D5(72) F2-H14 A7.03 3 A7.04 7 LAV-1 3'-0 1/8" 12 SF MECH. CLOSET WEST 119 270 SF DINING NOOK 121 108 SF WINE ROOM 122 L ROOM EQ EQ DOOR & SINK ALIGN C2 C2 C2 C2 B1 B1 EQ EQ C2 C8 C4 A3 A5 A4 A5 C5 C5 C3 C3 C3 A3 C3 A3 B1 C7 A4 A2.01 03.7 C DS L 8'-1" EQ EQ 23.2 03.6 03.8 6 1/2" 23.6 14'-0" 4'-6" EQ EQ ROOM 1 A1.01B SEE 03.5 03.5 03.5 A5.03 105C D3(77) F2-H12 ALIGN DS DS 3'-3 3/4"1'-10 1/2"2'-9 3/4" 8'-1 1/8" 7'-10 7/8" T.2 MATCHLINE 4'-5 7/8" 6'-10" 4'-8 1/8" 04.6 C DS DS DS 06.6 07.19 07.20 07.20 1'-11 5/8" EQ 8 3/4"EQ EQ8 3/4" EQ 1'-11 5/8" EQEQ EQ EQ CLEAR 2'-7" 05.31 4 23.2 105B D3(77) F2-H12 105A D2(47) F2-H2 L TYP. 6" 26.2 26.2 26.2 8'-0" 1'-7" 6'-9" 5'-6" 8'-0" 2'-5" 9'-9" 11" 5'-10" 5'-9" 4'-0" 26.7 9" 7'-0 1/8" 5'-2" 4'-0" 26.2 26.15 1'-6" 05.32 05.32 05.32 05.32 05.32 05.32 6'-0 3/4" 3'-9" 1'-0" 7'-2" 6'-7 3/4" 16'-10" 2'-2 15/16" CL ROOM 2'-9 1/2" 12'-10" 22.3 04.8 A4 1/8" = 1' C11 C10 C9 C2 A2 85 SF BAR 104 4 A3.03 C12 C CJ CJ C4 C4 5'-4" CJ C B1 8'-6 1/4" T.1 4'-6" 26.2 EQ EQ A1 A1 A1 B1 C1 A1 A1 A1 C1 C1 D1 C1 C9 C1 3'-0" CJ CJ CJ CJ CJ CJ CJ CJ CJ CJ 4 A2.01 CJ 26.22 11 1/4" 4'-8 1/4" 1/2" A7.53 6 122 D7(44) F2-H13 26.21 26.21 A7.53 A2 A5 A3 A6 A5.31 WALL KEY EXISTING WALL OR PARTITION NEW WALL OR PARTITION ARCHITECT: Arthur W. Andersson TX Registation 13257 Frederick Wise TX Regstration 16659 PROJECT NO. DATE REVISIONS ANDERSSON·WISE ARCHITECTS 807 BRAZOS ST, SUITE 800 AUSTIN, TX 78701 TEL 512.476.5780 FAX 512.476.0858 © COPYRIGHT THESE DRAWINGS ARE PROPERTY OF THE ARCHITECT AND MAY NOT REPRODUCED WITHOUT THE PERMISSION REPRESENTATIVE OF ANDERSSON·WISE ARCHITECTS CONSTRUCTION DOCUMENTSCPFLOOR PLAN A1.01A 1401 10 AUGUST 2018 143 HUFF LANE HEBBRONVILLE, TX 78361 ELIZITA RANCH TROPHY ROOM Scale: 1/4" 1'-0" 1 GROUND FLOOR PLAN A KEYNOTES 03.5SMOOTH CONCRETE COLUMNS W/ CHAMFER. 03.6SMOOTH CONCRETE FIREPLACE FRONT 03.7CAST-IN-PLACE CONCRETE SURROUND 03.8LINE OF SMOOTH CONCRETE HEARTH 04.6LINE OF STONE HEARTH 04.8ROUTE OUTSIDE AIR GRILLE VENT BELOW SLAB 05.31RAIN CHAIN TERMINATING INTO GRAVEL 05.321/4" PLATE STEEL WALL CAP; MTL-1 06.6LINE OF TRELLIS ABOVE 07.19LINE OF ROOF ABOVE 07.20LINE OF PLATE STEEL AWNING ABOVE 22.3TANKLESS WATER HEATER; COORDINATE LOCATION W/ ARCHITECT 23.2HVAC UNIT ON CONCRETE PAD 23.3HVAC DISCONNECT SWITCH; INSTALL CONDUIT IN FRAMING 23.6ROUTE ALL EXISTING EXHAUST LINE OUT 26.2INTERIOR FLOOR OUTLET; THOMAS & BETTS; STEEL RECESSED FLOOR BOX 664-SC. BRASS FLOOR BOX COVER 664-CST-M-BRS, STEEL DUPLEX 2-GANG DEVICE PLATE 664 RP, WIRE TUNNEL 664WT (IF APPLICABLE). 26.6RELOCATE EXISTING ELECTRICAL BOX TO SURFACE OF NEW CONCRETE POUR 26.7AV RACK; COORDINATE REQUIREMENTS W/ OWNERS AV INSTALLER 26.15EXTERIOR FLOOR BOX; LEW ELECTRIC OB-1-SP-6PORT STAINLESS STEEL COVER 26.21POP-UP COUNTERTOP RECEPTACLE: LEW ELECTRIC PUR20-DB; DARK BRONZE COVER. 26.22STANDBY GENERATOR 32.2GRAVEL WITH PLATE STEEL EDGING GENERAL NOTES 1SEE SHEET G0.40 FOR WALL PARTITION TYPES. 2SEE SHEET A6.00 FOR WINDOW & DOOR TYPES AND SCHEDULES. 3SEE SHEET G0.50 FOR FINISH, APPLIANCES & PLUMBING SCHEDULE. 4SEE SHEET A6.50 FOR DOOR TYPES & SCHEDULES. 5ALL DIMENSIONS ARE TO STRUCTURAL GRID, MASONRY FACE, OR ROUGH FRAMING UNLESS OTHERWISE NOTED. 6ALL WINDOW LOCATION DIMENSIONS ARE REFERENCED TO THE CENTERLINE OF WINDOW UNIT. SEE SHEET A6.00 FOR ROUGH OPENING DIMENSIONS. 7ALL EXTERIOR ELECTRICAL OUTLETS & HOSE BIBS ARE LOCATED 1'-6" A.F.F. TO CENTERLINE. 8ALL ARCHITECTURAL STEEL OR STEEL W/ WELDS EXPOSED TO VIEW SHALL BE GROOVE OR PUDDLE WELDED AND GROUND SMOOTH FOR A SEAMLESS APPEARANCE, UNLESS OTHERWISE DETAILED OR APPROVED BY ARCHITECT. 9ALL UTILITY/MEP CONNECTIONS TO BE UNDER SLAB, NO ABOVE GRADE WALL PENETRATIONS, PROVIDE SLEEVES AS REQUIRED. 10ALL ELECTRICAL FLOOR OUTLETS ARE DIMENSIONED TO GRID UNLESS OTHERWISE NOTED. 1 1 1 1 1 2 4 1PR #001 11-08-2018 2ASI #003 12-13-2018 3ASI #012 03-29-2019 4ASI #014 03-30-2019 5ASI #033 04-15-2020 6ASI #035 Trophy Room Ground Floor Plan 24 A3.02 1 A3.01 TROPHY ROOM 101 A3.01 DINING NOOK 121 PATIO 123 A3.02 3 A3.03 A3.03 A5.32 1 MAP ROOM 106 (E) LAUNDRY 001 SITTING ROOM 105 PATIO 123 CJ CJ CJ CJ CJ CJ CJ CJ Scale: 1/4" = 1'-0" 1 SECTION @ TROPHY ROOM EAST Scale: 1/4" 1'-0" 2 SECTION @ SITTING ROOM NORTH 1 1 1 A3.02 1 A3.01 TROPHY ROOM 101 A3.01 DINING NOOK 121 PATIO 123 A3.02 3 A3.03 A3.03 A5.32 1 MAP ROOM 106 (E) LAUNDRY 001 SITTING ROOM 105 PATIO 123 CJ CJ CJ CJ CJ CJ CJ CJ Scale: 1/4" = 1'-0" 1 SECTION @ TROPHY ROOM EAST Scale: 1/4" 1'-0" 2 SECTION @ SITTING ROOM NORTH 1 1 1 Trophy Room Sections
A7.51 7 8 5 6 A7.51 3 A7.51 2 TRASH 2'-3" A4 2'-1" 9'-5 3/4" 1'-11" 11'-4 3/4" ALIGN TYP 2 1/2" A7.51 10 5'-9 1/2" 9'-6 1/2" 4" CL SEAM 2'-1" 20 A8.11 EQ EQ GFI 2'-1" CL SINK 5 1/2" S-1 A6 2 1/2" A3 A5 A2 PLATE STEEL + WOOD CABINETRY; MTL-1 BOTTLE SHELF W/ LIGHT; MTL-1 1/4" PLATE STEEL WALL CAP; MTL-1 GRANITE COUNTER TOP BY INT. DESIGNER WALL MTL-1 ARCHITECTURAL VISIBLE CNC-2 5 A8.11 G ARCHITECT: Arthur W. Andersson TX Registation # 13257 Frederick C. Wise TX Regstration # 16659 PROJECT NO. Δ REVISIONS CONSTRUCTION DOCUMENTSCP-6 ENLARGED BAR PLAN & ELEVATIONS A7.51 1401 Scale: 3/8" = 1'-0" 1 ENLARGED BAR PLAN Scale: 3/8" = 1'-0" 2 ELEVATION WEST @ BAR 1 2 3 3 1PR #001 11-08-2018 2ASI #014 03-30-2019 3ASI #035 06-29-2020 4ASI #036 07-14-2020 4 26 GRANITE COUNTERTOP BY INT. DESIGNER SMOOTH ARCHITECTURAL C.I.P. CONCRETE; NO VISIBLE FORM TIES; CNC-2 OPEN TO TROPHY ROOM 3" 1'-0" 3'-5 1/2" 4" 5 A8.11 4 3/4" BOTTLE SHELF W/ LIGHT PLATE STEEL SHELF W/ UNDERMOUNT LIGHTING 1/8" PLATE STEEL; MTL-1 PLATE STEEL + GLASS CABINETRY; MTL-1 3 A8.52 EXIST. ICE ICE FREEZER/REF. DRAWERS EXISTING REF. PLATE STEEL PANEL; MTL-1 GRANITE COUNTER TOP BY INT. DESIGNER A5 A4 A3 A2 GFI GFI 2'-0" METAL GRILLE BASE ALIGN A8.11 17 7'-4 1/4" 1/8" PLATE STEEL BACKSPLASH; MTL-1 2'-0" 1" LIGHT FIXTURE ALIGN 4" 1" 3'-3 1/2" 5 1/2" 3'-10" 13 A7.51 14 A7.51 3'-0" 3/4" BOTTLE SHELF W/ LIGHT; MTL-1 GRANITE COUNTER TOP BY INT. DESIGNER 1 A8.52 PLATE STEEL + WOOD CABINETRY; MTL-1 1" EQ EQ EQ 1" SMOOTH ARCHITECTURAL C.I.P. CONCRETE; NO VISIBLE FORM TIES; CNC-2 1/8" PLATE STEEL SHELF W/ UNDERMOUNT LIGHTING; MTL-1 6'-0" 3'-0" 12 A7.51 3'-5 1/2" 4" ALIGN 4 3/4" TRASH DRAWER BOTTLE SHELF W/ LIGHT; MTL-1 PLATE STEEL PANEL; MTL-1 5 A8.52 1/8" PLATE STEEL SHELF W/ UNDERMOUNT LIGHTING; MTL-1 DISH WASHER DRAWERS PLATE STEEL + WOOD CABINETRY; MTL-1 7 A8.52 GRANITE COUNTER TOP BY INT. DESIGNER A6 1'-10 1/2" 1'-10 1/2" 1/8" PLATE STEEL BACKSPLASH ALIGN VENEER PLASTER ON GWB 1" 12 A7.51 3'-5 1/2" ALIGN 13 A7.51 15 A7.51 4" 1" 3" 3" A7.51 7 8 5 6 A7.51 2 TRASH 2'-3" A4 2'-1" 11'-4 3/4" TYP 2 1/2" 9'-6 1/2" 2'-1" EQ EQ 2'-1" CL SINK 5 1/2" A6 A3 A5 A2 PLATE STEEL + WOOD CABINETRY; MTL-1 BOTTLE SHELF W/ LIGHT; MTL-1 1/4" PLATE STEEL WALL CAP; MTL-1 GRANITE COUNTER TOP BY INT. DESIGNER 1/4" PLATE STEEL WALL BASE; MTL-1 VENEER PLASTER ON GWB LINEAR BAR DIFFUSER SMOOTH ARCHITECTURAL C.I.P. CONCRETE; NO VISIBLE FORM TIES; CNC-2 ALIGN GRANITE COUNTER TOP BY INT. DESIGNER 1/8" PLATE STEEL SHELF W/ UNDERMOUNT LIGHTING; MTL-1 20 A8.11 5 A8.11 3 A8.52 PLATE STEEL + GLASS CABINETRY, MTL-1 10 A8.11 8 A8.52 1/8" PLATE STEEL TRIM; MTL-1 8" 11 A7.51 1/8" PLATE STEEL BACKSPLASH; MTL-1 EO EQ EQ SMOOTH ARCHITRECTURAL C.I.P. CONCRETE 1/4" PLATE STEEL WALL CAP; MTL-1 GRANITE COUNTER TOP BY INT. DESIGNER 14 A7.51 4 3/4" 2'-6" R3 " R 1'-0 1/4" 4'-2 1/4" 2'-1 3/4" 1/4" 1/2" 2 1/2" 5 1/2" 2 1/2" 1 1/2" CL SINK EQ EQ 3" 2 1/2" 8 1/2" CL FAUCET ALIGN +/- 5 5/8" LINE OF COUNTERTOP ABOVE LINE OF BOTTLE SHELF COUNTERSUNK FASTENERS @ 24" O.C. OR AS REQUIRED 10 A8.52 2 1/2" ALIGN SMOOTH ARCHITECTURAL C.I.P. CONCRETE; NO VISIBLE FORM TIES; CNC-2 ALIGN 1" x 1" STEEL TRIM FLUSH W/ CONCRETE; MTL-1 LINE OF COUNTERTOP SEAM LINE OF COUNTERTOP ALIGN ALIGN LINE OF COUNTERTOP LINE OF TOEKICK BELOW 3" 1" PLATE STEEL + WOOD CABINETRY; MTL-1 1/8" PLATE STEEL TRIM; MTL-1 LINE OF COUNTERTOP ABOVE 7/8" LINE OF HARDWARE ABOVE 1/4" 1" APPLIANCE APPLIANCE 1/4" 1/8" PLATE STEEL TRIM; MTL-1 PLATE STEEL PANEL; MTL-1 PLATE STEEL PANEL; MTL-1 LINE OF HARDWARE ABOVE LINE OF TOEKICK BELOW 3" LINE OF COUNTERTOP ABOVE 7/8" PAINT EXPOSED EDGES TO MATCH STEEL LINE OF TOEKICK BELOW LINE OF COUNTERTOP ABOVE APPLIANCE PLATE STEEL & WOOD CABINETRY; MTL-1 PLATE STEEL PANEL; MTL-1 7/8" 3" 1/4" LINE OF HARDWARE ABOVE LINE OF PLATE STEEL BASE BELOW APPLIANCE VENEER PLASTER ON GWB INSULATION; INS-2 1/2" 1/2" PLATE STEEL TRIM; MTL-1 LINE OF TOEKICK BELOW 1/4" PLATE STEEL WALL CAP; MTL-1 LINE OF COUNTERTOP ABOVE ARCHITECT: Arthur W. Andersson Frederick C. DATE Δ REVISIONS 807 BRAZOS AUSTIN, TEL FAX THESE AND WITHOUT OF ANDERSSON·WISE HEBBRONVILLE, ELIZITA TROPHY Scale: 3/8" = 1'-0" 7 ELEVATION EAST @ BAR Scale: 3/8" = 1'-0" 8 ELEVATION NORTH @ BACK BAR Scale: 3/8" = 1'-0" 5 ELEVATION SOUTH @ BAR Scale: 3/8" = 1'-0" 6 ELEVATION WEST @ BACK BAR Scale: 3/8" = 1'-0" 2 ELEVATION WEST @ BAR Scale: 3/8" = 1'-0" 3 ELEVATION NORTH @ BAR 1 1 1 1 2 Scale: 3" = 1'-0" PLAN DETAIL -BAR CAB @ SW CORNER 2 2 2 2 2 2 2 Scale: 3" = 1'-0" PLAN DETAIL -BAR CAB @ NW CORNER Scale: 3" = 1'-0" 15 PLAN DETAIL -BAR CAB @ APPLIANCE Scale: 3" = 1'-0" PLAN DETAIL -BAR CABINET @ WALL 3 3 3 3 3 3 3 3 3 3 3 3 3 3 1PR #001 2ASI #014 3ASI #035 4ASI #036 3 4 4 4 GRANITE COUNTERTOP BY INT. DESIGNER SMOOTH ARCHITECTURAL C.I.P. CONCRETE; NO VISIBLE FORM TIES; CNC-2 OPEN TO TROPHY ROOM 3" 1'-0" 3'-5 1/2" 4" 5 A8.11 4 3/4" BOTTLE SHELF W/ LIGHT PLATE STEEL SHELF W/ UNDERMOUNT LIGHTING 1/8" PLATE STEEL; MTL-1 PLATE STEEL + GLASS CABINETRY; MTL-1 3 A8.52 EXIST. ICE ICE FREEZER/REF. DRAWERS EXISTING REF. PLATE STEEL PANEL; MTL-1 GRANITE COUNTER TOP BY INT. DESIGNER A5 A4 A3 A2 GFI GFI 2'-0" METAL GRILLE BASE ALIGN A8.11 17 7'-4 1/4" 1/8" PLATE STEEL BACKSPLASH; MTL-1 2'-0" 1" LIGHT FIXTURE ALIGN 4" 1" 3'-3 1/2" 5 1/2" 3'-10" 13 A7.51 14 A7.51 3'-0" 3/4" BOTTLE SHELF W/ LIGHT; MTL-1 GRANITE COUNTER TOP BY INT. DESIGNER 1 A8.52 PLATE STEEL + WOOD CABINETRY; MTL-1 1" EQ EQ EQ 1" SMOOTH ARCHITECTURAL C.I.P. CONCRETE; NO VISIBLE FORM TIES; CNC-2 1/8" PLATE STEEL SHELF W/ UNDERMOUNT LIGHTING; MTL-1 6'-0" 3'-0" 12 A7.51 3'-5 1/2" 4" ALIGN 4 3/4" TRASH DRAWER BOTTLE SHELF W/ LIGHT; MTL-1 PLATE STEEL PANEL; MTL-1 5 A8.52 1/8" PLATE STEEL SHELF W/ UNDERMOUNT LIGHTING; MTL-1 DISH WASHER DRAWERS PLATE STEEL + WOOD CABINETRY; MTL-1 7 A8.52 GRANITE COUNTER TOP BY INT. DESIGNER A6 1'-10 1/2" 1'-10 1/2" 1/8" PLATE STEEL BACKSPLASH ALIGN VENEER PLASTER ON GWB 1" 12 A7.51 3'-5 1/2" ALIGN 13 A7.51 15 A7.51 4" 1" 3" 3" A7.51 7 8 5 6 A7.51 2 2'-3" A4 2'-1" 11'-4 3/4" TYP 2 1/2" 9'-6 1/2" 2'-1" CL 5 1/2" A6 A3 A5 A2 PLATE STEEL + WOOD CABINETRY; MTL-1 BOTTLE SHELF W/ LIGHT; MTL-1 1/4" PLATE STEEL WALL CAP; MTL-1 GRANITE COUNTER TOP BY INT. DESIGNER 1/4" PLATE STEEL WALL BASE; MTL-1 VENEER PLASTER ON GWB LINEAR BAR DIFFUSER SMOOTH ARCHITECTURAL C.I.P. CONCRETE; NO VISIBLE FORM TIES; CNC-2 ALIGN GRANITE COUNTER TOP BY INT. DESIGNER 1/8" PLATE STEEL SHELF W/ UNDERMOUNT LIGHTING; MTL-1 20 A8.11 5 A8.11 3 A8.52 PLATE STEEL + GLASS CABINETRY, MTL-1 10 A8.11 8 A8.52 1/8" PLATE STEEL TRIM; MTL-1 8" 11 A7.51 1/8" PLATE STEEL BACKSPLASH; MTL-1 EO EQ EQ SMOOTH ARCHITRECTURAL C.I.P. CONCRETE 1/4" PLATE STEEL WALL CAP; MTL-1 GRANITE COUNTER TOP BY INT. DESIGNER 14 A7.51 4 3/4" 2'-6" R3 R 1 1'-0 1/4" 2'-1 3/4" 1/4" 1/2" 2 1/2" 5 1/2" 2 1/2" 1 1/2" CL SINK EQ EQ 3" 2 1/2" 8 1/2" CL FAUCET ALIGN +/- 5 5/8" LINE OF COUNTERTOP ABOVE LINE OF BOTTLE SHELF COUNTERSUNK FASTENERS @ 24" O.C. OR AS REQUIRED 2 1/2" ALIGN SMOOTH ARCHITECTURAL C.I.P. CONCRETE; NO VISIBLE FORM ALIGN 1" x 1" STEEL TRIM FLUSH W/ CONCRETE; MTL-1 LINE OF COUNTERTOP SEAM LINE OF COUNTERTOP ALIGN ALIGN LINE OF COUNTERTOP LINE OF TOEKICK BELOW 3" 1" PLATE STEEL + WOOD CABINETRY; MTL-1 1/8" PLATE STEEL TRIM; MTL-1 LINE OF COUNTERTOP ABOVE 7/8" LINE OF HARDWARE ABOVE 7/8" 1/4" 1" APPLIANCE APPLIANCE 1/4" 1/8" PLATE STEEL TRIM; MTL-1 7/8" PLATE STEEL PANEL; MTL-1 PLATE STEEL PANEL; MTL-1 LINE OF HARDWARE ABOVE LINE OF TOEKICK BELOW 3" LINE OF COUNTERTOP ABOVE 7/8" PAINT EXPOSED EDGES TO MATCH STEEL LINE OF TOEKICK BELOW LINE OF COUNTERTOP ABOVE APPLIANCE PLATE STEEL & WOOD CABINETRY; MTL-1 PLATE STEEL PANEL; MTL-1 7/8" 3" 1/4" LINE OF HARDWARE ABOVE LINE OF PLATE STEEL BASE BELOW APPLIANCE VENEER PLASTER ON GWB INSULATION; INS-2 1" 1/2" 1/2" VENEER PLATE STEEL TRIM; MTL-1 LINE OF TOEKICK BELOW 1/4" PLATE STEEL WALL CAP; MTL-1 LINE OF COUNTERTOP ABOVE DATE Δ REVISIONS 807 HEBBRONVILLE, ELIZITA TROPHY Scale: 3/8" = 1'-0" 7 ELEVATION EAST @ BAR Scale: 3/8" = 1'-0" 8 ELEVATION NORTH @ BACK BAR Scale: 3/8" = 1'-0" 5 ELEVATION SOUTH @ BAR Scale: 3/8" = 1'-0" 6 ELEVATION WEST @ BACK BAR Scale: 3/8" = 1'-0" 2 ELEVATION WEST @ BAR Scale: 3/8" = 1'-0" 3 ELEVATION NORTH @ BAR 1 1 1 1 2 Scale: 3" = 1'-0" PLAN DETAIL -BAR CAB @ SW CORNER 2 2 2 2 2 2 Scale: 3" = 1'-0" PLAN DETAIL -BAR CAB @ NW CORNER Scale: 3" = 1'-0" 15 PLAN DETAIL -BAR CAB @ APPLIANCE Scale: 3" = 1'-0" PLAN DETAIL -BAR CABINET @ WALL 3 3 3 3 3 3 3 3 3 3 3 3 3 3 1PR 2ASI 3ASI 4ASI 3 Enlarged Bar Plan and Elevations
28 Trophy Room Bar Millwork Sections
30
Exterior View of Trophy Room (interior still under construction)

ENERGYSCAPE

Ciudad Miguel Alemán, Tamaulipas, Mexico

This studio worked with the urban planning authorities of Tamaulipas, Mexico, to develop and anticipate rapid growth solutions for urban infrastructure for the cities of the border, shale, and wind energy regions of the state.

PROJECT DATA

Duration: 15 weeks

Instructor: Gabriel Montemayor

Team Members: Travis Schneider

In the beginning I conducted research that dealt with the peri-urban area surrounding our site of Ciudad Miguel Alemán. This area is also known as the energyscape, which is defined as “the complex spatial and temporal combination of the supply, demand, and infrastructure for energy within a landscape”. As Tamaulipas is a prime area for both wind, shale and gas energy my research consisted mostly of studying what is required to make these energy systems function optimally and identifying potential areas of overlap.

As a small group, my partner Travis and I decided to utilize the existing fracking as a catalyst for sustainable growth in the existing agricultural and urban sectors, in additon to providing growth as a regional supplier of wind energy. This was accomplished through a centralized water recycling facility with hybrid corridors and platforms. Our overarching goal was to integrate transportation, agriculture, water, and energy into one holistic design solution for the region surrounding Ciudad Miguel Alemán.

31

ENERGY MACHINES

BIOSWALES

TRANSMISSION LINES

FRACKING WATER SUPPY / RETURN

ACCESS ROAD & PLATFORMS

ARTERIAL ROAD

AGRICULTURE

CREEKS & PONDS

Above: Exploded axon showing overlapping energy and transpotation layers

Left: Diagram and sketch showing transfer of energy

33
  FIELD
LAYERS

If oil drilling construction happens first, then wind turbine construction can utilized space cleared for fracking construction.

Once fracking is complete, the remaining cleared land can be converted into space for farm buildings.

When a road crosses a canal, a dam is created. We take advantage of this fact to provide some water for the fracking operation and nearby agriculture.

This central facility axon shows how the water used in the fracking process can be recycled and distributed back out to the platforms to aid in not only fracking but agriculture as well.

35
37

GOOSE ISLAND STATE PARK PAVILION

Rockport, Texas

PROJECT DATA

Duration: 15 weeks

Instructor: Coleman Coker

Team Members: Kristin Ericson, Kamree Gonzales, Ashley Harris, Sean Kennaugh, Drew McMillian, Cory Olsen, Denis Piereschi, Chris Salazar, Stuart Yancey

This project was built in Goose Island State Park to accompany a previously made fire circle, as well as provide a gathering space for visitors. The project includes an overhead shade canopy of wooden panels charred through the process of shou-sugi ban. This canopy is supported on steel columns that rest on concrete grade beams, which extend under the trees and end in four concrete benches. There is an informal room connecting the roof of the pavilion back to the natural live oak canopy of the park to form an uninterrupted shade area.

Along the north and west sides of the covered space, ten layers of welded wire mesh were spot welded together to provide a sense of enclosure. The west screen, which separates the seating area from the parking lot, will eventually be covered with native plants found in the park for the nature interpreter to describe the park’s flora before she begins her walks. A basin of seashells also rests adjacent to this screen to catch water runoff as it falls from the gutter.

Three custom designed dining tables that can be moved out into the open are on the north side of the pavilion for larger public events.

AWARDS

• Design Excellence Winner, 2015

32
Interstate Highway 35 Copano Bay Aransas Bay To Rockport, TX Goose Island State Park Project Site
34
36
Above: Shou-sugi ban wood ceiling Left: Roof connection detail
38
40

Turn static files into dynamic content formats.

Create a flipbook