Proyecto final

Page 1

PROYECTO FINAL

Laideaquesubyaceesunaseriedeespaciosservidosentrelaenvolventeylosespacios deserviciocompuestospornúcleosdecomunicaciónyestructuralesquevertebranel edificio.

Sepresentaalaciudadcontresalzados:unoalaciudad,otroalapendientesuryotroa lamuralla.

Lapendientesurcobraderepenteunanuevaimportanciaenelproyecto,conloquetrata derecuperarselapendientepreexistentegenerandounespaciopúblicotopográfico convexo.

Eledificioconsiguecerrardealgúnmodolamanzanapreexistente.

Sebuscaregalarunnuevoespaciopúblicoalaciudadquesirvedecierreparaeleje este–oeste,concatenadocondiversasplazasdeimportanciahistóricaparalaciudad deMadrid.

Planodesituación

Eledificiosepresentaaalalzadodelaciudadconunasfranjashorizontalesquese contraponenconelmuseodelascoleccionesrealesyentraendiálogoconla horizontalidadmarcadaporlasviviendasdeCanoLasso

AlzadocornisadeMadrid

Elespaciopúblicoestáconcebidopararecuperarycontinuarlapendienteexistente, generandounespacioentornoalamuralla.

Planodeemplazamiento
Secciónemplazamiento

Eledificioseposasobreelterrenodemaneralevedebidoasucondiciónobjetualyala voluntadderecuperarunapendienteexistente.Provocandounatensiónobjeto-terreno sugerente,quiméricayabstracta.

Alzadosur

Laideaesgenerarunsistemadecomunicacionesverticales.Subdividiéndolasendos grupos:principalesypúblicas,frenteasecundariasyprivadas.Atravésdelasverticales tienelugarelaccesoatodaslasplantascomunes,dondeseencuentranzonasdeestar, restaurantes,cocinas,comedores,gimnasioysalasdeusolibre.Desdeestasplantas comunesseaccedealasviviendasindividualesatravésdelosnúcleossecundariosde escaleras.

Enlaúltimaplanta,seencuentraelcentrodeestudiosconlamismatipologíadezona comúnexplicadaanteriormente,conunpequeñosalóndeactos,saladeexposicionesy recepción.

Axonometría sistema

Enlasseccionesquedapatenteelsistemafuncionalquerespondeaunfuerte sistemaestructuraldondecomoeneledificioBBVAdeOizahayunosforjadosde mayorespesorquesostienenalasplantasdeviviendasyliberanlaszonascomunes depilares.

Sección tipo Secciónnúcleo principal Secciónnúcleo particular

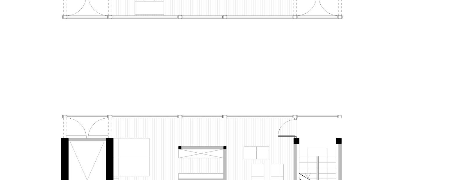
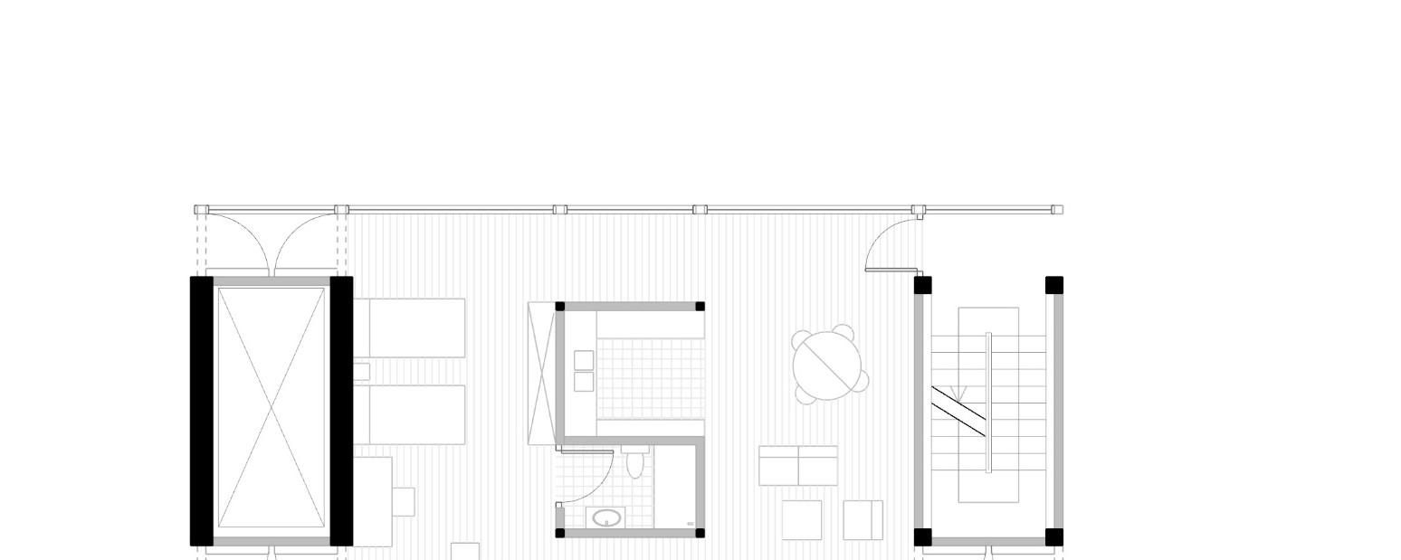
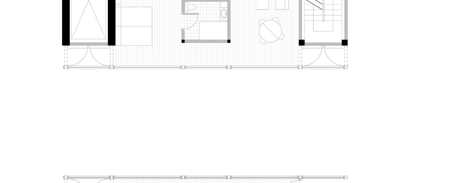
Todaslasviviendasrespondenaunmismotipoconunnúcleodeserviciocentralque separalazonadedíadelazonadenoche.

Además,todaslasviviendasdisfrutandeunaventilacióncruzadayespaciosqueviertenen dosdireccionesdebidoalpocoanchodeledificio

Viviendaproductiva

Viviendadeacogida

Viviendahotel

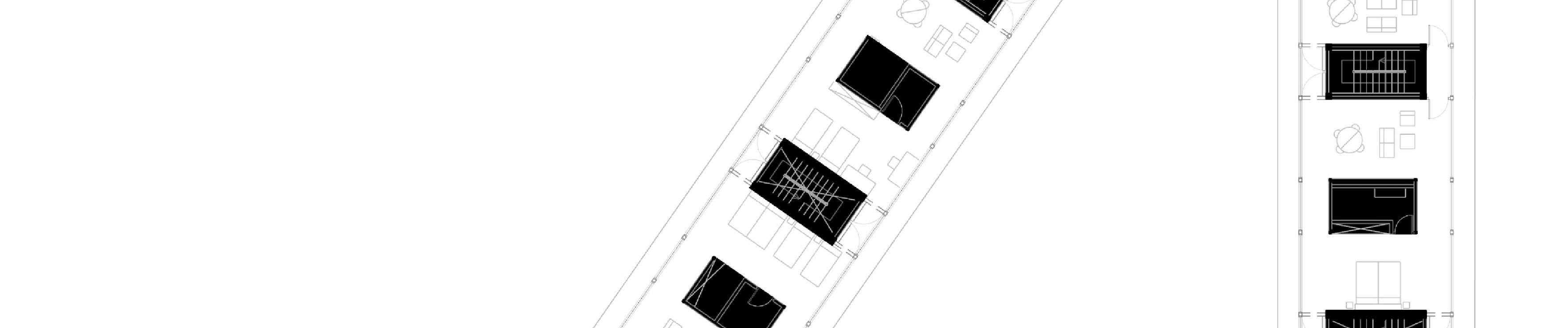
Plantadevivienda: 2ª,3ª,5ªy6ª

Disposicióndelasviviendasenplantaesprácticamentealeatoriaaunqueenalgunospuntos sehanqueridoponerdoshabitacionesdelmismousopegadasporsiserequiereencasode necesidad:convertirdoshabitacionesenunasola;ytambién,lasunidadesenlaesquinase hanreservadoalasviviendasdelhotelporlogeneral,porserespaciosmáscomplejosya losqueselespuedesacartambién,unmayorpartidoeconómico

Plantazonascomunes: 1ªy4ª

Laplantadezonascomunessondeplantamáslibre,liberadasdealgunospilarescomose haexplicadoconanterioridad.Loqueotorgaaesteespaciounamayorlibertadde movimientoyunamayorcomplejidadyflexibilidaddeespacios. Disponedecocina,comedor,restaurante,auladeestudio,zonadeestarygimnasio.

Tambiéndisponedeunabibliotecaparalosinvestigadoresqueresuelvepartedelprograma delcentrodeestudios.

Plantacentrodeestudios: 7ª

Elcentrodeestudiosestratadacomosifueraunazonacomúnmás:unespaciopúblico puestoenvertical.Estácolocadoenlaúltimaplantadondesetienenlasmejoresvistasde laciudadysusalrededores. Disponedeunaseriedesalasdeexposición,unpequeñosalóndeactos,dosespaciosde recepción,pequeñassalasoscurasdeproyecciónyotrosespaciosflexiblesdeusomúltiple,

Yaquesehaoptadoporremarcarlahorizontalidaddeledificio,sehandispuestodos elementoshorizontaleslongitudinalesquejuntoconlasdistintasalturasdeplantadarán dinamismoalafachada,estosson:unvoladizo,comoelementodeprotecciónsolarfrenteal soldelmediodía;yunpañoqueescondeunavenecianaexteriorquesirvedeprotección solarenlafachadaoesteyquellegaalaalturadelamiradaparadirigirlamiradadel habitantehaciaabajocuandoestádepie,yatenerunavistapanorámicacuandoestá sentado.Deestemodo,tratándosedeunespaciotancomprimido,puesasílorequeríael programa,seinvitaasushabitantesaestarsentados.

Sección constructiva

MAQUETA FINAL

Turn static files into dynamic content formats.

Create a flipbook
Issuu converts static files into: digital portfolios, online yearbooks, online catalogs, digital photo albums and more. Sign up and create your flipbook.