Skip to main content

portfolio (Anastasia Ovcharenko) version in english

Page 1


Portfolio

Anastasia Ovcharenko

Year 2023-2026

Resume

Anastasia Ovcharenko

Architect

Contact

ovcharenkoan04@gmail.com

+33 7 49 61 48 05

Software

Archicad Vectorworks SketchUp InDesign Photoshop Qgis Languages English Russian French

Education

B.S. Architecture

École Nationale Supérieure d’Architecture de Toulouse 2023 - 2026

Prepa. Architecture & Design

MADE iN Sainte-Marie Lyon - Ecole de management et d’art 2022 - 2023

High school

Pascal English school Larnaka 2016 - 2022

Professional experience

Construction Site Worker (Internship)

ARVIT SERVICES LTD – Larnaca, Cyprus

July 2024

Manual and technical support on construction site

Assistance with basic building and site operations

3D Design and Lighting (Intership)

Lampatron - Dubai, UAE

3D modeling and visualization of lighting products

Integration of luminaires into architectural spaces

Hello!

My name is Anastasia. I’m an architecture student. By the age of 21, I’ve lived in four different countries and speak three languages fluently. These experiences have taught me how to adapt, observe, and understand different ways of living.

I’ve always been interested in how spaces influence people, not only in how they look but in how they are lived. For me, architecture is not a hobby - it is a clear and deliberate choice.

My work focuses on creating spaces that are thoughtful, grounded, and human. I believe architecture should serve people, support communities, and respond to real needs with honesty and care.

“To build is to transform a condition of emptiness into a condition of presence.” - Peter Zumthor

Rassembler Urbanisme / Residentual Linear House Residentual

L’Entre-Deux Corps Public / cultural Material & Form Studies Experimental

01. Rassembler

Year: 2025

Status: concept

Type: urbanism, housing

Location: Rieux-Volvestre, Toulouse, France

COUPE 2-2

COUPE 2-2

This project looks at how to reorganize an existing area made of fragmented plots and disconnected buildings. The goal is to bring everything together into a more coherent whole, improving living conditions and strengthening the relationships between spaces.

The approach works at two scales. At the urban level, a continuous green axis structures the site, introducing new public spaces, vegetation, and a better management of ground and water. These interventions help reconnect the area and improve everyday use.

At the architectural level, the project proposes housing adapted to its context, with simple and functional layouts linked to their environment. Overall, the project aims to transform a scattered condition into a clear and cohesive system, where architecture, landscape, and daily life come together.

Urban Strategy

Structuring a cohesive and living system

The project organizes the site through a continuous green axis and a network of smaller public spaces, reconnecting fragmented plots and redistributing activity.

Soft mobility is prioritized, with reduced car presence and a pedestrian-oriented center. Ground floors activate daily life through local uses and shared spaces.

Architectural coherence is ensured through aligned façades, controlled heights, and local materials.

Together, these elements create a continuous, readable, and human-scale urban environment.

Polarize

Vegetation acts as a polarizing element, structuring space and concentrating social activity around shaded, human-scale areas.

2 Axes Structure

Central green axis linking north - south and connecting the river Pedestrian and bicycle circulation dominate, while car presence is reduced and relocated

out

1. a continuous linear axis acting as a backbone

2. a series of secondary spaces acting as branches

Branch
Saint-Cizi Street / Bishop’s Street (North Elevation)

COUPE 2-2

From one bank to the other, a green amphitheater opens onto the river, creating a shared space for gathering and events.

The hall becomes a lively, shaded space supporting daily interactions and events, both as a passage and a landmark.

At the heart of the green axis, an open planted space connects to the medieval fabric, inviting people to gather.

A pause along the green axis, where a covered space hosts shops and connects to adjacent streets, shaping a continuous ground.

Housing Strategy

From urban fabric to domestic scale

The housing proposal follows the logic of the overall urban system, where buildings align with the street to reinforce continuity while opening towards shared green spaces.

At the block scale, housing is organized in grouped plots around semi-private courtyards, creating a balance between collective and individual spaces. These courtyards act as extensions of the home, encouraging interaction while maintaining privacy.

At the architectural scale, units are designed with simple and functional layouts, oriented to benefit from natural light, views, and outdoor extensions such as terraces or gardens. Ground floors maintain a direct relationship with the public realm, while upper levels provide more intimate living spaces.

This approach ensures a gradual transition from the public city to private domestic life, creating housing that is both integrated into its context and adapted to everyday use.

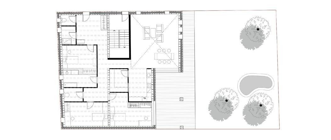
Linear House

A layered domestic space between street and garden

Year: 2025

Status: concept

Type: housing

Location: Rieux-Volvestre, Toulouse, France

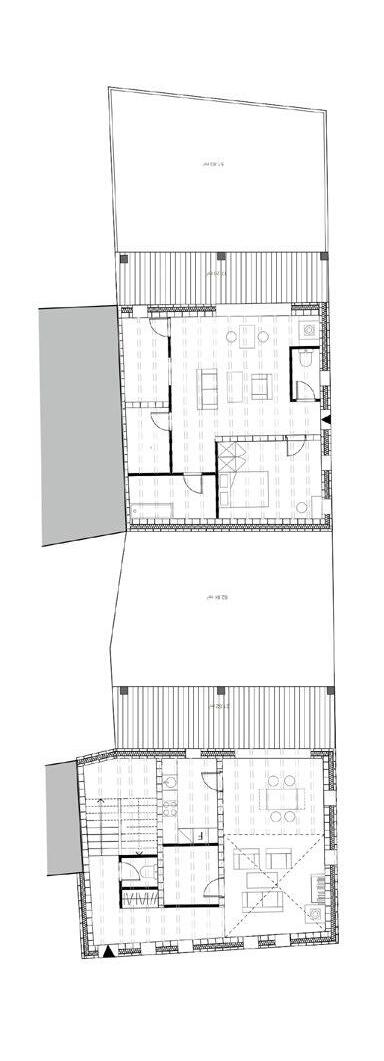
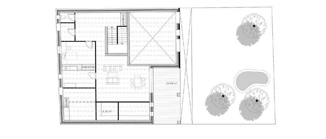
The Linear House is conceived as a family home organized through a clear vertical structure and a central circulation. The project explores the relationship between collective living and individual privacy, creating a balance between shared spaces and more intimate areas.

From the urban scale, the house aligns with the street and extends towards the garden, establishing a strong connection between interior and exterior. Each level responds to a specific use: open and light-filled living spaces at the center, and more private, calm areas above.

Materiality reinforces this approach, combining a solid brick envelope with warm wooden interiors. Together, these elements create a comfortable and human-scale dwelling, where light, space, and everyday life are carefully integrated.

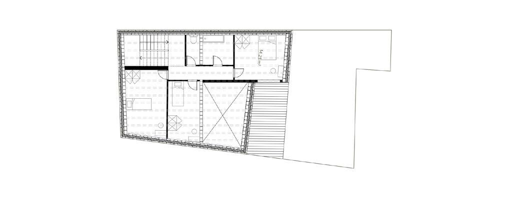
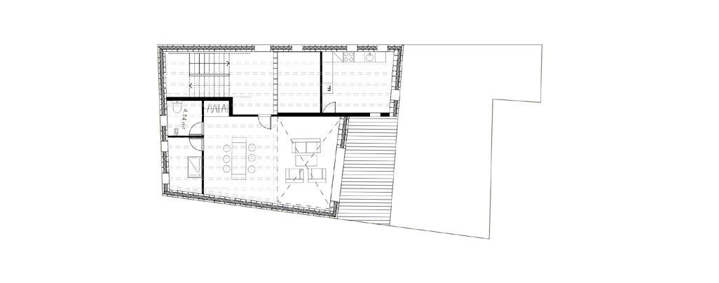
2nd Floor Plan
3rd Floor Plan
Cross Section AA

Tuile en terre cuite

Liteaux

Isolation thermique

Étanchéité

Chevron - bois massif

Panneau OSB

Panne - bois massif

mauerlat

Chaînage en béton armé

Linteau - Béton armé

Coffre et système de volets roulants

Vitrage isolant (double vitrage)

Joint d'étanchéité

Profil aluminium extrudé

Brique porteuse - 12x21x30cm

Isolant thermique - Laine de bois - 18 cm

Membrane d'étanchéité

Lame d'air

Brique de parement - 5x10x30cm

Joint de scellement 2cm

Poutre

Detail Section

Sketch of a Bedroom Corridor

L’Entre-Deux Corps

Between mass and transparency

Year: 2024

Status: concept

Type: housing

Location: Rieux-Volvestre, Toulouse, France

Located on a corner site along the Garonnette, the project benefits from a unique panoramic view over the river and the meeting of two bridges. This privileged position becomes the starting point of the architectural approach.

The project is based on a strong contrast between solid stone volumes and a transparent central space. Two simple rectangular masses frame a glazed transversal void, creating a clear dialogue between interior and exterior.

Organized over four levels, the building emphasizes vertical circulation through a central core, visible from the façade. This element structures movement and reinforces the spatial hierarchy. Each level offers different uses, from public spaces to studios, technical areas, and offices, all maintaining a strong visual connection to the landscape.

Materiality plays a key role, combining stone, wood, and glass to express both solidity and openness. The project ultimately seeks to create a permeable architecture, where movement, light, and views continuously connect the building to its surroundings.

Site Model with Proposed Building

1

2

3

4 – Public Restrooms

9

5

6

7

8

Project Model with Surroundings (1:250)

Material & Form Studies

Exploring volume, texture, and spatial relationships

Year: 2022-2025

Type: Experimental

This series presents exploratory sketches and plaster models developed to study architectural form and materiality. Through drawing and physical modeling, the work investigates the relationship between solid and void, light and shadow, and the interaction between different materials.

These studies focus on simple geometries, testing proportions, massing, and spatial sequences. The use of plaster models allows a direct understanding of volume, texture, and light, while sketches capture atmosphere and spatial intentions.

Together, they form a research process that informs the development of architectural concepts at multiple scales.

Form & Material Study Model (Plaster)