

PORTLAND & SOUTH PORTLAND
2024 ENVISION RESILIENCE CHALLENGE | STUDIO REPORT
2024 Envision Resilience Challenge Studio Report
Published December 2025
Prepared by Envision Resilience
Curated by Sandra Akufo
Front cover photo by Nick Eaton, Life in Focus
Copy edited by Julie Bogart
© 2025 Envision Resilience
All rights reserved.
This publication, including all images, graphics, student work and written content, is the property of Envision Resilience or its licensors and is protected under applicable copyright law. No part of this report may be reproduced, republished or transmitted without the prior written permission of Envision Resilience.
Disclaimer: All scenarios, conceptual sketches, analyses and opinions contained in this report reflect the views of third parties. They are provided for illustrative and educational purposes only. No representation, warranty or guarantee of accuracy, completeness or fitness for any particular purpose is made or implied. This report does not constitute engineering, architectural or other professional advice, and is not intended to be used as a basis for planning, investment, permitting or other decisions.

This report is the outcome of the 2024 Envision Resilience Portland and South Portland Challenge, a multidisciplinary and multi-university design studio addressing the urgent challenges related to climate change in Portland and South Portland, Maine. Graduate and undergraduate students studying architecture, urban planning and landscape architecture partnered with local stakeholders through an iterative process that produced speculative designs for adapting neighborhoods, parks, businesses and waterfronts to mitigate rising sea levels, housing challenges and other stressors related to a warming planet This document compiles the research, design strategies, interventions and community-informed visions that blend environmental resilience with social equity, cultural heritage and economic vitality.
A B L E O


INTRODUCTION
The Envision Resilience Challenge reminds us that when we collaborate and approach challenges with creativity, we can build brighter futures where we can work, live and play in healthy, resilient and secure communities.
— Wendy Schmidt Founder, Envision Resilience
A LETTER FROM OUR FOUNDER
The clouds grow darker, the storms fiercer and the winds louder. The seas creep farther onto land, widening rivers, eroding shores, raging along our roads. Faced with the inescapable truth of a warming world, we humans sometimes have the bad habit of looking the other way.
What if, instead, we embraced the future with creative solutions to enhance our waterfront communities in the face of sea-level rise?
That is the animating question behind Envision Resilience which, since 2021, has connected multidisciplinary students and community members to pursue innovative planning and design for a sustainable future. We founded Envision Resilience, originally developed within another of our philanthropic organizations, Remain, to activate hope in the face of rising sea levels. Every year, Envision Resilience partners with a community, convenes undergraduate and graduate students, designers, urban planners, organizers, artists, municipal leaders and more, and asks: What would happen if, instead of running away, we embraced the coming change? What if we worked with nature rather than against it? What if we respected Indigenous history and life today, and the character and values of each community? And what if we came away with new insights to share with waterfront cities everywhere?
In its fourth year, the communities of Portland and South Portland, Maine, embraced Envision Resilience. The ideas for adaptation, nature-based solutions, and equitable and accessible design flowed thanks to the openness of the community members stewarding the challenge Students conducted hands-on fieldwork kayaking along coasts, trekking through mudflats, collecting plant and soil samples and proposed new ways to connect fresh and saltwater, residential and industrial, history and future. They proposed parks designed to absorb rainwater, oil tanks converted to generate solar power, greened infrastructure and more, as you’ll see in the coming pages.
We humans, as it turns out, are also proficient at adapting to our circumstances. We are blessed with industriousness and imagination. We’ve built cathedrals before and we can do it again

Wendy Schmidt Founder, Envision Resilience

ABOUT ENVISION RESILIENCE
Envision Resilience works to advance innovative planning and design in the face of climate change through student and community partnerships. By connecting current and future professionals working across disciplines, the organization creates opportunities for communities to reimagine climate challenges and inspire resilient solutions. Envision Resilience, founded by Wendy Schmidt, is part of the philanthropic organizations and initiatives created and funded by Eric and Wendy Schmidt to work toward a healthy, resilient, secure world for all.
MISSION
Envision Resilience works to advance innovative planning and design in the face of climate change through student and community partnerships.
ENVISION RESILIENCE CHALLENGE
The signature program of Envision Resilience, the Envision Resilience Challenge is an annual place-based, multi-university design studio that takes place in communities at the forefront of climate challenges throughout the Northeast. Graduate and undergraduate students studying architecture, urban planning and landscape architecture partner with communities to produce speculative designs for adapting neighborhoods, parks, businesses and waterfronts in the face of climate change.
As Envision Resilience Challenge alumni step into the professional world, they bring with them the experience of designing in community collaborating with residents, thinking across disciplines and shaping a more optimistic, adaptive future.

STUDENT & COMMUNITY PARTNERSHIPS
In 2020, Remain launched the inaugural Envision Resilience Challenge on Nantucket as a response to the increase in rising sea levels. Founded in 2008 and funded by Wendy Schmidt and her husband Eric, Remain supports the local economy, community and environmental vitality of the island of Nantucket. The Envision Resilience Challenge was developed with the belief that visions of a more resilient future could inspire the Nantucket community to think differently perhaps more optimistically about living with more water. Five years, 20 university partners and more than 500 students later, the program has grown into its own organization, powered by an expanding network of resilient designers, planners, local leaders, residents and practitioners across the Northeast
The 2024 Envision Resilience Portland and South Portland Challenge, inspired by forward-thinking leadership and progressive efforts that demonstrate the vision and action needed to create a more resilient future, marked the fourth year of programming.


Following a year of groundwork by Envision Resilience and a faculty site visit in June 2024, students spent the fall 2024 semester immersing themselves in the culture, values and history of Portland, South Portland and the Casco Bay Island communities, developing innovative designs that addressed challenges such as affordable housing, sea-level rise (SLR), transportation, urban heat, equity, local industry and ecology. These design proposals were then presented to the community through a series of exhibitions, programs and public art.
The depth of research behind the student designs is a reflection of the local community leaders stewarding long-term planning efforts and the generosity of time given to the Envision Resilience students by the Portland and South Portland communities.
CHALLENGE HISTORY & OVERVIEW
When the Envision Resilience Challenge launched on Nantucket in the winter of 2021, with myriad COVID-19 constraints, it was intended to be a one-year program. But across 14 time zones guided by the wisdom of the leading faculty of practice and inspired by the Town of Nantucket and its ambitious island-wide coastal resilience plan students were grabbing onto the opportunity to connect deeply with a community in the midst of tackling climate change head on.
Students were encouraged to think beyond current policy and zoning regulations and, instead, produce speculative designs for what a future Nantucket might look like. Design concepts reimagined public spaces with a focus on green infrastructure and native ecology, housing on the water’s edge that accommodated multigenerational living and key transportation corridors that reroute heavy traffic to accommodate increased water Some students even considered the adaptive reuse of the downtown oil tanks as well as thoughtful retreat and returning land to nature in vulnerable locations. From Nantucket, the model was brought to Narragansett Bay, Rhode Island in 2022 and then to New Bedford and Fairhaven, Massachusetts in 2023.





CHALLENGE PROGRAMMING
CHALLENGE BRIEF
Phase I starts 10–12 months before the fall design studio begins. The team is on the ground listening, learning and building relationships with key stakeholders and community members. This process results in a Challenge Brief a set of problem statements and guiding principles circulated as a call for proposals.
COMMUNITY PARTNERS
Throughout the stakeholder outreach, a community advisory group is assembled—local leaders who can speak to the issues facing the community, as well as the values, culture and history of that community, are integral to the integrity and applicability of design outcomes. They also provide professional development experience for students.
FACULTY WORKSHOPS
Once the cohort is selected, a workshop for faculty leads is organized in the spring. The Envision Resilience team coordinates site visits, community meetings and workshops for faculty to finesse site selection and research proposals and build their own relationships with the community in advance of student site visits.
SITE VISITS
Envision Resilience funds travel and accommodation for each participating university team to travel to site, meet with key stakeholders and community partners, experience the local community and ground-truth their research. Convening multiple university teams at once allows for networking and cross-university collaboration that is grounded in the local history and culture.
SPEAKER SERIES
The Envision Resilience Speaker Series brings renowned speakers to deliver inspiring and informative lectures on climate resilience through the lens of everything from finance and historic policy to human dynamics and decision-making. Lectures are open to teams and students, and recordings are publicly available.
MIDTERM & FINAL REVIEWS
Phase II is the design studio itself. The early research and partnership building that the Envision Resilience team does allows the student teams to dive in deep early in the semester. Envision Resilience serves as the liaison to community members, facilitates site visits and funds studio stipends for travel, materials and research. This is in addition to a curriculum that includes access to a resource library, expert speakers and a final jury of practioners.
The program gives design students the opportunity to work across disciplines and across universities, tackle real-world challenges and gain professional development in design and planning. Fostering the next generation of thought leaders, designers and planners to think differently and more holistically about adaptation and climate challenges is a key pillar of the work.
PUBLIC EXHIBITIONS
Phase III occurs when the student design thinking and research is rolled out to the community through an exhibition or series of exhibitions. Public art is a core pillar of the work in storytelling about adaptive design in the face of climate change. This has been done through a light installation, murals and an exhibition of artists telling the story of resilience through curated pieces.
THE CHALLENGE
We work in architecture: A land acknowledgement should be the foundational set of knowledge that we start projects with.
— Anjelica S. Gallegos Advisor, Envision Resilience
2021 Nantucket Challenge Alumna Designer, Page & Director, ISAPD
LAND ACKNOWLEDGEMENT

The Envision Resilience Challenge sites to date are traditional territory of the Maliseet, Mi'kmaq, Narragansett, Nauset, Passamaquoddy, Penobscot, Pokanoket, Tommokomoth, Wabanaki, Wampanoag and other Algonquianspeaking peoples.
We pay respect to their communities of past, present and future.
The Indigenous Knowledge Systems Initiative (IKSI) was initiated in 2023 as part of the Envision Resilience Challenge Design Studio curriculum to respectfully acknowledge Indigenous historical and contemporary ties to the sites of study.
IKSI resources include the Envision Resilience Tribal Land Acknowledgement, the IKSI Tribal Land Acknowledgement Syllabus and the IKSI Working Syllabus for each Challenge site. IKSI supports Indigenous knowledge and Native science, alongside western resources, as a vital body of knowledge and partners with Indigenous designers in the fields of architecture and landscape architecture
As architects, planners, designers and visionaries of built environments, it is contextually relevant and imperative to include the Indigenous peoples’ history with sites of built and unbuilt projects. Understanding the Indigenous and colonial heritage of the Envision Resilience Challenge sites restores and enriches sites’ identity and further informs designers to create site-specific solutions reflective of its community, history and land.
Acknowledging the inherent relationship tribes have with their landbase and being aware of the current tribal context actively supports tribal sovereignty and generates awareness of ongoing ramifications of Challenge sites’ colonial history.
We seek to protect the common ground and work toward informed climate solutions for all communities, including tribal communities
“As architects, planners, designers and visionaries of built environments, it is contextually relevant and imperative to include the Indigenous peoples’ history with sites of built or unbuilt projects.”

— Envision Resilience
2024 CHALLENGE TIMELINE
OCTOBER ‘23
Winter ‘23–‘24
Community partner cohort assembled



The Envision Resilience Challenge is a three-phase community engagement and design studio initiative spanning more than 18 months that includes both pre- and post-studio programming.
Spring ‘24
University selection and faculty workshop on-site in Portland and South Portland

Fall ‘23
Research, stakeholder outreach and community engagement kickoff


Winter ‘24
Challenge Brief and call for proposals circulated
THE 2024 ENVISION RESILIENCE CHALLENGE

mmer ‘24
semester begins and gn studio kicks off
December ‘24
Final jury review of design proposals by leading practitioners

February ‘25
Multi-month exhibition of adaptive proposals for Portland and South Portland, Envision Resilience: Designs for Living in a Changing Climate, opens at the Portland Public Library

March ‘25
Exhibition opening at the South Portland Public Library
October ‘24
Midterm jury review of research and design process by community partners

Fall ‘24
Site visits and community workshops in Maine in combination with virtual speaker series
Winter ‘24–‘25
Student design thinking and research is rolled out to the community through a series of exhibitions
April ‘25
Multimedia exhibition, Envision Resilience: Shifting Tides and Evolving Landscapes, bridging visual art and adaptive design, opens at SPACE Gallery in partnership with seven Maine-based artists

POST-CHALLENGE
CHALLENGE BRIEF
The 2024 Envision Resilience Portland and South Portland Challenge called on multidisciplinary student teams of architects, landscape architects, urban or regional planners, engineers, environmental scientists and artists to reimagine Portland, South Portland and Casco Bay and the Islands, and propose imaginative solutions to the current and future impacts of climate change. These include ecological degradation, rising sea levels, a clean energy transition, economic disparities, housing scarcity, transportation and urban heat, among other themes.
All design team strategies and interventions were to consider the natural, ecological, social and built environments collectively, building on the 68 strategies across four areas outlined in the joint cities climate action plan, One Climate Future
Increasing temperatures, rising sea levels and intensifying storm events are compounded by the intersecting challenges of affordable housing, resource dependency, viability of port infrastructure, food insecurity, access to transportation and ecosystem health and restoration The Challenge Brief posed questions including:
How will the communities prepare for and adapt to a changing climate?
How can student design thinking inspire community-centric, incremental change that leads to equitable and resilient outcomes?
How might the process of envisioning resilient climate futures help business owners, fishermen, families and residents consider adaptive waterfronts that embrace healthy, sustainable and equitable systems around water?
How can a design studio reimagine the social, ecological and economic relations embedded in design to challenge the status quo and meet the needs of the community?

THEMATIC AREAS
The Challenge Brief’s call elicited student work that addressed a diverse array of pressing environmental challenges shaping the regions of Portland and South Portland, Maine. These student design interventions and studio approaches can be arranged and organized into the following broad thematic focus areas.

CLIMATE ADAPTATION


HOUSING & JUSTICE
NATURE-BASED SOLUTIONS


ACCESS & MOBILITY ADAPTIVE REUSE

SITES OF STUDY
PORTLAND & SOUTH PORTLAND
With a rich maritime culture and legacy and a diverse coastline ranging from sandy barrier islands to dramatic rocky shores along the Gulf of Maine, the state of Maine has experienced the ebb and flow of changing coastlines, warming waters and evolving industries throughout history. This is particularly true for Casco Bay, a watershed stretching 1,000 square miles made up of 785 islands. Its historic working waterfront, which has carried the industries of oil, shipping, cruise liners and fishing, is home to two of Maine's most prominent cities: Portland and South Portland.
Like coastal communities around the world, Portland and South Portland are at the forefront of the fight against climate change. The Gulf of Maine is warming three to four times faster than the global ocean average sea levels in the state have been rising at a rate that is also three to four times the global average, and extreme storm events are becoming more and more frequent, as made evident by the winter 2024 storms that flooded the two cities and set record high tides.


During a January 2024 storm, downtown Portland registered a high tide of 14.57 feet MLLW (mean lower low water) in the downtown port area, surpassing a February 1978 record. Historic Willard Beach fishing shacks were washed away during the storm, and several downtown piers, including the Maine State Pier, Portland Pier and Union Wharf, were all temporarily closed. The storms resulted in approximately $20 million in damage to Maine’s public infrastructure. While leaders have been weaving resilience into long-term planning, there is renewed urgency to solve these challenges. The back-to-back storms have put the reality of sea-level rise and increased storm strength and frequency at the top of concerns for coastal Maine communities.
The interconnectedness of Portland and South Portland, from a geographic, economic and resource perspective, is important. Leaders in both cities have recognized and worked collaboratively to ensure the continuation of a vibrant port, working waterfront and resilient climate future. In 2020, the two cities joined forces to adopt the 300-page climate action plan One Climate Future a framework laying out the pathways to a carbon-neutral future that is resilient, healthy, equitable and economically viable. This work builds on the ongoing efforts both at the state and local levels, and was boosted by the youth leadership on climate action, which pushed Portland and South Portland to declare a climate emergency in 2019. The climate action plan aims to improve buildings and energy use, transportation and land use, waste reduction, and climate resilience, through 68 strategies.

Like coastal communities around the world, Portland and South Portland are at the forefront of a changing climate, but the Gulf of Maine is warming 97% faster than global ocean temperatures, according to the Maine Climate Council.
A CLOSER LOOK
As both the city of Portland and South Portland shift from a waterfront that historically served marine and industrial industries to a harbor with mixed use and public access, the cities are poised for a major transformation. The following sites were highlighted for design studio teams as viable sites of study with the opportunity to develop more innovative and sustainable models for the future.
PORTLAND WORKING WATERFRONT
The heart and center of the city, Portland’s working waterfront has a long legacy of fishing, shipping, tourism, innovation and cultural and historic significance. Its natural deepwater and strategic wharves and piers—a mix of private and public have allowed for large vessel industries, like the shipping and cruise industries, to thrive amidst the transportation routes and recreation boats For a long time, it was the second-largest oil port on the east coast, and in its prime, the Portland-Montreal Pipe Line was moving 150 million barrels of oil per year. The future of the port is in flux. Aging infrastructure, with its fragility made clearer with each storm, is a key concern among stakeholders.
Despite its hundreds of miles of coastline, just 20 miles of Maine is port infrastructure, Portland’s port being key among them. What is the future of the port? Will it remain a maritime-only industry? How will industries adapt?
PORTLAND PUBLIC OPEN SPACE & PARKS
The City of Portland has a significant number of public parks woven throughout its fabric and neighborhoods. A landscape studio might take on a research project to understand their character and success in an effort to develop a citywide network plan that also deals with the challenges of water management in the face of frequent storms.
Each potential study area could include a model park or open space that addresses needs not yet fulfilled within the current park system. Precedent for greenspace can be gleaned from the recently approved plan for “Portland Harbor Common,” recently covered in the Portland Press Herald.
PORTLAND INDUSTRIAL
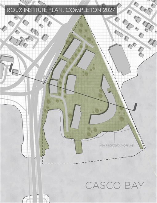
The iconic B&M Baked Beans site, located to the north of Portland’s historic waterfront, is sandwiched between I-295 and the waterfront The planning for reuse of the factory site is underway as a new campus for the Roux Institute The goals of the project include the adaptive reuse of the large early 20th-century concrete factory buildings, housing, improved connections to the city and public access to the waterfront. The history of Portland’s social and economic development can be traced through the analysis of housing typologies represented in various neighborhoods.

SOUTH PORTLAND
From whale oil to wood to coal to oil, South Portland has evolved as an energy hub, and now the question is: What comes next? The City of South Portland is in the midst of an update to its Comprehensive Plan, a process that began in 2021 and is expected to be completed in 2025 A Comprehensive Plan Committee was formed by the City Council to oversee the multi-year process, which asks: “What kind of place should South Portland be in the future? What should we protect, improve or enhance in our community?”

SOUTH PORTLAND WATERFRONT
In South Portland, the district containing the former Liberty shipyard between Ferry Village and the Bug Light Park is now being considered for development by the property owner.
The Yard South project proposes a 30-acre community of housing, retail, community services and workspaces that would include a trail network and a water transit service connecting to downtown Portland and its surrounding neighborhoods.
The peninsula of Knightville serves as the cultural, municipal and economic hub of the City, with the main municipal buildings, grocery stores, Mill Creek Park (host to a range of summer and winter festivals), revitalized restaurant scene, shops, and more.
Potential study sites include Cash Corner, Ferry Village, Willard Neighborhood, Cushing’s Point, Mill Creek Peninsula and the Marina next to the Casco Bay Bridge.
Identified brownfield sites are increasingly seen as an opportunity they are currently underutilized and funded by EPA grants through the City of South Portland’s Brownfields Assessment Program.
SOUTH PORTLAND INDUSTRIAL
Reuse of petroleum infrastructure could be explored, as there are currently seven terminals that can collectively store 8.6 million barrels of oil within 100 tanks Environmental hazards and rising sea levels are a growing concern for this infrastructure.
Connectivity and public transportation are significant challenges for South Portland. There is currently limited access to the waterfront, coupled with a lack of housing stock
The City of South Portland and Greater Portland Council of Governments (GPCOG) produced the Cushing’s Point Transportation Study in 2022 to explore improvements to public transportation and connectivity.
SITE RESEARCH & MAPPING
GETTING THE LAY OF THE LAND
SITE RESEARCH
At the start of the semester, Envision Resilience students engaged in a range of field research to better understand the diverse contexts of Portland and South Portland. Through site visits, field observations, sampling, photography and archival and desktop research, teams gathered insights into the natural systems, built environments and cultural layers that define each place. This early exploration allowed students to ground their work in firsthand understanding connecting data, materials and stories to the realities of the sites. The knowledge gained through this research informed their design approaches, shaping proposals that respond thoughtfully to the complexities of these coastal communities.
MAPPING
As part of their early research, Envision Resilience students developed a wide range of maps to better understand the Portland and South Portland region. By layering information about ecology, infrastructure, topography, transportation, demographics and climate impacts, teams revealed connections and patterns that might not be visible on the ground.
These mapping exercises helped students visualize complex systems and identify areas of vulnerability, opportunity and change. From large-scale regional analyses to fine-grained neighborhood studies, the maps became essential tools for discovery and collaboration shaping how students interpreted the site and guiding the development of informed, place-based design strategies throughout the semester.

The Site Research & Mapping section features selected samples of work and does not capture the full breadth of university activities.
Plant sample from Back Cove Park Trail; collected by Cornell University students.
ILLUSTRATIONS: VARIOUS UNIVERSITIES
These illustrations and drawings highlight the many ways students engaged with the sites and stories of Portland and South Portland, offering a glimpse into the depth of their research and design thinking.





BACK COVE TRANSECT DRAWING, COLE WARNER (CORNELL UNIVERSITY)
BACK COVE SECTION, SEAN THIEL (UNIVERSITY OF VIRGINIA)
PORTLAND PROGRAMMING, ALLYSON GIBSON (UNIVERSITY OF VIRGINIA)
MAINE STATE PIER, JARED LESLIE (UNIVERSITY OF TORONTO)
MAPS AND DIAGRAMS: UNIVERSITY OF TORONTO















MAPS & DIAGRAMS: CORNELL UNIVERSITY
FUTURE HYDROLOGY AND HAZARDS | PETER K. JENKINS (P. 26)
The cities of Portland and South Portland are vulnerable to sea-level rise and major storm surges, similar to other coastal cities. Sea-level rise modeling (SURGE) projects increases from 0 to 10 feet through 2100, while the SLOSH model predicts present-day storm surge and hurricane inundation based on current sea levels. The key distinction is that SURGE projects future sea-level rise, whereas SLOSH models current storm impacts. FEMA flood zone maps identify 50-, 100- and 200-year flood risks, helping assess which areas are most exposed to flooding hazards This map focuses on 100-year FEMA flood zones, which also inform insurance rate updates. Notably, many of the most flood-prone and SLR-vulnerable areas in both cities are built on human-made land.
GROWING PAINS | XIAOHAN ZHOU & CHLOE LONG (PP. 27–28)
The Portland–South Portland region continues to see rapid population growth, driving a housing crisis as demand outpaces supply Rising prices have made it difficult for both residents and newcomers to find affordable housing. Development has largely expanded into suburban and rural areas, increasing car dependence and pushing workers farther from the city. Both cities are now promoting more diverse and affordable housing. Portland’s ReCode Portland initiative updates zoning to support mixed-use, flexible housing, preserve neighborhood character and encourage sustainable growth guided by the city’s 2030 Plan and redevelopment tools like tax increment financing and brownfield projects. South Portland’s future land use plan similarly aims to limit sprawl and direct growth, though its redevelopment efforts are still emerging The map highlights selected ongoing and proposed redevelopment, revitalization and growth projects across the region
NATIVE PLANT COMMUNITIES OF CASCO BAY | AMANDA CARMEN BOWER (P. 29)
This map illustrates the diverse ecological landscapes and native vegetation patterns across Portland, South Portland and the surrounding islands of Casco Bay, Maine. It highlights key plant communities, such as mixed forests, wetlands and coastal ecosystems, identifying dominant native species within each zone. Using subtle topographic and land cover shading, the map connects urban areas to their surrounding natural systems, showing how native flora adapts to variations in elevation, soil type and proximity to water. The result is both a scientific and artistic representation of Casco Bay’s ecological character, emphasizing the importance of preserving native plant habitats within the region’s evolving coastal environment
SHORELINE | NINA NIU (P. 30)
Portland and South Portland, Maine, are increasingly vulnerable to flooding along Casco Bay as sea levels rise and storm surges intensify with climate change Tidal flooding now poses growing risks to coastal infrastructure, residential neighborhoods and local businesses, and projections show these impacts worsening over time. Industrial zones near the waterfront face additional challenges: Storm events can cause both structural damage and the release of hazardous materials, threatening water quality and nearby ecosystems Flooding can also overwhelm stormwater systems, spreading pollutants into Casco Bay Together, these factors underscore the region’s rising vulnerability to both physical and environmental damage along its shorelines.
FIELD STUDIES (PP. 31–32)
Cornell University students deepened their understanding of the coastal environment through field studies collecting data, examining native vegetation and soils and collaborating with local scientists and ecologists. These explorations informed the creation of diagrammatic representations of the dynamic coastal landscape.
FUTURE HYDROLOGY & HAZARDS

GROWING PAINS
Xiaohan Zhou Chloe Long




NATIVE PLANT COMMUNITIES OF CASCO BAY

Amanda Carmen Bower
SHORELINE
Nina Niu

FIELD STUDIES
INFRUSTRUCTURES
Various Cornell University students
























































SALT MARSH, YIXUAN SUN & XUETING JIN
EELGRASS MEADOWS: LUNG OF THE SEA, YINYUE “CLARE” JIANG
KELP FOREST, SICHENG “JACK” ZHOU

ROCK AND COBBLE COASTS, SAM RIMM-KAUFMAN
MAPS & DIAGRAMS: HARVARD UNIVERSITY
ADAPTATION TOOLKIT & TECHNIQUE SECTIONS (P. 34)
Landscape architecture and urban design have commonly been viewed as static processes. However, with challenges like rising sea levels and urban heat, traditional approaches fall short. Adaptive design focuses on creating dynamic solutions tailored to each site’s specific needs, integrating community input and long-term resilience strategies. By developing adaptation toolkits, the studio designs for near-term (2050), midterm (2100) and long-term (2120) scenarios, treating these timelines as interconnected elements of a living system that evolves to address future change.
COASTAL ADAPTATION OVER TIME BIRDSEYE RENDERINGS & PLANS (PP. 35–40)
2050—Protect
By 2050, Portland’s Commercial Street waterfront adapts to 1.5 feet of sea-level rise through tailored floodproofing and green infrastructure. Bioswales, rain gardens and marsh edges reduce storm impacts while enhancing ecology. Floating piers maintain maritime access, and adaptive materials protect key sites like the Harbor Fish Market The design balances economic vitality with environmental resilience, envisioning a sustainable, thriving waterfront community
2100—Integrate
The 2100 plan envisions a greener, more adaptive city responding to 3.9 feet of sea-level rise. Urban forestry reduces heat and supports biodiversity, while recycled materials and green corridors promote circular design. Eco-marshes, terraced systems and pervious landscapes strengthen flood resilience. Commercial Street transforms into a walkable, climate-ready corridor that integrates nature and urban life
2120—Embrace
By 2120, with sea levels up nearly 9 feet, Portland’s coastline evolves into a multifunctional ecological and economic zone. Tidal marshes, ecological islands and aquaculture such as kelp and oyster farming boost biodiversity and sustainability. Elevated, modular housing and flood-resilient infrastructure ensure continued habitation and industry along a reimagined, adaptive shoreline
Long-Term Vision
The far-future vision redefines the waterfront as a dynamic ecological landscape Flood-adapted buildings and wetland buffers enhance resilience and public access Maritime uses shift toward aquaculture and ecological restoration, while critical sites like the Fish Pier and Custom House integrate sustainable, flexible designs. The result is a resilient, adaptive and ecologically rich waterfront for future generations.
REGIONAL CONSIDERATION MAPS (PP. 41–44)
This atlas provides a foundation for understanding Portland, Maine, ahead of the students’ field study. Developed a month before site visits, it combines GIS analysis and research to reveal the city’s key assets, risks and development opportunities. Organized around ecological, social, economic and settlement systems, it highlights both strengths such as marine ecologies and cultural spaces and challenges like flooding, heat and housing The atlas establishes a framework for resilience and sustainable growth, grounding the studio’s design proposals in a clear understanding of Portland’s conditions and future potential.
ADAPTATION
TOOLKIT &
Various Harvard University stu
ADAPTATION TOOLKIT



SECTION LINE



NEAR-TERM ADAPTATION / 2050 / 1.5’ SEA-LEVEL RISE
Aligns with Maine Won’t Wait: Commit

WetFloodproofing
DryFloodproofing


MIDTERM ADAPTATION / 2100 / 4’ SEA-LEVEL RISE
Aligns with Maine Won’t Wait: Commit







LONG-TERM ADAPTATION / 2120 / 8.8’ SEA-LEVEL RISE
Aligns with Maine Won’t Wait: Prepare







NEAR-TERM ADAPTATION / 2050 /
1.5’
SEA-LEVEL RISE
Protect

MIDTERM ADAPTATION / 2100 / 4’ SEA-LEVEL RISE
Integrate

Embrace

HEAT RISKS & RISING TEMPERATURES
Willa DeBoom, Jein Park, Kati Wiese

ECOLOGY & HABITAT

Qijia Chen, Garrett Craig-Lucas, Tianzhen “Tim” Jia
DEMOGRAPHICS & CULTURAL LANDMARKS
Willa DeBoom, Jein Park, Kati Wiese

ECONOMICS & INFRASTRUCTURE
Shan He, Sakiko Isomichi, Alexandra Kupi

MAPS & DIAGRAMS: UNIVERSITY OF VIRGINIA
WATER FLOW IN BACK COVE | AMANDA DEVAIRAKKAM (P. 46)
This examines the hydrological systems shaping Portland’s Back Cove. Through detailed field research and mapping, the output reveals how natural water patterns interact with human interventions such as fill, transportation and stormwater systems. Devairakkam highlights the continuity between historical and contemporary waterlines and their relationship to infrastructure like bridges and culverts. The work underscores the ecological and social importance of restoring natural water flow to enhance resilience against flooding, improve water quality and reconnect the community with its coastal ecosystem. It provides a data-driven foundation for sustainable design and future urban adaptation around Portland’s Back Cove
FERRY ROUTES | SHEEN WANG (PP. 47–48)
This showcases Portland’s evolution as a maritime and transportation hub from the 19th century to the present Through a timeline of key infrastructure from the Commercial Street railroad and Great Fire of 1866 to modern highways and bridges the project illustrates how urban expansion and land reclamation reshaped the waterfront. Wang maps changing waterlines and vessel traffic to reveal patterns of economic, ecological and spatial transformation across Casco Bay. The work calls for integrated transit and waterfront planning that balances commerce, environmental health and community access, envisioning a resilient connection between land and sea for future generations.
THE NEIGHBORHOODS OF BACK COVE | ALLYSON GIBSON (P. 49)
This explores the social and physical development of Portland’s Deering area, tracing its transformation from farmland to a thriving suburban community. Drawing on historical mapping, the study highlights the impact of the Great Fire of 1866, the advent of trolley systems and later automobile expansion in shaping neighborhood growth. Gibson examines the roles of Woodford’s Corner and Baxter Boulevard as key nodes of connectivity and civic life. Today, community organizations and public spaces continue this legacy, supporting local engagement and sustainability efforts. The project demonstrates how historical urban patterns inform equitable, resilient neighborhood planning for Portland’s future
FLUX OF URBAN FORMS: INTERRELATIONS OF THE FRONT & BACK END OF PORTLAND | STEFFI SHAH (P. 50)
This investigates the dynamic relationship between Portland’s working waterfront and its inland communities Through mapping, urban design and systems analysis, Shah envisions a resilient city where trade, commuting and ecological processes intersect. The project proposes a layered urban fabric, integrating seafood and plant farming, ground fishing and transit infrastructure. It emphasizes “last-mile” connectivity, land reclamation and urban infill as strategies to strengthen ties between the active and passive waterfronts By merging environmental regeneration with economic and social function, Flux of Urban Forms reimagines Portland’s front and back edges as a unified, adaptive urban ecosystem.
WATER FLOW IN BACK COVE
Amanda Devairakkam
















BackCoveMap1”=500
MouthEvouton1”=250
PorlandMap1”=1000
CascoBayMap1=2000
1940CoveLne
1870CoveLne
1837CoveLne
Commerca
Resdenta CSO
Ponts
FERRY ROUTES
Sheen Wang

THE FILLING OF BACK COVE: 1840–2024
1837–1853: Construction of Commercial Street with ra lroad tracks running down its center and down the wharves (connecting the Canadian Grand Trunk Rai way to Portland to spur Canadian trade dur ng the winter)
1866–1870: The Great Fire of 1866 along Commercial Street, eventua ly spread to lumber yards, sugar houses, and numerous resident al homes
MOST COMMON VESSELS IN CASCO BAY & DRAFTS
1870–1900: Construction of the Portland & Rochester/Ogdensburg Railroads (connecting Portland with New Hampshire and New York, providing more routes for business with Canada)
1900–1940: Construction of U S Route 1 (connecting Portland to the Un ted States highway system as of 1926), Maine state Routes 9 and 26
1947–2001: Construction of the Maine Turnpike (connecting Portland to the interstate (now I295), Tukey’s Bridge (connecting Munjoy Hill and East Deering), Smiths Creek and Hansons Creek fil ed(now Cheverus High School and Payson Park)



Water Taxis
Island Ferries
Commercial Fishing Vessels Cruise Ships
THE NEIGHBORHOODS OF BACK COVE
Allyson Gibson
CommercialandIndustrialAreas

BACK COVE NEIGHBORHOOD
1895 Electric Trolleys replace horse-drawn trollies Woodfords Corner Trolley stop was the vector for suburban commuting
Omsted desgns Back Cove area 1912 Baxter Boulevard is constructed surrounding Back Cove Payson’s Park est 1916 formerly Payson Estate 1936“Vacatonand”appearson censeplates Longfelowa boretum estblshed
Brook defines Back Cove topography
WOODFORD’S CORNER & COMMUTING NEIGHBORHOODS







Estates aong the Back Cove shorelne were spit up and subdvded for development n the eary 20th century Espectaly after the housing pressure created by the Fre o 1866 After the ire, Downtown was condensed or commercal use along the water ront The Deering Neghborhoods (now Oakdae, Back Cove, and Centra Deerng) were bult up n 1864 by the Horse Troley System
n the eary 1900s, the Horse Tro ey system was eectrifed and brought new commutng access to the neghborhoods The Bggest change was the automobie popuarzaton n the mid-Twenteth century alowng for even more people to commute Today, Wood ord s Corner has become the center of activty or the Deerng Neghborhoods The Friends o Woodford s Corner Associaton organzes events and communty service proects year-round

Morrill’s Corner
Woodford’s Corner
FLUX OF URBAN FORMS: INTERRELATIONS OF THE FRONT & BACK END OF PORTLAND





Steffi Shah
STAKEHOLDERS
The commitment to the creativity in addressing these climate issues is incredibly encouraging, even despite the challenging times we are facing. We are looking at a whole new generation of designers who are going to fundamentally change the way we do this work. And a great part of that has been working with these really outstanding and innovative faculty members.
— Bob Miklos, FAIA Advisor, Envision Resilience Founder, designLAB architects
UNIVERSITY PARTNERS

THE 2024 COHORT MEET THE CHALLENGE PARTICIPANTS
The Envision Resilience Challenge called on multidisciplinary student teams of architects and landscape architects, urban and regional planners and artists to propose creative and adaptive solutions to the current and future impacts of climate change in Portland and South Portland
By convening academic partners who lead cutting-edge design research, Envision Resilience has been effective in driving forward a communitycentric, multidisciplinary approach to problem solving.
With eight participating universities, the Envision Resilience Portland and South Portland Challenge brought together graduate and undergraduate students in urban planning, architecture, environmental justice and landscape architecture to connect with community stakeholders for an iterative process of researching, developing and proposing adaptive solutions for vulnerable sites along the cities’ coastlines.
8
11
99
UNIVERSITY STUDIOS FACULTY MEMBERS STUDENT DESIGNERS
4
4 14 STUDIO ASSISTANTS REGIONS REPRESENTED CHALLENGE WEEKS


VERSITY
STUDIO INFORMATION
Littoral Futures: Envision Resilience Portland + South Portland COURSE
Landscape Architecture, Architecture, Ecology & Environmental Science STUDIO DISCIPLINE(S)
STUDENT TEAM
Amanda Bower, Evanna Gao, Yin He, Peter Kelly Jenkins, Yinyue “Clare” Jiang, Yuhao “Tony” Jiang, Xueting Jin, Chloe Long, Nina Niu, Sam RimmKaufman, Yixuan Sun, John Cole Warner, Sicheng “Jack” Zhou, Xiaohan Zhou

MEET THE PROFESSOR
Anne Weber is an assistant professor in the Department of Landscape Architecture. Her research focuses on rural landscapes, particularly landscapes of extraction, production and conservation, as urgent sites of design in the context of climate change. Prior to Cornell, she worked at SCAPE Landscape Architecture on a range of projects, including Petrochemical America, Midtown Center Plaza, Hudson Riverport and more.
Her professional work has received both National and NY SARA Awards, NY ASLA Merit Awards, a Best of Design Honorable Mention Award from Architect’s Newspaper, and an APA KY Planning Award for Civic Engagement. Her research has received funding from the Water Resource Institute, Penny White Traveling Grant, Peter Walker Fellowship, as well as the Lewis Hine Documentary Fellowship from Duke’s Center for Documentary Studies. She received her Master of Landscape Architecture with distinction from Harvard Graduate School of Design, and a Bachelor of Arts in visual art from Yale University.

Anne Weber
HARVARD UNIVERSITY


STUDIO INFORMATION
COURSE
Imagining a Future Waterfront for Portland, Maine
STUDIO
DISCIPLINE(S)
Landscape Architecture, Architecture, Urban Design
STUDENT TEAM
Qijia Chen, Garrett Craig-Lucas, Willa DeBoom, Shan He, Sakiko Isomichi, Tianzhen “Tim” Jia, Alexandra Kupi, Jein Park, Kati Wiese
Teaching Assistant: Shan He
MEET THE PROFESSORS
Pamela Conrad, PLA, ASLA, LEED AP, is an internationally recognized landscape architect, 2023 Loeb Fellow at Harvard and Architecture 2030 Senior Fellow Her passion for the environment is deeply rooted, from growing up on a farm in Missouri to degrees in plant science and regenerative landscape architecture. Conrad’s 20-year career has focused on implementing nature-based solutions in the built environment from large-scale habitat restoration to a decade of adaptation projects in San Francisco, California.
Michael Blier, FASLA, Hon BSA, RLA is a registered landscape architect and founding principal of the critically recognized design group Landworks Studio, located in Salem, Massachusetts, with a satellite office in Taipei, Taiwan. Blier’s recent work is largely urban and site-specific in nature. It seeks to exploit the inherent complexities that exist between ecologically challenged sites, environmental and cultural sustainability, material tectonics and programs.

Pamela Conrad, PLA, ASLA, LEED AP
Michael Blier, FASLA, Hon BSA, RLA
UNIVERSITY AT BUFFALO

MEET THE PROFESSORS

Kristine Stiphany, Ph.D, AIA, is an architect and urban planner who investigates the social, technical and cultural dimensions that shape urban redevelopment in the Americas, with a focus on housing informality and participatory technologies in Brazil and along the U.S.-Mexico border. Stiphany is a Fulbright Fellow, the founder of the Chapa Civic Data Lab, co-editor of the Latin American Housing Network and recipient of several design awards, most recently from the Texas Society of Architects.
Jason Sowell, RA, NCARB, investigates how landscapes adapt to climate change, with a focus on how technologies shape housing and management practices. He is a registered architect and received a Bachelor of Architecture from the University of Tennessee and a Master of Landscape Architecture from Harvard University. His research examines the role of landscape-oriented infrastructures in guiding urban adaptations to climate change, with a focus on housing and management scenarios.
STUDIO INFORMATION
Reimagining Casco Bay: Designing for Extreme Climate Events in Coastal Cities COURSE
STUDIO DISCIPLINE(S)
Landscape Architecture, Architecture, Urban Design
STUDENT TEAM
Anushka Ahire, Chase Carpenter, Gavin Carroll, Rishabh Chopra, Kielee Clement, Ian DeWald, Julia Ferone, Satya Gangupata, Andrew Hu, Carol Recinos Luna, James Metzger, Ana Pereira, Ian Simmons, Nayarit Tineo, Bobby Zhao
Research Assistants: Jorge Ituarte Arreola, Andrew Castilleja

Kristine Stiphany, Ph.D, AIA
Jason Sowell, RA, NCARB
UNIVERSITY OF MAINE AT AUGUSTA

STUDIO INFORMATION
COURSE
From Vacationland to Climate Change Haven
STUDIO DISCIPLINE(S)
Architecture, Urban/Master Planning, Community Development
STUDENT TEAM
Megan Brown, Nolan Cartwright, Eloisa DeGroote, Suzie Felix, Kelsey George, Rohan Glendinning, Kaden Harrison-Billiat, Brennan Loewen, Marie Lough, Nicholas Smart

he graduated from Bowling tal design technology ord, Ohio, there obtaining his signer. Prior to starting his an internationally contracted d through his own firm, olutions for the unique

Patrick Hansford
MEET THE PROFESSORS

GAN

STUDIO INFORMATION
Resilience 2100: Design Opportunities for Advancing South Portland’s Climate Resilience COURSE
Landscape Architecture, Urban Planning, Environmental Science STUDIO DISCIPLINE(S)
STUDENT TEAM
Lisa DuRussel, RLA, LEED AP, ASLA, is an associate professor of practice in landscape architecture at the University of Michigan School for Environment and Sustainability and founder of PERIMETER LA Her work integrates ecological design, planting systems and community-engaged practice across both urban and rural contexts. DuRussel leads interdisciplinary collaborations that translate environmental research into design strategies through participatory frameworks. She is active in public scholarship, professional service and design implementation, with a focus on climate adaptation, land transformation and civic ecology.
Mark Lindquist, Ph.D, ASLA is an associate professor of landscape architecture. His research and teaching focus on the design and evaluation of high-performance landscapes with an emphasis on multifunctional green infrastructure in urban areas. He is interested in understanding how engaging with computation, data and virtual and augmented reality can transform the design process and inform decision-making by stakeholders.

Lisa DuRussel, RLA, LEED AP, ASLA
Mark Lindquist, Ph.D, ASLA
UNIVERSITY OF TORONTO

STUDIO INFORMATION
Lobster Tales and Other Architectures Between Land and Sea COURSE
STUDIO DISCIPLINE(S)
Architecture, Urban Planning, Housing/Community Development
STUDENT TEAM
Jessica Pui Yue Chan, Harir Goodarznia, Yang Hu, Yipeng Huang, Jared Leslie, Julia Miclaus, Elizabeth Nadeau, Avondale Nixon, Laura Tobin, Cindy Xin King Ye

Richard M. Sommer is a professor of architecture and urbanism and director of the Global Cities Institute at University of Toronto, where he served two terms as the dean of the Daniels faculty He previously served a director of urban design at Harvard Graduate School of Design and has held several visiting professorships Europe and the U.S. His research includes a multifaceted project examining the changing nature of monum making in societies aspiring for democracy, particularly in America.
Recent projects include experimental exhibitions focused on collective spaces of rest and dreaming, “New Circadia” and “Housing Multitudes: Reimagining the Landscapes of Suburbia,” a research project and multimedia exhibition. Sommer’s publications include “The Democratic Monument: The Reframing of Histo as Heritage,” The Urban Design of Philadelphia: Taking the Towne for the City,” “Highway Beautiful: The March from Selma to Montgomery” and “Glossary of Dream Architecture: Genus for a New Circadia.”

Richard Sommer
UNIVERSITY OF VIRGINIA

Michael Luegering, PLA
STUDIO INFORMATION
COURSE
Civic Infrastructure and Portland’s Back Cove
STUDIO DISCIPLINE(S)
Landscape Architecture, Architecture, Urban Design, Environmental Science
STUDENT
TEAM
Kaelyn Bray, Amanda Devairakkam, Charlotte Devine, Allyson Gibson, Alyssa Levy, Simin Liu, Steffi Shah, Sean Thiel, Madhura Vaze, Sheen Wang

Michael Luegering, PLA, is principal at LVF Landscape Architects. He received a Bachelor of Urban Planning from the University of Cincinnati and a Master of Landscape Architecture with distinction from Harvard Graduate School of Design. Luegering’s design perspective is framed by his study of landscape architecture, urban design and urban planning, as well as his extensive research in the vernacular of the American pasture and his Kentucky upbringing.
Luegering recently taught at the University of Pennsylvania in the area of landscape architecture media and visualization, and has contributed to PennPraxis Resilient by Design. His past work at Penn includes working on the 2020 ASLA award-winning coastal resiliency mapping project, “Fantasy Island: The Galapagos Archipelago.” Luegering was awarded the 2017 G. Holmes Perkins Distinguished Teaching Award for Non Standing Faculty in the University of Pennsylvania Stuart Weitzman School of Design.

YALE UNIVERSITY

STUDIO INFORMATION
Coastal Resilience and Adaptation: Portland, Maine and Casco Bay COURSE
Urban Planning, Architecture, Environmental & Ecological Design STUDIO DISCIPLINE(S)
STUDENT TEAM
Max Coolidge, Eva Crutan, Stormy Hall, Olly Hoy, Kurt Huckleberry, Blue Jo, Millie Johnson, Dan Kelly, Livy Li, Yixing “Cindy” Liu, Peter Martinka

Teaching Fellow and Research Assistant: Sida Tang
Alan Plattus
MEET THE PROFESSOR
Alan Plattus began teaching at Yale in 1986 after serving on the faculty of Princeton University for seven years. He is the former director of Yale’s Ph D program and the founding director of the Yale Urban Design Workshop and Center for Urban Design Research (YUDW), established in 1992. YUDW undertakes research and design studies for communities throughout Connecticut and the metropolitan region. Current projects include planning a Heritage Park along the Thames River between New London and Groton, Connecticut, and resiliency planning for Bridgeport and the Connecticut coast funded by HUD’s Rebuild by Design program.
Plattus has served on the boards of the Association of Collegiate Schools of Architecture, the National Architectural Accrediting Board, the Journal of Architectural Education, Architectural Research Quarterly, the Connecticut Main Street Center and the New Haven Preservation Trust. In 2021, Alan led a student team in the Envision Resilience Nantucket Challenge.

EXPERT CONTRIBUTORS
TAPPING LOCAL & INDUSTRY KNOWLEDGE
COMMUNITY PARTNERS
Envision Resilience partners form an interdisciplinary, place-based advisory committee in each Challenge site They include local experts, community leaders, business owners, conservationists, planners, scientists and others who have deep knowledge of the history, ecology, culture and needs of the communities.
Their role is to guide and support student and faculty teams throughout the semester: helping clarify community priorities, ground proposals in local context, provide feedback on feasibility and impact, and ensure design approaches reflect lived experience and values. Their participation ensures that projects are not only visionary, but also meaningful, equitable and relevant to the people who will live with them
JURORS
Envision Resilience jurors are a diverse group of professionals, scholars and practitioners architects, planners, environmental designers, public policy experts and thought leaders in resilience, climate adaptation and design. They review student proposals at midterm and at the end of the semester, evaluating them for creativity, rigor, relevance, innovation and alignment with community and environmental values.
Jurors bring an external, informed perspective that balances technical feasibility with artistic vision and social equity. Their feedback, awards and critique help elevate work, spotlight promising ideas and support students’ learning while helping communities see what kinds of design solutions might shape a resilient future


Community partner Curtis Bohlen speaks with studio professors at the June faculty workshop.
Waterfront Coordinator Bill Needelman leads a Portland waterfront site tour for students

CURTIS BOHLEN Director
Casco Bay Estuary Partnership (CBEP)

SARA JENSEN CARR Associate Professor Northeastern University, CAMD

Program Coordinator New England Young Fisherman’s Alliance

GAYLE BOWNESS Director, Community Climate Action Gulf of Maine Research Institute

LESLEY BRAXTON Principal Perkins & Will

CUNNINGHAM Founding Principal Matthew Cunningham Landscape Design

Sustainability Specialist Kaplan Thompson Architects

CURT BROWN President Bold Coast Seafood

CARNEY Associate Professor University of Florida, School of Architecture
JULIA CZERNIAK
Dean & Professor, Architecture University at Buffalo


FRITZ Associate Principal Reed Hilderbrand

NELL DONALDSON Director of Special Projects City of Portland

GILLIES-SMITH Founding Principal GROUND

DUFF Co-Founder Studio2Sustain Inc

of Development South Portland Historical
MATTHEW
GEOFF
SHAUNA
JEFF
KATHRYN
BELLA DZIAK
KAI FAST
SETH GOLDSTEIN Director
Society

GRAY Principal & Partner Gray Organschi Architecture

JAMIE HARK
Landscape Designer Acorn Engineering

Job Captain Backen & Backen


ABIGAIL HAYNE
Climate Outreach Coordinator Maine GOPIF

JASON J. JEWHURST Partner & Principal Bruner/Cott

Waterfront Coordinator City of Portland

ETHAN HIPPLE Parks, Recreation & Facilities Director City of Portland

KANTERES Partner & Principal Simons Architects

Planning Director City of South Portland

Science Teacher King Middle School

LITTELL Founding Principal Utile

Development Officer Portland Housing Authority
PK Realty Management

RYAN
MILAN NEVAJDA
MATTHEW
TYLER PLANTE
EMILY HOLLYDAY
AMY MAGIDA Project Manager
GRETCHEN SCHNEIDER RABINKIN Executive Director BSLA
BILL NEEDELMAN
LISA
NIEMA JAFARI
KAKI MARTIN Partner Klopfer Martin Design Group

Sustainability Director City of South Portland

Partner & Principal Stimson Studio

Community Planner City of South Portland

BOB RULLI
Community Economic Development Director

Program Manager, Community Climate Action Gulf of Maine Research Institute

Director, Sustainable Design & Delivery CRB
Town of Bridgewater, MA

Partner & Principal Simons Architects


ADDY SMITH-REIMAN
Adjunct Assistant Professor, Sculpture Maine College of Art & Design

Spalding Environment & Climate Strategies

Thompson Architects

WHERE OUR EXPERTS WORK
STEPHANIE SUN
HEATHER WALTERS
JULIA TATE
SIENNA ZUCO Climate Services Project Manager Gulf of Maine Research Institute
CURT SPALDING Principal
JESSE THOMPSON Principal Kaplan
KATIE TIMS Sustainability Associate City of Portland
ELI RUBIN
JULIE ROSENBACH
LAUREN STIMSON
STUDENT WORK
In thinking of new and different ways to address these challenges, it’s great to have young and nimble minds say, ‘Well, what if?’
— Kelsey George Student, University of Maine
at Augusta
PLACE-BASED DESIGN

THEMATIC AREAS
The student design outcomes reflecting multiscale approaches both of sites and time are intended to serve as a catalog of research, tools, concepts and designs. The goal is that, while not being prescriptive or exhaustive, the student visions can further existing projects and spark new ideas in the face of increased storms, flooding and other stressors throughout the communities
CLIMATE ADAPTATION
Portland and South Portland face rising sea levels, intensifying storms and warming waters Climate adaptation here means more than seawalls it calls for integrated strategies combining infrastructure, land use, ecology and equity. Protecting vulnerable populations while rethinking waterfronts and neighborhoods means that adaptation planning emphasizes both safety and livability. Grounded in science but fueled by creativity, it helps communities transform risk into opportunity, building futures that are resilient, inclusive and deeply tied to the character of coastal Maine.
NATURE-BASED SOLUTIONS
Nature-based solutions can restore wetlands, salt marshes and tree canopies while managing flooding and improving water quality. In Portland and South Portland, these strategies strengthen community resilience, reduce long-term costs and regenerate ecosystems, while also offering recreation, education and health benefits that bring people closer to their natural environment.
WORKING WATERFRONTS
The working waterfronts of Portland and South Portland are cultural and economic anchors, home to fisheries, shipping and maritime trades. Climate change now threatens piers, wharves and infrastructure central to local identity and livelihoods. Future strategies can balance the marine industry with adaptation, ecological restoration and equitable public access Resilient design must sustain jobs while preparing for rising seas and aging infrastructure. By reimagining working edges as adaptable, multifunctional and inclusive, these waterfronts can remain productive while shaping models for climate-ready harbors worldwide.
HOUSING & JUSTICE
Rising housing costs and climate threats deepen inequities in Portland and South Portland. Addressing housing and justice means creating affordable, low-carbon, resilient homes and ensuring marginalized communities benefit directly from climate planning Resilient housing can protect vulnerable residents while fostering stability, inclusion and dignity. By centering justice, both cities can strengthen social resilience alongside physical adaptation, ensuring climate action produces safe, equitable and thriving neighborhoods for generations.
ACCESS & MOBILITY
Resilience in Portland and South Portland requires equitable mobility. Expanding transit, biking, walking and ferry connections can reduce emissions while preparing for sea-level rise and storm disruptions. Prioritizing inclusivity ensures all residents can move safely, linking climate adaptation directly to daily life Strengthened mobility networks also support economic vitality and improve community well-being.
ADAPTIVE REUSE
Industrial sites and historic buildings across Portland and South Portland hold untapped potential. Adaptive reuse can transform these assets into housing, cultural venues and innovation hubs while lowering carbon impacts and preserving heritage. By repurposing instead of demolishing, cities reduce waste, extend building life and honor local identity Reuse also creates equitable community-serving spaces on the waterfront and beyond. This approach demonstrates how creative design can merge past and future, turning liabilities into opportunities for sustainable, resilient development in a changing climate.
CORNELL UNIVERSITY
LITTORAL FUTURES: ENVISION RESILIENCE PORTLAND + SOUTH PORTLAND
This studio engaged the littoral, the shifting shorelines of Portland and South Portland, as a crtical site of transformation for designing more resilient futures Building from the aspirational vision of the One Climate Future Plan, our studio examined how to develop novel living infrastructural solutions and proposals that buffer rather than armor waterfront communities, construct novel forms of public space and create coastal communities that are resilient rather than increasingly fragile in the context of rising seas and extreme storms. Student work built from close examination of littoral edges (from eelgrass meadows to hardened shorelines) and the processes that alter them, multi-scalar mapping, as well as interviewing key community partners and knowledge-keepers to inform sensitive design interventions. Students were asked to design resilient coasts that can grow with and be stewarded by local communities
A distinctive feature of the Cornell studio was its bottom-up research approach, which began at the micro scale and prioritized direct engagement with the environment. Rather than relying solely on secondary data, students immersed themselves in the landscape through hands-on fieldwork—kayaking along the coast, walking the mudflats and observing the shoreline’s conditions from the water’s edge downward.
This field-based research was complemented by a range of investigative methods, including the collection of plant and soil samples, guided tours with scientists and ecologists and the creation of flood risk maps. Students also produced illustrations and animations to visualize coastal biodiversity and dynamic ecological processes. Following this intensive research phase, each student selected a specific site along the Portland or South Portland shoreline to develop a nature-based, siteresponsive adaptation strategy. These proposals aimed to support marsh migration, improve ecological resilience and address ongoing challenges like flood risk and erosion Emphasis was placed on understanding and working with the site’s unique physical and social conditions, integrating scientific data and community context into each design.
The resulting projects explored a diverse set of adaptive techniques, such as: Water management structures and expanded marshlands at Back Cove Rockwork paired with eelgrass restoration along the Eastern Promenade Low-tech woven mats to promote blue mussel propagation
Together, these proposals reflected a nuanced understanding of coastal systems and demonstrated how localized, ecologically attuned interventions could support long-term resilience.
*This section features selected samples of work and does not include the full breadth of Cornell University’s design proposals.
FEATURED THEMATIC AREAS


SPONGE HERITAGE VILLAGE
Nature’s Dance on the Ruins
Sicheng “Jack” Zhou
Welcome to the Sponge Heritage Vilage, a andscape design proect ntiative reimagining the Gulf Ol Terminal and Yard South in South Portand Stuated at the top of the inlet between Portand and South Portland, ths site faces crtical envronmental chalenges including foodng brownfield contaminaton from oi and industra polution and rsng sea evels
Historcaly a shpbuiding hub during Word War I and later an ol termnal, the ste has endured sgnficant ecoogca degradaton from oi spils and ndustrial actvity, mpactng the soi, water and surroundng ecosystems Recognizing these chalenges, this project proposes a transformatve approach that proritizes ecoogca restoration, flood resiience and community connectivty
The design everages sponge wetlands a hybrd system that mmcs natura sponges to absorb, store, purfy and release water By appying a Cut+Fl strategy, the project reuses excavated soi to elevate resdential zones creating a lving shorelne that enhances biodversty whie safeguardng against foodng Additonaly, the plan introduces pathways connectng neghborhoods to Bug Lght Park, addressing both ecological and recreatona needs
Key design elements include a sponge wetand (an engineered ecosystem that sustainaby manages water resources, increases biodiversity and improves soi health , an industria heritage preservation project (transforming ol tanks into educational and recreational spaces to honor the area ’ s industra history) and a series of communty-centered andscapes green roofs, rain gardens, and redesgned streetscapes create vbrant publc spaces)
Ths s a proect that envsions a reslent, vibrant communty that reconcles South Portand’s industral hertage wth ts natura future, provding an opportunty for sustanabe urban regeneration










CONNECTING BAYSIDE TO THE BAY
Reimagining the Bayside Trail of Portland
Xiaohan Zhou, Xueting Jin
Our project envisons a resiient and vibrant future for Portland’s southern Back Cove shoreline by remagnng the Bayside Tral as a crtical ink connectng the waterfront, neighborhoods and publc destinatons ike Deering Oaks Park and Fitzpatrick Stadium Currently the tral suffers from physca barrers such as I-295 and an abandoned raiway, aong with deteriorating conditons, underutiized parking ots and contaminated brownfeds, whch imt its usablty and appea Meanwhle rising sea leves and storm surges threaten the surroundng low-lyng areas, exposng vulnerabiities in both infrastructure and environmental systems
To address these pressng chalenges, our design establishes a comprehensve framework that fosters connectivty enhances stormwater management and mproves resiience to sea-leve rise By transforming the Baysde Trai, we create safer, more accessbe pathways that bridge physcal dvides, reconnectng the tral to the Back Cove Trai and Deering Oaks Park whle revtaizing underutiized spaces to form a cohesve urban network
Stormwater management s enhanced through the introduction of bio-retenton ponds, mutifunctional water squares and stormwater tanks that mitgate food rsks and mprove the area ’ s ablty to handle extreme weather events At the same time we incorporate measures to adapt to rising sea leves, such as elevatng the trai with berms, ntegrating food barrers and raisng land evels to safeguard vunerable infrastructure and neighborhoods
Deta led intervent ons in foca zones demonstrate these strategies in action For example, Zone (c introduces a community park w th memory squares, dog parks and b keways, alongside bioretent on ponds and water squares that col ective y store up to 1 6 m l on ga ons of stormwater
Together these interventions leverage nature-based solut ons and green-blue infrastructure to reconnect and protect Portland’s Back Cove shorel ne, fostering a sustainab e and resi ent urban future

DesignStrategies


Toolkits










DESIGN PROPOSALS

Zone(b)
Zone(c)
(a)
(c)
(b)
(d)
THE POINT PARKWAY
Marsh Landscape Urbanism for Community Connection
Peter K. Jenkins
The Pont Parkway restores and thckens mudflats and marshes aong Thompson’s Pont, creatng a network of boardwaks for pubic education, a connectve network of trals to downtown and loca schoos, as wel as a necklace of pubic spaces The project incorporates marshes, berms and other coasta ecological infrastructures to mpement an urban andscape desgn that ensures the regon is more resiient to storm surges, buffers sea-level rise through sedment accretion and protects the mx of uses withn and surrounding Thompson’s Point
The project incorporates educatona sgnage, nterpretve trais and access ponts for the publc to engage wth the coastal ecosystem, whle focusing on wetland restoration technques such as reestabishing hydrological flow Hybridzed soutons blending hard and soft engineerng such as terraced sils gabions riprap and lving shorelnes are integrated with terraced tida parks, foodabe pubic spaces and satwater tolerant greenways These approaches combine lvng shoreines to enhance ecoogica function wth strategcaly placed hard nfrastructure to provde reslence against erosion and storm surges The project integrates the diverse pubic(s) of the ste to enhance the experence of the Parkway, engagng the local communty thckenng cutura amenties and loca ecologies and connectng ocal and regional trai networks


SectonA:Museum,MudflatsandManRoad-39SLRScenaro

SectonB:CulturalConnectons AmtrakToAbsorptveAmphtheater-39SLR Scenaro















ForeRve
WetandEevatedBoadwak Receaon
RpRapHadscape
WhyMussel?
LIVING TIDAL
A Nature-Based Restoration
Yin He
L v ng T da s a transformat ve pro ect that harnesses the power of nature to restore coasta ecosystems improve water qua ity and bu ld res l ence against environmental cha lenges This n t at ve focuses on ut l z ng ow-cost low-tech so utions making ecological restorat on access ble and inc usive for commun t es The project addresses cr t cal env ronmenta issues n the northern Back Cove area of Portland Maine, where nutrient pol ution from awn and field runoff has elevated nitrogen eve s, disrupting the ocal ecosystem
Combned with the impacts of cimate change includng declnng natve musse popuations and marshland oss, this has created a pressing need for acton The Lving Tida proect offers a solution through the Restoraton Matrix, an nnovative scaffold desgned to support musse popuations and foster marshland expansion
Materalty

EaryStage Phragmtes



ExpandngStage:Sweetgrass

GrahamSherwood,PhD
Mussesa eexcelent ndca orsof env onmenta condtonsbecause they te wa erandaccumua e nutrentsorpo u an s
Mussesactas“datarecorders” thertssuerefec s envronmen a condtonsand po utan evels makngthem useu fortracknghuman mpactsonma neecosystems
LifeCycleofMusse
nsttue


CommunityResearche
Musselsareexcelent ndicatorsofenvronmenta condtonsbecausethey fterwaterandaccumulate nutrensorpoutants
RestoatonMatrx
ExtendedMarsh
BudupSedment
Bud-upsedment accumulatesparices supportspants sabizesmarshes, andprotectsagans erosion
Arestorationmatrx gudesecosystem recoverythrough habtatrepar species einroducton,and montorng

HighSLR+88’
MidSLR+39’
LowSLR+12’

Musses ite water, mprovequalty,cyce nurients,andstab ze marshandsedments
Community Engagement


Educatononweavng








Marshessupport specieslikecranes herons egrets,and ducks,payngavta oe nthei breedng, eeding and mgatorypaterns
FutureExtendedMarsh
Extendngorrentroducng marshesrestoresecosystems boostsbodiversty and mproves cimateresience

Sweetgrassharvest nvovestrmmng sustanabyforregrowth supporingtradtons andecoogy









SweetgrassHavet
DepoymentofMat x
LOOKING SOUTH
Resilient
Futures for South Portland
Sam Rimm-Kaufman
South Portland’s waterfront has changed drastcaly over the last hundred years, n large part responding to historc rsk During the Word Wars South Portand was a maor hub for shipbuldng, and the communty right on the edge of the water, Cushng’s Pont, was razed for the construction of shpyards Later, South Portland’s waterfront woud be converted to address energy rsks and ftted wth petroleum storage tanks that serve as a disaster management reserve stockple for al of the Northeast U S During these changes, community voices have often been overooked and entre neghborhoods have been remagned as nfrastructure hubs Whle visting South Portland, my research focused on interviewng community members
Snce the vist, their voices and opnons became central to design strateges Whle many deveopment projects look forward, onward and northward ths proect proposed that deveopment in South Portland needs to “Look South” by empowering the current communty to learn from hstory and the past whie panning for future rsks With the influx of new resdents, rsng housng prces and increased rsk due to rising sea leves and storm events, this proect proposes engaging the community of South Portland in shaping ts waterfront future in response to risng risk To empower the community, locas become central to making decisions about green energy futures and how that wl impact South Portand’s petroeum infrastructure
The proposa creates a centra spine of crcuaton that connects ocal neighborhoods to the waterfront, including a ferry connecting to Portand as wel as a network of reslent green spaces ncuding ivng shoreines and pubic waterfronts Residents can choose from a toolbox of strategies to address energy futures, scaes of housng development, green space and the waterfront By providng new strategies for dscussng resiience that look beyond risk soey due to sea-level rse, this proect ams to empower the communty n South Portland to take a stand for their neighborhoods, ensurng access to the waterfront, housng and new opportunites






HARVARD UNIVERSITY
IMAGINING A FUTURE WATERFRONT FOR PORTLAND, MAINE
Scan this code to see this studio’s full body of work.
The Harvard Graduate School of Design studio is comprised of landscape architecture, architecture and urban planning graduate students who focused on developing coastal adaptation strategies for Portland, Maine’s working waterfront. The semester began with an assessment of existing conditions, demographics, infrastructure, ecology and future risks due to increasing flooding, temperature increases and immigration. In addition to meeting with various stakeholders, the students curated a pop-up event at the Gulf of Maine Research Institute in October 2024 to hear from the community directly.
Based on this feedback, the studio developed potential adaptation strategies and a toolkit of various techniques that can be implemented over time Maintaining the historic character and performative functions of the working waterfront while ensuring long-term resilience were driving goals. The near-term approach identifies ways to protect the working waterfront from 1.5 feet of sea-level rise and a one-percent annual chance storm, estimated in the Maine Won’t Wait: Prepare state guidance 2050 timeframe. These techniques include wet and dry flood-proofing of the most vulnerable and critical assets and transitioning fixed over-water structures nearing the end of their useful lifespan into refurbished floating elements. Incorporating green infrastructure into Commercial Street also supports an urban forestry program that will alleviate inland flooding and increasing temperatures The midterm Integrate strategy primarily relies on gently sloping Commercial Street up toward Casco Bay, protecting from 4 feet of sea-level rise combined with a one-percent annual chance storm, aligning with the Maine Won’t Wait: Commit scenario for 2100. This roadway slopes back down to the pier extensions, maintaining critical vehicular access for the working waterfront functions while continuing to transition facilities into more adaptable ones. The new Commercial Street responds to community requests by incorporating a two-way cycle track, additional shade protection from summer heat and the potential for public transit.
The long-term Embrace approach plans for a future of 8.8 feet of sea-level rise, established by Maine Won’t Wait: Prepare actions for the year 2120. With this future scenario, the daily Casco Bay water level is near the historic shoreline of Fore Street today. With a thoughtful transition protecting the most historic assets with a living shoreline berm over time, the working waterfront transitions into a maritime district of the future. Considerations include incorporating aquaculture for harvesting species that will thrive in a warmer climate, intertidal habitats that will clean the water and more opportunities for living, working, navigating and enjoying the waterfront All approaches include the consideration for a low-carbon resilient future that imagines reuse of buildings and materials while preserving Portland’s food and craft culture. The plan embraces change for floating structures, much-needed housing and an autonomous private and public vehicle transition that supports a more robust urban forest. These strategies will actively contribute to cooling, increasing biodiversity and supporting a more equitable future for all residents and visitors to Portland, Maine, and its surroundings
*This section features selected samples of work and does not include the full breadth of Harvard University’s design proposals.
FEATURED THEMATIC AREAS


CO-CROPPING AQUACULTURE
Portland’s Transformed Maritime Industry

PERSPECTIVE
Willa DeBoom
After speak ng to Mainers ast October we heard how important a working waterfront one that is re ant on loca and ntergenerational know edge, occupat ona pride and community cohes on is to the cu tura dent ty of the city However, warming sea temperatures, spec es shifts and aging nfrastructure have left Portland’s mar t me ndustry under threat from cl mate change To address the need for ndustry adaptat on, th s pro ect proposes transitioning and expand ng Port and’s water-based industry in the long term by establ sh ng zones of near shore aquaculture L ke agricu ture on and, much of today’s aquacu ture nvo ves harvest ng a monocu ture of a single species, eaving farmers vu nerab e to a risky financial burden in the case of a poor growing season For Port and’s waterfront, the farm ng nstead includes a coculture of oysters, musse s and sugar ke p Th s w l help mainta n the c ty s d stinct cultural character whi e a so pos t ve y impact ng the ocal economy, mproving water qua ity and contribut ng to a susta nable food system The diversity of use across the waterfront s a crit ca part of what makes Portland’s pat na of cu ture so unique to the landscape This proposa hopes to put f shermen rst so those work ng along the waterfront can enjoy the col ective atmosphere that Portland has to offer, helping loca s and newcomers al ke value who makes Port and, Port and

LIVING & WORKING WITH WATER
Resilient Housing for Fisherfolk

Alexandra Kupi
Ths proposal ams to create space for a crtical portion of Portland s workng waterfront ecosystem, ts fisherfolk and fishng culture Amng to address and ad Portand’s exsting housing crisis and agng maritime generation, this desgn proposes an apprenticeship program for fshermen aong the waterfront where men and women can work, and ive, nspiring community n the next generaton of obstermen to sustain and encourage the future of Portland’s working waterfront With current fisherman traveing up to 45 minutes to piers to park, oad their boat and embark on a long day at sea, ths proposa aims to mprove the workday of hardworking fishermen and priortize rea estate for fisherpeope aong the waterfront minmizng the commute and encouragng community amid a soitary profession The foatng design is aimed to be modularly grown over tme, through a system of nodes and connectons fostering networks between lving and working quarters Communa spaces, bat loadng statons, outdoor eateries, fshing pers, parks and aquaculture zones are scattered throughout to encourage dversty of use between work and ife Materals are inspred and chosen accordng to locaity and a sustanabe future Colored recamed wood referencng Wdgery Wharf emuates panted lobster buoys, shel-crete concrete utiizes seafood shel waste to create environmentaly frendly pavng soutions recycled stee gathered from obster traps is used to develop floatation webs and soar roof ties generate sef-sustanng houseboats al paying a role n encouraging carbon storage The dversty of use across the waterfront s a critca part of what makes Portand’s patina of cuture so unique to the landscape

DESIGN PROPOSALS
FOREST LAB
Adapting and Growing with Forests
Shan He

“Portland’s Forest Lab” is a visonary experment, weaving together communty reslence and ecological foresght Nested aong Portand’s waterfront, this lving aboratory nvtes the city to embrace the landscapes of tomorrow whle confronting the chalenges of today At ts heart the Forest Lab s a testament to adaptaton a sanctuary where peope and nature converge It nurtures the seeds of reslence lteraly and fguratively by preparng Portland for rising seas, warming cimates and shifting ecoogica boundaries Ths space s not merely about trees; it s about futures Futures where sat-tolerant species brave the tdes, where southern trees fnd new homes as wayponts for migratng birds and where urban forests cool neighborhoods and harbor lfe The ab is as much about peope as it s about pants A place for gathering and growth it bends a vibrant community hub with cutting-edge research Chidren pay in recycled-wood paygrounds, famiies gather n greenhouses and artsans craft stores from tmber Meanwhle, scientists test reslent forestry technques and ocas tend nurseres sharing in the stewardshp of a greener Portland The Forest Lab transforms urban forestry into an act of hope a dynamic process of dscovery and restoraton It s a future-facng refuge, where each tree planted today becomes a promise to generatons yet to come Portland’s Forest Lab is not ust a space it s a movement, a lving promise that the cty wil thrive, even as the word changes

INTERTIDAL ISLANDS
Patches of Rocky Shore and Marshes
Sakiko Isomichi

PHOTO COLLAGE OF INTERTIDAL BIOME COMMUNITY
The intertidal zone s a crtcal habitat for the ecological food chan Marshes eelgrass and seaweeds host and nourish sea worms, mollusks crustaceans and smal fish which feed birds and arger marne creatures lke obsters, pogy, sea turtles, seas and humans Today, the eegrass and wld kelp forests are under threat As the Gulf of Mane warms one of the fastest in the world, coupled wth acidifcation, reduced sainity and ntrogen pollution the eelgrass and wid kep forests have colapsed by a quarter of tota area each The sea-eve rise brngs an opportunity to buid a healthy intertida habtat n the working waterfront in Portland Ths proect proposes coastal marsh edge and intertida islands by transformng Wrght’s Wharf and Hobson s Wharf, whch wil be 4 feet under water at every hgh tide by 2120 The coasta marsh edge catches and flters the surface runoff, mnimzing nitrogen polution n the salt water The sands dynamic topography ranges over 20 feet, from the underwater habitat for kep forest to the splashing zone for high marshes Savaging rocks from the wharves and the neghborng Portland per, rock patches create a calmer habitat protected by the east wind Located by the Gulf of Mane Research Insttute and Divng Academy, the sands offer opportunities to montor observe and nteract wth wildlfe Living n the changng clmate s about actively engagng with the changes in the environment and the speces that come and go Intertdal sands invite interspeces nteractions rght n Portand Harbor

UNIVERSITY AT BUFFALO
REIMAGINING CASCO BAY: DESIGNING FOR EXTREME CLIMATE EVENTS IN COASTAL CITIES
This studio used scenario-based design to reimagine the water-vulnerable landscapes of Casco Bay, Maine as a necklace of climate-resilient zones spanning Portland and South Portland. Students traced the historical evolution of the region’s working waterfront its historic “Ports and Forts” lineage and developed seven neighborhood-scale resilience scenarios across Portland’s Back Cove, East End, Harbor and Old Port districts, as well as South Portland’s Sprague Terminal, Downtown and Willard Beach.
Following city-scale urban and ecological mapping, fifteen students conducted site-specific fieldwork and collectively built a coordinated research and design framework organized in two parts. In Part One, students developed an adaptive toolbox that catalogued nature-based and hybrid strategies breakwaters, gates, landforms, seawalls, architectural retrofits—across short-, medium- and long-term horizons. By midterm, this work had been synthesized into a print-ready guidebook.
In Part Two, students deployed and recombined these strategies within one of the studio’s seven sea-level-rise intervention areas Transects served as the studio’s core comparative method, enabling consistent analysis and cross-referencing along the coastal ribbon. Working in teams of two to three, students produced individualized design proposals that remained grounded in a shared research base and a regional shoreline framework.
Resilience scenarios were developed for the following areas:
Willard Beach: A new pier supports access, fisheries and community-scaled resilient housing
Downtown South Portland: A constructed urban sponge absorbs stormwater, slows flood pulses and restores tidal ecologies across key civic blocks.
Sprague Terminal + Forest City: Oil tanks are reimagined as water collectors within a solar-powered district.
Back Cove West: Restoration of the Olmsted Trail, marsh islands for habitat and research piers.
Back Cove East: A sequence of green terraces buffers highway infrastructure and adapts with sea-level rise.
Eastern Promenade: Intertidal pools link ecological and recreational uses, from freshwater to saltwater
Old Port: A phased pier strategy, from marketplace reinforcement to habitat extension and adaptive reuse of buildings.
Final Review jurors emphasized the unusually cohesive, collaborative quality of the work and the studio’s disciplined integration of research, representation and design.
*This section features selected samples of work and does not include the full breadth of the University at Buffalo’s design proposals.
FEATURED THEMATIC AREAS


CASCO BAY SHOREWAY
University at Buffalo

One Shoreline, Seven Resilience Activation Areas
Index nterventonArea
SLR+SocialVulne ab tyOve lap ProposedBRTLne
Back Cove
East End
Portland Harbor
Old Port
Willard Beach
South Portland
Sprauge Terminal



Back Cove Edge Mapping
Carol Recinos Luna
Public Places Mapping
Carol Recinos Luna
Coastal Edge Strategies
Proposed BRT
SLR X Social Vulnerability Overlap Areas
SPRAGUE TERMINAL & FOREST CITY
From Fragmented Land Uses to a Connected Field of Energy Transitions
Ian DeWald, Nayarit Tineo
SECTION PERSPECTIVE OF SPRAGUE PARK

The Sprague Termina creates a shared resource where peope, energy and nature intersect in meanngful ways to brdge soca and environmental divdes Through the converson of petroleum tanks into soar energy hubs, the ntegration of soar and heat pump technoogies nto nearby housing via new Accessory Dwelng Units (ADUs) and the creation of tral systems that connect fragmented spaces, including the Forest City Cemetery and surroundng neghborhoods, the Sprague Termnal becomes a model for energy equity and resiient urban design
MICRO-SCENARIOS



PetoeumTanksrepurposed forRainwaterColectonand ViewingPatforms
SPRAGUE ECO-HUB TRANSITIONING PLAN





MarneLieHabitat Edge
NewAccessoryDwelingUnt (ADU) Existng Home
HeatPumpConnecton betweenADU+Original Home
EV Station

Intra-BlockPedestranWayandMicroHabitats
DESIGN PROPOSALS
VIEW OF SPRAGUE HOUSING HABITATS
WILLARD BEACH
Coastal
Crescent
Bobby Zhao, James Metzger, Anushka Ahire

MICRO-SCENARIOS


Lving wth the tides encourages envronmental reciprocty and reslent ivng n the face o rising sea eves at a beloved neghborhood beach Here housng custers provide sheter for students n the short term and support intergenerationa ivng n the ong term, wh e eevated structures, soft shore ne reinforcements and green buffers serve as toos for erosion control and environmenta stewardshp Together, these elements baance a dynamc relatonship between homes, andscapes and the ever-changng shorelne
VIEW OF WILLARD BEACH HOUSING HABITATS SITE PLAN
SECTION PERSPECTIVE THROUGH NEW HOUSING WITH A VIEW TOWARD SOUTHERN MAINE COMMUNITY COLLEGE
STORM CONDITIONS PERSPECTIVE


OLD PORT
Double Sided City
Gavin Carroll, Rishah Chopra




SECTION PERSPECTIVE OF WATERFRONT PARK SUSTAINABLE PORT TRANSITIONS

VIEW OF COMMERCE STREET IN 2050 DESIGN
EASTERN PROMENADE
Transforming
a
Single-Use Shoreline into Dynamic, Interconnected Ecologies
Ana Pereira, Ian Simmons
Ths proect explores the East End shoreine as a space of dynamc transformaton where fragmented and dsconnected uses from kayak companes to island trash barges are reimagined into an integrated center for hoistc health, ecological restoration and adaptve resiience
Despte Portland s growing holstic heath sector, there are no signifcant water-based welness resources an ronc absence n a cty defned by its relationship with water n response ths Water-Based Welness Infrastructure sauna and cod-plunge pools integrated nto the shorelne creates an immersive crculatory health experence rooted in cascadng and foatng therapy spaces

2070 VIEW OF WELLNESS ON
SECTION PERSPECTIVE THROUGH EASTERN PROMENADE TRAIL, POOL
HOUSE, & CASCADING POOLS

TODAYSEA-LEVELRISE
FROMBEACHTOPROMENADE
FROMGRASSLANDTOMARSHLAND FROMHUMANTOECOLOGY

MICRO-SCENARIOS
DESIGN PROPOSALS


EASTERN PROMENADE HEALTH MAPS
UNIVERSITY OF MAINE AT AUGUSTA
FROM VACATIONLAND TO CLIMATE CHANGE HAVEN
Maine’s only collegiate architecture program focused its studio on how and where new development can occur in project areas, emphasizing multimodal interconnectivity, affordable housing, potential expansion of the working waterfronts and shoreline protection. Each student group researched both Portland and South Portland to determine how architecture can best address the issues raised by the Envision Resilience Challenge, including building materiality, vulnerability, remediation, transportation and mobility. Each design team presented a master plan, having developed architectural solutions within their plan, with a focus on community engagement.
The University of Maine’s studio comprised 10 undergraduate architecture students in their fourth-year design sequence. Aligned with the program ’ s curricular focus on master planning, the studio was guided by Professor Patrick Hansford and adapted its scope to explore themes of resiliency within the context of the Envision Resilience Challenge.
The studio was organized into two teams of five students Each team engaged with a different site along Portland’s working waterfront, envisioning future development opportunities in response to evolving environmental and community needs. The first team focused on the former rail yard site where the proposed Foreside Landing project is located. Their work centered on a comprehensive master plan that introduced a rich mix of community-oriented uses—including housing, a community center, maritime education and museum spaces, a transportation hub and a cooperative marketplace. The students thoughtfully outlined programs to support both economic development and neighborhood identity. The second team developed a planning framework for another key portion of the harborfront, also envisioning a balance of civic, educational and residential uses Their work included a proposed implementation timeline and considered phased development over a 25-year horizon.
Both teams approached the challenge by integrating site-specific design with broader urban strategies. Emphasis was placed on envisioning how architecture can shape future waterfront districts in ways that are inclusive, adaptive and forward-looking. Through this process, students engaged with real-world planning questions and tested ideas for resilient coastal development
While focused on early-stage master planning, the studio demonstrated how undergraduate design education can engage with regional climate and development issues, offering imaginative ideas for Portland’s evolving waterfront
*This section features selected samples of work and does not include the full breadth of the University of Maine at Augusta’s design proposals.
FEATURED THEMATIC AREAS


ENVISION RESILIENCE MASTER PLAN
University of Maine at Augusta
OUR MISSION
When we seek to envison reslence, our group looks to the strength found withn Maine communites
Mane’s andscape s changng due to the effects of clmate change, so it s mportant now more than ever to ensure communities have the resources needed to thrve n this everchangng envronment
Our group sought to identify development opportunties that we fee are essenta to the growing needs of Portland residents Each of our proects ams to satisfy these needs and foster connectons that grow sustanabe communities
For ths proect, our team seected a site on the far east end of Commercia Street, ocated near the Narrow Gauge Ralroad, Sun Li e buiding and the entrance to the walkng trail We seected ths site because t is currently a vacant ot with development potenta and close proxmty to the downtown waterfront and resdential areas in the East End
SUSTAINABLE STRATEGIES
Protective UV gazng
Developing resiient food systems
Electrfying transportation systems
Utiizng loca and reclamed materals
Energy effcient and hgh-performance buidngs sourced by soar wnd and geothermal
Elevated paza and retaining wal to protect structures aganst coasta flooding and storm surges
mplementing an underground catch-basin system to mtgate the effects of coastal flooding and storm surges

FERRY TERMINAL MARITIME CENTER NOLANCARTWRIGHT NEIGHBORHOOD REVITILIZATION


MARELOUGH
KELSEYGEORGE
MEGANBROWN
NCHOLASSMART
NICHOLASSMART
ADAPTIVE REUSE
Kelsey George
Portand’s East End currenty lacks key amenties such as versatle event venues, an al-season market space and a martime museum
However, severa vacant commercal buldngs present an opportunity for renovation to meet these needs Ths proect proposes the adaptive reuse of an existing brick buidng to create a flexbe event and market space a commercial ktchen, o fice spaces and resdental apartments A new, modern structure featuring a double-skin facade wil house a martime museum
The design wl ncude sustainabe eements, such as solar panes on the roof localy sourced and reclamed materials and energy-efficent heating and cooing systems
Addtonaly, the entre plaza wl be eevated approximately 4 feet to protect structures against sea-evel rse, severe storms and coastal flooding
An underground catch-basn system wil be mplemented to manage water retention and controled reease, hepng to mitgate the impacts o coasta foodng
PROPOSEDCHANGES











FLOATING COMMUNITY
Brennan Lowen, Suzie Felix







MARITIME CENTER & CO-OP
Nolan Cartwright
Casco Bay is warming 90% faster than the nat onal average, n arge part due to the ex stence of ndustr a fishing operations Educat on is the ourney that leads us to our profess ons and for too ong mar ne educat on has funneled students nto work ng on arge company boats Th s narrowed scope robs young fishermen of the opportun ty to prov de for themse ves and the r famil es in a way that can sustain them far better than a low hour y rate Industrial boats run on stores of d esel fue that dump waste nto our waters Workers on these boats catch f sh in large p ast c nets that often break and fal into the bay When the nets are successfu they catch far too many fish at one time, mak ng t imposs ble for these f sh to repopu ate to their prev ous numbers
Through Mane Sound and Story, I istened to ntervews with hook-ine fsherman and busness owners that offer unque approaches to ths ssue
Usng his prior experence Dan Harrman proects that opening up the waterfront to hook-lne fsherman wll lmt the capabilties of industra fshing operatons by creatng competiton with a more proftable business model
Merritt Carey speaks to her past success n opening Fishing co-ops for sustainably sourced seafood Her co-ops have supported ndependent fshing operatons, enabing them to turn large profits and provde for their communities Sustanaby caught seafood s safe to eat and does not damage the ecosystems of the bay
Sam Belknap serves the sland nsttute of Maine and advocates for bettering education about the fishng industry Teachng Mainers how to manage ther own boats and navigate Maine’s waters wl help a dying practice that can serve to repace arge ships that polute our waters propose a Martime Education Center wth a arge on-ste seafood co-op
Ths provdes a new educaton pathway for Maners to work toward havng sustainable income and partcipate in a broader communty Guding the workng class toward a career in hook-lne fishng lowers carbon emssons into the bay as new fsherman drive out industra practces in the area
The educaton center has classrooms for formal instruction, top-foor conference space and ocal marine ife aquarium to engage users of al age groups and earnng styles The on-site co-op ams to fnancialy support the endeavors of fledglng fishermen and provide for the communty The buidng also ensures that a portion of the waterfront maintans publc fishng docks, to combat threats of yacht and saiing cubs privatizng the shoreine
Ths buiding aims to set precedent for sustainable bulding practces in Portand by its implementation of innovative construction technology This is a foatng bulding that mantains buoyancy with the use of concrete pontoons Being an amphibous buiding protects the structure from storm surge and alows for the colection of thermal mass from the ocean to assst wth heating and cooing The lght reflection from the water on al sides maximizes soar gan from photovotac wndow flm arrays





UNIVERSITY OF MICHIGAN
DESIGN OPPORTUNITIES FOR ADVANCING SOUTH PORTLAND’S CLIMATE RESILIENCE
Bringing students together across the disciplines of environmental justice, policy, urban planning, geospatial data science, ecosystem science and landscape architecture, this studio examines South Portland’s open water, shoreline and inland neighborhoods with a focus on design strategies that emphasize holistic connectivity, future energy transition and green stormwater solutions. Every design strategy embodies the goals of making places for people, protecting the public from future coastal flooding, storm surge and extreme rain events and supporting the aquatic and terrestrial environment and habitats. The studio included two site visits to Portland and South Portland. The initial visit served as an introduction to the region, allowing students to engage directly with the local context. The Michigan team began their work on the ground This shaped a semester-long process of exploration, framed around four key phases:
Establishing Disciplinary Knowledge
Fact Finding + Engagement
Synthesizing Issues + Opportunities
Charting a Path Forward
By mid-semester, the studio had identified broad resiliency themes and organized into five project teams, each addressing adaptive challenges across South Portland. While the second semester continued independently of the Envision Resilience program, the first-semester studio laid the groundwork for a set of ambitious and large-scale interventions.
A distinctive element of the Michigan approach was its focus on infrastructure reimagining hard systems as adaptive and, in some cases, ecologically integrated Highlights of the studio’s proposals included:
Floating Breakways: Modular breakwater islands designed to be mobile and reconfigurable, offering flexible coastal protection.
The Blueway: An elevated harbor walk connecting South Portland’s waterfront, from Willard Beach to Nautilus Plaza and Bug Light Park.
Welcome the Water: A bold proposal to transform the largely paved Knightsville district into a restored wetland marsh, balancing ecological restoration with structural interventions
Tank Futures: A phased decommissioning of the petroleum storage depot, converting the site into public parks and reconnecting it to the urban fabric.
Greenloop of Resilience: A nature-based infrastructure project that reinforces existing roads and pathways with ecological strategies.
The University of Michigan’s work contributed a systems-scale perspective, exploring how infrastructure and ecology can shape resilient urban futures.
*This section features selected samples of work and does not include the full breadth of the University of Michigan’s design proposals.
FEATURED THEMATIC AREAS


THE BLUEWAY
South Portland’s Ecological & Social Infrastructure
Alexa Garnet, Ren Hoff-Miyazaki, Myles Markey, Kammer Offenhauser
PROJECTDESCRIPTION
Thsproec sameda connectngPortandandSou hPo tandthroughanew water con:theBueway TheBueway amul i-functonalbrdgebuidsbothsoca andecoogica nfrastructure I sfrstobec iveistobuldthesocal nf astructu e o Sou hPo tandthat ncudesnewwa ertaxiconnectons walkngpathsand bkewaytoexstngandfu uredevelopmen talsoservesasan mportant ecoogica breakwa er where tsdesgnprovideshabtatp otectonands orm surgeprotecton






ANALYSIS




DESIGN CONCEPT
The B ueway















































FLOATING BREAKWATERS
Building Climate-Adaptive Infrastructure That Works With Water
Hope Fryer, Daniel Lim, Jayna Sames
ANALYSIS DESIGNCONCEPT























TANK FUTURES
Honoring South Portland’s Industrial Past: Designing a Resilient Future
Brooke Bulmash, Deliang Lyu, Shiru Xu, Jing Yan
TANKHISTORY
Thetmelneofolhstory nSou hPor land sextensve andspansnearyacentury Theimagesatrght romthe PortandHstorcalSocie ybegntopaintapctureo he stescul ura history,f omoi ng oadsofthe1910sto todaysexstng ankfarmcondton

PROJECTDESCRIPTION ANALYSIS
DETALNGTHEISSUES+OPPORTUNTIES
Thsproecttakestwoapproachesto ssues nSou h PortandsBreakwatersneghborhood theenvronmental andthesoca nfrastructura SouthPo tand s vunerabetothewhimso arsingseaandunpredctabe stormswth nc easng ntenstyandf equency Aongwi h this nsuf icentstormwater nfras ruc urecoupedwth agngpetroeum nfrastructure pa tcuaryaboveg ound o tanks poseasgnfcant iskofcon aminatonand urtherfoodng,whchthreatenshumanheathaongwth ecosystemheath C matechangew nevtabymake thesethngsworse Thsproec proposes decommssonngtheo tanks ul remediatonofthesoi andrepurposngthesestructuresforstormwate and coasta p otecton Soca:Foroursocia nf astructura contex ,thsarea thebreakwatersneighborhood acks su fcentcommuni y- ocusedspaces Socia nf astructure consistsofthepacesandphysca spacesthatshape nte ac ionsinacommunty Theo tankspresentan opportunty oremagnenewspaces orcommuntyuse whiehonorngthepast Additonaly,ths andscape becomesapaceto ea nmoreaboutthepetroeumage o southPortandandwhat thasmeanttothscommunty Anotheraspec ofrepurposngthetanksistocrea ea communtyhubspaceforfu therrecreaton ea ningand socalspaces Thesteasopresentsanopportuni yto enhanceconnectivtyandexpandexistngpaths orboth bkngandwakng
DESIGNCONCEPT
GOALS:Soca nfrastructure


SocalInfrastructureDefct






TheBreakwaerneghbohoodneedsmorecommuniyspaces
ReimagningOi nfrastructure:
Repurposeoltanksand nrasructure orcommuntyuse
EducationaLandscape
Createaspaceto earnaboutthehstoryoftheo ndustry nSoPo CommunityHub
Deveopacommuntycenterfo ecreaton earnng andsoca connec on
EnhancedConnectvity
Expandbkeandwakngpathsto mproveaccessb tyandpromoe outdoo actv ies
GOALS:Ecologca nfrastructure


CoastalVulnerabity:










SouthPotand’sBreakwatesneghbohood satrsk romrsngsea evesandseveestorms
O TankThreat:
Agingoi tanksposeasgnfcantrsko conamnatonandfoodng
CimateChangeImpact
Cmatechangeexacebaes hese sks nceasngsormfrequency and ntensiy
ProposedSoluton
Decommssono tanks remediateso andrepurposesructuresfor stomwaerandcoasta potecton






TankFuturesMasterPan Sea-LevelRseImpact:
ParkAccessibi ty: Remoepark oca onsmght m acces b y or oca esdents especa ydurngextemeweatherevent o emegences educng su tyasarecea ona and





WELCOME THE WATER
Drawing Inspiration From Nature to Construct Wetlands & Build Resilient Communities
Christina Contreras, Alex Grainger, Sumire Yamada, Teresa Zbiciak












































UNIVERSITY OF TORONTO
LOBSTER TALES—AND OTHER ARCHITECTURES BETWEEN LAND & SEA
Ten students worked under the auspices of the University of Toronto's (U of T's) Master of Architecture two-semester thesis curriculum, beginning with a fall research phase conducted in parallel with the Envision Resilience program, and followed by an independent spring semester focused on design development. A set of questions provided an initial philosophical grounding for the studio, focusing on four overlapping, speculative areas of interest: communities of affordance, pocket metros, shoulder spaces and topographic prospects. Students proceeded with scenario planning, developing three distinct speculative futures for the Greater Portland region. These scenarios considered a broad spectrum of cultural, economic and environmental forces shaping the area ’ s response to climate change.
After sharing their initial research and speculative visions, students selected specific sites and programs for deeper investigation. Reflecting the Daniels faculty’s emphasis on critical research and the intersection between architecture and urbanism, the next phase involved extensive historical and contextual analysis. Students examined the physical evolution of their sites and the regional and global influences that have shaped the development of Portland and South Portland over time.
What set the U of T studio apart was the depth of research its structure allowed Devoting an entire semester to investigation and scenario development enabled the creation of detailed research documents that grounded each project in robust contextual understanding. This foundation led to an especially diverse and often provocative set of adaptive design proposals.
Projects addressed a wide range of issues and opportunities across the region, including:
A comprehensive transportation plan for downtown Portland reforming the way cars and pedestrians navigate and occupy the city
Two alternative schemes for South Portland, one along Broadway and another in Knightsville, offering a counterpoint to the proposed Yard South development.
A homeowner-based “alternative hotel” model for Munjoy Hill, aimed at reducing the impact of short-term rentals.
A transect linking Maine’s agricultural hinterlands to aquaculture in Portland’s harbor, integrating food processing at the Maine State Pier, with a Culinary Institute/Winter-Garden at Dimillo’s Pier.
A summer camp-inspired economic development plan for the Casco Bay Islands
A floating housing community integrated with a revitalized Fort Gorges.
This breadth of inquiry resulted in unique responses to the challenges of coastal adaptation Many proposals critically engaged with current planning initiatives, yet offered fresh perspectives and alternative pathways grounded in careful analysis and creative speculation.
*This section features selected samples of work and does not include the full breadth of the University of Toronto’s design proposals.
FEATURED THEMATIC AREAS


BROADWAY & GREENBELT: SOUTH PORTLAND LINEAR
A Strategic Framework for Coastal Housing Relocation
Yang Hu
Lke many coastal cties n desrabe areas, the Portand area faces the dua threats of a housng and cimate crisis More specifcaly,
new development
Ths proect and the research that ed to it explore strategies for resolvng South Portand's housng criss and coastal food threat
nfrastructure that would alow this area of the city to move beyond ts hstoricaly soated, factory neghborhood format
At a city-wde scale the proect wl provde a strategic framework for rezoning and intensifyng the transit corridor along
utlzng the Greenbet for new multmoda connections across the South Portland peninsula, ncudng a reconstituted ferry ine The goal wil be to establsh a szable, community-integrating resdentia, transportation and
and enhanced, transformng this suburban zone nto a hgher-density, lnear community that retrofts the existng suburban ayout to create a more vbrant and cimate-reslent city
At an archtectural scae workng with exsting settement and settlement patterns, a seres of new housng typologies are proposed to alow for ncrementa, site-by-site intensifcaton over tme, aimed at both enhancng existng housng avalabiity and ntroducng new, larger-scale, more mxeduse types aong maor frontages
HOUSING DENSITY BEFORE VS. AFTER


DENSITY OF RESIDENTIAL BUILDINGS & FLOOD EVENT





FLOOD MITIGATION MODULE
STREETFRONT COMMERCIAL & PARKING MODULE RESIDENTIAL MODULE
RECREATION MODULE
STREET CORNER TRANSIT MODULE
PROJECT DRAWINGS





URBAN NODES & STREET INTERSECTIONS
SINK OR SWIM
Floating Solutions for Coastal Resilience
Harir Goodarznia
Water-based development offers the potental to adapt to rising sea leves and can provide a framework for alternatve dwelng structures and reslence n coasta cites Portland, Mane, with ts vulnerabiity to a projected 3-metre sea-level rise by 2100, aong with low elevaton and dense coasta popuaton is partcuary at risk The proposed proect envsions a floating community off Fort Gorges on Hog Isand Ledge transforming the idea of utopa into heterotopa By creating adaptable, water-based dwelngs, ths project positons Portand at a critical crossroads in the wake of the cimate crisis one where the cty must decide whether to sink or swim
Buiding off of Fort Gorges wth foating barges, the community wl brng together a range of programs to create a 15-minute city, ncudng educatona faciities, long-term care housing and agricutural ntiatives Educational nsttutions wil serve students from the nearby Casco Bay slands, with on-site housng avalable for educators Fort Gorges wil be further connected to the state of Maine through a canning warehouse, addressing a key need, whle also creating new toursm opportuntes
The design of the barges has been determned through research that focused on crafting a modue that mnmzes wind resstance and incorporates effective foatation systems






Three Basic Types of Floats
Logs


Floor joist
Wood stringers


Concrete grid
Wind Resistance and Aerodynamic Drag

AEROFOIL | The shape of an aircraft wing minimises drag.

SPHERE | Round objects such as baseballs experience a medium amount of drag

box

SQUARE | Flat, edged objects such as boxes experience a high amount of drag.
Plastic foam
Foam
Concrete
TO CIRCULATE THE HISTORICAL HEART
Yipeng Huang
Port and s a beautifu coastal c ty in the northeastern U S , with an economy deep y t ed to tour sm In the past year alone, the tour sm industry generated $2 8 bil ion, supporting thousands of l vel hoods However, over 70% of v sitors arrive by car a number that cont nues to rise p ac ng increasing strain on the c ty’s nfrastructure and underm ning ts long-term susta nab l ty goa s Compounding th s challenge, Port and s also facing the mpacts of cl mate change including rising sea evels and recurrent f ood ng Together these dual pressures demand a rethink ng of how peop e move through the c ty, and how tour sm can be sustained without comprom s ng the c ty s env ronmental future
Facng the dua pressures of growng tourism and cimate change, Portand must redefine the roe tourism wil play in ts future, and ths wil requre changng the way people move through ts urban core By transformng ts car-centrc nfrastructure and ntensfying ts historca corridors such as Commercal Street and Congress Street ths proposa envsions a pedestrian-frst city center supported by technology-drven, imited-access traffic zones and mutimodal transit The goa is to envsion a more sustanabe future for Portland’s tourism economy whie preservng its historca dentity, thereby creatng a more ncusve sustainable environment for resdents, tourists and local busnesses aike





SMART INTEGRATION & NEXPORT SYSTEM







Franklin NexPORT
Back Cove NexPORT





DESIGN PROPOSALS
NEXPORT, FRANKLIN STREET
LINCOIN PARK HUB, @ FRANKLIN STEET
ISLAND AQUA CAMPUS
Laura Tobin

Situated along the southeastern edge of Maine the islands of Casco Bay le at the ntersection between the mainland and the Atantic Ocean n one regard, the sands functon as autonomous entites physicaly separated from the manand by the expansive water Yet n other regards, their surviva is ntrinscaly dependent on ther connection to the manland As Ruth Sargent states, “They face the open sea and watch the sunrse on one side, then later ook back across the harbor to the manand to see the sunset ” Ths duaity re lects the concept of interstitiaity ntersttialty captures the paradoxical condition of the islands' simutaneous connectedness to and dstincton from the manand, creatng a space of poltical socal and environmental tension The sands are lnked to Portand through commuting, tourism and governance whie strving for autonomy Yet, rsing sea evels population declne and lmted infrastructure threaten their uture
How mght cultural and economc regeneraton be ncentivzed on the Casco Bay Islands in ways that aign with their autonomous spirt and need to address a changng cimate and cuture?
Against ths background, hs proposal reimagines the summer camp as a catalyst for communty-buldng and envronmenta stewardshp Buit around decommssoned miitary structures, the camp repurposes them for cimate monitoring and protection, offerng programs for both adoescent campers and year-round resdents The camps aim to revitalze isand lfe fosterng long-term investment in ts cutural and ecological reslence
COMMUNITY GATHERING HALL


City of Portland Parcels CAMP NETWORK Proposed Site Ferry Routes
Island Network Connection











DESIGN PROPOSALS
BASE CAMP
COMMUNITY HALL
EXPLORATION FIRE CONTROL CAMPS
UNIVERSITY OF VIRGINIA
CIVIC INFRASTRUCTURE & PORTLAND’S BACK COVE
Migration and mobility, antifragility and ruins this studio is exploring the historic evolution of the localized watershed around the brooks that feed into Back Cove in Portland, Maine, the transportation infrastructure that has sculpted the estuary, and the park infrastructure itself to consider a next iteration of nature-based infrastructure for this landscape. With these principles in mind, this studio examines nature-based infrastructure that listens and learns from the history and cultural tenants of the Portland region to develop concepts and scenarios that address climate change.
This interdisciplinary studio brought together landscape architecture, architecture and urban design students all housed within the same design department into a shared exploration of Portland’s Back Cove. The central theme of the studio, The Nature of Change, drew inspiration from J.B. Jackson’s notion of the “necessity for ruins”—the idea that decay and transformation are essential precursors to meaningful, lasting change in our built and natural environments. Within this context, Luegering emphasized the role of incremental change small, deliberate interventions capable of catalyzing significant long-term impact.
After an initial study of the Portland peninsula and its relationship to the water, the studio selected Back Cove as its sole focus This site offered a layered narrative of ecological and infrastructural transformation: once a natural mudflat and marsh, later shaped into an Olmsted-designed park, then partially filled and excavated for navigation, and eventually integrated into a highway system and stormwater infrastructure.
During their visit, students gained valuable insight from Envision Resilience’s network of community partners, deepening their understanding of Back Cove’s hydrology, ecology and infrastructural complexity This knowledge shaped a diverse range of design proposals aimed at reimagining the environmental performance and spatial identity of the Cove.
Design strategies ranged from full ecological restoration reconnecting historic drainage systems and reintroducing the dynamic mix of salt and freshwater to more modest, incremental interventions focused on regeneration and adaptation over time. The proposals explored how restored tidal flows, sediment dynamics and vegetative succession could redefine the future of the site
Through this multifaceted inquiry, the studio fulfilled Professor Luegering’s charge to treat Back Cove as both object and landscape a site of layered histories, ongoing change and future potential
*This section features selected samples of work and does not include the full breadth of the University of Virginia’s design proposals.
FEATURED THEMATIC AREAS


RESILIENCE THROUGH REDUNDANCE
The Potential of Port(s) & Scars
Steffi Shah
How did the historic transportation redundancy of Portland pay a roe in ts evolvng resiience? Victor Gruen’s 1963 plan for central Portand resulted n some of the most highy contested and controversia deveopment n its hstory Of particular note the Frankln Street reconstruction, in conunction with urban renewal created a massve void through severa neghborhoods and displaced thousands of resdents The scars of those deveopments lve on today, as Frankln Street stl connects I-295 wth the port of Portand wnding up and over the saddle of centra Portland, creatng massve vods of unusabe space
Planning efforts by ctizens and the cty alke have pushed to erase this scar by removng the snuous roadways, consoidatng the space and returnng the grd Ths project does not take ssues with that pan but humbly suggests that the vods created by the project could be conceptualzed nto spaces that support urban redundancy and long-term stabiity, where hgh ground is precious and open space s lmted Secondary port storage, shppng fac ities temporary housng in emergencies fex space and consolidated open space are al viabe and much needed n the center of the city where residents n need can reman near their homes and low-ncome empoyees can access obs near their homes

Beow: Cross section aong Frankln Street from Back Cove’s proposed port to the historc port at the Fore River

Left secton: Perspective through proposed fsh market processng faclties in the Frankln Street gap




Above Proposed Plan for shippng, markets and housing to support the fshing ndustry The topography, exsting urban vods and proxmity to port frontage offer unparaleed reslence opportunites
FLOOD RISK & EMERGENCY SHELTER POTENTIAL SERVICE GEOGRAPHY OF PORT

COMMUTER SHED


EMERGENCY SUPPORT ANALYSIS

TOPOGRAPHIC ANALYSIS

LAND USE ANALYSIS

DESIGN PROPOSALS
Long-Range Strateg c Plan for C vic Infrastructure



Long-Range Strateg c T dal and Storm Water Fluctuation Study
Study
ndustry and Contam nat on History of Bayside
PERSPECTIVES ON PAYSON PARK
Aging in Place, in a Marsh
Kaelyn Bray, Sean Thiel
Mane s the odest state, by age, n the U S Adjacent to Portand s Payson Park, the edery and asssted ivng faciity sits within what was once a tdal marsh How can aging n place, n a marsh be thought about, both through retreat, but aso through a new concept of what a park can be? Can the edery ead the way to new modes of co-habitation that support a arger retreat and reformuation strategy that brng famlies, caregivers and eldery residents into great community? Can a new vision for Payson Park support a more messy and entangled relationshp between al three?

HybridPark,Neghborhood,Arboretum

Expandednotonofarboretumroomswith elderlyhousingatthercore

RoadwayCirculationandSatWater nfltratonManagement


Ederly eadingtheway nmgration



RESEARCH AS ADAPTATION
Spacesandcyclesfordfferentphasesoflfe FRESHWATERWERFORCOASTALMGRATIONMANAGEMENT


To form Baxter Bouevard, ocal resdents donated sections of their property along the Cove’s edge However the algnment of the bouevard does not match the high watermark, especialy n Payson Park The park once open saltwater, has been an intertidal zone for much of its recent hstory ony after 1980 becoming a fuly filed ste Fling began as pubic dumping grounds, and eventualy capped andscape Draft fling has resulted in ocalzed neighborhood foodng around Washngton Avenue, as the ow pont of the park has been shifted Further, the holdng tanks for the CSO mitigation plan under Baxter Boulevard at Payson Park provide short-term relef but long-term face serous chalenges as they sit n what is effectively a rock evee in a marsh, with remnant marsh and urban fl servng as an artifcial upand on one sde In paralel, the Roux Institute’s new research center rases questons about how design experments and scentifc study can evove from their current observational model to a makng/testng mode Payson Park’s hghy manipulated landscape offers an opportunty for a new type of landscape testing nsttute that wil guide the park and ocal residents into a wetter future, void of unusable space




YALE UNIVERSITY
COASTAL RESILIENCE & ADAPTATION: PORTLAND, MAINE & CASCO BAY
This seminar is developing research-driven and community-based preliminary proposals and RFPs for sustainable and resilient coastal adaptation that combines adaptive infrastructure, new public spaces and social, economic and environmental development in Portland, Maine, and the Casco Bay region. The seminar presents the coastal zone as a constantly changing and vulnerable ecotone inextricably bound up with the design decisions and unintended consequences of the Anthropocene era. Students are diving into comprehensive pilot projects that connect the three chosen transects of South Portland’s Bug Light Park, Portland’s Eastern Waterfront with its connections to Casco Bay and Portland’s Back Cove region.
Yale University’s contribution to the Envision Resilience Portland Challenge built on the strengths of its urban planning program and took the form of an intensive seminar course. Students began with extensive research into the geology, history, economy, infrastructure, transportation and cultural patterns of Portland, South Portland and the Casco Bay region. Their analysis also included international precedents, particularly from post-industrial waterfronts that have successfully integrated arts and culture into adaptive development strategies.To synthesize their findings and assess the region’s future relationship with Casco Bay, Professor Alexander Plattus introduced the concept of a regional transect a layered study that connected Back Cove, the Franklin Street corridor and the Foreside harborfront into a unified and resilient “Blue Corridor.” Students enthusiastically embraced this challenge, developing a series of collaborative diagrams and illustrated aerial views that captured the corridor’s potential as an adaptive and interconnected urban landscape.
One of the studio’s most compelling contributions was a large, vintage-style mural that distilled their research and design vision into a public-facing narrative for Portland’s future While the seminar format limited the development of detailed site plans, students proposed several imaginative and strategic interventions, including:
An experimental Lobstering Village on Peaks Island, designed to support local fisheries and research, with architecture inspired by the Haystack Mountain School.
A vision for Back Cove that anticipates marsh migration and integrates resilient landscapes deep into the Bayside neighborhood, reclaiming paved surfaces for ecological function.
A network of sponge parks along the Franklin Street corridor, linking the Blue Corridor to Kennedy Park and other public spaces
Though exploratory in nature, the Yale seminar produced one of the most holistic and forward-looking visions for the region. Through collaborative research and evocative design communication, the students outlined a compelling framework for the Portland peninsula’s resilient future
*This section features selected samples of work and does not include the full breadth of Yale University’s design proposals.
FEATURED THEMATIC AREAS


MAKING THE WATERFRONT WORK
Redefining East Portland’s Relationship with the Casco Bay
Stormy Hall, Kurt Huckleberry, Blue Jo, Livy Li
As the foca pont of the city’s economic actvities whether that be shipping, ocomotive manufacturng or lobstering the Eastern Waterfront is the core of Portland’s identity and culture The reputation of ths “workng waterfront” remains strong today, drawing toursts from around the country to experience a siver of a bygone ndustrial past that can stl be wtnessed n ts historc pers and the Narrow-Gauge Ralroad Now, the waterfront s facing mutipe chalenges that threaten to eradicate its historc character The largescae Foreside Deveopment, currently under construction ust north of the Mane State Pier looks as though t could be from ust about anywhere Most threatenng however, are the ong-term problems presented by climate change, which could submerge historic wharfs and cut of access to the waterfront altogether
We envision a future for Portland that reconnects its citzens to the Casco Bay whle addressing these threats to the waterfront Integral to the effcacy of the proect s the ntegration of multple transportation networks the Greater Portand METRO bus system, the Casco Bay Ferry Lnes and a new water tax that connects the Eastern Waterfront to Bug Lght Park n South Portand Wth a Portand Metro Lobster Card riders woud be able to trave seamlessly from South Portand to the Maine State Per before hopping on a Casco Bay Ferry headed to Peaks Isand al wth one card The frst step toward making ths a reaity woud be the estabishment of a water tax system that connects the Eastern Waterfront to South Portand va Bug Light Park










ExporeCascoBaywiththe






on a Casco Bay Ferry headed to Peaks Island al wth one card
Fg 3: The parking lot north of the Mane State Pier coud be replaced by a green space that woud extend the Olmsted-desgned Eastern Promenade southward The park could aso connect to Bug Light Park in South Portland through a new water taxi system
Fg 4: A obsterng vilage coud be paced withn an unused inlet that is part of the Peaks Island Land Preserve
Fg 5: The Maine State Per Seafood Hal woud connect toursts and Maners wth the ocal seafood industry, aigning with Portland’s new reputaton as a food city
Fg 6: The new park woud contain a partaly loodabe naturalzed coastlne, and a rased berm that woud doube as the peninsula-side termnus for the water tax whie provdng food-safe access to the new market hal
Fg 7: The obsterng vilage would be comprsed of dispersed, ight structures, connected by a series of platforms and walkways
Fg 8: The vilage woud foster a sense of communty through year-round usage by the ocal obstermen It could aso host seasonal educatona summer camps for loca kids, and a wnter program for loca colege students who conduct research into marine industry preservation and sustanabe expansion
Fig2
Toward this end, we propose repacing the current parkng lot ocated north of the Maine State Pier wth a partialy foodabe green space that would double as the peninsua-side terminus for the water taxi Adjacent to ths new park is the Maine State Per buidng Currently unoccuped, ths historc warehouse exsts n a prme location next to the Casco Bay Ferry Termnal We propose that, through a series of light nterventions ths buiding could become a food hal that showcases the burgeonng aquacuture ndustry of the Casco Bay Raising the floor leve of the warehouse by 4 feet woud alow the buldng to remain accessibe even n the event of a kng tde


Finaly, to set a new standard for sustainabe expansion, we magne the deveopment of an experimenta “lobsterng vlage” on nearby Peaks Island Bulding off of Maine s traditional ish house typoogy the “obstering vllage” aims to create a socal and workng space for loca lobstermen, aongside addtona programmng that addresses ocals and toursts both seasonaly and year-round Together, these nterventions woud operate as a network that not only preserves the character of Portand’s historc Eastern Waterfront, but also expands opportunites for Portlanders and toursts aike to enoy the natural spendor of the Casco Bay




BEYOND SOUTH PORTLAND
Forging
Connections on a Site of Future Development
Max Coolidge, Blake Harris, Yixing “Cindy” Liu
The Yard South Proposal, now withdrawn from zoning consideration, is a provocative take on an industria waterfront site, proposing to make it into a new housing development of unprecedented scale and density We are fundamentally sympathetic to the idea of bui ding dense hous ng, but believe the scope of the development must take into consideration the much broader implications of its positioning on South Portland’s shore ine, and the community and history of the city Our proposal posit ons South Portland as a locus between downtown and the Bay, arguing that over three distinct timesca es the site can be transformed into a dynam c new space for housing and economic growth
10 Years Yard South is ful y built out, and the shoreline, park, development and neighborhood are synthesized through a series of soft but deliberate transit ons Th s also ncludes pub ic programm ng space n the proposed hote and an integration with local educat onal institutions Progress is also made toward outward expansion of this model linking with the local neighborhoods and key stakeho ders.
25 Years South Portland is integrated into a blue-green corridor through continued shoreline restoration and creation of public space South Portland is tied into the Eastern Promenade to the north and the community college to the south, establishing a stronger connection between coast ines. Soi remediation, harbor traff c to people-focus over shipping and genera programmatic shift in coastline use progress s slowly made toward a future energy transit on
75 Years South Portland becomes central in Maine’s green energy plan A l oi term na sites are repurposed, many for distributing renewable energy generated from coasta wind This was made possible, in part, through better connections to the community college and loca institutions, whose academic expertise and innovation are driv ng economic growth on the waterfront
10 Years: Securing the Shoreline



75 Years: An Energy Transition

Bug Light, ooking out to the bay

Connecting the networks estabished in the 10 year plan into circuatory and ecological networks across the bay



In conclusion, we see th s proposal as the chance not just to develop one housing project, but to also spur a general improvement in the economy, public ife and qua ity of l fe of all of South Portland, through the design and structuring of key connections, spatia ly, logistically and economically.

A mix of programs across the site w l ensure diverse growth n future development
FRANKLIN STREET AND BACK COVE
A Blue Green Corridor
Eva Crutan, Olly Hoy, Millie Johnson, Daniel Kelly, Peter Martinka, Max
This project focuses on restoring lost green space fo lowing the planned redevelopment of Franklin Street, which wi l remove its central green corridor. The proposal establishes a new network of green connections l nking Back Cove to the ength of Frank in Street, strengthening ecological continuity and mproving pub ic access to nature
The mural presents an abstract vision of Portland’s future, capturing the city’s embrace of natural corridors integrated w th mixed-use streetscapes At its center, we see these green pathways connecting Back Cove to the Eastern Waterfront and extending across South Portland The islands feature a robust ferry system, linking an expanding network of housing and commercial areas In South Port and, the shorel ne is rec aimed for publ c use, symbolizing the c ty’s commitment to access ble, shared spaces The transition to clean energy is prominently high ighted, prompting thoughtful consideration of how to repurpose ex sting o l infrastructure This mural is meant to inv te a reflection on such critical questions and encourages proactive plann ng for a truly sustainable future



Coolidge, Livy Li
Lincoln Park
Bayside Trail
Back Cove Park
Pro



Back Cove was once imagined as the heart of the c ty, a scenic loop from wh ch businesses and homes rad ated, circ ed by a tree- ined, arterial road Frankl n Street, running north to south across the saddle of the Port and peninsula, connected the r dge of the hi l down to this amenity The 295 severed this tie when it was drawn across the nfil ed land north of the city, and ts ra sed berms and regiona importance make t a tricky urban barrier It a so has environmental effects; as king tides r se with sea leve , seawater ngress as we l as rainwater runoff poo beh nd it, flooding the low stretch of light industrial and commerc al sites on this s de of the city.
Perpendicular to this, Frankl n Street has grown as well; renewal saw its expansion to s x spaced-out lanes, a congested pedestr an barrier between the residential East End of the peninsu a to the denser west Ongoing mun c pa plans address this piecemea ; Frankl n is condensed so that its w de med an can grow the surrounding parce s, the interstate is fortified and the back cove tra l has water improvements that grow it as a dr v ng dest nation
We envis on a del berate pedestrian corridor that stretches over the hi l from Commercial Street, crosses a growing center of the city at the expanded Linco n Park and then fo lows Pear Street down the hil Moving pedestr an traff c off of northern Frank in provides shorter blocks a narrower, human-sca e street with two frontages and a shal ower grade for b cycle commuters and meets the highway at an amenable spot to cross over, rather than under the traffic A s mple pedestr an bridge flows from Pearl Street to the shore of Back Cove, where the anguage of it continues into the water as a Jetty imagin ng a future where r prap to the west catches sediment and grows sanctuary space for wild ife, wh le the seaward side of the Cove becomes n t me hosp tab e to sma l watercraft and even swimmers
The condensed Frankl n Street continues ts arter a ro e, but terracing down the course of it slows and manages runoff S mi ar swa es act through the city as partic patory projects, as much for performance as they are for ocal engagement with the water and educat on about the changes needed from the form of the city.

East of Frank in Street the thriving neighborhood surrounding Kennedy Park s engaged by connecting the well-used f eld visua ly to the pedestrian axis along the Bays de trail, and by a retreat of future res dent a zoning to Somerset and Fox Streets to estab ish an nland edge against the worst effects of future f ooding
By looking at Port and from north to south, we envision a Port and that balances ecolog cal hea th w th urban vital ty, wh ch measures its success by nt mate connection to the water rather than fortification aga nst it
Proposedconnectvty oBackCovefromdowntownasasteforresponsberecrea ion
Rainga densaongF ankinS reetcanactassma -scaedefensve n erventons
VewofwetandparkapproachngBackCove
Startngsmal scale,these nte ventonscanscaeovertme
Proposedvsiono KennedyParkas esi en mxed-usecommuni y
Visonofcommuntysto mwate gardensaongFrankinS reet


PUBLIC EXHIBITIONS
DESIGNS FOR LIVING IN A CHANGING CLIMATE
This multisite exhibition curated by local artist Brian Smith featured architectural and landscape design work by student teams in the 2024 Envision Resilience Portland and South Portland Challenge, alongside local artists. Projects addressed topics including sea-level rise, housing, infrastructure, transportation, ecology, equity, low-carbon materials and circular economies
Exhibited at Portland Public Library, then at South Portland Public Library, it showcased proposals deeply grounded in community input, aiming to offer hopeful, research-based visions for adaptation.
COMMUNITY CONVERSATION
Design students and community members shared insights from the 2024 Challenge Students presented research and proposals, fostering thoughtful dialogue on adaptation strategies and strengthening connections between academic exploration and local resilience efforts.
SHIFTING TIDES & EVOLVING LANDSCAPES
Presented at the SPACE Gallery, this installation juxtaposed creative design research with artwork by Maine-based visual artists. Seven artists worked in sculpture, painting, installation and mixed media, exploring emotional, cultural and speculative responses to climate change.
The work engaged with materiality and place and ran in tandem with the student design proposals, emphasizing resilience as both rooted in lived experience and oriented toward possible futures
Featured local artists were Benjamin Spalding, Lakota Sanborn, POSEY (aka Pamela Moulton), Haley Nannig, Ian Ellis, Michel Droge and Jordan Carey.


















COMMUNITY ENGAGEMENT
WHERE EVERY VOICE IS HE
GROUNDING IDEAS
The designs featured in this report are more t they are grounded in the lived realities of Port
Over the course of the semester, students imm communities, walking the sites, speaking with workshops that encouraged open dialogue.
Partners with deep local knowledge guided te culture and context, ensuring that proposals w also relevant and responsive. Each design refle an effort to translate community needs and as honor place while preparing for a resilient futu serves as both design exploration and a share
CONTINUING THE CONVERSATI
Even after the studio concludes, the conversa present their work back to the community thro conversations, creating space for dialogue, fee These events allow residents to see themselve perspectives and shape how ideas might evolv
For Envision Resilience, this feedback is invalu Envision Resilience Challenges and deepening students, it provides an opportunity to learn h beyond the classroom, grounding their design voices they will carry into their professional ca






CONCLUSION
The power of Envision Resilience is that you ’ re putting students into the world who will never think about these things the same again. They’ll bring to their practice this ethos of multidisciplinary thinking and innovations—that’s the enormous gift you ’ re giving these institutions.
— Julia Czerniak Dean and Professor, University at Buffalo
FALL SEMESTER REFLECTIONS

farther up the coast opened the door to new perspectives and allowed the building of strong relationships with an entirely new network of partners. This year also brought the largest cohort of participating universities to date, whose research and creativity further enriched the process Beginning this work in Maine underscored the adaptability and replicability of the Challenge model in different contexts, as well as the importance of grounding ideas in local knowledge and lived experience. Importantly, it represents only a first step. Envision Resilience will continue this momentum in the next Challenge year, returning to Maine this time in a different city to deepen and expand the conversation.
infrastructure, floating breakwaters, adaptive housing models that balance technical rigor with cultural, ecological and community values. Exhibitions in Portland, South Portland and at SPACE Gallery opened these ideas to public view and conversation Among lessons learned: Resilient design must be deeply informed by local knowledge; equity and justice cannot be addons, but need to be integrated from the start; iterative community engagement reveals both constraints and latent opportunities; and art and visualization are powerful tools for helping communities imagine resilient futures together These insights will shape future resilience planning and design approaches.

The design studio gave us the opportunity to solve a real problem in a real community. We leaned into a design solution that was inspiring and forward-looking, with the hope that it provided the community a different vision of what's possible.
DANIEL LIM; STUDENT, UNIVERSITY OF MICHIGAN

My students and I benefited in both tangible and intangible ways this semester that would not have been possible without your phenomenal work. From contextually sensitive studies that could have only been learned through site visits to an expanded appreciation and understanding of the role of landscape architecture’s engagement with local expertise and its impact on the formation of a design narrative, your program again supported this learning from many angles.

Like communities across around world, we are solving for something we ' ve never experienced before. And the Envision Resilience Challenge and its design ideation is a great way to spark conversation and inspire adaptive futures.
GAYLE BOWNESS; 2024 COMMUNITY ADVISOR

It’s been a pleasure to contribute to the Envision Resilience Challenge's broader effort to make resilience a tactile and meaningful dimension of coastal cities.
MICHAEL LUEGERING; ASSISTANT PROFESSOR, UNIVERSITY OF VIRGINIA
KRISTINE STIPHANY; ASSISTANT PROFESSOR, UNIVERSITY AT BUFFALO
ACKNOWLEDGEMENTS
THANK YOU!
The Envision Resilience Portland and South Portland Challenge was made possible through the collective energy, knowledge and generosity of an extraordinary network. We are grateful to everyone who contributed their time, expertise and imagination, helping us create a space where bold ideas and meaningful dialogue could flourish. This work reflects the power of partnership and the belief that together we can envision and continue building a more resilient future.
ADVISORS & PARTNERS
Kevin Battle
Curtis Bohlen
Gayle Bowness
Curt Brown
Chris Cary
Kevin Davis
Nell Donaldson
Bella Dziak
Judith East
Kai Fast
Rachel Fecteau
Rachael Harkness
Abigail Hayne
Ethan Hipple
Emily Hollyday
Maya Howard
Jon Kachmar
Troy Moon
Bill Needelman
Holly Parker
Tyler Plante
Mitchell Rasor
Dav d Reidmiller
Julie Rosenbach
Eli Rubin
Peter Slovinsky
Stephanie Sun
Katie Tims
Jesse Thompson
Alex Z pparo
Sienna Zuco
ASSISTANTS (STUDIO)
Jorge Ituarte Arreola
Andrew Castilleja
Shan He
Sida Tang
FACULTY
Michael Blier
Pamela Conrad
Lisa DuRussel
Patrick Hansford
Mark Lindquist
Michael Luegering
Alan Plattus
R chard Sommer
Jason Sowe l
Kristine Stiphany
Anne Weber
ORGANIZATIONS
Casco Bay Charters
Casco Bay Estuary Partnership
City of Portland Harbor Master
City of Portland Parks and Recreation
City of Portland Planning Department
City of Portland Sustainability Office
City of South Portland Planning Department
City of South Portland Sustainability Office
Creative Portland
Greater Portland Council of Governments
Gulf of Maine Research Institute
Indigenous Society of Architecture, Planning and Design
Island Institute
Juliette Films
Kaplan Thompson Architects
King Middle School
JURORS
Lesley Braxton
Jeff Carney
Sara Jensen Carr
Matthew Cunningham
Julia Czerniak
Kathryn Duff
Geoff Fritz
Shauna Gillies-Smith
Lisa Gray
Jamie Hark
Niema Jafari
Jason J. Jewhurst
Ryan Kanteres
Matthew Littell
Amy Magida
Kaki Martin
Milan Nevajda
Gretchen Schneider Rabinkin
Bob Rulli
Addy Smith-Reiman
Curt Spalding
Lauren Stimson
Julia Tate
Heather Walters
Life In Focus Photography
Linco n County Regional Planning Comm ssion
Maine Bureau of Resource Information and Land Use Planning
Maine Geologic Survey
Maine Governor’s Office of Policy Innovation and the Future
New England Ocean Cluster
New England Young Fishermens Alliance
PK Realty Management
Portland Housing Author ty
Portland Public Library
Portland Trails
PrintSynergy Solutions
Rasor Landscape Architecture
Ready Seafood
Remain
Schiller Coastal Studies Center
Simons Architects
South Portland Public Library
SPACE Gallery
Union Wharf Market
SPEAKERS
Hannah Baranes
Curtis Bohlen
Miriam Diddy
Kimberly Dowdell
Anjelica S Gallegos
Seth Go dstein
Ashley Krulik
Natasha Kypfer
Bryan C Lee Jr
Matthew Littell
Timothy Lock
Alan Organschi
Gretchen Schneider Rabinkin
Alan Ricks
Addy Smith-Reiman
Kishore Varanasi
Tama Whiting
STAFF & SUPPORT
Wendy Schmidt
Sandra Akufo
Carolyn Cox
Kate Deans
Karen Denne
Anne Dougherty
Anjelica S. Gallegos
Morris “Marty” Hylton III
Cecil Barron Jensen
Wendell T Joseph
Jenn King
Heather MacLeod
Claire Martin
Bob Miklos
Swati Pandey
Brian Smith
Charlotte Van Voorhis
Claire McElwain Williams
STUDENTS
CORNELL UNIVERSITY
Amanda Carmen Bower, Realm of the Rugged
Evanna Gao, Connecting Land, Sea, and People
Yin He, Liv ng Tidal
Peter K. Jenkins, The Point Parkway
Yinyue “Clare” Jiang, The Living Promenade
Yuhao “Tony” Jiang, Cove Guard Pro ect
Xueting J n, Connecting Bayside to the Bay
Chloe Long, Living with Water in Bayside
Nina Niu, Franklin Street: Portland’s Green Spine
Sam Rimm-Kaufman, Looking South
Yixuan Sun, Eco og cal Strategy for W llard Beach Restoration
John Cole Warner, Shifting Paths: Back Cove
Sicheng “Jack” Zhou, Sponge Her tage V llage
Xiaohan Zhou, Connect ng Bayside to the Bay
HARVARD UNIVERSITY
Qijia Chen, Reclaim + Reshape
Garrett Craig-Lucas, Social Shoa s
Wil a DeBoom, Co-Cropping Aquaculture
Shan He, Portland’s Forest Lab
Sakiko Isomichi, Intertidal Ecosystem
Tianzhen “Tim” Jia, The Future of Mobility
Alexandra Kupi, Living and Working with Water
Jein Park, Floating Hub
Kati Wiese, Upcycling the Block
UNIVERSITY AT BUFFALO
Anushka Ahire, Wi lard Beach: Living with the Tides
Chase Carpenter, Back Cove East: A Protected and Interconnected Waterfront
Gavin Carroll, Working Waterfront From Ports to Parks
Rishabh Chopra, Working Waterfront From Ports to Parks
Kielee Clement, Downtown South Portland: The Urban Sponge
Ian DeWald, Sprague Terminal and Forest City: Scaled Energy Transitions
Julia Ferone, Back Cove East: A Protected and Interconnected Waterfront
Satya Gangupata, Back Cove West: Toward Place-Based Research Labs
Andrew Hu, Downtown South Portland: The Urban Sponge
James Metzger, Wi lard Beach: Living with the T des
Ana Pereira, Eastern Promenade
Carol Recinos Luna, Back Cove West: Toward Place-Based Research Labs
Ian Simmons, Eastern Promenade
Nayarit Tineo, Sprague Terminal and Forest City: Scaled Energy Transit ons
Bobby Zhao, Willard Beach: Living with the Tides
UNIVERSITY OF MAINE AT AUGUSTA
Megan Brown, Community Center
Nolan Cartwright, Maritime Center & Co-op
Eloisa DeGroote, Parking Garage Towers & Transportat on Center
Suzie Felix, Floating Community
Kelsey George, Adaptive Reuse
Rohan Glendinning, Intermodal Trans t and Shorel ne Protection
Kaden Harrison-Billiat, Intermodal Transit and Shoreline Protection
Brennan Loewen, Floating Community
Marie Lough, Neighborhood Revita ization
Nicholas Smart, Ferry Terminal
UNIVERSITY OF VIRGINIA
Kaelyn Bray, Ag ng in Place n a Marsh
Amanda Devairakkam, Aquaculture and Back Cove
Charlotte Devine, A F u d Commons: Connecting People with Urban Waters
Allyson Gibson, Baxter Boulevard Bluff
Alyssa Levy, A Short Term Story on Affordable Housing in the Forest City
Simin L u, Aquaculture and Back Cove
Steffi Shah, Resil ence Through Redundace
Sean Thiel, Payson’s Land Lab
Madhura Vaze, Completing the Loop
Sheen Wang, Redundant Ports, Resilient Islands
UNIVERSITY OF MICHIGAN
Emily Brent, The Resilient Greenloop
Brooke Bulmash, Tank Futures
Grace Carbeck, The Resi ient Green oop
Christina Contreras, Welcome the Water
Hope Fryer, Floating Breakwaters
A exa Garnet, The Blueway
A ex Grainger, Welcome the Water
Ren Hoff-Miyazaki, The B ueway
Rachel Kerr, The Resilient Greenloop
Daniel Lim, Floating Breakwaters
Deliang Lyu, Tank Futures
Myles Markey, The Blueway
Kaia McKenney, The Resilient Greenloop
Kammer Offenhauser, The Blueway
Jayna Sames, Floating Breakwaters
Shiru Xu, Tank Futures
Sumire Yamada, Welcome the Water
Jing Yan, Tank Futures
Teresa Zbiciak, Welcome the Water
YALE UNIVERSITY
Max Coolidge, Beyond South Port and
Eva Crutan, Franklin Street and Back Cove: A Blue Green Corridor
Stormy Hall, Making the Waterfront Work
Blake Harris, Beyond South Portland
Olly Hoy, Franklin Street and Back Cove: A Blue Green Corridor
Kurt Huckleberry, Making the Waterfront Work
Blue Jo, Making the Waterfront Work
Millie Johnson, Franklin Street and Back Cove: A Blue Green Corridor
Dan Kelly, Franklin Street and Back Cove: A Blue Green Corridor
Livy Li, Making the Waterfront Work
Yixing “Cindy” L u, Beyond South Port and Peter Martinka, Franklin Street and Back Cove: A Blue Green Corridor
UNIVERSITY OF TORONTO
Jessica Pui Yue Chan, Idle Lots
Harir Goodarznia, S nk or Sw m
Yang Hu, Broadway & Greenbelt: South Portland L near City
Yipeng Huang, To Circulate the Historical Heart
Jared Leslie, From Hinterlands to Harbour
Julia Miclaus, Do (Not) Disturb: Hosp tality on the H ll
Elizabeth Nadeau, Lasting Legacy
Avondale Nixon, The Fau ts of Asphalt
Laura Tobin, Island AquaCamps
Cindy Xin King Ye, Repair the Tear
APPENDIX
The following materials provide context, references and supporting documentation to supplement the main content of this report.
ENVISION RESILIENCE TEAM

WENDY SCHMIDT Founder
Envision Resilience

WHO WE ARE
We are nonprofit leaders, artists, urban strategists, historic preservations, academics, dreamers and doers
At our core, each one of us is a resident of a community we call home. That we steward and care for
It is this collective understanding of community paired with the belief of resilient and adaptive climate futures that drives our work.

CECIL BARRON JENSEN
Executive Director Remain

CLAIRE MARTIN
Executive Director Envision Resilience

ANNE DOUGHERTY
Project Manager Remain

Finance Manager Remain

DEANS
Operations Manager Envision Resilience

Design Studio Manager Envision Resilience

Envision Resilience
Envision Resilience
Community Engagement Manager Envision Resilience

Envision Resilience
Research Associate Envision Resilience

Envision Resilience
KATE
BOB MIKLOS Advisor
WENDELL T. JOSEPH
CAROLYN COX Advisor
CHARLOTTE VAN VOORHIS
MORRIS “MARTY” HYLTON III Advisor
JENN KING
SANDRA AKUFO
ANJELICA S GALLEGOS Advisor
GLOSSARY OF TERMS
CHALLENGE BRIEF
A document outlining the focus, principles and sites of the Envision Resilience Challenge. Faculty respond with proposals, and selected studios use it as the foundation for their design work.
CHALLENGE SITE(S)
Designated geographic locations where climate impacts and resilience opportunities are studied. Sites anchor student research and proposals, linking design thinking to specific communities and landscapes.
COMMUNITY PARTNER
A subject-matter expert or local community mentor who provides guidance, feedback and perspective to student teams throughout the Challenge, helping to connect academic research with community priorities and real-world applications
DESIGN PROPOSAL
A student-generated vision for climate adaptation that integrates research, local knowledge and creative problem-solving, offering potential strategies for resilience in the designated Challenge sites.
DESIGN STUDIO
The academic setting in which undergraduate and graduate student teams develop Challenge responses, blending coursework, collaboration, research and design practices under faculty guidance.
ENVISION RESILIENCE
Host organization of the Envision Resilience Challenge, working to advance innovative planning and design in the face of climate change through student and community partnerships.
ENVISION RESILIENCE CHALLENGE
The signature program of Envision Resilience, the Envision Resilience Challenge is an annual place-based, multi-university design studio that takes place in communities at the forefront of climate challenges throughout the Northeast.
INDIGENOUS KNOWLEDGE SYSTEMS INITIATIVE (IKSI)
A program within Envision Resilience that uplifts Indigenous knowledge, voices and leadership, emphasizing the value of long-held cultural perspectives in shaping community-based climate adaptation.
JUROR
An invited reviewer who evaluates student proposals, offering critique, perspective and recognition based on experience in design, climate science, policy or community leadership
RESILIENCE
The collective capacity of communities, ecosystems and infrastructure to adapt, recover and thrive amid climate change impacts, emphasizing equity, creativity and long-term sustainability.
REVIEW
A structured opportunity for students to present their proposals to faculty, advisors, jurors and community partners, receiving feedback to refine their work. In the Challenge, these reviews take place at midterms and the end of the semester.
TRIBAL LAND ACKNOWLEDGEMENT
A formal statement recognizing the Indigenous peoples whose ancestral lands encompass the Challenge sites, honoring their enduring presence, stewardship and sovereign rights.
ADDITIONAL INFORMATION

REFERENCES
While a complete compilation of maps, tools, reports and reference materials can be found at www.envisionresilience.org/portland-and-southportland-resources, the full scope of research, conversations and community knowledge that informed and shaped the Envision Resilience Challenge and its outcomes is too comprehensive to document.
Of note, the state’s climate action plan, Maine Won’t Wait, and the joint climate action plan, One Climate Future, developed by the cities of Portland and South Portland, both played a central role in shaping the 2024 Envision Resilience Challenge. Strategies and targets provided a clear framework, informing student research was rooted in statewide and regional goals. Drawing from this plan allowed for alignment of local sitespecific proposals with broader regional priorities, strengthening the connection between design exploration and Maine’s long-term resilience and planning efforts.
IN THE NEWS
Envision Resilience is currently archiving, documenting and publishing all studio work to date (2021-2025). Once published, the studio reports will be readily available and accessible for order and to explore online.
STAY INVOLVED
You can stay up to date with programs, announcements and publications by signing up for the Envision Resilience newsletter at envisionresilience.org as well as following us on social media.

