












![]()













I am a passionate and dedicated designer with a deep appreciation for every stage of the design process from the precision of architectural detail to the broader systems of urban environments I’m driven by the belief that thoughtful design can shape meaningful, inclusive experiences, and I enjoy exploring this through both spatial design and visual communication. With strengths in creative problem-solving, collaboration, and clear visual storytelling, I approach each project with curiosity and intention. Balancing a rigorous academic workload alongside multiple jobs and leadership roles has strengthened my work ethic, adaptability, and commitment to excellence I am eager to contribute to design teams where I can bring both creativity and diligence to impactful, people-centered work.


















This Building is a center for the community with an emphasis on creativity and dance. With a dedication to movement, this building serves as a civic hub that connects physical and creative expression. Located in the outskirts of the city, nestled in the valley surrounded by mature foliage and hiking trails adjacent to a residential community.





















GRID STEEL STRUCTURE COLUMN GRID
COLUMN GRID STEEL STRUCTURE + CONNECTIONS


STREET CENTER LINE
BOULDER TRAILS


SWELL POTENTIAL
POTENTIAL MASS MOVEMENT
LOW DENSITY RESIDENTIAL


OPEN SPACE OPEN SPACE DEVELOPMENT RIGHTS
(RL-1) RESIDENTIAL LOW


(P) PUBLIC CITY LIMITS













This work explores graphic design as a way to tell stories about place, people, and environment. Through layered collages, material studies, and mapping, I translate ideas into visuals that feel both analytical and expressive. Each piece captures relationships between landscape, community, and the built environment while also focusing on composition, color, and clarity. These graphics act as a bridge between concept and communication, making complex ideas more visual, engaging, and easy to understand.









This graphic presents a continuous ecological transect across the American West, illustrating the relationships between geology, climate, hydrology, and biodiversity. Moving from mountainous regions through desert systems and into canyonlands and riparian environments, it highlights how environmental forces shape both terrain and ecological life.
Layered data including precipitation, temperature, elevation, and land use is integrated to show how each system functions individually and as part of a larger network. Species and vegetation are embedded within each zone, emphasizing the connection between environmental conditions and habitat
Through collage and diagrammatic mapping, this work translates complex environmental systems into a clear visual narrative, reflecting an interest in landscapes as dynamic and interconnected systems.
This collage explores the layered identity of Nordhavn, Copenhagen, through the intersection of community, materiality, and waterfront urbanism. It visualizes the coexistence of past, present, and future systems, bringing together historic industrial elements, current patterns of public life, and emerging visions for sustainable urban development.
Archival imagery and traditional materials reference Nordhavn’s industrial past, while contemporary photographs capture everyday activity cycling, gathering, and waterfront use grounding the project in present-day experience Forwardlooking elements, including sustainability icons and evolving infrastructure, suggest a future shaped by resilience, connectivity, and environmental responsibility.
Through a combination of mapping, collage, and graphic abstraction, this work reflects an interest in understanding cities as dynamic systems, continuously shaped by time, use, and design.





























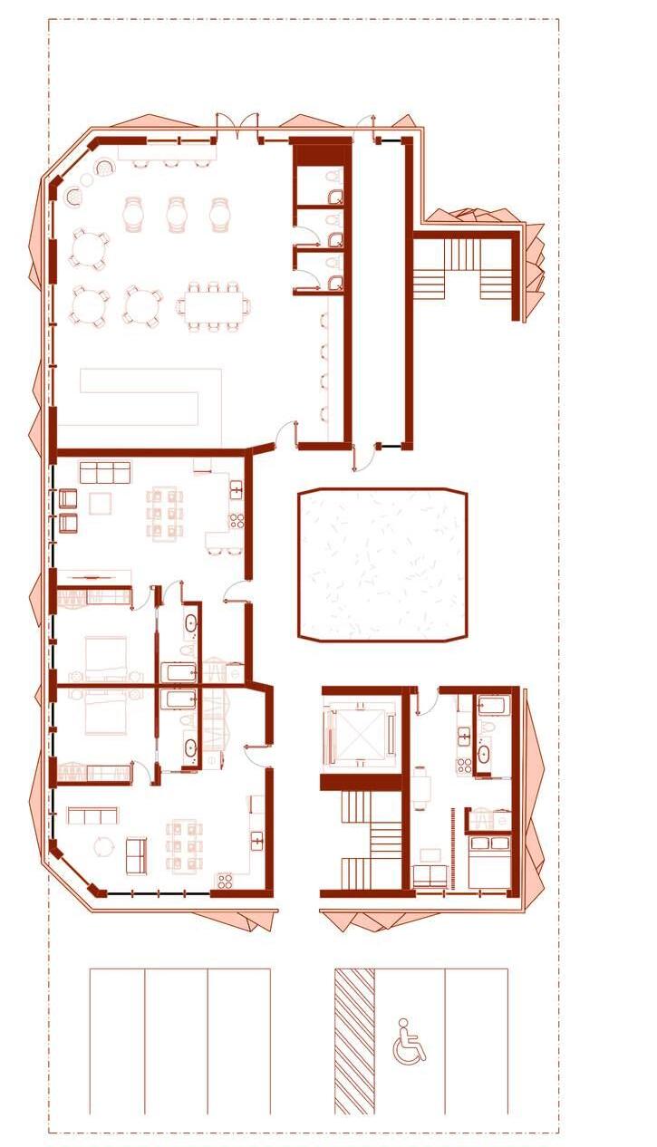
Fracta is a sculptural apartment complex that blends housing, community, and sustainability into a single cohesive system. Offering a range of unit sizes and an integrated café, the project supports diverse lifestyles while encouraging connection. The angular façade transforms the building into a living art installation, while ADA accessibility ensures equitable use throughout. Solar strategies are embedded into the design, reinforcing a commitment to environmentally responsive architecture.












UNIT TYPOLOGIES






Solar panels were selected as the primary sustainability strategy for this project due to their ability to harness renewable energy while seamlessly integrating into the architectural form.
By leveraging on-site solar generation, the design reduces reliance on external energy sources and lowers its environmental impact. This approach reflects a commitment to designing self-sufficient systems that respond to both environmental conditions and long-term sustainability goals



The form of the building is driven by a process of strategic subtraction and articulation, transforming a simple mass into a dynamic system of terraces, openings, and faceted surfaces Each shift in the volume responds to programmatic needs, bringing light deeper into the units while creating moments of outdoor space and visual connection.
The angular façade emerges from this process, acting as both a spatial and environmental mediator framing views, controlling light, and giving the building a distinct identity within its urban context.













I approach graphic design as a powerful tool for storytelling, clarity, and impact. Through my work with Academic Innovation Programs, I have developed logos for Coursera courses, contributed to large-scale branding initiatives, and designed infographics presented at the highest levels of the University of Colorado, including for the university’s president.
My ability to translate complex ideas into compelling visual narratives has been recognized through a school-wide competition, where my map design was selected as a winning entry. I bring a strong eye for detail, a deep understanding of visual communication, and a commitment to producing work that is both thoughtful and visually striking.




AMERICAN INSTITUTE OF ARCHITECTURE STUDENTS: EVENT POSTER
AMERICAN INSTITUTE OF ARCHITECTURE
STUDENTS: EVENT POSTER
AMERICAN INSTITUTE OF ARCHITECTURE STUDENTS: EVENT POSTER



TRANSFORMATIVE STUDENT VOICE: ZINE FOR COMPANY EDUCATION
ACADEMIC INNOVATIONS PROGRAMS: INFOGRAPHIC - MADE FOR PRESIDENT OF CU
OVERALL GRAND PRIZE WINNER: 2025 CU MAPATHON