Skip to main content

PORTFOLIO

Page 1


Design of Coexistence and Boundaries : Portfolio designed by Yu ki Osawa

Design of Coexistence and Boundaries

共在する境界を シンプルな形で整える。

既にそこに在るものを整えるデザインには、何もないところから完全に新しく手

を加えるデザインよりも豊かさに奥行きがあると考えます。

奇抜なものや珍しいものに意識が行きやすいですが、本当の豊かさは私たち の目の前にあり、そこにただ在る『共在性』にあるのではないでしょうか。

共在関係の『境界性』を二項対立にすることなく、曖昧さを整えること。

既にある豊かさに気付けるような、日常に溶けこむ形を創造していきたいです。

4 | 大事にしていること

[competition] [product] [research] [project]

6    境界図譜      4年 38   食卓の情景      4年

60   時層の住処      3年

74   転写する記憶     3年

110   通りの家       2年

118   風景をつなぐ輪郭   3年

130   共生の窓辺。     4年

146   廻る茅舎       3年

158   境界に生きる     3年

170   SWITCH HOUSE  3年

178   木漏れ日の屋台

180   Wota-gon       4年

境界図譜

The illustrated book on boundary space

今回私は建築物が持つ境界性について調査・分析を 行いました。

私的領域を持ちながら他者と緩やかに繋がれる適切 な距離感をもつ空間性は潜在的に私たち日本人は居 心地良さを感じます。

昨今の情報社会ではSNS での過剰な人の距離感を持 つ一方で現実での繋がりは増々希薄化し、両者の繋 がり方には大きな差が生じています。そのため空間 というヒト・モノ・コトの基盤の境界性を整えるこ とが必要であると考えます。

心地よい境界性のある空間を分析し、私自身の設計 手法に応用することが本研究の目的です。

この項では境界図譜の概略を紹介します。

『境界』の調査・分析方法

本研究として境界に関する書籍({境界」から考える住宅空間のつなぎ方を読み解 く/ 大塚篤・是永美樹 著等)や新建築住宅特集を参考に、現代住宅事例を研究・ 調査を行いました。

『境界』の分析方法としては主に、右図の4つの方法を選択します。

日本建築特有の境界空間要素を抽出や、建築事例のトレースにより現代事例への 再解釈や反映のされ方、空間の境界操作の特性と関係性を探りました。

8 | 境界図譜

[a]

[b]

日本建築の境界要素の分析

[c]

[d]

日本建築と現代事例の 比較分析

現代事例の境界空間分析

境界をつくる部材の分析

日本建築の『伝統的境界』の考察

伝統的な日本建築が持つ境界性を『伝統的境界』と定義します。

私は、伝統的境界には7 つの建築要素(縁側、土間、坪庭、屋根・天井、床、壁と窓、 仕切り)が含まれておりこれらの要素が相互的に作用することで私たちが居心地 よさを覚える空間性が成り立つのではないかと考えます。

7つの要素は伝統建築にみ適応されるのではなく、要素を基本として現代建築に 反映されているのではないでしょうか。

右:伝統的境界の7 つの建築要素 (縁側、土間、仕切り、床 壁と窓、屋根・天井、坪庭)

『現代的境界』による

『伝統的境界』の再解釈

現代の建築が持つ境界性を『現代的境界』と定義します。

要素がどのように再解釈されているのかを分析し、要素ごとにダイアグラム化 してまとめました。

反映された要素によって緩やかに環境や人同士の距離感を生み出し、あいまい な空間性を成立されています。

未来の境界は関係性に応じてより多様な距離感を生み出していくと考えます。

[縁側]

内外に狭間に設けられた室内空間の縁である縁側は、内を延長した場所とも、外 を引き寄せた場所としても解釈できます。

縁側空間では人の動線や日射の調整、室の拡張、収穫したものの加工作業など、様々 な機能の場として活用されていました。

現代のでも、テラスや廊下などに変化しながら、人の居場所となるバッファー 空間として反映されています。

[内外の一部に見立てたバッファー空間]

[平面の構成]

[内外の一部に見立てたバッファー空間]

[平面の構成]

[土間]

かつての土間は、住宅を構成する諸室のひとつとして比較的大きな割合を占めて いました。

土間は暮らしに必要でも床上では不都合な、火や水を使った調理や、ごみや埃の 出る作業などを、室内で行うことができる場所でした。

地面のような三和土の床仕上げや小屋組みを露した高い天井や吹き抜けなどの要 素は、現代住宅にも垣間見えます。

[室内を通り抜けるような外]

[室内でも外を感じさせる土間]

日本の伝統的な住宅には、床に段差を設けたり、床の仕上げを切り替えるなど床 によって領域を獲得するものが見られます。

壁のように明確な境界面ではなく、床の縁に沿って曖昧な空間の輪郭を感じさせ ます。

現代の住宅事例でも、ワンルーム内で公私の空間を分けたり、細切れの小さな空 間の集まりとして全体を構成する方法として時折見られます。

[ずらした階層]

[床に見立てた家具]

[ワンルーム空間を分ける床] [断面の構成]

[仕切り]

「仕切り」は間仕切り壁のように空間を閉ざすばかりではなく、襖や障子などの可 動間仕切りや固定されていても透過性のある格子などがあります。

そのときの環境や心理状態から柔軟に空間を可変して、空間同士のつなぎ具合を 調整することができます。

現代の住宅事例でも空間の柔軟な可変性は垣間見れます。

[フレキシブルに可変する仕切り]

[剛性のある仕切り]

[壁と窓]

茶室の壁と窓に注目すると、一旦空間を包み込み、開口の背景となるのが壁であ り特定の場所を照らしたり、外の景色を垣間見せるのが、元来の窓の役割です。

現代の住宅事例では窓の位置やサイズで周辺環境と調整したり、窓辺自体を居場 所に設けたものなどが見られる。壁も塞ぐだけでなく、外壁性能と透過性をあわ せもつ形式が見られます。

[ハイブリッドな壁]

[半端丈な窓]

[居場所に設えた窓辺]

[内同士をつなぐ室内窓]

[屋根・天井]

かつての農村部の民家では、1枚の大屋根が、その下の土間や広間、

縁側などを一体にまとめていました。また茶室空間に目を向けると、天井形式の 組み合わせで客座や点前座、床の間などの領域の違いを示しています。

現代の住宅事例でも、建築全体を統合する輪郭を描き出したり、ワンルーム空間 を小さな領域に分節する境界形式の手法が見られるます。

[空間をまとめる屋根・天井]

[空間を分ける屋根・天井]

[居場所に見立てた屋根の中]

坪庭を内包する住居の形式は、採光・通風などを主な目的として、本来外周にあ

るべき外との境界面を内側に確保する仕組みを持ちます。それによって限られた 室内空間のかたわらに、広がりや奥行きを生み出します。

現代では坪庭のような空間を挟んで、室同士を関係づけたり、回廊的な坪庭を周 辺環境とのバッファーとする形式が見られます。 [坪庭]

[周囲にまとうような坪庭]

[外形に内包された坪庭]

現代建築事例における
『境界の対応関係』ごとの図解

現代建築事例の境界の関係性はおおまかに6種類(内と外の境界、内と内の境界、 機能をもつ、窓辺を居場所にする境界、家具・造作と一体化した境界、多様なス クリーンによる境界)に分類しました。この章では45の住宅事例のトレース分析 を元にそれぞれの種類に分類分けと境界性の特徴、適応される伝統的境界の要素 をまとめています。

内と外の境界

内と内の境界

機能を持つ境界

窓辺を居場所にする境界

家具・造作と 一体化した境界

多様なスクリーンの境界

伝統的境界 ●

of traditional boundaries in architectural examples

現代建築事例における『伝統的境界の再解釈』系譜

● 01. カーザ・リベラ (西森事務所)

● 02. アシタノイエ (小泉雅生/メジロスタジオ)

● 03. 軽井沢離山の家 (横田典雄+川村紀子/CASE DESGIN STUDIO) ● 04. 窓の家 (吉村靖孝建築設計事務所)

● 05. 森のすみか (前田圭介/UID) ● 06. House N (藤本壮介建築設計事務所) ● 07. 八ヶ岳の別荘 (千葉学建築計画事務所) ● 08. 能代の住宅 (納屋学+納屋新/納屋建築設計事務所) ● 09. 南の家 (八島正年+八島夕子/八島建築設計事務所) ● 10. 綴の家 (植木幹也+植木茶織/スタジオシナプス) ● 11. にわのある家 (近藤哲雄建築設計事務所) ● 12. だんだんまちや (アトリエワン)

● 13. ノラ・ハウス (東京工業大学塚本研究室+アトリエワン) ● 14. トラス下の矩形 (五十嵐淳建築設計) ● 15. ハウス・アサマ (東京工業大学塚本研究室+アトリエワン) ● 16. 川口邸 (保坂猛建築都市設計事務所) ● 17. 比叡平の住居 (タトアーキテクツ/島田陽建築設計事務所) ● 18. 2004 (中山英之+名和研二) ● 19. 方の家 (武井誠+鍋島千恵/TNA) ● 20. 矩形の森 (五十嵐淳建築設計) ● 21. House H (藤本壮介建築設計事務所)

● 22. 桜台の住宅 (長谷川豪建築設計事務所) ● 23. 光の郭 (川村敦史+川村まゆみ/エムエースタイル建築計画) ● 24. IS (渡辺真理+木下庸子/設計組織ADH) ● 25. 世田谷S (都留理子建築設計スタジオ) ● 26. pallets (駒田剛司+駒田由香/駒田建築設計事務所) ● 27. ギタンジャリ (椎名英三建築設計事務所) ● 28. 緑縁の栖 (川村敦史+川村まゆみ/エムエースタイル建築計画) ● 29. 川西の住居 (タトアーキテクツ/島田陽建築設計事務所) ● 30. 北鎌倉のような家 (佐藤浩平建築設計事務所) ● 31. 後山山荘 (前田圭介/UID、藤井厚二(原設計)) ● 32. 森のドールハウス (早草睦恵/セルスペース) ● 33. 永山の家 (丸山弾建築設計事務所) ● 34. 野沢の家 (藤岡新/プラッツデザイン)

● 35. s house (松野勉+相澤久美/ライフアンドシェルター社)

● 36. Blanks (稲垣淳哉+佐藤哲史+永井拓生+堀英祐/Eureka) ● 37. U&U House (塚田眞樹子建築設計)

● 38. 白い箱の家 (高安重一+添田直輝/建築研究室 高安重一事務所) ● 39. HOUSE YK/Islands (赤松佳珠子/CAt)

● 40. スケルトンウォール (濱田修/濱田修建築設計事務所) ● 41. 六日町の家 (奥野公章/奥野公章建築設計室)

● 42. ナチュラルスラット (遠藤政樹/EDH遠藤設計室+池田昌弘/MIAS) ● 43. 富ヶ谷の住宅 (井上洋介建築研究所)

● 44. 平塚の家 (甲村健一/KEN一級建築士事務所)

● 45. キリのキョリのイエ (小島光晴/小島光晴建築設計事務所)

reinterpretation of traditional boundaries in architectural examples

境界を持つ部材

境界をあいまいにする方法は空間 操作だけでなく、選択する部材を 組み合わせることで成立する。こ こでは、境界部材を羅列して取り 上げます。

[金属スクリーン]

[乳白スクリーン]

今回私は建築物が持つ境界性について以上のように調査研究を行いました。この 調査研究で明らかになったことは大きく3つあります。

1つ目は、現代の住宅事例は伝統的な日本建築との関係性が切り離されているの ではなく、日本建築の境界要素を現代に反映されていることです。2つ目は、曖

昧な境界性は日本建築の境界要素が複合化されることで生み出されることです。

3つ目として、空間操作だけでなく材質によっても境界性に影響を及ぼす可能性 があることです。

この研究調査を元に、今後の自分自身の建築設計に応用したいと考えています。 総括

暮らしを小さいところから丁寧に考えることに興味があります。

『食卓の情景』では先の『境界図譜』による境界空間の操作や素材の使い方を 参考に、東京都中央区佃島の歴史的な文化性と密接した土地性に寄り添った 設計を行いました。

また『時層の住処』では現代の気候問題の現状を踏まえ、東京都八王子市の 豊かな土壌に着目した環境型住宅の設計を行いました。

最後に『転写する記憶』では東京都吉祥寺ハモニカ横丁の起源であるヤミ市 の存在肯定をしながら、木密に残る暮らしの記憶を継承するようにエリア再 編とそれに伴う小さな建築を設計しました。

右:「食卓の情景」木架構と屋根検討時のスタディ模型 [project] では、学校で取り組んだ設計課題から抜粋した作品を紹介します。

食卓の情景

Scene at the Dining Table

私たちは家に帰ると家族みんなで『食卓』を囲い、

あんしんする料理を通じて家族愛を深め合った。

私たちは部活終わりに友達と『食卓』を囲いたっぷ りな料理を通じて友情を深めあった。

私たちは大切な人と『食卓』を囲い、やさしい料理 を通じて愛情を深めあった。

私たちの傍には『食卓』がある。

私たちを取り囲む境界を『食卓』が適度に広げ関係 を深め合ってきたのではないだろうか。

今回の敷地である東京都中央区佃島は、昔ながらの 街並みと文化が色濃く残り、地域住民と密接した関

係を持つ土地である。

そのような密接した地域住民と家族の関係性を『ひ とつの大家族』と解釈し、『みんなの食卓』を通じて 緩やかに大家族が結ばれ、佃島の風景が未来に持続 できるような、ささやかな手助けをする住宅を提案 する。

4年前期設計課題

右:計画断面詳細パース(S=1/60)

佃島の特徴的な密接した周辺環境を 住宅内部に取り入れるよう建具と階 高で共在関係を調整する。今後の増 改築の余地のあるシンプルな計画。

食卓の情景

研究調査を元にした住宅設計

所在地  東京都中央区佃島

用途   専用住宅

主体構造 木造

敷地面積 65.4㎡

建築面積 39.9㎡

延床面積 95.3㎡

A

右:周辺の建物と連続した景観のある佇まい。

佃島に点在する町屋の屋根形状や土間や仕切りの 要素を引用することで、土地に根付いた佇まいを 生む。

生活の気配が路地に入り込む佃島のケ

敷地は東京都中央区佃島に位置します。隅田川にほど近い佃公園・広場に面して おり、水辺の先には佃船溜の景観が広がります。背後に広がる木造密集市街地の 親密なスケールと住居の隙間にできる路地が入り込むような他者の暮らしの気配 を感じられるような敷地です。

盆踊と住吉神社例祭による佃島のハレ

佃島には佃島盆踊りと住吉神社例祭の2つの祭りがあります。佃島盆踊りは、櫓 から渡された薄明かりの提灯の下で、太鼓のリズムと踊り唄にあわせる踊りで あり、東京都指定無形民俗文化財に指定されています。また住吉神社例祭は3年 に一度本祭がある由緒ある祭りであり、神輿を船に乗せて 氏子地域を巡る船渡御 (ふねとぎょ)が特徴的です。

[concept]

佃島の地域家族が食卓を囲む家

家族形態の時代による変化や佃島のハレとケが混合する地域特性を踏まえて、『佃 島の地域家族が食卓を囲む家』をコンセプトに設計しました。佃島の密接した地 域住民同士の関わり方をひとつの大家族の形態と解釈し、食を媒介として佃島の ハレの日だけでなくケの日でも地域と家族が緩やかなひとつながりの関係を持ち ます。地域コミュニティが未来に持続する住宅提案です。

ハレとケを往来する地域食堂

小学1年生の長男(6)地域食堂を営む母(38)、敷地近所で大工をしている父(40) の3人家族が住まい手です。長男の小学校入学に合わせて、祖父母が住んでいる 佃島の土地に移住しました。1階に併設した地域食堂では食事の提供だけでなく、 まちのコモンスペースに活用され、親密な関係性の人は2階まで地域食堂を拡張 して暮らしが地域に溶け込みます。

研究調査から引用した
『伝統的境界の要素』と『境界の関係性』

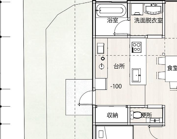
計画敷地の背後の町屋建築には特に『土間』と『仕切り』の伝統的境界の要素があり、 中でも上図4つの境界要素を取り上げます。佃島の周辺環境を取り込みながら外 部環境と内部環境の緩衝作用を及ぼす『内と外の境界』、家族同士を適切な距離を 保ちつつも家族を緩やかにつなげる『内と内の境界』を再解釈して設計します。

佃島の情景を取り込む緩衝帯 (土間の引用)

佃島地域の情景を取り込むようなみんなの土間を挿入します。周辺環境と内部空 間を緩やかに隔てて祭りの際だけでなく、日常的に地域の人や外部から来た人を 招き入れてコミュニティを生み出します。また敷地形状に沿う形態により周辺環 境を誘引します。

緩やかな距離感をもたらすスクリーン

(仕切りの引用)

佃島地域では生活が外に溢れ、いつも他者の生活音が聞こえるため完全に隔てら れておらず、適度な距離感で繋がっている地域特性をそのまま住空間に引き込み ます。佃島地域の人々と家族、家族同士を緩やかに隔てて適度な距離感を生み出 すために、ガラス、格子、布、板面の4つのスクリーンを設えます。そうすることで、 適度な距離感を生むだけでなく場に抑揚を生み出します。

四季の移ろいに適応する仕切り

全面道路の窓に設えた御形すだれと内部窓や室内間仕切りを開閉することで四季 に応じた環境の変化を許容します。御形すだれによって不快グレアを軽減させな がら風を取り入れ、布貼りの建具の開閉により通風と照度を安定して保たせます。 また、住宅内部に取り入れた通風は上部の天窓を出口とする重力換気により排出 されます。

敷地から導かれる
住宅のボリューム配置

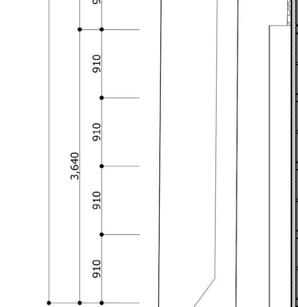
狭小敷地の建築面積を最大限に活用します。検討を行った結果、間口1000mm× 奥行き910mmの木造グリッド時に建築面積を最大限に確保できるため、その数値 を採用しました。敷地周辺には大小の隣地ボリュームが存在するため、風景が連 続するように住宅のボリュームを整えます。また、周辺町屋の屋根形状に合わせ て屋根をかけることで佃島の土地に根づいた佇まいにしました。

暮らしの変化を許容する木架構

敷地形状のまま周辺環境が引き込まれるような感覚を演出するため通常の木造よ

りも短い910mmスパンで柱を、その間に間柱を配置基準とする木架構配置にしま した。この木架構を手がかりとして暮らしの変化に適応していきます。

狭小住宅の収納を確保するための棚の拡張や机の設置、ハンガーレール、子供の 成長や暮らしの思い出を記す身長柱のように多様な使われ方を想定しています。

棚の拡張

ハンガーレールの設置

カウンターの設置
思い出を記す身長柱

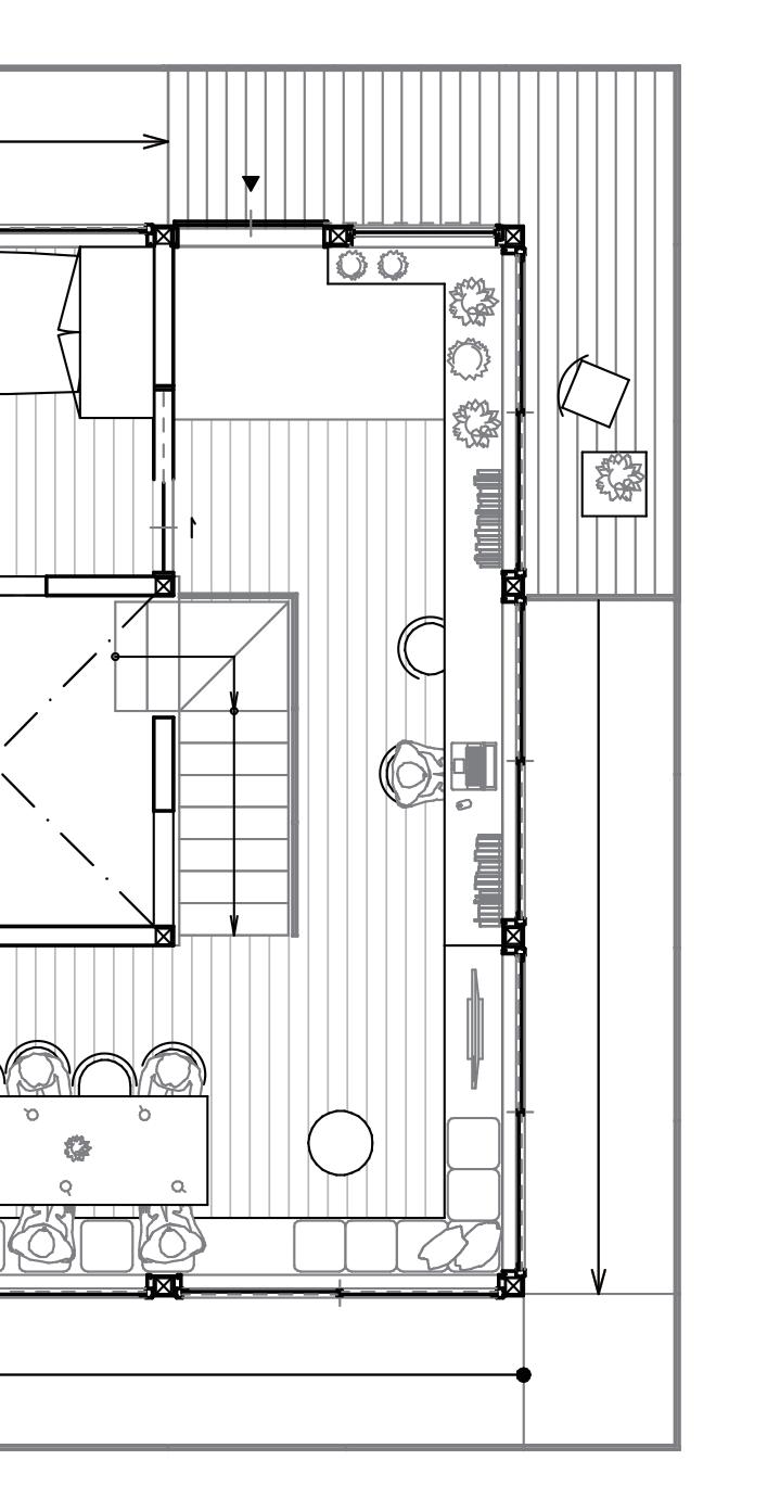
1階平面詳細パース S=1:80

右ページ:みんなの食卓から南側外 を見る。佃島の情景を切り取るみん なの食卓は、見通しが良く誰でも ふらっと立ち寄ることができる。

右:みんなの居間から吹抜を見る。

こもり感ある畳敷きのみんな居間は 土間の吹抜けにより上下階の関係を 持つ。

右:家族の間から夫婦の間を見る。

軽やかな仕切りで連続する3階は、

場を完全に隔てずに緩い関係で結ば れている。

時層の住処

House of time layers

私たちは子供の頃、野原を駆け回ったり魚釣りや 昆虫取りをするように常に自然に囲まれて過ごし てきたではないっでしょうか。しかしこのまま環 境の劣悪化が進んでしまえば、私たちが経験して きた豊かな情景を失ってしまうかもしれません。

この現状を受け入れて今ある環境に適応していく

ためには設計者としてミクロな視点(敷地環境) とマクロな視点(地球環境)を横断して考えてい く必要があります。本計画敷地である八王子地域 は資源に恵まれており完全に新しく住環境を創り 出すのではなく、既にある土地の豊かさと向き合 います。敷地環境を育む行為が巡り廻って地球環 境を育む行為につながる環境と人が共生する家を 提案します。

3年後期設計課題

バイオクライマティック住宅

所在地  東京都八王子市

用途   専用住宅

主体構造 木造(一部版築)

敷地面積 389.29㎡

建築面積 101.82㎡

延床面積 159.57㎡

左:周辺の家々のボリュームや景観から導かれた 謙虚な佇まい。敷地目の前の桜並木を住宅内部に 誘引しながらも庭の木々により住宅内外の境界を 調整している。庭に植えられた実のなる木々は、 近隣の環境に彩りを与える。

桜並木が川沿いに広がる 東京都八王子市片倉町

敷地は東京都八王子市片倉町に位置します。敷地の目前には兵衛川が流れており、 春になると川沿いの桜並木のトンネルができます。計画敷地は閑静な住宅街と喧 噪的な国道16号沿いの結節点にあるため国道沿いからの視線を遮断し、目の前 の桜並木の景色を住宅内部に取り入れたいと考えました。

八王子市の豊かな土壌が育む地域資源

八王子市の土壌は地域資源の豊かさに作用しています。敷地周辺は山林や竹林、 田園の大自然に囲まれています。敷地近隣の八王子みなみ野地域では「御殿山窯(ご てんやまよう)」と呼ばれた大窯業地でした。武蔵国府などに瓦や須恵器を供給し た御殿山窯跡群は、一大窯業拠点である過去を持ちます。

快適な住環境を育むコンパクトな形態

比較的広い敷地ながら建物の形態をコンパクトに抑えます。それにより住宅全体 の稼働率が向上しながら快適な温熱環境を保持する。またコンパクトな形態は前 述のように敷地に余白が生まれて情緒ある庭を創り出し、家族が長く快適に住み 続けられることに繋がります。

住空間に寄り添う版築壁

風を捕まえる版築の袖壁 内と外の関係を曖昧にする版築壁

住空間に挿入された版築壁は内と外を繋ぐことで情緒ある庭が生活に入り込み、 内と外の関係を曖昧にします。また版築壁のウインドキャッチャーが通風効率を 向上し、版築壁の蓄熱を活かしたダイレクトゲインにより室内の温熱環境が安定 するように設計しました。

敷地環境の植生

実のなる木を多く配置することで家族が実を食べられたり敷地内部を彩るだけで なく、周辺に対しても彩りをおすそ分けします。外からの視線を遮断する場所に は常緑樹、冬場の採光を確保したり四季の変化を感じさせたい場所には落葉樹を 配置し、庭に抑揚を与えます。

敷地の余白から生まれる4つの庭

彩庭では鮮やかな植生で周囲に彩りを与え、国道沿いからの視線を遮ります。涼 庭では水景を介した関わりが生まれ、春になると庭と桜並木の境目がなくなりま す。静庭はプライベート性の庭であり、夏に涼の風を室内に届ける。畑庭はコン ポストを活用して生活が循環するように作物を栽培します。

[concept]

まちと大地を育む家

地域を巻き込んだワークショップで一緒に家を造ります。家には造られた形跡が 残り、家族と近隣住人の記憶が宿ります。土地を育む行為が巡り廻って大地に還 元します。家のように小さな環境でも大きな環境を育むことに繋がり、その過程 で人々のささやかな繋がりを育むのではないでしょうか。

下:台所から涼庭を見る。

台所から敷地目の前の桜並木や周り の庭の季節の移り変わりを切り取る 場所。

左ページ:1階の食堂から2階 の居間を見る。

中央のオープンスペースが家族 同士の距離感を調整する。

右ページ:くつろぎの場を見る。

梁で領域を生み出しながら一体 的な空間構成を感じられる。

1階配置図兼平面図 S=1:200

中央に開く住空間

2階平面図 S=1:200

住空間を繋ぐスノコ床 開いた中央と閉じ

た両端の諸室の構 成により、空間の 抑揚をもたせる。

南面の大開口

十分な昼光を取り 込み、すだれを状 況に応じて垂らす ことで不快グレア を軽減させる。

上下階と家族同士の気 配を繋げるスノコ床。

風の通り道を確保して いる。

桜並木への眺望

熱だまり 放射熱

上:A-Aʼ断面図(1=1/100)

右1:夏至と冬至の日影からボ リュームや配置を検討。

右2:オープンスペースの照度解析 右3:南側開口に簾を垂らした際の 輝度解析 シミュレーションから軒の出や開 口の大きさを調整。

熱だまり

転写する記憶

Transferred Memories

現在、吉祥寺ハモニカ横丁は深刻な防災課題や存 続問題を抱えています。本提案では『転写』によ る形態保存型防火帯と自立共生ネットワークによ り、横丁の時間軸と記憶を段階的に継承・更新す る2040年へ向けた再編計画です。

3年後期設計課題

エリア再編課題「2040 年の輝かしい未来」

所在地  東京都武蔵野市吉祥寺ハモニカ横丁   用途   店舗併用住宅、事務所、通路 主体構造 RC造、S造、木造

コンクリートの打設による、記憶の継承

計画面積 2,500㎡

| 転写する記憶

鉄骨フレームと金属メッシュによる、領域の継承

再開発で生まれる地域と経済の活性化

近年再開発が多くの地域で行われています。再開発では個性ある敷地を有効活用 した街並みを形成したり、新しく商業施設などの複合施設により地域の人々のみ ならず若者の新規層を取り入れたり、人と企業のコミュニティが形成されること で街にさらなる賑わいをもたらすことにつながります。経済的にも地域のイメー ジアップやブランド価値の向上が期待でき、地元の企業や小売店の集客力が高ま ることで地域経済が活性化するメリットが得られます。

再開発による営みの痕跡の喪失

大規模な再開発により都市が近代化し、スケールが大きな場所が増えていき人々 が居心地が良いと感じるヒューマンスケールを持つ空間が失われます。再開発手 法の一例であるスクラップ&ビルドでは既存から新しいものへの時間軸の移行が 急であるため移行の過程が重要視されていない。記憶の継承が表面的なものになっ てしまっているように感じます。そのため地域再編には土地が持つ記憶の時間軸 を継承していきながら人々の営みを更新していくことが重要があると考えます。

ヤミ市から誕生したハモニカ横丁

本提案の再編エリアは東京都武蔵野市吉祥寺ハモニカ横丁地域です。

周辺には商業施設や井之頭公園を中心とした自然の充実により横丁内の 異空間性が際立ちます。ヤミ市は合法ではないが戦後の人々の命を支え た事実により、市場の存在肯定のために闇を「ヤミ」と表記します。

残り続ける5本の路地構成

吉祥寺ハモニカ横丁が整備され始めた1950年代から現代にいたるまで5本の路地 構成は吉祥寺ハモニカ横丁の象徴する要素の一つであり増改築の基準になってい ました。本提案では5本の路地構成は残し続け、路地構成を基準とする横丁の更 新を考えます。

2040年問題

今私たちは「2040年問題」に直面しています。2040年問題とは日本の人口減少と 少子高齢化が進行することにより、2040年に顕著に表面化するさまざまな社会問 題の総称です。具体的には労働人口不足による経済成長が鈍化や不動産業の需要 低下などの影響が懸念されます。また気温上昇や大気汚染等の問題により環境の 劣悪化がますます進行することが予想されています。

ハモニカ横丁の課題

ハモニカ横丁が持つ課題は2つ挙げられます。1つ目に横丁内の建築の老朽化で す。1980~1990年代をピークに増改築が繰り返されてきたが耐震性や耐火性、避 難経路の問題があります。2つ目に再開発によるハモニカ横丁らしさの存続の課 題です。過去に吉祥寺駅前と並行した再開発の話が挙がったが権利関係の複雑さ などの問題から再開発が見送られていました。

[concept]

再編のコンセプトとして「時間軸と記憶を段階的に継承・更新する横丁再編」を掲げます。

再編手法の一つであるスクラップ&ビルドによる古いものを一掃解体して新築する方法

では重ねてきた時間軸が分断されてしまう恐れがあるため、段階的に再編していく手法 を選択します。横丁では避難経路の確保が最重要になるため、第一フェーズでは既存路 地の改修及び避難路地の整備を行います。

次に木密の横丁内は耐火性・耐震性の脆弱さが課題として挙げられるため第二フェーズ では防火・耐震壁と主要拠点を建設、第三と第四フェーズでは防火・耐震壁の活用、解 体時に発生した廃材を再利用することで横丁が更新していきます。

横丁が持つ時間軸と記憶の段階的再編像  転写する記憶

横丁内の防災対策

吉祥寺ハモニカ横丁が抱える防災課題について、横丁内の3つの防災対策として応答します。1つ目は避難路 地です。既存の横丁は三方向避難が容易でない計画がなされているため主要路地を通り抜けられるような新た

な避難路地を計画します。2つ目は防火・耐震壁です。既存建築物を型枠としたコンクリートを打設すること で耐震性・耐火性を向上させ、火災や地震などの災害が万が一生じたとしても被害を最小限に抑える。3つ目 は地域連携です。横丁のコミュニティを創出させるプログラムを計画することで日頃の避難訓練などにより災 害に備えられるようにします。

空き家・老朽化建築物

の解体と避難経路の確保

左図は吉祥寺ハモニカ横丁の構造種別による資料の抜粋です。この資料や現地調 査を元に計画します。まず横丁が抱える避難経路の確保が困難な課題を最優先で 着手します。木造建築物が密集している部分や既存建築が空き家である部分を優 先して解体し、解体した部分を5つの主要路地間を通り抜けできる避難路地を計 画します。避難路地は避難用としての用途だけでなく公園的に日常的に使用でき ることで、日常的な火災時の避難経路の意識向上を図ります。

転写する記憶

建築物の形態・材質跡の

保存改修による横丁が持つ記憶の継承

既存建築物の形態や材質を保存改修する行為を転写と定義します。本提案では透過 性を持つエキスパンドメタルなどの金属メッシュと鉄骨フレームを組み合わせたを 転写、コンクリートの打設による転写の2種類を用いて主要路地を生かした営みの 痕跡を継承します。透過性を持つ転写については既存建築物取り壊し前に開口部や 高さの情報を記録し記録をもとに避難路地を囲います。打設による転写の手順とし

ては、建築物の間に背筋を組み既存建築物を型枠としてコンクリートを打設します。

既存建築が取り壊された後既存建築を型取る転写された壁が姿を現すことで営みの 痕跡を感じられます。

転写する記憶

自立共生を支える横丁のネットワーク

吉祥寺ハモニカ横丁が抱える防災課題について、横丁内の3つの防災対策として 応答します。1つ目は避難路地です。既存の横丁は三方向避難が容易でない計画 がなされているため主要路地を通り抜けられるような新たな避難路地を計画しま す。2つ目は防火・耐震壁です。既存建築物を型枠としたコンクリートを打設す ることで耐震性・耐火性を向上させ、火災や地震などの災害が万が一生じたとし ても被害を最小限に抑えます。3つ目は地域連携です。横丁のコミュニティを創 出させるプログラムを計画することで日頃の避難訓練などにより災害に備えられ るようにします。

人の集まり方に適応したイベント事業

近年メタバースなどの普及により、オフラインだけでなくオフラインとオンライ ンが統合された人の集まり方へと移行している最中にあります。この変化に適応 するために横丁の空間ストックを活用したイベント事業を計画します。避難路地 のスペースを活用したマルシェ、転写壁を用いたストリートアートイベントなど が挙げられます。訪れた人々がSNSを介して情報を広げることでコミュニティの 創出、横丁空間の価値の再認識化を図ります。

資材の有効活用による横丁の更新

既存建築が取り壊された際に姿を現す転写壁を基本として新しい建築に更新しま す。その際に以前使用されていた建築資材を再び計画する廃材加工場で廃材を貯 蔵・加工することで建築資材や家具、雑貨として資材を再利用します。それによ り転写壁と同様に営みの痕跡を継承します。廃材加工場で加工された生成物は横 丁内で使用されることで横丁内での循環サイクルを生み出し、環境への配慮と横 丁の魅力の再認識化を図ります。

ハモニカ横丁段階的再編案 2025-2035

ハモニカ横丁段階的再編案 2035-

ハモニカ横丁計画配置図 2025-

左ページ:第四フェーズ園芸所 周辺1階平面図。

右ページ:横丁内に緑を与える 園芸所の様子。建物を転写した 風景が過去と現在を連続する。

左ページ:第四フェーズ設計事務 所併設カフェ周辺 1階平面図 右ページ:密集した横丁に挿入さ れた避難路地の様子。過去の建物 の輪郭と壁が小さい公園のような 居場所をつくりだす。

左ページ:第四フェーズ避難路地 (ギャラリー側)断面図 右ページ:人々に居場所を与える 立体的な路地空間の様子。建物の 輪郭が生む気積は半戸外のギャラ リーや休憩スペースとなる。

左ページ:第四フェーズ避店舗 併用型住宅 断面図 右ページ:転写壁が構造体とな る店舗併用型住宅の様子。転写 された壁を通じて横丁の時間軸 を感じながら生活する。

[competition] では学外で取り組んだ建築コンペティションから抜粋した作品を紹介 します。

これまでに様々なコンペティションに取り組んでいきましたが、その多くの用途が 住宅などの暮らしに密接したものです。既にある豊かな屋内外の環境や家族、資源 の共在関係を暮らしの範囲で延長し、それぞれの境界を整えてデザインしました。

また私は温故知新を大事にしており、既にあるより良いものを吸収する楽しさに惹 かれ、手描きのトレースを日頃から行っております。設計の際にも、積極的に手を 動かしながら頭だけでなく身体で考えることを大事にしています。

右:第7回woodyコンテスト(2年)で取り組んだ際の検討・事例トレース。

通りの家

House on the Street

多世代の家族が共にに長い間生活するためには家 族同士がお互いに適切な身体的、精神的距離を保 つことが重要だと考えます。

提案する住宅では、各部屋からは中央のオープン スペースに繋がっています。これによりオープン スペースでは家族が関われることができる一方、 各部屋では自分の時間を過ごすことができます。

また各自の部屋のほかに南北のデッキや和室など によって、自分の居場所をその時の気分によって 変えられることができます。

家族同士が気配を感じながら生活する安心感と共 にお互いのプライバシーの距離を保つことができ る住宅です。

第7回 Woodyコンテスト

受賞   最優秀賞

所在地  京都府某集落

用途   専用住宅

主体構造 木造

敷地面積 587.96㎡

建築面積 115.08㎡

延床面積 159.08㎡

通りの家

左:住宅の外観を見る。

環境を引き込む深い軒の出と緩やかな境界をつくる 柱の均等配置が外観を整える。

敷地は京都府内の山里の集落にあり、北側には河川 が広がる土地です。集落での暮らしは都心部での暮 らしよりも隣人とのコミュニケーションと共に助け 合いながら生活します。敷地が角地にあることから 隣の家々からアクセスしやすく地域コミュニティの 中心になる可能性があると考えました。

構造は在来軸組工法としました。構造材や外壁に肌 目がやや荒く経年変化が楽しめる特徴がある杉材を 使い住宅の家具や建具、床材などに肌目が美しく良 い香りがする特徴があるヒノキ材を使います。室内 では柱や梁などの構造体を見せることで開放感や木 の温かみが感じられます。また積雪が多い土地のた め屋根勾配を3.5 寸にし雪を落としやすくしました。 スギ材 ヒノキ材 玄関から通りを見る。

家の南北を繋ぐ通りは家の 内外の環境を曖昧にする。

アプローチから家の外観を見る。

デッキの深い軒の出が人を引き入れる。

通りの家

左:住宅の軸組み構造 上:A-Aʼ断面図(S=1/100)通りの 中央に設えられたトップライトは通 りを年中一定の明るさと開放性を確 保する。

右ページ:オープンスペースから周 囲を見る。おおらかな大屋根が家族 の居場所を柔らかく包み込む。

1階配置図兼平面図 S=1:150 2階平面図 S=1:150

南北軸を貫く通りが挿入され、通りの オープンスペースからそれぞれの居室 が繋がる平面構成。中央のオープンス ペースは家族同士の距離感を調整する と共に、おおらかな周辺環境を家内部 に取り込む。また、外構に設えられた キッチンや畑により家族と近隣住人と の緩衝帯をつくる。

右ページ:居間から通りのあるオープ ンスペースを見る。天井高の違いによ り空間の性質に多様性を持たせる。

風景をつなぐ輪郭線

Outlines connecting the landscape

私たちは、地球上のどこにでもある「土」に囲ま れて生きてきた。

身近で資源枯渇の心配もなく、廃棄の際も環境に 対する害がなく、そのまま大地に還元することが できる素材である。

そのような「人」との繋がりが強い「土」を活か した住宅を考えた。

構造体とする土ブロックの壁が水平・垂直に行き

交い、ひとつながりを空間を成していく。

また、つながりを持たせながらも緩やかに空間性 を分けていき、多様な居場所と「土」のもつ身近 さを空間からも感じられる住宅である。

第2回タカカツグループ

学生住宅アイデアコンペ

受賞   特別賞

協同制作 秋山駿

所在地  宮城県登米市

用途   専用住宅

主体構造 平屋建て組積造 (一部S造)

敷地面積 325.73㎡

建築面積 114.92㎡

延床面積 114.92㎡

118 | 風景をつなぐ輪郭線

左:田園風景に佇む外観の様子。

土ブロック壁が風景に溶け込み家の内外の環境が 連続した空間構成。

田園風景が広がる、

宮城県登米市米山町

敷地は宮城県登米市米山町の迫川付近に位置します。

田園風景が広がる地域では、水稲産業を軸にそこに根付いた様々な産業があり、 材木屋さんや左官屋さん、陶芸教室など自然を活かした産業が地域を支えてます。

豊かな自然により木や土など建築材料は豊富であり、地産地消での住宅ができる のではないかと考えました。

120 | 風景をつなぐ輪郭線

「空間の輪郭線」 による 緩やかに分節した平面構成

田園の風景の環境を家の内部に取り込みたいと考えたため、従来の規格的にゾー ニングされた住空間の構成を疑いました。

豊かな環境を取り込むために内と外を繋げる線で分節することにより家族同士や 家と環境の境界の度合を調整しました。

空間を緩やかにゾーニングした輪郭線は心地よい場を生み出します。

122 | 風景をつなぐ輪郭線

従来の規格化された住空間

従来の住空間から角をとる 線で緩やかに分節した住空間

123  風景をつなぐ輪郭線

[concept]

土地から大地へ、豊かな資源が循環する家

構造体となる土ブロックは、家族や近隣住民と協力してワークショップにより創る喜びを 共有することで、地域コミュニティの活性化と環境に対する意識の育みに繋がります。また 運搬にはトラックを使わないことで二酸化炭素排出量を抑えます。

ブロック解体

「人」と「土」の循環 ブロック作成

ブロック積みの ワークショップ

ブロック固めの ワークショップ

ブロック完成

左:アプローチを見る。

土ブロック壁を伝いながら、 洞窟のような玄関ポーチへと 誘いこむ。

右:キッチンから周囲を見る。

土ブロック壁が外へ視線を誘導し、プライベート 空間を確保する。壁上部のガラスブロックが家全 体に採光と家族の気配を行き渡らせる。

126 | 風景をつなぐ輪郭線

家族と近所の方が季節の移ろいを感 じられるように季節により変化する 樹種を選定しました。

右:北西の庭の様子。

パーゴラのある庭は家族の 憩いの場。

道路前に実のなる木を植樹すること

でを周辺環境に彩りを与える。

菜園では、家庭から出た生ごみを堆 肥とするコンポストを使用し季節の 野菜を育てる。

室内の土間空間は外構の石畳をその まま接続し、場ごとに目地を入れる ことで居場所の切り替えと半戸外を 生み出す。

天気が良い時には家族みんなでパー ゴラ下の空間で食事したり、ご近所 の方と談笑を楽しむ場所。

128

| 風景をつなぐ輪郭線

共生の窓辺。

The window of symbiosis

人口減少や少子高齢化が加速する中でひとり ひとりの時間を大切にしながら家族関係が ゆるやかに繋がる家族の在り方を考えました。

家族がゆるやかに繋がるための操作として 「窓」に着目しました。

この家では外の環境と住宅内部を繋ぐ窓と、住宅 内の内と内を繋ぐ2種類の窓周り空間で構成され ています。

地域環境と共生し、100年先もその土地に 在り続ける大家族の住まいを提案します。

第39回 秋田の住宅コンクール

受賞   優秀賞

所在地  秋田県秋田市

用途   専用住宅

主体構造 木造(1階RC造)

敷地面積 231㎡

建築面積 84.33㎡

延床面積 158.51㎡

共生の窓辺。

左ページ:それぞれの部屋が 吹抜に面する階段室の様子。

右ページ:書斎スペースから 広間を見る。開口率の大きな 窓は外の環境を家の中に引き 込む。

右:秋田県に在り続ける伝統的な住ま いを参照した謙虚な外観。外構のベン チは地域住民が滞留する場所となる。

132 | 共生の窓辺。

[concept]

共生しながら住み継ぐ家

この家には祖母、父、母、長男4人の家族と血縁関係の無い秋田市内の大学に通 う3人の若者が共同生活者として暮らします。

長男が進学等で上京したり、祖母が施設で暮らす可能性を考慮して血縁関係のな い住まい手が家族の一員となり、シェアハウスとして徐々に移行します。

家族の変化に対応しながら住み継ぐ大家族の家を提案します。

134 | 共生の窓辺。

血縁関係有り

血縁関係無し

父 (39)

秋田市内の大学に通う若者 母 (38)

初期の住まい手

(住宅+シェアハウス)

第Ⅱ期の住まい手 (住宅+シェアハウス)

第Ⅲ期の住まい手 (シェアハウス)

| 135 共生の窓辺。

| 共生の窓辺。

秋田県秋田市楢山に住む

この家の計画敷地は秋田市楢山に位置します。楢山の太平川右岸は武家屋敷の面 影を残す住宅地があり、藩政期からの古い町形が残る情緒ある地域です。一方で、 2023年の記録的な豪雨災害では市街地が内水氾濫による甚大な浸水被害が起こり ました。特に楢山大元町では太平川の外水氾濫も重なり、被害が大きくなったと みられています。

まちに開かれる憩いの場

この家の住まい手だけでなく地域の人びとを巻き込んでの「大家族」としてさま ざまな活動が開かれます。想定する活動の場としては、まちの寄合所や絵画や手 芸教室、パーティーなどのイベントの活動が挙げられます。

将来的にはシェアハウスへの移行と共に2階への活動の展開も想定します。

| 137 共生の窓辺。

| 共生の窓辺。

大家族を繋ぐマド空間

外の環境と家を緩やかに繋げるもの、家族同士を緩やかに繋げるものとして2種 類のマド空間とする窓周りの空間を設計しました。SNSの普及による過度な人の 関わりなどの背景から、ひとりひとりの時間を大切にしながら、大家族をゆるや かに繋ぐ家の在り方が大切であると考えました。したがって家族の気配が家全体 に届くようなマドを家の中央に設けます。またこの家が地域に根付くために、外 の環境と家の境界を曖昧にするようなマドを設けます。

住宅外周部には環境を取り込む

家族の気配が繋がるようなマド

災害と共生する空間構成

秋田県内の市街地では度々、記録的な豪雨の内水氾濫による被害が生じることが あり、今後は起こらないとは断言できません。

この家が100年先も在り続け大家族が住み続けるために災害との共生を考えま した。まず構造として万が一浸水被害が生じた場合に復旧が容易であるように 1階を鉄筋コンクリート造としました。また住宅計画として、短期的に過ごす人 の場を1階に、長期的に過ごす人の場を2階、3階に設けました。

短期

2階は長期的に過ごす場。

1階は短期的に過ごす場。

浸水時の復旧が比較的容易と なるように1階はRC造の構造。

| 139 共生の窓辺。

1階配置図兼平面図 S=1:100

みんなの居間 作業スペース

140 | 共生の窓辺。

右:まちに共有する1階の みんなの居間の様子。住宅 の住まい手だけでなく地域 住民を巻き込んでさまざま な活動が展開する。

駐車スペース
憩いテラス

2階平面図 S=1:100

右:広間から家全体を見る。 それぞれの居室が見え隠れ する開口は家族同士の公私 の境界を曖昧にする。

| 共生の窓辺。

3階平面図 S=1:100

144 | 共生の窓辺。 8,190

910910910910910910910910910

左:上下階をゆるやかに繋ぐ 開放的な1階ホールの様子。

右ページ:階段室の様子。

大家族の気配が繋がり合う。

廻る茅舎

The revolving house

江戸時代中期秋田県の豪農として栄えた家はドマ を活かし通路の他に農作業や家事作業の場として 使用していました。

この住宅では地下に回廊のドマを使用し、角に配 置されたカウンターやベンチ、棚を利用した廻る 生活を行います。

入れ子にした各個室は戸を開閉することにより自 由な形で回廊と接続させたり、折れ戸により区画 することができます。

また吹抜けの回廊になっており、すべての部屋が 近いような遠いようなあべこべさがあるこの家は、 家族とゲストにとってよい距離がみます。

第38回 秋田の住宅コンクール

受賞   優秀賞

協同制作 秋山駿

所在地  秋田県秋田市

用途   専用住宅

主体構造 木造 (一部S造)

敷地面積 300㎡

建築面積 123.21㎡

延床面積 206.02㎡

廻る茅舎

右:秋田の伝統家住宅を参照した 茅葺屋根の謙虚な佇まい。私的空 間が半地下に設けられ平屋建ての ようなあべこべさがある。低いボ リュームは周辺の風景に溶け込む。

地酒が栄える秋田県秋田市

エリアは秋田県秋田市に位置し、敷地の東側は川のせせらぎを感じる田園風景が 広がっています。また降雪量は、秋田県沿岸部に位置しているため秋田県内では 雪の少ない地域となっています。

ゲストを招く家

この住宅では、この地域ならでは田園風景を眺めそれにより出来た日本酒を振る 舞います。周囲を廻る縁側部分で呑みを楽しみ、落ち着いた地域の良さを感じる ことができる家です。

地域を巻き込む茅葺替え

茅葺屋根は住宅を柔らかく見せてくれるだけでなく、夏は涼しく冬には暖かいた め四季がある日本の風土に適している反面、茅葺職人の減少といった問題を抱え ています。

年間のメンテナンスをイベントとして行い、住宅を気に入ってくれた人だけでな く茅葺についての文化を学ぶ場としても人が招かれます。

地階平面図 S=1:100

[concept]

廻る×廻る

この住宅では回廊のエンガワやドマを使用した各 個室を結ぶ廻る生活動線にしており、ドマの回廊 からエンガワの回廊の下をのぞくことができます。

また、庭に植えた植物によって四季の廻りを生活 の上で感じられます。

1階配置図兼平面図 S=1:100

南側立面図 S=1:100

上:建具を閉じ切った時の様子。

建具の開閉により季節の変化やまち と家族の境界を調整する。

右:ポーチからアプローチを見る。

半地下に潜るアプローチは公私を緩 やかに分節する。

左ページ:地階と1階が吹抜けを介 して大空間で繋がっている様子。

右ページ:1階のデャドコロを見る。

茅葺屋根が空間を包み込む。

境界に生きる

Living on the boundaries

私たちはスマホを使った便利な生活を送る一方でス マホを開けば常に他人の日常が流れる。情報の豊か さと引き換えに、私たちの自己が乏しくなっている 可能性がある。

この情報社会を生きるために今一度自分自身と向き 合い、自己を確立していくことが重要ではないだろ うか。

この状況を踏まえて、情報社会に疲れ切ってしまい 自分自身をもう一度向き合いたい人のための内省の 部屋を提案する。

自分自身と向き合うことは殻に閉じこもることでは なく、自分の意志を大切にしながら外界の広さや豊 かさに気付いていくことであると考える。

そのため本提案では部屋の中や外部の環境と緩やか につながりを持たせる。滞在した人が以前よりも外 界の広さに気付くきっかけとなる部屋である。

ゲストハウスLeu.

学内客室コンペティション

受賞   優秀賞

所在地  栃木県那須町

用途   客室(改修)

主体構造 S造 延床面積 33.28㎡

右:客室中央から外を見る。 カーテンと梁によるレイヤーが 内と外の境界をグラデーション 状に繋いでいく。

客室の中央から外を見た様子。梁による 領域とカーテンによるグラデーション状 の境界の変化により、宿泊者の心情の変 化に寄り添う場が生まれます。

[concept]

自分を見つめる内省の部屋

外界の情報と密接に関わっている現代、今一度自分を見つめて自己を確立してい くことが大切であると考えます。本提案では10代後半から20代の情報社会に 疲れ切ってしまい自己を確立したい方をメインターゲットとして、外界を遮断せ ず緩やかにつながった内省する部屋を提案します。独りで滞在したり、心を許し た人と過ごすことで自分と向き合います。

左ページ:こもりの場で宿泊者が作業 している様子。こもって自分自身と向 き合いながらも外界を遮断しない部屋。 右ページ:くつろぎの場を見る。梁で 領域を生み出しながら一体的な空間構 成を感じられる。

外界と緩やかに繋がる部屋

自分自身と向き合う時には、外界を完全に遮断してしまい自分の殻に閉じこもり がちになってしまいますが、完全に外界を遮断するよりも自分の意志を大事にし

ながら外界の広さや豊かさに気付いてくことが大切であると考えます。

したがって、視線は遮りつつも緩やかなひとつながりの空間にし、部屋内や外の 環境との繋がりを持つよう設計しました。

外部要素の取り入れ

外部要素の取り入れ

梁による領域

カーテンの開閉

少ない手数が生む豊かさ

豊かな客室とは、空間構成や滞在者の操作の容易さで毎回新しい気付きが得られ る空間であると考えます。したがって既存構成を活かした誰でも使いこなせる空 間にするために、既存のロフト部分の一部を抜くことによる上へ伸びる空間や、 レースカーテンを設けました。それによって、滞在者の心情の変化により可変性 を持つ空間が生まれる。

開ける行為(意識を外へ)

客室平面図 S=1:50

食事の場からつなぎの場を見る。カーテン の開閉が与える空間の可変性により滞在者 の心情に寄り添う。

客室断面図 S=1:50

つなぎの場から睡眠の場を見る。客室の 既存構造を活かすことで、開放的な空間 性を保持する。

SWITCH HOUSE

私たちは観光した際に「この楽しい時間がずっと続 いてくれたらいいのにな」と1度は思ったことがあ るはず。そして、その場所の本当の魅力は何回も訪 れて発見できるものである。

本提案では、時間帯や使い方に合わせて黒板付きの 回転扉で部屋を変化させて、観光の思い出を回転扉 の黒板により人と人、過去と現在の時間軸を緩やか に繋ぐ。

西海市の魅力や豊かさを再発見できる、新しい「さ いかいかんこう」を実現してくれるタイニーハウス である。

さいかいタイニーハウス デザインコンテスト2024

受賞   推薦作品選出

協同制作 蒔苗寧々

所在地  長崎県西海市

用途   宿泊施設 主体構造 木造 建築面積 24.99㎡

上:風景に溶け込むシンプルな片流れの佇まい。

SWITCH HOUSE

領域とカーテンによるグラデーション状 の境界の変化により、宿泊者の心情の変 化に寄り添う場が生まれます。

建物に使われている木と金属板の経年変化を楽しむ ことができる。

- あの日の黒板 -

友人と2 人で西海市へ観光に訪れた。

初日は、みかんドームでジュラートを食べ、大島と まと農園に行きトマト狩りやお酒を楽しんだ。

夕方タイニーハウスへ戻り購入したトマトを使って

料理を作り、窓際で水面に映る夕日を見ながら食事 をした。

その後、回転扉の黒板を使い明日の観光ルートを考 えた。黒板にはおすすめスポットや地域の交流など 多くの西海市の魅力が記されている。明日は七ツ釜 鍾乳洞名水らむねを飲んで、伊佐ノ浦公園でサイク リングをして、たくさん写真を撮ろう。

翌朝、目が覚めると友人は回転扉の向こう側でコー ヒーを淹れてくれていた。朝食を食べて、私たちは「か んこう」に出発した。

. . . .

3 年後、私たちは夫婦となり再び西海市に訪れると、 タイニーハウスには思い出が今も残されていた。

西海市に訪れるたびに新しい魅力に気付かされる。

過去と現在を繋いでくれた「さいかいかんこう」は これからも続いていく。

右:思い出が記されている回転扉の黒板の様子。

左右ページ:観光に訪れ た際にもお互いのプライ バシーを保ちたくなった り自分の好きな居場所を 見つけたくなる。回転扉 によって、滞在の場面や 気分によって部屋の間取 りを変えることができ る。

右ページ:窓辺の居場所を見る。

建物の角に設えられた大きな引き戸は西海の風景 を内部空間に引きこみ、引き戸を戸袋にしまうこ とで半戸外になる場所。

左ページ:建物断面の様子。

片流れのシンプルな構成は、小さな空間でも抑揚 をもたらすことができる。

[product] では、これまでに取り組んだプロダクト作品を紹介します。

建築を専攻していて暮らしを考えているものの、建築だけの視点で考えていること に違和感を覚え4年次からプロダクトのコンペティションに参加し始めました。

建築設計では身体を使って積極的に可能性を探ること、モノが暮らしや日常に溶け 込むためにデザインを整えることを主に大事にしていきましたが、建築からスケー ルダウンするだけで思考の根幹は変わらないのではないかと考えています。

これからも建築分野に限らず広い視野で、暮らしや日常に関わる境界のデザインを 考えていきます。

右:Wota-gon制作時の寸法・仕様検討のスケッチ。

木漏れ日の屋台

The food stall in dappled sunlight

花と緑は触れる過程で変化に敏感になる必要がある ため、花と緑に触れることは身の回りの小さな変化 を見つけることに繋がると考えます。

忙しなく時間が流れる現代のおいて、鈍感になりが ちになる身の回りの小さな変化に気付き、既にある 幸せを見つけることは必要なのではないでしょうか。

このことを踏まえて、木漏れ日に包まれる、身体ス ケールに寄り添った花と緑の屋台を提案します。

花と緑の屋台がストリートに点在することで並木道 のような彩りある新しい風景が生まれ、“はまテラス” が今よりも魅力あふれる場所になります。

小さな幸せの発見と、出会いが生まれる憩いの場を デザインしました。

第7回 まちを楽しくするストリート

ファニチャーコンペティション

受賞   推薦作品選出

協同制作 大内英斗

用途   家具・什器

木漏れ日の屋台

左ページ:通りに並んだ屋台を見る。

花壇に腰掛ける人も立ちながら使う 人も、身体スケールに寄り添う屋根 の下はみんなの憩いの場になる。

右ページ:屋台から膜屋根を見る。

木漏れ日の柔らかい光が屋根の下を やさしく包み込む。

Wota-gon

ケアに寄り添う水循環の移動式洗面台

共生社会の広がりと共に、ケア空間での暮らしも 変化しています。

ケアに関わるすべての人が快適に過ごせるために 今まで固定されていた洗面台も、暮らしの変化に 合わせて自由になるべきだと考えました。

『Wota-gon』は充電式の水循環型システムを内蔵 した、移動洗面台です。

ノイズの少ないデザインがケア空間に調和をとり ささやかな思いやりを運びます。

多様なケアに寄り添う、これからの洗面台です。

右:洗面台の外観の様子。

様々な方の暮らしに調和するノイズ の少ない愛らしいフォルム。

Wota-gon

上:洗面台を上から見る。

側面はマグネットパネルになっているた め使い勝手に合わせて暮らしに適応する。

右:洗面台を横から見る。

移動時に使う持ち手と水循環型ユニット 交換用の持ち手はデザインノイズが生ま れないよう内側に凹ませている。

PORTFOLIO by Yuki Osawa - Issuu