Skip to main content

Architektur Portfolio_D.Lien

Page 1

PORTFOLIO

CONG DOANH LIEN

M. A. in Architektur

Stand vom 15.01.2023

HALLO

Mein Name ist Cong Doanh Lien, ich bin am 24.04.1987 in Ho Chi Minh Stadt, Vietnam geboren. An der Fachhochschule Erfurt habe ich mein Bachelor- und Masterstudium in Architektur absolviert.

Meine Schwerpunkte und besonderen Interessen waren konstruktives Entwerfen und Building Information Modeling (BIM). Ich habe bereits über sechs Jahren bei PAB Architekten als Architekt und BIM Koordinator für verschiedene BIM Projekte gearbeitet.

Derzeit arbeite ich als freier Mitarbeiter mit meinem Team in Vietnam für verschiedene Architekturbüro von Deutschland.

Wir planen und digitalisieren Ihr Gebäude mit BIM und bieten Ihnen hierfür ein umfassendes Leistungspaket. Dabei begleiten wir Sie bei Ihren Projekten und helfen Ihnen, Zeit, Geld und Arbeit einzusparen.

Unser versiertes und erfahrenes Team aus Vietnam berät Sie gerne im Vorfeld und erarbeitet gemeinsam mit Ihnen individuelle Lösungen, die ganz speziell zu Ihren Anforderungen passen.

Gerne unterstützen wir Sie bei dem Vorhaben Ihr Gebäude zu digitalisieren. BIM-Digitalisierung ist ein Service des Experten-Teams aus Vietnam.

Auf den nächsten Seiten finden Sie eine Auswahl meiner Arbeiten aus dem Beruf.

- Ich wünsche Ihnen viel Spaß beim Durchblättern -

LEBENSLAUF

Angaben zur Person, Akademischer Werdegang, Beruflicher Werdegang, Sprachkenntnisse, Qualifikationen, Auszeichnungen, Leistungen

Seite 4-11

AUSGEWÄHLTE PROJEKTE

Mitarbeit bei PAB Architekten

Neubau Family Hotel Oberhof

Tambacher Straße 4, 98559 Oberhof Neubau - realisiert (12/2022)

BIM Planung

Seite 12-31

Wohn- und Gewerbepark Neuried Long und shortstay Hotel Neuried

Forstenrieder Straße, 82061 Neuried Neubau - Entwurfsplanung

10.2018

BIM Planung

Seite 38-43

Wohn- und Geschäftshaus Fürstenfeldbruck

Kurt-Huber-Ring 2, 82256 Fürstenfeldbruck Neubau - Entwurfsplanung

02.2019

Seite 32-37

Neubau Wohnpark Meiningen Vier Mehrfamilienhäuser

Steinweg/Bechsteinstraße 98617 Meiningen Neubau - in Bauphase (10/2022)

BIM Planung

Seite 44-53

2 3 Vorstellung Inhaltsverzeichnis Einleitung Portfolio | Cong Doanh Lien

ANGABEN ZUR PERSON

CONG DOANH LIEN

Master of Arts in Architektur (FH)

141/61 Tam Danh Street, District 8

Ho Chi Minh City

Vietnam

+(84) 349 980 975 doanharc@hotmail.com

BERUFLICHER WERDEGANG

FREIER MITARBEITER

PAB Architekten, Erfurt

Adobe Architekten + Ingenieure, Erfurt SCHNUR & MÖHRING ARCHITEKTEN, Erfurt

GBC ENGINEERS, IPROPLAN VIET NAM

Ho Chi Minh Stadt, Vietnam, Projektleiter Architektur

PAB ARCHITEKTEN, PROJECTS ARCHITECTURE BUILDINGS

Erfurt, festangestellter Architekt, BIM Koordinator

PAB ARCHITEKTEN, PROJECTS ARCHITECTURE BUILDINGS

Erfurt, Werkstudent, BIM Modellierer

Architekten Johannsen und Partner

Hamburg, Praktikum

AKADEMISCHER WERDEGANG

FACHHOCHSCHULE ERFURT

Master of Arts in Architektur (abgeschlossen)

FACHHOCHSCHULE ERFURT

Bachelor of Arts in Architektur (abgeschlossen)

BAUHAUS UNIVERSITÄT WEIMAR

Bachelor of Science in Architektur

HOCHSCHULE FÜR ARCHITEKTUR, HO CHI MINH STADT

Bachelor of Science in Architektur

Juni 2021 - heute

Februar 2022 - heute

April 2022 - heute

Februar 2021 - Mai 2021

März 2019 - Januar 2021

April 2016 - Februar 2019

November 2013 - März 2014

AUSZEICHNUNGEN

VDI-WETTBEWERB WOHNEN 4.0 Sonderpreis - Technische Gebäudeausrüstung

QUALIFIKATIONEN

AUTODESK REVIT

AUTODESK AUTOCAD

SKETCHUP

RHINOCEROS

ARCHICAD

ADOBE PHOTOSHOP

ADOBE INDESIGN

MS-OFFICE

SPRACHKENNTNISSE

DEUTSCH

Fließend

ENGLISCH

Grundkenntnisse

VIETNAMESISCH Muttersprache

AUTODESK BIM 360 ENSCAPE

AUTODESK NAVISWORKS RIB ITWO (AVA) ISO 19605-1,2:2018

Oktober 2015 - Februar 2019

April 2013 - August 2015

Oktober 2010 - April 2013

Sept. 2005 - Sept. 2008

LEISTUNGEN

• Erstellung der Entwurfs- und Bauantragsplanung, sowie Entwerfen von Projektund Planungspräsentationen

• Erstellung von interdisziplinären BIM-Modelle

• modellbasierte Mengenermittlung und Vorbereitung der Schnittstelle zu AVA-Programm

• Unterstützung der Ausführungs- und Detailplanung

• Erstellung und Digitalisierung der Grundrisse für die Bau- und Immobilienbranche

• Koordinieren und Zusammenarbeit mit integralen Fachingenieure.

4 5
2017 Angaben zur Person, akadamischer und beruflicher Werdegang Auszeichnungen, Sprachkenntnisse, Qualifikationen und Leistungen
Lebenslauf
Lebenslauf
6 7 VDI-Wettbewerb Intergrale Planung Wohnen 4.0 VDI-Wettbewerb Intergrale Planung Wohnen 4.0 Auszeichnungen Auszeichnungen

WOHNEN 4.0 - MULTIFUNKTIONALES MODULARES BAUEN

Gebäude- und Energiekonzept in Zusammenarbeit mit Bernadette Horsch, Jannis Müller und Christoph Steigerwald

Die Aufgabe bestand darin, ein Gebäudekonzept zu entwickeln, das einem modularen Bauprinzip folgt und auf möglichst unterschiedlichen Grundstücken funktionieren kann. Das zu beplanende Grundstück lag im Hamburger Stadtteil Billstedt. Aus gebäudetechnischer Sicht beinhaltete die Aufgabe die Entwicklung eines Anlagenkonzeptes, das bestmöglich auf umweltfreundliche Energiequellen am Standort abgestimmt ist. Die Herausforderung dabei war die Umgestaltung des Gebäudes über drei Nutzungsphasen mit stark variierenden Anforderungen an die Gebäudetechnik.

Das modulare Bauen kann bei hohen Vorfertigungsgraden die Flexibilität bei der Umnutzung von Gebäuden einschränken. Doch der Spagat zwischen Flexibilität, Modularem Bauen und Integration der Technik in die Architektur, ist uns durch teilweise Modularisierung ganz gut gelungen.

Im Kern des Energiekonzepts steht ein Eisspeicher. Überschüssige, elektrische Energie aus einer großflächigen PV-Anlage soll zur Einfrierung des Speichers verwendet werden. Dadurch wird die sommerliche Kühlung der Wohnanlagen und Büros bei sehr geringem Endenergiebedarf möglich. Die Abwärme aus dem Speicher kann anteilig zur Trinkwassererwärmung verwendet werden. Für die sonnenlosen Tage stehen BHKW sowie Pelletkessel für die Spitzenlasten in der Heizperiode zur Verfügung.

WOHNEN 4.0

8 9
SCHWARZPLAN M 1:5000 WOHNEN 4.0 IN HONGKONG WOHNEN 4.0 IN DRESDEN WOHNEN 4.0 IN RIO DE JANEIRO OBEN: LAGEPLAN M 1:500 UNTEN: PERSPEKTIVE KREUZUNG KENNZIFFER 153759 VDI-Wettbewerb Intergrale Planung Wohnen 4.0 VDI-Wettbewerb Intergrale Planung Wohnen 4.0 Auszeichnungen Auszeichnungen
10 VDI-Wettbewerb Intergrale Planung Wohnen 4.0 Auszeichnungen Auszeichnungen VDI-Wettbewerb Intergrale Planung Wohnen 4.0 ENERGIEKONZEPT ENERGIEAUSWEIS 100 % WOHNNNUTZUNG ENERGIEAUSWEIS WOHNEN ENERGIEAUSWEIS NICHTWOHNEN (STADTQUARTIERSZENTRUM) ENERGIEAUSWEIS WOHNEN ENERGIEAUSWEIS NICHTWOHNEN GRUNDRISS TIEFGARAGE M 1:200 GRUNDRISS ERDGESCHOSS (REGELGESCHOSS) 1.NUTZUNG M 1:200 SCHNITTANSICHT WEST M 1:200 SCHNITTANSICHT NORD M 1:200 INDUSTRIEPARKETT DRUCKAUSGLEICHSSCHICHT SYSTEMPLATTE FBH TRITTSCHALL INSTALLATIONSEBENE HOLZAKUSTIKPANEL KENNZIFFER 153759 DACHAUFBAU Dampfsperre BODENAUFBAU LOGGIA STÄDTEBAU ENTWURFSKONZEPT der Fassade FLEXIBILITÄT STATISCHES KONZEPT ENERGIEKONZEPT ÖKOLOGIE SOZIALES KONZEPT TRANSPORT UND MONTAGE FACILITY MANAGEMENT OBEN: FASSADENSCHNITT M 1:25 UNTEN: PERSPEKTIVE INNENHOF KENNZIFFER 153759 SOMMERLICHER WÄRMESCHUTZ Bezugstemperatur Übertemperaturstunden[h/a] Übertemperaturgradstunden[Kh/a] =26 420 616,6 +2 =28 116 119,3 +4 =30 15 19,5 Kühllastwerteam Cooling Design Day Auslegungsmonat Juni Juli August Kühllast CDD 369,6 Watt 399,6 Watt 426,8 Watt = 26°C LÜFTUNGSKONZEPT KÜHLLASTBERECHNUNG =134,4m /h (größte NE) ��� =8400 /h (Wohnen) =1.800 m /h ��� /h (Quartierszentrum) ��� =7.800m /h (Wohnen) =450m /h =5.625m /h (Bürobereiche,125 Pers.) ��� =7.200m /h (Quartierszentrum) ��� ��� =4.400m /h (Wohnen) Wohnbereiche Endenergiebedarf Primärergiebedarf Wohnbereiche Bürobereiche Endenergiebedarf Primärenergiebedarf

NEUBAU FAMILY HOTEL OBERHOF

Tambacher Straße 4, 98559 Oberhof

Maßnahme : Neubau - Genehmigungsplanung (07.2019), Ausführungsplanung, Fertigstellung (12.2022)

Beschreibung

In Thüringen soll das erste Hotel speziell für Familien mit Kindern entstehen. Das Hotel mit 105 Zimmer, 444 Betten im dreigeschossigen Hauptgebäude, 11 Chalets/ Baumhäuser auf dem Gelände soll 140 Arbeitsplätze schaffen und im Dezember 2021 eröffnen. Das auf einer rund vier Hektar großen Fläche am Schützenberg unter der Marke „Mayer Family Hotels“ entstehende Resort wird ganzjährig geöffnet sein.

Die altersgerechte Rundumbetreuung wird bereits ab dem 7. Lebenstag angeboten. Das VierSterne-Superior Kinderhotel soll allen erdenklichen Luxus für Familienferien bieten, darunter einen großen Indoor-Spielbereich mit Kino & Theater, Softplayanlage, Familien-Bowlingbahn, Turnhalle und Kartbahn, virtual Reality Room u.v.m. Die Attraktionen des Schwimmbades (Innenund Außenpool) sind der Kinderpool und die 100 Meter lange Reifen-Wasserrutsche.

20 ausgebildeten Mitarbeiter und Mitarbeiterinnen im Baby-, Mini- und Teenie Club stehen zur Verfügung, um die Babys bereits ab dem 7. Lebenstag und die Kinder zu umsorgen und für Teenies bis 16 Jahre ein altersgerechtes Programm anzubieten.

Ergänzt wird der Indoor Spiel- und Poolbereich durch einen Rückzugsbereich (Wellness-, Sauna -, Fitness - und Beauty - Bereich) für Erwachsene. Im Sommer stehen eine Hüpfburg und ein Abenteuerspielplatz zur Verfügung, zudem gibt es einen Streichelzoo.

Die 2 - bis 3 - Zimmerapartments weisen Wohnflächen von ca. 37m² bis 57m² auf, mit Raumhöhen von mindestens 2,60m, mit Ausnahme der Bereiche im EG 2, bei denen die Raumhöhe bei ca. 4m liegt.

Bedingt durch die Hanglage werden das Untergeschoss der Tiefgarage und das Hanggeschoss (EG 2) weitestgehend in den Hang integriert. Der dreigeschossige oberirdische Baukörper nimmt die Konturen des ehemaligen Herzoglichen Schlosshotels auf, was sich auf dem benachbarten Grundstück befand.

Die Tiefgarage, Hanggeschoss, Erdgeschoss, drei Obergeschosse, basierend auf dem Funktions- und Raumprogramm von Arkan Zeytinoglu werden mit ca. Hotel BGF ca. 21.500 m² angesetzt. Die Chalets und Baumhäuser mit einer BGF von ca. 1.800 m².

Family Hotel Oberhof
12 13 PAB Architekten - Neubau Family Hotel Oberhof - realisiert PAB Architekten - Neubau Family Hotel Oberhof - realisiert
Family Hotel Oberhof
Dr. Ing. Architektin DieZeichnung geistigesEigentumvonPAB Dr.KristaBlassyunddarfohneGenehmigung vervielfältigtnochDrittenzugänglichgemacht Hinweis: Legende: Niederlassung Fax+49-89-2000800-80 N dhkontakt@pab-arch.de www.pab-architekten.de Planer Bauherr LAGEPLAN, AUßENPERSPEKTIVE
Family Hotel Oberhof
14 15
Family Hotel Oberhof
PAB Architekten - Neubau Family Hotel Oberhof - realisiert PAB Architekten - Neubau Family Hotel Oberhof - realisiert
Quelle: www.thegrandgreen.de
Family Hotel Oberhof Family Hotel Oberhof 16 17 1 1 2 2 3 3 4 4 5 5 6 6 7 7 8 8 9 9 10 10 11 11 12 12 13 13 14 14 15 15 16 16 17 17 18 18 19 19 20 20 A A B B C C G G H1 H1 I1 I1 J1 J1 K1 K1 L1 L1 M1 M1 N1 N1 O1 O1 P1 P1 H2 H2 I2 I2 J2 J2 K2 K2 L2 L2 M2 M2 N2 O2 O2 P2 P2 D D E E F F 10' 10' 11' 11' Querschnitt 1 Querschnitt 1 Querschnitt 2 Querschnitt Querschnitt Querschnitt Längsschnitt Längsschnitt 43.45 m² Softplay 252.44 m² Shop_Skidepot 186.57 m² Eingangsbereich 35.67 m² Windfang 63.37 m² Flur_1 34.74 m² Flur_1 30.76 m² Beauty 21.39 m² Beauty 17.69 m² Beauty 21.23 m² Beauty 19.01 m² Beauty 19.23 m² Beauty 42.12 m² Beauty_2 19.23 m² Beauty 19.23 m² Beauty 17.11 m² Beauty 17.11 m² Beauty 155.36 m² SPA_Flur 26.11 m² Lager 8.06 m² WC_Vorraum 18.90 m² Friseur 56.57 m² Yoga 147.63 m² Fitness 15.69 m² HT_Schacht 14.92 m² Büro 153.46 m² Abenteuerraum 35.10 m² Virtual_Reality 56.93 m² Gemischter_Spielbereich 117.28 m² Mini 79.05 m² Rezeption_Kinderwelt 59.60 m² Krabbel 52.77 m² Baby 32.00 m² Baby_2 19.78 m² Baby_Schlafen 28.58 m² Teeny 45.71 m² Fluchtweg_2 50.20 m² Theater_Foyer 209.34 m² Theater 46.18 m² Flur_2 37.07 m² Verwaltung_3 21.24 m² Verwaltung_2 15.77 m² Verwaltung_1 16.33 m² Besprechungsraum 14.96 m² Backoffice 9.79 m² Büro 22.67 m² Lager 6.19 m² Lager 5.72 m² Pers.Lift 5.72 m² Pers.Lift 15.69 m² Treppenhaus_2 7.54 m² HT_Schacht 7.51 m² HT_Schacht 5.74 m² Pers.Lift 2.93 m² HT_Schacht 20.96 m² Treppenhaus_1 20.99 m² Fluchtweg_1 20.92 m² Treppenhaus_3 5.74 m² Service_Lift 3.40 m² HT_Schacht 6.58 m² Service_Lift 12.22 m² WC_Damen 12.36 m² WC_Herren 8.04 m² WC_Vorraum 5.23 m² Behind._WC Längsschnitt Theater Längsschnitt Theater Stg. 13 16.77 30.00 Stg. 21 19.05 28.00 3 87 6 0 6 6 90 40 7 40 1 4 12 12 0 3 0 3 60 3 9 60 9 5 90 5 0 6 3 1 9 2 56 1 10 12 76 40 1 85 40 44 40 6 1 2 68 36 25 84 5 66 2 60 3 19 4 57 43 74 20 5 0 40 40 20 6 18 90 5 0 6 0 6 3 12 2 1 6 2.55 m² Wickelraum 36 5 33 12 9 61 12 82 12 9 21 40 5.78 1.36 3.501.36 5.78 40 17.32 40 1.43 4.20 2.42 2.00 2.42 4.20 1.43 18.12 5.90 5.90 5.90 10.62 8.56 3 2 3 7 20 3 12 3 6 7 17 12 2 82 1 12 87 6 0 6 0 6 0 9 29 70 6 4. 2 0 6. 1 2 3. 5 5 2 35 2. 6 7.0 2. 3. 6 7 4. 0 9 3 6 OKFFB +0.00 OKFFB +0.00 OKFFB +0.00 3 7 Wasserrutsche 14.28 m² Treppenhaus Rutsche Wasserrutsche OKFFB +0.00 OKFF Terrasse -0.25 OKFF Terrasse -0.25 1.293.20 2.63 2.32 3.50 2.32 2.63 3.201.28 84.08 m² Luftraum Innenhof Yoga Outdoor Fitness Outdoor Kinder Spielplatz Dr. Hinweis: Legende: Planer Bauherr M 100 00 _ EG01 GRUNDRISS EG 01 GRUNDRISS EG 01 PAB Architekten - Neubau Family Hotel Oberhof - realisiert PAB Architekten - Neubau Family Hotel Oberhof - realisiert
Family Hotel Oberhof Family Hotel Oberhof 18 19 GRUNDRISS EG 02 GRUNDRISS EG 02 1 2 3 4 5 6 7 8 9 9 10 10 11 11 12 12 13 14 15 16 17 18 19 20 C H1 I1 I1 J1 K1 L1 M1 N1 N1 O1 P1 10' 10' 11' 11' 26.67 m² Kinderwagen 231.00 m² Buffet 126.09 m² Stüberl 209.13 m² Restaurant 172.46 m² Restaurant 41.01 m² Innenhof 34.67 m² Spielecke 212.53 m² Restaurant 92.70 m² Restaurant 375.45 m² Küche An e e ung Küche EG2 - Rampe 12% 1 50 1 1 50 50 65.82 m² Sozialraum 73.14 m² Lager 67.52 m² Lager 58.71 m² Lager 68.67 m² Lager 192.43 m² Indoorpool 146.16 m² Turnsaal 30.91 m² Dampfbad 45.71 m² Umkleide_D 47.14 m² Umkleide_H 17.98 m² Textilsauna 134.62 m² Kinder 132.35 m² Müllraum Mü pres con ne 4 6 6 4 2 259.83 m² Wasserspiele 101.19 m² Ruheraum 35.72 m² Ruheraum Querschnitt 1 Querschnitt 1 Querschnitt Querschnitt Querschnitt Querschnitt Längsschnitt Längsschnitt 417.84 m² Poolarea 121.89 m² Saunahof 21.51 m² Kräuter_Sauna 20.90 m² Finnische_Sauna 106.98 m² Flur 10.95 m² Infarot_Sauna 2.71 m² WC_Vorraum 23.59 m² Softplay 24.42 m² Lager 117.55 m² Reserve 79.26 m² Reserve 138.61 m² Flur 7.48 m² Vorraum 3.68 m² Behind._WC 33.84 m² Flur 72.10 m² Spieltische 10.29 m² Pantry 811.39 m² Milchbar 43.01 m² Zoo 8.34 m² Pantry 59.89 m² Vinothek 7.51 m² HT_Schacht 15.69 m² HT_Schacht 7.54 m² HT_Schacht 12.00 m² Pantry 219.02 m² Flur 12.00 m² Küche_Abgang 43.08 m² Gaderobe_H 43.08 m² Gaderobe_D 11.40 m² Vorraum 5.93 m² Vorraum 8.79 m² Vorraum 8.79 m² Vorraum 28.84 m² Lichthof 231.01 m² Flur 405.07 m² Anlieferung 20.92 m² Treppenhaus 3.40 m² HT_Schacht 5.74 m² Service_Lift 6.58 m² Service_Lift 5.72 m² Pers.Lift 5.72 m² Pers.Lift 15.69 m² Treppenhaus 15.71 m² WC_Herren 14.31 m² WC_Damen 3.48 m² Behind._WC 20.96 m² Treppenhaus 10.33 m² Lager 5.74 m² Pers.Lift 2.93 m² HT_Schacht Längsschnitt Theater Längsschnitt Theater 6 7 9 5 90 90 6 6 60 40 12 0 1 47 2 5 77 2 81 3 6.23 5.78 5.78 4 61 3 7 6 6 5 0 0 9 12 11 5 59 OKFFB -4.80 OKFFB -4.80 OKFFB -4.80 OKFFB -4.80 5 Q E Q E Q E Q E Q 178.94 m² Outdoorpool Stg. 25 19.20 28.00 Stg. 25 19.20 28.00 24.96 m² Treppenhaus Rutsche Stg. 25 19.20 28.00 Stg. 27 17.78 34.00 4 5 4. 8 0 6. 5 7.0 9 6. 1 0 4. 3 3. 3. 0 7 4 1 1 0 4 29 5 24 3 1 3 62 5 16 4 5 43 7 2 6 5 5 80 5 18 4 81 5.78 1.36 3.501.36 5.78 1 100 -1 _ EG02 PAB Architekten - Neubau Family Hotel Oberhof - realisiert PAB Architekten - Neubau Family Hotel Oberhof - realisiert
Family Hotel Oberhof Family Hotel Oberhof 20 21
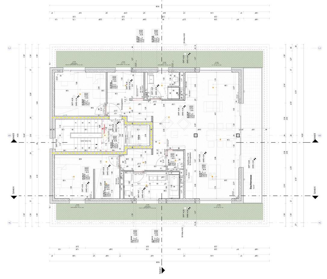
1 1 2 2 3 3 4 4 5 5 6 6 7 7 8 8 9 9 10 10 11 11 12 12 13 13 14 14 15 15 16 16 17 17 18 18 19 19 20 20 A A B B C C G G H1 H1 I1 I1 J1 J1 K1 K1 L1 L1 M1 M1 N1 N1 O1 O1 P1 P1 H2 H2 I2 I2 J2 J2 K2 K2 L2 L2 M2 M2 N2 N2 O2 O2 P2 P2 D D E E F F 10' 10' 11' 11' 3. 0 9 6 0 6. 6 0 9 8 8. 3 5 90 5 9 0 3 7 9 5 0 6 0 6 0 4 51 5.90 5.90 5.90 5 90 6 6 6 60 6 0 3 09 6 60 6 60 1 98 4 18 4 20 6.45 6.23 6.45 5 90 6 6 6 0 3 8 4. 3. 6 7 9 8 1.36 3.20 2.63 2.32 3.50 2.32 2.63 3.201.37 Querschnitt 1 Querschnitt 1 Querschnitt Querschnitt Querschnitt Querschnitt 3 Längsschnitt 1 Längsschnitt 33.60 m² Schlafzimmer 6.20 m² Kinderzimmer 7.24 m² Bad 1.86 m² WC 14.45 m² Kinderzimmer 6.46 m² Kinderzimmer 33.90 m² Schlafzimmer 1.86 m² WC 7.24 m² Bad 33.90 m² Schlafzimmer 6.46 m² Kinderzimmer 1.86 m² WC 7.24 m² Bad 116.01 m² Flur 33.83 m² Schlafzimmer 7.24 m² Bad 6.53 m² Kinderzimmer 1.85 m² WC 34.10 m² Schlafzimmer 7.24 m² Bad 6.28 m² Kinderzimmer 1.85 m² WC 12.69 m² Kinderzimmer 6.46 m² Kinderzimmer 33.90 m² Schlafzimmer 1.85 m² WC 7.24 m² Bad 1.85 m² WC 7.24 m² Bad 33.90 m² Schlafzimmer 6.46 m² Kinderzimmer 21.15 m² Schlafzimmer 5.82 m² Kinderzimmer 4.92 m² Bad 6.42 m² Vorraum 1.62 m² WC 4.92 m² Bad 1.66 m² WC 5.82 m² Kinderzimmer 21.15 m² Schlafzimmer 6.42 m² Vorraum 6.42 m² Vorraum 1.66 m² WC 4.92 m² Bad 5.82 m² Kinderzimmer 21.15 m² Schlafzimmer 1.86 m² WC 33.90 m² Schlafzimmer 6.10 m² Kinderzimmer 7.24 m² Bad 6.98 m² Vorraum 1.64 m² WC 4.98 m² Bad 7.08 m² Kinderzimmer 25.87 m² Schlafzimmer 21.18 m² Schlafzimmer 5.86 m² Kinderzimmer 4.91 m² Bad 1.66 m² WC 6.42 m² Vorraum 4.91 m² Bad 1.66 m² WC 6.42 m² Vorraum 5.86 m² Kinderzimmer 21.18 m² Schlafzimmer 21.18 m² Schlafzimmer 6.42 m² Vorraum 1.66 m² WC 4.91 m² Bad 5.86 m² Kinderzimmer 101.97 m² Flur 7.24 m² Bad 1.86 m² WC 33.90 m² Schlafzimmer 6.10 m² Kinderzimmer 21.29 m² Schlafzimmer 6.42 m² Vorraum 1.66 m² WC 4.91 m² Bad 5.88 m² Kinderzimmer 21.29 m² Schlafzimmer 5.88 m² Kinderzimmer 4.91 m² Bad 1.66 m² WC 6.42 m² Vorraum 21.29 m² Schlafzimmer 5.88 m² Kinderzimmer 4.91 m² Bad 6.42 m² Vorraum 1.66 m² WC 6.42 m² Vorraum 1.66 m² WC 4.91 m² Bad 21.31 m² Schlafzimmer 5.89 m² Kinderzimmer 21.31 m² Schlafzimmer 6.42 m² Vorraum 5.89 m² Kinderzimmer 4.92 m² Bad 1.66 m² WC 21.31 m² Schlafzimmer 5.89 m² Kinderzimmer 4.92 m² Bad 1.66 m² WC 6.42 m² Vorraum 34.05 m² Flur 21.09 m² Schlafzimmer 5.80 m² Kinderzimmer 4.91 m² Bad 6.44 m² Vorraum 1.66 m² WC 31.61 m² Flur 21.11 m² Schlafzimmer 5.80 m² Kinderzimmer 4.92 m² Bad 6.42 m² Vorraum 1.66 m² WC 1.66 m² WC 4.92 m² Bad 5.80 m² Kinderzimmer 21.11 m² Schlafzimmer 6.42 m² Vorraum 1.66 m² WC 6.42 m² Vorraum 21.22 m² Schlafzimmer 5.85 m² Kinderzimmer 4.91 m² Bad 21.22 m² Schlafzimmer 6.42 m² Vorraum 1.66 m² WC 4.87 m² Bad 5.85 m² Kinderzimmer 5.85 m² Kinderzimmer 4.87 m² Bad 1.66 m² WC 6.42 m² Vorraum 21.22 m² Schlafzimmer 7.24 m² Bad 1.86 m² WC 7.24 m² Bad 33.90 m² Schlafzimmer 6.46 m² Kinderzimmer 33.90 m² Schlafzimmer 6.46 m² Kinderzimmer 1.86 m² WC 12.69 m² Kinderzimmer_barrierefrei 1.86 m² WC 34.17 m² Schlafzimmer 6.21 m² Kinderzimmer 7.24 m² Bad 6.46 m² Kinderzimmer 33.90 m² Schlafzimmer 1.86 m² WC 7.24 m² Bad 14.45 m² Kinderzimmer 34.17 m² Schlafzimmer 7.24 m² Bad 1.86 m² WC 6.20 m² Kinderzimmer 6.46 m² Kinderzimmer 33.90 m² Schlafzimmer 7.24 m² Bad 1.86 m² WC 6.46 m² Kinderzimmer 33.90 m² Schlafzimmer 1.86 m² WC 7.24 m² Bad 116.06 m² Flur 84.21 m² Dachterrasse 781 83.49 m² Dachterrasse 782 13.08 m² Lager 5.74 m² Pers.Lift 2.93 m² HT_Schacht 20.96 m² Treppenhaus 4.73 m² Lager 10.77 m² HT_Schacht 20.85 m² HT_Schacht 5.72 m² Pers.Lift 5.72 m² Pers.Lift 15.68 m² HT_Schacht 15.69 m² Treppenhaus 4.72 m² Lager 20.92 m² Treppenhaus 5.74 m² Service_Lift 3.40 m² HT_Schacht 13.02 m² Service_Lift 3.37 m² HT_Schacht 3.37 m² HT_Schacht Längsschnitt Theater Längsschnitt Theater 5.16 m² Lager 5.22 m² Lager 4.72 2.60 902.43 2.002.43 2.60 90 4.56 16 18.12 5 6 3 94 3 94 2 66 3 94 3 94 3 9 3 4 6 6. 3 0 2. 6 0 9 0 1. 9 2. 6 9 2. 4 5 3. 9 4 2. 6 5 3. 9 4 4. 17 2 0 2 6 0 1 21 3 7 2 7 2 5 9 6 1 69 1.24 3.93 2.86 3.93 2.48 3.94 1.24 43 1.7512 4.22 354.0312 1.72 354.22 12 1.7543 19.64 9 90 1 88 2 0 9 1 69 3 3 2 6 3 3 2 3 9 2 2 0 3 9 1 21 3 4 4 9 3 2 6 3 9 0 7 2 6 9 0 1 9 6 0 9 6 0 7 1 7 3 8 3 9 2 6 9 6 9 2 3 3 9 2 2 0 3 9 4 5.76 1.952.171.95 5.77 18.06 0 2 9 9 7 1 0 3 16 6 1 7 3 1 7 1 5 3 0 1 27 3 6 5 6 2 4 2 3 1 1 2 5 4 2 2 2 7 7 9 6 9 1 1 2 3 1 6 5 3 6 12 4 22 35 1 0 12 4 2 35 1 0 12 2 1 2 5 2 2 3 70 3 12 1 72 4 36 5.60 12 1.80 16 2.00 16 1.80 12 5.60 36 1 90 12 4 2 5 1 90 12 2 5 1 0 2 6 1 1 72 35 1 7 12 7 12 1 72 3 43 3.70 12 1.72 35 3.70 12 1.72 35 1.72 12 3.61 36 3 6 4. 0 0 2 0 4. 0 1 6 1. 8 0 2 7 2 2 1. 0 3 5 4. 2 1 2 5.065 3 3 3 16 4 1 8 1 0 2 0 2 7 12 1 2 35 1 72 12 3 7 12 1 2 2 3 16 barrierefrei barrierefrei barrierefrei barrierefrei barrierefrei barrierefrei barrierefrei barrierefrei 27.58 m² Luftraum 27.63 m² Luftraum 127.68 m² Dachterrasse 127.68 m² Dachterrasse M 1 100 01 _ OG01 PAB Architekten - Neubau Family Hotel Oberhof - realisiert PAB Architekten - Neubau Family Hotel Oberhof - realisiert
GRUNDRISS REGELGESCHOSS GRUNDRISS REGELGESCHOSS
Family Hotel Oberhof Family Hotel Oberhof 22 23 GRUNDRISS TIEFGARAGE GRUNDRISS TIEFGARAGE 1 2 3 4 5 6 7 8 9 9 10 10 11 11 12 12 13 14 15 16 17 18 19 20 A A B B C C G G H1 I1 J1 K1 L1 L1 M1 N1 N1 O1 P1 H2 H2 I2 I2 J2 J2 K2 K2 L2 L2 M2 M2 N2 N2 O2 O2 P2 D D E E F F 10' 10' 11' 11' Tiefgarage Einfahrt UG -Rampe 7% Anlieferung Küche EG2 -Rampe 12% Querschnitt Querschnitt Querschnitt Querschnitt Querschnitt Querschnitt Längsschnitt Längsschnitt Längsschnitt Theater Längsschnitt Theater 20.96 m² Treppenhaus 5.74 m² Pers.Lift 2.93 m² HT_Schacht 15.69 m² HT_Schacht 7.51 m² HT_Schacht 5.72 m² Pers.Lift 5.27 m² Vorraum 17.54 m² Vorraum 18.44 m² Vorraum 5.72 m² Pers.Lift 15.69 m² Treppenhaus 7.54 m² HT_Schacht 18.76 m² Vorraum 12.18 m² Lager 20.92 m² Treppenhaus 6.58 m² Service_Lift 3.40 m² HT_Schacht 5.74 m² Service_Lift 3841.43 m² Tiefgarage OKFFB -8.60 OKFFB -8.60 227.22 m² motorcycle 56.78 m² Tribüne 93.85 m² Gokart 55.00 m² Flur 44.64 m² Erlebniswelt_Wurzelhöhle 957.97 m² Techn. Anlagen 37.33 m² Techn. Anlagen 117.69 m² Techn. Anlagen 18.88 m² Hausanschlussraum 18.12 m² Hausanschlussraum 16.76 m² Hausanschlussraum 59 3 4 1 9 4 6 11 04 15 94 64 6 01 40 4 1 2 4 7 46 6 3 6 6 5 5 5 0 90 6 3 1 3 93 19 5 0 90 9 5.78 1.36 3.501.36 5.78 7.0 2. 9 6 7 4. 0 9 6. 3 6 15.52 m² Treppenhaus 11.36 m² Vorraum 11.13 m² Lager 5.38 m² Vorraum 7.79 m² Vorraum OKFFB -8.60 5 25 6 00 1 90 00 16 5 5 00 30 5. 4. 2 9 9 0 5. 6 5. 5.2 5 6. 5.0 0 5.0 5. 5.8 5.00 6.74 5.43 7.80 5.44 6.08 Tiefgarage 109 Stellplätze -13 E-Stellplätze -12 barrierefrei Stg. 16 20.00 23.50 Stg. 23 16.52 28.00 Stg. 24 14.58 28.00 Stg. 23 15.22 28.00 Stg. 18 20.00 23.50 M 100 -2 _ UG PAB Architekten - Neubau Family Hotel Oberhof - realisiert PAB Architekten - Neubau Family Hotel Oberhof - realisiert
Family Hotel Oberhof Family Hotel Oberhof 24 25 SCHNITTE SCHNITTE 6025153.4025154.40 25153.6025152.6025152.6025152.602 5153.1525 OKFFB +16.40 OKFFB +13.00 OKFFB +10.00 OKFFB +7.00 OKFFB +4.00 OKFFB +0.00 OKFFB -4.80 OKFFB -8.60 OKFF Terrasse -0.15 OKFF Terrasse -5.20 +0.05 OK First +20.00 3841.43 m² Tiefgarage 7.24 m² Bad 155.36 m² SPA_Flur 375.45 m² Küche OKFFB +13.00 OKFFB +10.00 OKFFB +7.00 OKFFB +4.00 OKFFB -4.80 OKFFB -8.60 OKFF Terrasse -0.25 OKFFB +0.00 OKFFB +0.00 25 3.15 1525 2.60 1525 2.60 1525 2.60 3.60 4.40 3.40 60 1 4 1 OK First +20.19 +16.40 OKFF Terrasse -4.80 +3.88 OK First +15.57 3841.43 m² Tiefgarage 209.34 m² Theater 2427.30 m² Technik OKFFB -14.70 Längsschnitt 1 2 PAB Architekten - Neubau Family Hotel Oberhof - realisiert PAB Architekten - Neubau Family Hotel Oberhof - realisiert
Family Hotel Oberhof Family Hotel Oberhof 26 27 ANSICHTEN ANSICHTEN +17.26 +832.26 NN +15.07 +830.07 NN +12.50 +827.50 NN +9.85 +824.85 NN +6.85 +821.85 NN +3.85 +818.85 NN +0.00 +815.00 NN +20.19 +835.19 NN +22.02 +837.02 NN +17.26 +832.26 NN +15.07 +830.07 NN +12.50 +827.50 NN +9.85 +824.85 NN +6.85 +821.85 NN +3.85 +818.85 NN +0.00 +815.00 NN +20.19 +835.19 NN +22.02 +837.02 NN 100 Ansicht Süd M 100 Ansicht West PAB Architekten - Neubau Family Hotel Oberhof - realisiert PAB Architekten - Neubau Family Hotel Oberhof - realisiert
Family Hotel Oberhof
28 29
Family Hotel Oberhof
PAB Architekten - Neubau Family Hotel Oberhof - realisiert PAB Architekten - Neubau Family Hotel Oberhof - realisiert
Quelle: www.thegrandgreen.de Family Hotel Oberhof
30 31 BIM MODELLE BIM MODELLE PAB Architekten - Neubau Family Hotel Oberhof - realisiert PAB Architekten - Neubau Family Hotel Oberhof - realisiert
Family Hotel Oberhof

WOHN- UND GESCHÄFTSHAUS

FÜRSTENFELDBRUCK

Kurt-Huber-Ring 2, 82256 Fürstenfeldbruck

Neubau - Entwurfsplanung (02.2019)

Beschreibung

In fürstenfeldbruck soll am Kurt-Huber-Ring 2 ein neues Wohn- und Geschäftshaus mit Tiefgarage errichtet werden. Es handelt sich um eine Wohnanlage mit insgesamt 43 Wohnungen, die in den Obergeschossen und 9 Service Apartment im Erdgeschoss liegen. Im EG der Anlage werden ein Verbrauchermarkt mit einem Cafe sowie ein Kindertagesstätte untergebracht. Zur Anlage gehört eine Tiefgarage, über die eine weitere, bestehende Tiefgarage im Nach-

bargebäude erreicht wird.

Das Gebäude verfügt insgesamt über acht Geschosse (UG, EG, 1.-6.OG). Während die Erdgeschossfläche weitgehend überbaut ist, löst sich die Baustruktur in den Obergeschossen auf und bildet dann vier Einzelbaukörper, die bis zum 4.OG über Laubengänge miteinander verbunden sind. Aufgrund der Lage im Grundstück werden die Wohnbaukörper im Weiteren als Nord- und Südturm sowie als Mittelbauwerk Ost und West bezeichnet.

33 Wohnund Geschäftshaus Fürstenfeldbruck Wohnund Geschäftshaus Fürstenfeldbruck PAB Architekten - Wohn- und Geschäftshaus Fürstenfeldbruck - LP3 PAB Architekten - Wohn- und Geschäftshaus Fürstenfeldbruck - LP3
GRUNDRISSE EG, 1.OG LAGEPLAN III+St. BK West III+St. BK Nord IV+St. BK Ost VII BK Süd 1 1216,66 m² Gewerbeeinheit 27,03 m² TH 29,26 m² Sauberlaufzone 43,40 m² Eingang 16,02 m² TH 216,53 m² Gewerbeeinheit 37,06 m² Gruppenraum 40,43 m² Gruppenraum 18,97 m² pädago. Nebenraum 15,79 m² Waschraum/ WCs 21,55 m² pädago. Nebenraum 17,71 m² Kk. Küche 3,77 m² Kk. Lager 7,80 m² Elternbesprechungsraum 9,86 m² Kinderwagenraum 4,03 m² Kk. Lager 12,70 m² Personalraum 12,74 m² Krippenleitung 2,97 m² 1,49 m² Kk. WC 7,26 m² Kk. Windfang 52,05 m² Spielflur 5,77 5,29 2,27 28,33 2,27 15,13 0,84 23,23 2,34 2,75 0,48 9,98 0,48 6,52 95,84 m² Gewerbeeinheit 5,96 m² Aufzug 4,02 m² Aufzug 2 865 2 865 7,28 m² Kk. Lager 4,56 m² Küche 4,53 m² Bad 4,56 m² Küche 4,31 m² Bad 4,48 m² Bad 4,56 m² Küche 5,16 m² Küche 2,58 m² Abs. 4,50 m² Bad 2,57 m² Abs. 4,53 m² Bad 2,57 m² Abs. 15,08 m² Wohnen/Schlafen 15,08 m² Wohnen/Schlafen 2,57 m² Abs. 4,31 m² Bad 2,57 m² Abs. 15,08 m² Wohnen/Schlafen 2,57 m² Abs. 2,57 m² Abs. 4,71 m² Bad 15,12 m² Wohnen/Schlafen 15,08 m² Wohnen/Schlafen 15,08 m² Wohnen/Schlafen 15,12 m² Wohnen/Schlafen 4,56 m² Küche 4,56 m² Küche 4,56 m² Küche 3,96 m² Gar. 2,82 m² Gar. 2,82 m² Gar. 2,82 m² Gar. 2,82 m² Gar. 2,82 m² Gar. 2,82 m² Gar. 23,30 m² Müllraum 5,26 m² Bad 2,86 m² Abs. 3,60 m² Gar. 5,58 m² Küche 15,40 m² Wohnen/Schlafen 6,85 m² Bad 3,96 m² Abs. 3,61 m² Gar. 5,57 m² Küche 17,77 m² Wohnen/Schlafen 38,18 m² Flur Serviced Apt. - 1 293,13 m² Freifläche KITA 1 1 18,06 m² Wohnen/Essen 2,91 m² Wind./Gar. 7,56 m² Balkon 12,30 m² Balkon 6,93 m² Balkon 16,77 m² Wohnen/Essen 10,02 m² Schlafen 7,17 m² Balkon 22,21 m² Wohnen/Schlafen 13,00 m² Schlafen 23,48 m² Wohnen/Essen 13,61 m² Schlafen 5,78 m² Bad 2,22 m² WC 10,61 m² Flur 1,57 m² Abs. 5,47 m² Bad 3,56 m² Gar. 13,31 m² Flur 16,02 m² TH 4,12 m² Bad 7,41 m² Flur 2,50 m² Abs. 15,40 m² Schlafen 14,45 m² Wohnen/Essen 26,61 m² Wohnen/Essen 15,83 m² Schlafen 4,22 m² Bad 3,77 m² WC 2,29 m² Abs. 11,58 m² Schlafen 9,32 m² Flur 10,18 m² Balkon 8,48 m² Balkon 5,88 m² Küche 6,64 m² Küche 6,56 m² Küche 7,70 m² Bad 6,74 m² Küche 8,09 m² Balkon 29,91 m² Wohn./Essen 7,51 m² Flur 11,86 m² Schlafen 10,54 m² Schlafen 6,03 m² Bad 10,81 m² Wohn./Essen 3,50 m² Küche 2,20 m² Abs. 3,93 m² Bad 5,50 m² Flur 5,96 m² Aufzug 4,02 m² Aufzug 162,68 m² Laubengang 20,42 m² TH 2,37 m² Abs. 2,36 m² Abs. 2,15 m² WC 8,19 m² Bad 14,64 m² Schlafen 3,63 m² Abs. 23,66 m² Wohnen/Essen 17,71 m² Schlafen 5,36 m² Bad 3,77 m² Flur 2,70 m² Wind./Gar. 16,98 m² Wohnen/Essen 16,98 m² Wohnen/Essen 3,77 m² Flur 2,70 m² Wind./Gar. 5,68 m² Bad 17,65 m² Schlafen 17,67 m² Schlafen 4,70 m² Wind./Gar. 4,30 m² Flur 7,75 m² Balkon 7,79 m² Balkon 4,72 m² Balkon 7,86 m² Küche 7,86 m² Küche 8,34 m² Küche 13,55 m² Schlafen 7,53 m² Bad 29,42 m² Wohnen/Essen 3,36 m² Wind./Gar. 3,26 m² Gäste-WC 4,24 m² Abs. 15,64 m² Schlafen 7,16 m² Flur 6,44 m² Küche 7,38 m² Balkon 16,33 m² Schlafen 2,44 m² Abs. 7,32 m² Küche 12,02 m² Balkon 16,30 m² Schlafen 10,05 m² Schlafen 17,97 m² Wohnen/Essen 7,28 m² Küche 2,29 m² Abs. 2,01 m² Abs. 7,69 m² Bad 2,48 m² Abs. 2,88 m² Wind./Gar. 5,78 m² 7,98 m² Küche 2,21 m² 4,63 m² Bad 1,96 m² Abs. 3,20 m² 14,83 m² Schlafen 6,74 m² Küche 6,66 m² Bad 8,09 m² Balkon 29,91 m² Wohn./Essen 10,29 m² Flur 11,86 m² Schlafen 10,52 m² Schlafen 4,11 m² Bad 13,91 m² Schlafen 1,51 m² Abs. 4,02 m² Aufzug 20,42 m² TH Altervativlösung 4 Raum-Wohnung
36 Wohnund Geschäftshaus Fürstenfeldbruck Wohnund Geschäftshaus Fürstenfeldbruck PAB Architekten - Wohn- und Geschäftshaus Fürstenfeldbruck - LP3 PAB Architekten - Wohn- und Geschäftshaus Fürstenfeldbruck - LP3 GRUNDRISSE 2.OG, UG 6,93 m² Balkon 7,19 m² Balkon 22,21 m² Wohnen/Schlafen 13,00 m² Schlafen 23,48 m² Wohnen/Essen 13,61 m² Schlafen 5,78 m² Bad 2,22 m² WC 10,61 m² Flur 1,57 m² Abs. 5,47 m² Bad 3,56 m² Gar. 13,31 m² Flur 16,08 m² TH 4,12 m² Bad 7,41 m² Flur 2,50 m² Abs. 15,40 m² Schlafen 14,45 m² Wohnen/Essen 26,64 m² Wohnen/Essen 15,83 m² Schlafen 4,22 m² Bad 3,77 m² WC 2,29 m² Abs. 11,58 m² Schlafen 9,32 m² Flur 18,06 m² Wohnen/Essen 14,83 m² Schlafen 2,91 m² 10,05 m² Schlafen 2,48 m² Abs. 1,96 m² Abs. 2,21 m² Wind./Gar. 6,02 m² Balkon 12,08 m² Balkon 12,25 m² Balkon 16,77 m² Wohnen/Essen 17,97 m² Wohnen/Essen 16,30 m² Schlafen 10,02 m² Schlafen 3,20 m² Flur 5,78 m² Flur 2,88 m² Wind./Gar. 10,18 m² Balkon 8,48 m² Balkon 5,88 m² Küche 6,64 m² Küche 6,56 m² Küche 7,32 m² Küche 7,28 m² Küche 7,98 m² Küche 3,42 5,15 m² Bad 7,64 m² Bad 6,74 m² Küche 6,66 m² Bad 8,09 m² Balkon 29,91 m² Wohn./Essen 10,29 m² Flur 11,86 m² Schlafen 10,52 m² Schlafen 4,11 m² Bad 13,91 m² Schlafen 1,51 m² Abs. 5,98 m² Aufzug 4,02 m² Aufzug 20,42 m² TH 145,67 m² Laubengang 2,37 m² Abs. 2,36 m² Abs. 2,15 m² WC 8,19 m² Bad 14,64 m² Schlafen 3,63 m² Abs. 24,51 m² Wohnen/Essen 17,71 m² Schlafen 5,36 m² Bad 3,77 m² Flur 2,70 m² Wind./Gar. 16,98 m² Wohnen/Essen 16,98 m² Wohnen/Essen 3,77 m² Flur 2,70 m² Wind./Gar. 5,68 m² Bad 17,65 m² Schlafen 17,67 m² Schlafen 4,70 m² Wind./Gar. 4,30 m² Flur 7,79 m² Balkon 7,79 m² Balkon 4,72 m² Balkon 7,86 m² Küche 7,86 m² Küche 8,09 m² Küche 9,35 m² Balkon 13,55 m² Schlafen 15,64 m² Schlafen 23,25 m² Wohnen/Essen 7,07 m² Flur 7,58 m² Küche 3,36 m² Wind./Gar. 7,53 m² Bad 3,26 m² Gäste-WC 4,24 m² Abs. 16,33 m² Schlafen 2,01 m² Gäste-WC 2,29 m² Gäste-WC 8,09 m² Bad 2,44 m² Abs. 5,50 m² Flur -2,83 -3,20 40,58 m² Flur 39,04 m² Lager 16,02 m² TH 17,67 m² Schleuse TH Nord 17,42 m² TH 1.926,51 m² Tiefgarage 94,74 m² Fahrräder 39,00 m² Technik 9,27 m² Technik 6,22 m² Abs. 6,00 m² Abs. 6,00 m² Abs. 6,00 m² Abs. 5,85 m² Abs. 6,00 m² Abs. 5,85 m² Abs. 9,75 m² Abs. 5,95 m² Abs. 5,80 m² Abs. 5,95 m² Abs. 5,95 m² Abs. 5,28 m² Abs. 5,99 m² Abs. 5,80 m² Abs. 5,80 m² Abs. 5,95 m² Abs. 6,00 m² Abs. 5,92 m² Abs. 7,66 m² Abs. 6,00 m² Abs. 10,71 m² Abs. 6,99 m² Schleuse TH Süd 5,96 m² Aufzug 4,02 m² Aufzug 18,1 22,37 m² Technik 144,61 m² Technik 6,20 m² Abs. 6,20 m² Abs. 6,20 m² Abs. 6,20 m² Abs. 6,20 m² Abs. 6,20 m² Abs. 6,20 m² Abs. 6,20 m² Abs. 6,20 m² Abs. 6,20 m² Abs. 6,20 m² Abs. 6,13 m² Abs. 6,20 m² Abs. 6,20 m² Abs. 6,11 m² Abs. 6,20 m² Abs. 6,11 m² Abs. 6,20 m² Abs. 6,11 m² Abs. 6,13 m² Abs. 6,11 m² Abs. 6,20 m² Abs. 6,11 m² Abs. 6,20 m² Abs. 6,11 m² Abs. 6,14 m² Abs. 6,11 m² Abs. 6,20 m² Abs. 6,11 m² Abs. 6,20 m² Abs. 6,11 m² Abs. 6,20 m² Abs. 6,11 m² Abs. 6,20 m² Abs. 7,14 m² Abs. 6,76 m² Abs. 66,30 m² Flur 5,58 m² Technik M 1 200 Tiefgarage

LONG UND SHORTSTAY HOTEL NEURIED

Forstenrieder Straße, 82061 Neuried Neubau - Entwurfsplanung (10.2018)

BIM Planung

Lage und zukünftige Nutzung des Grundstücks

Im Herzen der Metropolregion München gelegen, bieten hochqualifizierte Arbeitskräfte, perfekte Verkehrs-anbindungen und die Nähe zu Wissenschafts- und Forschungseinrichtungen beste Voraussetzungen für die Unternehmensansiedlung in Neuried.

Die Nähe und die Anbindung zur Landeshauptstadt München und der dazu vergleichsweise niedrige Gewerbesteuerhebesatz von 330 % sind optimale Bedingungen dafür.

Die momentan über 800 Gewerbetreibenden profitieren von dem Zusammenschluss der Würmtalgemeinden, welcher zusammen mit dem örtlichen Wirtschaftsclub Neuried e. V. ein aktives Netzwerk darstellt. In Neuried haben Arbeitnehmer eine hohe Lebensqualität, familienfreundliches Wohnen und genießen den Freizeitwert von München und seinem Umland. Hier gilt: „Wohnen und Arbeiten nearby.“

In Neuried gibt es einen Mix aus Dienstleistungs-, Gastronomie- und Handwerksbetrieben. Auch einige Biotechnologie-Unternehmen sowie eine Forschungsstation

des Max-Planck-Instituts sind in Neuried ansässig. Unternehmen profitieren von der Nähe zu den Top-Clustern der Biotechnologie in Martinsried und der Luft- und Raumfahrt in Oberpfaffenhofen. Auf dem Gelände selbst beabsichtigt ein renommiertes Biotechnologie Unternehmen eine Bürofläche von ca. 18.000 m² BGF anzumieten. Weitere Anfragen für Büronutzungen liegen vor.

Seitens des bisherigen Entwurfes Änderung

B-Plan entsteht im Süden des 28.000 m² großen Grundstücks Wohnbebauung und im Norden ein Gewerbe – und Büropark, wobei ausdrücklich die Nutzungen Hotel, Boardinghouse und Gastronomie durch die Gemeinde Neuried erwünscht sind und im B-Plan Entwurf festgesetzt werden sollen.

Die bisherige Konzeption geht von einem Hotel von 145 Zimmern und einem Micro Apart Boardinghouse mit ca. 105 Apartments in drei Typen (Economy, Business Light und Business Comfort) aus.

Durch die zukünftigen Büronutzer ist erwünscht, dass sich möglichst auf diesem Gelände eine Daily Gastronomie vorhanden ist, um den zukünftigen 300 - 400 Mitarbeitern entsprechende Versorgungsmöglichkeiten zu bieten.

2 MASS DER BAULICHEN NUTZUNG

(§ 9 Abs. 1 Nr. 1 BauGB)

2.1 Zulässige Grundfläche Nutzung Grundflächenzahl-GRZ

§ 17 i.V.m. § 19 BauNVO

GE max. 0,8

2.2 Zulässige Geschossfläche Nutzung Geschossfläche-GF

§ 20 BauNVO

GE-1 max. 1.750 m²

GE-2 max. 5.250 m²

6 ÖRTLICHE BAUVORSCHRIFTEN (Art. 81 BayBO)

6.1 Gestaltung baulicher Anlagen

6.1.2 Gebäude im GE Dachform: Flachdach (FD) zusätzlich Pultdach (PD) für Nebenanlagen; Dachdeckung: Flachdächer sind mit einer extensiven Dachbegrünung als Gründach auszubilden. Untergeordnete Teile der Dachflächen können zusätzlich in Metalldeckung ausgebildet werden.

ENTWURF Neuried Hotel, Erdgeschoss

Büro -und

2.3.2 Höhenlage baulicher Anlagen ( § 9 Abs. 3 BauGB) Die FFOK-Erdgeschoss der Gebäude und baulicher Anlagen sind auf die folgenden Höhenkoten zu legen.

Ort Höhenkote Hauptgebäude GE 561,60 m ü. N.N.

Long und Shortstay Hotel Neuried Long und Shortstay Hotel Neuried 38 39 PAB Architekten - Long und Shortstay Hotel Neuried - LP3 PAB Architekten - Long und Shortstay Hotel Neuried - LP3
LAGEPLAN, GRUNDRISS EG Kontur TG Kontur TG Baugrenze Baugrenze Baugrenze Baugrenze Tiefgarage Zu-u. Ausfahrt Tiefgarage Überdachung Grundstücksgrenze Grundstücksgrenze Grundstücksgrenze Grundstücksgrenze Planstraße Forstenrieder Straße Baukörper C GH 14 m Baukörper A GH 18 m Baukörper B GH 14 m Gehweg Knödellinie Knödellinie Gehweg VORABZUG KonturEG Kontur EG Kontur TG Kontur TG Kontur EG Kontur EG Kontur EG FD EG FD EG FD 4.OG, Fluchtw. FD 3.OG Zu-u. Ausfahrt zum Nachbargrundstück PLANSTRASSE Aussenterrasse 142 110/9 108/9 111/12 Haupteingang in Bearbeitung! 22 PKW Stellplätze Anlieferung 5.006.005.00 Grundstücksgrenze
GE-2 GE-1 8 Stellplätze 7 Stellplätze
Anlieferung PLANSTRASSE 2.406.002.40 86.50 40.50 7 Stellplätze Aussenterrasse Projektname Projektadresse Planname Plannummer Dr. Ing. Krista Blassy Architektin BDA Kundenname Die Zeichnung ist geistiges Eigentum von PAB ARCHITEKTEN Dr. Krista Blassy und darf ohne Genehmigung weder vervielfältigt noch Dritten zugänglich gemacht werden. Niederlassung München D-80802 München Leopoldstr. 80 Tel +49-89-2000800-0 Fax +49-89-2000800-80 N ed ung r r D - 9 084 Ba h o - 44 T + 9- 6 - 6 3 - 6 F + 49- 36 - 1 - 7 kontakt@pab-arch.de www.pab-architekten.de GR00_Lp A3 Wohn,
Forstenrieder Str. Neubau Hotel ibis STYLES Lageplan Objekt 10 GmbH Lohenstr. 13 82166 Gräfelfing 10 10 11 11 12 12 13 13 14 14 15 15 16 16 G M L' 16' 16' Aa Aa Ac Ac Ad Ad 1b 1b 1a 1a Kontur Tiefgarage Kontur Tiefgarage Kontur Tiefgarage Außenterrasse Rezeption/Bar/Cafe Anlieferung Baug enze Baugrenze Baugrenze Baugrenze Tiefgarage Zu-Ausfahrt Tiefgarage Überdachung Planstraße Ab Ab Kontur Tiefgarage Kontur Tiefgarage Kontur Tiefgarage Kontur Tiefgarage Kontur Tiefgarage 67.07 17 17 12' 12' Knödellinie Knödellinie 53.00 33.50 Außenterrasse Gunds ücksgrenze Gundstücksgrenze Grundstücksgrenze Knödellinie 4 0 Außenterrasse Haupteingang Flexible Trennwand
ENTWURF Neuried Hotel, Lageplan
Gewerbepark Neuried,
8 Stellplätze 7 Stellplätze Rezeption/Bar Cafe Anlieferung Müllraum /Leergutlager Bearbeitung! 7 Stellplätze Kon urRG Kon ur RG Kontur RG Kontur RG Kontur RG Kontur RG Kon ur RG UZ UZ UZ Kontur RG Kontur RG UZ UZ Rampe 15% Geflälle 7,5% 7,5% 3% Kontur RG Kontur RG UZ Dr. Ing. Krista Blassy Architektin BDA Hinweis: Legende: Leopoldstr.- -- -VORA Wohn, Neuried, Neubau Hotel Erdgeschoss Objekt Lohenstr. 82166 Nr. Beschreibung

ENTWURF Neuried Hotel, 1. Obergeschoss

ENTWURF Neuried Hotel, 4. Obergeschoss

Long und Shortstay Hotel Neuried Long und Shortstay Hotel Neuried 40 41 PAB Architekten - Long und Shortstay Hotel Neuried - LP3 PAB Architekten - Long und Shortstay Hotel Neuried - LP3 ANSICHTEN GRUNDRISSE 10 10 11 11 12 12 13 13 14 14 15 15 16 16 A C E G K M B D H 7' 7' L' 16' 16' Aa Aa 4 4 2 2 4' 4' Ac Ac Ad Ad 1b 1b 1a 1a Baugrenze Baugrenze Baugrenze 8.92 1.68 5.79 6.08 1.35 4.88 1.203.15 6.65 3.151.20 4.88 1.3 6.08 3.15 6.65 3.15 6.60 1.35 5.40 1.20 28.48 Familienzimmer A110 A119 18.51 m² Zimmer NF 18.51 Zimmer NF 18.89 NF 18.45 Housekeeping A-WC120 A-WC137 NF 3.44 m² WC-DU A-WC129 A-WC130 A-WC133 WC-DU A-WC124 B-WC111 A-WC121 NF 2.90 m² WC-DU NF 2.90 WC-DU 2.90 WC-DU A-WC-117 40.16 m² Verbinderbau A-WC136 rollstuhlgerechtes Zimmer NF 13.62 Zimmer 60.02 m² Flur 19.28 Housekeeping A129 NF 13.56 double room 13.57 m² Zimmer 2.25 Aufzug 18.90 m² 2.90 WC-DU 6.16 V102 8.92 1.68 5.79 6.08 1.35 4.88 1.203.15 6.65 3.151.20 4.88 1.3 6.08 3.15 6.65 3.15 6.60 1.35 5.40 1.20 14.31 12.15 14.31 10.75 18.15 Flachdach Erdgeschoss Flachdach Erdgeschoss Zimmertypenübersicht 1.OG bis 3.OG + linker Flügel 4.OG Mini-Suiten 11 Zi. barrierefreie Zimmer 9 Zi. Double Room A Double Room B 10 DZ. "20 Zi." rollstuhlgerechtes Zimmer 3 Zi. Familienzimmer 4 Zi. 125 Standardzimmer B-WC103 Hotel A linker Flügel 76 Zimmer Ab Ab Hotel A rechter Flügel 54 Zimmer Hotel B 42 Zimmer Gesamt: 172 Zimmer Kontur Tiefgarage Kontur Tiefgarage Kontur Tiefgarage Kontur Tiefgarage Kontur Tiefgarage Kontur Tiefgarage NF 2.56 m² WC-DU A-WC110 40 6.00 151.2015 6.00 40 12.15 13.91 40 10.75 40 7.92 151.2015 7.92 40 17 17 12' 12' 53.00 33.50 Knödellinie Knödellinie 69.67
50 Planname Plannummer Dr. Ing. Krista Blassy Die Zeichnung geistiges Eigentum von PAB ARCHIT Krista Blassy darf ohne Genehmigung weder vervielfältigt noch Dritten zugänglich gemacht werd Hinweis: Legende: Niederlassung München Leopoldstr. 80- -- -kontakt@pab-arch.de VORABZUG GR03_OG1 A0 Wohn, Büro -und Gewerbepark Neuried, Forstenrieder Str. Neubau Hotel ibis STYLES 1. Obergeschoss Objekt 10 GmbH Lohenstr. 13 82166 Gräfelfing Nr. Beschreibung Datum 10 10 11 11 12 12 13 13 14 14 15 15 16 16 A C E G K M B D F H L 7' 7' L' 16' 16' Aa Aa 4' 4' Ac Ac Ad Ad 1b 1b 1a 1a Ab Ab 8.92 1.68 5.79 6.08 1.35 4.88 1.203.15 6.65 3.151.20 4.88 1.3 6.08 3.15 6.65 3.15 6.60 1.35 5.40 1.20 8.92 1.68 5.79 6.08 1.35 4.88 1.203.15 6.65 3.151.20 4.88 1.3 6.08 3.15 6.65 3.15 6.60 1.35 5.40 1.20 1.002.17 3.17 3.17 6.35 3.17 3.17 3.17 3.17 3.17 3.17 2.80 17 17 12' 12' TF401 extensive Dachbegrünung extensive Dachbegrünung 40 6.05 30 Knödellinie Knödellinie Absturzsicherung Absturzsicherung A401 NF 13.56 28.46 Familienzimmer A405 NF 13.47 Zimmer A406 18.88 Mini-Suite Zimmer A412 NF 13.47 Zimmer A414 A415 13.56 m² Zimmer 13.56 m² A419 14.31 12.55 13.51 11.15 18.15 40 6.00 151.2015 6.00 40 12.15 40 13.51 40 10.75 40 8.00 01.350 8.00 40 69.67 WC-DU A-WC405 NF 2.90 m² WC-DU A-WC406 2.56 WC-DU 6.45 6.60 402.37 40 2.90 WC-DU A-WC414 WC-DU A-WC415 NF 2.90 m² NF 7.41 Technik NF 18.75 Flur
NF 2.76 Aufzug 4.11 6.09 4.10 N Projektname Projektnummer Dr. Ing. Krista Blassy Architektin BDA Projektausgabedatum Hinweis: Legende: A0 Niederlassung München D-80802 München VORABZ G Wohn, Büro -und Gewerbepark Neuried, Forstenrieder Str. Projektstatus 1240 Neubau Hotel ibis STYLES Objekt 10 GmbH Lohenstr. 13 82166 Gräfelfing Autor 20.07.2018 Nr. Beschreibung Datum N Projektname Projektadresse Planname Leistungsphase Projektnummer Projektstatus Gezeichnet von Bestätigt von Plannummer Maßstab Dr. Ing. Krista Blassy Architektin BDA Projektausgabedatum Kundenname Die Zeichnung ist geistiges Eigentum von PAB ARCHITEKTEN Dr. Krista Blassy und darf ohne Genehmigung weder vervielfältigt noch Dritten zugänglich gemacht werd Nordpfeil Format ENTWURF A3 Niederlassung München D-80802 München Leopoldstr. 80 Tel +49-89-2000800-0 Fax +49-89-2000800-80 g -9 h- - 04 - - 3kontakt@pab-arch.de www.pab-architekten.de 1 200 24.07.2018 14:18:24 C:\Users\mike.zillmann\Documents\180717_ARCH_HOTEL A-B_Maik.Zillmann.rvt AN01 A3 Wohn, Büro -und Gewerbepark Neuried, Forstenrieder Str. Projektstatus 1240 Neubau Hotel ibis STYLES Ansichten Objekt 10 GmbH Lohenstr. 13 82166 Gräfelfing EG Dr. Blassy 20.07.2018 Süd-Ost Ansicht Nord-Ost Ansicht N Projektname Projektadresse Planname Leistungsphase Projektnummer Projektstatus Gezeichnet von Bestätigt von Plannummer Maßstab Dr. Ing. Krista Blassy Architektin BDA Projektausgabedatum Kundenname Die Zeichnung ist geistiges Eigentum von PAB ARCHITEKTEN Dr. Krista Blassy und darf ohne Genehmigung weder vervielfältigt noch Dritten zugänglich gemacht werd Nordpfeil Format ENTWURF A3 Niederlassung München D-80802 München Leopoldstr. 80 Tel +49-89-2000800-0 Fax +49-89-2000800-80 N d u D- 4+ - 6 - - 0 - -6kontakt@pab-arch.de www.pab-architekten.de 1 200 24.07.2018 14:18:59 C:\Users\mike.zillmann\Documents\180717_ARCH_HOTEL A-B_Maik.Zillmann.rvt AN02 A3 Wohn, Büro -und Gewerbepark Neuried, Forstenrieder Str. Projektstatus 1240 Neubau Hotel ibis STYLES Ansichten Objekt 10 GmbH Lohenstr. 13 82166 Gräfelfing Autor Verantwortlicher für die Bestätigung 20.07.2018 Süd-West Ansicht Nord-West Ansicht
Long und Shortstay Hotel Neuried Long und Shortstay Hotel Neuried 42 43 PAB Architekten - Long und Shortstay Hotel Neuried - LP3 PAB Architekten - Long und Shortstay Hotel Neuried - LP3
BIM MODELLE BIM MODELLE

Neubau Wohnpark Meiningen

Vier Mehrfamilienhäuser Steinweg/Bechsteinstraße

98617 Meiningen

Allgemeine Beschreibung des Vorhabens

Die Rhön- Rennsteig Sparkasse beabsichtigt im Planungsgebiet zwischen dem Steinweg und der Bechsteinstraße vier Mehrfamilienhäuser auf den Baufeldern 4, 5, 12 und 13 zu errichten. Dabei werden verschiedene Wohnungsgrößen, vom 1-Zimmer-Apartment bis hin zur 3,5-Zimmer-Wohnung, angeboten. Dies reagiert auf die Nachfrage nach kleinen bezahlbaren Wohnungen in der Innenstadt. Es werden jeweils zwei baugleiche Häuser realisiert, die dem dort gültigen B-Plan entsprechen. Der Haus Typ A wird auf Baufeld 4 und 5 und der Haus Typ B auf Baufeld 12 und 13 errichtet.

Bauwerk – Kubatur/ Gestaltung

Haus Typ A

Das 3-geschossige Mehrfamilienhaus erhält einen farblich abgesetzten Sockel und in den Regelgeschossen im EG und 1. OG eine weiße Putzfassade. Das Staffelgeschoss hebt sich durch eine hinterlüftete Fassade in Holzoptik vom Baukörper ab und verkörpert im Zusammenspiel mit der hellen Putzfassade der darunter liegenden Geschosse eine moderne Architektur bei gleichzeitiger Einfügung in die städtische Umgebung. Jede Wohnung wird über eine großzügig verglaste Loggia bzw. im Dachgeschoss über eine Dachterrasse verfügen.

Haus Typ B

Das 2- geschossige Haus wird in Anlehnung an Haus Typ A mit einer helle Putzfassade mit farblich abgesetztem Sockel errichtet. Das Dach wird bündig mit der Außenwand

abschließen, sodass eine klare Gebäudekubatur entsteht und die Geradlinigkeit des Haus Typs A fortgeführt wird. Des Weiteren werden zwei auskragende Balkone diese Geradlinigkeit bewusst unterbrechen und im Dachgeschoss, einseitig in der Flucht, durch ein großzügiges Dachfenster mit Austritt gegliedert. Die Fensteröffnungen werden dem B-Plan entsprechend klein gegliedert und geben dem Baukörper einen Wiedererkennungswert in der Umgebung.

Bauwerk – Baukonstruktion

Haus Typ A

Die Konstruktion wird in Massivbauweise umgesetzt, bestehend i aus einem Kalksandstein- Mauerwerk mit einem WDVS mit heller Putzfassade m Regelgeschoss, welches auf einem aus Stahlbeton (vorauss. WUBeton) gefertigtem Kellergeschoss steht. Das Staffelgeschoss wird ebenfalls in Kalksandstein-Mauerwerks ausgeführt, allerdings hier mit einer hinterlüfteten Fassade in Holzoptik, die robust und langlebig ist.

Haus Typ B

Konstruktiv ist der Typ B gleich aufgebaut wie Typ A im Regel- und Untergeschoss, mit dem Unterschied, dass das hier vorgeschriebene Satteldach als Sparrendach, mit einem Dachziegel ausgestattet, ausgeführt wird.

Neubau Wohnpark Meiningen Neubau Wohnpark Meiningen 44 45 PAB Architekten - Neubau Wohnpark Meiningen - Bauphase PAB Architekten - Neubau Wohnpark Meiningen - Bauphase
LAGEPLAN Na Ga / P 15 16 P 17 P 18 P 19 P 20 P 21 P 22 14 13 12 P 11 10 P P 7 6 5 P S t ie n w e g Bechsteinstraße Fl.-Nr.: 900/6 Haus B1 Haus B2 Haus A2 II II II II II + ST 6,50 10 00 2 00 5 00 10 00 6 50 2, 0 0 1 4 0 0 17 00 14,00 4,00 15 00 17, 0 0 22 00 2, 0 0 1 0 0 0 6 0 0 2 0 0 1 0 0 0 5, 0 0 22 00 9 00 2 00 908/8 908/7 908/6 907/8 897/5 895/4 898/10 900/6 934/14 900/5 898/8 4.0 m Ø=0.3m 5.0 m Ø= 0.5 m 5.5 m Ø= 2x0.3 6.0 m Ø= 0.5 m 3.0 Ø= 0.2 m 2.0 m Ø= 0.2 m 6.0 m Ø= 0.5 m 2.0 m Ø= 0.15 3.0 m Ø= 0.3 m 4.0 Ø= 0.5 2.0 m Ø= 0.15 m 2.0 Ø= 0.2 m 6.0 Ø= 0.6 5.0 m Ø= 0.5 m = 5.0 Ø= 0.4 m Stamm Ø= 0.5 m 907/5 Haus A1 II + ST N
Neubau Wohnpark Meiningen Neubau Wohnpark Meiningen 46 47
HAUS TYP A: GRUNDRISS, ANSICHT
PAB Architekten - Neubau Wohnpark Meiningen - Bauphase PAB Architekten - Neubau Wohnpark Meiningen - Bauphase
HAUS TYP A: GRUNDRISS, ANSICHT
Neubau Wohnpark Meiningen Neubau Wohnpark Meiningen 48 49
PAB Architekten - Neubau Wohnpark Meiningen - Bauphase PAB Architekten - Neubau Wohnpark Meiningen - Bauphase
HAUS TYP A: GRUNDRISS, ANSICHT HAUS TYP A: PERSPEKTIVE
Neubau Wohnpark Meiningen Neubau Wohnpark Meiningen 50 51
HAUS TYP B: GRUNDRISS, ANSICHT
PAB Architekten - Neubau Wohnpark Meiningen - Bauphase PAB Architekten - Neubau Wohnpark Meiningen - Bauphase
HAUS TYP B: GRUNDRISS, ANSICHT
Neubau Wohnpark Meiningen Neubau Wohnpark Meiningen 52 53
PAB Architekten - Neubau Wohnpark Meiningen - Bauphase
HAUS TYP B: GRUNDRISS, ANSICHT HAUS TYP A: PERSPEKTIVE
CONG DOANH LIEN 141/61 Tam Danh Street, District 8 Ho Chi Minh City Vietnam +(84) 349 980 975 doanharc@hotmail.com

Turn static files into dynamic content formats.

Create a flipbook