Skip to main content

David Ma_Portfolio

Page 1

ARCHITECURE PORTFOLIO DAVID MA

ISSUED FOR CONSOLIDATION - MAY 31, 2019

ABBARCH PROJECT 2312

BLDGA PROPOSED SAVE-ON-FOODS BUILDING 156th ST 104th AVE 157th ST 105thAVE BLDG C BLDG C BLDG D D BLDG EEBLDG BLDG GGBLDG BLDG B B
ADDRESS: LEGAL DESCRIPTION: APPLICABLE CODE: 5/31/2019 9:48:45 AM C:\Revit Projects\2312 Guildford SoF Sheets ARCH-(2017) NEW_DMa@abbarch.com.rvt
GUILDFORD
PROJECTINFORMATION CIVIC
JIM PATTISON DEVELOPMENTS
VILLAGE BLDG A & SITE (PHASE I)
15615-104 AVENUE PID: 030-036-241 LOT 1 SECTION 22 BLOCK 5 NORTH RANGE 1 WEST NEW WESTMINSTER DISTRICT PLAN EPP61085 BRITISH COLUMBIA BUILDING CODE (2012) SURREY, BRITISH COLUMBIA GUILDFORD VILLAGE SUPERMARKET #2255 SURREY,BC SCALE: 1" = 60'-0" SITE KEY PLAN
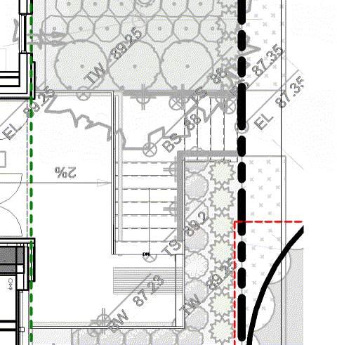
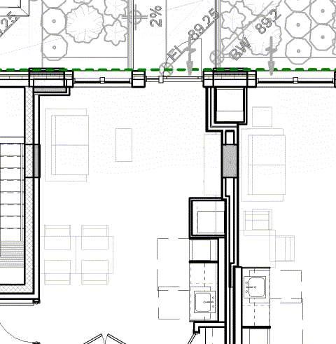
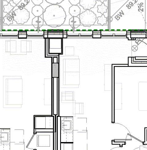
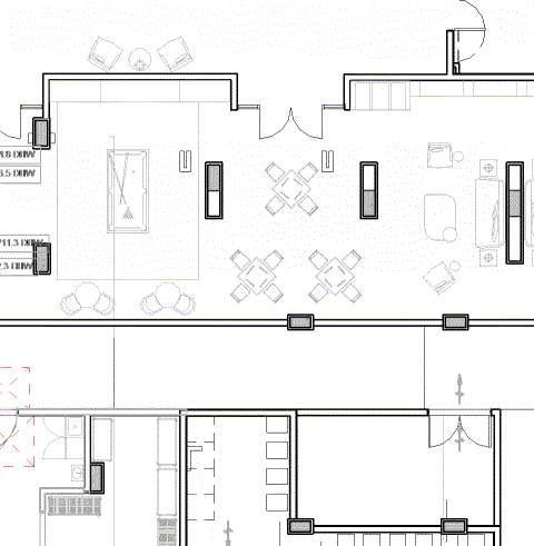
TD TD TD TD TD TD FD FD TD FD TD TD FD TD HD HD HD HD HD HD TD FD FFD HD HD HD HD FFD HD HD FFD HD FFD HD FFD HD FFD HD FFD FFD FFD FFD HD FD FD lotto 54" 87" 87" 87" 87" 87" 87" 87" 87" 87" 87" 87" 87" 54'' *NOTE: LH APPROX. COMPRESSOR RACK 214x50x80 FD HD 1. MAIN FLOOR PLAN USED FOR OVERALL EXTERIOR AND COLUMN DIMENSIONS, DOOR & WINDOW REFERENCE AND ENLARGED REFERENCE GUIDE. FOR MORE DETAIL, REFER TO ENLARGED FLOOR PLANS. 2. ALL WINDOW AND DOOR DIMENSIONS ARE TO EDGE OF CLEAR OPENING UNLESS NOTED OTHERWISE. 3. ALL WORK BY GENERAL CONTRACTOR UNLESS NOTED OTHERWISE. 4. CONTRACTOR TO PROVIDE BACKING FOR FIXTURES AS DIRECTED BY TENANT/OFG A1 A1 A2 A2 A2' A3' A4 A4 A5 A5 A5' A6 A6 A6' A6' A7 A7 A9 A9 A3 A3 AB AB AC AC AD AD AF AF AB' AC' AA' AA' AE AE 1 A-A4.2.1 1 A-A4.2.1 2 A-A4.2.1 2 A-A4.2.1 3 A-A4.2.1 3 A-A4.2.1 4 A-A4.2.1 4 A-A4.2.1 A4' 30'-8" 31'-10" 30'-8" 28'-7" 32'-9" 38'-5" 37'-0" 19'-5" VESTIBULE 102 EXIT 104 ENTRANCE 103 SEATING 106 FLORAL SALES 109 CUSTOMER SERVICE 188 UTR UNISEX W/C 173 CASH OFFICE 184 CONSULTATION 165 PHARMACY STORAGE 163 DISPENSARY 162 CHECK STANDS 159 PRODUCE SALES 144 FOOD SALES 120 BAKERY SALES 126 FOOD COOLER 118 CHICKEN COOLER 119 FOOD SERVICE 116 DELI SALES 131 DELI WORK 128 BAKERY COOLER 124 BAKERY OVEN 123 BAKERY FREEZER 125 DELI COOLER 130 PRODUCE COOLER 143 STOCKROOM 180 COMPRESSOR ROOM 179 STAIR #1 ST1 JANITOR ROOM 178 GROCERY FREEZER 150 DAIRY COOLER 156 HALLWAY 170 FIRST AID ROOM 176 WOMEN'S WASHROOM 172 PRODUCE CUT FRUIT 154 MEAT COOLER BOX 139 MEAT WORK 138 SEAFOOD COOLER 135 PRODUCE PREP. AREA 142 SEAFOOD WORK 134 MEAT & SEAFOOD SALES 140 DAIRY SALES 157 FROZEN GOODS 151 SALES 158 BULKFOODS SALES 146 SECURITY GRILLE TRACK OUTLINE OF BULKHEAD ABOVE OUTLINE OF BULKHEAD ABOVE OUTLINE OF BULKHEAD ABOVE PROVIDE STRUCTURAL POST SUPPORT FOR PARTIAL HEIGHT WALLS, SEE STRUCT. DWGS. OUTLINE OF HOOD ABOVE. PROVIDE STRUCTURAL POST SUPPORT FOR PARTIAL HEIGHT WALLS, SEE STRUCT. DWGS. EXTENT OF SEALED WALL (FROM FLOOR TO ROOF DECK.) TO MAINTAIN POSITIVE AIR PRESSURIZED BUILDING EXTENT OF SEALED WALL (FROM FLOOR TO ROOF DECK.) TO MAINTAIN POSITIVE AIR PRESSURIZED BUILDING 23'-7" 7'-1" 10'-5" 18'-2" 16'-10" 15'-11" 34'-1" 4'-4" 12'-5" 5'-6 1/2" G06 G07 G15 G14 G14 G15 G12 G10 G11 G11 G09 G08 G05 G16 G05 2'-1" 3'-9" 3'-11" 6'-3" 3'-7" 11'-9 1/2" 1'-9" 3'-5" 10'-1 1/2" 6'-8" 15'-3" 6'-0"6'-0" 14'-8" TACTILE WARNING, SEE SPEC 1'-6" 1'-2" 6'-2" 5'-8" 6" 8" 1'-2" 18'-3" 6'-2" 11'-4"1'-2" EXTERIOR WALL FINISH TRANSITION PANEL TRANSITION PANEL TRANSITION 1'-8" 1'-2" 6'-5" 1'-2"6'-2" 1'-2" 4'-5" EXTERIOR WALL FINISH TRANSITION OUTLINE OF HOOD ABOVE 104 103 102b 102a 102c 102d 102h 101e 101d 101c 101b 101a 102f 102e 102g 166a 134 180e 170 178 172 171 180d 180b 180c 180a ST1b ST1c 176 163 165 184 173 179 6'-11 3/4" 11'-3 1/4" 16'-3 1/4" ECa MEN'S WASHROOM 171 162 G04A G04B OUTLINE OF PLYWOOD BULKHEAD ABOVE OUTLINE OF WALL ABOVE OUTLINE OF WALL ABOVE OUTLINE OF PLYWOOD BULKHEAD ABOVE OUTLINE OF WALL ABOVE OUTLINE OF WALL ABOVE BULKHEAD ABOVE 2 A-A7.1.1 1 A-A7.1.1 1 A-A7.1.3 1 A-A7.1.2 2 A-A7.1.2 AA AA A8 A8 1 A-A8.1.5 4 A-A8.1.5 A10 3 A-A8.1.5 2 A-A8.1.5 1 A-A8.1.1 2 A-A8.1.1 3 A-A8.1.1 4 A-A8.1.1 1 A-A8.1.7 2 A-A8.1.7 2 A-A7.3.1X 3 A-A8.1.7 HOT WATER4 1/2" 4 1/2" 10 1/2" 4 1/2" 4 1/2" 17'-0" 4 1/2" 11'-3 1/2"1'-2"4'-7"8'-0 1/2" 15'-2 1/2" 7'-0" 1'-2" 3'-2" 1/2" 4 1/2" 4 A-A8.1.7 5 A-A8.1.7 SECURITY 177 CLOSET 187 50'-2" 32'-1" 35'-0" 40'-7" 45'-4 1/2" 203'-2 1/2" 14'-5" 13'-4 1/2" 8'-7 1/2" 28'-2" 8'-6" 23'-7" 249'-4" ECb ST2a 188 FOOD WORK 117 BAKERY WORK 122 EC ESCALATOR CARTVEYOR CO2 STORAGE5 A-A8.1.1 3 A-A8.1.2 1 A-A8.1.2 2 A-A8.1.3 1 A-A8.1.3 3 A-A8.1.3 4 A-A8.1.3 1 A-A8.1.4 2 A-A8.1.4 3 A-A8.1.4 4 A-A8.1.4 2 A-A8.1.6 1 A-A8.1.6 3 A-A8.1.6 5 A-A8.1.6 6 A-A8.1.6 2 A-A8.1.2 PAINTED MDF ABOVE FIXTURES BY GENERAL CONTRACTOR. REFER TO TABLE ON A-A 9.1.1 OUTLINE OF CLERESTORY ABOVE OUTLINE OF CLERESTORY ABOVE PAINTED MDF ABOVE FIXTURES BY GENERAL CONTRACTOR. REFER TO TABLE ON A9.1.1 PAINTED MDF ABOVE FIXTURES BY GENERAL CONTRACTOR. REFER TO TABLE ON A-A 9.1.1 PAINTED MDF ABOVE FIXTURES BY GENERAL CONTRACTOR. REFER TO TABLE ON A-A 9.1.1 PAINTED MDF ABOVE FIXTURES BY GENERAL CONTRACTOR. REFER TO TABLE ON A-A 9.1.1 PRE-FINISHED METAL CLADDING ABOVE FIXTURES BY GENERAL CONTRACTOR. REFER TO TABLE ON A-A 9.1.1 9'-7 1/2" 2'-1" EXTERIOR WALL FINISH TRANSITION G13 ABOVE G02 ABOVE FIRE DEPARTMENT CONNECTION G03 ABOVE 1'-0" OUTLINE OF CANOPY ABOVE PAINTED CONCRETE BOLLARD (TYP.) CROSS BRACING, SEE STRUCTURAL DRAWINGS CROSS BRACING, SEE STRUCTURAL DRAWINGS CROSS BRACING, SEE STRUCTURAL DRAWINGS 7 1/2"7'-0" 16'-0" 7 A-A8.1.6 CROSS BRACING, SEE STRUCTURAL DRAWINGS A-A2.2.3 1 A-A2.2.2 1 A-A2.2.1 1 A-A2.2.4 1 SLAB ELEVATION 77.10m GEODETIC 100'-0" DATUM SUSPENDED CONCRETE FLOOR SLAB (REFER TO STRUCTURAL DRAWINGS) 11'-9" 10 1/2" 12'-4 1/2" 2'-3 1/2"12'-6" 3'-9"4'-11" 1'-3 1/2" 8'-5 1/2"1'-7 1/2" 1'-9 1/2" 8'-5 1/2" 8'-0" 3'-10" 8'-0" 19'-0" 2'-7" 16'-4" 18'-4" 13'-9" 14'-10 1/2" 18'-4" 15'-4" 3'-2" 18'-7 1/2" 8'-8" 4'-8" 11" 12'-9 1/2" 9'-1" 12'-6" 11'-9 1/2" 11'-9 1/2" 15'-11" 16'-10" 16'-10" 14'-9" 2'-7" 20'-1" 7'-2" 5" 16'-5" 10'-6" 15'-3 1/2" 8" 8'-0 1/2" 4'-0"1'-6" 7'-0"1'-1" 2'-7" 20'-9" STEEL GRATE STEEL GRATE 1'-0"0" 8'-5 1/2" 16'-4 1/2" 8'-10 1/2" 9'-0" 1'-1" 3 1/2" 1'-3" 11" 6'-7" HOSE BIBB CONNECTION A-A10.1.1 9 A-A10.1.1 9 STOCKROOM 180 OUTDOOR SALES 101 4'-6"1'-0 1/2" 1'-6 1/2" 5'-4 1/2" EXIT EXIT EXIT EXIT EXIT EXIT EXIT EXIT EXIT EXIT EXIT EXIT EXIT EXIT EXIT ANNUNCIATOR PANEL A-A2.3.1 3 A-A2.3.1 1 A-A2.3.1 2 A-A2.3.2 1 9"9" 2'-11" 7"2'-11" 3'-5" 1'-3 1/2" 2'-3" 7" 24'-0" 2'-11" 6" 5'-11 1/2" DN 8R DN 7R DN 27R 166c 166b FLORAL WORK AREA 108 PHARMACY 166 11" 4 1/2" 11" 3 1/2" 1'-0" TORONTO, ON VANCOUVER, BC 416.340.8441 416.340.8441 604.669.4041 604.669.4041 E n g g a n g D e s g n TM SCALE: DRAWN BY: CHECKED BY: PROJECT NO: SHEET: PLOTTED: THE DESIGN OF ALL SUSPENDED ARCHITECTURAL COMPONENTS INCLUDING BULKHEADS, CEILINGS, EQUIPMENT, PIPING AND OTHER SUSPENDED ITEMS MUST BE CARRIED OUT BY PROFESSIONAL STRUCTURAL ENGINEERS, REGISTERED TO PRACTICE IN THE PROVINCE OF BRITISH COLUMBIA AND EMPLOYED DIRECTLY BY THE RESPECTIVE CONTRACTOR AND SUB-CONTRACTOR. DESIGNS SHALL TAKE INTO ACCOUNT ALL SEISMIC AND DESIGN LOAD REQUIREMENTS, AS SET OUT IN THE BC BUILDING CODE, LATEST EDITION. THE PROFESSIONAL STRUCTURAL ENGINEER SHALL PREPARE SIGNED AND SEALED DRAWINGS AND CERTIFY THE COMPLETED INSTALLATION, UTILISING SCHEDULES -B AND S- OF THE BC BUILDING CODE. THE DESIGNS ARE ALSO SUBJECT TO THE APPROVAL OF THE OWNER AND ARCHITECT WITH REGARD TO SUITABILITY OF APPEARANCE AND COMPATIBILITY WITH ADJACENT WORK. FILE PATH: SHEET TITLE: SEAL: SHEET NOTES 5/31/2019 9:51:27 AM 1/8" 1'-0" C:\Revit Projects\2312 Guildford SoF Sheets ARCH-(2017) NEW_DMa@abbarch.com.rvt A-A2.1.1 JC, JK, HC ND 2312 15615-104 AVENUE BLDG A MAIN FLOOR GUILDFORD VILLAGE BLDG A & SITE (PHASE I) SURREYBC SCALE: 1/8" 1'-0" BLDG A - MAIN FLOOR PLAN 1 NODATEISSUE ADDENDUM REVISION 1MAY 31, 2019ISSUED FOR CONSOLIDATION PHASE
AA 125'-8" T/O PARAPET FRAMING 121'-0" U/S OF ROOF DECK 100'-0" T/O MAIN FLOOR SLAB AA 124'-8" T/O PARAPET FRAMING 121'-0" U/S OF ROOF DECK 100'-0" T/O MAIN FLOOR SLAB AA 124'-8" T/O PARAPET FRAMING 121'-0" U/S OF ROOF DECK 100'-0" T/O CONC. TOPPING 128'-0" T/O PARAPET FRAMING AA 121'-0" U/S OF ROOF DECK 100'-0" T/O MAIN FLOOR SLAB 128'-0" T/O PARAPET FRAMING AA 100'-0" T/O MAIN FLOOR SLAB 121'-0" U/S OF ROOF DECK 4 1/2" R1 F01 F03b GRID LINE TO INTERIOR FACE OF INSULATED WALL PANEL SYSTEM CENTER OF COLUMN AT HORIZ. BAND T/O MASONRY WALL BASE PROVIDE 4" HIGH FLASHING BOOT TO MASONRY CAP FLASHING TYP. TO EACH SIDE OF WALL FEATURE ASSEMBLY 6 B L O C K C O U R S E S & J O N T S A B O V E S L A B 3'-11 1/2" 4'-8" WF01 WE02 W25 A P01 A-A9.2.1 8 A-A9.2.7 11 162 DISPENSARY 4 1/2" R1 F01 F03b T/O MASONRY WALL BASE 6 B L O C K C O U R S E S & O N T S A B O V E S L A B 3'-11 1/4" PROVIDE 4" HIGH FLASHING BOOT TO MASONRY CAP FLASHING TYP. TO EACH SIDE OF WALL FEATURE ASSEMBLY GRID LINE TO INTERIOR FACE OF INSULATED WALL PANEL SYSTEM CENTER OF COLUMN 21'-0" 3'-8" 24'-8" A-A9.2.1 2 A-A9.2.1 8 A-A9.2.1 7 WF01 WF02 WE02 P01 WF02 WR20a A1HR A-A9.2.7 11 162 DISPENSARY GRID LINE TO INTERIOR FACE OF INSULATED WALL PANEL SYSTEM CENTER OF COLUMN 4 1/2" R1 F01 F03b T-BAR CEILING PER REFLECTED CEILING PLAN REFER TO FLOOR PLAN FOR ANY REQUIRED WALL FURRING T/O MASONRY WALL BASE PROVIDE 4" HIGH FLASHING BOOT TO MASONRY CAP FLASHING TYP. TO EACH SIDE OF WALL FEATURE ASSEMBLY 6 B L O C K C O U R S E S & J O N T S A B O V E S L A B 3'-11 1/2" P01 WE02 WF01 WF03 WF03 8'-6" A-A9.2.1 8 W25 A 187 CLOSET GRID LINE TO INTERIOR FACE OF INSULATED WALL PANEL SYSTEM CENTER OF COLUMN R1 F01 F03b 1/2" U/S OF HORIZONTAL BAND REFER TO ELEVATION DWGS. FOR EXTENT OF EIFS FINISH HORIZONTAL BAND BEYOND; REFER TO ELEV DWGS. A-A9.2.1 9 A-A9.2.1 4 P02 WE02 WF03 WE02 WF02 WR20a A-A9.2.7 2 WF03 162 DISPENSARY OUTLINE OF ILLUMINATED BUILDING SIGNAGE. EXTENT REQUIRED PER ELEVATIONS. PROVIDE TREATED PLY. BLOCKING TO MIN. 12" BEYOND REQUIRED DIMENSIONS OF BUILDING SIGNAGE. R1 U/S OF HORIZONTAL BAND F01 CONCRETE SLAB OVER UNDERGROUND PARKING, PER STRUCT. DWGS. REFER TO WINDOW SCHEDULE FOR HORIZONTAL CURTAIN WALL MULLION SPACING REQUIRED STRUCTURAL STEEL ROOF FRAMING; REFER TO STRUCT. DWGS. SLOPE TOP TO DRAIN PER DIRECTIONS INDICATED ON ROOF PLAN. HORIZONTAL BAND AT CORNER FEATURE WALL; REFER TO ELEV. DWGS. FOR EXTENT REQUIRED. 10'-7 1/2" 3'-6" 7'-0" 21'-1 1/2" 7'-0" 28'-1 1/2" GRID LINE TO INTERIOR FACE OF INSULATED WALL PANEL SYSTEM CENTER OF COLUMN 4 1/2" T/O WINDOW HEAD R/O A-A9.2.1 1 A-A9.2.1 6 A-A9.2.1 3 A-A9.2.1 9 SIM. CARRY METAL WALL CLADDING TO FULL HEIGHT. F03b A-A9.2.2 4 A-A9.2.3 4 WF03 WE02 P02 A-A9.2.7 1 WF02 WR11a 163 PHARMACY STORAGE TORONTO, ON VANCOUVER, BC 416.340.8441 416.340.8441 604.669.4041 604.669.4041 E n g g a n g D e s g n TM SCALE: DRAWN BY: CHECKED BY: PROJECT NO: SHEET: PLOTTED: THE DESIGN OF ALL SUSPENDED ARCHITECTURAL COMPONENTS INCLUDING BULKHEADS, CEILINGS, EQUIPMENT, PIPING AND OTHER SUSPENDED ITEMS MUST BE CARRIED OUT BY PROFESSIONAL STRUCTURAL ENGINEERS, REGISTERED TO PRACTICE IN THE PROVINCE OF BRITISH COLUMBIA AND EMPLOYED DIRECTLY BY THE RESPECTIVE CONTRACTOR AND SUB-CONTRACTOR. DESIGNS SHALL TAKE INTO ACCOUNT ALL SEISMIC AND DESIGN LOAD REQUIREMENTS, AS SET OUT IN THE BC BUILDING CODE, LATEST EDITION. THE PROFESSIONAL STRUCTURAL ENGINEER SHALL PREPARE SIGNED AND SEALED DRAWINGS AND CERTIFY THE COMPLETED INSTALLATION, UTILISING SCHEDULES -B AND S- OF THE BC BUILDING CODE. THE DESIGNS ARE ALSO SUBJECT TO THE APPROVAL OF THE OWNER AND ARCHITECT WITH REGARD TO SUITABILITY OF APPEARANCE AND COMPATIBILITY WITH ADJACENT WORK. FILE PATH: SHEET TITLE: SEAL: SHEET NOTES 5/31/2019 9:55:18 AM 3/4" 1'-0" C:\Revit Projects\2312 Guildford SoF Sheets ARCH-(2017) NEW_DMa@abbarch.com.rvt A-A8.1.1 JC, JK, HC ND 2312 15615-104 AVENUE BLDG A WALL SECTIONS GUILDFORD VILLAGE BLDG A & SITE (PHASE I) SURREYBC A-A2.1.1SCALE: 3/4" = 1'-0" 4 WALL SECTION WITH HORIZONTAL BAND FEATURE A-A2.1.1SCALE: 3/4" = 1'-0" 3 TYP. WALL SECTION WITH 'EIFS' CLADDING A-A2.1.1SCALE: 3/4" = 1'-0" 5 WALL SECTION AT METAL PANEL FEATURE A-A2.1.1SCALE: 3/4" = 1'-0" 2 WALL SECTION AT FEATURE CORNER A-A2.1.1SCALE: 3/4" = 1'-0" 1 WALL SECTION AT FEATURE CORNER SIGNAGE NODATEISSUE ADDENDUM REVISION 1MAY 31, 2019ISSUED FOR CONSOLIDATION PHASE
121'-0" U/S OF ROOF DECK AA AA AA 100'-0" T/O MAIN FLOOR SLAB AA VARIES T/O PARAPET FRAMING AA T/O MAIN FLOOR SLAB AA AA AA 100'-0" T/O MAIN FLOOR SLAB AA 3" 8" 1/2"1/2" CENTE COLUM SEAL PRESTRIP VAPOUR BARRIER TO INTERIOR FACE OF INSULATED METAL PANEL SYSTEM WITH CONTINUOUS BEAD OF SEALANT. ALLOW SLACK FOR DEFLECTION. R1 STEEL COLUMN BEYOND STRUCTURAL STEEL ROOF FRAMING PER STRUCT. DWG. SLOPE TOP TO DRAIN PER DIRECTIONS INDICATED ON ROOF PLAN. FULLY ADHERED ROOFING MEMBRANE TO FULL HEIGHT OF ROOF PARAPET WE02 P01 GENERAL NOTE (PARAPET FRAMING): PRESTRIP VAPOUR BARRIER PRIOR TO CONSTRUCTION OF ALL PARAPET WALLS. SEAL ALL SEAMS WITH 2 ROWS OF CONTINUOUS BEADS OF SEALANT SLOPE TOP OF STRUCTURAL STEEL ROOF FRAMING TO DRAIN PER DIRECTION INDICATED ON ROOF PLAN SECURE INSULATED WALL PANEL TO ROOF DECK ANGLE WITH SLOTTED ENGINEERED MOUNTING BRACKET BY WALL SYSTEM SUPPLIER ALLOW DEFLECTION AT ROOF LEVEL. SEAL ALL PENETRATIONS WITH PEEL AND STICK MEMBRANE CAULK ALL OPENING JOINTS AT EXTRUDING OUTRIGGERS. CUT OFF CURTAIN WALL MULLION AND CONNECT TO STEEL ANGLE. PROVIDE WEEP HOLES 4 1/2" SEAL ALL PENETRATION WITH FIRESTOP SEALANT WR11a WF02 CLEAR 2" ALLOW CONTINUOUS VENTILATION THROUGH U/S OF BULKHEAD WITH 2" PERFORATED VENT STRIP WEEP HOLES AT 24" WE02 U/S OF HORIZONTAL BAND 8" 1"3" 1'-2" WF06 COLOUR MATCHING CAP FLASHING. SLOPE TOP OF DRAIN. PROVIDE SHIM TO TOP OF STUD FRAMING TO SUIT BY METAL CLADDING SUPPLIER ENGINEERED BRACING BY STUD FRAMING SUPPLIER 1 1/2" 4" 1/2" 1"5 1/2"1"1" ALLOW DRIP TAPER BASE OF FASCIA C/W PREDRILLED WEEP HOLES AT 24" O/C CONTINUOUS DRAINAGE CAVITY CONTINUOUS REVEAL TO LOCATIONS OF SOFFIT WF03 WR11a STEEL COLUMN BEYOND 4 1/2" CENTER OF STEEL COLUMN DRIP EDGE CENTER OF COLUMN 4 1/2" ALLOW CONTINUOUS DRAINAGE & VENTILATION THROUGH BASE OF WALL CAVITY C/W INSECT SCREEN ENGINEERED MOUNTING BRACKET BY INSULATED WALL PANEL SYSTEM DRAINAGE MAT COLOUR MATCHING METAL SILL FLASHING C/W END DAM BY CURTAIN WALL SYSTEM SUPPLIER. DRIP EDGE F01 WF02 F03b WE02 WR20a A1HR COLUMN BEYOND CARRY WATERPROOF MEMBRANE TO TOP OF CONC. CURB SEAL JOINT WITH SELF ADHESIVE MEMBRANE VERTICAL TYHERMAL PROTECTION TO FULL HEIGHT OF CONC. FDN. WALL WITH LAYERS OF 2`` TYPE RIGID INSULATION WITH STAGGERED JOINTS PROTECT BASE OF WALL SYSTEM WITH SELF ADHESIVE MEMBRANE. SLOPE TOP TO DRAIN AT MIN.5% SHIM AS REQUIRED. BOND BREAK WITH 1/2" ASPHALT IMPREGNATED FIBERBOARD CONTINUOUS INTERIOR WALL FINISH TO FULL EXTENT OF WALL ELEVATION 1 LAYER OF BUILDING PAPER TO U/S OF STUD FRAMING WF07 1'-0 1/2" SEE STRUCT. DWG. 11" FIRESTOP SEALANT NOTE: EXTENT OF CONC. UPSTAND AS INDICATED ON SLAB EDGE PLAN 1/A-S1.2.1 SLOPE TOP OF SIDEWALK TO DRAIN AWAY FROM BUILDING PERIMETER AT MIN. 2% GRID LINE TO NTERIOR FACE OF INSULATED WALL PANEL SYSTEM 1/2" 1/2" 1 1/2" 3" 1" 7" CENTRE OF STEEL COLUMN BUILT-UP ROOF CAP WITH LAYERS OF 3/4" PLY. PANELS. SLOP TOP LAYER TO DRAIN. SHIM TO SUIT. 1'-2 1/2" WIDTH OF ROOF CAP MAY VARY. PENDING ON THICKNESS OF WALL PANEL SYSTEM COLOUR MATCHING STANDING SEAM METAL ROOF CAP FLASHING C/W DRIP & HOLD DOWN CLIPS EACH SIDE ALLOW 1" DEFLECTION ALONG TOP OF WALL PANEL SYSTEM & FILL VOID SPACE WITH LOOSE FILL BATT INSULATION & COMPRESSIBLE ROD. PER WALL SECTION DWGS. & BUILDING ELEVATIONS SEAL TOP OF WALL PANEL SYSTEM WITH ROWS OF CONTINUOUS BED OF SEALANT PREMANUFACTURED METAL CAP BY INSULATED WALL PANEL SYSTEM SUPPLIER FULLY ADHERED ROOFIND MEMBRANE UP FULL HEIGHT OF PARAPET OVER TOP OF ROOF CAP & SEAL AT FACE OF WALL PANEL SYSTEM AT MIN.2" WF02 WE02 STRUCTURAL STEEL SUPPORT REQ. TO HIGH PARAPET PER STRUCT. DWG. P01 1" SLOTTED CONNECTION STEEL COLUMN BEYOND CENTER OF COLUMN 4 1/2" DRIP EDGE COLOUR MATCHING METAL CAP FLASHING OVER SELF ADHESIVE MEMBRANE SLOPED TOP TO DRAIN AT MIN 5% PROVIDE SHIM TO SUIT. 2"1/2"1"3"7/8"5/8" 6" 1/2" ALLOW CONTINUOUS DRAINAGE & VENTILATION THROUGH BASE OF WALL CAVITY C/W INSECT SCREEN WF01 WE02 W20a A1HR WF02 T/O MASONRY 2" 5" 1 1/2" WF01 CENTER OF COLUMN 1/2" WE02 BOND BREAK WITH 1/2`` ASPHALT IMPREGNATED FIBERBOARD F03b F01 VERTICAL TYHERMAL PROTECTION TO FULL HEIGHT OF CONC. FDN. WALL WITH 2 LAYERS OF 2" TYPE 4 RIGID INSULATION WITH STAGGERED JOINTS DIRECT DRAINAGE TO WALL CAVITY WITH 2ND LAYER OF SELF ADHESIVE MEMBRANE. PROVIDE SHIM TO TOP OF BRAKE FORMED BLOCKING TO SUIT. STEEL COLUMN BEYOND CARRY WATERPROOF MEMBRANE TO TOP OF CONC. CURB PROTECT BASE OF STUD WALL ASSEMBLY WITH SELF ADHESIVE MEMBRANE WITH WATERPROOF MEMBRANE 4" LAP EACH WAY. WR20a FIRESTOP SEALANT SEE STRUCT. DWG 11" 1'-0 1/2" 1 LAYER OF BUILDING PAPER TO U/S OF STUD FRAMING ENGINEERED MOUNTING BRACKET BY INSULATED WALL PANEL SYSTEM NOTE: EXTENT OF CONC. UPSTAND AS INDICATED ON SLAB EDGE PLAN 1/A-S1.2.1 SLOPE TOP OF SIDEWALK TO DRAIN AWAY FROM BUILDING PERIMETER AT MIN. 2% FILL VOID SPACE WITH TYPE 4 RIGID INSULATION TO SUIT MECHANICALLY FASTEN WALL PANEL SYSTEM TO ENGINEERED STEEL STUD FRAMING OVER CONTINUOUS BEAD OF SEALANT ALLOW CONTINUOUS DRAINAGE AT WALL CAVITY SUPPORT MASONRY BASE WITH GALV. STEEL ANGLE & OUTRIGGER HORIZONTAL FORMED METAL PANEL FEATURE, REFER TO ELEVATIONS AND PLANS FOR EXTENT. PROVIDE SHEATHING AND STRUCTURAL SUPPORTS AS REQUIRED. SUPPORT WALL FEATURE ASSEMBLY WITH ENGINEERED GALV. STEEL. PILASTER FRAMING BY CONTRACTOR'S P.ENG. PROVIDE BRACING AS REQUIRED. WEEP HOLES AT 24" CLEAR 2" ALLOW CONTINUOUS VENTILATION BULKHEAD WITH 2" PERFORATED VENT STRIP 8" 1"3" 8" 1 1/2"1/2" SUPPORT ADHESIVE MEMBRANE WITH 3/4" PLYWOOD PROTECT TOP OF METAL PANEL WITH COLOUR MATCHING METAL HEAD FLASHING C/W END DAM & DRIP. SLOPE TOP TO DRAIN AT MIN. 5%. PROVIDE SELF-ADHESIVE MEMBRANE AS REQUIRED BELOW FLASHING. HIGH TEMPERATURE SELF ADJUSTABLE MEMBRANE U/S OF HORIZONTAL FEATURE BAND T/O CONC. PARAPET WALL GEODETIC ELEV.: 256'-0" 1'-2" 3" CENTER OF COLUMN 4 1/2" ALLOW 1" DEFLECTION ALONG TOP OF WALL PANEL SYSTEM AND FILL VOID SPACE WITH LOOSE FILL BATT INSULATION AND COMPRESSIBLE ROD FULLY ADHERED ROOFING MEMBRANE UP FULL HEIGHT OF PARAPET OVER TOP OF ROOF CAP AND SEAL AT FACE OF WALL PANEL SYSTEM AT MIN. 2' WIDTH OF ROOF CAP MAY VARY. PENDING ON THICKNESS OF WALL PANEL SYSTEM. WE02 P02 SEAL TOP OF WALL PANEL SYSTEM WITH 2 ROWS OF CONTINUOUS BED OF SEALANT 1'-10 1/2" 1 1/2" 1" SLOTTED CONNECTION 2"1/2"1"3" 8" 1"1/2" GRID LINE TO INTERIOR FACE OF INSULATED WALL PANEL SYSTEM CENTER OF COLUMN 4 1/2" 2" ALLOW CONTINUOUS VENTILATION THROUGH U/S OF SOFFIT WITH 2" PERFORATED VENT STRIP WE02 DRIP EDGE W25 WF02 ALLOW CONTINUOUS VENTILATION COTINUOUS ROOFING MEMBRANE 3/4`` TREATED PLY. NAILER TO BASE OF STRUCTURAL STEEL FRAMING STEEL COLUMN BEYOND BRAKE FORMED COLOUR MATCHING METAL CLOSURE BY CURTAIN WALL SYSTEM SUPPLIER NOTE: "WIDE REGLET CUTS IN PANELS AT 45 DEGREE AT EACH VERT. PANEL JOINTS ONLY. APPLY WATER TIGHT SEALANT IN REGLET CUT 3" 3" 9" ALLOW DEFLECTION AT JOINT WITH COMPRESSIVE FOAM ROD FILLER U/S OF CANOPY ROOF DECK ALONG BUILDING PERIMETER T/O WINDOW HEAD R/O CENTER OF COLUMN 4 1/2" ALIGN SHOULDER OF CURTAIN WALL MULLION WITH FACE OF CONCRETE WALL COLOUR MATCHING METAL SILL FLASHING C/W END DAM BY CURTAIN WALL SYSTEM SUPPLIER. SLOPE TOP TO DRAIN 2" T/O WINDOW SILL 1'-8" F01 1/2" CONTINUOUS INTERIOR WALL FINISH TO FULL EXTENT OF WALL ELEVATION SLOPE TOP OF STRUCTURAL SLAB TO EXTERIOR TO DRAIN PER DIRECTION INDICATED ON FLOOR PLAN VOID FORM HEIGHT TO SUIT SLOPE TOP OF SIDEWALK TO DRAIN AWAY FROM BUILDING PERIMETER AT MIN. 2% BOND BREAK TO PERIMETER OF SIDEWALK WITH 1/2" ASPHALT IMPREGNATED FIBERBOARD SEAL JOINT WITH SELF ADHESIVE MEMBRANE SINGLE GLAZED INSULATED CURTAIN WALL. SPRANDREL PER SCHEDULE 1 LAYER OF BUILDING PAPER TO U/S OF STUD FRAMING CARRY WATERPROOF MEMBRANE TO TOP OF CONC. CURB 11" 1/2" SEMI-RIGID MINERAL WOOL FILLER BY CURTAIN WALL SYSTEM SUPPLIER SIDEWALK SLAB (VARIES) VARIES 8" NOTE: EXTENT OF CONC. UPSTAND AS INDICATED ON SLAB EDGE PLAN 1/A-S1.2.1 F03b 1'-0 1/2" WF07 SEE STRUCT. DWG. 11" FIRESTOP SEALANT WR11 TORONTO, ON VANCOUVER, BC 416.340.8441 416.340.8441 604.669.4041 604.669.4041 E n g g a n g D e s g n TM SCALE: DRAWN BY: CHECKED BY: PROJECT NO: SHEET: PLOTTED: THE DESIGN OF ALL SUSPENDED ARCHITECTURAL COMPONENTS INCLUDING BULKHEADS, CEILINGS, EQUIPMENT, PIPING AND OTHER SUSPENDED ITEMS MUST BE CARRIED OUT BY PROFESSIONAL STRUCTURAL ENGINEERS, REGISTERED TO PRACTICE IN THE PROVINCE OF BRITISH COLUMBIA AND EMPLOYED DIRECTLY BY THE RESPECTIVE CONTRACTOR AND SUB-CONTRACTOR. DESIGNS SHALL TAKE INTO ACCOUNT ALL SEISMIC AND DESIGN LOAD REQUIREMENTS, AS SET OUT IN THE BC BUILDING CODE, LATEST EDITION. THE PROFESSIONAL STRUCTURAL ENGINEER SHALL PREPARE SIGNED AND SEALED DRAWINGS AND CERTIFY THE COMPLETED INSTALLATION, UTILISING SCHEDULES -B AND S- OF THE BC BUILDING CODE. THE DESIGNS ARE ALSO SUBJECT TO THE APPROVAL OF THE OWNER AND ARCHITECT WITH REGARD TO SUITABILITY OF APPEARANCE AND COMPATIBILITY WITH ADJACENT WORK. FILE PATH: SHEET TITLE: SEAL: SHEET NOTES 5/31/2019 9:56:51 AM 3" = 1'-0" C:\Revit Projects\2312 Guildford SoF Sheets ARCH-(2017) NEW_DMa@abbarch.com.rvt A-A9.2.1 JC, JK, HC ND 2312 15615-104 AVENUE BLDG A DETAILS GUILDFORD VILLAGE BLDG A & SITE (PHASE I) SURREYBC A-A8.1.1SCALE: 3" = 1'-0" 1 ROOF SECTION AT FEATURE CORNER SIGNAGE A-A8.1.1SCALE: 3" 1'-0" 6 HORIZONTAL BAND SECTION AT FEATURE CORNER SIGNAGE A-A8.1.1SCALE: 3" = 1'-0" 4 MAIN FLOOR SLAB SECTION AT FEATURE CORNER A-A8.1.1SCALE: 3" = 1'-0" 7 PARAPET SECTION DETAIL AT 'EIFS' CLADDING A-A7.1.1SCALE: 3" = 1'-0" 2 MASONRY CAP SECTION AT EIFS CLADDING A-A7.1.1SCALE: 3" = 1'-0" 8 MAIN FLOOR SLAB SECTION AT MASONRY A-A7.1.1SCALE: 3" 1'-0" 9 ROOF PARAPET SECTION AT FEATURE CORNER SIGNAGE A-A7.1.1SCALE: 3" = 1'-0" 5 HEAD SECTION AT CANOPY OVER GLAZING A-A8.1.1SCALE: 3" 1'-0" 3 MAIN FLOOR SLAB SECTION AT CURTAIN WALL FEATURE CORNER SIGNAGE NODATEISSUE ADDENDUM REVISION 1MAY 31, 2019ISSUED FOR CONSOLIDATION PHASE
ARCHITECT SHAPE Architecture Suite 1462 -1462 West th Avenue Vancouver, CanadaV6H 1C1 Dwayne Smyth, Architect AAA, AIBC 604 687 4457 d.smyth@shapearchitecture.ca STRUCTURAL WSB Darryl Bowers 604-294-3753 bowers@wsb-eng.com MECHANICAL Williams Peter Kuo 778-357-0158 peter.kuo@williamsengineering.com ELECTRICAL Gager 20689 56 Ave, Langley Marc Gager marc.gager@gagerelectrical.com 604-250-2523 LANDSCAPE PMG C100 4185 Still Creek DriveMary Chan 604.294.0011 rb@perryandassociates.ca CP & BUILD. CODE Jensen Hughes 1195 W Broadway, Suite 228 Vancouver, BC V6H 3X5 Mark Vance mvance@jensenhughes.com ENVELOPE + ENERGY BCBS 611 Bent Court, New Westminster, B.C. Chad Cranswick 604-520-6456*114 Chad@bcbuildingscience.com GEOTECHNICAL Davies #2 -1520 Cliveden Ave Delta, B.C. Paul Davies 604-395-2300 pauldavies@daviesgeotechnical.com CIVIL Core Group 8988 Fraserton Ct, Burnaby Dylan Bryson 604-299-0605 *116 DBryson@coregroupconsultants.com INTERIOR DESIGN 34F Terence Chan 120 Columbia Street Vancouver, BC, V6A 3Z8 tchan@34f.ca BLOOM 23RD AVENUE + YUKON STREET PRIOR TO RESPONSE RESUBMISSION -MARCH 4, 2022 CLIENT Belford Properties Ltd. Primary Contact: Jay Lin, VP Development C: 604-999-5222 jay.lin@belfordproperties.ca PROJECT DATA LEGALDESCRIPTION CIVICADDRESS ZONING SITEAREA FSR SETBACKS FRONT(N) FRONT(E) LANE(S) SIDE(W) BUILDINGHEIGHT FRONT REAR SITECOVERAGE% IMPERMEABLEMATERIALS %COVERED LOTS18TO22OFBLOCK661,D.L526. 4005YUKONSTREET,VANCOUVER,BC,V5Y2H4 CURRENT PROPOSED RS-1RM-8A 2,274.40M ALLOWED PROPOSED 1.20 1.20 3.7M 3.7M 3.7M 3.7M 1.8M 1.8M 1.2M 1.2M 11.5M 9.5 55% 55% 75% 78% L1 LEVEL LANDSCAPE PLAN L2 LEVEL SHRUB PLAN L3 LEVEL GRADING PLAN L4 MATERIAL PLAN L5 LEVEL LANDSCAPE PLAN L6 ROOF LEVEL LANDSCAPE PLAN L7 LANDSCAPE DETAILS ARCHITECTURAL DRAWINGS LANDSCAPE DRAWINGS DRAWING LIST A0 COVER DRAWING LIST A0.01 PROJECT DATA A0.02 WALL ASSEMBLIES EXTERIOR A0.03 WALL ASSEMBLIES SPECIALTY A0.04 WALL ASSEMBLIES INTERIOR A0.05 FLOOR ASSEMBLIES A0.06 ROOF + CEILING ASSEMBLIES A0.10 MATERIAL PALETTE A0.11 FSR SCHEDULE A1.00 EXISTING SITE SURVEY A1.01 SITE PLAN OVERALL A1.02 CONTEXT PLAN A1.03 BUILDING GRADE ELEVATIONS A1.04 SHADOW STUDIES A1.05 SITE COVERAGE GRID KEY PLAN A1.06 KEY PLAN A1.07 SITE ADDRESSING A1.10 IMPERMEABLE MATERIALS A1.20 FSR PLAN LEVEL PARKADE A1.21 FSR PLAN LEVEL A1.22 FSR PLAN LEVEL A1.23 FSR PLAN LEVEL A1.24 FSR PLAN LEVEL ROOF A2.00 PARKADE A2.01 LEVEL A2.02 LEVEL A2.03 LEVEL A2.04 ROOF A2.50 UNIT PLANS 1.1 1.2 A2.51 UNIT PLANS 1.3 1.4 A2.52 UNIT PLANS 1.5 A2.53 UNIT PLANS 1.6 1.7 A2.60 UNIT PLANS 2.1 A2.61 UNIT PLANS 2.2 2.3 A2.62 UNIT PLANS 2.4 A3.50 H.A.D LEVEL A3.51 H.A.D LEVEL A3.52 H.A.D LEVEL A4.00 NORTH SOUTH ELEVATIONS A4.01 EAST + WEST ELEVATIONS A4.02 NORTH SOUTH ELEVA. COURTYARD A4.03 WEST + EAST ELEVA. COURTYARD A5.00 SITE SECTIONS N/S A5.01 SITE SECTIONS E/W A5.02 SITE SECTIONS N/S A5.03 SITE SECTION E/W A6.10 TYPICAL SECTION DETAILS A6.20 STANDARD DETAILS ROUGH OPENING
WH WH WH UP WH WH UP UP A4.00 A4.00 1 A5.01 2 A5.01 1 A5.00 1 2 3 4 5 E F G H 8 9 10 11 12 13.2 m² BICYCLE STORAGE SECURITY GATE 2.3M CLEARANCE RAINWATER DETENTION TANK 26.0 m² BICYCLE STORAGE 59.1 m² BICYCLE STORAGE 7 A4.01 1 MINIMUM 2.3m HEIGHT CLEARANCE 1 A5.02 PARABOLIC MIRROR PARABOLIC MIRROR TWO WAY ACCESS RAMP 5320 5450 5450 54201750230016805000560 OVERHEAD GATES. TYP 2.1M MIN CLEARANCE PARABOLIC MIRROR 30.5 m² GARBAGE + RECYCLING D C B A 1 A2.51
m² IN-SUITE STORAGE 9.8 m² IN-SUITE STORAGE 9.4 m² IN-SUITE STORAGE 2 A5.02 6 P1 1.9 m² VESTIBULE 3.6 m² MECH.CLOSET (EXCLUDED) 2.3 m² MECH. CLOSET 4.9 m² CORRIDOR 1.9 m² VEST. 1.5 m² VEST. 5.9 m² CORRIDOR 2.9 m² MECH. CLOSET 2 A5.00 2 A5.03 5090 5730 3670 4270 3480 5470 5440 5550 13.3 m² ELEC ROOM 9.7 m² IN-SUITE STORAGE 5.8 m² CORRIDOR 2.6 m² MECH.CLOSET (EXCLUDED) 1.6 m² VESTIBULE 5.3 m² CORRIDOR 1060 45340 2770 2660 2250 2690 CLASS A BICYCLE ACCESS ROUTE VIA ELEVATOR 1 A7.08 1 A2.81 1 A2.82 EW2 EW2 EW2 EW2 W11 EW4 MIN. 1210 1 A7.05.01 PROPERTY LINE PROPERTY LINE PROPERTY LINE PROPERTY LINE LINEAR DRAIN 1 A7.06 9.7 m² INSUITE STORAGE 390 8630 6300 1330 2820200 6500 150 6600 6600 7070 2500200 4.1 m² ELEC. ROOM YD 360 L360 L360 L360 3 YD 360 L360 L360 240 L240 L240 L240 360 22.0 m² BICYCLE ROOM 59.56m PARKADE DIAGONAL DIMENSION 29.92M DISTANCE BETWEEN EXIT (MIN.29.78 PERMITTED) TD= 38.00M TD= 16.01M TD=25.19M TD= 30.62M V3 VISITOR (SC) V2 VISITOR V1 VISITOR 14 30 29 V9 V10 V11 V12 V13 V8 V7 V14 V16 V17 V18 V15 V3 V4 V5 V6 OV2 OV1 3 2 1 6 5 4 9 8 7 10 20 SC 22 SC 21 SC 24 SC 23 SC 25 SC 26 SC 27 SC 28 SC S1 S2 S3 S4 13 S4 S3 S2 S1 V19 11 2 1 3 4 5 6 7 12 11 V2 V1 V20 V21 31 10 9 33 32 34 37 38 36 35 2 6 5 4 7 8 S5 S6 S7 SETBACK 3700 SETBACK 1800 PROPERTY LINE PROPERTY LINE 11 STANDARD 2 OVERSIZE 21 VERTICAL 34 TOTAL 7 STANDARD 14 STACKED 21 TOTAL STACKED TOTAL EW2 EW2 EW2 EW2 EW3 6000 6010 6010 6040 6650 14090 ACCESSIBLE STALL,PAINTED MARKING, TYP. PEDESTRIAN WALKWAY, PAINTED MARKING 200 7500 7500 870 4.6 m² EXIT STAIR B1 4.3 m² EXIT STAIR C3 310 5910 5600 5600 10400 11590 ELEVATOR 5' PIT 2550 6000 6010 6040 3090 6040 6010 5910 2120 39100 6450 47404710 4710 4740 5550 1910 200 5000 2300 200 7380 7500 5000 200 200 5310 5590 10300 200 7790 20280 2710 8160 36402560 3800 1210 OVERSIZE LOCKER TOTAL L1 L2 L3 L4 L5 200 7960 300 300 320 320 320 330 320 320 300 17.1 m² MECHANICAL ROOM 2.4 m² VESTIBULE 1500 300X600 TYP. 300X600 TYP. TYP. 600 T Y P 600 1140 300X600 TYP. 300X600 TYP. TYP. 600 300X600 TYP. 1800 200 200 200 200 SG8 E003 E003 P009 E001 E002 E001 E004 SG7 D004 E004 SG6 E001 SG5 E002 E002 P008 D002 D001 D003 E005 P010 P011 E003 SG3 SG4 P004 P016 P007 SG2 P001 P014 SG1 P015 P011 P012 1900 2240 44810 5.1 m² LOBBY 1 A7.05.02 P005 PROVIDE SWING DOOR WITH AUDIBLE ALARM IF REQUIRED 1200 1094.3 m² STORAGE W7 15 16 17 18 19 O2 O1 L6 L7 1900490 5.1 m² LOBBY 3.3 m² STORAGE 6600 PARKING DATA UNITS RESIDENTIAL (0.8 X UNITS) REG SMALL (MAX 25% OF TOTAL PARKING) H/C VISITOR TOTAL 32 REQUIREDPROPOSED 2636 26 10 22 33 31 41 CLASS A GFA <65M2 65 -105M2 >105M2 HORIZONTAL OVERSIZE (MIN5%) STACKED (MAX30%) VERTICAL (MAX30%) LOCKERS (MIN10%) TOTAL UNITSX TOTAL 141.521.0 102.525.0 8 3 24 70 ALLOWEDPROPOSED 1718 44 2122 2121 77 70 72 VEHICULAR BICYCLE GENERAL NOTES PARKADE 1. HEIGHT CLEARANCES IN ALL PARKADE DRIVE AISLES & SPACES SHALL BE MINIMUM 2.1m (6'-10 1/2") & 2.3m (7'-6 1/2") TO ALL HANDICAP STALLS. NO PUBLIC SPACE SHALL BE LESS 2.05m (6'-9"). 2. ALL BICYCLE ROOMS HAVE SOLID OPAQUE PAINTED WALLS AND ARE VISIBLE FROM THE ENTRY DOORS. A MOTION-ACTIVATED SECURITY LIGHT ENCLOSED IN A TAMPER-PROOF HOUSING IS PROVIDED IN EACH ROOM. 3. ALL BIKEROOM DOORS TO HAVE AUTOMATIC DOOR OPENERS 4. ONE ELECTRICAL RECEPTACLE PER TWO CLASS A BICYCLE SPACES 5. ALL PARKING STALLS ACCOMODATE ELECTRICAL VEHICLES & PROVIDE TIRE STOPS 6. PROVIDE METAL PLATE PROTECTION @ ALL PLUMBING DROPS BETWEEN CAR STALLS & AISLES 7. ALL CONCRETE WALLS IN PARKADE TO BE PAINTED WHITE 8. THE DESIGN OF THE PARKING STRUCTURE REGARDING SAFETY AND SECURITY SHALL BE IN ACCORDANCE WITH SECTION 4.13 OF THE PARKING BY-LAW 9. MINIMUM OF ONE ELECTRICAL RECEPTACLE SHALL BE PROVIDED FOR EACH TWO CLASS A BICYCLE SPACES 10. BUILDING DIMENSIONS, SETBACKS AND YARDS ARE TO THE OUTSIDE OF CLADDING 11. DESIGN OF BICYCLE SPACES (INCLUDING BICYCLE ROOMS, COMPOUNDS, LOCKERS AND/OR RACKS) REGARDING SAFETY AND SECURITY MEASURES AND END OF TRIP FACILITIES REGARDING REQUIRED DESIGN STANDARDS SHALL BE IN ACCORDANCE WITH THE RELEVANT PROVISIONS OF SECTION 6 OF THE PARKING BYLAW 12. MECHANICAL EQUIPMENT (VENTILATORS, GENERATORS, COMPACTORS, AND EXHAUST SYSTEMS) WILL BE DESIGNED AND LOCATED TO MINIMIZE NOISE IMPACTS ON THE NEIGHBOURHOOD AND COMPLY WITH NOISE BY-LAW NO. 6555 13. THE ACOUSTICAL MEASURES WILL BE INCORPORATED INTO THE FINAL DESIGN AND CONSTRUCTION, BASED ON THE CONSULTANT’S RECOMMENDATIONS
HORIZONTAL OVERSIZE STACKED VERTICAL LOCKER OV# V# S# L# # 600 1800 900 2400 600 2040 600 1000 650 650 1800 534 WEST PENDER STREET VANCOUVER, BC CANADA V6B 1V8 TEL: (604) 687-4457 EMAIL: info@shapearchitecture.ca WEB: www.shapearchitecture.ca COPYRIGHT RESERVED: THIS DRAWING AND DESIGN ARE AND AT ALL TIMES REMAIN THE EXCLUSIVE PROPERTY OF SHAPE ARCHITECTURE INC. AND MAY NOT BE USED OR REPRODUCED WITHOUT THEIR WRITTEN CONSENT. REVISIONS DATE DRAWN BY CHECKED BY SCALE JOB NUMBER NO DESCRIPTION DATE STAMP NOTES NO DESCRIPTION As indicated BLOOM PARKADE A2.00 2022/02/17 AR DS 2003 4005 YUKON STREET, VANCOUVER, BC, V5Y 2H4 1 100 PARKING LEVEL 1 1DEVELOPMENT PERMIT RESUBMISSION 2021/05/04 2PRIOR TO RESPONSE 2021/10/08 6PRIOR TO RESPONSE RESUBMISSION 2022/03/04
9.7
BICYCLE
WH WH WH UP WH WH UP WH WH WH WH UP UP UP WH WH WH WH WH DN WH DN UP A4.00 A4.00 1 A5.01 2 A5.01 1 A5.00 1 2 3 4 5 E F G H 8 9 10 11 12 6040 6010 5910 6000 6010 6010 6040 6650 14090 4740 4710 4710 4740 7 7 A4.01 1 1 A5.02 10.00% D C B A A4.02 2 A4.03 1 1 6000 6010 6040 CLASS B BICYCLE PARKING 1 A2.50 2 A2.50 2 A2.51 2 A5.02 6 6 P1 3.7 m² STORAGE 50m 2 A5.00 ANNUNCIATOR PANEL + MAIL 2 A5.03 46m 11190 2210 19230 18520 4580 4980 4440 4970 40 4990 4410 5010 6270 7020 5230 2250 18290 18290 46m 43.8m 65798 65798 65199 65199 2890 2710 9502900 2190 2130 3890 3680 2 A7.08 2 A2.82 UNIT 1.1 UNIT 1.2 UNIT 1.2 UNIT 1.2 UNIT 1.2 UNIT 1.2 UNIT 1.2 UNIT 1.3 UNIT 1.3 UNIT 1.4 UNIT 1.4 UNIT 1.7 UNIT 1.5 UNIT 1.2 UNIT 1.2 UNIT 1.2 UNIT 1.2 UNIT 1.2 UNIT 1.6 UNIT 1.2
BLDG C
BLDG D 2970 3580 6000 2360 3600 SPRINKLER/ STANDPIPE CONNECTION TWO WAY ACCESS RAMP F.D F.D F.D F.D F.D F.D F.D F.D F.D F.D F.D F.D F.D F.D F.D F.D F.DF.DF.D F.D F.D F.D F.D F.D F.D F.D B.G. 65760 B.G. 65820 B.G. 65960 B.G. 66440 B.G. 66560 B.G. 66570 B.G. 66620 B.G. 66310 B.G. 66080 B.G. 65780 B.G. 65650 B.G. 65590 B.G. 65350 B.G. 65250 B.G. 65100 B.G. 65476 B.G. 65418 2970 3580 2430 3580 2430 3580 2000 3820 F.D EXIT STAIR B1 STAIR B3 STAIR A1 STAIR B2 9.3 m² STAIR C1 STAIR C2EXIT STAIR C3 STAIR A2 MECH OPENING FROM BELOW-REFER TO MECH, DWG MECH OPENING FROM BELOWREFER TO MECH, DWG F.D F.D F.D 300 65389 65989 ELEVATOR 5' PIT 14090 18420 PROPERTY LINE PROPERTY LINE SETBACK 3700 SETBACK 1800 PROPERTY LINE PROPERTY LINE 24530 3770 2500 14470 4740 4710 4710 4740 5550 GENERAL NOTES PLANS 1. READ, CHECK AND COMPARE ALL DRAWINGS, NOTIFY THE ARCHITECT OF ANY/ALL DISCREPANCIES. VERIFY ALL DIMENSIONS AND ELEVATIONS BEFORE FABRICATION CONSTRUCTION OF ANY COMPONENT. 2. DIMENSIONS ARE FROM OUTSIDE OF SHEATHING ON EXTERIOR WALLS. EDGE OF STUDS ON INTERIOR, EDGE OF FLOOR TO OR FROM GRIDLINES TO EDGE OF CONCRETE OR CMU UNLESS NOTED OTHERWISE. 3. SEE WALL SCHEDULE, WALL SECTIONS AND DETAILS FOR ASSEMBLY TYPES AND INTERFACE CONDITIONS. 4. PROVIDE SOLID BLOCKING IN WALLS FOR ALL WALL MOUNTED FIXTURES, MILLWORK AND DOOR STOPS. 5. ALL RAMPS AND STAIRS INCLUDING TREADS, RISERS, & NOSINGS TO CONFORM TO VBBL 2014 -3.4.6.8. & 3.4.6.1 6. ALL HANDRAILS & GUARDRAILS TO CONFORM TO VBBL 2014 ARTICLES 3.4.6.5 & 3.4.6.6. 7. ALL FLASHINGS TO BE MEMBRANE LAPPED & COUNTER FLASHED WITH CLIPS. 8. ALL LOW SLOPE ROOFS TO BE MIN. 2% SLOPED TO DRAIN. 9. THE DESIGN OF THE PARKING STRUCTURE REGARDING SAFETY AND SECURITY SHALL BE IN ACCORDANCE WITH SECTION 4.13 OF THE PARKING BY-LAW 10. MINIMUM OF ONE ELECTRICAL RECEPTACLE SHALL BE PROVIDED FOR EACH TWO CLASS A BICYCLE SPACES 11. BUILDING DIMENSIONS, SETBACKS AND YARDS ARE TO THE OUTSIDE OF CLADDING 12. DESIGN OF BICYCLE SPACES (INCLUDING BICYCLE ROOMS, COMPOUNDS, LOCKERS AND/OR RACKS) REGARDING SAFETY AND SECURITY MEASURES AND END OF TRIP FACILITIES REGARDING REQUIRED DESIGN STANDARDS SHALL BE IN ACCORDANCE WITH THE RELEVANT PROVISIONS OF SECTION 6 OF THE PARKING BYLAW 13. MECHANICAL EQUIPMENT (VENTILATORS, GENERATORS, COMPACTORS, AND EXHAUST SYSTEMS) WILL BE DESIGNED AND LOCATED TO MINIMIZE NOISE IMPACTS ON THE NEIGHBOURHOOD AND COMPLY WITH NOISE BY-LAW NO. 6555 14. THE ACOUSTICAL MEASURES WILL BE INCORPORATED INTO THE FINAL DESIGN AND CONSTRUCTION, BASED ON THE CONSULTANT’S RECOMMENDATIONS FIRE FIGHTING ROUTE 534 WEST PENDER STREET VANCOUVER, BC CANADA V6B 1V8 TEL: (604) 687-4457 EMAIL: info@shapearchitecture.ca WEB: www.shapearchitecture.ca COPYRIGHT RESERVED: THIS DRAWING AND DESIGN ARE AND AT ALL TIMES REMAIN THE EXCLUSIVE PROPERTY OF SHAPE ARCHITECTURE INC. AND MAY NOT BE USED OR REPRODUCED WITHOUT THEIR WRITTEN CONSENT. REVISIONS DATE DRAWN BY CHECKED BY SCALE JOB NUMBER NO DESCRIPTION DATE STAMP NOTES NO DESCRIPTION As indicated BLOOM LEVEL 1 A2.01 2021/05/04 AR DS 2003 4005 YUKON STREET, VANCOUVER, BC, V5Y 2H4 1 100 LEVEL 1 1 1DEVELOPMENT PERMIT RESUBMISSION 2021/05/04 2PRIOR TO RESPONSE 2021/10/08 6PRIOR TO RESPONSE RESUBMISSION 2022/03/04
BLDG B
BLDG A

BLDG B

BLDG A

BLDG D

BLDG C

DN DN DN DN DN DN DN DN DN DN A4.00 A4.00 2 1 A5.01 2 A5.01 1 A5.00 1 2 3 4 5 E F G H 8 9 10 11 12 7 7 A4.01 1 1 A5.02 D C B A A4.02 2 A4.03 1 1 6000 6010 6010 6040 6650 14090 6000 6010 6040 3090 6040 6010 5910 4740 4710 4710 4740 5550 14090 3 A2.61 3 A2.60 2 A5.02 6 6 P1 2 A5.00 2 A5.03 2950 9710 1640 750 9380 2580 1640 19360 UNIT 2.2 UNIT 2.1 UNIT 1.3 UNIT 1.3 UNIT 1.4 UNIT 1.4 UNIT 2.3 UNIT 2.1 UNIT 2.1 UNIT 2.3 UNIT 2.2 UNIT 2.1 UNIT 2.1 UNIT 2.1 UNIT 2.1 UNIT 2.4
F.D F.D F.D F.D F.D F.D F.D F.D F.D F.D F.D F.D F.D F.D F.D F.D F.D F.D F.D F.D F.D F.D F.D F.D F.D F.D F.D F.D F.D F.D F.D F.D F.D F.D F.D F.D F.D F.D F.D F.D F.D F.D F.D F.D F.D F.D F.D F.D F.D F.D F.D F.D F.D F.D F.D F.D PROPERTY LINE PROPERTY LINE SETBACK 3700 SETBACK 1800 PROPERTY LINE PROPERTY LINE 24622 18915 18740 18610 14740 GENERAL NOTES PLANS 1. READ, CHECK AND COMPARE ALL DRAWINGS, NOTIFY THE ARCHITECT OF ANY/ALL DISCREPANCIES. VERIFY ALL DIMENSIONS AND ELEVATIONS BEFORE FABRICATION CONSTRUCTION OF ANY COMPONENT. 2. DIMENSIONS ARE FROM OUTSIDE OF SHEATHING ON EXTERIOR WALLS. EDGE OF STUDS ON INTERIOR, EDGE OF FLOOR TO OR FROM GRIDLINES TO EDGE OF CONCRETE OR CMU UNLESS NOTED OTHERWISE. 3. SEE WALL SCHEDULE, WALL SECTIONS AND DETAILS FOR ASSEMBLY TYPES AND INTERFACE CONDITIONS. 4. PROVIDE SOLID BLOCKING IN WALLS FOR ALL WALL MOUNTED FIXTURES, MILLWORK AND DOOR STOPS. 5. ALL RAMPS AND STAIRS INCLUDING TREADS, RISERS, & NOSINGS TO CONFORM TO VBBL 2014 -3.4.6.8. & 3.4.6.1 6. ALL HANDRAILS & GUARDRAILS TO CONFORM TO VBBL 2014 ARTICLES 3.4.6.5 & 3.4.6.6. 7. ALL FLASHINGS TO BE MEMBRANE LAPPED & COUNTER FLASHED WITH CLIPS. 8. ALL LOW SLOPE ROOFS TO BE MIN. 2% SLOPED TO DRAIN. 9. THE DESIGN OF THE PARKING STRUCTURE REGARDING SAFETY AND SECURITY SHALL BE IN ACCORDANCE WITH SECTION 4.13 OF THE PARKING BY-LAW 10. MINIMUM OF ONE ELECTRICAL RECEPTACLE SHALL BE PROVIDED FOR EACH TWO CLASS A BICYCLE SPACES 11. BUILDING DIMENSIONS, SETBACKS AND YARDS ARE TO THE OUTSIDE OF CLADDING 12. DESIGN OF BICYCLE SPACES (INCLUDING BICYCLE ROOMS, COMPOUNDS, LOCKERS AND/OR RACKS) REGARDING SAFETY AND SECURITY MEASURES AND END OF TRIP FACILITIES REGARDING REQUIRED DESIGN STANDARDS SHALL BE IN ACCORDANCE WITH THE RELEVANT PROVISIONS OF SECTION 6 OF THE PARKING BYLAW 13. MECHANICAL EQUIPMENT (VENTILATORS, GENERATORS, COMPACTORS, AND EXHAUST SYSTEMS) WILL BE DESIGNED AND LOCATED TO MINIMIZE NOISE IMPACTS ON THE NEIGHBOURHOOD AND COMPLY WITH NOISE BY-LAW NO. 6555 14. THE ACOUSTICAL MEASURES WILL BE INCORPORATED INTO THE FINAL DESIGN AND CONSTRUCTION, BASED ON THE CONSULTANT’S RECOMMENDATIONS FIRE FIGHTING ROUTE 534 WEST PENDER STREET VANCOUVER, BC CANADA V6B 1V8 TEL: (604) 687-4457 EMAIL: info@shapearchitecture.ca WEB: www.shapearchitecture.ca COPYRIGHT RESERVED: THIS DRAWING AND DESIGN ARE AND AT ALL TIMES REMAIN THE EXCLUSIVE PROPERTY OF SHAPE ARCHITECTURE INC. AND MAY NOT BE USED OR REPRODUCED WITHOUT THEIR WRITTEN CONSENT. REVISIONS DATE DRAWN BY CHECKED BY SCALE JOB NUMBER NO DESCRIPTION DATE STAMP NOTES NO DESCRIPTION As indicated BLOOM ROOF A2.04 2021/05/04 AR DS 2003 4005 YUKON STREET, VANCOUVER, BC, V5Y 2H4 1 100 ROOF 1 1DEVELOPMENT PERMIT RESUBMISSION 2021/05/04 2PRIOR TO RESPONSE 2021/10/08 6PRIOR TO RESPONSE RESUBMISSION 2022/03/04
LEVEL 1 65989 BUILDING C - LEVEL 1 66599 LEVEL 3 72070 BUILDING C - LEVEL 3 72679 ROOF 75455 BUILDING C - ROOF 76065 1 A5.00 8 9 10 11 12 7 2 1 30 BLDG C BLDG D 6 2 A5.00 2 A5.03 1 2 1 2 8 10 5 5 5 5 5 17 17 10 8 10 10 10 3 21 2 2 11 2 8 4 A5.XX 10 10 1 LEVEL 2 69049 BUILDING C - LEVEL 2 69659 1 A4.54 1 A4.56 LEVEL 1 65989 BUILDING C - LEVEL 1 66599 LEVEL 3 72070 BUILDING C - LEVEL 3 72679 ROOF 75455 BUILDING C - ROOF 76065 1 A5.00 1 2 3 4 5 8 9 10 11 12 7 1 A5.02 1 BLDG A BLDG B 2 A5.02 6 1 2 A5.00 2 A5.03 29 3 10 21 5 2 1 3 10 2 A4.50 LEVEL 2 69049 BUILDING C - LEVEL 2 69659 2 A4.52 2 10 1 3 17 GENERAL NOTES ELEVATIONS A. ALL FLASHINGS TO BE INSTALLED PRIOR TO ANY CLADDING SYSTEMS 1. FLASHINGS TO BE INSTALLED AT: -ALL JUNCTIONS BETWEEN CLADDING MATERIALS -ALL WINDOW & DOOR HEADS & JAMBS -ALL WINDOW SILLS -ALL OUTSIDE CORNER CONDITIONS 2. ALL FLASHINGS TO BE PRE-FINISHED AND FORMED W/ FULL CUSTOM COLOUR RANGE 3. ALL EXTERIOR GLASS GUARDS TO BE ENGINEERED SAFETY GLASS, c/w ALUMINUM CHANNEL TOP RAIL 4. ALL EXTERIOR MECHANICAL GRILLES TO BE APPROVED BY ARCHITECT, W/ FULL CUSTOM COLOUR RANGE 5. ALL EXTERIOR LIGHTING TO BE APPROVED BY ARCHITECT. 6. CONTINOUS FLASHING ON ALL LOCATION UNLESS OTHERWISE NOTED 534 WEST PENDER STREET VANCOUVER, BC CANADA V6B 1V8 TEL: (604) 687-4457 EMAIL: info@shapearchitecture.ca WEB: www.shapearchitecture.ca COPYRIGHT RESERVED: THIS DRAWING AND DESIGN ARE AND AT ALL TIMES REMAIN THE EXCLUSIVE PROPERTY OF SHAPE ARCHITECTURE INC. AND MAY NOT BE USED OR REPRODUCED WITHOUT THEIR WRITTEN CONSENT. REVISIONS DATE DRAWN BY CHECKED BY SCALE JOB NUMBER NO DESCRIPTION DATE STAMP NOTES NO DESCRIPTION As indicated BLOOM NORTH + SOUTH ELEVA. COURTYARD A4.02 2021/05/04 AR DS 2003 4005 YUKON STREET, VANCOUVER, BC, V5Y 2H4 1 : 100 NORTH ELEVATION COURTYARD 1 1 : 100 SOUTH ELEVATION COURTYARD 2 MATERIAL LEGEND 1BRICK MASONRY CLADDING 2PERFORATED BRICK MASONRY CLADDING 3STUCCO CLADDING 4BRISE SOLEI 5PREFINISHED METAL FLASHING COLOUR TBD (CUSTOM COLOUR RANGE) 8WOOD ENTRY DOORS SEE DOOR SCHEDULE 9PREFINISHED PAINTED METAL DOOR 10DOUBLE GLAZED, THERMALLY BROKEN ALUMINUM WINDOWS & DOORS SEE WINDOW SCHEDULE 11CURTAIN WALL- SEE WINDOW SCHEDULE 13ARCHITECTURAL CONCRETE c/w 90° CORNERS 17WINDOW HEAD FLASHING 18METAL LANDSCAPE PLANTER 19CONCRETE LANDSCAPE PLANTER 21POWDER-COATED ALUMINUM GUARDRAIL 29STEEL STAIRS 30CONCRETE STAIRS 1DEVELOPMENT PERMIT RESUBMISSION 2021/05/04 2PRIOR TO RESPONSE 2021/10/08 6PRIOR TO RESPONSE RESUBMISSION 2022/03/04
LEVEL 1 65989 BUILDING C - LEVEL 1 66599 LEVEL 3 72370 BUILDING C - LEVEL 3 72979 ROOF 75755 BUILDING C - ROOF 76365 PARKADE 62636 PARKADE 62636 E F G H D C B A BLDG B BLDG C P1 F1 F1 2750 F3 LEVEL 2 69349 BUILDING C - LEVEL 2 69959 1 A5.12 2 A5.12 1 A5.13 2 A5.13 5 A5.12 R1 F2 8'5 1/4" 2575 23rd AVENUE LANEWAY 3390 3020 3360 3960 3390 3020 3360 3350 1100 77465 T/O PARAPET 76855 T/O PARAPET UNIT 1.7 UNIT 1.5 UNIT 1.2a UNIT 1.2a UNIT 1.2a UNIT 2.2 UNIT 2.1 UNIT 2.1 UNIT 2.1 UNIT 2.1 UNIT 2.4 W5 W5 W5 W5 W5 W5 W5 W5 W5 W5 W5 F2 F2 R1 R1 F3 F1 F1 F3 F2 R1 R1 R1 F2 F1 F3 F4 8'8 3/4" 2662 9' 8" 2948 8'10 3/4" 2710 8'5 1/4" 2575 81 0 2 6 9 4 77 1 4 2 3 1 8 88 3 4 2 6 6 1 98 2 9 4 8 LEVEL 1 65989 LEVEL 1 65989 LEVEL 3 72370 BUILDING D - ROOF 72590 ROOF 75755 PARKADE 62636 PARKADE 62636 E F G H D C B A P1 98 2 9 4 8 F1 R1 F2 65989 BLDG A BLDG D LEVEL 2 69349 3 A5.10 1 A5.11 1 A5.14 2 A5.14 3 A5.14 2 A5.11 1 A6.11 R1 F2 F3 F4 F2 F7 2650 79 2 3 6 4 BUILDING D - LEVEL 2 69190 80 1 2 2 4 5 4 23rd AVENUE LANEWAY 3390 3020 3360 3350 81 0 3 / 4 2 7 0 9 R1 800 76555 (TOP OF PARAPET) 73690 T/O PARAPET 200 85 1 4 2 5 7 5 78 1 4 2 3 4 3 88 3 / 4 2 6 6 2 93 1 4 2 8 2 7 76855 T/O GUARDRAIL UNIT 1.2b UNIT 1.2a UNIT 1.3 UNIT 2.1 260 270 270 78 2 3 3 6 F3 F7 F4 EW3 81 0 2 6 9 4 89 2 6 6 9 1241 1100 3400 3200 3350 78 1 2 2 3 5 0 260 76 2 2 8 6 260 88 1 4 2 6 5 0 1 HOUR FRR 1.5 HOUR FRR 2 HOUR FRR FIRE SEPARATION LEGEND 45 MIN FRR 534 WEST PENDER STREET VANCOUVER, BC CANADA V6B 1V8 TEL: (604) 687-4457 EMAIL: info@shapearchitecture.ca WEB: www.shapearchitecture.ca COPYRIGHT RESERVED: THIS DRAWING AND DESIGN ARE AND AT ALL TIMES REMAIN THE EXCLUSIVE PROPERTY OF SHAPE ARCHITECTURE INC. AND MAY NOT BE USED OR EPRODUCED WITHOUT THEIR WRITTEN CONSENT. REVISIONS DATE DRAWN BY CHECKED BY SCALE JOB NUMBER NO DESCRIPTION DATE STAMP NOTES NO DESCRIPTION 1 100 BLOOM SITE SECTIONS N/S A5.00 2021/05/04 AR AZ DM DS 2003 4005 YUKON STREET, VANCOUVER, BC, V5Y 2H4 1 : 100 SECTION 3 1 1 : 100 SECTION 4 2 1DEVELOPMENT PERMIT RESUBMISSION 2021/05/04 2PRIOR TO RESPONSE2021/10/08 5OUTSTANDING COMMENTS RESUBMISSION 2022/04/18
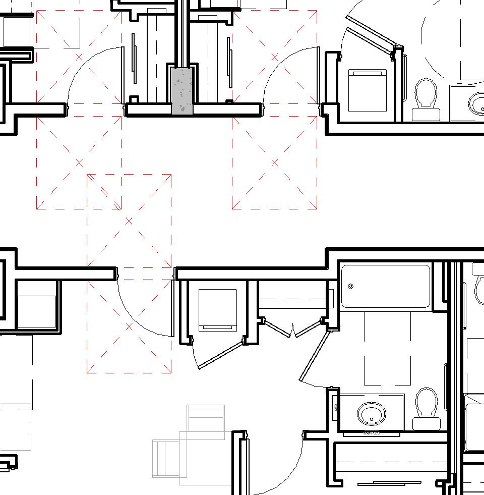
UP 13121110 DN 17 16 15 14 13121110 23 22 21 20 19 18 3 10 11 12 13 E 6 4 A7.27 3 A7.27 300 2240 1174 1100 380 237 R @ 23 172.6 mm STEEL GUARD (POWDER COATED AND PAINTED TO MATCH STUCCO) 65989 T/O FINISH E 6 4 A7.27 3 A7.27 1454 1400 900 1174 840 1454 54 1174 840 1454 1100 1100 1100 300 R @ 23 172.6 mm 69959 T/O FINISH LEVEL 1 65989 6 RISE 173 RUN 280 TYP. 1100 TYP. 900 1100 286 1100 LEVEL 1 65989 E 1 A6.10 2050 MIN. CLEAR TYP. 1100 300 RISE 173 RUN 280 TYP. 900 1100 54 1100 Sim 6 A7.20 Sim 5 A7.20 1. ALL PUBLIC STAIR AND RAMP COMPONENTS, INCLUDING TREADS, RISERS, AND NOSINGS SHALL CONFORM TO VBBL 2019 3.4.6.8 & 3.4.6.1. A. TACTILE WARNING SURFACES @ T.O. EVERY FLIGHT B. HIGH CONTRAST NOSINGS C. 915mmHIGH HANDRAIL c/w 300mm HORIZONTAL EXTENSION @ TOP & BOTTOM 2. ALL HANDRAILS AND GUARDRAILS TO CONFORM TO VBBL 2019 -3.4.6.5 & 3.4.6.6. GUARDS DESIGN TO CONFORM TO VBBL 2019 -3.3.1.18, & 4.1.5.14 REGARDING LATERAL LOAD DESIGN. THESE SHALL BE ENGINEERED BY THE FABRICATOR AS PER DESIGN SHOWN. 3. ALL STAIR ASSEMBLIES TO MATCH FLOOR (CONSTRUCTION & RATING) OF UPPER LEVEL THEY SERVE 4. THE DISTANCE BETWEEN A STAIR RISER AND THE LEADING EDGE OF A DOOR DURING ITS SWING SHALL NOT BE LESS THEN 300mm (VBBL 3.4.6.11.(1) 5. ALL PRIVATE STAIRS (SERVING SINGLE DWELLING) SHALL CONFORM TO VBBL SECTION 9.8 6. RISE AND RUN DIMENSIONS IN ACCORDANCE WITH VBBL 2019 -9.8.4.1 & 9.8.4.2 7. RAMP SLOPE AND WIDTH IN ACCORDANCE WITH VBBL 20199.8.5.4 & 9.8.5.2 (2) 8. LANDINGS AND HEIGHTS ABOVE LANDINGS FOR PRIVATE STAIRS IN ACCORDANCE WITH VBBL 2019 -9.8.6.2 & 9.8.6.4 9. HANDRAILS FOR PRIVATE STAIRS IN ACCORDANCE WITH VBBL 2019 -9.8.7 10. INTERIOR STAIRS TO HAVE A RISE OF 200mm MAX. AND 125 MIN. (VBBL 2019 -9.8.4.1) 11. INTERIOR STAIRS TO HAVE A RUN OF355mm MAX. AND 255 MIN. (VBBL 2019 -9.8.4.2) 12. HANDRAILS TO BE PROVIDED IN ACCORDANCE WITH VBBL 2019 -9.8.7 GENERAL NOTES ASSEMBLIES 534 WEST PENDER STREET VANCOUVER, BC CANADA V6B 1V8 TEL: (604) 687-4457 EMAIL: info@shapearchitecture.ca WEB: www.shapearchitecture.ca COPYRIGHT RESERVED: THIS DRAWING AND DESIGN ARE AND AT ALL TIMES REMAIN THE EXCLUSIVE PROPERTY OF SHAPE ARCHITECTURE INC. AND MAY NOT BE USED OR EPRODUCED WITHOUT THEIR WRITTEN CONSENT. REVISIONS DATE DRAWN BY CHECKED BY SCALE JOB NUMBER NO DESCRIPTION DATE STAMP NOTES NO DESCRIPTION As indicated BLOOM STAIRS -C3 A7.27 03/14/22 AR AZ DM DS 2003 4005 YUKON STREET, VANCOUVER, BC, V5Y 2H4 1 25 STAIR C3 -LEVEL 1 1 1 25 STAIR C3 -LEVEL 2 2 1 : 25 STAIR C3 -SECTION 2 4 1 : 25 STAIR C3 -SECTION 1 3
A0.00COVER + DRAWING LIST A0.01PROJECT DATA A0.02GRID LAYOUT A0.03SITE PLAN A0.04BUILDING GRADE ELEVATIONS A0.10WALL ASSEMBLIES EXTERIOR A0.11WALL ASSEMBLIES INTERIOR A0.12FLOOR AND ROOF ASSEMBLIES A0.13CEILING AND SOFFIT ASSEMBLIES A0.20DOOR FRAME TYPE AND DETAILS A0.21DOOR SCHEDULE A0.30GLAZING SCHEDULE A0.31GLAZING SCHEDULE A0.32GLAZING SCHEDULE SLIDING DOORS A0.40GUARD, HANDRAIL, SCREEN LEGEND A2.00PARKING PLAN A2.01LEVEL 1 PLAN A2.02LEVEL 2 PLAN A2.03LEVEL 3 PLAN A2.04ROOF PLAN A2.10PARKING LEVEL SLAB PLAN A2.11GROUND LEVEL SLAB PLAN A2.20NORTH BUILDING ENLARGED LEVEL 1 A2.21NORTH BUILDING ENLARGED LEVEL 2 A2.22NORTH BUILDING ENLARGED LEVEL 3 A2.23NORTH BUILDING ENLARGED ROOF A2.24SOUTH BUILDING ENLARGED LEVEL 1 A2.25SOUTH BUILDING ENLARGED LEVEL 2 A2.26SOUTH BUILDING ENLARGED LEVEL 3 A2.27SOUTH BUILDING ENLARGED ROOF A2.30UNIT PLANS TYPE A+B A2.31UNIT PLANS TYPE C+D A2.32UNIT PLANS TYPE E A2.33UNIT PLANS TYPE F(1-3) A2.34UNIT PLANS TYPE G A2.35UNIT PLANS TYPE H+I A3.01RCP PARKADE A3.02RCP LEVEL A3.03RCP LEVEL A3.04RCP LEVEL A4.01SITE ELEVATIONS SOUTH & EAST A4.02SITE ELEVATIONS NORTH & WEST A4.10NORTH BUILDING ELEVATIONS A4.11NORTH BUILDING AXO VIEW A4.12SOUTH BUILDING ELEVATIONS A4.13SOUTH BUILDING AXO VIEWS A5.01SITE SECTIONS S/N A5.02SITE SECTIONS S/N A5.03SITE SECTIONS E/W A5.11WALL SECTIONS NORTH BLDG A5.12WALL SECTIONS NORTH BLDG A5.13WALL SECTIONS SOUTH BLDG A5.14WALL SECTIONS SOUTH BLDG A5.15WALL SECTIONS SOUTH BLDG A6.01EXIT STAIR #1 PARKADE A6.02EXIT STAIR #2 PARKADE A6.03EXIT STAIR #2 PARKADE A6.10EXIT STAIR #3 A6.11EXIT STAIR #3 A6.12EXIT STAIR #4 A6.13EXIT STAIR #4 A6.14EXIT STAIR #5 A6.15SITE ENTRANCE STAIR -WEST A6.21INTERNAL STAIRS UNITS D.1-D.5 A6.22INTERNAL STAIRS UNITS D.6-D.7 A7.01TYP. WALL FEATURE DETAILS A7.02TYP. WALL FEATURE DETAILS A7.03TYP. WALL FEATURE DETAILS A7.04TYP. WALL FEATURE DETAILS A7.05TYPICAL WALL SECTIONS A7.06TYPICAL PLAN DETAILS A7.10TYPICAL SECTION DETAILS A7.11TYPICAL SECTION DETAILS A7.12TYPICAL SECTION DETAILS A7.13TYPICAL SECTION DETAILS GRADE A7.14TYPICAL SECTION DETAILS PARTY WALLS A7.20STANDARD DETAILS ROUGH OPENING ARCHITECTURAL DRAWINGS DRAWING LIST ARCHITECT SHAPE Architecture 534 West Pender Street Vancouver, BC V6B 1V3 Dwayne Smyth, Architect AAA, AIBC 604 687 4457 d.smyth@shapearchitecture.ca SECONDARY CONTACT: Ivana Hainz, Architect ZAPS 2126 604 848 8064 i.hainz@shapearchitecture.ca CLIENT Terra Blanka Developments Corp. 380 –1281 W Georgia Street Vancouver, BC V6E Lotus Living Group 1529 W 6th Ave #108, Vancouver, BC V6J 1R1 Primary Contact: Kaveh Djahanshahi B.Sc. M.Arch (604) 771 5287 kaveh@terrablanka.com STRUCTURAL Weiler Smith Bowers -Consulting Structural Engineers Primary Contact: Darryl Bowers bowers@wsb-eng.com MECHANICAL AME Group Primary Contact: Reza Mousakhani Associate, P.Eng, CPHD, LEED Green Associate rezamousakhani@amegroup.ca ELECTRICAL Nemetz Primary Contact: Gerry Ewert Project Manager gerry@nemetz.com LANDSCAPE Durante Kreuk Primary Contact: Peter Kreuk Owner peter@dkl.bc.ca Secondary Contact: Taylor Boisjoli BCSLA Intern, MLA, BFA taylor@dkl.bc.ca CP & BUILD. CODE Camphora Primary Contact: Susana D. Chui Principal, M.Eng, P.Eng, PE, CP sdchui@camphora.ca BUILDING ENVELOPE CSA West Primary Contact: Chahak Bhalla, M.Eng chahak@csawest.com CIVIL Core Group 8988 Fraserton Ct, Burnaby Dylan Bryson 604-299-0605 *116 DBryson@coregroupconsultants.com DEVELOPMENT PERMIT REVISIONS -MAJ 26, 2022 ASH STREET + 28TH STREET

SOUTH BUILDING

NORTH BUILDING

UP UP UP UP DN DN DN DN DN DN F F C C A A 0 2 3 4 5 A4.01 1
EGRESS STAIR ELEVATOR. ACCESS TO UPPER UNITS AND PARKADE STAIR ACCESS TO UPPER UNITS AND EGRESS EGRESS STAIR FROM PARKADE 84500 84500 84500 PARKADE ACCESS RAMP EGRESS STAIR FROM PARKADE CLASS B BICYCLE PARKING W 28th AVENUE ASH STREET 34477 3 8 0 9 9 3 8 0 9 4 34633 SIDE SETBACK 1200 FRONT SETBACK 3700 F R O N T S E T B A C K 3 7 0 0 FRONT SETBACK 3700 R E Q S E T B A C K 1 8 0 0 F R O N T S E T B A C K 3 7 0 0 ANNUNCIATOR PANEL MAILBOXES B.G. 83740 B.G. 84810 B.G. 83930 B.G. 83520 B.G. 83850 B.G. 83880 B.G. 83780 B.G. 83910 B.G. 84290 B.G. 84650 B.G. 84730 B.G. 84490 GREEN ROOF 6 G G M M D D A4.02 2 A4.02 1 2.1 4.1 90930 A4.01 2 5.1 B B H H J J K K L L E GATE 1 8 0 0 R E Q S E T B A C K 51 0 7 8 PMT PROPERTY LINE PROPERTY LINE B.G. 84270 83700 83685 ACCEESS PATH/ LANDSCAPE STAIRS 84500 84800 84685 83690 84023 84500 EGRESS STAIR 84038 3.2 3.1 LEGEND SETBACK LINE PROPERTY LINE MAIN SITE ENTRY REQUIRED BUILDING GRADE UNIT ENTRY EXIT DIRECTION B.G. 65590 GENERAL NOTES SITE 1. REFER TO LANDSCAPE AND CIVIL DRAWINGS FOR COMPLETE LANDSCAPING AND GRADING INFORMATION. 2. ALL WALKWAYS AND CONCRETE CURB LETDOWNS TO CONFORM TO VBBL 2018. 3. TOPOGRAPHICAL INFORMATION ON THIS DRAWING HAS BEEN CREATED BASED ON SURVEY BY KEN K. WONG AND ASSOCIATES CANADA AND BC LAND SURVEYORS, TITLED TOPOGRAPHICAL PLAN, DATED DEC 4 2017 AND CITY OF VANCOUVER BUILDING GRADES. 4. ALL EXISTING STRUCTURES (SHOWN ON SURVEY) TO BE REMOVED PRIOR TO EXCAVATION. 5. TREE RETENTION, PROTECTION, AND PROVISION, PER LANDSCAPE ARCHITECT & ARBORIST REPORT. 1462 - 1464 WEST 7th AVENUE VANCOUVER, BC CANADA V6H 1C1 TEL: (778) 735 1405 EMAIL: info@shapearchitecture.ca WEB: www.shapearchitecture.ca COPYRIGHT RESERVED: THIS DRAWING AND DESIGN ARE AND AT ALL TIMES REMAIN THE EXCLUSIVE PROPERTY OF SHAPE ARCHITECTURE INC. AND MAY NOT BE USED OR EPRODUCED WITHOUT THEIR WRITTEN CONSENT. REVISIONS DATE DRAWN BY CHECKED BY SCALE JOB NUMBER NO DESCRIPTION DATE STAMP NOTES NO DESCRIPTION As indicated 28TH + ASH SITE PLAN A0.03 11/24/21 IH DS 2002 607 + 621 West 28th Ave Vancouver, BC TERRA BLANKA DEVELOPMENTS 1 100 SITE PLAN 1 1DP Revisions 0105/26/2022 2DP Revisions 0207/11/2022 2
1 5 18 18 18 23 6 1 5 23 18 1 11 10 11 11 33 5 1 5 1 3 5 17 11 33 33 18 5 5 2 32 28 33 18 5 5 1 17 10 2 5 18 5 1 10 5 18 23 2 18 11 23 5 18 1 10 10 23 10 5 28 1 18 3 33 32 33 33 32 28 10 29 23 32 32 1462 - 1464 WEST 7th AVENUE VANCOUVER, BC CANADA V6H 1C1 TEL: (778) 735 1405 EMAIL: info@shapearchitecture.ca WEB: www.shapearchitecture.ca COPYRIGHT RESERVED: THIS DRAWING AND DESIGN ARE AND AT ALL TIMES REMAIN THE EXCLUSIVE PROPERTY OF SHAPE ARCHITECTURE INC. AND MAY NOT BE USED OR EPRODUCED WITHOUT THEIR WRITTEN CONSENT. REVISIONS DATE DRAWN BY CHECKED BY SCALE JOB NUMBER NO DESCRIPTION DATE STAMP NOTES NO DESCRIPTION 28TH + ASH NORTH BUILDING -AXO VIEW A4.11 11/24/21 DS 2002 607 + 621 West 28th Ave Vancouver, BC TERRA BLANKA DEVELOPMENTS NORTH BUILDING -SOUTH EAST AXO 2 NORTH BUILDING -NORTH WEST AXO 1 MARERIALLEGEND KEY VALUEDESCRIPTION 1WOOD CLADDING 2CEMENT BOARD CLADING 3WOODEN FINS 4ARCHITECTURAL CONCRETE c/w 90° CORNER 5PREFINISHEDMETAL FLASHING COLOURTBD (CUSTOM COLOURRANGE) 61/4" ALUMINUM PLATE,POWDER COAT FIN. COLOUR TBD 7ALUMINUMPLATE WALL PANEL,POWDER COAT FIN. COLOUR TBD 8ENTRY DOORS SEE DOOR SCHEDULE 10DOUBLE GLAZED, THERMALLYBROKEN WOODEN WINDOWS &DOORS SEE WINDOWSCHEDULE 11CURTAIN WALL- SEEWINDOW SCHEDULE 13ELEVATOR 17WINDOW HEAD FLASHING 18METAL LANDSCAPEPLANTER 19CONCRETELANDSCAPEPLANTER 23GLASSGUARDRAIL 26FENCE 28PAINTED CONCRETE, COLOUR TBD 29STEEL STAIRS 30CONCRETE STAIRS 32CONCRETE PAVERS (PER LANDSCAPE) 33COMPOSITEDECKING
5 18 1 18 1 3 17 10 11 1 5 23 5 5 8 17 18 10 29 5 18 1 33 18 10 23 23 5 19 2 18 18 3 23 29 5 1462 - 1464 WEST 7th AVENUE VANCOUVER, BC CANADA V6H 1C1 TEL: (778) 735 1405 EMAIL: info@shapearchitecture.ca WEB: www.shapearchitecture.ca COPYRIGHT RESERVED: THIS DRAWING AND DESIGN ARE AND AT ALL TIMES REMAIN THE EXCLUSIVE PROPERTY OF SHAPE ARCHITECTURE INC. AND MAY NOT BE USED OR EPRODUCED WITHOUT THEIR WRITTEN CONSENT. REVISIONS DATE DRAWN BY CHECKED BY SCALE JOB NUMBER NO DESCRIPTION DATE STAMP NOTES NO DESCRIPTION 28TH + ASH SOUTH BUILDING -AXO VIEWS A4.13 11/24/21 DM DS 2002 607 + 621 West 28th Ave Vancouver, BC TERRA BLANKA DEVELOPMENTS SOUTH BUILDING -SOUTH EAST AXO 2 SOUTH BUILDING -NORTH WEST AXO 1 MARERIALLEGEND KEY VALUEDESCRIPTION 1WOOD CLADDING 2CEMENT BOARD CLADING 3WOODEN FINS 4ARCHITECTURAL CONCRETE c/w 90° CORNER 5PREFINISHEDMETAL FLASHING COLOURTBD (CUSTOM COLOURRANGE) 61/4" ALUMINUM PLATE,POWDER COAT FIN. COLOUR TBD 7ALUMINUMPLATE WALL PANEL,POWDER COAT FIN. COLOUR TBD 8ENTRY DOORS SEE DOOR SCHEDULE 10DOUBLE GLAZED, THERMALLYBROKEN WOODEN WINDOWS &DOORS SEE WINDOWSCHEDULE 11CURTAIN WALL- SEEWINDOW SCHEDULE 13ELEVATOR 17WINDOW HEAD FLASHING 18METAL LANDSCAPEPLANTER 19CONCRETELANDSCAPEPLANTER 23GLASSGUARDRAIL 26FENCE 28PAINTED CONCRETE, COLOUR TBD 29STEEL STAIRS 30CONCRETE STAIRS 32CONCRETE PAVERS (PER LANDSCAPE) 33COMPOSITEDECKING
5 M K L A7.02 1 A7.03 LINE OF FLASHING EW3 IW6 IW8 EW3 W21 340 1' 1 1/2" 320 1' - 0 1/2" 280 11" 1550 5' - 1" 1090 3' 6 3/4" 170 3/4" 150 6" EW3A EW3A 91 3 5/8" 338 1'1 3/8" 1100 3' 7 1/4" CAULK FRONT & BACK OF WINDOW FRAME DOUBLE GLAZED-GLAZED VINYL IGU SEAL VAPOUR BARRIER TO SELFADHERED MEMBRANE (TYP) PRE-STRIP OPENING w/ SELF ADHERED MEMBRANE (TYP) PAINTABLE SEALANT @GWB TO FRAME VERTICAL WOOD FINS EXTERIOR INTERIOR EW3 EW3A INTERIOR EW3A IW8 LINE OF METAL FLASHING SILL BELOW 263 10 3/8" COLOUR LEGEND 440mm X 50mm FINS 100mm X 50mm (3.9") X (1.9") BOARD AND BATTEN 525mm X 50mm FINS 195mm X 50mm FINS WOOD FINS (17.3" )X (1.9") (20.6" )X (1.9") (7.6" )X (1.9") 5 M K L 4 A7.02 340 1' 1 1/2" 320 1' - 0 1/2" 280 11" 1550 5' - 1" 150 6" 170 3/4" 1090 3' 6 3/4" IW7 EW3 EW3A EW3 IW6 EW3A 91 3 5/8" 338 1'1 3/8" 1100 3' 7 1/4" W21 INTERIOR INTERIOR EXTERIOR EW3 EW3A IW7 120 4 3/4" CAULK FRONT & BACK OF WINDOW FRAME PRE-STRIP OPENING w/ SELF ADHERED MEMBRANE (TYP) VERTICAL WOOD FINS LINE OF METAL FLASHING SILL BELOW DOUBLE GLAZED-GLAZED VINYL IGU SEAL VAPOUR BARRIER TO SELFADHERED MEMBRANE (TYP) PAINTABLE SEALANT @GWB TO FRAME EMBEDDED STRUCTURAL PLATE BOLTED INTO WOOD FINS SECURED BOTH SIDES. REFER TO STRUCT. DWGS 1462 - 1464 WEST 7th AVENUE VANCOUVER, BC CANADA V6H 1C1 TEL: (778) 735 1405 EMAIL: info@shapearchitecture.ca WEB: www.shapearchitecture.ca COPYRIGHT RESERVED: THIS DRAWING AND DESIGN ARE AND AT ALL TIMES REMAIN THE EXCLUSIVE PROPERTY OF SHAPE ARCHITECTURE INC. AND MAY NOT BE USED OR EPRODUCED WITHOUT THEIR WRITTEN CONSENT. REVISIONS DATE DRAWN BY CHECKED BY SCALE JOB NUMBER NO DESCRIPTION DATE STAMP NOTES NO DESCRIPTION As indicated 28TH + ASH TYP. WALL FEATURE DETAILS A7.02 11/24/21 DM DS 2002 607 + 621 West 28th Ave Vancouver, BC TERRA BLANKA DEVELOPMENTS 1 : 10 LEVEL 3 -FEATURE WALL ENLARGED 1 1 : 5 TYP. FIN CORNER DETAIL 3 1 : 10 LEVEL 2 -FEATURE WALL ENLARGED 2 1 : 5 TYP. CONNECTION DETAIL AT FIN CORNER 4
EW3A EW3 440 1'5 1/4" 220 8 1/2" 220 8 1/2" EXTERIOR INTERIOR LAP SELF ADHERED MEMBRANE OVER AIR AND MOISTURE BARRIER) VERTICAL WOOD FINS REFER TO COLOUR CODE FOR SIZES LINE OF METAL FLASHING SILL BELOW EMBEDDED STRUCTURAL PLATE BOLTED INTO WOOD FINS AND SECURED BOTH SIDES. REFER TO STRUCT. DWGS CONTINUOUS VAPOUR BARRIER 2X6 WOOD STUDS WITH CONTINUOUS BATT INSULATION STRUCTURAL CONNECTION PLATE FASTENED TO EXTERIOR WALL. 120 4 3/4" 407 1' 4" 3 1 8 1' 0 1/2" COLOUR LEGEND 440mm X 50mm FINS 100mm X 50mm (3.9") X (1.9") BOARD AND BATTEN 525mm X 50mm FINS 195mm X 50mm FINS WOOD FINS (17.3" )X (1.9") (20.6" )X (1.9") (7.6" )X (1.9") 1462 - 1464 WEST 7th AVENUE VANCOUVER, BC CANADA V6H 1C1 TEL: (778) 735 1405 EMAIL: info@shapearchitecture.ca WEB: www.shapearchitecture.ca COPYRIGHT RESERVED: THIS DRAWING AND DESIGN ARE AND AT ALL TIMES REMAIN THE EXCLUSIVE PROPERTY OF SHAPE ARCHITECTURE INC. AND MAY NOT BE USED OR EPRODUCED WITHOUT THEIR WRITTEN CONSENT. REVISIONS DATE DRAWN BY CHECKED BY SCALE JOB NUMBER NO DESCRIPTION DATE STAMP NOTES NO DESCRIPTION As indicated 28TH + ASH TYP. WALL FEATURE DETAILS A7.03 11/24/21 DS 2002 607 + 621 West 28th Ave Vancouver, BC TERRA BLANKA DEVELOPMENTS 1 2 TYP. STRUCTURAL CONNECTION DETAIL WITH VERTICAL FINS 1
R Level 2 87800 Level 3 90930 Roof 94390 COLOUR LEGEND 440mm X 50mm FINS 100mm X 50mm (3.9") X (1.9") BOARD AND BATTEN 525mm X 50mm FINS 195mm X 50mm FINS WOOD FINS (17.3" )X (1.9") (20.6" )X (1.9") (7.6" )X (1.9") 8.5" 8.5" 11/2" 17" 4" MIN. 12"X16"X STEEL ANGLE EMBEDED IN WOOD FINS FOR JOINT CONNECTIONS. BOLTED AND SECURED BOTH SIDES. REFER SIZES TO STRUCT. DWGS. MIN. 8" WIDTH PLATE BOLTED AGAINST PLYWOOD FOR STRUCTURAL SUPPORT. REFER SIZES TO STRUCT. DWGS. WOOD FIN LENGTH VARIES, REFER TO COLOUR CODE FOR SIZES. 4" THKOFEXT WA 1462 - 1464 WEST 7th AVENUE VANCOUVER, BC CANADA V6H 1C1 TEL: (778) 735 1405 EMAIL: info@shapearchitecture.ca WEB: www.shapearchitecture.ca COPYRIGHT RESERVED: THIS DRAWING AND DESIGN ARE AND AT ALL TIMES REMAIN THE EXCLUSIVE PROPERTY OF SHAPE ARCHITECTURE INC. AND MAY NOT BE USED OR EPRODUCED WITHOUT THEIR WRITTEN CONSENT. REVISIONS DATE DRAWN BY CHECKED BY SCALE JOB NUMBER NO DESCRIPTION DATE STAMP NOTES NO DESCRIPTION 28TH + ASH TYP. WALL FEATURE DETAILS A7.04 11/24/21 DS 2002 607 + 621 West 28th Ave Vancouver, BC TERRA BLANKA DEVELOPMENTS 3D VIEW -FINS/ BOARD AND BATTEN 1 ELEVATION -FINS/ BOARD AND BATTEN 2 ENLARGED DETAIL DRAWING: STRUCTURAL BRACKET CONNECTION AT EXTENDED WOOD FINS
/ 3 A7.05 / 2 A7.05 1 A7.05 3 A7.05 2 A7.05 / 1 A7.05 M 91 3 5/8" 338 1' 3/8" 4 A7.10 K L EW3A F-04 F-03 C-01 2750 AFF BEDROOM 01 BEDROOM 01 PARKADE IN-SUITE STORAGE EW5 EW3 1 A7.10 Sim 3 A7.10 Sim 1 A7.11 -01 2715 C-01 2518 R-07 Sim 3 A7.13 Level 1 84500 Level 2 87800 Level 3 90930 Roof 94390 M 6 A7.10 3 A7.10 91 3 5/8" 338 1' 1 3/8" 188 7 3/8" 1 A7.11 K L F-04 C-01 2486 AFF F-03 C-01 2750 AFF BEDROOM 02 ENTRY PARKADE LIVING AREA EW5 EW3A EW3 Sim 2 A7.11 BEDROOM 01 -01 2518 Sim 1 A7.13 EDGE OF WOODEN FIN M 5 A7.10 2 A7.11 91 3 5/8" 338 1' 1 3/8" K L F-04 F-04 EW5 EW3A EW3A F-03 C-01 2750 AFF BEDROOM 01 BEDROOM 01 PARKADE LIVING AREA Sim 1 A7.11 A7.10 -01 2715 -01 2518 R-07 Sim 3 A7.13 WOODEN FINS BOARD AND BATTEN COLOUR LEGEND COLOUR LEGEND 440mm X 50mm FINS 100mm X 50mm (3.9") X (1.9") BOARD AND BATTEN 525mm X 50mm FINS 195mm X 50mm FINS WOOD FINS (17.3" )X (1.9") (20.6" )X (1.9") (7.6" )X (1.9") 1462 - 1464 WEST 7th AVENUE VANCOUVER, BC CANADA V6H 1C1 TEL: (778) 735 1405 EMAIL: info@shapearchitecture.ca WEB: www.shapearchitecture.ca COPYRIGHT RESERVED: THIS DRAWING AND DESIGN ARE AND AT ALL TIMES REMAIN THE EXCLUSIVE PROPERTY OF SHAPE ARCHITECTURE INC. AND MAY NOT BE USED OR EPRODUCED WITHOUT THEIR WRITTEN CONSENT. REVISIONS DATE DRAWN BY CHECKED BY SCALE JOB NUMBER NO DESCRIPTION DATE STAMP NOTES NO DESCRIPTION 28TH + ASH TYPICAL WALL SECTIONS A7.05 11/24/21 DM DS 2002 607 + 621 West 28th Ave Vancouver, BC TERRA BLANKA DEVELOPMENTS 3D -TYP. WALL FEATURE 4 1 25 TYPICAL SECTION -BLUE 1 1 25 TYPICAL SECTION -PINK 3 1 : 25 TYPICAL SECTION -GREEN 2

A6.4DWINDOWWALL

A6.5CURTAINWALL

5780 ALBERTA STREET -RESIDENTIAL RENTAL TOWER

A9.11ACANOPY

PROJECT DIRECTORY

CONTACT PHONE E-MAIL

OWNER MARCONW42PROPERTIESLTD.NICPAOLELLA

604-530-5646 nicpaolella@marcon.ca

#1560 -666 Burrard Street BENCOOPER bcooper@marcon.ca

TIMSCHMITT tschmitt@marcon.ca

Vancouver, BC, V6C 2X8

ARCHITECTRHARCHITECTSINC.BRYCEROSITCH 604-669-6002 bryce@rharchitects.ca

#10 -120 Powell Street ANCAHURST anca@rharchitects.ca

Vancouver, BC V6A 1G1

SURVEYORBUTLERSUNDVICKLANDSURVEYORSGARYSUNDVICK 604-513-9611 gary@butlersundvick.ca

#4 -19089 94th Avenue

Surrey BC, V4N 3S4

ARBORISTFROGGERSCREEKGLENNMURRAY 604-721-6002 glenn@froggerscreek.ca

7763 McGregor Avenue

Burnaby, BC V5J 4H4

LANDSCAPEHAPACOLLABORATIVEJOSEPHFRY 604-909-4150 jfry@hapacobo.com

CHRISMCBRIDE

ARCHITECT #403 -375 West 5th Avenue

Vancouver, BC V5Y 1J6

cmcbride@hapacobo.com

CIVIL BINNIE&ASSOCIATESLTD.DONALCASEY 604-420-1721 dcasey@binnie.com

ENGINEER #300 –4940 Canada Way

Burnaby, BC V5G 4K6

GEOTECHNICAL GEOPACIFCDANIELKOKAN 604-439-0922 dkokan@geopacific.ca

1779 W 75th Avenue

Vancouver, BC V6P 6P2

ALLANAGERKE gerke@geopacific.ca

STRUCTURALGLOTMANSIMPSONCONSULTINGENG.LEVISTOELTING 604-630-3487 lstoelting@glotmansimpson.com

1661 West 5th Ave

Vancouver, BC V6j 1N5

MECHANICAL AMEGROUPNICKFLETCHER 604-684-5995 nickfletcher@amegroup.ca #200 -638 Smithe Street

DORYESFANDIARI

doryesfandiara@amegroup.ca

Vancouver, BC V6B 1E3

ENERGYAMEGROUPMARCTRUDEAU 604-684-5995x162 marctrudeau@amegroup.ca

MODELING #200 -638 Smithe Street

Vancouver, BC V6B 1E3

SUSTAINABILITYRECOLLECTIVECONSULTINGINC.JASONPACKER 604-669-494x203 jason@recollective.ca

#210 -128 West Hastings Street

Vancouver, BC V6B 1G8

ELECTRICALNEMETZANDASSOCIATESGARYGEISSINGER 604-736-6562 gary@nemetz.com

2009 West 4th Avenue HOMERSAPITULA homer@nemetz.com

Vancouver, BC V6J 1N3

BUILDINGMORRISONHERSHFIELD JAMESONVONG 604-454-0403 jvong@morrisonhershfield.com

ENVELOPE #310 -4321 Still Creek Drive

Burnaby, BC V5C 6S7 MCAULEYCONSULTINGINC.TAVISMCAULEY 778-834-6569 tavis@mcauleyconsulting.ca

BUILDING CODE CONSULTANT & CERTIFIED PROFESSIONAL #503 -1587 West 8th Avenue Vancouver, BC V6J 1T8

604-530-5646 avignale@marcon.ca #1560 -666 Burrard

V6C 2X8

S ORE CHURCH U D NG UNDER CONS RUC ON 6 STOREY R S D NT AL BU LD NG NDER CONSTRUCT ON 6 STOREY RE DENT L BU LD NG OAKRIDGE CENTRE 4 STOREY COMM RC L BU LD NG CAMBIE STREET COLUMBIA PARK PLAYGROUND A L B E R T A S T R E E T W 41st AVE 1- STORE S NGL FAM L DWELL NGS W 2 d AVE 1- STORE S NGL FAM L DWELL NGS 1- STORE S NGL FAM L DWELL NGS -2 STOREY S NG E AM Y DWEL NGS -2 STOREY S NG E AM Y DWEL NGS 1-2 STOR Y S NG E FAM Y DWE L NGS W 43 AVE W 4 d AV -2 STOREY NG E AM Y DWE L NGS -2 STOREY NG E AM Y DWE L NGS -2 STOREY NG E AM Y DWE L NGS -2 STOREY NG E AM Y DWE L NGS -2 STOREY S NG E AM Y DWE L NGS CONTEXT PLAN PROPOSED 2 S ORE RES DENT AL BU LD NG P OPOS D 6 TOREY RES DEN A BU D NG PROPOSED 1 S ORE R S DENT AL BU LD NG S OREY COMMERC AL U D NG EX ST NG 2 TOR Y TOWNHOUSE EX ST NG 6 TOR Y U D NG PRO OSED 4 27 TOREY M ED USE B LD NGS PROPOSED & 1 S ORE M ED USE BU LD NGS PROPOSED 1 S OREY R S DENT AL BU LD NG PRO OSED 10 TOR Y M ED USE U D NG UNDER CONSTRUCT ON STORE RES DEN A U D NG ROPOSED 4 STOR Y RES DE T L BU D NG PROPOS D 4 TOR Y RE DENT AL BU D NG -2 STOREY S NG E AM Y DWE L NGS - S OREY S NGLE FAM LY DW L NG ROPO ED 1 S OREY M XE US OW R & POD M ROPOS D 4 STOR Y RE DENT AL TOWNHOUSE BU LD NG C O L U M B A S T R E E T A C T V E L N K S E C O N D A R Y PROPOSE 8 + 1 TORE RE D BU D NG REZON NG N ROGRE S PRO EC S E 1-2 TOR Y S NGL F M L DWE L NGS
INTERIOR DESIGN
Vancouver, BC
MARCONPROPERTIESLTD.ANNAVIGNALE
Street
SPRINKLERCARDINALENGINEERINGLTD.RYANPAVEY 604-605-0606 pavey@cardinalfire.ca #709 -610 Granville Street Vancouver, BC V6C 3T3 MUNICIPALADDRESS 5780 Alberta Street LEGALDESCRIPTION LOT 1, DISTRICT LOT 526, GROUP 1, NEW WESTMINSTER DISTRICT PLAN EPP115596 LOTAREA 1,784.1 m2 19,203.9 sf BUILDINGAREA 1,043.1 m2 11,227.8 sf ZONING CD-1 PROPOSEDHEIGHT 19 storey (18 storey residential units + 1 storey amenity) CONSTRUCTIONTYPE Non-Combustible MAJOROCCUPANCY Group C -Residential PROPOSEDFSR 6.84 PROPOSEDSETBACKS South (W 42nd Avenue): 12 ft West (Alberta Street): 12 ft North (Lane): 7 ft East (adjacent lot): 0 ft VANCOUVERBUILDINGBYLAW2019-Part3 DWG. NO. BASE FILE PROJECT NO. D.P. No ISSUED: PROJECT: CLIENT: ARCHITECTURAL SEAL: 604.669.6002 604.669.1091 120 Powell Street, Unit 10 Vancouver, BC Canada V6A 1G1 B.P. No RH Architects Inc. This drawing as an instrument of service is the property of RH Architects Inc. and may not be reproduced withou the firm's permission. All information shown on the drawing is for use in this specific project only and shall not be used otherwise without written permission from this office. Contractors shall verify and be responsible for all dimensions on the job and this office shall be informed of any discrepancies and variations shown on drawing. CHECKED: SCALE: PLOT DATE: DRAWN: DATE: REVISION :DATE DRAWING TITLE ISSUED FOR 24 OCTOBER 2022 IFT BP REVIEW 12 AUG 2022 IFT REVIEW 23 SEPT 2022 IFT 24 OCT 2022 D:\1922-CENTRAL-SITE-v2022_tamara29.rvt 2022-10-24 6:18:22 PM As indicated 1922 A0.0 5780 ALBERTA STREET COVER PS TM AH BR DP-2021-00586 BUREZONING APPLICATION 02 JUNE 2020 DEVELOPMENT PERMIT 30 APRIL 2021 DP RESUBMISSION 03 FEB 2022 W42 PROPERTIES LTD. VIEW AT CORNER OF W 42nd AND ALBERTA
MUNICIPAL ADDRESS:5780 Alberta Street LEGAL DESCRIPTION:Lot 1, District Lot 526, Group 1, NWD Plan EPP115596 LOT, ZONING & HEIGHT A0.0COVER A0.1STATISTICS A0.2GENERAL NOTES A0.3GENERAL NOTES A0.4GENERAL NOTES A1.0SITE PLAN A2.0P3 PARKING PLAN A2.0AP3 PARKING PLAN CONCRETE PLAN A2.1P2 PARKING PLAN A2.1AP2 PARKING PLAN CONCRETE PLAN A2.2P1 PARKING PLAN A2.2AP1 PARKING PLAN CONCRETE PLAN A3.11st FLOOR PLAN A3.1A1st FLOOR CONCRETE PLAN A3.1B1st FLOOR CONCRETE PLAN PLANTER WALLS A3.1C1st FLOOR REFLECTED CEILING A3.22nd FLOOR PLAN A3.2A2nd FLOOR CONCRETE PLAN A3.2B2nd FLOOR REFLECTED CEILING A3.33rd FLOOR PLAN A3.3A3rd FLOOR CONCETE PLAN A3.3B3rd FLOOR REFLECTED CEILING A3.44th FLOOR PLAN A3.4A4th FLOOR CONCRETE PLAN A3.4B4th FLOOR REFLECTED CEILING A3.55th FLOOR PLAN A3.5A5th FLOOR CONCRETE PLAN A3.5B5th FLOOR REFLECTED CEILING A3.66th FLOOR PLAN A3.6A6th FLOOR CONCRETE PLAN A3.6B6th FLOOR REFLECTED CEILING
FLOOR PLAN A3.7A7th-17th FLOOR CONCRETE PLAN A3.7B7th-17th FLOOR REFLECTED CEILING A3.818th FLOOR PLAN A3.8A18th FLOOR CONCRETE PLAN A3.8B18th FLOOR PLAN REFLECTED CEILING A3.919th FLOOR PLAN A3.9A19th FLOOR CONCRETE PLAN A3.9B19th FLOOR REFLECTED CEILING
PLAN A3.10AROOF PLAN CONCRETE PLAN A4.0ELEVATIONS A4.1ELEVATIONS A4.2ELEVATIONS A4.3ELEVATIONS
A5.3SECTIONS A5.4SECTIONS
SCHEDULE
SCHEDULE
& ROOF SCHEDULE
SCHEDULE A6.2ADOOR SCHEDULE A6.3WINDOW SCHEDULE A6.4AWINDOWWALL SCHEDULE A6.4BWINDOWWALL SCHEDULE
SCHEDULE
A3.77th-17th
A3.10ROOF
A5.0SECTIONS A5.1SECTIONS A5.2SECTIONS
A6.0AWALL
A6.0BWALL
A6.1FLOOR
A6.2DOOR
A6.4CWINDOWWALL
SCHEDULE
SCHEDULE
FINISH SCHEDULE
FINISH SCHEDULE
FLOOR UNITS 2H, 2D-A, 2G-1-A, 1E-A A7.1B1st FLOOR UNITS 2F, 2K, 2L A7.1C1st FLOOR UNITS LOBBY, 2J, 1C A7.2A2nd-4th FLOOR UNITS 1B-1, 2D-A, 2G-A, 2E A7.2B2nd-4th FLOOR UNITS 1G, STUDIO A-2, D-A & EA, 1D, 1F-A A7.2C2nd-4th FLOOR UNITS 1B, STUDIO A & A1, 1A-1, 1C-A A7.5A5th FLOOR UNITS 2B, STUDIO B & C, 2C A7.5B5th FLOOR UNITS 1B, 2A, 1A, STUDIO A A7.6A6th-18th FLOOR UNITS 1B, 2B, STUDIO B & C, 2C A7.6B6th-18th FLOOR UNITS 1B, 2A, 1A, STUDIO A & A1 A8.0STAIR PLANS AND SECTIONS A8.0aSTAIR PLAN AND SECTIONS A8.1STAIR PLANS AND SECTIONS A8.1aSTAIR PLANS AND SECTIONS A8.2STAIR PLANS AND SECTIONS A8.3STAIR PLANS AND SECTIONS A8.4STAIR PLAN AND SECTIONS A9.0TYPICAL CONCRETE DETAILS A9.1TYPICAL CONCRETE DETAILS A9.2TYPICAL DETAILS A9.3TYPICAL DETAILS A9.4TYPICAL DETAILS A9.4ATYPICAL DETAILS A9.5TYPICAL DETAILS A9.6TYPICAL DETAILS A9.7TYPICAL DETAILS A9.8TYPICAL DETAILS A9.8ATYPICAL DETAILS A9.8BTYPICAL DETAILS A9.9TYPICAL DETAILS WINDOW WALL A9.9ATYPICAL DETAILS WINDOW WALL A9.10TYPICAL DETAILS TERRACE DETAILS A9.11CANOPY DETAILS
A6.6AROOM
A6.6BROOM
A7.1A1st
DETAILS A9.11BCANOPY DETAILS A9.12TYPICAL DETAILS ROOF DETAILS A9.13TYPICAL DETAILS PARAPET DETAILS A9.13ATYPICAL DETAILS PARAPET DETAILS A9.13BTYPICAL DETAILS PARAPET DETAILS A9.14GUARDRAIL DETAILS A9.14ASCREEN AND ENTRY GATE DETAILS A9.15TYPICAL DETAILS STAIRS
DETAILS ACCESSIBILE UNITS A9.16BTYPICAL DETAILS ADAPTABLE UNITS TOTAL: 108
LIST
A9.16ATYPICAL
DRAWINGS
No.DescriptionDate
LANE ALBERTA STREET W 42nd AVENUE EXISTING LIGHT STANDARD EXISTING HYDRO POLE U/G PARKING ENTRY RESIDENTIAL ENTRY EXISTING FIRE HYDRANT EXISTING HYDRO POLE TO BE RELOCATED TRANSFORMERS TO BE REMOVED BIKES ELEVATOR 80oDEC DL2 350oDEC DL3 650oDEC DL4 200oDEC DL4 200oDEC DL3 290.09'88.42mBG 290.29'88.48mBG 289.57'88.26mBG 288.98'88.08mBG 288.55'87.95mBG 287.96'87.77mBG 286.84'87.43mBG 285.53'87.03mBG 284.67'86.77mBG 283.72'86.48mBG PL 48.0 m (157.49') PL 48.01 m (157.51') PL 48.0 m (157.48') PL 48.021 m (157.55') PL 37.190 m (122.0') PL 37.185 m (121.99') 828973831mBG 828865798mBG 828829787mBG 828760766mBG 828734758mBG 828717753mBG 828678741mBG 828642730mBG 828550702mBG 828494685mBG 828336637mBG 828192593mBG P L 3 7 1 8 7 m ( 1 2 2 0 ) W 41st AVENUE P L 3 7 1 8 7 m 1 2 2 0 ) DP APPLICATION IN PROGRESS GROUND FLOOR ENTRY GROUND FLOOR ENTRY 20'-0" @ 10% = 2.0' 45'-8 1/4" @ 15% 20'-0" 3.7m (12'-0") SETBACK 3.7m (12'-0") SETBACK 3 7 m ( 1 20 ) S E T B A C K 12'-0" NEW HYDRO POLE RELOCATED HYDRO POLE LOADING CLASS B (1) GROUND FLOOR ENTRY GROUND FLOOR ENTRY GROUND FLOOR ENTRY BIKES CLASS B BIKES CLASS B 350oDEC DL3 700oDEC DL3 400oDEC DL3 400oDEC DL3 POSSIBLE TOWER ACTIVE LINK (SECONDARY) ACTIVE LINK (SECONDARY) AS PER CAMBIE CORRIDOR PUBLIC REALM PLAN FD CONNECTION FD CONNECTION 85'-0" #101 #102 #103 #104 #105 #106 #107 #108 #109 ANNUNCIATOR PANEL EXIT EXIT EXIT 5780 Alberta Street OPEN TO PARKING RAMP BELOW RAMP TO U/G PARKING 8'-7"@ 10% = 0.85' OUTLINE OF TOWER ABOVE LOADING CLASS BAY 279.73' TOS 278.98' TOS 289.0' TOS (ACCESSIBLE) (ACCESSIBLE) 220 SF 12'-5" 30'-0" 67'-6" 12'-0" 11'-7 1/2" ELEV 1ELEV ENTERPHONE GAS METER BOLLARDS 12'-6" 76'-0" 45'-10" 20'-0" 24'-11" 85'-0" 12'-1 1/2" 15'-8 1/2"70'-0"71'-9 1/2" 97'-6" 12'-5" 37.187 16.003 16.003 16.004 37.185 16.000 16.000 16.000 145'-5 1/2" 60'-5 1/2" GENERAL NOTES: 1.EXISTING GRADE INFORMATION, PROPERTY LINES AND SITE BOUNDARIES TAKEN FROM SURVEYORS DRAWING PREPARED BY BUTLER SUNDVICK LAND SURVEYORS, DATED FEBRUARY 4 2021, THAT WAS SUBMITTED FOR STAGE 1 BP. 2.BUILDING GRADE ELEVATIONS AS PER DRAWING BG 2020-00025, DATED 2020-03-25 PROVIDED BY CITY OF VANCOUVER ENGINEERING SERVICES. 3.ALL GRADES AND DIMENSIONS ARE SHOWN IN FEET, UNO. 4.REFER TO ARCHITECTURAL AND LANDSCAPE DRAWINGS FOR ELEVATIONS, GRADING, PAVING AND LANDSCAPE DETAILS. 5.THE ACOUSTICAL MEASURES WILL BE INCORPORATED INTO THE FINAL DESIGN AND CONSTRUCTION BASED ON THE ACOUSTICAL CONSULTANT'S RECOMMENDATIONS. 6.ALL SIGNAGE IS SHOWN FOR REFERENCE ONLY AND IS NOT APPROVED UNDER THIS DEVELOPMENT PERMIT. SIGNAGE IS REGULATED BY THE SIGN BY-LAW AND REQUIRES SEPARATE APPROVALS. THE OWNER(S) ASSUMES RESPONSIBILITY TO ACHIEVE COMPLIANCE WITH THE SIGN BY-LAW AND OBTAIN THE REQUIRED SIGN PERMITS. 7.ALL DIMENSIONS ARE MEASURED TO THE OUTER MOST LIMIT OF THE BUILDING TO CLADDING, UNO. PARKING NOTES: 12.THE DESIGN OF THE PARKING STRUCTURE REGARDING SAFETY AND SECURITY MEASURES SHALL BE IN ACCORDANCE WITH SECTION 4.13 OF THE CITY OF VANCOUVER PARKING BY-LAW. 13.THE DESIGN OF THE BICYCLE SPACES (INCLUDING BICYCLE ROOMS, COMPOUNDS, LOCKERS AND OR RACKS) REGARDING SAFETY AND SECURITY MEASURES SHALL BE IN ACCORDANCE WITH THE RELEVANT PROVISIONS OF SECTION OF THE CITY OF VANCOUVER PARKING BY-LAW. 14.A MINIMUM OF ONE ELECTRICAL RECEPTACLE SHALL BE PROVIDED FOR EACH TWO CLASS A BICYCLE SPACES 15.RECEPTACLES FOR ELECTRICAL VEHICLE CHARGING TO BE PROVIDED AS PER ELECTRICAL VEHICLE INFRASTRUCTURE REQUIREMENTS FOR MULTI-FAMILY BUILDINGS. 16. PROVIDE AUTOMATIC DOOR OPENER TO BIKE STORAGE ROOMS 17.MECHANICAL EQUIPMENT (VENTILATORS, GENERATORS, COMPACTORS AND EXHAUST SYSTEMS) SHALL BE DESIGNED AND LOCATED TO MINIMIZE NOISE IMPACTS ON THE NEIGHBOURHOOD AND COMPLY WITH NOISE BY-LAW NO. 6555. 18.UNDERGROUND PARKING IS TO BE ADEQUATELY VENTILATED, DESIGNED TO PREVENT THE BUILDING UP OF NOXIOUS GASES AND MINIMIZE IMPACT ON THE OPEN SPACE. 19.MAINTAIN 2.3 M MIN. VERTICAL CLEARANCE AT DRIVE AISLE TO AND ABOVE DISABILITY STALLS. 20.ALL VESTIBULE AND ELEVATOR LOBBY DOORS AT PARKING TO BE FULL GLAZED METAL DOORS, C/W SPRINKLER PROTECTIO AS REQUIRED. RESIDENTIAL UNIT NOTES: 8.PROVIDE 1'-6" IN SWING AND 1'-0" OUT-SWING CLEAR SPACE BETWEEN THE LATCHING JAMB OF THE UNIT ENTRY DOOR. IF THIS SPACE IS IMPRACTICAL TO PROVIDE, PRE-WIRE THE DOOR WITH OUTLET BOXES FOR RESIDENTIAL STYLE OPENER AND RELATED CONTROLS. TYPICAL FOR ALL RESIDENTIAL UNITS. 9.PROVIDE REINFORCEMENT IN WALL ASSEMBLIES ADJACENT TO A TOILET, BATHTUB AND SHOWER FOR ACCOMMODATION OF FUTURE GRAB BARS. 10.ALL KITCHEN SINKS AND WASHROOMS WITHIN RESIDENTIAL UNITS TO BE PROVIDED WITH LEVER TYPE FAUCETS. 11.ALL DOOR EXCEPT SERVICE DOORS TO HAVE LEVER OR PUSH/PULL HANDLE, OR ADA APPROVED TYPE. DWG. NO. BASE FILE PROJECT NO. D.P. No ISSUED: PROJECT: CLIENT: ARCHITECTURAL SEAL: 604.669.6002 604.669.1091 120 Powell Street, Unit 10 Vancouver, BC Canada V6A 1G1 B.P. No RH Architects Inc. This drawing as an instrument of service is the property of RH Architects Inc. and may not be reproduced withou the firm's permission. All information shown on the drawing is for use in this specific project only and shall not be used otherwise without written permission from this office. Contractors shall verify and be responsible for all dimensions on the job and this office shall be informed of any discrepancies and variations shown on drawing. CHECKED: SCALE: PLOT DATE: DRAWN: DATE: REVISION :DATE DRAWING TITLE ISSUED FOR 24 OCTOBER 2022 IFT BP REVIEW 12 AUG 2022 IFT REVIEW 23 SEPT 2022 IFT 24 OCT 2022 D:\1922-CENTRAL-SITE-v2022_tamara29.rvt 2022-10-24 9:09:21 AM As indicated 1922 A1.0 5780 ALBERTA STREET SITE PLAN PS TM AH BR DP-2021-00586 BUREZONING APPLICATION 02 JUNE 2020 DEVELOPMENT PERMIT 30 APRIL 2021 DP RESUBMISSION 03 FEB 2022 W42 PROPERTIES LTD. 1/16" = 1'-0" REAL NORTH No.DescriptionDate
M 1 1 3 3 4 4 5 5 6 6 7 7 8 8 9 9 10 10 2 2 A D F G H I J C E K L B A A5.1 A A5.1 C A5.3 C A5.3 1 A5.0 1 A5.0 290.09 ' 88.42mBG 290.2988.48mBG 289.57 ' 88.26mBG 288.9888.08mBG 288.5587.95mBG 287.96 ' 87.77mBGPL 48.0 m (157.49') PL 48.01 m (157.51') PL 48.0 m (157.48') PL 48.021 m (157.55') PL 37.185 m (121.99') 828973'831mBG 828865798mBG 828829787mBG 828760'766mBG 828734'758mBG 828717753mBG 286.78 8741mBG 828642' 7.30mBG 285.50 8702mBG 828494685mBG PL 37.187 m (122.0') LANE W 42nd AVENUE ALBERTA STREET ELEVATOR LOBBY P1 P101 2 A5.2 2 A5.2 270.0' (82.30 m) SMALL CAR SMALL CAR SMALL CAR SMALL CAR SMALL CAR SMALL CAR SMALL CAR SMALL CAR SMALL CAR V1 V2 V3 V4 V5 V6 V7 V8 V9 MECHANICAL ROOM P110 P110 GARBAGE RECYCLING P105 RESIDENTIAL STORAGE P104 V11 R2 R4 R3 R5 R6R8 R9R10R11R12R13R14R15 ST-1 ST-2 ST-3 ST-4 ST-5 ST-6 P104 EXIT ENTERPHONE EXIT 13' @ 10% = 1.3' VESTIBULE P106 P106 278.5' (84.89 m) JANITOR P109 277.0' (84.43 m) 278.43' TOS 275.15' TOS P109 274.25' TOS PASSENGER LOADING CLASS (2) 36.67' @ 2.5% = 0.91' 275.16' TOS MAIN ELECTRICAL ROOM P111 P111a 1'-0"8'-8"35'-10" 8" 1'-5"8'-2"8'-2"6"8'-2"8'-2"8'-2"1'-2"7'-6"8'-2"8'-2"8" P2 EXHAUST SHAFT 1'-0"20'-1"1'-0"8'-2"8'-2"8"8"20'-6"8" 274.10'TOS VESTIBULE P102 P102a P103 STAIR #P1-W P103 10 1 8 1 1 88 23 (7.49 m) 24'-7" (1.79 m) 5'-10 1/2" (0.86 m) 2'-10" (5.44 m) 17'-10" (5.63 m) 18'-5 1/2" (4.64 m) 15'-2 1/2" (8.74 m) 28'-8" (6.25 m) 20'-6" (2.34 m) 7'-8" (3.61 m) 11'-10" 23 " 1 1 8 '8 " 10 1 64 8 2 30 1 80 8 21 " 2 0 '0 " 10 1 74 8 2 20 1 80 1'-0"44'-6"8"68'-5 1/8"8"7'-8"8" 27403 TOS 120'-4 1/2"9'-0"28'-2" ( 3 7 2 m ) 1 22 1 / 2 ( 1 0 7 m ) 36 ( 8 0 6 m ) 2 65 1 / 2 ( 1 7 5 m ) 59 ( 1 8 3 m ) 60 ( 2 7 4 m ) 90 ( 0 9 4 m ) 31 ( 2 5 9 m ) 86 ( 1 5 2 m ) 50 ( 4 2 0 m ) 1 39 1 / 2 ( 1 0 7 m ) 36 ( 3 8 1 m ) 1 26 ( 3 8 5 m ) 1 27 5 / 8 1'-0"8'-2"8'-2"3'-6"1'-6"17'-10"8'-6"8"8" 13'-2" 13'-2" 21'-1" 8" 1'-0"7'-6"7'-6"7'-6"1'-6"7'-6"7'-6"7'-6"3'-4"7'-6"7'-6"7'-6"1'-6" 8" 12'-11"12'-3"8"6'-0"3'-2"4'-1 27'-5"3/4" 8 1 20 8 57 8 40 10 EMERGENCY DIST. ROOM P114 10 " 1 80 " P1 P1 PA PL 279.70' TOS 278.50' TOS V12 R1 R7 R16 R17R18R19 DETENTION TANK 30.9 CU. M. ACCESS FROM ABOVE 102'-6" @ 4.15% = 4.25' LINE OF SLAB ABOVE FOR JELLYFISH INFILTRATION VAULT 42" HEIGHT GUARDRAIL AT EDGE OF SLAB EXIT EXIT HATCHED AREA TO HAVE MIN. 2.3m (7.54') CLEARANCE. REMAINDER OF THE AREA TO HAVE MIN. 2m (6.56') CLEARANCE, UNO. PROJECTIONS OVER THE END OF STALL TO BE MAX. 1.2m (4') DEEP AND THE HEIGHT UNDER PROJECTION TO BE MIN. 1.2m (4') 73'-10" @ 2.5% = 1.85' VISITOR PARKING (11) 24012401 240124012401240124012401 36013601360136013601 cubic yard cubic yard cubic yard P105a P105b AIR SUPPLY SHAFT P2 272.3' (82.99 m) 1 74 PB PD PG PK P2 P2 8" 6'-0"8" P8 P9 P5 P4 PH PI 157'-6 1/2" (4.85 m) 15'-11" (7.49 m) 24'-7" (1.79 m) 5'-10 1/2" (0.86 m) 2'-10" (5.44 m) 17'-10" (5.63 m) 18'-5 1/2" (4.64 m) 15'-2 1/2" (8.74 m) 28'-8" (6.25 m) 20'-6" (2.34 m) 7'-8" RAMP WIDTH 20'-0" 278.4' (84.87 m) 278.43' TOS 278.43' TOS 279.73' TOS 2 7'-0"6'-7" 5'-2" 6'-9"2'-10 7/8" 3 89 " 4 10 " 27900TOS KNOCK-OUT PANEL FOR CONNECTION TO ADJACENT PROPERTY PARABOLIC MIRROR 270.00 TOS 28'-0"2" 31 0 P101a P102b AUTOMATIC DOOR OPENER 27339TOS STAIR #P2-W P107 P107a P107b 8 1 90 8 14 " 38 " 8 " 38 " 2'-6" 5R P113 P108 VESTIBULE P108 JELLYFISH INFILTRATION VAULT 6'-0 4'-0 6'-0 DEEP AT HIGH LEVEL ACCESS FROM ABOVE SMALL CAR SMALL CAR 1'-6"7'-6"1'-0" 8" 8'-8"8"6'-0" COMM. ROOM P113 GENERATOR ROOM P112 P114 B A5.1 B A5.1 VESTIBULE SMOKE CONTROL SHAFT VESTIBULE CO PRESSURIZATION SHAFT STAIRWELL PRESSURIZATION SHAFT 8'-2"8'-2"2'-5 1/4" 4'-11 3/4" 2'-2 3/4" 10 1 4 " 9'-8"35'-10" W1a 26 1 00 22 81 0 1'-6" P3 EXH. EXHAUST SHAFT P3 FD FD FD FD 2 00 M I N FE FE FE FE FE 4'-0"8"1'-0"8'-2"6"8'-2"8'-2"1'-0" 8'-2"5'-0"8'-2"2'-6"10'-2"10'-2"1'-0" 1 44 8 30 2 00 1 14 1 / 2 97 1 / 2 STAIR PRESS. DUCT PARKADE EXHAUST DUCT TO GRADE 3 A5.2 3 A5.2 P112 PARABOLIC MIRROR PARABOLIC MIRROR PARABOLIC MIRROR 8"x8" 35 S-2 1 KW BBH-2 FD FD P101b P101c ACCESS HATCH C/W PROTECTION AT MEZZANINE LEVEL EXIT 3 36 6 72 1 80 FD LINE OF BUILDING ABOVE LINE OF BUILDING ABOVE 3'-8" HB HB HB ELEVATOR 1ELEVATOR AIR SUPPLY SHAFT P3 1 75 38 8 42 8 31 0 8 60 8 W1 W1a W1a W3 W3 W3 W1 W3 W3 W3 W1 W1 W1 W2 W3 W3 W3 W3 W3 W3 W2 W3 W2 W2e W2e W3 W2 W2 W3 W3 W3 W3 W3 W3 W3 W3 W3 W3 W3 W3 W3 W3 W3 W3 W3 W1 W2 W1 W2 W2 W3 W1 W3 W3 W3 W3 W3 W3 W3 W3 FD PIT RESIDENTIAL PARKING P1 P100 1 83 8 40 10 1 65 10 1 98 8 4 00 10 (1.23 m) 4'-0 1/4" 10 71 1 1 2 8 1 08 1 2 8 2 00 11 1 " 3 70 " 10'-8 1/4"33'-3 1/4" 10'-8 1/4"145'-6 5/8" 29'-3 1/4"8" 2'-4" 1'-0" 1'-2 7/8" 10 " 1 1 10 " 1 51 " 23 " 8 1 25 10 105'-9 3/4"1'-0"6'-5 5/8" 105'-9 3/4"7'-5 5/8" S3 P111b W3 S2 W3 FD 6" 1'-0" 273.20' TOS 273.25' TOS 27333TOS 27424TOS 27829TOS 27752TOS 27632TOS 27500'TOS 27500TOS 27500TOS 27424TOS 27583TOC 275.42TOC 42" HEIGHT GUARDRAIL ON 8" CONCRETE CURB 42" HEIGHT GUARDRAIL ON 8" CONCRETE CURB 8" 20'-10"8"3'-4"8" 9'-6" 60 " PULL PIT (3'-6" DEEP) FD 274.2 271.4 27129TOS S.P. S.P. S.P. S.P. W3c 5 '1 " 66 " 1 '0 " W2e W2 W2 276.5' (84.28 m) 1 51 2 30 1 80 8 10 42 W9 OH2 1 A5.4 3 A5.4 4 A5.4 D 4 WRAP MECH. VENTS WITH 2HR FIRE RATED ASSEMBLY. REFER TO SCHEDULE 8"7'-8"8"8'-10" 2 A5.4 GENERAL NOTES: 1.EXISTING GRADE INFORMATION, PROPERTY LINES AND SITE BOUNDARIES TAKEN FROM SURVEYORS DRAWING PREPARED BY BUTLER SUNDVICK LAND SURVEYORS, DATED FEBRUARY 2021, THAT WAS SUBMITTED FOR STAGE 1 BP. 2.BUILDING GRADE ELEVATIONS AS PER DRAWING BG 2020-00025, DATED 2020-03-25 PROVIDED BY CITY OF VANCOUVER ENGINEERING SERVICES. 3.ALL GRADES AND DIMENSIONS ARE SHOWN IN FEET, UNO. 4.REFER TO ARCHITECTURAL AND LANDSCAPE DRAWINGS FOR ELEVATIONS, GRADING, PAVING AND LANDSCAPE DETAILS. 5.THE ACOUSTICAL MEASURES WILL BE INCORPORATED INTO THE FINAL DESIGN AND CONSTRUCTION BASED ON THE ACOUSTICAL CONSULTANT'S RECOMMENDATIONS. 6.ALL SIGNAGE IS SHOWN FOR REFERENCE ONLY AND IS NO APPROVED UNDER THIS DEVELOPMENT PERMIT. SIGNAGE IS REGULATED BY THE SIGN BY-LAW AND REQUIRES SEPARATE APPROVALS. THE OWNER(S) ASSUMES RESPONSIBILITY TO ACHIEVE COMPLIANCE WITH THE SIGN BY-LAW AND OBTAIN THE REQUIRED SIGN PERMITS. 7.ALL DIMENSIONS ARE MEASURED TO THE OUTER MOST LIMIT OF THE BUILDING TO CLADDING, UNO. PARKING NOTES: 12.THE DESIGN OF THE PARKING STRUCTURE REGARDING SAFETY AND SECURITY MEASURES SHALL BE IN ACCORDANCE WITH SECTION 4.13 OF THE CITY OF VANCOUVER PARKING BY-LAW. 13.THE DESIGN OF THE BICYCLE SPACES (INCLUDING BICYCLE ROOMS, COMPOUNDS, LOCKERS AND OR RACKS) REGARDING SAFETY AND SECURITY MEASURES SHALL BE IN ACCORDANCE WITH THE RELEVANT PROVISIONS OF SECTION 6 OF THE CITY OF VANCOUVER PARKING BY-LAW. 14.A MINIMUM OF ONE ELECTRICAL RECEPTACLE SHALL BE PROVIDED FOR EACH TWO CLASS A BICYCLE SPACES 15.RECEPTACLES FOR ELECTRICAL VEHICLE CHARGING TO BE PROVIDED AS PER ELECTRICAL VEHICLE INFRASTRUCTURE REQUIREMENTS FOR MULTI-FAMILY BUILDINGS. 16. PROVIDE AUTOMATIC DOOR OPENER TO BIKE STORAGE ROOMS 17.MECHANICAL EQUIPMENT (VENTILATORS, GENERATORS, COMPACTORS AND EXHAUST SYSTEMS) SHALL BE DESIGNED AND LOCATED TO MINIMIZE NOISE IMPACTS ON THE NEIGHBOURHOOD AND COMPLY WITH NOISE BY-LAW NO. 6555. 18.UNDERGROUND PARKING IS TO BE ADEQUATELY VENTILATED, DESIGNED TO PREVENT THE BUILDING UP OF NOXIOUS GASES AND MINIMIZE IMPACT ON THE OPEN SPACE. 19.MAINTAIN 2.3 M MIN. VERTICAL CLEARANCE AT DRIVE AISLE TO AND ABOVE DISABILITY STALLS. 20.ALL VESTIBULE AND ELEVATOR LOBBY DOORS AT PARKING TO BE FULL GLAZED METAL DOORS, C/W SPRINKLER PROTECTION AS REQUIRED. RESIDENTIAL UNIT NOTES: 8.PROVIDE 1'-6" IN SWING AND 1'-0" OUT-SWING CLEAR SPACE BETWEEN THE LATCHING JAMB OF THE UNIT ENTRY DOOR. IF THIS SPACE IS IMPRACTICAL TO PROVIDE, PRE-WIRE THE DOOR WITH OUTLET BOXES FOR RESIDENTIAL STYLE OPENER AND RELATED CONTROLS. TYPICAL FOR ALL RESIDENTIAL UNITS. 9.PROVIDE REINFORCEMENT IN WALL ASSEMBLIES ADJACENT TO A TOILET, BATHTUB AND SHOWER FOR ACCOMMODATION OF FUTURE GRAB BARS. 10.ALL KITCHEN SINKS AND WASHROOMS WITHIN RESIDENTIAL UNITS TO BE PROVIDED WITH LEVER TYPE FAUCETS. 11.ALL DOOR EXCEPT SERVICE DOORS TO HAVE LEVER OR PUSH/PULL HANDLE, OR ADA APPROVED TYPE. LEGEND 8'-0" DROPPED CEILING CONCRETE WALL CONCRETE BLOCK WALL INTERIOR STRUCTURAL WALLS AREA DRAIN (BI-LEVEL) ATTIC COMPARTMET OUTLINE BOTTOM OF CURB BOTTOM OF PARAPET BOTTOM OF WALL (TOP OF F.G.) CATCH BASIN COOK TOP DISH WASHER A.D. B.O.C. B.O.P. B.O.W. C.B. C.T. DW EXISTING GRADE E.G. FLOOR DRAIN F.D. FINISHED FLOOR ELEVATION F.F.EL. FINISHED GRADE F.G. REFRIGERATOR FRIG. INTERPOLATED BUILDING GRADE I.B.G. LANDSCAPE BI-LEVEL DRAIN BL-FD LINEN CLOSET LIN. LAZY SUSAN L.S. MECH. WALL VENT TERMINATION MECH. SOFFIT VENT GRILL MECH. STANDPIPE PATIO BI-LEVEL DRAIN P.D. POWDER ROOM PWDR ROOF DRAIN R.D. ROD & SHELF R&S ROOF VENT R.V. RAIN WATER LEADER RWL SIAMESE CONNECTION SPRINKLER PROTECTION S.P. FIRE EXTINGUISHER TOP OF ROOF T.O.R. TOP OF SLAB T.O.S. FE TOP OF WALL T.O.W. TOILET PAPER T.P. WASHER DRYER W/D DOOR MARK WINDOW MARK ROOM FINISH MARK WALL ASSEMBLY MARK W# FLOOR ASSEMBLY MARK ROOF ASSEMBLY MARK REFER TO LANDSCAPE DWGS. FOR REFERENCE REFER TO INT. DESIGN DWGS. FOR REFERENCE F# R# DET LAND. LAND. DET SCUPPER OVERFLOW SCUP2 SCUP1 SCUPPER 3"X3" 7'-6" DROPPED CEILING 7'-0" DROPPED CEILING TYP. AIR BARRIER DWG. NO. BASE FILE PROJECT NO. D.P. No ISSUED: PROJECT: CLIENT: ARCHITECTURAL SEAL: 604.669.6002 604.669.1091 120 Powell Street, Unit 10 Vancouver, BC Canada V6A 1G1 B.P. No RH Architects Inc. This drawing as an instrument of service is the property of RH Architects Inc. and may not be reproduced withou the firm's permission. All information shown on the drawing is for use in this specific project only and shall not be used otherwise without written permission from this office. Contractors shall verify and be responsible for all dimensions on the job and this office shall be informed of any discrepancies and variations shown on drawing. CHECKED: SCALE: PLOT DATE: DRAWN: DATE: REVISION :DATE DRAWING TITLE ISSUED FOR 24 OCTOBER 2022 IFT BP REVIEW 12 AUG 2022 IFT REVIEW 23 SEPT 2022 IFT 24 OCT 2022 D:\1922-CENTRAL-SITE-v2022_tamara29.rvt 2022-10-24 5:53:17 PM 1/8" = 1'-0" 1922 A2.2 5780 ALBERTA STREET P1 PARKING PLAN PS TM AH BR DP-2021-00586 BUREZONING APPLICATION02 JUNE 2020 DEVELOPMENT PERMIT30 APRIL 2021 DP RESUBMISSION03 FEB 2022 W42 PROPERTIES LTD. REAL NORTH No.DescriptionDate

15'-11"141'-7 1/2" 69'-7"72'-0 15'-11"1/2"

2'-6"9'-1"26'-9"16'-0"

UP UP UP 1 A5.0 1 A5.0 1 1 A D F G H I J C E K L B 3 3 4 4 5 5 6 6 7 7 2 2 A A5.1 A A5.1 8 8 9 9 10 10 290.09 ' 88.42mBG 290.29 ' 88.48mBG 289.57 ' 88.26mBG 288.9888.08mBG 288.5587.95mBG 287.96 ' 87.77mBGPL 48.0 m (157.49') PL 48.01 m (157.51') PL 48.0 m (157.48') PL 48.021 m (157.55') PL 37.185 m (121.99') 828973'831mBG 828865'798mBG 828829'787mBG 828760' 7.66mBG 828734' 7.58mBG 287.17 8753mBG 828678741mBG 828642'730mBG 828550' 7.02mBG 828494'685mBG PL 37.187 m (122.0') LANE W 42nd AVENUE
C A5.3 C A5.3 O/H GATE BIKE ELEVATOR MEETING ROOM R111 2H 2 BED 690 SF #101 2D-A 2 BED 774 SF #102 2G-1-A 2 BED 980 SF #103 1E-A 1 BED 517 SF #104 PARCEL BOXES R105 ELEC. CLOSET R104 3.7m (12'-0") SETBACK 3.7m (12'-0") SETBACK 3.7m (12'-0") SETBACK (7.49 m) 24'-7" (1.79 m) 5'-10 1/2" (0.86 m) 2'-10" (5.44 m) 17'-10" (5.63 m) 18'-5 1/2" (4.64 m) 15'-2 11'-10"1/2" (8.74 m) 28'-8" (6.25 m) 20'-6" (2.34 m) 7'-8" ( 1 0 7 m ) 3'-6" (8.06 m ) 26'-5 1/2" (1.75 m ) 5'-9" (1.83 m ) 6'-0" (2.74 m ) 9'-0" (0.94 m ) 3'-1" (2.59 m ) 8'-6" (1.52 m ) 5'-0" (4.20 m ) 13'-9 1/2" (1.07 m ) 3'-6" (3.81 m ) 12'-6" (3.85 m ) 12'-7 3/4" (3.72 m ) 12'-2 1/2" 17'-7"4'-0 1/4"
ALBERTA STREET
12'-7 5/8" 12'-2 1/2" 97'-1" STAIR #3-W R107 RES. EXIT R108 R107 R108 PKG EXIT R109 R109 ANNUNCIATOR PANEL ELEVATOR LOBBY R101 STAIR #2-W R102 STAIR #1-W R103 2J 2 BED 893 SF #109 1C 1 BED 576 SF #108 2K 2 BED 773 SF #107 2L 2 BED 797 SF #106 2F 2 BED 731 SF #105 EXIT EXIT EXIT LOADING CORRIDOR R106 VESTIBULE LOBBY 5780 Alberta Street CORRIDOR R100 MAIL R110 17'-75'-3" 1/2" OPEN TO PARKING RAMP BELOW RAMP AT 15% SLOPE EXPOSED TO WEATHER TO BE HEATED RAMP TO U/G PARKING PARKADE EXHAUST SHAFT RES. EXIT R112 RES. EXIT R113 32b+4p 32b+4p 32b+4p 32b+4p 32b+4p 32b+4p 32b+4p
1/2" 46'-0 1/4" 75'-11 1/4" 5'-3 1/2"16'-0 1/2" 5'-1 1/2" 5'-1 1/2" STAIR PRESS. DUCT AUTOMATIC DOOR OPENER AUTOMATIC DOOR OPENER AUTOMATIC DOOR OPENER 8'-5" 18'-4"12'-8"21'-0"11'-10"13'-8"13'-9" 125'-1 1/2"16'-6"
12'-88'-4"8'-6"
3 A5.2 3 A5.2 28'-4" B A5.1 B A5.1 31'-0"18'-6"28'-0"23'-2"4'-10 1/2" 5'-9" 15'-2 1/2"28'-8"20'-6"7'-8" 24'-3 1/2" W4.2 W4.2 W6b W6a W6a W6a S4a W1b W2a S3 W4.4 W4.4 W4.4 16'-5"1'-0"16'-0 1/8" 35'-3 3/8" 7'-2" 3'-10 7/8" 27'-8 1/8" 27'-1" P1 PA PL P2 P8 P9 P5 P4 2 A5.2 2 A5.2 W4.6 W4.6 W5 W5 W5 W5 W5 W6b W6b W6c W6b W6b W2 W2 W6c W6b W6b W6a W5 W5 W5 W5 W5 29'-5"40'-2" W7a W2d W2c W2d W2e W6b W7a W7a W6b W5 W5 W5 W5a W5 W6b W5 W4.4 S2 S2 W2c W6c W6a W5 W6b W4.4 W4.3 W4.3 W3 W2 W4.3 W1b 8'-7" @ 10% =0.85' 45'-8 1/4" @ 15% = 6.85' 3'-0" W4.6 W4.6 W4.6 W4.6 W5 W5 2'-0" 1 R113a R100c R102 R104 R110 1 R112 R113b R106 1 1 1 1 R101a SF-100a SF-100b CW-2 CW-1 CW-3b CW-3a W7 W6 W3 W2 W1 10'-10 1/2" W5 W4 SF-111 ENTERPHONE FD STANDPIPE SIAMESE CONNECTION FD CONNECTION VRF 30"x21" MNR3-8 W7b W7b W7b A9.5 10 A8.4 12'-11 1/2"31'-8" 28980 ' 8833m 87.286.92' 45m 87.286.57' 35m 289.00'88.09m 828592' 7.15m 288.58'87.96m 6 3 8 828859' 7.96m 28934 ' 88.19m 4'-5 1/2" 25'-9 1/2" A3 C5 C7 C5 A3 C7 C5wc C5wc 2'-4"4'-8"3'-4"2'-6"2'-6"7'-0"3'-0"4'-0"2'-6"4'-6"2'-6" 2'-4 1/2"4'-6"2'-6"3'-4"3'-0"6'-11 1/2"2'-6"2'-6"3'-4" 3'-10 1/2" 2'-6" 2'-6" 2'-6" 2'-6" 2'-6" 2'-6" 3'-0" 4'-11 1/2" 2'-1" 2'-1" 2'-8" 2'-2 1/2" C3wc C3 C5 C5 C2 C4 C5 C7 C5 C5 C2 F2 C5 C4 C5 C2 F6 1'-4 1/2"2'-0"2'-0"9"3'-0"2'-2"2'-6"2'-6"5'-0"2'-6" 3'-8"2'-0"3'-8"2'-6"2'-6"3'-2"2'-0 1/2" 2'-8 1/2" 2'-6" 2'-6" 1'-10" 2'-0" 3'-0" 3'-0" 6 1/2" W2a W6b 3'-9 1/2"3'-9 1/2"3'-9 1/2"3'-10 1/2" CONCRETE EYEBROW ABOVE 20'-3 1/2" HB HB HB HB HB HB HB HB HB 6'-2"1'-0"2'-6"2'-3 1/2"2'-3 1/2" 3'-2"2'-6"2'-6"3'-0"2'-6"4'-6"3'-1"2'-6"2'-6"2"3'-0"3'-8"2'-0"2'-0"2'-2"2'-0"5'-8"3'-2"2'-6"2'-6"2'-8" 2'-6"2'-6"3'-2"4'-10 1/2" 8 1/2" 3'-0"6'-2"3'-0"11 1/2" 4'-4" 1'-9 1/2" 2'-0"3'-1"3'-1" HB ELEVATOR 2 ELEVATOR W2c S2 S2 4'-0 1/2"1'-6" 3'-8" ADD SIGNAGE INDICATING CROSS-OVER FLOOR ADD SIGNAGE INDICATING CROSS-OVER FLOOR 3'-8" 3'-8" S.P. S.P. 10 A9.2 3'-4"3'-2"2'-6"2'-3"2'-3"2'-6" 20'-6"7'-9" 24"X36" PARKING EXHAUST GRILLE 30"x48" EXHAUST GRILLE AT GRADE 4'-8 1/4" 6'-8 1/2" 6'-6"6'-6" 1'-0" W7a 6'-0" 1'-0"3'-8"8"3'-8"1'-4" 4'-7 1/4" 4'-5 1/2" 35'-8 1/2"18'-1"19'-0"24'-3 1/2" A9.8 A9.8 A9.8 A9.8 A9.8 A9.8 A9.8 A9.8 CW-4a CW-4b WI-b WI-a A9.8B A9.8A A9.4A 5'-8 1/2" AD AD AD AD AD AD AD AD AD AD AD AD AD AD AD PD AD AD AD 2'-6" 3'-3 1/2" 2'-6" 8 7-0 BOLLARDS GAS METER LINE OF CANOPY ABOVE PARKADE FOUNDATION WALLS BELOW PARKADE FOUNDATION WALLS BELOW PARKADE FOUNDATION WALLS BELOW A9.4A A9.3 W1c 288.98' 88.08 m 288.64 ' 8798m 2'-1" TRENCH DRAIN 42" HEIGHT PICKET GUARDRAIL W D 20'0" @ 10% = 2.0' 278.98' TOS 279.73' TOS W D S2 S2 POSTS FOR HSS TRELLIS POSTS FOR HSS TRELLIS S2 GARBAGE ROOM EXHAUST GRILLE IN PLANTER WALL 12'-9 3/8"5'-6 1/2" STAIR #P1-W 5'-7" PARKADE FOUNDATION WALLS BELOW IF1 IF1 IF1 A8.4 5 A8.4 6 A8.4 IF2a IF2a IF2a W6b W6b W7 3'-8" W2e W2e WATER BOTTLE FILLER R105 5'-9"9'-9" OH1 A9.14A MECH. SPILL CONTAINER ON PEDESTAL AD AD AD AD 2'-7 1/2" 1 A5.4 2 A5.4 3 A5.4 5-101/2 7'-8"10'-8 1/2" A9.11 IF1a 4 A5.4 14'-5 3/4"8'-8 3/8"2'-10 3/4" ELEC. CLOSET R115 IF2a AD W1c AD AD AD AD AD A9.8A W5 W7 W5 R115 GLASS GUARDS PLACED ALONG WALL 289.00' T.O.P 287.12' T.O.P 289.00' T.O.P 286.71' T.O.P 289.00' T.O.P W1b W1b W1b W1b A9.8B GENERAL NOTES: 1.EXISTING GRADE INFORMATION, PROPERTY LINES AND SITE BOUNDARIES TAKEN FROM SURVEYORS DRAWING PREPARED BY BUTLER SUNDVICK LAND SURVEYORS, DATED FEBRUARY 2021. 2.BUILDING GRADE ELEVATIONS AS PER DRAWING BG 2020-00025, DATED 2020-03-25 PROVIDED BY CITY OF VANCOUVER ENGINEERING SERVICES. 3.ALL GRADES AND DIMENSIONS ARE SHOWN IN FEET, UNO. 4.REFER TO ARCHITECTURAL AND LANDSCAPE DRAWINGS FOR ELEVATIONS, GRADING, PAVING AND LANDSCAPE DETAILS. 5.THE ACOUSTICAL MEASURES WILL BE INCORPORATED INTO THE FINAL DESIGN AND CONSTRUCTION BASED ON THE ACOUSTICAL CONSULTANT'S RECOMMENDATIONS. 6.ALL SIGNAGE IS SHOWN FOR REFERENCE ONLY AND IS NO APPROVED UNDER THIS DEVELOPMENT PERMIT. SIGNAGE IS REGULATED BY THE SIGN BY-LAW AND REQUIRES SEPARATE APPROVALS. THE OWNER(S) ASSUMES RESPONSIBILITY TO ACHIEVE COMPLIANCE WITH THE SIGN BY-LAW AND OBTAIN THE REQUIRED SIGN PERMITS. 7.ALL DIMENSIONS ARE MEASURED TO THE OUTER MOST LIMIT OF THE BUILDING TO CLADDING, UNO. PARKING NOTES: 12.THE DESIGN OF THE PARKING STRUCTURE REGARDING SAFETY AND SECURITY MEASURES SHALL BE IN ACCORDANCE WITH SECTION 4.13 OF THE CITY OF VANCOUVER PARKING BY-LAW. 13.THE DESIGN OF THE BICYCLE SPACES (INCLUDING BICYCLE ROOMS, COMPOUNDS, LOCKERS AND OR RACKS) REGARDING SAFETY AND SECURITY MEASURES SHALL BE IN ACCORDANCE WITH THE RELEVANT PROVISIONS OF SECTION 6 OF THE CITY OF VANCOUVER PARKING BY-LAW. 14.A MINIMUM OF ONE ELECTRICAL RECEPTACLE SHALL BE PROVIDED FOR EACH TWO CLASS A BICYCLE SPACES 15.RECEPTACLES FOR ELECTRICAL VEHICLE CHARGING TO BE PROVIDED AS PER ELECTRICAL VEHICLE INFRASTRUCTURE REQUIREMENTS FOR MULTI-FAMILY BUILDINGS. 16. PROVIDE AUTOMATIC DOOR OPENER TO BIKE STORAGE ROOMS 17.MECHANICAL EQUIPMENT (VENTILATORS, GENERATORS, COMPACTORS AND EXHAUST SYSTEMS) SHALL BE DESIGNED AND LOCATED TO MINIMIZE NOISE IMPACTS ON THE NEIGHBOURHOOD AND COMPLY WITH NOISE BY-LAW NO. 6555. 18.UNDERGROUND PARKING IS TO BE ADEQUATELY VENTILATED, DESIGNED TO PREVENT THE BUILDING UP OF NOXIOUS GASES AND MINIMIZE IMPACT ON THE OPEN SPACE. 19.MAINTAIN 2.3 M MIN. VERTICAL CLEARANCE AT DRIVE AISLE TO AND ABOVE DISABILITY STALLS. 20.ALL VESTIBULE AND ELEVATOR LOBBY DOORS AT PARKING TO BE FULL GLAZED METAL DOORS, C/W SPRINKLER PROTECTION AS REQUIRED. RESIDENTIAL UNIT NOTES: 8.PROVIDE 1'-6" IN SWING AND 1'-0" OUT-SWING CLEAR SPACE BETWEEN THE LATCHING JAMB OF THE UNIT ENTRY DOOR. IF THIS SPACE IS IMPRACTICAL TO PROVIDE, PRE-WIRE THE DOOR WITH OUTLET BOXES FOR RESIDENTIAL STYLE OPENER AND RELATED CONTROLS. TYPICAL FOR ALL RESIDENTIAL UNITS. 9.PROVIDE REINFORCEMENT IN WALL ASSEMBLIES ADJACENT TO A TOILET, BATHTUB AND SHOWER FOR ACCOMMODATION OF FUTURE GRAB BARS. 10.ALL KITCHEN SINKS AND WASHROOMS WITHIN RESIDENTIAL UNITS TO BE PROVIDED WITH LEVER TYPE FAUCETS. 11.ALL DOOR EXCEPT SERVICE DOORS TO HAVE LEVER OR PUSH/PULL HANDLE, OR ADA APPROVED TYPE. LEGEND 8'-0" DROPPED CEILING CONCRETE WALL CONCRETE BLOCK WALL INTERIOR STRUCTURAL WALLS AREA DRAIN (BI-LEVEL) ATTIC COMPARTMET OUTLINE BOTTOM OF CURB BOTTOM OF PARAPET BOTTOM OF WALL (TOP OF F.G.) CATCH BASIN COOK TOP DISH WASHER A.D. B.O.C. B.O.P. B.O.W. C.B. C.T. DW EXISTING GRADE E.G. FLOOR DRAIN F.D. FINISHED FLOOR ELEVATION F.F.EL. FINISHED GRADE F.G. REFRIGERATOR FRIG. INTERPOLATED BUILDING GRADE I.B.G. LANDSCAPE BI-LEVEL DRAIN BL-FD LINEN CLOSET LIN. LAZY SUSAN L.S. MECH. WALL VENT TERMINATION MECH. SOFFIT VENT GRILL MECH. STANDPIPE PATIO BI-LEVEL DRAIN P.D. POWDER ROOM PWDR ROOF DRAIN R.D. ROD & SHELF R&S ROOF VENT R.V. RAIN WATER LEADER RWL SIAMESE CONNECTION SPRINKLER PROTECTION S.P. FIRE EXTINGUISHER TOP OF ROOF T.O.R. TOP OF SLAB T.O.S. FE TOP OF WALL T.O.W. TOILET PAPER T.P. WASHER DRYER W/D DOOR MARK # WINDOW MARK # ROOM FINISH MARK # WALL ASSEMBLY MARK W# FLOOR ASSEMBLY MARK ROOF ASSEMBLY MARK REFER TO LANDSCAPE DWGS. FOR REFERENCE REFER TO INT. DESIGN DWGS. FOR REFERENCE F# R# DET LAND. LAND. DET SCUPPER OVERFLOW SCUP2 SCUP1 SCUPPER 3"X3" 7'-6" DROPPED CEILING 7'-0" DROPPED CEILING TYP. AIR BARRIER EXTERIOR VENTED SOFFIT SPRAY-FOAM INSULATION DWG. NO. BASE FILE PROJECT NO. D.P. No ISSUED: PROJECT: CLIENT: ARCHITECTURAL SEAL: 604.669.6002 604.669.1091 120 Powell Street, Unit 10 Vancouver, BC Canada V6A 1G1 B.P. No RH Architects Inc. This drawing as an instrument of service is the property of RH Architects Inc. and may not be reproduced withou the firm's permission. All information shown on the drawing is for use in this specific project only and shall not be used otherwise without written permission from this office. Contractors shall verify and be responsible for all dimensions on the job and this office shall be informed of any discrepancies and variations shown on drawing. CHECKED: SCALE: PLOT DATE: DRAWN: DATE: REVISION :DATE DRAWING TITLE ISSUED FOR 24 OCTOBER 2022 IFT BP REVIEW 12 AUG 2022 IFT REVIEW 23 SEPT 2022 IFT 24 OCT 2022 D:\1922-CENTRAL-W BLDG-v2022_tamara29.rvt 2022-10-24 5:00:34 PM 1/8" = 1'-0" 1922 A3.1 5780 ALBERTA STREET 1st FLOOR PLAN Author Checker DP-2021-00586 BUREZONING APPLICATION 02 JUNE 2020 DP APPLICATION 30 APRIL 2021 DP RESUBMISSION03 FEB. 2022 W42 PROPERTIES LTD. REAL NORTH DESIGNATED CROSSOVER FLOOR No.DescriptionDate

(3.05 10'-0"m)

(3.05 10'-0"m)

(3.05 10'-0"m)

(3.05 10'-0"m)

(3.05 10'-0"m)

(3.05 10'-0"m)

(3.05 10'-0"m) (3.05

BUILDING MATERIAL LEGEND 1 WHITE ALUMINUM FRAME WINDOW WALL C/W COLOURED SPANDREL PANELS 2 GRAY ALUMINUM FRAME WINDOW WALL C/W COLOURED SPANDREL PANELS 3 WHITE ALUMINUM GUARDRAIL C/W GLASS PANELS & TRANSLUCENT BASE PANELS PAINTED EXPOSED CONCRETE PLANTERS 4 WHITE ALUMINUM GUARDRAIL C/W GLASS PANELS 5 ALUMINUM PANELS -WHITE 7 PAINTED EXPOSED CONCRETE -WHITE 13 ALUMINUM FRAME TRELLIS -GRAY 10 6 ALUMINUM PANELS -BLUE 8 BRICK CLADDING 9 ALUMINUM WOOD TEXTURED ACCENTS METAL PLANTERS 11 PARKLANE MECHANICAL ACOUSTIC PANELS -GRAY 12 14 UNIT ENTRY DOORS ALUMINUM WOOD TEXTURED 15 CEMENTITIOUS PANEL SIDING -WHITE 16 CEMENTITIOUS PANEL SIDING -BLUE 17 18 WHITE ALUMINUM PICKET GUARDRAIL PRIVACY SCREEN -WHITE ALUMINUM FRAME C/W FROSTED GLASS PANELS 19 WHITE ALUMINUM FRAME CURTAIN WALL C/W WHITE METAL PANELS LEVEL 1 289' -0" (88.09 m) LEVEL 2 299' -0" (91.14 m) LEVEL 3 309' -0" (94.18 m) LEVEL 4 319' -0" (97.23 m) LEVEL 5 329' -0" (100.28 m) LEVEL 6 339' -0" (103.33 m) LEVEL 7 349' -0" (106.38 m) LEVEL 8 359' -0" (109.42 m) LEVEL 9 369' -0" (112.47 m) LEVEL 10 379' -0" (115.52 m) LEVEL 11 389' -0" (118.57 m) LEVEL 12 399' -0" (121.62 m) LEVEL 13 409' -0" (124.66 m) LEVEL 14 419' -0" (127.71 m) LEVEL 16 439' -0" (133.81 m) LEVEL 17 449' -0" (136.86 m) LEVEL 18 459' -0" (139.90 m) LEVEL 19 469' -7" (143.13 m) ROOF 483' -8" (147.42 m) ROOF UPPER 493' -8" (150.47 m) 1 3 4 5 6 7 2 LEVEL 15 429' -0" (130.76 m) 8 9 10 (3.05 10'-0"m) (4.29 14'-1"m) (3.23 10'-7"m) (3.05 10'-0"m) (3.05 10'-0"m) (3.05 10'-0"m) (3.05
(3.05
10'-0"m) (3.05 10'-0"m) (3.05 10'-0"m)
10'-0"m) (3.05 10'-0"m)
(3.05 10'-0"m)
8 9 9 1 4 1 8 9 14 3 11 7 10 8 6 PL ALBERTA ST. 828550 702mBG 828642730mBG 828676741mBG 828692 745mBG 8287.17'7.53mBG PL 828734758mBG P1 C2 C7 C5 FP1 P1 C2 FP1 C5 C5 FP1 FP1 C4 C7 C7 C4 FP1 C3 C3wc C5 C5 C5 FP1 FP1 C5 C5 FP1 P1 P1 C2 C7 C2 C5 C7 C5 C4 C2 10 4 6 6 C7wc C4 C5 C5 FP1 FP1 FP1 C2 P1 FP1 C5 C7 C2 P1 7'-6" 1-HR FRR AND WATER CURTAIN SPRINKLERS C/W TEMPERED GLASS FOR WINDOWS ARE REQUIRED FOR EXIT EXPOSURE PROTECTION IN THIS AREA AS PER 3.2.3.13.(5). REFER TO CODE COMPLIANCE DRAWINGS 12 1 19 1 19 DWG. NO. BASE FILE PROJECT NO. D.P. No ISSUED: PROJECT: CLIENT: ARCHITECTURAL SEAL: 604.669.6002 604.669.1091 120 Powell Street, Unit 10 Vancouver, BC Canada V6A 1G1 B.P. No RH Architects Inc. This drawing as an instrument of service is the property of RH Architects Inc. and may not be reproduced withou the firm's permission. All information shown on the drawing is for use in this specific project only and shall not be used otherwise without written permission from this office. Contractors shall verify and be responsible for all dimensions on the job and this office shall be informed of any discrepancies and variations shown on drawing. CHECKED: SCALE: PLOT DATE: DRAWN: DATE: REVISION :DATE DRAWING TITLE ISSUED FOR 24 OCTOBER 2022 IFT BP REVIEW 12 AUG 2022 IFT REVIEW 23 SEPT 2022 IFT 24 OCT 2022 D:\1922-CENTRAL-W BLDG-v2022_tamara29.rvt 2022-10-24 9:42:03 AM As indicated 1922 A4.0 5780 ALBERTA STREET ELEVATIONS PS TM AH BR DP-2021-00586 BUREZONING APPLICATION 02 JUNE 2020 DP APPLICATION 30 APRIL 2021 DP RESUBMISSION03 FEB. 2022 W42 PROPERTIES LTD. SOUTH ELEVATION 3/32" = 1'-0" No.DescriptionDate
10'-0"m)

(3.05 10'-0"m) (3.23 10'-7"m) (4.29 14'-1"m)

(3.05 10'-0"m)

(3.05 10'-0"m)

(3.05 10'-0"m) (3.05 10'-0"m)

(3.05 10'-0"m)

(3.05 10'-0"m)

(3.05 10'-0"m)

10'-0"m)

10'-0"m)

10'-0"m)

10'-0"m)

10'-0"m)

12'-6"m) (3.05 10'-0"m) (3.05 10'-0"m) (3.05 10'-0"m) (3.05 10'-0"m)

10'-0"m)

(3.05 10'-0"m)

A D G H I J C E K L B 2G-A #417 2G-A #216 2G-1-A #103 2J #109 RES. EXIT ELEVATOR LOBBY 2G-A #317 2E #217 2E #318 2E #418 1A-1 #411 1A-1 #311 1A-1 #211 1A #504 1A #605 STUDIO #611 STUDIO #510 RESIDENTIAL STORAGE P305 BIKE STORAGE (P319) 48 BIKE STORAGE (P315) 34 (3.05 10'-0"m) (3.05 10'-0"m) (3.81 12'-6"m) (3.05 10'-0"m) (3.05 10'-0"m) (3.05 10'-0"m) (3.05 10'-0"m) (3.05 10'-0"m) (3.05 10'-0"m) (3.05 10'-0"m) (3.05 10'-0"m) (3.05 10'-0"m) (3.05 10'-0"m) (3.05 10'-0"m) (3.05 10'-0"m) (3.05 10'-0"m) (3.05 10'-0"m) (3.05 10'-0"m) (3.05 10'-0"m) (3.05 10'-0"m) (3.23 10'-7"m) (4.29 14'-1"m) F4 F4 W4.6 F4 F4 F4 F3 W4.6 W4.6 W4.6 F3 W2 W2d W2d R2 R2 R2 F4 F4 F4 F4 R5 W2 W2b W2 W2b W5 W5 W5 W2d W1 W2 W2 W2e W2e W1 8'-2" 8'-6" 9'-3 1/2" 9'-3 1/2" TYP. 3'-0" W1 F2 F2 W2e F1 F2 F2 F1 R6 8'-8" 47158TOP 47158TOP W1 M N C E A R A N C EM N C L E A R A N C ER2 F4 R2 E E V P T14 80 8'-0" 8'-0" 3'-6" 3'-6" 3'-6" 3'-6" PL PL W 42nd AVENUE LANE 4'-0" 8 1/2" W1 W1 8'-1" W2 W2a W2a 286.92 ' 87.45m 828981 834m 83 2 7'-6" 48467TOP A9.12 2 A9.10 A9.10 A9.14A 48740TOP A9.3 LEVEL 1 289' -0" (88.09 m) LEVEL 2 299' -0" (91.14 m) LEVEL 3 309' -0" (94.18 m) LEVEL 4 319' -0" (97.23 m) LEVEL 5 329' -0" (100.28 m) LEVEL 6 339' -0" (103.33 m) LEVEL 7 349' -0" (106.38 m) LEVEL 8 359' -0" (109.42 m) LEVEL 9 369' -0" (112.47 m) LEVEL 10 379' -0" (115.52 m) LEVEL 11 389' -0" (118.57 m) LEVEL 12 399' -0" (121.62 m) LEVEL 13 409' -0" (124.66 m) LEVEL 14 419' -0" (127.71 m) P3 256' -6" (78.18 m) LEVEL 16 439' -0" (133.81 m) LEVEL 17 449' -0" (136.86 m) LEVEL 18 459' -0" (139.90 m) LEVEL 19 469' -7" (143.13 m) ROOF 483' -8" (147.42 m) A D F H I J C E K L B LEVEL 15 429' -0" (130.76 m) P2 266' -6" (81.23 m) P1 276' -6" (84.28 m) CORRIDORCORRIDORCORRIDORCORRIDOR
(3.05
(3.81
(3.05
(3.05
(3.05
(3.05
(3.05
1C-A #409 1C-A #309 1C-A #209 1C #108 LOADING CORRIDOR R106 2M #201 2M #301 2M #401 RESIDENTIAL PARKING P3 P300 BIKE STORAGE (P314) 37 BIKE STORAGE (P321) 50 R2 F4 F4 W4.6 R5 F4 R2 R2 F4 F4 F4 F4 W4.4 F3 W5 W5 R2 F4 W1 W2 W1 W1 8'-8 1/2" W5 6'-6" 7'-1" 3'-6" 3'-6" 3'-6" W4.6 PL PL W 42nd AVENUE LANE 828900' 8.09m 286.578735m W1 F2 F2 F1 F2 F1 W1 W2 W1d F4a S.P. R4 7'-8" 47158TOP47458TOP A9.10 A9.9A W4.6 W4.6 F4a A9.14A DWG. NO. BASE FILE PROJECT NO. D.P. No ISSUED: PROJECT: CLIENT: ARCHITECTURAL SEAL: 604.669.6002 604.669.1091 120 Powell Street, Unit 10 Vancouver, BC Canada V6A 1G1 B.P. No RH Architects Inc. This drawing as an instrument of service is the property of RH Architects Inc. and may not be reproduced withou the firm's permission. All information shown on the drawing is for use in this specific project only and shall not be used otherwise without written permission from this office. Contractors shall verify and be responsible for all dimensions on the job and this office shall be informed of any discrepancies and variations shown on drawing. CHECKED: SCALE: PLOT DATE: DRAWN: DATE: REVISION :DATE DRAWING TITLE ISSUED FOR 24 OCTOBER 2022 IFT BP REVIEW 12 AUG 2022 IFT REVIEW 23 SEPT 2022 IFT 24 OCT 2022 D:\1922-CENTRAL-W BLDG-v2022_tamara29.rvt 2022-10-24 12:55:03 PM 1/16" = 1'-0" 1922 A5.1 5780 ALBERTA STREET SECTIONS PS TM AH BR DP-2021-00586 BUREZONING APPLICATION02 JUNE 2020 DP APPLICATION30 APRIL 2021 DP RESUBMISSION03 FEB. 2022 W42 PROPERTIES LTD. SCALE: 1/16" = 1'-0" A3.1 A SECTION A SCALE: 1/16" = 1'-0" A3.1 B SECTION B No.DescriptionDate
MTL. PANEL HOSE BIB 9'-38'-0" 1/2" 1'-2" OUTSIDE COUPLER INSIDE COUPLER 6"2'-0"6'-2"2'-6" 11'-2" 3'-0"3'-0" 1'-7 1/2"2'-1"4'-3"1'-4" 1'-4" 4'-3" 2'-1" 1'-7 1/2" 8 1/2" 6"2'-4 1/2"3'-10 1/2"3'-10 1/2"1'-9 1/2" 12'-5" OUTSIDE COUPLER 3'-6" 9'-3 1/2" OUTSIDE COUPLER INSIDE COUPLER ELEC. MTL. PANEL 3'-0"6" 9'-3 1/2" 8'-0" OUTSIDE COUPLER INSIDE COUPLER 6"1'-6"6'-2" 3'-0"3'-0" 1'-7 1/2" 9'-10" 1'-8" 10'-0" OUTSIDE COUPLER 20'-6" 2'-8"3'-0"2'-6"2'-6"3'-5 1/2"2'-6"3'-4 1/2"6" 10'-0" 1'-7 1/2"2'-1"4'-3"1'-4"8'-0" 57'-6" 3'-0"3'-0" OUTSIDE COUPLER 6"3'-4"2'-6"2'-6"2'-0"3'-0"2'-8"2'-8"2'-6"2'-6"2'-6"1'-8"2'-4"2'-4"2'-6"2'-0"2'-0"6'-2"1'-8"2'-6"2'-6"2'-6"2'-8" 57'-6" 8'-0" 1'-4" 4'-3" 2'-2 1/2" 1'-6" 2'-6"2'-6"2'-6"2'-8" OUTSIDE COUPLER 6"3'-4"2'-6"2'-6"2'-0"3'-0"2'-8"2'-8"2'-6"2'-6"2'-6"1'-8"2'-4"2'-4"2'-6"2'-0" 3'-0"3'-0" 2'-0"6'-2"1'-8" 1'-7 9'-31/2"2'-1"4'-3"1'-4" 1/2" MTL. PANEL HOSE BIB INSIDE COUPLER OUTSIDE COUPLER 1'-2" ELEC. MTL. PANEL 1'-2" 3'-0"3'-0" 6'-2"2'-0"6" 8'-0"2'-1"4'-3"1'-4" ELEC. MTL. PANEL 1'-2" OUTSIDE COUPLER INSIDE COUPLER 11'-2" 8'-0" 3'-0"3'-0" 2'-6"6'-2"2'-0" 8 1/2"1'-7 1/2" INSIDE COUPLER OUTSIDE COUPLER 9'-3 1/2" 3'-6" 6"3'-0" 1'-7 1/2"7'-8" 6"2'-3"1'-10"6'-2"2'-4 1/2"2'-2"3'-0"3'-0" MTL. PANEL HOSE BIB 1'-2" ELEC. 9'-3 1/2" 3'-0"3'-0" OUTSIDE COUPLER OUTSIDE COUPLER 2'-4 1/2"6" 24'-2" SPANDREL VENT PANEL 1'-7 1/2"2'-1"4'-3"1'-4" 1'-2" ELEC. MTL. PANEL 24'-2" 6"2'-3"1'-10"6" 2'-4 2'-42'-2"3'-0"3'-0"1/2"6'-2"1/2" 3'-0"3'-0" 8'-0" OUTSIDE COUPLER OUTSIDE COUPLER 8 1/2" 10'-0" SPANDREL VENT PANEL 7'-8" 1'-7 1/2" ELEC. 1'-2" MTL PANEL OUTSIDE COUPLER INSIDE COUPLER 4'-5"6" 4'-11" 2'-1 1/2"2'-6"6'-2"2'-4 1/2" MTL. PANEL HOSE BIB 9'-3 1/2" 13'-2" 1'-2" INSIDE COUPLER INSIDE COUPLER 3'-0"3'-0" SPANDREL VENT PANEL 9'-3 1/2" OUTSIDE COUPLER INSIDE COUPLER 6" 4'-11" 9'-3 1/2" 10'-4" 2'-10 1/2"3'-0"3'-0"11 1/2"6" OUTSIDE COUPLER OUTSIDE COUPLER 116"2'-43'-0"3'-0"1/2"6"1/2" 10'-4" 8 1/2"1'-7 1/2"2'-1"4'-3"1'-4" OUTSIDE COUPLER OUTSIDE COUPLER 9'-3 1/2" ELEC. 7'-8" 1'-7 1/2" OUTSIDE COUPLER INSIDE COUPLER 3'-6" 3'-0"6"6" 6"2'-0"6'-2"2'-6" 8 1/2"1'-7 10'-0"1/2"2'-1"4'-3"1'-4" 11'-8" OUTSIDE COUPLER INSIDE COUPLER 8'-0" 3'-0"3'-0" W26 U/S OF SLAB FLOOR LEVEL W13-A U/S OF SLAB FLOOR LEVEL W17 LEVEL 5 -17 WW WINDOW WALL DWG. NO. BASE FILE PROJECT NO. D.P. No ISSUED: PROJECT: CLIENT: ARCHITECTURAL SEAL: 604.669.6002 604.669.1091 120 Powell Street, Unit 10 Vancouver, BC Canada V6A 1G1 B.P. No RH Architects Inc. This drawing as an instrument of service is the property of RH Architects Inc. and may not be reproduced withou the firm's permission. All information shown on the drawing is for use in this specific project only and shall not be used otherwise without written permission from this office. Contractors shall verify and be responsible for all dimensions on the job and this office shall be informed of any discrepancies and variations shown on drawing. CHECKED: SCALE: PLOT DATE: DRAWN: DATE: REVISION :DATE DRAWING TITLE ISSUED FOR 24 OCTOBER 2022 IFT BP REVIEW 12 AUG 2022 IFT REVIEW 23 SEPT 2022 IFT 24 OCT 2022 D:\1922-CENTRAL-W BLDG-v2022_tamara29.rvt 2022-10-24 12:44:57 PM 1/4" = 1'-0" 1922 A6.4B 5780 ALBERTA STREET WINDOWWALL SCHEDULE AA TM AH BR DP-2021-00586 BUREZONING APPLICATION02 JUNE 2020 DP APPLICATION30 APRIL 2021 DP RESUBMISSION03 FEB. 2022 W42 PROPERTIES LTD. W14 STARTING FROM LEVEL 3-17 STARTING FROM LEVEL 4-17 W15 STARTING FROM LEVEL 3-17 W16-A STARTING FROM LEVEL 4-17 ONLY LEVEL 5. REFER TO W17-A FOR LEVEL 6-17 U/S OF SLAB FLOOR LEVEL W17-A W18 W18-A ONLY LEVEL 5. REFER TO W18-A FOR LEVEL 6-17 W19 W20 ONLY LEVEL 5. REFER TO W20-A FOR LEVEL 6-17 W20-A W21 W22 W23 W24 ONLY LEVEL 5. REFER TO W24-A FOR LEVEL 6-17 W24-A W25 W26-A ONLY LEVEL 5. REFER TO W26-A FOR LEVEL 6-17 U/S OF SLAB U/S OF SLAB U/S OF SLAB FLOOR LEVEL U/S OF SLAB U/S OF SLAB FLOOR LEVEL HOSE BIB ONLY ON LVL No.DescriptionDate

PROJECT DIRECTORY OWNER: AMICA SENIORS GRANVILLE INC.INTRACORP PROJECTS LTD. 604.351.6731 fbabul@intracorphomes.com

600-500 BURRARD ST. VANCOUVER, BC kmorgan@intracorphomes.com

ARCHITECT: RH ARCHITECTS. INC.BRYCE ROSITCH 604.669.6002 bryce@rharchitects.ca 10-120 POWELL ST. VANCOUVER, BCJAMES WUjames@rharchitects.a

SURVEYOR: BENNETT LAND SURVEYING LTD.AARON CREAMER604.980.486 x223acreamer@bennettsurveys.com

275 FELLS AVE. NORTH VANCOUVER, BC

ARBORIST: DAVEY RESOURCE GROUPLAURA LEIGH604.499.6568laura.leigh@davey.com

LANDSCAPE ARCHITECT: GAUTHIER ASSOCIATES LANDSCAPE ARCHITECTSBRYCE GAUTHIER604.317.9682bryce@gauthierla.com 308-877 HASTINGS ST. VANCOUVER, BC

CIVIL/RWM: APLIN & MARTIN CONSULTANTS LTD.KIANNE PELAEZ604.678.9434 x1415kpelaez@aplinmartin.com 1818-1777 W. HASTINGS ST. VANCOUVER, BC PLANNING: POONI GROUPGARY POONI604.731.9053gary@poonigroup.com

200
ST.
BC 604.416.0223 604.801.7075 TRAFFIC:
x232ccheng@bunteng.com 1550 -1050 W PENDER ST. VANCOUVER, BC ELECTRICAL: NEMETZ S/A ASSOCIATESSTEVE NEMETZ604.736.6562steven@nemetz.com 2009 W 4TH AVE W. VANCOUVER, BC STRUCTURAL: READ JONES CHRISTOFFERSEN LTD.PAT ELISCHER778.728.0480pelischer@rjc.ca 300 -1285 W BROADWAY. VANCOUVER, BC MECHANICAL/ ENERGY MODELLING/ SUSTAINABILITY: REINBOLDJASON EDEY403.509.1039jedey@reg-eng.com 110, 5970 CENTRE ST S.E, CALGARY, AB GEOTECH: GEOPACIFIC CONSULTANTS LTD.ADAM ZYWOTKIEWICZ604.562.1054zywotkiewicz@geopacific.ca 1779 W 45TH AVE. VANCOUVER, BC ENVIRONMENTAL: KEYSTONE ENVIRONMENTALNICOLE MACDONALD778.233.0460macdonald@keystoneenvironmental .com 320 -4400 DOMINION ST. BURNABY, BC604.430.0671 CODE: LMDG BUILDING CODE CONSULTANTS SHAWN TALARICO604.682.7146stalarico@lmdg.com 780 BEATTY ST. VANCOUVER, BC QS: TURNER & TOWNSENDGARETH MILLER604.785.8903claire.tromp@turntown.com 2070-555 W HASTINGS ST. VANCOUVER, BC BUILDING ENVELOPE: BC BUILDING SCIENCE LTD.CHAD CRANSWICK604.520.6456chad@bcbuildingscience.com 611 BENT CT. NEW WESTMINSTER, BC POOL: SERVICE PLUS AQUATICS INC.ROLAND R. GUY905.569.7899 rolandguy@serviceplusaquatics.com 4060 RIDGEWAY DR -UNIT 16 MISSISSAUGA, ON INTERIOR DESIGN CHIL INTERIOR DESIGNSANDY LU604.688.8571sandy.lu@childesign.com 1706 W 1ST AVE. VANCOUVER, BC KITCHEN: KAIZEN FOODSERVICE PLANNING & DESIGN INC.PAUL CUMPSTEY905.338.3222 x224paul.cumpstey@kaizenfood.com UNIT 14, 1525 CORNWALL RD, OAKVILLE, ON LOW VOLTAGE: AES ENGINEERING LTD.FALAH NUMAN250.940.3491falah.numan@aesengr.com 505 BURRARD ST. SUITE 950, BOX 91 GARBAGE: TARGET ZERO WASTE CONSULTING INC.JEFF LEVITT604.688.7024 x1jeff@targetzerowaste.com VANCOUVER, ON SALON/SPA: CORE ESSENCE INC.JENNIFER FINDLAY416.200.6940jennifer@coreessence.ca COMMERCIAL LAUNDRY: CCL COMM. LAUNDRY EQUIP. -COINAMATICSHANE BICHIN604.413.3038sbichin@coinmatic.com #185 -12753 VULCAN WAY, RICHMOND, BC ELEVATOR: GUNN CONSULTANTSVARUN SHARMA604.630.2276varun@gunnconsultants.com ACOUSTIC: BROWN STRACHAN ASSOCIATESANDREW FAWCETT604.689.0514 bsa@brownstrachan.com 1020 MAINLAND ST #130, VANCOUVER, BC SUITE 166, 1020 MAINLAND ST. VANCOUVER, BC HARDWARE: TILLICUM AGENCIESBUD PARK604.939.1445bud@tillicumagencies.com 11-11720 STEWART CRES. MAPLE RIDGE, BC HARDWARE SUBCONSULTANT: ACCESSSMT HOLDINGS LTD.KAM WU604.215.6628kam.wu@accesssmt.com PUBLIC ART: PUBLIC ART CONSULTING LTD.ALISON MEREDITH604.313.8705alison_meredith@outlook.com 306-134 20TH ST W. NORTH VANCOUVER, BC 1250 GEORGIA ST. VANCOUVER, BC COMMUNITY RELATIONS: POTTINGER BIRDVIRGINIA BIRD604.801.5008virgina@pottingerbird.com 1488 -1130 W PENDER ST. VANCOUVER, BC DWG. NO. BASE FILE PROJECT NO. D.P. No PROJECT: CLIENT: ARCHITECTURAL SEAL: 604.669.6002 604.669.1091 120 Powell Street, Unit 10 Vancouver, BC Canada V6A 1G1 B.P. No RH Architects Inc. This drawing as an instrument of service is the property of Rositch Hemphill Architects and may not be reproduced without the firm's permission. All information show the drawing is for use in this specific project only and shall not be used otherwise without written permission from his office. Contractors shall verify and be responsible for all dimensions on the job and this office shall be informed of any discrepancies and variations shown on drawing. CHECKED: SCALE: PLOT DATE: DRAWN: REVISION :DATE DRAWING TITLE ISSUED FOR Autodesk Docs://G47/2128 G47ARCHCentral_v20 23.rvt 2024-05-27 5:08:33 PM 12" = 1'-0" 2128 A0.0.0 G47 Amica COVER, CONTEXT, RENDERINGS AA JW MARCH 15, 2024 AMICA SENIORS GRANVILLE INC. 6189 GRANVILLE ST. 90% CD MAY 24, 2024 VANCOUVER, BC G 4 7 - C O M M U N I T Y C A R E F A C I L I T Y 6 1 8 9 G R A N V I L L E S T. V A N C O U V E R, B C No.DescriptionDate PROJECT DIRECTORY A0.0.0 COVER, CONTEXT, RENDERINGS A0.0.1 PROJECT STATISTICS A0.0.1a IPL STATISTICS A1.0.0 SITE PLAN A1.1.0 SURVEY PLAN A1.1.1 SURVEY PLAN A1.1.2 SURVEY PLAN A2.0.0 PARKADE PLAN P1 A2.0.1 PARKADE PLAN P1 NORTH A2.0.2 PARKADE PLAN P1 SOUTH A2.0.3 PARKADE PLAN P1 SLAB PLAN A2.0.4 PARKADE PLAN P1 SLAB PLAN NORTH A2.0.5 PARKADE PLAN P1 SLAB PLAN SOUTH A2.0.6 P1 AMENITY RCP A2.1.0 PARKADE PLAN P2 A2.1.1 PARKADE PLAN P2 SOUTH A3.0.0 MAIN FLOOR PLAN IL A3.0.1 MAIN FLOOR - NORTH A3.0.2 MAIN FLOOR SOUTH A3.0.3 MAIN FLOOR SLAB PLAN A3.0.4 MAIN FLOOR SLAB PLAN NORTH A3.0.5 MAIN FLOOR SLAB PLAN SOUTH A3.0.6 MAIN FLOOR - RCP A3.1.0 SECOND FLOOR MC A3.1.1 SECOND FLOOR NORTH A3.1.2 SECOND FLOOR SOUTH A3.1.3 SECOND FLOOR SLAB PLAN A3.1.4 SECOND FLOOR SLAB PLAN - NORTH A3.1.5 SECOND FLOOR SLAB PLAN - SOUTH A3.1.6 SECOND FLOOR RCP A3.2.0 THIRD FLOOR MC/AL A3.2.1 THIRD FLOOR NORTH A3.2.2 THIRD FLOOR SOUTH A3.2.3 THIRD FLOOR SLAB PLAN A3.2.4 THIRD FLOOR SLAB PLAN NORTH A3.2.5 THIRD FLOOR SLAB PLAN SOUTH A3.2.6 THIRD FLOOR RCP A3.3.0 FOURTH FLOOR AL A3.3.1 FOURTH FLOOR NORTH A3.3.2 FOURTH FLOOR SOUTH A3.3.3 FOURTH FLOOR SLAB PLAN A3.3.4 FOURTH FLOOR SLAB PLAN - NORTH A3.3.5 FOURTH FLOOR SLAB PLAN - SOUTH A3.3.6 FOURTH FLOOR RCP A3.4.0 FIFTH FLOOR IL A3.4.1 FIFTH FLOOR NORTH A3.4.2 FIFTH FLOOR SOUTH A3.4.3 FIFTH FLOOR SLAB PLAN A3.4.4 FIFTH FLOOR SLAB PLAN NORTH A3.4.5 FIFTH FLOOR SLAB PLAN SOUTH A3.4.6 FIFTH FLOOR RCP A3.5.0 SIXTH FLOOR - IL A3.5.1 SIXTH FLOOR - NORTH A3.5.2 SIXTH FLOOR - SOUTH A3.5.3 SIXTH FLOOR SLAB PLAN A3.5.4 SIXTH FLOOR SLAB PLAN NORTH A3.5.5 SIXTH FLOOR SLAB PLAN SOUTH A3.5.6 SIXTH FLOOR - RCP A3.6.0 ROOFTOP AMENITY PLAN A3.6.1 ROOFTOP AMENITY PLAN NORTH A3.6.2 ROOFTOP AMENITY PLAN SOUTH A3.6.3 ROOFTOP AMENITY SLAB PLAN A3.6.4 ROOFTOP AMENITY SLAB PLAN NORTH A3.6.5 ROOFTOP AMENITY SLAB PLAN SOUTH A3.6.6 ROOFTOP AMENITY RCP A3.7.0 ROOF PLAN A4.0.0 MATERIAL LEGEND A4.0.1 MATERIAL LEGEND A4.0.2 STREETSCAPE A4.1.0 ELEVATIONS A4.1.1 ELEVATIONS A4.1.2 ELEVATIONS A4.1.3 ELEVATIONS A5.0.0 BUILDING SECTIONS A5.0.1 BUILDING SECTIONS A5.0.2 BUILDING SECTIONS A5.1.0 BELOW GRADE WALL SECTIONS A5.1.1 WALL SECTIONS A5.1.2 WALL SECTIONS A5.1.3 WALL SECTIONS A5.1.4 WALL SECTIONS A6.0.0 WALL ASSEMBLIES A6.0.1 WALL ASSEMBLIES A6.1.0 FLOOR & ROOF ASSEMBLIES A6.3.0 INTERNAL DOOR SCHEDULE A6.3.1 INTERNAL DOOR SCHEDULE A6.3.2 INTERNAL DOOR SCHEDULE PARKADE A6.3.3 INTERNAL DOOR SCHEDULE SUITES A6.4.0 WINDOW SCHEDULE A6.4.1 WINDOW SCHEDULE A6.5.0 CURTAIN WALL SCHEDULE A6.5.1 CURTAIN WALL SCHEDULE A6.5.2 CURTAIN WALL SCHEDULE A6.5.3 CURTAIN WALL SCHEDULE A6.6.0 INT. STOREFRONT SCHEDULE A6.7.0 WINDOW WALL SCHEDULE A6.7.1 WINDOW WALL SCHEDULE A6.7.2 WINDOW WALL SCHEDULE A6.7.3 WINDOW WALL SCHEDULE A6.8.0 BOH FINISHES SCHEDULE A7.1.1 LEVEL 1 PARTIAL PLANS NORTH NEIGHBOURHOOD A7.1.2 LEVEL 1 PARTIAL PLANS NORTH AMENITY A7.1.3 LEVEL 1 PARTIAL PLANS SOUTH AMENITY A7.1.4 LEVEL 1 PARTIAL PLANS SOUTH NEIGHBOURHOOD A7.2.1 LEVEL 2 PARTIAL PLANS NORTH NEIGHBOURHOOD A7.2.2 LEVEL 2 PARTIAL PLANS NORTH AMENITY A7.2.3 LEVEL 2 PARTIAL PLANS SOUTH AMENITY A7.2.4 LEVEL 2 PARTIAL PLANS SOUTH NEIGHBOURHOOD A7.3.1 LEVEL 3 PARTIAL PLANS NORTH NEIGHBOURHOOD A7.3.2 LEVEL 3 PARTIAL PLANS NORTH AMENITY A7.3.3 LEVEL 3 PARTIAL PLANS SOUTH AMENITY A7.3.4 LEVEL 3 PARTIAL PLANS SOUTH NEIGHBOURHOOD A7.4.1 LEVEL 4 PARTIAL PLANS NORTH NEIGHBOURHOOD A7.4.2 LEVEL 4 PARTIAL PLANS NORTH AMENITY A7.4.3 LEVEL 4 PARTIAL PLANS SOUTH AMENITY A7.4.4 LEVEL 4 PARTIAL PLANS SOUTH NEIGHBOURHOOD A7.5.1 LEVEL 5 PARTIAL PLANS NORTH NEIGHBOURHOOD A7.5.2 LEVEL 5 PARTIAL PLANS NORTH AMENITY DRAWING LIST G R A N V I L L E S T R E E T C A R T E R S T R E E T C H U R C H L L S T R E E T W 4 7 t h A V E W 4 6 h A V E W 4 5 h A V E S I T E A7.5.3 LEVEL 5 PARTIAL PLANS SOUTH AMENITY A7.5.4 LEVEL 5 PARTIAL PLANS SOUTH NEIGHBOURHOOD A7.6.1 LEVEL 6 PARTIAL PLANS NORTH NEIGHBOURHOOD A7.6.2 LEVEL 6 PARTIAL PLANS NORTH AMENITY A7.6.3 LEVEL 6 PARTIAL PLANS SOUTH AMENITY A7.6.4 LEVEL 6 PARTIAL PLANS SOUTH NEIGHBOURHOOD A8.0.0 EXIT STAIR #1 - PLANS & SECTION A8.1.0 EXIT STAIR #2 - PLANS & SECTION A8.2.0 EXIT STAIR #3 - PLANS & SECTION A8.3.0 EXIT STAIR #4 - PLANS & SECTION A8.4.0 PARKING EXIT STAIR #1-3 PLANS & SECTION A8.5.0 PARKING EXIT STAIR #4-5 PLANS & SECTION A8.6.0 ELEVATOR PLANS A8.6.1 ELEVATOR SECTIONS A9.0.0 CONCRETE DETAILS A9.0.1 PENETRATION DETAILS A9.0.2 DRAINAGE DETAILS A9.0.3 PLAN DETAILS A9.0.3A PLAN DETAILS A9.0.4 DOOR & WINDOW DETAILS A9.0.5 THRESHOLD DETAILS A9.0.6 SECTION DETAILS A9.0.7 SECTION DETAILS A9.0.7A SECTION DETAILS A9.0.7B SECTION DETAILS A9.0.7C SECTION DETAILS A9.0.7D SECTION DETAILS A9.0.8 WINDOW WALL DETAILS
DETAILS
SECTION DETAILS A9.2.0 PORTE COCHERE DETAILS A9.2.1 ENTRANCE CANOPY DETAILS A9.2.2 SUITE CANOPY DETAILS A9.2.3 AMENITY CANOPY DETAILS A9.2.4 ROOF MECHANICAL SCREEN A9.3.0 STAIR DETAILS A9.3.1 ACCESSIBLE UNITS DETAILS A9.3.2 ADAPTABLE UNITS DETAILS
TYP. DETAILS. 157
-1055 W HASTINGS
VANCOUVER,
BUNT & ASSOCIATESCHRIS CHENG604.685.6427
A9.0.9
A9.1.0
A9.3.3
A B C D E F G H K L M N O P Q R S T U V W X Y Z AA 1 2 3 4 5 6 7 8 9 C-1 F-1 U-1 X-1 10 -A2 110 IL -A1 109 BED IL -S2 108 STUDIO IL -A1 107 BED 103 854.36 SF IL -C1 102 691.37 SF -B1 105 IL -B2 106 STUDIO 101 IL -A2 111 IL -A1 112 BED IL -S2 113 IL -A1 114 BED -A3 115 BED 116 628.79 SF IL -A5 117 PIL -C3 119 IL -B3 118 BED DEN -S1 122 PRIV. DINING GAMES LOUNGE ELEV. LOBBY CLOSING R109 R110 R111 R131 VESTIBULE WOMENS R132 104 BED R108 MAIL R138 R134b -C1 121 R148 R104 EXIT R112 COURTYARD OUTDOOR DINING OUTDOOR PATIO RAMP UP 12.5% RAMP DN 10.0% (289.30') 88.18m BG(290.12') 88.43m (290.94') 88.68m (291.63') 88.89m (292.26') 89.08m BG(292.88') 89.27m (293.34') 89.41m (293.93')89.59m (294.06') 89.63m (293.37') 89.42m (293.18') 89.36m BG(292.42') 89.13m (291.67') 88.90m (291.01') 88.70m (290.35') 88.50m (289.70') 88.30m BG(289.01') 88.09m (288.22') 87.85m (287.50') 87.63m (286.38') 87.29m (285.40') 86.99m (284.94')BG86.85m (285.47') 87.01m (286.75') 87.40m (288.12') 87.82m (288.71') 88.00m (89.3I.B.G293.0' m) 291.0' GBG. REC. JAN. R128 CLOSET 20' 0"60' 1/2"67' 0 1/2"16' 1" IPAD NOOK 18'0"53'10 1/2"5'1/2"29'1/2"8'0"17'1/2"3'0"24'1/2"62'1/2"11 1/2"19'3"10'1/2"51'8"58'1/2 50.00°50.00° 22'22'1/2"21'8"21'8"21'8"25'2" 11 1/2"15'1/2"13'9"25'1/2"1/2"15'2"41'1/2" 1/2"21'8"21'8"21'8"22'35' 1"11' 1" LOADING CORR. CLEAR 6' TYP.0" CLEAR 6'1/2" TYP. CLEAR 30' 3 1/2"8' 3 1/2" SUNKEN COURTYARD (SEE P1 PLAN) 35' (14.90)11" 43' 11" class passenger class B loading class loading class loading class loading (2.7m 5.5m class A loading class loading BIKE ACCESS ROUTE 1/2" 1/2" 16'5"16'5" 1/2" 5'1/2"17'1/2" 28' 10 1/2"25' 8 1/2" 18'8"7'11" 26'10 1/2"53'1/2"57'0"30'1"9'1/2 6"27'3"5'10 1/2"25'1/2" 28'10 1/2"30'11 1/2"26'8"18'6 1/2" 8' 7"42' 2" 12' 11 1/2"9' 5" 50' 5"15' 0" 14' 4 1/2"28' 2"23' 6 1/2" 53'12'1/2"18'1/2" 3"19'6" EXIT EXIT EXIT 50.00°50.00°50.00° 50.00°50.00°50.00° 50 20'-0" REAR SETBACK LINE 18'-0" SETBACK LINE FROM EXISTING CURB NEW PROPERTY LINE 16'-0" SETBACK LINE FROM NEW PL PROPERTY LINE PROPERTY LINE 35'-0" REAR SETBACK LINE ABOVE L3 20'-0" REAR SETBACK LINE 18'-0" SETBACK LINE FROM EXISTING CURB 16'-0" SETBACK LINE FROM NEW PL 35'-0" REAR SETBACK LINE ABOVE L3 G R A N V I L L E S T R E E T L A N E w. 4 7 t h A V E N U E GAS CONNECTION CACF CONNECTION m P131 5 0 5000 WATER CONNECTION SANITARY CONNECTION STORM CONNECTION POTENTIAL LOCATION FOR PUBLIC ART R110a PKG. EXIT A5.0.1 A5.0.1 1 A5.0.0 1 A5.0.0 2 A5.0.1 2 A5.0.1 (3.05) (3.05) 10' (3.05) 10'0" 15' 0" (4.57) 15'0" (4.88) A5.0.2 A5.0.2 IPAD NOOK R279 R27 -9 OUTDOOR FIREPLACE LANDSCAPE DWGS REFER TO LANDSCAPE DWGS INDOOR FIREPLACE REFER TO ID DWGS INDOOR FIREPLACE REFER TO ID DWGS JAN. R144 24'1/2"14'5"7'1/2"7'1/2"14'5"15"7'1/2"7'1/2"14'6"12'6"24'9"22'7"24'0"14'3"9'0"9'0"14'3"24'0"22'7"24'9"12'6"14'6"7'1/2"7' - 2 1/2"14' - 5"14' - 5"7' - 2 1/2"7' - 2 1/2"14' - 5"24'1/2" 7'0"12'1/2"11'1/2"7'1/2" 18'1/2" 3 A5.1.2 GAS ENCLOSURE ELEV. 3ELEV. 1ELEV. COAT PARCEL CLOSET 1 A5.1.0 2 A5.1.0 2 A5.0.0 2 A5.0.0 (89.3 m) 285.1' (86.9 m) class passenger (4.00 m) 13' 1/2" (3.00 m) 9' 10" (7.50 m) 24' 1/2" 5 A9.0.6 A5.0.2 A5.0.2 5' 5 1/2" T.O.S 290.3' (88.5 m) RAMP DN 4.8% T.O.S 294.7' (89.8 m) T.O.S 293.0' (89.3 m) 6' 0" T.O.S 293.0' (89.3 m) (88.4 m) 290.0' (88.4 m) (87.8 m) 289.0' (88.1 m) 1/2" 15' 2"13'8"2'1/2"5' 1/2" 10 1/2" 0"13'1/2"13' 8" 2'1/2" 10"5'3"2' 1/2" A9.2.2 2 FDFD FD FD FD FD FD FD FD RAMP DN 4.5% T.O.S 291.7' (88.9 m) 23' 10 1/2" 11' 1/2" 11' 1/2" FD LEGEND 9'-0" DROPPED CEILING SEE PLANS FOR VARIATIONS CONCRETE WALL CONCRETE BLOCK WALL INTERIOR WALLS AREA DRAIN (BI-LEVEL) ATTIC COMPARTMET OUTLINE BOTTOM OF CURB BOTTOM OF PARAPET BOTTOM OF WALL (TOP OF F.G.) CATCH BASIN COOK TOP DISH WASHER A.D. B.O.C. B.O.P. B.O.W. C.B. C.T. DW EXISTING GRADEE.G. FLOOR DRAINF.D. FINISHED FLOOR ELEVATIONF.F.EL. FINISHED GRADEF.G. REFRIGERATORFRIG. INTERPOLATED BUILDING GRADEI.B.G. LANDSCAPE BI-LEVEL DRAINBL-FD LINEN CLOSETLIN. LAZY SUSANL.S. MECH. WALL VENT TERMINATION MECH. SOFFIT VENT GRILL MECH. STANDPIPE PATIO BI-LEVEL DRAINP.D. POWDER ROOMPWDR ROOF DRAINR.D. ROD SHELFR&S ROOF VENTR.V. RAIN WATER LEADERRWL SIAMESE CONNECTION SPRINKLER PROTECTION S.P. FIRE EXTINGUISHER TOP OF ROOFT.O.R. TOP OF SLABT.O.S. TOP OF WALLT.O.W. TOILET PAPERT.P. WASHER DRYERW/D DOOR MARK WINDOW MARK ROOM FINISH MARK WALL ASSEMBLY MARK W# FLOOR ASSEMBLY MARK ROOF ASSEMBLY MARK REFER TO LANDSCAPE DWGS. FOR REFERENCE REFER TO INT. DESIGN DWGS. FOR REFERENCE F# R# DET LAND. LAND. DET SCUPPER OVERFLOW SCUP2 SCUP1 SCUPPER 3"X3" EXT. SOFFIT w/ WOOD-LOOK FINISH -SEE PLANS FOR VARIATIONS 7'-6" DROPPED CEILING SEE PLANS FOR VARIATIONS SPRAY-INSULATION DROP CEILING 8'-0" DROPPED CEILING SEE PLANS FOR VARIATIONS WATER CURTAIN W.C. FIRE EXTINGUISHERFE FIRE EXTINGUISHER CABINETFEC GENERAL NOTES: 1.EXISTING GRADE INFORMATION, PROPERTY LINES, SITE BOUNDARIES AND EXISTING BUILDING WEST ELEVATION TAKEN FROM SURVEYORS DRAWING PREPARED BY BUTLER SUNDVICK LAND SURVEYORS, DATED MAY 2019. 2.BUILDING GRADE ELEVATIONS AS PER DRAWING BG 2017-00282, DATED 2018-01-08 PROVIDED BY CITY OF VANCOUVER 3.ALL GRADES AND DIMENSIONS ARE SHOWN IN FEET, UNO. 4.REFER TO ARCHITECTURAL AND LANDSCAPE DRAWINGS FOR ELEVATIONS, GRADING, PAVING AND LANDSCAPE DETAILS. 5.THE ACOUSTICAL MEASURES WILL BE INCORPORATED INTO THE FINAL DESIGN AND CONSTRUCTION BASED ON THE COUSTICAL CONSULTANT'S RECOMMENDATIONS. 6.ADEQUATE AND EFFECTIVE ACOUSTIC SEPARATION WILL E PROVIDED BETWEEN THE RESIDENTIAL AND NON-RESIDENTIAL PORTIONS OF THE BUILDING. APPROVED UNDER THIS DEVELOPMENT PERMIT. SIGNAGE IS REGULATED BY THE SIGN BY-LAW AND REQUIRES SEPARATE APPROVALS. THE OWNER(S) ASSUMES RESPONSIBILITY TO ACHIEVE COMPLIANCE WITH THE SIGN BY-LAW AND OBTAIN THE REQUIRED SIGN PERMITS. 8.ALL DIMENSIONS ARE MEASURED TO THE OUTER MOST LIM OF THE BUILDING TO CLADDING, UNO. PARKING NOTES: 9.THE DESIGN OF THE PARKING STRUCTURE REGARDING SAFETY AND SECURITY MEASURES SHALL BE IN ACCORDANCE WITH SECTION 4.13 OF THE CITY OF VANCOUVER PARKIN BY-LAW. 10.THE DESIGN OF THE BICYCLE SPACES (INCLUDING BICYCLE ROOMS, COMPOUNDS, LOCKERS AND OR RACKS) REGARDING SAFETY AND SECURITY MEASURES SHALL BE IN ACCORDANCE WITH THE RELEVANT PROVISIONS OF SECTION OF THE CITY OF VANCOUVER PARKING BY-LAW. 12.PROVIDE AUTOMATIC DOOR OPENER TO BIKE STORAGE ROOMS. 13.RECEPTACLES FOR ELECTRICAL VEHICLE CHARGING TO BE PROVIDED AS PER ELECTRICAL VEHICLE INFRASTRUCTURE REQUIREMENTS FOR MULTI-FAMILY BUILDINGS. 14.MECHANICAL EQUIPMENT (VENTILATORS, GENERATORS, COMPACTORS AND EXHAUST SYSTEMS) SHALL BE DESIGNED AND LOCATED TO MINIMIZE NOISE IMPACTS ON THE NEIGHBOURHOOD AND COMPLY WITH NOISE BY-LAW NO. 6555. 15.UNDERGROUND PARKING IS TO BE ADEQUATELY VENTILATED, DESIGNED TO PREVENT THE BUILDING UP OF NOXIOUS GASES AND MINIMIZE IMPACT ON THE OPEN SPACE. 16.MAINTAIN 2.3 M MIN. VERTICAL CLEARANCE AT DRIVE AISLE TO AND ABOVE DISABILITY STALLS. 17.ALL ELEVATOR LOBBY DOORS AT PARKING TO BE FULL GLAZED METAL DOORS, C/W SPRINKLER PROTECTION AS REQUIRED. RESIDENTIAL UNIT NOTES: 18.PROVIDE 1'-6" IN SWING AND 1'-0" OUT-SWING CLEAR SPACE BETWEEN THE LATCHING JAMB OF THE UNIT ENTRY DOOR. THIS SPACE IS IMPRACTICAL TO PROVIDE, PRE-WIRE TH DOOR WITH CONTROLS. TYPICAL FOR ALL RESIDENTIAL UNITS. 19.PROVIDE REINFORCEMENT IN WALL ASSEMBLIES ADJACEN TO A TOILET, BATHTUB AND SHOWER FOR ACCOMMODATION OF FUTURE GRAB BARS. 20.ALL KITCHEN SINKS AND WASHROOMS WITHIN RESIDENTIAL UNITS TO BE PROVIDED WITH LEVER TYPE FAUCETS. 21.ALL DOOR EXCEPT SERVICE DOORS TO HAVE LEVER OR PUSH/PULL HANDLE, OR ADA APPROVED TYPE. ENCLOSURE DESIGN GUIDELINES. LOADING LAYOUT APPROVED, SUBJECT WITH COMPLIANCE WITH APPROVED LOADING MANAGEMENT PLAN DWG. NO. BASE FILE PROJECT NO. D.P. No PROJECT: CLIENT: ARCHITECTURAL SEAL: 604.669.6002 604.669.1091 120 Powell Street, Unit 10 Vancouver, BC Canada V6A 1G1 B.P. No RH Architects Inc. This drawing as an instrument of service is the property of Rositch Hemphill Architects and may not be reproduced without the firm's permission. All information show the drawing is for use in this specific project only and shall not be used otherwise without written permission from his office. Contractors shall verify and be responsible for all dimensions on the job and this office shall be informed of any discrepancies and variations shown on drawing. CHECKED: SCALE: PLOT DATE: DRAWN: REVISION :DATE DRAWING TITLE ISSUED FOR Autodesk Docs://G47/2128 G47ARCHCentral_v20 23.rvt 2024-05-27 5:11:29 PM As indicated 2128 A3.0.0 G47 Amica MAIN FLOOR PLAN -IL AA JW MARCH 15, 2024 AMICA SENIORS GRANVILLE INC. 6189 GRANVILLE ST. 90% CD MAY 24, 2024 VANCOUVER, BC No.DescriptionDate
A B C D E F G H J K L M N 1 2 3 4 5 6 7 8 9 C-1 F-1 10 533.19 SF IL -A2 527.98 SF -A1 109 470.30 SF IL -S2 108 529.72 IL -A1 107 431.55 SF IL -S3 103 -C1 102 BED 105 106 382.51 SF IL -S1 MAIN DINING R115 LOUNGE R106 ELEV. LOBBY R101 CLOSING R107 GEN. MGR. R109 ASSIST. GM R110 STAFF R111 W.C R113 W.C R114 VESTIBULE -C2 104 MARKETING R108 PUB BISTRO R118 LOUNGE PKG. EXIT R147 EXIT 102 EXIT COPY RM VESTIBULE R117 MAIN LOBBY OUTDOOR DINING OUTDOOR PATIO BG(292.26') 89.08m BG(292.88') 89.27m BG(293.34') 89.41m (293.93')BG89.59m BG(294.06') 89.63m BG(293.37') 89.42m BG(293.18') 89.36m BG(292.42') 89.13m BG(291.67') 88.90m BG(291.01') 88.70m BG(290.35') 88.50m BG(289.70') 88.30m (89.3I.B.G293.0' m) (88.7 m) GBG. + REC. R124 JAN. R123 IT CLOSET R122 IPAD NOOK class B passenger class passenger BIKE ACCESS ROUTE EXIT 50.00°50.00° 00 20'-0" REAR SETBACK LINE 18'-0" SIDE SETBACK LINE 16'-0" SETBACK LINE FROM NEW PL PROPERTY LINE 35'-0" REAR SETBACK LINE ABOVE L3 L A N E GAS CONNECTION ) 22500 A5.0.1 A5.0.1 1 A5.0.0 A5.0.1 A5.0.1 (3.05) 10'0" R122 R102a R121 R114 R113 R112 R111b R125 R103 W8.2 W8.2 W8.2 W14.1 WF5b W14.1 W1.4a W14.1 W8.2 W14.1 S2a S2a W8.2 W14.1 W14.1 W14.2 W14.2 W14.1 W2.1 S2a W14.0 W14.1 W14.1 W2.1 W3.1 W2.1 W3.1 W14.1 W14.1 W13.1 W13.1 WF1b W14.0 WF1b WF1b S2 S2 WF2b W2.1 S3 WF1b WF1b WF2b W14.0 WF1b W14.2 W14.1 W14.1 W3.1 W3.1 W8.2 W14.1 W8.2 W14.2 WF1c WF1c W14.0 W14.0 WF1b WF2a WF1b WF1b WF2b WF2b W13.1 W14.0 WF1b WF1b W13.1 WF1b WF1c WF1c WF1c WF1c WF1c W14.0 WF1c WF1c WF2b W14.2 W14.0 W14.0 W14.0 W14.0 W14.0 W14.0 W14.0 W14.0 WF1b R107 W14.0 W14.0 W14.0 WF1b WF1b W14.0 W14.0 W13.1 W3.1 W3.3a W3.3a W3.1 WF2c W14.0 W1 W1 W1 W1 W3a W4a W2 W3 W4 W1 W5 W4 W5 W1a W5a W4 W1 W4 W4W2 W1 CW-15CWCW-CWR147 R123 R124-SF117a SF117b FIREPLACE LOUNGE R116 R115b A8.0.0 A8.1.0 A8.4.0 2 A8.4.0 KITCHEN/ KITCHEN/ SLEEPING/ LIVING SLEEPING/ LIVING OUTDOOR FIREPLACE REFER TO LANDSCAPE DWGS INDOOR FIREPLACE REFER TO ID DWGS 20' 0"60' 1/2"67' 1/2"16' 1" 17'11 1/2"112'1/2"12'1/2"24'0" 18'0"53'10 1/2"5'1/2"29'1/2"8'3'0"17'1/2"3'0"24'1/2" 22'11 1/2"15'1/2"13'9"25'1/2" 1/2"21'8"21'8"21'8"22' - 7" 35' 1"11' 1" CLEAR 6' 0" CLEAR 11" 43' 11" 38'4" 13'0" 5'1/2" 16'5"16'5" 1/2" 5'1/2"17'1/2" 26'10 1/2" 29'3"29'10 1/2" 28'10 1/2"30'11 1/2"26'8"19'1/2" 11' 4"10' 11" 71' 8 1/2" 49' 1/2"15' 0" 16' 5"6' 7"7' 11 1/2"11' 1/2"16' 2"2' 1/2" 53'3"19'6" 24'1/2"14'5"7'1/2"7'1/2"14'5"15"7'1/2"7'1/2"14'6"12'6"24' 0"12'1/2" A8.6.0 1 A8.6.1 1 A8.6.1 2 A8.6.1 2 A8.6.1 W14.2 W14.2 WF3b W14.1 22'0"13'9"23'11" 1/2"2' 1/2" 9' 1/2"2' 1/2"18' 1/2"2' 10 1/2"8' 2"2' 8 1/2"8' 10 1/2" 24'5" 8 1/2"20'3" CONCIERGE COAT PARCEL CLOSET 2 A5.0.0 CLEAR 5' 10" class passenger (4.00 m) 13' 1/2" (3.00 m) 9' 10" (7.50 m) 24' 1/2" PKG. EXIT 1 R146 R121b SF115a R118 SF120b SF120a SF115c A5.0.2 A5.0.2 T.O.S 294.7' (89.8 m) 6' 0" A9.0.3A A9.0.3A 2 A9.0.3A 6 A9.0.3A 4 A9.0.3A 3 W1a WW-39dD10 CW--CW-9b CW-9aCW-WW-39cD10 D10 D10 D10W3SF106aCWSF101 SF102 SF106b SF105a R103b SF103 294.6' (89.8 m) WF6 WF6 W6.3a W6.3a W6.3b W6.3e W6.3b W1.4b W6.3b W6.1a W6.2a W6.2a W6.3a W6.3a W6.3a W6.3a W6.3a W6.3a W6.3a W6.3d W6.3a W6.3d W6.3d W6.3a W6.3a W5 W6.3a W1.4a W6.2f W6.3a W6.2f W6.3a W6.3a W6.2f W6.3a W6.2f W6.3a W6.2f W6.3a W6.2f W6.3a W6.3g W6.1b W6.3b FDFD FD FD FD FD FD R110 R109 R108 SF118 R116 SF102 LEGEND 9'-0" DROPPED CEILING SEE PLANS FOR VARIATIONS CONCRETE WALL CONCRETE BLOCK WALL INTERIOR WALLS AREA DRAIN (BI-LEVEL) ATTIC COMPARTMET OUTLINE BOTTOM OF CURB BOTTOM OF PARAPET BOTTOM OF WALL (TOP OF F.G.) CATCH BASIN COOK TOP DISH WASHER A.D. B.O.C. B.O.P. B.O.W. C.B. C.T. DW EXISTING GRADEE.G. FLOOR DRAINF.D. FINISHED FLOOR ELEVATIONF.F.EL. FINISHED GRADEF.G. REFRIGERATORFRIG. INTERPOLATED BUILDING GRADEI.B.G. LANDSCAPE BI-LEVEL DRAINBL-FD LINEN CLOSETLIN. LAZY SUSANL.S. MECH. WALL VENT TERMINATION MECH. SOFFIT VENT GRILL MECH. STANDPIPE PATIO BI-LEVEL DRAINP.D. POWDER ROOMPWDR ROOF DRAINR.D. ROD SHELFR&S ROOF VENTR.V. RAIN WATER LEADERRWL SIAMESE CONNECTION SPRINKLER PROTECTION S.P. FIRE EXTINGUISHER TOP OF ROOFT.O.R. TOP OF SLABT.O.S. TOP OF WALLT.O.W. TOILET PAPERT.P. WASHER DRYERW/D DOOR MARK WINDOW MARK ROOM FINISH MARK WALL ASSEMBLY MARK W# FLOOR ASSEMBLY MARK ROOF ASSEMBLY MARK REFER TO LANDSCAPE DWGS. FOR REFERENCE REFER TO INT. DESIGN DWGS. FOR REFERENCE F# R# DET LAND. LAND. DET SCUPPER OVERFLOW SCUP2 SCUP1 SCUPPER 3"X3" EXT. SOFFIT w/ WOOD-LOOK FINISH -SEE PLANS FOR VARIATIONS 7'-6" DROPPED CEILING SEE PLANS FOR VARIATIONS SPRAY-INSULATION DROP CEILING 8'-0" DROPPED CEILING SEE PLANS FOR VARIATIONS WATER CURTAIN W.C. FIRE EXTINGUISHERFE FIRE EXTINGUISHER CABINETFEC GENERAL NOTES: 1.EXISTING GRADE INFORMATION, PROPERTY LINES, SITE BOUNDARIES AND EXISTING BUILDING WEST ELEVATION TAKEN FROM SURVEYORS DRAWING PREPARED BY BUTLER SUNDVICK LAND SURVEYORS, DATED MAY 2019. 2.BUILDING GRADE ELEVATIONS AS PER DRAWING BG 2017-00282, DATED 2018-01-08 PROVIDED BY CITY OF VANCOUVER 3.ALL GRADES AND DIMENSIONS ARE SHOWN IN FEET, UNO. 4.REFER TO ARCHITECTURAL AND LANDSCAPE DRAWINGS FOR ELEVATIONS, GRADING, PAVING AND LANDSCAPE DETAILS. 5.THE ACOUSTICAL MEASURES WILL BE INCORPORATED INTO THE FINAL DESIGN AND CONSTRUCTION BASED ON THE COUSTICAL CONSULTANT'S RECOMMENDATIONS. 6.ADEQUATE AND EFFECTIVE ACOUSTIC SEPARATION WILL E PROVIDED BETWEEN THE RESIDENTIAL AND NON-RESIDENTIAL PORTIONS OF THE BUILDING. APPROVED UNDER THIS DEVELOPMENT PERMIT. SIGNAGE IS REGULATED BY THE SIGN BY-LAW AND REQUIRES SEPARATE APPROVALS. THE OWNER(S) ASSUMES RESPONSIBILITY TO ACHIEVE COMPLIANCE WITH THE SIGN BY-LAW AND OBTAIN THE REQUIRED SIGN PERMITS. 8.ALL DIMENSIONS ARE MEASURED TO THE OUTER MOST LIM OF THE BUILDING TO CLADDING, UNO. PARKING NOTES: 9.THE DESIGN OF THE PARKING STRUCTURE REGARDING SAFETY AND SECURITY MEASURES SHALL BE IN ACCORDANCE WITH SECTION 4.13 OF THE CITY OF VANCOUVER PARKIN BY-LAW. 10.THE DESIGN OF THE BICYCLE SPACES (INCLUDING BICYCLE ROOMS, COMPOUNDS, LOCKERS AND OR RACKS) REGARDING SAFETY AND SECURITY MEASURES SHALL BE IN ACCORDANCE WITH THE RELEVANT PROVISIONS OF SECTION OF THE CITY OF VANCOUVER PARKING BY-LAW. 12.PROVIDE AUTOMATIC DOOR OPENER TO BIKE STORAGE ROOMS. 13.RECEPTACLES FOR ELECTRICAL VEHICLE CHARGING TO BE PROVIDED AS PER ELECTRICAL VEHICLE INFRASTRUCTURE REQUIREMENTS FOR MULTI-FAMILY BUILDINGS. 14.MECHANICAL EQUIPMENT (VENTILATORS, GENERATORS, COMPACTORS AND EXHAUST SYSTEMS) SHALL BE DESIGNED AND LOCATED TO MINIMIZE NOISE IMPACTS ON THE NEIGHBOURHOOD AND COMPLY WITH NOISE BY-LAW NO. 6555. 15.UNDERGROUND PARKING IS TO BE ADEQUATELY VENTILATED, DESIGNED TO PREVENT THE BUILDING UP OF NOXIOUS GASES AND MINIMIZE IMPACT ON THE OPEN SPACE. 16.MAINTAIN 2.3 M MIN. VERTICAL CLEARANCE AT DRIVE AISLE TO AND ABOVE DISABILITY STALLS. 17.ALL ELEVATOR LOBBY DOORS AT PARKING TO BE FULL GLAZED METAL DOORS, C/W SPRINKLER PROTECTION AS REQUIRED. RESIDENTIAL UNIT NOTES: 18.PROVIDE 1'-6" IN SWING AND 1'-0" OUT-SWING CLEAR SPACE BETWEEN THE LATCHING JAMB OF THE UNIT ENTRY DOOR. THIS SPACE IS IMPRACTICAL TO PROVIDE, PRE-WIRE TH DOOR WITH CONTROLS. TYPICAL FOR ALL RESIDENTIAL UNITS. 19.PROVIDE REINFORCEMENT IN WALL ASSEMBLIES ADJACEN TO A TOILET, BATHTUB AND SHOWER FOR ACCOMMODATION OF FUTURE GRAB BARS. 20.ALL KITCHEN SINKS AND WASHROOMS WITHIN RESIDENTIAL UNITS TO BE PROVIDED WITH LEVER TYPE FAUCETS. 21.ALL DOOR EXCEPT SERVICE DOORS TO HAVE LEVER OR PUSH/PULL HANDLE, OR ADA APPROVED TYPE. ENCLOSURE DESIGN GUIDELINES. LOADING LAYOUT APPROVED, SUBJECT WITH COMPLIANCE WITH APPROVED LOADING MANAGEMENT PLAN DWG. NO. BASE FILE PROJECT NO. D.P. No PROJECT: CLIENT: ARCHITECTURAL SEAL: 604.669.6002 604.669.1091 120 Powell Street, Unit 10 Vancouver, BC Canada V6A 1G1 B.P. No RH Architects Inc. This drawing as an instrument of service is the property of Rositch Hemphill Architects and may not be reproduced without the firm's permission. All information show the drawing is for use in this specific project only and shall not be used otherwise without written permission from his office. Contractors shall verify and be responsible for all dimensions on the job and this office shall be informed of any discrepancies and variations shown on drawing. CHECKED: SCALE: PLOT DATE: DRAWN: REVISION :DATE DRAWING TITLE ISSUED FOR Autodesk Docs://G47/2128 G47ARCHCentral_v20 23.rvt 2024-05-27 5:12:13 PM As indicated 2128 A3.0.1 G47 Amica MAIN FLOOR -NORTH AA JW MARCH 15, 2024 AMICA SENIORS GRANVILLE INC. 6189 GRANVILLE ST. 90% CD MAY 24, 2024 VANCOUVER, BC No.DescriptionDate
N O P Q R S T U V W X Y Z AA 1 2 3 4 5 6 7 8 9 U-1 X-1 10 IL -A2 111 IL -A1 112 BED -S2 113 IL -A1 114 BED IL -A3 115 BED IL -A4 116 BED IL -A5 117 119 666.71 -B3 380.20 SF IL -S1 122 PRIV. DINING R135 GAMES 134a LOUNGE R106 LOBBY ELEV. LOBBY R101 KITCHEN R129 GARBAGE + RECYCLING R131 VESTIBULE R139 WOMENS R133 MENS CRAFT KITCHEN R136a GREENHOUSE R136b TUCK SHOP R138 LIBRARY R134b 121 MOVING ROOM R130 PKG. EXIT # 5 R149 EXIT R105 PKG. EXIT # 4 EXIT STAIRS # 3 PKG. EXIT # 3 COURTYARD OUTDOOR DINING BG(289.30') 88.18m BG(290.12') 88.43m BG(290.94') 88.68m BG(291.63') 88.89m BG(289.70') 88.30m BG(289.01') 88.09m BG(288.22') 87.85m BG(287.50') 87.63m BG(286.38') 87.29m BG(285.40') 86.99m (284.94')BG86.85m BG(285.47') 87.01m BG(286.75') 87.40m BG(288.12') 87.82m BG(288.71') 88.00m GBG. REC. R142 JAN. R141 ELEC. IT R140 ELEC. R128 SUNKEN COURTYARD (SEE P1 PLAN) loading loading class A loading (2.7m5.5m class loading 2.3m) (3.0m8.5m x3.8m)(3.0m8.5m x3.8m) class loading (2.7m5.5m class loading 50 NEW PROPERTY LINE PROPERTY LINE 20'-0" REAR SETBACK LINE 18'-0" SETBACK LINE FROM EXISTING CURB 16'-0" SETBACK LINE FROM NEW PL 35'-0" REAR SETBACK LINE ABOVE L3 GAS CONNECTION500 EXIT (3.05) (3.05) 10'0" W6.2b W6.2b WF6 W6.2b W6.2c W6.2b W6.2c W6.2c WWW6.2bW6.2c W6.2c SF138 SF139b SF139a R138 R133 R132 R127a R128 R129a R130 R131a R128c R140 R104 R143 R135 S2 S2 W2.1 W2.1 S2 WF2b W13.1 W14.0 WF1b WF1b W14.0 W8.2 W6.2b W8.2 W8.2 W8.2 W2.1 W14.1 W14.1 W14.1 W14.1 W14.1 W14.1 S2a S2a S2a W14.1 W14.1 W2.1 W14.1 S2a W14.0 W14.0 W14.1 W14.1 WF1b W8.2 W13.1 W14.0 S2 W14.0 WF2b R129c R129d W14.0 W14.1 W14.1 WF1b WF1b W14.0 W6.3b W14.0 WF1b W14.1 WF1b W14.0 W14.0 WF1b W13.1 W13.1 W13.1 W13.1 W13.1 W13.1 W14.0 WF1b R135b W14.0 WF1b W14.0 WF1b W14.0 W14.0 WF1b W14.0 W14.0 W14.1 W14.1 W8.2 W14.1 W14.1 W14.2 W8.2 W2.1 W3.1 W3.1 W3.1 W1 W1 W2 W2 W1 W1 W3a W4a W2 W2 W3 W4 W1 W1 W3 W4 W1 W4 W5 W1 W7a W1 W5 W3b W6 W8 W3 W1 W3 CW-15 W2 W8a -R141 R142 CW-R115b CWSF136 SF135 A8.2.0 1 A8.3.0 A8.4.0 8 A8.5.0 5 IPAD NOOK KITCHEN/ SLEEPING/ LIVING OUTDOOR BBQ LANDSCAPE DWGS INDOOR FIREPLACE REFER TO DWGS JAN. R144 R144 CHEF'S OFFICE R145 61'10"24'0"13'2"111'2 1/2"16'1/2" 6'11 1/2"19'3"10'1/2"51'8"58' 31'10 1/2"26'1/2" 1/2"15'21'5"21'8"23'0"20'4"24'1/2" 2"41'1/2" TYP. TYP. CLEAR 30' 1/2"8' 3 1/2" 7' 0"34' 1/2"5' 1/2" 38' 1/2"6' 8" 18'8"8'0 1/2" 57'0"30'1" 10 1/2"8'4"7'11 1/2"7'8"10'11"18' - 0"10' - 10"9' - 10 1/2"19' - 9 1/2"10" 12'1/2"18'1/2" - 6"7' - 2 1/2"7' - 2 1/2"14' - 5"14' - 5"7' - 2 1/2"7'1/2"14'5"24'1/2" 11'1/2"7'1/2" A8.6.0 A8.6.1 1 A8.6.1 2 A8.6.1 2 A8.6.1 3 A5.1.2 3 A5.1.2 A5.1.0 A5.1.0 2 A5.1.0 2 A5.1.0 SK5.01 2 A5.0.0 A5.0.0 (10.28 m) 33'-8 1/2" R129b R145 11" EL291.19' Room R150 5 A9.0.6 5 A9.0.6 R127b R131b R131c SERVICE CORRIDOR R127 CW-12SF135 GAS ENCLOSURE T.O.S 290.3' (88.5 m) 290.0' 6' 0" D10 D10 D10 D10 D10 SF104b D10 W1 W4 W3 W4CW-13a-SF116 SF117 7 1/2" 15' 2"13'8"2'1/2"5' 1/2" 10 1/2" 13' 1/2"13'8"7' 11 1/2"5' 3"1/2" 1/2" 12'11" SF119SF120 SF121CW776.25 IL -B4 SF134a SF134 SF134 SF134b R133b R133c 292.8' (89.2 m) (89.3 m) 290.7' (88.6 m) WF6 WF6 W6.2b W6.2b WF6 W6.2b W6.2b W6.2b W6.2b W6.2b W6.2b W6.2d W6.2b W6.2d W6.2d W6.2b W6.2b W6.2b W6.2b W6.2b W6.3b W6.3b W6.3b W6.3b W6.3b W6.3b W6.3b W6.3b W6.1f W6.3b W6.3b W6.3b W6.3e W6.3b W6.3b W6.2a W6.2b SF127a FD FD FD R105 SF105 SF104a LEGEND 9'-0" DROPPED CEILING SEE PLANS FOR VARIATIONS CONCRETE WALL CONCRETE BLOCK WALL INTERIOR WALLS AREA DRAIN (BI-LEVEL) ATTIC COMPARTMET OUTLINE BOTTOM OF CURB BOTTOM OF PARAPET BOTTOM OF WALL (TOP OF F.G.) CATCH BASIN COOK TOP DISH WASHER A.D. B.O.C. B.O.P. B.O.W. C.B. C.T. DW EXISTING GRADEE.G. FLOOR DRAINF.D. FINISHED FLOOR ELEVATIONF.F.EL. FINISHED GRADEF.G. REFRIGERATORFRIG. INTERPOLATED BUILDING GRADEI.B.G. LANDSCAPE BI-LEVEL DRAINBL-FD LINEN CLOSETLIN. LAZY SUSANL.S. MECH. WALL VENT TERMINATION MECH. SOFFIT VENT GRILL MECH. STANDPIPE PATIO BI-LEVEL DRAINP.D. POWDER ROOMPWDR ROOF DRAINR.D. ROD SHELFR&S ROOF VENTR.V. RAIN WATER LEADERRWL SIAMESE CONNECTION SPRINKLER PROTECTION S.P. FIRE EXTINGUISHER TOP OF ROOFT.O.R. TOP OF SLABT.O.S. TOP OF WALLT.O.W. TOILET PAPERT.P. WASHER DRYERW/D DOOR MARK WINDOW MARK ROOM FINISH MARK WALL ASSEMBLY MARK W# FLOOR ASSEMBLY MARK ROOF ASSEMBLY MARK REFER TO LANDSCAPE DWGS. FOR REFERENCE REFER TO INT. DESIGN DWGS. FOR REFERENCE F# R# DET LAND. LAND. DET SCUPPER OVERFLOW SCUP2 SCUP1 SCUPPER 3"X3" EXT. SOFFIT w/ WOOD-LOOK FINISH -SEE PLANS FOR VARIATIONS 7'-6" DROPPED CEILING SEE PLANS FOR VARIATIONS SPRAY-INSULATION DROP CEILING 8'-0" DROPPED CEILING SEE PLANS FOR VARIATIONS WATER CURTAIN W.C. FIRE EXTINGUISHERFE FIRE EXTINGUISHER CABINETFEC GENERAL NOTES: 1.EXISTING GRADE INFORMATION, PROPERTY LINES, SITE BOUNDARIES AND EXISTING BUILDING WEST ELEVATION TAKEN FROM SURVEYORS DRAWING PREPARED BY BUTLER SUNDVICK LAND SURVEYORS, DATED MAY 2019. 2.BUILDING GRADE ELEVATIONS AS PER DRAWING BG 2017-00282, DATED 2018-01-08 PROVIDED BY CITY OF VANCOUVER 3.ALL GRADES AND DIMENSIONS ARE SHOWN IN FEET, UNO. 4.REFER TO ARCHITECTURAL AND LANDSCAPE DRAWINGS FOR ELEVATIONS, GRADING, PAVING AND LANDSCAPE DETAILS. 5.THE ACOUSTICAL MEASURES WILL BE INCORPORATED INTO THE FINAL DESIGN AND CONSTRUCTION BASED ON THE COUSTICAL CONSULTANT'S RECOMMENDATIONS. 6.ADEQUATE AND EFFECTIVE ACOUSTIC SEPARATION WILL E PROVIDED BETWEEN THE RESIDENTIAL AND NON-RESIDENTIAL PORTIONS OF THE BUILDING. APPROVED UNDER THIS DEVELOPMENT PERMIT. SIGNAGE IS REGULATED BY THE SIGN BY-LAW AND REQUIRES SEPARATE APPROVALS. THE OWNER(S) ASSUMES RESPONSIBILITY TO ACHIEVE COMPLIANCE WITH THE SIGN BY-LAW AND OBTAIN THE REQUIRED SIGN PERMITS. 8.ALL DIMENSIONS ARE MEASURED TO THE OUTER MOST LIM OF THE BUILDING TO CLADDING, UNO. PARKING NOTES: 9.THE DESIGN OF THE PARKING STRUCTURE REGARDING SAFETY AND SECURITY MEASURES SHALL BE IN ACCORDANCE WITH SECTION 4.13 OF THE CITY OF VANCOUVER PARKIN BY-LAW. 10.THE DESIGN OF THE BICYCLE SPACES (INCLUDING BICYCLE ROOMS, COMPOUNDS, LOCKERS AND OR RACKS) REGARDING SAFETY AND SECURITY MEASURES SHALL BE IN ACCORDANCE WITH THE RELEVANT PROVISIONS OF SECTION OF THE CITY OF VANCOUVER PARKING BY-LAW. 12.PROVIDE AUTOMATIC DOOR OPENER TO BIKE STORAGE ROOMS. 13.RECEPTACLES FOR ELECTRICAL VEHICLE CHARGING TO BE PROVIDED AS PER ELECTRICAL VEHICLE INFRASTRUCTURE REQUIREMENTS FOR MULTI-FAMILY BUILDINGS. 14.MECHANICAL EQUIPMENT (VENTILATORS, GENERATORS, COMPACTORS AND EXHAUST SYSTEMS) SHALL BE DESIGNED AND LOCATED TO MINIMIZE NOISE IMPACTS ON THE NEIGHBOURHOOD AND COMPLY WITH NOISE BY-LAW NO. 6555. 15.UNDERGROUND PARKING IS TO BE ADEQUATELY VENTILATED, DESIGNED TO PREVENT THE BUILDING UP OF NOXIOUS GASES AND MINIMIZE IMPACT ON THE OPEN SPACE. 16.MAINTAIN 2.3 M MIN. VERTICAL CLEARANCE AT DRIVE AISLE TO AND ABOVE DISABILITY STALLS. 17.ALL ELEVATOR LOBBY DOORS AT PARKING TO BE FULL GLAZED METAL DOORS, C/W SPRINKLER PROTECTION AS REQUIRED. RESIDENTIAL UNIT NOTES: 18.PROVIDE 1'-6" IN SWING AND 1'-0" OUT-SWING CLEAR SPACE BETWEEN THE LATCHING JAMB OF THE UNIT ENTRY DOOR. THIS SPACE IS IMPRACTICAL TO PROVIDE, PRE-WIRE TH DOOR WITH CONTROLS. TYPICAL FOR ALL RESIDENTIAL UNITS. 19.PROVIDE REINFORCEMENT IN WALL ASSEMBLIES ADJACEN TO A TOILET, BATHTUB AND SHOWER FOR ACCOMMODATION OF FUTURE GRAB BARS. 20.ALL KITCHEN SINKS AND WASHROOMS WITHIN RESIDENTIAL UNITS TO BE PROVIDED WITH LEVER TYPE FAUCETS. 21.ALL DOOR EXCEPT SERVICE DOORS TO HAVE LEVER OR PUSH/PULL HANDLE, OR ADA APPROVED TYPE. ENCLOSURE DESIGN GUIDELINES. LOADING LAYOUT APPROVED, SUBJECT WITH COMPLIANCE WITH APPROVED LOADING MANAGEMENT PLAN DWG. NO. BASE FILE PROJECT NO. D.P. No PROJECT: CLIENT: ARCHITECTURAL SEAL: 604.669.6002 604.669.1091 120 Powell Street, Unit 10 Vancouver, BC Canada V6A 1G1 B.P. No RH Architects Inc. This drawing as an instrument of service is the property of Rositch Hemphill Architects and may not be reproduced without the firm's permission. All information show the drawing is for use in this specific project only and shall not be used otherwise without written permission from his office. Contractors shall verify and be responsible for all dimensions on the job and this office shall be informed of any discrepancies and variations shown on drawing. CHECKED: SCALE: PLOT DATE: DRAWN: REVISION :DATE DRAWING TITLE ISSUED FOR Autodesk Docs://G47/2128 G47ARCHCentral_v20 23.rvt 2024-05-27 5:12:57 PM As indicated 2128 A3.0.2 G47 Amica MAIN FLOOR -SOUTH AA JW MARCH 15, 2024 AMICA SENIORS GRANVILLE INC. 6189 GRANVILLE ST. 90% CD MAY 24, 2024 VANCOUVER, BC No.DescriptionDate
A B C D E F G H K L M N O P Q R S T U V W X Y Z AA 1 2 3 4 5 6 7 8 9 C-1 F-1 U-1 X-1 10 18'7"24'1/2"14'5"7'1/2"7'1/2"14'5"14'5"7'1/2"7'1/2"14'6"12'6"24'9"22'7"24'0"14'3"9'0"9'0"14'3"24'0"22'7"24'9"12'6"14'6"7'1/2"7'1/2"14'5"14'5"7'1/2"7'/2"14'5"24'1/2" 20' 0" 10"1'2"13'10 1/2"1'2"17'1/2" 3'1/2" 1'1/2" 1/2" 17'1/2"1'2"17'1/2"3'1/2" 11"11" 1/2"17'1"1'0"12'11 1/2"23'1"22' - 9 1/2"1' - 2"22' - 10"1' - 2"12' - 8"1' - 0"18' - 0"1'0"17'7"1'2"17'11"1'2"17'0"4'1/2"25'4"30'1/2"3'1/2" 1/2" 1/2"60'1/2"1'2"7'4"12'10"3'1/2"1'1/2" 16'2"2'0"26'10"1'0"8'0" 32' 10 1/2"13' 6"3' 10"9 1/2" 114'7"60'1/2"112'1/2"24'10 1/2" 8' 4 1/2"11' 4"4' 1/2" 1/2" 1/2" 2" 4' 10 1/2"15' 1/2" 124' 292.0' 293.0' 2' 2"3' 1/2" 1/2"5'6" 16'1/2"5'1/2"20'11 1/2" 10' 1/2" 15' 4 1/2"4' 11 1/2"2' 6" 16' 3"2' 6"19' 10"2' 6"9' 6"2' 6"18' 9"2' 6"8' 4 1/2"2' 6"8' 7"1' 0" 23' 17' 7"3' 6" 23'2"45'4"9'4"22'1"2'0"25'0"21'1/2"1'2"22'9"1' 8" 8' 7"1' 2"17' 7" 4' 11 1/2" 1/2"15'6" 29' 8"8' 3 1/2"10"20' 11 1/2"1' 0"10' /2"8' 0"18' 1/2"12' 10"8' 0"4' 1" 6' 1/2" 1' 1/2" 4' 11 1/2"2' 6"16' 3"2' 6"19' 10"2' 6"9 6"2' 6"18' 9"2' 6"8' 4 1/2" 1' 7"11' 11" 1' 0" 7' 7" 1' 0" 6" 6"8'4"2'6"4'2" 2'6"27'1/2"1'2"13'2"1' 291.9' 293.0' 2"22'9"1'2"22'1/2"1'2"30'1/2"1'2" 2' 6"8' 7"2' 6"18' 6 1/2"2' 6"9' 6"2' 6"11' 3" 1'2"18'1"2'0"12'1/2"14'1/2"3'1/2"8'0"24'1/2"10'11" 13' 8"13' 1/2"2' 6"14' 6 1/2"1' 0"14' 11 1/2"1' 0"11' 11"1' 0"6' 6"3' 1/2" 1' 5"6' 1"6' 1/2"2' 6" 6"4'7"7'1/2"5'6"10'1/2"1'2" 6"16'3"1'2"19'9"1'2"11'1/2"8' 0"24'3"1'10 1/2"3'1/2"20'11" 34'1/2"18'0"60' 6"5'1/2" 1/2" 3'1/2"3'1/2" 14' 11"5'6"3'1/2"15'3" 5' 6"8"7' 0 1/2"2' 6"16' 3" 0"12'5"4'6" 1/2"2'1/2"11'1"1'0"6' 293.0' 12'11 1/2"13'1/2"16'1/2"26'1/2"167"28'1/2"9'11 1/2" 291.8' 6"58'1/2" 1' 0" 0"2'0"1'0" 1/2"4' 0"9' 8"2' 5"4' 0" 293.0'292.0' 293.0' 293.0' 293.0' 293.0' 292.5' 293.0' 291.9'293.0' 292.0' 293.0' 1'2" 289.9' 293.0' 2.1% 9.9% 2.1% 292.0' 293.0' 6"5'11 1/2"13'10"1'2"11'0"1'0" 23'10 1/2"1' 13'4"1'0"13'1/2"1'0"13'4"1'2"154"1' 2"3'4"1'2" 1'2"20'6"1'2"20'6 1/2" 11' 1/2"2' 6" 7'1/2"11'1/2"3'1/2" 11'1/2"6'1/2"2'6" 2'6"3'2" 8'1"1'0"19'10 1/2"1'2"25'1/2"1'2"21'11 1/2"1'2"22'9"1'2"22'1/2"1'2" 2"8' 4' 11 1/2" 2' 6" 16' 3"2' 6" 2' 6" 0" 9' 1/2"2' 0" 1'2"21'11 1/2" 0" 4' 11 1/2" 16' 3"2' 6" 2"25'1/2"1'2"15'4"1'2"13'8"1'2"12'10"1'2"13'1/2"1'4"13'2"1' - 2" 1'0"11'0"1'0"13' 1'4" 5'11 1/2"1'2"20'6"1'2" -2'6--6"4' 11 1/2" 1' 2" 1' 0" 2' 6"4' 11 1/2" 1'2" 1/2"1'14' 7" 5"5' 6"6' 5"1' 2"13' 3"1' 2" 2'6"16'0"2'6" 15'1/2"6'0"3'1/2" 2' 6"11' 9"2' 6"13' 9"2' 6"11' 11"2' 6"11' 11"2' 6"11' 11"2' 6"23' 1/2"1' 4" 16'1"2'1/2" 2"11'1/2"1'2"18'2"1'2"13' 1'2"11'3" 17' 1/2"2' 6" 0"24' 11'1/2"36'1/2"8' 2'1/2"1'8"5' 10"3' 4"16'10 1/2"2'6"5'1/2" 291.5' 293.0' 292.0' 293.0' 288.4' 293.0' 1/2"12'1/2"2'6"17'2"2' 2% 9% 4.2% 3 % 4.2% 3 5% % 2% 2 % 3.5% 2 7% 9% % 2 % 3 6 2.4% 1.8% 2.5% 3.3% 291.9' 1.7% 1.7% 6.5% 1.7% 1.7% 6.5% 6.5% 2.2% VARIES 293.0'292.0' 1.6% 2.2% 293.0' 293.0' 11"5'6" 293.0' 292.0' 293.0' 291.8' 291.8' 293.0' 292.0' 293.0' 292.0' 293.0' 292.0' 293.0' 292.0' 293.0' 288.6' 12' 2" 1/2" 291.8' 292.0' 6"11'0"3' 1' 0"9' 3"3' 1/2" 2' 6" 1/2"5'6" 20'-0" REAR SETBACK LINE 18'-0" SETBACK LINE FROM EXISTING CURB NEW PROPERTY LINE 16'-0" SETBACK LINE FROM NEW PL PROPERTY LINE PROPERTY LINE 35'-0" REAR SETBACK LINE ABOVE L3 20'-0" REAR SETBACK LINE 18'-0" SETBACK LINE FROM EXISTING CURB 16'-0" SETBACK LINE FROM NEW PL 35'-0" REAR SETBACK LINE ABOVE L3 G R A N V I L L E S T R E E T L A N E w. 4 7 t h A V E N U E BG(289.30') 88.18m BG(290.12') 88.43m BG(290.94') 88.68m BG(291.63') 88.89m BG(292.26') 89.08m BG(292.88') 89.27m BG(293.34') 89.41m (293.93')BG89.59m BG(294.06') 89.63m BG(293.37') 89.42m BG(293.18') 89.36m BG(292.42') 89.13m BG(291.67') 88.90m BG(291.01') 88.70m BG(290.35') 88.50m BG(289.70') 88.30m BG(289.01') 88.09m BG(288.22') 87.85m BG(287.50') 87.63m BG(286.38') 87.29m BG(285.40') 86.99m 1"6' 15' 4" 11'0"9' 0"1'1/2" 0" 8'0"7'10" 4' 0" 2' 9"1' 3" 6' 0"8' 5"6' 0" 1'1/2" 10" 17' 11 1/2"8' 10 1/2" 2" 292.0' W2.1 W2.1 W2.1 W2.1 4.5% 292.0' 61% 287.7'287.9'287.2' 4 5 % 1% % FDFD FD FD FD FD FD FD 291.7' 292.0' 289.4' 293.0' 9"12'1/2"38'11" 46' % 9% 1% 22% 291.7' 292.0'292.0' 293.0' LEGEND 9'-0" DROPPED CEILING SEE PLANS FOR VARIATIONS CONCRETE WALL CONCRETE BLOCK WALL INTERIOR WALLS AREA DRAIN (BI-LEVEL) ATTIC COMPARTMET OUTLINE BOTTOM OF CURB BOTTOM OF PARAPET BOTTOM OF WALL (TOP OF F.G.) CATCH BASIN COOK TOP DISH WASHER A.D. B.O.C. B.O.P. B.O.W. C.B. C.T. DW EXISTING GRADEE.G. FLOOR DRAINF.D. FINISHED FLOOR ELEVATIONF.F.EL. FINISHED GRADEF.G. REFRIGERATORFRIG. INTERPOLATED BUILDING GRADEI.B.G. LANDSCAPE BI-LEVEL DRAINBL-FD LINEN CLOSETLIN. LAZY SUSANL.S. MECH. WALL VENT TERMINATION MECH. SOFFIT VENT GRILL MECH. STANDPIPE PATIO BI-LEVEL DRAINP.D. POWDER ROOMPWDR ROOF DRAINR.D. ROD SHELFR&S ROOF VENTR.V. RAIN WATER LEADERRWL SIAMESE CONNECTION SPRINKLER PROTECTION S.P. FIRE EXTINGUISHER TOP OF ROOFT.O.R. TOP OF SLABT.O.S. TOP OF WALLT.O.W. TOILET PAPERT.P. WASHER DRYERW/D DOOR MARK WINDOW MARK ROOM FINISH MARK WALL ASSEMBLY MARK W# FLOOR ASSEMBLY MARK ROOF ASSEMBLY MARK REFER TO LANDSCAPE DWGS. FOR REFERENCE REFER TO INT. DESIGN DWGS. FOR REFERENCE F# R# DET LAND. LAND. DET SCUPPER OVERFLOW SCUP2 SCUP1 SCUPPER 3"X3" EXT. SOFFIT w/ WOOD-LOOK FINISH -SEE PLANS FOR VARIATIONS 7'-6" DROPPED CEILING SEE PLANS FOR VARIATIONS SPRAY-INSULATION DROP CEILING 8'-0" DROPPED CEILING SEE PLANS FOR VARIATIONS WATER CURTAIN W.C. FIRE EXTINGUISHERFE FIRE EXTINGUISHER CABINETFEC THERMAL BREAKS THERMAL BREAK IN FLOOR THERMAL BREAK @ PARAPET CURB R20 WRAPPED PARAPET CURB LEGEND STRUCTURAL STEP (STEP ON STRUCUTRAL SLAB) STEP FROM BUILT-UP RAMP BUILT-UP CONCRETE FOR SLOPE (ON TOP OF STRUCTURAL SLAB) GENERAL NOTES: 1.EXISTING GRADE INFORMATION, PROPERTY LINES, SITE BOUNDARIES AND EXISTING BUILDING WEST ELEVATION TAKEN FROM SURVEYORS DRAWING PREPARED BY BUTLER SUNDVICK LAND SURVEYORS, DATED MAY 2019. 2.BUILDING GRADE ELEVATIONS AS PER DRAWING BG 2017-00282, DATED 2018-01-08 PROVIDED BY CITY OF VANCOUVER 3.ALL GRADES AND DIMENSIONS ARE SHOWN IN FEET, UNO. 4.REFER TO ARCHITECTURAL AND LANDSCAPE DRAWINGS FOR ELEVATIONS, GRADING, PAVING AND LANDSCAPE DETAILS. 5.THE ACOUSTICAL MEASURES WILL BE INCORPORATED INTO THE FINAL DESIGN AND CONSTRUCTION BASED ON THE COUSTICAL CONSULTANT'S RECOMMENDATIONS. 6.ADEQUATE AND EFFECTIVE ACOUSTIC SEPARATION WILL E PROVIDED BETWEEN THE RESIDENTIAL AND NON-RESIDENTIAL PORTIONS OF THE BUILDING. APPROVED UNDER THIS DEVELOPMENT PERMIT. SIGNAGE IS REGULATED BY THE SIGN BY-LAW AND REQUIRES SEPARATE APPROVALS. THE OWNER(S) ASSUMES RESPONSIBILITY TO ACHIEVE COMPLIANCE WITH THE SIGN BY-LAW AND OBTAIN THE REQUIRED SIGN PERMITS. 8.ALL DIMENSIONS ARE MEASURED TO THE OUTER MOST LIM OF THE BUILDING TO CLADDING, UNO. PARKING NOTES: 9.THE DESIGN OF THE PARKING STRUCTURE REGARDING SAFETY AND SECURITY MEASURES SHALL BE IN ACCORDANCE WITH SECTION 4.13 OF THE CITY OF VANCOUVER PARKIN BY-LAW. 10.THE DESIGN OF THE BICYCLE SPACES (INCLUDING BICYCLE ROOMS, COMPOUNDS, LOCKERS AND OR RACKS) REGARDING SAFETY AND SECURITY MEASURES SHALL BE IN ACCORDANCE WITH THE RELEVANT PROVISIONS OF SECTION OF THE CITY OF VANCOUVER PARKING BY-LAW. 12.PROVIDE AUTOMATIC DOOR OPENER TO BIKE STORAGE ROOMS. 13.RECEPTACLES FOR ELECTRICAL VEHICLE CHARGING TO BE PROVIDED AS PER ELECTRICAL VEHICLE INFRASTRUCTURE REQUIREMENTS FOR MULTI-FAMILY BUILDINGS. 14.MECHANICAL EQUIPMENT (VENTILATORS, GENERATORS, COMPACTORS AND EXHAUST SYSTEMS) SHALL BE DESIGNED AND LOCATED TO MINIMIZE NOISE IMPACTS ON THE NEIGHBOURHOOD AND COMPLY WITH NOISE BY-LAW NO. 6555. 15.UNDERGROUND PARKING IS TO BE ADEQUATELY VENTILATED, DESIGNED TO PREVENT THE BUILDING UP OF NOXIOUS GASES AND MINIMIZE IMPACT ON THE OPEN SPACE. 16.MAINTAIN 2.3 M MIN. VERTICAL CLEARANCE AT DRIVE AISLE TO AND ABOVE DISABILITY STALLS. 17.ALL ELEVATOR LOBBY DOORS AT PARKING TO BE FULL GLAZED METAL DOORS, C/W SPRINKLER PROTECTION AS REQUIRED. RESIDENTIAL UNIT NOTES: 18.PROVIDE 1'-6" IN SWING AND 1'-0" OUT-SWING CLEAR SPACE BETWEEN THE LATCHING JAMB OF THE UNIT ENTRY DOOR. THIS SPACE IS IMPRACTICAL TO PROVIDE, PRE-WIRE TH DOOR WITH CONTROLS. TYPICAL FOR ALL RESIDENTIAL UNITS. 19.PROVIDE REINFORCEMENT IN WALL ASSEMBLIES ADJACEN TO A TOILET, BATHTUB AND SHOWER FOR ACCOMMODATION OF FUTURE GRAB BARS. 20.ALL KITCHEN SINKS AND WASHROOMS WITHIN RESIDENTIAL UNITS TO BE PROVIDED WITH LEVER TYPE FAUCETS. 21.ALL DOOR EXCEPT SERVICE DOORS TO HAVE LEVER OR PUSH/PULL HANDLE, OR ADA APPROVED TYPE. ENCLOSURE DESIGN GUIDELINES. LOADING LAYOUT APPROVED, SUBJECT WITH COMPLIANCE WITH APPROVED LOADING MANAGEMENT PLAN DWG. NO. BASE FILE PROJECT NO. D.P. No PROJECT: CLIENT: ARCHITECTURAL SEAL: 604.669.6002 604.669.1091 120 Powell Street, Unit 10 Vancouver, BC Canada V6A 1G1 B.P. No RH Architects Inc. This drawing as an instrument of service is the property of Rositch Hemphill Architects and may not be reproduced without the firm's permission. All information show the drawing is for use in this specific project only and shall not be used otherwise without written permission from his office. Contractors shall verify and be responsible for all dimensions on the job and this office shall be informed of any discrepancies and variations shown on drawing. CHECKED: SCALE: PLOT DATE: DRAWN: REVISION :DATE DRAWING TITLE ISSUED FOR Autodesk Docs://G47/2128 G47ARCHCentral_v20 23.rvt 2024-05-27 5:13:04 PM As indicated 2128 A3.0.3 G47 Amica MAIN FLOOR SLAB PLAN AA JW MARCH 15, 2024 AMICA SENIORS GRANVILLE INC. 6189 GRANVILLE ST. 90% CD MAY 24, 2024 VANCOUVER, BC No.DescriptionDate
PORCELAIN TILES PORCELAIN TILES 1a BUILDING MATERIAL LEGEND 1b BRICK CLADDING (RUNNING) 2a 2b 2c 3a 5 7 BRICK CLADDING (RUNNING) BRICK CLADDING (RUNNING) CEMENTITIOUS PANEL- EQUITONE ALUMINUM CURTAIN WALL 3c 8a METAL SOFFIT + PORTE COCHERE & CANOPIES 6b WINDOW WALL W/ BRONZE RAISED PANEL ACCENT PORCELANOSA - LIMESTONE CHAMPAGNE PORCELANOSA - DARK BLUE GREY ENDICOTT - MANGANESE IRONSPOT ENDICOTT - RUBY RED - SMOOTH MODULAR LIGHT COLOUR - LIMESTONE - TO MATCH WITH 1a) LIMESTONE BLACK W/ CLEAR GLASS VE ALFREX LIGHT BRONZE JY-A140 (ANODIZED SERIES) CLEAR GLASS WITH BLACK OUTSIDE FRAME, RAIZED BRONE PANEL STARLINE 9600 SERIES (OR SIMILAR) BALCONIES SOFFIT PAINTED CONCRETE 10a CORNICE 1 - PRECAST PAINTED CONCRETE (TO MATCH WITH 1a COLOUR) 10b CORNICE 2 + 3 - PRECAST PAINTED CONCRETE LOOKING 10c LOWER CORNICE 1 PAINTED CONCRETE (TO MATCH WITH 1a COLOUR) 10d LOWER CORNICE 2 PAINTED CONCRETE (TO MATCH WITH 1b COLOUR) 11 BRICKS CORNICE AND MOULDING 12a ALUMINUM GUARDRAIL POWDERCOATED BLACK 12b ALUMINUM TEMPERED GLASS GUARDRAIL POWDER COATED BLACK - CLEAR GLASS 3b CEMENTITIOUS PANEL - EQUITONE BLACK 13 HORIZONTAL SLATS ALUMINUM FENCE SCREENING 6a WINDOW WALL W/ THICK MULLION CLEAR GLASS WITH BLACK OUTSIDE FRAME, BRONZE MIDDLE (THICK) MULLION STARLINE 9600 SERIES (OR SIMILAR) METAL ACCENT - WOOD LOOKING VENEER WESTFORM METALS - PROBOARD 6" - LIGHT PINE ENDICOTT - RUBY RED - SMOOTH MODULAR PALM SHELD LOUVERS - 12' - 14' TALL CEMENTITIOUS PANEL - EQUITONE CONCRETE 4 RESERVED DWG. NO. BASE FILE PROJECT NO. D.P. No PROJECT: CLIENT: ARCHITECTURAL SEAL: 604.669.6002 604.669.1091 120 Powell Street, Unit 10 Vancouver, BC Canada V6A 1G1 B.P. No RH Architects Inc. This drawing as an instrument of service is the property of Rositch Hemphill Architects and may not be reproduced without the firm's permission. All information show the drawing is for use in this specific project only and shall not be used otherwise without written permission from his office. Contractors shall verify and be responsible for all dimensions on the job and this office shall be informed of any discrepancies and variations shown on drawing. CHECKED: SCALE: PLOT DATE: DRAWN: REVISION :DATE DRAWING TITLE ISSUED FOR Autodesk Docs://G47/2128 G47ARCHCentral_v20 23.rvt 2024-05-27 5:21:25 PM 3/32" 1'-0" 2128 A4.0.0 G47 Amica MATERIAL LEGEND AA JW MARCH 15, 2024 AMICA SENIORS GRANVILLE INC. 6189 GRANVILLE ST. 90% CD MAY 24, 2024 VANCOUVER, BC No.DescriptionDate 1a 8a 6b 12a 1b 8a 6a 12b 10a 10c 10d 9 5 12b 5 6b 3a 2b 12a 3b 6a 3a 12a 8a 6b 9 12a 5 3a 12a 2a 8a 8a 2b 1a 3b 5 1a 1b 2a 2b 2c 3a 3b 7 8a 2d
LEVEL 1 293' -0" (89.31 m) LEVEL 2 309' -6" (94.34 m) LEVEL 3 321' -9" (98.07 m) LEVEL 4 334' -0" (101.81 m) LEVEL 5 347' -1" (105.79 m) LEVEL 6 358' -8" (109.33 m) ROOFTOP AMENITY 371' -11" (113.36 m) 16' 6"12'3"12' 3"13' 1"11' 7"13' 3"15' 2" T.O. PARAPET 373' -5" (113.82 m) T.O. ELEVATOR 387' -1" (117.99 m) A B C D E F G H J K L M N O P Q R S T U V W X Y Z AA C-1 F-1 U-1 X-1 B.G 288.7 (88.0m B.G 289.3 (88.2m) B.G 290.1 (88.4m) B.G 290.9 (88.7m) BG 2916 (889m) B.G 292.3 (89.1m) B.G 292.9 (89.3m) B.G 293.3 (89.4m) B.G 293.9 (89.6m T.O. EL. OVERHEAD 386.1' (117.7 m) 381.9' (116.4 m) 286.4' I.B.G FOR BUILDING HEIGHT (87.3 m) 290.6' I.B.G FOR T.O. ROOFTOP AMENITY (88.6 m) 24' 5 1/2"14'5"7' 2 1/2"7'1/2"14'5"14' 5"7'1/2"7'1/2"14'6"12'6"24' 9"22'7"24'0"14'3"9'0"9'0"14'3"24' 0"22'7"24'9"12'6"14'6"7' 2 1/2"7' - 2 1/2"14'5"14'5"7' - 2 1/2"7' - 2 1/2"14' - 5"24' 1/2" 436' 9 1/2" (27.90 m) 91' 1/2" (30.31 m) HEIGHT TO T/O MECH RM 287.1' (87.5 m) MAX. HEIGHT OF M&E EQUIPTMENT: 30.3m (99') MAX. PROPOSED BUILDING HEIGHT: 27.0m (89') LEVEL 293' -0" (89.31 m) LEVEL 309' -6" (94.34 m) LEVEL 321' -9" (98.07 m) LEVEL 334' -0" (101.81 m) LEVEL 347' -1" (105.79 m) LEVEL 358' -8" (109.33 m) ROOFTOP AMENITY 371' -11" (113.36 m) T.O. PARAPET 373' -5" (113.82 m) T.O. ELEVATOR 387' -1" (117.99 m) A B C D E F G H J K L M N C-1 F-1 B.G 292.3 (89.1m) B.G 292.9 (89.3m) B.G 293.3 (89.4m) B.G 293.9 (89.6m T.O. EL. OVERHEAD 386.1' (117.7 m) 381.9' (116.4 m) 16' 6"12' 3"12' 3"13' 1"11' 7"13' 3"15' 2" 24' 5 1/2"14'5"7'1/2"7' 2 1/2"14'5"1 4' 5"7'1/2"7'1/2"14'6"12'6"24' 9"22'7"24'0"14'3"9' 0" 218' 2 1/2" 3b 1a 6a 12a 12b 12a 13 8a 6b 12b 1a 5 2a 3b 3c 6b 12a 8a 8a 10b MAX. PROPOSED BUILDING HEIGHT: 27.0m (89') MAX. HEIGHT OF M&E EQUIPTMENT: 30.3m (99') 10' 10 1/2" 3c W1 W1 W1 W1 W3a W4a W19b W24b W23b W19b W23b W19b W23b W19b W37b W27b W37b W27b W37b W27b W19b W24b W19b W24b W19b W23b W31b W31b W31b W31b W35b W35b W35b W35b W9 W10 W12 W9 W17a W28a W32 W30 W28a W25a W1 W8b W8a W13 W12 W33 W30 W4 W1 W3 W2 W12 W30 W2 W35a W21a W2 W2 W2 CW-16 CW-11a--- ---CW-- - - - -LEVEL 1 293' -0" (89.31 m) LEVEL 2 309' -6" (94.34 m) LEVEL 3 321' -9" (98.07 m) LEVEL 4 334' -0" (101.81 m) LEVEL 5 347' -1" (105.79 m) LEVEL 6 358' -8" (109.33 m) ROOFTOP AMENITY 371' -11" (113.36 m) T.O. PARAPET 373' -5" (113.82 m) T.O. ELEVATOR 387' -1" (117.99 m) N O P Q R S T U V W X Y Z AA U-1 X-1 16' 6"12' 3"12' 3"13' 1"11' 7"13' 3"15' 2" B.G 288.7 (88.0m) B.G 289.3 (88.2m B.G 290.1 (88.4m) B.G 290.9 (88.7m) B.G 291.6 (88.9m) 286.4' I.B.G FOR BUILDING HEIGHT (87.3 m) 9' 0"14'3"24'0"22'7"24'9"12'6"14'6"7' - 2 1/2"7' - 2 1/2"14'5"14'5"7' - 2 1/ 2"7'1/2"14'5"24' 1/2" 218' 1/2" 1a 1b 1a 3c 3b 2b 3c 1a 6b 6b 6a 12a 12b 10a 13 12a 12b 10d 10c 8a (30.31 m) HEIGHT TO T/O MECH RM 99' 5" MAX. HEIGHT OF M&E EQUIPTMENT: 30.3m (99') MAX. PROPOSED BUILDING HEIGHT: 27.0m (89') 12' 4"4' 2" 9' 0"2' 7"9' 0"2' 4" 1' 11" 1a 6c W25b W34b W28b W37b W35b W34b W28b W37b W27b W25b W28b W37b W27b W28b W25b W34b W28b W37b W35b W34b W28b W37b W27b W25b W28b W37b W27b W28b W28a W32 W30 W34a W25a W28a W32 W30 W34a W25a W33 W30 W33 W30 W30 W30 W35a W35a-- - WW---9c--- - - - -8" PORCELAIN TILES PORCELAIN TILES 1a BUILDING MATERIAL LEGEND 1b BRICK CLADDING (RUNNING) 2a 2b 2c 3a BRICK CLADDING (RUNNING) BRICK CLADDING (RUNNING) CEMENTITIOUS PANEL- EQUITONE ALUMINUM CURTAIN WALL 3c 8a METAL SOFFIT PORTE COCHERE & CANOPIES 6b WINDOW WALL W/ BRONZE RAISED PANEL ACCENT PORCELANOSA - LIMESTONE CHAMPAGNE PORCELANOSA - DARK BLUE GREY ENDICOTT - MANGANESE IRONSPOT ENDICOTT - RUBY RED - SMOOTH MODULAR LIGHT COLOUR - LIMESTONE - TO MATCH WITH 1a) LIMESTONE BLACK W/ CLEAR GLASS VE ALFREX LIGHT BRONZE JY-A140 (ANODIZED SERIES) CLEAR GLASS WITH BLACK OUTSIDE FRAME, RAIZED BRONE PANEL STARLINE 9600 SERIES (OR SIMILAR) BALCONIES SOFFIT PAINTED CONCRETE 10a CORNICE 1 - PRECAST PAINTED CONCRETE (TO MATCH WITH 1a COLOUR) 10b CORNICE 2 - PRECAST PAINTED CONCRETE LOOKING 10c LOWER CORNICE PAINTED CONCRETE (TO MATCH WITH 1a COLOUR) 10d LOWER CORNICE PAINTED CONCRETE (TO MATCH WITH 1b COLOUR) 11 BRICKS CORNICE AND MOULDING 12a ALUMINUM GUARDRAIL POWDERCOATED BLACK 12b ALUMINUM & TEMPERED GLASS GUARDRAIL POWDER COATED BLACK - CLEAR GLASS 3b CEMENTITIOUS PANEL - EQUITONE BLACK 13 HORIZONTAL SLATS ALUMINUM FENCE SCREENING 6a WINDOW WALL W/ THICK MULLION CLEAR GLASS WITH BLACK OUTSIDE FRAME, BRONZE MIDDLE (THICK) MULLION STARLINE 9600 SERIES (OR SIMILAR) METAL ACCENT - WOOD LOOKING VENEER WESTFORM METALS - PROBOARD 6" - LIGHT PINE ENDICOTT - RUBY RED - SMOOTH MODULAR PALM SHELD LOUVERS - 12' - 14' TALL CEMENTITIOUS PANEL - EQUITONE CONCRETE RESERVED DWG. NO. BASE FILE PROJECT NO. D.P. No PROJECT: CLIENT: ARCHITECTURAL SEAL: 604.669.6002 604.669.1091 120 Powell Street, Unit 10 Vancouver, BC Canada V6A 1G1 B.P. No RH Architects Inc. This drawing as an instrument of service is the property of Rositch Hemphill Architects and may not be reproduced without the firm's permission. All information show the drawing is for use in this specific project only and shall not be used otherwise without written permission from his office. Contractors shall verify and be responsible for all dimensions on the job and this office shall be informed of any discrepancies and variations shown on drawing. CHECKED: SCALE: PLOT DATE: DRAWN: REVISION :DATE DRAWING TITLE ISSUED FOR Autodesk Docs://G47/2128 G47ARCHCentral_v20 23.rvt 2024-05-27 5:23:17 PM As indicated 2128 A4.1.0 G47 Amica ELEVATIONS AA JW MARCH 15, 2024 AMICA SENIORS GRANVILLE INC. 6189 GRANVILLE ST. 90% CD MAY 24, 2024 VANCOUVER, BC 1/16" = 1'-0" EAST ELEVATION (Facing Granville Street) 1 No.DescriptionDate 3/32" = 1'-0" EAST ELEVATION -NORTH 3 3/32" = 1'-0" EAST ELEVATION -SOUTH 2
3'0" 2' 0"4' 0"1' 6" 2' 0"4' 0"1' 6" 2' 6"7' 6" 6' 0"1' 6" 2' 6"7' 6" 6' 0"1' 6" 4'0" W9W10W11W12 2' 6"7' 6" 2' 0"4' 0"1' 6" W13 2' 6"7' 6" 2' 0"4' 0"1' 6" W14 2' 6"7' 6" 6'3"1'3" 3'0" W15 2' 6"7' 6" 2' 0"4' 0"1' 6" W16 TYPE: STARLINE SERIES 9200 FRAME: ALUMINIUM - BLACK BRONZE TYPE: STARLINE SERIES 9200 FRAME: ALUMINIUM - BLACK & BRONZE TYPE: STARLINE SERIES 9200 FRAME: ALUMINIUM - BLACK TYPE: STARLINE SERIES 9200 FRAME: ALUMINIUM - BLACK TYPE: STARLINE SERIES 9200 FRAME: ALUMINIUM - BLACK & BRONZE TYPE: STARLINE SERIES 9200 FRAME: ALUMINIUM - BLACK & BRONZE TYPE: STARLINE SERIES 9200 FRAME: ALUMINIUM - BLACK & BRONZE TYPE: STARLINE SERIES 9200 FRAME: ALUMINIUM - BLACK & BRONZE MP MP F MP MP MP F MP F MP MP F MP MP F MP MP MP F 2' 0"4' 0"1' 6" W9a TYPE: STARLINE SERIES 9203 FRAME: ALUMINIUM - BLACK & BRONZE *OITC 35 REQUIRED - REFER TO ACOUSTIC REPORT FOR DETAILS MP MP F3 2' 0"4' 0"1' 6" W10a TYPE: STARLINE SERIES 9203 FRAME: ALUMINIUM - BLACK & BRONZE *OITC 35 REQUIRED - REFER TO ACOUSTIC REPORT FOR DETAILS MP MP F3 3'0" 2' 6"7' 6" 6' 0"1' 6" W11a TYPE: STARLINE SERIES 9203 FRAME: ALUMINIUM - BLACK *OITC 35 REQUIRED - REFER TO ACOUSTIC REPORT FOR DETAILS MP F3 2' 6"7' 6" 6'3"1'3" 3'0" W15a TYPE: STARLINE SERIES 9203 FRAME: ALUMINIUM - BLACK & BRONZE *OITC 35 REQUIRED - REFER TO ACOUSTIC REPORT FOR DETAILS MP F3 2' 6"7' 6" 2' 0"4' 0"1' 6" W16a TYPE: STARLINE SERIES 9203 FRAME: ALUMINIUM - BLACK & BRONZE *OITC 35 REQUIRED - REFER TO ACOUSTIC REPORT FOR DETAILS MP MP F3 F3 F F3 F F F F3 2' 6"7' 6" 2' 6"7' 6" 2' 6"7' 6" 2' 6"7' 6" 6'0" 3'0"3'0" 6'0" 3'0"3'0" 4'6" 2'3"2'3" 4'6" 2'3"2'3" 7'0" 3'6"3'6" 5'0" 2'6"2'6" 6'0" 3'0"3'0" 6'0" 3'0"3'0" 2' 0"4' 0"1' 6" W9b TYPE: TGP FIREFRAMES DESIGNER SERIES AT 45 MIN. FRR FRAME: ALUMINIUM - BLACK *45 MIN. FRR REQUIRED - REFER TO CODE REPORT FOR DETAILS. ASSEMBLY LISTED CONFORMS WITH CAN/ULC-S106 THEREFORE SATISFYING CODE REQUIREMENTS. MP MP TG TG 2' 6"7' 6" 4'6" 2'3"2'3" 3'0" 2' 6"7' 6" 6' 0"1' 6" W11b TYPE: TGP FIREFRAMES DESIGNER SERIES AT 45 MIN. FRR FRAME: ALUMINIUM - BLACK *45 MIN. FRR REQUIRED - REFER TO CODE REPORT FOR DETAILS. ASSEMBLY LISTED CONFORMS WITH CAN/ULC-S106 THEREFORE SATISFYING CODE REQUIREMENTS. MP TG 2' 0"4' 0"1' 6" W10b TYPE: TGP FIREFRAMES DESIGNER SERIES AT 45 MIN. FRR FRAME: ALUMINIUM - BLACK *45 MIN. FRR REQUIRED - REFER TO CODE REPORT FOR DETAILS. ASSEMBLY LISTED CONFORMS WITH CAN/ULC-S106 THEREFORE SATISFYING CODE REQUIREMENTS. MP MP TG TG 2' 6"7' 6" 3'0"3'0" 6'0" W17a 6' 0"1' 6" 2'3"2'3" 4'6" 2'6"7'6" 3'0"3'0" 6'0" 2'6"7'6" 6' 0"1' 6" W19aW19b TYPE: STARLINE SERIES 9203 FRAME: ALUMINIUM - BLACK & BRONZE *OITC 35 REQUIRED - REFER TO ACOUSTIC REPORT FOR DETAILS 6' 0"1' 6" 2'6"7'6" 3'0"3'0" 6'0" W17b TYPE: STARLINE SERIES 9200 FRAME: ALUMINIUM - BLACK & BRONZE TYPE: STARLINE SERIES 9203 FRAME: ALUMINIUM - BLACK & BRONZE *OITC 35 REQUIRED - REFER TO ACOUSTIC REPORT FOR DETAILS 2'6"7'6" 6' 0"1' 6" 2'3"2'3" 4'6" TYPE: STARLINE SERIES 9200 FRAME: ALUMINIUM - BLACK & BRONZE TYPE: STARLINE SERIES 9200 FRAME: ALUMINIUM - BLACK & BRONZE W18 5'0" 2'6"2'6" 2'6"7'6" 1' 6"6' 0" W20a TYPE: STARLINE SERIES 9200 FRAME: ALUMINIUM - BLACK & BRONZE 2'3"2'3" 2' 0"4' 0"1' 6" 2'6"7'6" W20b 2'6"7'6" 2' 0"4' 0"1' 6" 2'3"2' - 3" 4'4'6" 6" TYPE: STARLINE SERIES 9203 FRAME: ALUMINIUM - BLACK & BRONZE *OITC 35 REQUIRED - REFER TO ACOUSTIC REPORT FOR DETAILS W21a TYPE: STARLINE SERIES 9200 FRAME: ALUMINIUM - BLACK & BRONZE 3'0"3'0" 2' 0"4' 0"1' 6" 2'6"7'6" W21b 2'6"7'6" 2' 0"4' 0"1' 6" 3'0"3'0" 6'6'0" 0" TYPE: STARLINE SERIES 9203 FRAME: ALUMINIUM - BLACK & BRONZE *OITC 35 REQUIRED - REFER TO ACOUSTIC REPORT FOR DETAILS W22 TYPE: STARLINE SERIES 9200 FRAME: ALUMINIUM - BLACK & BRONZE 3'6"3'6" 2' 0"4' 0"1' 6" 2'6"7'6" 7'0" W23a TYPE: STARLINE SERIES 9200 FRAME: ALUMINIUM - BLACK & BRONZE 2'6"7'6" 2' 0"4' 0"1' 6" 3'0" W23b 2'6"7'6" 2' 0"4' 0"1' 6" 3'0" TYPE: STARLINE SERIES 9203 FRAME: ALUMINIUM - BLACK & BRONZE *OITC 35 REQUIRED - REFER TO ACOUSTIC REPORT FOR DETAILS W23c 2'6"7'6" 2' 0"4' 0"1' 6" 3'0" TYPE: TGP FIREFRAMES DESIGNER SERIES AT 45 MIN. FRR FRAME: ALUMINIUM - BLACK *45 MIN. FRR REQUIRED - REFER TO CODE REPORT FOR DETAILS. ASSEMBLY LISTED CONFORMS WITH CAN/ULC-S106 THEREFORE SATISFYING CODE REQUIREMENTS. W24a TYPE: STARLINE SERIES 9200 FRAME: ALUMINIUM - BLACK & BRONZE 2'6"7'6" 2'0"4' 0"1' 6" 2'8"4" W24b 2'6"7'6" 2'0"4' 0"1' 6" 2'8"4" TYPE: STARLINE SERIES 9203 FRAME: ALUMINIUM - BLACK & BRONZE *OITC 35 REQUIRED - REFER TO ACOUSTIC REPORT FOR DETAILS MP MP F MP MP F3 F3 MP MP F MP F MP F MP F3 MP F3 MP F3 MP F3 MP F3 MP F3 MP F3 MP TG MP F MP F MP F MP MP F MP MP MP F MP F3 3'0"3'0" W1W2W3W4 6"13'0" 3' 0"2' 0"4'6"3'6" 6"13'0" 3' 0"2' 0"4'6"3'6" 3'0" 6"13'0" 3' 0"6' 6"3'6" 6"13'0" 3' 0"2' 0"4'6"3'6" 13' 6" 6' 6"3'6" W5W6 6"13'0" 3' 0"2' 0"4'6"3'6" 6"13'0" 3' 0"2' 0"4'6"3'6" W7W8 6"13'0" 3' 0"2' 0"4'6"3'6" TYPE: STARLINE SERIES 9200 FRAME: ALUMINIUM - BLACK & BRONZE TYPE: STARLINE SERIES 9200 FRAME: ALUMINIUM - BLACK & BRONZE TYPE: STARLINE SERIES 9200 FRAME: ALUMINIUM - BLACK TYPE: STARLINE SERIES 9200 FRAME: ALUMINIUM - BLACK & BRONZE TYPE: STARLINE SERIES 9200 FRAME: ALUMINIUM - BLACK BRONZE TYPE: STARLINE SERIES 9200 FRAME: ALUMINIUM - BLACK & BRONZE TYPE: STARLINE SERIES 9200 FRAME: ALUMINIUM - BLACK & BRONZE TYPE: STARLINE SERIES 9200 FRAME: ALUMINIUM - BLACK & BRONZE MP MP L MP MP MP MP MP F MP F MP MP F MP MP MP MP MP MP MP F MP MP MP MP MP F 6"13'0" 3' 0"6' 6"3'6" F3 MP 3'0" W3a TYPE: STARLINE SERIES 9203 FRAME: ALUMINIUM - BLACK *OITC 35 REQUIRED - REFER TO ACOUSTIC REPORT FOR DETAILS W4a 6"13'0" 3' 0"2' 0"4'6"3'6" TYPE: STARLINE SERIES 9203 FRAME: ALUMINIUM - BLACK & BRONZE *OITC 35 REQUIRED - REFER TO ACOUSTIC REPORT FOR DETAILS MP F3 MP MP F F F3 6'0" 3'0"3'0" 4'6" 2'3"2'3" 6'0" 3'0"3'0" 6'0" 3'0"3'0" 5'0" 2'6"2'6" 6'0" 3'0"3'0" 7'0" 3'6"3'6" 13' 6" 6' 6"3'6" W5a TYPE: TGP FIREFRAMES DESIGNER SERIES AT 45 MIN. FRR FRAME: ALUMINIUM - BLACK *45 MIN. FRR REQUIRED - REFER TO CODE REPORT FOR DETAILS. ASSEMBLY LISTED CONFORMS WITH CAN/ULC-S106 THEREFORE SATISFYING CODE REQUIREMENTS. MP TG MP W1a 6"13'0" 3' 0"2' 0"4'6"3'6" TYPE: TGP FIREFRAMES DESIGNER SERIES AT 45 MIN. FRR FRAME: ALUMINIUM - BLACK *45 MIN. FRR REQUIRED - REFER TO CODE REPORT FOR DETAILS. ASSEMBLY LISTED CONFORMS WITH CAN/ULC-S106 THEREFORE SATISFYING CODE REQUIREMENTS. MP TG MP MP MP TG 6"13'0" 3' 0"6' 6"3'6" TG MP 3'0" W3b TYPE: TGP FIREFRAMES DESIGNER SERIES AT 45 MIN. FRR FRAME: ALUMINIUM - BLACK *45 MIN. FRR REQUIRED - REFER TO CODE REPORT FOR DETAILS. ASSEMBLY LISTED CONFORMS WITH CAN/ULC-S106 THEREFORE SATISFYING CODE REQUIREMENTS. 6"13'0" 3' 0"2' 0"4'6"3'6" W7a TYPE: TGP FIREFRAMES DESIGNER SERIES AT 45 MIN. FRR FRAME: ALUMINIUM - BLACK *45 MIN. FRR REQUIRED - REFER TO CODE REPORT FOR DETAILS. ASSEMBLY LISTED CONFORMS WITH CAN/ULC-S106 THEREFORE SATISFYING CODE REQUIREMENTS. MP TG MP MP TG 6'0" 2'3'0"3'0" 3"2'3" 4'6" 6"13'0" 3' 0"2' 0"4'6"3'6" 8"12' 10" 2'3"2'3" 4'6" 2'3"2'3" 4'6" W8a TYPE: STARLINE SERIES 9200 FRAME: ALUMINIUM - BLACK & BRONZE W8b TYPE: STARLINE SERIES 9200 FRAME: ALUMINIUM - BLACK & BRONZE 2'8"4" 3'0" 2'8"4" 3'0" L L L L L WINDOW AND PATIO DOOR GENERAL NOTES: 1. ALL EXTERIOR WINDOWS AND PATIO DOORS TO BE DOUBLE GLAZED THERMALLY BROKEN UNLESS OTHERWISE STATED SOME EXTERIOR WINDOWS AND PATIO DOORS ARE REQUIRED TO UPGRADED TO OITC 35 (TRIPLE GLAZED) -REFER TO ACOUSTIC REPORT FOR DETAILS. 2. UNLESS NOTED OTHERWISE, PROVIDE STANDARD 3mm GLAZING FOR WINDOWS AND EXTERIOR DOORS. 3. FRAMES COLOUR TO BE CONFIRMED AND APPROVED BY ARCHITECT AND ID. 4. SLIDER DIRECTION TO BE CONFIRMED WITH SHOP DRAWINGS. 5. ALL GLASS WITHIN 36" OF DOOR LOCKS TO BE SAFETY GLASS OF TEMPERED OR LAMINATED TYPE. 6. ALL LAMINATED GLASS TO HAVE 0.030" THICK PVB INTERLAYER. 7. PROVIDE SCREENS FOR ALL OPENERS. AMICA TO CONFIRM. 8. REFER TO GENERAL NOTES FOR MORE DOOR AND WINDOW NOTES 9. WINDOW SUPPLIER(S) SHALL PROVIDE LETTERS OF ASSURANCE FOR DESIGN AND REVIEW OF WINDOWS WITH RESPECT TO STRUCTURAL ASPECTS. SHOP DRAWINGS ARE REQUIRED PRIOR TO MANUFACTURE. SHOP DRAWINGS TO BEAR SEAL OF STRUCTURAL ENGINEER REGISTERED IN THE PROVINCE OF BC. ENGINEER TO PROVIDE LETTERS OF ASSURANCE AND FIELD REVIEW FOR COMPONENTS COVERED. SHOP DRAWINGS TO CONFIRM CERTIFICATION OF WINDOW ASSEMBLY FOR AIR AND WATER INFILTRATION RATINGS. 10. SHOP DRAWINGS AND SPECIFICATIONS ARE TO BE PROVIDED FOR ALL FLASHINGS AND ARE TO BE SUBMITTED TO THE ARCHITECT AND BUILDING ENVELOPE CONSULTANT FOR REVIEW AND APPROVAL PRIOR TO MANUFACTURE. 11. WINDOWS SHALL CONFORM TO CSA-A440-M AND PART OF V.B.B.L. 2019. EVIDENCE OF CONFORMANCE SHALL BE PROVIDED AT THE END OF THE JOB. ON-SITE, IN SUITE TESTING TO BE REVIEWED BY BUILDING ENVELOPE CONSULTANTS AND ARCHITECT. 12. ASTM E 1105, FIELD DETERMINATION OF WATER PENETRATION OF INSTALLED EXTERIOR CURTAIN WALLS AND DOORS, BY UNIFORM OR CYCLIC STATIC AIR PRESSURE DIFFERENCE, BY USING AAMA 502-90, VOLUNTARY SPECIFICATION FOR FIELD TESTING OF WINDOWS TEST METHOD B. 13. TESTING IS REQUIRED ON A MINIMUM OF 1% OF THE WINDOWS. THE INDUSTRY STANDARD FOR B-3 TESTING IS 330 PA. SHOULD ANY OF THE WINDOWS FAIL, THE WINDOW(S) MUST BE REPAIRED AND RE-TESTED, PLUS TWO ADDITIONAL WINDOWS. PLEASE NOTE THAT ALL TESTING MUST BE DONE TO THE WINDOWS AS SUPPLIED WITH NO TEMPORARY MODIFICATIONS TO THE ASSEMBLY, I.E. BLOCKING THE DRAINAGE HOLES. 14. OPENABLE WINDOWS NOT IN FRONT OF A BALCONY TO HAVE RESTRICTORS TO LIMIT THE OPENING TO 4". 15. PROVIDE PIN LOCK FOR SLIDING DOORS AT 4" OPENING. 16. THE WINDOWS AND DOORS MUST MEET AAMA/WDMA/CSA 101/I.S.2/A440 -NAFS -North American Fenestration Standard Specification for Doors, Windows and Skylights. (Harmonized Standard) and A440S1, Canadian Suppliment to the above standard. 17. PROVIDE 60 DEG. CHAMFER AT WINDOW LEDGE MORE THAN 15mm, WHERE PRESENT CLIMABILITY HAZARD TO ADJACENT GUARDRAIL. 18. REFER TO THE CODE COMPLIANCE DRAWINGS FOR LOCATIONS OF 6mm TEMPERED GLASS ON THE INNER PANEL. 19. REFER TO ENVELOPE CONSULTANT REPORT. DWG. NO. BASE FILE PROJECT NO. D.P. No PROJECT: CLIENT: ARCHITECTURAL SEAL: 604.669.6002 604.669.1091 120 Powell Street, Unit 10 Vancouver, BC Canada V6A 1G1 B.P. No RH Architects Inc. This drawing as an instrument of service is the property of Rositch Hemphill Architects and may not be reproduced without the firm's permission. All information show the drawing is for use in this specific project only and shall not be used otherwise without written permission from his office. Contractors shall verify and be responsible for all dimensions on the job and this office shall be informed of any discrepancies and variations shown on drawing. CHECKED: SCALE: PLOT DATE: DRAWN: REVISION :DATE DRAWING TITLE ISSUED FOR Autodesk Docs://G47/2128 G47ARCHCentral_v20 23.rvt 2024-05-27 5:29:52 PM 1/4" = 1'-0" 2128 A6.4.0 G47 Amica WINDOW SCHEDULE AA JW MARCH 15, 2024 AMICA SENIORS GRANVILLE INC. 6189 GRANVILLE ST. 90% CD MAY 24, 2024 VANCOUVER, BC No.DescriptionDate L1L2 NOTES: LLouver FFixed (Double Glazed) F3Fixed (Triple Glazed) TTempered Glass TGTechnical Glass SSpandrel MPMetal Panel MP2Insulated Metal Panel
LEVEL 5 347' -1" (105.79 m) LEVEL 6 358' -8" (109.33 m) T.O. SLAB 370' -11" (113.06 m) 10'11"8"11' 7"8" 3'2"2'11"2'0"3'2" 11'3 1/2" WW-9b WW-9a SF512 SF612 TYPE: STARLINE SERIES 9200 FRAME: ALUMINIUM - BLACK 2' 0"5' 6"1'6"2' 7" 2' 0"5' 6"1' 6"1' 11" MP MP MP F F F MP MP MP F F F WW-9b WW-9a MP MP MP MP 10'11"8"11' 7"8" 3' 1/2"3'1/2"2'0"3' 2" 11'1/2" WW-9d WW-9c SF611 TYPE: STARLINE SERIES 9200 FRAME: ALUMINIUM - BLACK 2' 0"5' 6"1'6"2' 7" 2' 0"5' 6"1' 6"1' 11" L MP MP MP F L MP MP MP F WW-9d WW-9c MP MP 11'0" 2'4 1/2"2'1/2"1'6"2'1/2"2'4 1/2" 23' 2"8" 2' 0"7' 0"1' 11"8"2' 0"7' 0"2' 7" WW-10a WW-10a TYPE: STARLINE SERIES 9203 FRAME: ALUMINIUM - BLACK *OITC 35 REQUIRED - REFER TO ACOUSTIC REPORT FOR DETAILS MP MP MP MP L F3 F3 F3 F3 MP MP MP L F3 F3 F3 F3 MP MP MP MP LEVEL 5 347' -1" (105.79 m) LEVEL 6 358' -8" (109.33 m) T.O. SLAB 370' -11" (113.06 m) 3'0"2'0"3'0" 8'0" 23' 2"8" 2' 0"7'0"1'11"8"2' 0"7' 0"2' 7" WW-11 WW-11 TYPE: STARLINE SERIES 9200 FRAME: ALUMINIUM - BLACK MP MP MP F MP MP F MP MP 23' 2"8" 2' 0"7'0"1'11"8"2' 0"7' 0"2' 7" 3'1"2'0"3'6" 8'1/2" WW-12 WW-12 TYPE: STARLINE SERIES 9200 FRAME: ALUMINIUM - BLACK MP MP MP F F MP MP F F MP MP 10' 11"8"11' 7"8" 2' 0"7'0"1'11" 5'10"3'2" 9'0" WW-13b WW-13a SF521 SF621 TYPE: STARLINE SERIES 9200 FRAME: ALUMINIUM - BLACK MP MP F MP MP F WW-13b WW-13a 2' 0"7' 0"2' 7" MP MP 23' 2"8" 2' 0"7'0"1'11"8"2' 0"7' 0"2' 7" 3'11 1/2"2'0" 5'11 1/2" WW-14a WW-14a TYPE: STARLINE SERIES 9200 FRAME: ALUMINIUM - BLACK MP MP F MP F MP 23' 2"8" 2' 0"7'0"1'11"8"2' 0"7' 0"2' 7" 6'0"2'0"4'0" 12'0" WW-16a WW-16a TYPE: STARLINE SERIES 9200 FRAME: ALUMINIUM - BLACK MP MP MP F MP MP F MP MP 12'0" 10' 11"8"11' 7"8" 2' 0"7'0"1'11" 3'5"3'5"2'0"3'2" WW-17a SF620 SF520 TYPE: STARLINE SERIES 9200 FRAME: ALUMINIUM - BLACK MP MP MP MP F F MP MP MP MP F F WW-17b 2' 0"7' 0"2' 7" MP MP MP MP WW-17b WW-17a LEVEL 5 347' -1" (105.79 m) LEVEL 6 358' -8" (109.33 m) T.O. SLAB 370' -11" (113.06 m) 10'0" 2' 0"7' 0"1' 11"8"2' 0"7'0"2' 7" 23'2"8" 2'1/2"2'1/2"1'6"2'1/2"2'1/2" WW-18 WW-18 TYPE: STARLINE SERIES 9203 FRAME: ALUMINIUM - BLACK *OITC 35 REQUIRED - REFER TO ACOUSTIC REPORT FOR DETAILS MP L MP MP MP F3 F3 F3 F3 MP L MP MP F3 F3 F3 F3 MP MP MP MP 6'3" 3' 2"3' 1" WW-19b WW-19a SF616 SF516 TYPE: STARLINE SERIES 9200 FRAME: ALUMINIUM - BLACK 2' 0"5' 6"1' 6"1' 11" MP MP F F MP MP F F 10' 11"8"11' 7"8" WW-19b WW-19a 2' 0"7'0"2' 7" MP MP 10' 11"8"11' 7"8" 3'2"3'1" 6'3" WW-19d WW-19c SF613 SF513 TYPE: STARLINE SERIES 9200 FRAME: ALUMINIUM - BLACK 2' 0"5' 6"1' 6"1' 11" 2' 0"5'6"1' 6"2' 7" MP MP MP MP WW-19d WW-19c MP MP 6'3" 10' 11"8"11' 7"8" 2' 0"7' 0"1' 11" 3'2"3'1" WW-20b WW-20a TYPE: STARLINE SERIES 9200 FRAME: ALUMINIUM - BLACK MP L F F MP L F F WW-20b WW-20a MP MP MP MP 2' 0"7'0"2' 7" 8'0" 10' 11"8"11' 7"8" 2'1/2"2'1"3'2 1/2" WW-21b WW-21a SF615 SF515 TYPE: STARLINE SERIES 9200 FRAME: ALUMINIUM - BLACK 2' 0"5'6"1' 6"2' 7" 2' 0"5' 6"1' 6"1' 11" MP MP MP F F MP MP MP F F WW-21b WW-21a MP MP 10' 11"8"11' 7"8" 3'2 1/2"2'1"2'8 1/2" 8'0" WW-21c SF614 SF514 TYPE: STARLINE SERIES 9200 FRAME: ALUMINIUM - BLACK 2' 0"5' 6"1' 6"1' 11" 2' 0"5'6"1' 6"2' 7" MP MP MP F MP MP MP F WW-21d MP MP LEVEL 347' -1" (105.79 m) LEVEL 358' -8" (109.33 m) T.O. SLAB 370' -11" (113.06 m) 9'0" 5'10"3'2" WW-22b WW-22a SF608 SF508 10'11"8"11' 7"8" TYPE: STARLINE SERIES 9200 FRAME: ALUMINIUM - BLACK 2'0"5'6"1' 6"1' 11" 2' 0"5' 6"1' 6"2'7" MP MP MP MP MP MP MP MP WW-22b WW-22a MP MP 2'0"7' 0"1' 11"8"2' 0"7' 0"2'7" 2'0"3'11 1/2" 5'11 1/2" WW-23 WW-23 23' 2"8" TYPE: STARLINE SERIES 9200 FRAME: ALUMINIUM - BLACK MP MP F MP F MP 2'0"7' 0"1' 11"8"2' 0"7' 0"2'7" WW-24 WW-24 4'0"2'0"6'0" 12'0" 23' 2"8" TYPE: STARLINE SERIES 9200 FRAME: ALUMINIUM - BLACK MP MP MP F MP MP F MP MP 12'0" 3'2"2'0"3'5"3'5" 10'11"8"11' 7"8" WW-25b WW-25a SF609 SF509 TYPE: STARLINE SERIES 9200 FRAME: ALUMINIUM - BLACK 2'0"5'6"1' 6"1' 11" 2' 0"5' 6"1' 6"2'7" MP MP MP MP F F F MP MP MP MP F F F WW-25b WW-25a MP MP 23' 2"8" 2'0"7' 0"1' 11"8"2' 0"7' 0"2'7" 3'0" WW-26 WW-26 TYPE: STARLINE SERIES 9200 FRAME: ALUMINIUM - BLACK MP F MP F MP 7'0" 23' 2"8" 2'0"7' 0"1' 11"8"2' 0"7' 0"2'7" 2'6"2'0"2'6" WW-27 WW-27 TYPE: STARLINE SERIES 9200 FRAME: ALUMINIUM - BLACK MP MP MP MP MP WINDOW AND PATIO DOOR GENERAL NOTES: 1. ALL EXTERIOR WINDOWS AND PATIO DOORS TO BE DOUBLE GLAZED THERMALLY BROKEN UNLESS OTHERWISE STATED. SOME EXTERIOR WINDOWS AND PATIO DOORS ARE REQUIRED TO UPGRADED TO OITC 35 (TRIPLE GLAZED) -REFER TO ACOUSTIC REPORT FOR DETAILS. 2. UNLESS NOTED OTHERWISE, PROVIDE STANDARD 3mm GLAZING FOR WINDOWS AND EXTERIOR DOORS. 3. FRAMES COLOUR TO BE CONFIRMED AND APPROVED BY ARCHITECT AND ID. 4. SLIDER DIRECTION TO BE CONFIRMED WITH SHOP DRAWINGS. 5. ALL GLASS WITHIN 36" OF DOOR LOCKS TO BE SAFETY GLASS OF TEMPERED OR LAMINATED TYPE. 6. ALL LAMINATED GLASS TO HAVE 0.030" THICK PVB INTERLAYER. 7. PROVIDE SCREENS FOR ALL OPENERS. AMICA TO CONFIRM. 8. REFER TO GENERAL NOTES FOR MORE DOOR AND WINDOW NOTES 9. WINDOW SUPPLIER(S) SHALL PROVIDE LETTERS OF ASSURANCE FOR DESIGN AND REVIEW OF WINDOWS WITH RESPECT TO STRUCTURAL ASPECTS. SHOP DRAWINGS ARE REQUIRED PRIOR TO MANUFACTURE. SHOP DRAWINGS TO BEAR SEAL OF STRUCTURAL ENGINEER REGISTERED IN THE PROVINCE OF BC. ENGINEER TO PROVIDE LETTERS OF ASSURANCE AND FIELD REVIEW FOR COMPONENTS COVERED. SHOP DRAWINGS TO CONFIRM CERTIFICATION OF WINDOW ASSEMBLY FOR AIR AND WATER INFILTRATION RATINGS. 10. SHOP DRAWINGS AND SPECIFICATIONS ARE TO BE PROVIDED FOR ALL FLASHINGS AND ARE TO BE SUBMITTED TO THE ARCHITECT AND BUILDING ENVELOPE CONSULTANT FOR REVIEW AND APPROVAL PRIOR TO MANUFACTURE. 11. WINDOWS SHALL CONFORM TO CSA-A440-M AND PART OF V.B.B.L. 2019. EVIDENCE OF CONFORMANCE SHALL BE PROVIDED AT THE END OF THE JOB. ON-SITE, IN SUITE TESTING TO BE REVIEWED BY BUILDING ENVELOPE CONSULTANTS AND ARCHITECT. 12. ASTM E 1105, FIELD DETERMINATION OF WATER PENETRATION OF INSTALLED EXTERIOR CURTAIN WALLS AND DOORS, BY UNIFORM OR CYCLIC STATIC AIR PRESSURE DIFFERENCE, BY USING AAMA 502-90, VOLUNTARY SPECIFICATION FOR FIELD TESTING OF WINDOWS TEST METHOD B. 13. TESTING IS REQUIRED ON A MINIMUM OF 1% OF THE WINDOWS. THE INDUSTRY STANDARD FOR B-3 TESTING IS 330 PA. SHOULD ANY OF THE WINDOWS FAIL, THE WINDOW(S) MUST BE REPAIRED AND RE-TESTED, PLUS TWO ADDITIONAL WINDOWS. PLEASE NOTE THAT ALL TESTING MUST BE DONE TO THE WINDOWS AS SUPPLIED WITH NO TEMPORARY MODIFICATIONS TO THE ASSEMBLY, I.E. BLOCKING THE DRAINAGE HOLES. 14. OPENABLE WINDOWS NOT IN FRONT OF BALCONY TO HAVE RESTRICTORS TO LIMIT THE OPENING TO 4". 15. PROVIDE PIN LOCK FOR SLIDING DOORS AT 4" OPENING. 16. THE WINDOWS AND DOORS MUST MEET AAMA/WDMA/CSA 101/I.S.2/A440 -NAFS -North American Fenestration Standard Specification for Doors, Windows and Skylights. (Harmonized Standard) and A440S1, Canadian Suppliment to the above standard. 17. PROVIDE 60 DEG. CHAMFER AT WINDOW LEDGE MORE THAN 15mm, WHERE PRESENT CLIMABILITY HAZARD TO ADJACENT GUARDRAIL. 18. REFER TO THE CODE COMPLIANCE DRAWINGS FOR LOCATIONS OF 6mm TEMPERED GLASS ON THE INNER PANEL. 19. REFER TO ENVELOPE CONSULTANT REPORT. 23' 2"8" 2' 0"7' 0"1' 11"8"2' 0"7' 0"2' 7" WW-10 WW-10 TYPE: STARLINE SERIES 9200 FRAME: ALUMINIUM - BLACK 11'0" 2'4 1/2"2'4 1/2"1'6"2'4 1/2"2'1/2" MP MP MP MP L F MP MP MP L F MP MP MP MP DWG. NO. BASE FILE PROJECT NO. D.P. No PROJECT: CLIENT: ARCHITECTURAL SEAL: 604.669.6002 604.669.1091 120 Powell Street, Unit 10 Vancouver, BC Canada V6A 1G1 B.P. No RH Architects Inc. This drawing as an instrument of service is the property of Rositch Hemphill Architects and may not be reproduced without the firm's permission. All information show the drawing is for use in this specific project only and shall not be used otherwise without written permission from his office. Contractors shall verify and be responsible for all dimensions on the job and this office shall be informed of any discrepancies and variations shown on drawing. CHECKED: SCALE: PLOT DATE: DRAWN: REVISION :DATE DRAWING TITLE ISSUED FOR Autodesk Docs://G47/2128 G47ARCHCentral_v20 23.rvt 2024-05-27 5:31:37 PM 1/4" = 1'-0" 2128 A6.7.1 G47 Amica WINDOW WALL SCHEDULE AA JW MARCH 15, 2024 AMICA SENIORS GRANVILLE INC. 6189 GRANVILLE ST. 90% CD MAY 24, 2024 VANCOUVER, BC No.DescriptionDate L5 to L6L5 WINDOW WALLWINDOW NOTES: LLouver FFixed (Double Glazed) F3Fixed (Triple Glazed) TTempered Glass TGTechnical Glass SSpandrel MPMetal Panel MP2Insulated Metal Panel

Turn static files into dynamic content formats.

Create a flipbook