Skip to main content

Architecture Portfolio_2024

Page 1

portfolio

table of contents

1. land port of entry

alexandria bay, ny

2. community center los angeles, ca

3. house of funk chicago, il

4. mixed use residential champaign, il

5. casteller training facility: residence barcelona, spain

6. co-housing development golden, co

7. drawing / photography

1. land port of entry

spring 2023

Located in Alexandria Bay, NY, our group was tasked with creating a new design for the border station between New York and Canada. The goal was to give a new reputation of “border station” from being intimidating or scary to more welcoming as you enter the adjacent country. In our design, we used the natural landscape as inspiration and also included a space for visitors passing through to enjoy or rest from traveling while still being strictly regulated as a government facility.

“ Where work, live, and play come together through connectivity,

culture and comfort that supports community engagement

KEY

Non-commercial Commercial

1st Inspection

2nd Inspection

exploded axonometric of structure

south elevation

covetool analysis

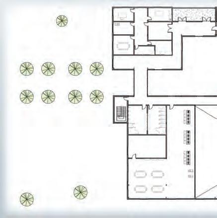
2. community center

fall 2021

Located in Downtown Los Angeles, CA, the concept of this building was to merge the interior and exterior spaces. This is accomplished by the use of the oversized space frame roof allowing for comfortable temperatures while enjoying the outdoor amenities. In addition, there are several meeting rooms, a recreation area, a cafe, and computer lab/library. The locally sourced wood paneling and stone veneer, as well as the solar panels assist with energy efficicency.

structural detail

ground floor

second floor oor

3. house of funk

fall 2022

Based in chicago, our studio was tasked with the job of designing a “house of funk”. Exploring design through color and rhythm, our studio started at a smaller scale and worked our way to the final, larger product. The process began with my partner and I designing one of the rooms that would connect to other rooms designed by my peers. In the end, each person in our class had an important role in combining each room to create a co-living residential building known as the house of funk.

house of funk final model

elevated chiffoniers

“This vertical room is organized by a series of playful volumes that appear to float within a gridded framework. These spaces transform the mundane domestic routine of folding, drying, and storing laundry into an exciting spatial adventure. The figural volumes provide community closet space for inhabiants to store, “hand-medown,” and share articles of clothing, while the structural framework elevates drying laundry into a joyful visual spectacle.”

4. mixed-use residential

spring 2021

Located in Champaign, IL, this mixed-use residential apartment is intended for residents that are looking for a lively and creative atmosphere. The units on levels 2-4 are accessible loft apartmetns that are suitable for live/work spaces. All units have a floor to ceiling curtain wall that floods the apartment with natural light and ventilation. The ground floor is used for commercial use as well as entertainment spaces that are available to the public.

C L A R K S T R E E T RETAIL RETAIL RETAIL RETAIL RETAIL RESIDENTIAL LOBBY GALLERY/PUBLIC SPACE MAIL ROOM ground floor

second

third/fourth floor

1 BR/EFFICIENCY 1 BR/EFFICIENCY 1 BR/EFFICIENCY 2 BR2 BR 2 BR CLASSROOM/STUDIO CLASSROOM/STUDIO STUDIO/RESIDENT AMENITY BALCONY STUDIO/RESIDENT AMENITY LOUNGE BALCONY 1 BR/EFFICIENCY 1 BR/EFFICIENCY 1 BR/EFFICIENCY 1 BR/EFFICIENCY 1 BR/EFFICIENCY 1 BR/EFFICIENCY 1 BR/EFFICIENCY 1 BR/EFFICIENCY 1 BR/EFFICIENCY 2 BR 2 BR
floor

5. castellers’ training facility: the residence

fall 2023

Located in Barcelona, Spain, our studio was tasked with developing a training facility for the castellers as a way to bring new cultural meaning to the very touristy Poble Espanyol. There are six program spaces that are required for the facility and I chose to develop the residential space for the members to live in while they train. The main concept revolved aroud the idea of connectedness and how the members need each other to succeed as well as the connection that lies within the city and the tradition of making human towers.

AREA OF DE SITE PLAN O

people who build towers with their bodies and make different constructions called castells (castles). A tradition founded in Catalonia, Spain.

C-D C-D 04 75.52 C-D C-D 06 68.30 C-D C-D 07 164.90 09 475.70 m² m² Zalamea Conquista íncipe Viana stoles Rius Taulet Maestrazgo Gradas Santiago ada tiagSan Bajada Cervantes ajad Ce Baja Bulas Cuna Arcos Mercaders DavalladaC.D Pl. Major C. Alcalde Zalamea CConquista o icr eT.C C. Alcalde de Móstoles EVELOPMENT F POBLE ESPANYOL Main Plaza
Casteller(s): (noun)
LIMITED VIEWS LIMITED SUNLIGHT LIMITED VENTILATION INCREASED VIEWS INCREASED SUNLIGHT INCRESED NATURAL VENTILATION ENHANCED LIFESTYLE

Existing Construction

New Construction

canonical drawing: A detailed drawing of one segment of the design section and elevation drawing.

C-D 11 261.66 Pl. Major
Alcalde
C. Alcalde Zalamea C.
de Móstoles

10 MM REBAR

CEMENT BREEZEBLOCK 1

CEMENT BREEZEBLOCK 2 C.I.P CONCRETE BRICK

that is representative of the “DNA” of the project. Shown through a plan,

MORTAR
view 1
perspective section

third floor plan

second floor plan

view 2

6. co-housing development

spring 2022

Located in Golden, Co, this co-housing development is all about bringing communities together and connecting each individual home to the central common house, while still being afforable. The common house is used as a gathering space to lounge, cook, work, do laundry and any other activities the community sees fit. Being on the side of a mountain allows the inhabitants to have beautiful views of the colorado landscape while also having thier own sense of privacy.

0.5 mile
house floor plans

7. drawing & photography

thank you email:

dnlasusa@gmail.com

Turn static files into dynamic content formats.

Create a flipbook