Building Regulations Example Project

Page 1


Building Regulation Drawing- Main House

ID0443Internal Single Door7672100Ground Floor

EXD012TYPE A12102110Ground Floor

EXD10TYPE A15102110Ground Floor

EXD11TYPE B22702050Ground Floor

EXD013TYPE C43002400Ground Floor

ID02TYPE EInternal Single Door7092061Ground Floor

ID03TYPE EInternal Single Door7092061Ground Floor

ID05TYPE EInternal Single Door7142100Ground Floor

ID01TYPE E7622032Ground Floor

ID06TYPE FInternal Double Door11502100Ground Floor

ID07TYPE FInternal Double Door11502100Ground Floor

ID08TYPE GInternal Double Door12002000Ground Floor First Floor

EXD110TYPE D11872068First Floor

ID10TYPE EInternal Single Door7662100First Floor

ID11TYPE EInternal Single Door7662100First Floor

ID12TYPE EInternal Single Door7662100First Floor

W1TYPE AGround Floor17521176944

W2TYPE AGround Floor17521176635

W3TYPE AGround Floor17521176635

W4TYPE BGround Floor6001231934

W5TYPE BGround Floor6001231934

W6TYPE CGround Floor18002100300

W7TYPE DGround Floor150024000 First Floor

W10TYPE AFirst Floor17521176934

W11TYPE AFirst Floor17521376874

W12TYPE BFirst Floor5637131200

W13TYPE BFirst Floor9001500

W14TYPE BFirst Floor9001500 W15TYPE BFirst Floor9001500

Specialist Drawing SetsElectrical + Lighting + Plumbing

THE FOLLOWING SPECIFICATION MUST BE READ IN CONJUNCTION WITH ALL ARCHITECTURAL GENERAL ARRANGEMENT DRAWINGS, SCHEDULES ETC. AND IS APPLICABLE WHETHER SPECIFICALLY REFERRED TO OR NOT. IT IS THE RESPONSIBILITY OF THE CONTRACTOR/SUB-CONTRACTOR TO ENSURE THAT ALL THEIR WORK IS IN COMPLIANCE WITH THE APPROPRIATE REQUIREMENTS OF THE RELEVANT BUILDING REGULATIONS, NHBC STANDARDS AND OTHER ALLIED LEGISLATION.

ALL MATERIALS ARE TO BE USED AND INSTALLED IN ACCORDANCE WITH THE RELEVANT MANUFACTURER'S INSTRUCTIONS AND RECOMMENDATIONS. ALL NEW SERVICES ARE TO BE PROVIDED IN ACCORDANCE WITH THE STATUTORY UNDERTAKER'S REQUIREMENTS. THE QUALITY OF ANY MATERIAL SHALL NOT BE LOWER THAN THAT DEFINED IN THE RELEVANT BRITISH STANDARD, OR THAT THE MATERIAL HAS BEEN SATISFACTORILY ASSESSED BY AN APPROPRIATE INDEPENDENT AUTHORITY I.E. BBA, BRE. THE CONTRACTOR/SUB-CONTRACTOR MUST ENSURE THAT MATERIALS ARE 'FULLY SUITABLE' FOR THEIR LOCATION AND THAT ALLIED MATERIALS/BACKGROUNDS ARE APPROPRIATE. WHERE THERE IS NO LEGISLATED STANDARD, THE QUALITY AND USE OF THE PRODUCT SHALL BE IN ACCORDANCE WITH ESTABLISHED SATISFACTORY CUSTOMS AND PRACTICES. ALL WORK SHALL BE CARRIED OUT IN A SOUND, NEAT, DURABLE AND WORKMANLIKE MANNER. REASONABLE PRECAUTIONS SHALL BE TAKEN TO PROTECT FIXED AND UNFIXED MATERIALS AGAINST ANY DAMAGE LIKELY TO AFFECT THE FINISHED QUALITY OF THE BUILDING.

ALL CONTRACTORS/SUB-CONTRACTORS MUST ENSURE TO THEIR OWN SATISFACTION THAT THEY ARE IN POSSESSION OF THE CURRENTLY ISSUED DRAWINGS AND DETAILS, BEFORE COMMENCING THE RELEVANT 'WORK-STAGE' ON SITE.

NOTE: UNLESS STATED ALL CONSTRUCTION DETAILS ARE TO BE IN ACCORDANCE WITH THE ROBUST DETAILS DOCUMENT -LIMITING THERMAL BRIDGING AND AIR LEAKAGE PUBLISHED BY DTLR.

THE PRINCIPLE CONTRACTOR IS TO ENSURE THAT THE PROVISIONS OF THE CONSTRUCTION DESIGN MANAGEMENT (CDM) REGULATIONS ARE CARRIED OUT FULLY, INCLUDING ALL NOTIFICATIONS OF WORK REQUIRED UNDER LEGISLATION, PRIOR TO START OF WORKS.

FOUNDATIONS

THE EXISTING GROUND WITHIN THE EXTENT OF THE PROPOSED BUILDING CONSTRUCTION SITE SHALL BE CLEARED OF ALL TURF AND VEGETABLE MATTER PRIOR TO ANY FURTHER EXCAVATION BEING MADE. METHOD OF DISPOSAL OF ANY CONTAMINATED SOIL TO BE AGREED WITH THE LOCAL ENVIRONMENTAL OFFICER. FOUNDATION TRENCHES SHALL BE CLEAN AND TRUE AND CHECKED FOR SOFT AREAS, WATER ETC. AND LEFT WITH COMPACTED BOTTOMS.

FOUNDATIONS SHALL BE LOCATED CENTRALLY UNDER EXTERNAL AND LOAD BEARING INTERNAL WALLS UNLESS IS IT INDICATED IN ARCHITECTURAL DRAWINGS. ALL FOUNDATIONS SHALL BE DESIGNED WITH DUE REGARD TO SUBSOIL CONDITIONS, WATER TABLE, PRESENCE OF SULPHATES AND PREVIOUS GROUND USES ETC. DEPTH OF THE FOUNDATIONS TO SUIT SOIL CONDITIONS, ORIGINAL AND PROPOSED GROUND LEVELS, DRAINAGE TRENCHES AND PROXIMITY OF TREES/HEDGES, ALL TO THE SATISFACTION OF THE RELEVANT BUILDING CONTROL AUTHORITY/NHBC INSPECTOR. READY MIXED CONCRETE WILL ONLY BE ACCEPTABLE FROM SUPPLIERS USING A FULL QUALITY CONTROL SYSTEM.

ENTIRE FOUNDATION DESIGN TO BE IN-ACCORDANCE WITH STRUCTURAL ENGINEERS DESIGN DRAWINGS AND CALCULATIONS.

CONTRACTOR / SUB-CONTRACTOR TO MAKE SURE THERE IS NO ENCROACHMENTS ON SITE.

ALL DRAINAGE WORKS SHALL BE IN FULL ACCORDANCE WITH APPROVED DOCUMENT H OF THE BUILDING REGULATIONS, BS 8301 AND TO THE COMPLETE SATISFACTION OF THE RELEVANT BUILDING CONTROL BODY.

WHERE DRAINS PASS THROUGH EXTERNAL WALLS THEY ARE TO BE PROTECTED WITH A PRE-STRESSED CONCRETE LINTEL OVER (AS DESIGNED BY ENGINEER) WITH MIN. 150MM END BEARINGS, WITH 150MM CLEARANCE ALL ROUND PIPE AND THE OPENING IS TO BE MASKED WITH RIGID SHEET MATERIAL TO PREVENT THE INGRESS OF VERMIN OR FILL.

IF APPLICABLE, REFER TO DRAINAGE ENGINEER'S DETAILED DRAWINGS FOR DRAINAGE LAYOUT AND SPECIFICATION DETAILS.

GROUND FLOOR CONSTRUCTION

GROUND FLOOR CONSTRUCTION AS INDICATED IN ARCHITECTURAL GENERAL ARRANGEMENT DRAWINGS AND TO BE CONFIRMED BY ENGINEER.

GROUND BEARING FLOOR: 75MM REINFORCED SAND/CEMENT SCREED (UNDER FLOOR HEATING TO SPECIALIST'S DESIGN -TO BE CONFIRMED BY THE END USE) ON 1200G POLYTHENE PROTECTION LAYER ON 100MM GA4000 CELOTEX INSULATION (FF4000 FOR UNDER FLOOR HEATING) OR SIMILAR APPROVED ON 1200G DPM ON 150MM CONCRETE GROUND BEARING FLOOR SLAB WITH A393 MESH REINFORCEMENT WITH MIN. 50MM COVER, (ENGINEER TO CONFIRM), ON BRICK BALLAST/CRUSHED STONE BASE ON WELL COMPACTED SOIL 25MM CELOTEX INSULATION STRIP TO BE PROVIDED TO ALL PERIMETER WALLS. CONSTRUCTION TO ACHIEVE U-VALUE OF 0.16

PLEASE NOTE FOR EXTENSIONS ANY EXISTING FLOOR VENTS TO BE CONNECTED WITH 4" PIPE AND VENTED TO EXTERNAL LEAF.

MOVEMENT JOINTS

REFER TO FLOOR PLANS AND STRUCTURAL ENGINEERS DETAILS FOR RECOMMENDED LOCATION OF MOVEMENT JOINTS TO OUTER LEAF BRICKWORK/BLOCKWORK, GENERALLY TO BE PROVIDED AT NOT GREATER THAN 6 METRE CENTRES FOR BLOCKWORK AND 12-15 METRE CENTRES FOR BRICKWORK. MOVEMENT JOINTS TO BE 10MM MINIMUM WIDE, LOCATED BEHIND RAIN WATER DOWN PIPES WHERE POSSIBLE AND FORMED WITH PROPRIETARY POLYURETHANE SEALING STRIP, WITH FLAT TIES BETWEEN PANELS AT 450MM VERTICAL CENTRES WITH ONE END DE-BONDED WITH POLY-SULPHIDE SEALANT TO EXTERNAL FACE OF BRICKWORK -COLOUR TO MATCH. NOTE PROVIDE CAVITY WALL TIES WITHIN 150MM HORIZONTALLY, AT 225MM MAXIMUM VERTICAL CENTRES, EITHER SIDE OF MOVEMENT JOINTS.

EXTERNAL CAVITY WALL

CAVITY WALLS TO COMPLY WITH BS 5628.

300MM EXTERNAL WALL CONSTRUCTION ABOVE DPC COMPRISING 100MM AIRCRETE BLOCKWORK (TC=0.11) INNER SKIN, STRENGTH TO BE 7.3 N/MM.SQ, 12.5MM PLASTERBOARD ON DABS, STRICTLY IN ACCORDANCE WITH THE MANUFACTURER'S RECOMMENDATIONS. ALL WALLS ARE TO RECEIVE A PLASTER SKIM FINISH READY TO RECEIVE DECORATION.

CAVITY TO BE FULLY FILLED WITH 97MM KNAUF SUPAFIL 37 (TC=0.037) OR SIMILAR APPROVED IN ACCORDANCE WITH MANUFACTURERS DETAILS.

OUTER LEAF GENERALLY TO BE 102.5MM (FL DURABILITY) FACING BRICKWORK TO LOCAL AUTHORITY APPROVAL. TOTAL EXTERNAL CAVITY WALL TO ACHIEVE MINIMUM 'U' VALUE 0.26 W PER M2K.

EXTERNAL RENDER/CLADDING FINISH:

CAVITY TO BE FULLY FILLED WITH 100MM KNAUF SUPAFIL 37 (TC=0.037) OR SIMILAR APPROVED IN ACCORDANCE WITH MANUFACTURERS DETAILS.

OUTER LEAF GENERALLY TO BE 100MM DENSE CONCRETE EXTERNAL QUALITY BLOCKWORK WITH MONOCHROME RENDER / CLADDING OUTSIDE TO LOCAL AUTHORITY APPROVAL. TOTAL EXTERNAL CAVITY WALL TO ACHIEVE MINIMUM 'U' VALUE 0.26 W PER M2K.

THE CAVITY IS TO BE FILLED WITH A LEAN MIX CONCRETE UP TO A LEVEL OF 225MM MINIMUM BELOW DPC & IS TO BE LAID WITH SULPHATE RESISTANT MORTAR. PROVIDE PERPEND WEEPHOLES EVERY FOURTH VERTICAL JOINT N THE OUTER LEAF AT THE BASE OF THE CAVITY AT 150MM BELOW D.P.C.

PROVIDE PROPRIETARY INSULATED CAVITY CLOSERS AT ALL WINDOW/DOOR OPENINGS AND CLOSE CAVITY AT TOP WITH INSULATED LINTEL.

INTERNAL WALLS

DAMP PROOF COURSE

HORIZONTAL DAMP PROOF COURSE TO BE MINIMUM 150MM ABOVE ADJACENT GROUND LEVEL. A SECONDARY DPC WILL BE PROVIDED 150MM ABOVE FLOOR LEVEL FOR MINIMUM DISTANCE OF 1.5M FROM ALL EXTERNAL DOORS WITH A LEVEL THRESHOLD. DPC/ CAVITY TRAY TO BE MARLEY AQUAGARD OR SIMILAR APPROVED AND IS TO BE INSTALLED STRICTLY IN ACCORDANCE WITH THE MANUFACTURERS INSTRUCTIONS AND RECOMMENDATIONS.

IF THE EXTERNAL GROUND LEVEL IS EQUAL OR ABOVE THE INTERNAL FINISH FLOOR LEVEL, THEN DOUBLE DPC TO BE PROVIDED, ONE AT FINISHED FLOOR LEVEL AND THE SECONDARY 150MM ABOVE EXTERNAL GROUND LEVEL. BOTH HORIZONTAL DPC'S TO BE CONNECTED WITH AND VERTICAL LAYER OF DPC ALL IN ACCORDANCE WITH ARCHITECTURAL DESIGN AND DETAILS.

CAVITY CLOSURE TO ALL WINDOWS AND DOORS TO REPLACE ALL VERTICAL DPC'S AND IN ORDER TO AVOID COLD BRIDGING.

THE HORIZONTAL DAMP PROOF COURSE SHALL CONSIST OF A LAYER OF 2000 GAUGE POLYTHENE DAMP COURSE TO BS 743/6515 ADEQUATELY LAPPED AT CORNERS AND JOINTS AND LAID ON A MORTAR BED.

WHERE EXTERNAL WALL CAVITY IS BRIDGED I.E. AIR BRICK/VENTILATOR OPENINGS AND METER CUPBOARD ETC. PROVIDE POLYTHENE CAVITY TRAYS COMPLETE WITH STOP ENDS OVER IN THE EXTERNAL WALL WITH OPEN PROPRIETARY PERPENDS. CAVITY TRAYS ARE TO PROJECT 150MM BEYOND EITHER SIDE OF LINTEL/OPENING.

AT ALL ROOF ABUTMENTS I.E PORCHES, GARDEN ROOMS ENSURE STEPPED

D.P.C'S CAVITY TRAY WITH STOP ENDS ARE PROVIDED AND LINKED TO CODE 4 LEAD FLASHINGS AND SOAKERS. CODE 4 LEAD DRESSED BENEATH CAVITY TRAYS AND OVER ROOF SLOPES WITH ALTERNATE PERPENDS LEFT OPEN FOR WEEPHOLES ALL AS NECESSARY TO FORM WEATHER PROOF JUNCTION. ALL LEADWORK TO SOAKERS, FLASHINGS, VALLEYS ETC. ARE TO BE IN COMPLIANCE WITH THE RECOMMENDATIONS OF THE LATEST EDITION OF THE LEAD SHEET ASSOCIATION'S 'GUIDE TO GOOD PRACTICE'.

INTERNAL PARTITIONS TO BE BRITISH GYPSUM 'GYPWALL' METAL STUD-PARTITIONING SYSTEM OR APPROVED TIMBER STUDS, TOTAL OVERALL THICKNESS 95MM. USING 70MM METAL /TIMBER STUDS AT 600MM CTRS. WITH 12.5MM BRITISH GYPSUM 'SOUNDBLOC' BOTH SIDES (MOISTURE RESISTANT TO BATHROOM & ENSUITES). PARTITION TO ACHIEVE 40DB SOUND REDUCTION.

ADDITIONAL 12.5MM STRUCTURAL PLY BOARD TO BE ADDED BETWEEN/ABOVE BATTENS TO SUPPORT THE KITCHETN/BATHROOM FITTINGS AND APPLIANCES.

ROOF CONSTRUCTION

ROOFING TILES AS SPECIFIED IN ARCHITECTURAL DRAWINGS (TO BS 5534 PT.1

AMENDED 1981) LAID WITH PITCH AND LAP IN ACCORDANCE WITH MANUFACTURER'S INSTRUCTIONS ON 50X38MM SW BATTENS (SIZE TO BE IN ACCORDANCE WITH BS 5534) ON 'TYVEK SUPRO' OR SIMILAR APPROVED VAPOUR PERMEABLE BREATHER MEMBRANE. MEMBRANE DRESSED INTO GUTTERS ON 'TYVEK' EAVES CARRIER. ON SW PRE FABRICATED TRUSSED RAFTERS AND BRACINGS TO BS 5268 PART 3 1985, AT MAX 600 CTS. 30X5G.S RESTRAINT STRAPS AT VERGE AND CEILING LEVEL. PROVIDE AND BED ON 1:1:6

MORTAR 100X50MM SW TREATED WALL PLATE WITH RESTRAINT STRAPS TO WALL PLATE AT MAX 2 M CTS. TO BS 5628 PART 1. ALL EXTERNAL TIMBERS TO BE PRESERVATIVE TREATED.

SLOPING CEILING -MINIMUM 150MM DEEP LOOSE RAFTERS / TRUSS RAFTERS AT 400C/C TO ROOF MANUFACTURER'S OR ENGINEER'S DESIGN AND DETAILS. AT SLOPING SCEILING, BREATHABLE ROOFING MEMBRANE WITH 100MM CELOTEX GA4000 OR SIMILAR APPROVED INSULATION BETWEEN RAFTERS WITH MIN 50MM VOID OVER INSULATION AND CELOTEX GD5025 (25+9.5) OR EQUIVALENT UNDER RAFTERS WITH VAPOUR CHECK LAYER, ROOF CONSTRUCTION TO ACHIEVE MIN. U-VALUE OF 0.18

FLAT ROOF AT RAFTER LEVEL (WARM FLAT ROOF) FIBER GLASS WATER PROOFING LAYER OR SIMILAR APPROVED TO MANUFACTURER'S INSTRUCTIONS AND DETAILS. ON 18MM OSB 3 BOARD, ON 120MM CELOTEX RIGID INSULATION OR SIMILAR APPROVED WITH VAPOUR CONTROL LAYER ON BOTH SIDES, ON 12MM OSB2 BOARD, ON SW FURRINGS TO GIVE MINIMUM 1:60 FALL, ON 150/200MM JOISTS (TBC BY ENGINEER), 15MM CEILING BOARD WITH VAPOUR CONTROL LAYER, CONSTRUCTION TO ACHIEVE U-VALUE OF 0.18

ALLOW FOR CUTTING THE OVERHANGING RAFTER FEET SQUARELY TO ACHIEVE PERFECT VERTICAL ALIGNMENT TO THE NEW FASCIA BOARDS, AS WELL AS A CONSTANT SOFFIT WIDTH.

TRUSSES TO BE SECURED TO WALL PLATES USING PROPRIETARY TRUSS CLIPS WITH NAILS FIXED THROUGH EACH AVAILABLE HOLE.

FORM HIPS AND RIDGE USING PROPRIETARY RIDGE AND BONNET HIP TILES, & CODE 5 LEAD ON VALLEY BOARDS IN ACCORDANCE WITH LEAD ASSOCIATION DETAILS,(ALTERNATIVELY A GRP VALLEY CAN BE USED AND INSTALLED STRICTLY IN ACCORDNACE WITH MANUFACTURES / SUPPLIERS GUJIDLINES AND RECOMMENDATIONS.

PROVIDE CAVITY TRAYS & CODE 4 STEPPED AND APRON LEAD FLASHINGS AT ABUTMENTS OF ALL ROOFS WITH WALLS, LEAD CHASED INTO WALLS AND WEDGED AT MAXIMUM 450MM CENTRES AND POINTED IN 1:3 CEMENT/ SAND MORTAR. PROVIDE SOAKERS TO HIPS, VALLEYS AND ROOF/ WALL ABUTMENTS.

PROVIDE CAVITY TRAYS & CODE 4 STEPPED AND APRON LEAD FLASHINGS AT ABUTMENTS OF ALL ROOFS WITH WALLS, LEAD CHASED INTO WALLS AND WEDGED AT MAXIMUM 450MM CENTRES AND POINTED IN 1:3 CEMENT/ SAND MORTAR. PROVIDE SOAKERS TO HIPS, VALLEYS AND ROOF/ WALL ABUTMENTS.

UPPER FLOORS

UPPER FLOOR IN ACCORDANCE WITH SPECIALISTS'S DESIGN AND DETAILS 18-22MM THICK MOISTURE-RESISTANT FLOORING TYPE C4 CHIPBOARD TO B.S 5669, ENSURE THROUGHOUT EDGES OF BOARDS SUPPORTED ON JOISTS OR NOGGINS, WITH 10MM EXPANSION GAP AT ROOM PERIMETERS BETWEEN CHIPBOARD AND WALLS.

BOARDS TO BE SECURELY FIXED THROUGH TO 50X200MM (TBC BY ENGINEER)

DEEP C24 TIMBER JOIST SYSTEM OR ATTIC TRUSSES AT CENTRES AS SPECIFIED BY SPECIALIST MANUFACTURER/ STRUCTURAL ENGINEER. THE ENTIRE FLOOR IS TO BE INSTALLED IN STRICT ACCORDANCE WITH THE MANUFACTURER'S INSTRUCTIONS -STANDARD DETAILS AND SETTING OUT

JOISTS TO BE SUPPORTED ON HANGERS AT PARTY WALL AND EXTERNAL WALL. AT PARTY WALLS THE JOISTS ARE TO BE SEALED FOR FIRE AND ACOUSTIC REQUIREMENTS IN STRICT ACCORDANCE WITH THE MANUFACTURERS INSTRUCTIONS.

UNDERSIDE OF JOISTS TO RECEIVE 12.5MM SOUNDBLOCK PLASTERBOARD CEILING, TAPED, SKIMMED AND SET FINISHED. FLOOR VOID TO HAVE 100MM THICK MINERAL FIBRE INSULATION FOR SOUND REDUCTION.

OVERALL CONSTRUCTION TO ACHIEVE MINIMUM AIRBORNE SOUND REDUCTION OF 40DB

WINDOWS AND DOORS

WINDOWS: UPVC WINDOWS STYLE TO MATCH AS INDICATED ON ARCHITECTURAL DRAWINGS. ALL FIRST FLOOR WINDOWS AND ABOVE TO BE DESIGNED WITH EASY CLEAN HINGES TO ALLOW FOR CLEANING EXTERNAL GLAZING FROM WITHIN ROOM. NO WINDOW OPENINGS FIRST FLOOR AND ABOVE TO BE LESS THAN 800MM ABOVE FINISH FLOOR LEVEL UNLESS SAFETY GLAZING & GUARDING, (REFER TO AD N1 AND GLAZING SPECIFICATION BELOW), PROVIDED TO AT LEAST THE HEIGHT OF 800MM FROM FFL. CHILD RETRACTORS TO BE FITTED.

WINDOWS/EXTERNAL DOORS TO ALL HABITABLE ROOM UPTO 4.5M FROM GROUND LEVEL TO BE EMERGENCY EGRESS WINDOWS WITH UNOBSTRUCTED OPENABLE AREA 0.33M² WITH MIN 450X450MM OPENING AND BOTTOM OF OPENING NOT MORE THAN 1100MM FROM FFL, ALL INACCORDANCE WITH AD PART B.

PROVIDE TRICKLE VENTILATOR UNITS TO HEAD OF WINDOWS PROVIDING 2500MM2 EQUIVALENT TO HABITABLE ROOMS AND STRICTLY ACCORDANCE WITH AD PART F.

WINDOWS TO BE FITTED TO PROVIDE A 30MM EXTERNAL REVEAL FROM THE FACE OF BRICKWORK AND TO OVERHANG CAVITY CLOSURES BY A MINIMUM OF 30MM.

DOORS: PROPRIETARY MADE. PROVIDE LEVEL THRESHOLD IN COMPLIANCE WITH BUILDING REGULATION REQUIREMENTS PART M, ACCESS FOR THE DISABLED

FRONT ENTRANCE DOORS TO BE PROVIDED WITH A LEVEL THRESHOLD AND RAMPED ACCESS IN ACCORDANCE WITH AD PART M.

DRAUGHT STRIPPING TO ALL EXTERNAL DOORS AND WINDOWS. MASTIC TO BE APPLIED BETWEEN FRAMES AND BRICKWORK INTERNALLY AND EXTERNALLY.

WINDOWS AND DOORS TO ACHIEVE A U-VALUE OF 1.6 W/M2K.

EXTENDED CILLS OF APPROPRIATE LENGTH ARE TO BE ALLOWED FOR AREAS OVER RENDER TILE HANGINGS/ STUB CILLS TO BE PROVIDED FOR WINDOWS ABOVE STONE CILL

GLAZING

ALL GLAZING TO WINDOWS BELOW 800MM AND GLAZING TO DOORS BELOW 1500MM INCLUDING SIDELIGHTS WITHIN 300MM HORIZONTALLY TO BE FITTED WITH LAMINATED SAFETY GLAZING TO BS 6206 1981. ALL HEIGHTS TO BE MEASURED FROM FINISHED FLOOR LEVEL.

GLAZING TO BE INSTALLED IN FULL ACCORDANCE WITH AD PART L OF THE BUILDING REGULATIONS. 24MM DOUBLE SEALED GLAZED UNITS WITH LOW E GLASS TO BE USED. OBSCURE GLASS TO WC AND BATHROOM WINDOWS.

SMOKE ALARMS

AUTOMATIC MAINS OPERATED SELF-CONTAINED SMOKE DETECTORS WITHIN EACH UNIT CONFORMING TO BS 5446 TO BE PROVIDED TO CEILINGS AT LOCATIONS INDICATED ON THE PLANS. ALARMS TO HAVE PERMANENTLY WIRED CONNECTION WITH BATTERY BACK UP, INTERLINKED ONE AT EACH FLOORAND PROVIDED WITH SEPARATE FUSED CIRCUIT AT DISTRIBUTION BOARD IN ACCORDANCE WITH CURRENT IEE REGULATION. ALARMS TO BE LOCATED MINIMUM 300MM CLEAR FROM ANY WALL OR FITTINGS, AND NOT LOCATED DIRECTLY ABOVE ANY RADIATORS.

HEAT ALARMS TO BE PROVIDED IN OPEN PLAN KITCHEN.

THE VENTILATION REQUIREMENTS ARE TO BE IN ACCORDANCE WITH THE BUILDING REGULATIONS 2006, WITH PARTICULAR REFERENCE TO THE FOLLOWING ITEMS:-

HABITABLE ROOMS -AN OPENING WINDOW OF 1/20TH (MINIMUM) OF FLOOR AREA, TOGETHER WITH A TRICKLE VENTILATION OPENING NOT LESS THAN 8000MM2 IN AREA TO HABITABLE ROOMS AND 4000MM2 ELSEWHERE DUCTING FROM EXTRACT FANS TO EXTERNAL AIR IS TO INCORPORATE CONDENSATION TRAPS. DUCTWORK SHALL FOLLOW THE SHORTEST PRACTICAL ROUTE TO THE EXTERNAL GRILLE WITHIN THE CONFINES OF STRUCTURAL VOIDS. ANY DEVIATIONS FROM THESE ZONES IMPACTING ON FINISHED ARCHITECTURAL SURFACE LEVELS MUST HAVE PRIOR APPROVAL KITCHEN -A COOKER HOOD WITH AN EXTRACT OF 30 LITRES PER SECOND, DUCTED TO EXTERNAL AIR WITH 15 MINUTE OVERRUN. EXTRACT FANS IN KITCHENS WITH WINDOWS NEED NOT HAVE 15 MINUTE OVERRUN BUT THE WINDOWS MUST BE OPENABLE AND HAVE TRICKLE VENTILATION OF 4000MM2.

BATHROOM -A MECHANICAL FAN WITH AN EXTRACT RATE OF 15 LITRES PER SECOND DUCTED TO EXTERNAL AIR WITH 15 MINUTE OVERRUN. WINDOWS IN BATHROOMS TO BE OPENABLE TOGETHER WITH TRICKLE VENTILATION OF 4000MM2.

UTILITY ROOM -WILL HAVE AN INTERMITTENT EXTRACT VENTILATION RATE OF AT LEAST 30L/S IN ACCORDANCE WITH APPROVED DOCUMENT F, TABLE 5.1A.

INTERNAL DWELLINGS WITH NO THROUGH VENTILATION ARE TO HAVE WHOLE HOUSE VENTILATION SYSTEMS IN ACCORDANCE WITH SPECIALIST MANUFACTURERS DESIGN, SPECIFICATION AND FULLY IN ACCORDANCE WITH THE BUILDING REGULATIONS

ELECTRICAL INSTALLATION

ELECTRICAL INSTALLATION TO BE IN ACCORDANCE WITH APPROVED DOCUMENT PART P WITH LOCATIONS OF SWITCHES, SPURS ETC IN ACCORDANCE WITH APPROVED DOCUMENT PART M. REFER TO ELECTRICAL SERVICES INSTALLATION AND DRAWINGS, WHERE APPLICABLE. .

ALL ELECTRICAL WORK REQUIRED TO MEET THE REQUIREMENTS OF PART P, MUST BE DESIGNED, INSTALLED, INSPECTED AND TESTED BY A PERSON COMPETENT TO DO SO. PRIOR TO COMPLETION THE COUNCIL SHOULD BE SATISFIED THAT PART P HAS BEEN COMPLIED WITH. THIS MAY REQUIRE AN APPROPRIATE BS 7671 ELECTRICAL INSTALLATION CERTIFICATE TO BE ISSUED FOR THE WORK BY A PERSON COMETENT TO DO SO.

RAINWATER GOODS

115MM WIDE PVC-U OR TO MATCH WITH THE EXISTING HALF ROUND DEEP FLOW GUTTERS LAID TO FALLS TO DISCHARGE INTO 63MM DIA. UPVC RAINWATER DOWNPIPES. RAINWATER DRAINAGE DESIGN TO BE IN ACCORDANCE WITH APPROVED DOCUMENT H AND VERIFIED BY THE SUPPLIER.

ALL GUTTERS ADJACENT TO TREES TO BE PROVIDED WITH LEAVES GUARD.

LINTELS

LINTELS SIMILAR AS INDICATED IN ARCHITECTURAL DRAWINGS TO BE CONFIRMED AND DESIGNED BY STRUCTURAL ENGINEERS. GENERALLY IG GALVANIZED PRESSED METAL LINTELS OR SIMILAR WITH INTEGRAL INSULATION AND CAVITY TRAYS OVER, SIZE, TYPE, END BEARING & INSULATION TO MANUFACTURERS RECOMMENDATIONS TO SUPPORT ALL OPENINGS IN ALL INTERNAL & EXTERNAL LOAD BEARING WALLS. PROVIDE CONTINUOUS DPC CAVITY TRAYS BUILT OVER ALL LINTELS IN EXTERNAL CAVITY WALL. CAVITY TRAYS JOINED AND LAPPED MINIMUM 100MM AND SEALED BY APPROPRIATE CONTACT ADHESIVE. ALL LINTELS TO HAVE A MIN END BEARING OF 150MM EACH SIDE. PROVIDE MIN. 2 NO WEEP HOLES PER LINTEL AND AT 450MM CENTRES ABOVE LINTELS.

STRUCTURAL STEELWORK

STRUCTURAL STEEL WORK TO BS 5950.

ALL STEELWORK TO BE PAINTED WITH RED OXIDE PRIMER OR EQUIVALENT

STEELS WITHIN FLOOR CONSTRUCTION AND SUPPORTING ANY STRUCTURE TO ACHIEVE A MIN. 30 MIN. FIRE RESISTANCE BY USING INTESUMENT PAINT OR 2 LAYERS OF FIRE RESISTANT BOARDS.

ALL EXTERNAL STEEL AND METAL WORK TO BE PAINTED GLASS BLACK.

TIMBER TREATMENT

ALL SOFTWOOD TIMBERS TO BE ADEQUATELY TREATED TO PREVENT INFESTATION BY THE HOUSE LONGHORN BEETLE IN ACCORDANCE WITH CURRENT BUILDING REGULATIONS. ALL STRUCTURAL TIMBERS, EXTERNAL FRAMES, WINDOW & SOFTWOOD CLADDING SHALL BE TREATED AGAINST FUNGAL ATTACK. ALL STRUCTURAL TIMBER TO BE MARKED DRY OR KD AND TO HAVE STRESS GRADE MARK.

ALL SANITARY PIPEWORK TO BE IN ACCORDANCE WITH BS 5572 : 1994 AND THE BUILDING REGULATIONS.

SOIL AND WASTE TO BE A SINGLE STACK DRAINAGE SYSTEM TO BS 5572:1978, CONNECTING VIA A SUITABLE ADAPTER TO THE UNDERGROUND DRAINAGE SYSTEM.

DEPTH TO INVERT TO BE MINIMUM 450MM AT CONNECTIONS TO SVP.

INTERNAL VENT PIPES -REDUCE TO 75MM DIAMETER ABOVE TOPMOST CONNECTION AND TERMINATE WITH AN AIR ADMITTANCE VALVE IN ROOF SPACE WHERE POSSIBLE, OTHERWISE FIT AN AIR VENT IN THE BOX-OUT. DRAINAGE SCHEMES TO BE DESIGNED TO MEET THE REQUIREMENTS OF BUILDING REGULATIONS APPROVED DOCUMENT H, IN ACCORDANCE WITH THE INSTITUTE OF PLUMBING ENGINEERS ENGINEERING SERVICES DESIGN GUIDE AND IN ACCORDANCE WITH MANUFACTURERS INSTRUCTIONS AND BBA CERTIFICATION.

ALL WASTES TO HAVE 75MM DEEP SEAL TRAPS. ALL APPLIANCE TRAPS TO BE EITHER REMOVABLE OR FITTED WITH CLEANING EYE FACILITY. SVP -100MM DIA PVCU TERMINATED AT PROPRIETARY ROOF VENT TILE 900MM ABOVE ANY WINDOW OPENING, OR DURGO AIR ADMITTANCE VALVE, WHERE INDICATED.

BRANCH WASTES TO BE SVP CONNECTED EITHER ABOVE CENTRE LINE OR 200MM BELOW CENTRE LINE OF WC SOIL CONNECTION. ROCKER PIPES USED WHERE DRAINS PASS THROUGH EXTERNAL WALLS. UNLESS OTHERWISE INDICATED -BATH, SINK AND SHOWER -40MM DIA. UP TO 3M MAX. LENGTH 50MM DIA. FROM 3M -4M MAX. LENGTH. WASH BASIN, BIDET -32MM DIA. UP TO 1.7M MAX. LENGTH 40MM DIA. FROM 1.7M -3M LENGTH .

100 NOMINAL DIAMETER, SALT GLAZED WARE, SUPERSLEVE OR SIMILAR OR EQUAL APPROVED. TOP RUNS MINIMUM GRADIENT OF 1:40 WITH INSPECTION CHAMBERS AT MAXIMUM 12M INTERVALS. PIPEWORK BELOW BUILDINGS TO BE ENCASED IN 100 THICK GRANULAR OR OTHER FLEXIBLE FILLING IN ACCORDANCE WITH THE MANUFACTURER'S RECOMMENDATIONS. SEE SITE DRAINAGE PLAN FOR DRAINAGE RUNS, GRADIENTS AND MANHOLE INVERTS. DRAINS PASSING THROUGH WALLS TO HAVE 50MM CLEARANCE ALL ROUND WITH LINTEL OVER.

SERVICES

SEAL AT FLOOR AND CEILING LEVELS THE BOXING-IN OF CONCEALED SERVICES. SEAL AROUND ALL PIPED SERVICES WHERE THEY PENETRATE OR PROJECT INTO HOLLOW CONSTRUCTIONS OR VOIDS.

GENERAL

THESE NOTES DO NOT COMPRISE A FULL SPECIFICATION. THEY ARE FOR GENERAL GUIDANCE ONLY AND THEIR PRIMARY FUNCTION IS TO ASSIST LOCAL AUTHORITY OFFICERS IN DETERMINING BUILDING REGULATION APPLICATIONS.

WHERE CLARIFICATION IS CONSIDERED NECESSARY, REFERENCE SHOULD BE MADE TO THE ARCHITECTURAL SERVICES CONSULTANT.

THE BUILDER WILL BE RESPONSIBLE FOR ENSURING THAT ALL BUILDING WORK CARRIED OUT BY THEM OR UNDER THEIR INSTRUCTIONS COMPLIES WITH THE RELEVANT CURRENT REGULATIONS, BRITISH STANDARDS AND CODES OF PRACTICE, BYE-LAWS AND MANUFACTURERS' INSTRUCTIONS.

THE U-VALUES QUOTED ABOVE ASSUME THAT A CALCULATION UNDER THE GOVERNMENT'S STANDARD ASSESSMENT PROCEDURE. BETTER VALUES MAY BE REQUIRED BY THE BUILDING REGULATION AUTHORITY TO IMPROVE THE ENERGY PERFORMANCE.

THE BUILDER WILL BE RESPONSIBLE FOR ENSURING THAT ALL BUILDING WORK CARRIED OUT BY THEM OR UNDER THEIR INSTRUCTIONS COMPLIES WITH THE RELEVANT CURRENT REGULATIONS, BRITISH STANDARDS AND CODES OF PRACTICE, BYE-LAWS AND MANUFACTURERS' INSTRUCTIONS.

THE U-VALUES QUOTED ABOVE ASSUME THAT A CALCULATION UNDER THE GOVERNMENT'S STANDARD ASSESSMENT PROCEDURE. BETTER VALUES MAY BE REQUIRED BY THE BUILDING REGULATION AUTHORITY TO IMPROVE THE ENERGY PERFORMANCE.

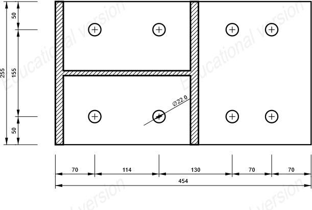
Structural Drawing Set Main House

Ground FloorB0.01UKC254x254x7364530.06 m³-127-127

First FloorB1.10UKB254x146x3745000.02 m³4040

First FloorB1.11UKB254x146x4341520.02 m³4040

First FloorB1.12UKB203x133x3065110.02 m³4040

First FloorB1.13UKC254x254x7364510.06 m³4040

First FloorB1.15UKB203x102x2335660.01 m³00

First FloorB1.16UKB203x102x2335660.01 m³00

First FloorB.17UKC203x203x4624390.01 m³00 LoftTie

m³-23-23

Ground FloorB0.01UKC254x254x7364530.06 m³-127-127

First FloorB1.10UKB254x146x3745000.02 m³4040

First FloorB1.11UKB254x146x4341520.02 m³4040

First FloorB1.12UKB203x133x3065110.02 m³4040

First FloorB1.13UKC254x254x7364510.06 m³4040

First FloorB1.15UKB203x102x2335660.01 m³00

First FloorB1.16UKB203x102x2335660.01 m³00

First FloorB.17UKC203x203x4624390.01 m³00

LoftTie beam B2.20 UKC152x152x2326810.01 m³-23-23 Grand total: 9

Mittar Choudhry

Project Engineer

ProjectManager

STRUCTURAL CALCULATIONS

Purpose/Description

Mittar Choudhry

INTRODUCTION

Thefollowing calculation submission report demonstrates the Structural Engineering principals used inthe design of the Project with the Building Regulations 2000 StructureApproved Document A.

Codesof Practice

TheDesignof TheStructurewillbecarried outin accordancewiththefollowingcodesof practice

BS6399 Part 1 (1996) Dead and ImposedLoads Loading

BS8110 Concrete Part 2 (1997) Wind Loads

BS5258

BS5950 Steelwork Timber

BS5628 Masonry

DESIGN PHILOSOPHY

All Structural Members are designed to be capable of withstanding all the applied loadings

Document(A)-throughprovidingsufficientVerticalLateralRestrainttowalls,Lateral resistanceagainstDisproportionateCollapseistobeachieved-accordingtoApproved maximumultimatestressesordeflection.BuildingRobustnessforLateralStabilityand onerouscombinationsofdead,imposedandwindloadstendingtoproduceeither failure,lossoffunction,damageordurabilityproblems.Theyaretosupportthemost duringconstruction,operationandmaintenanceofthebuildingwithoutanydistress,

SupportbyFloorsandRoof,Wallties,RestrainStraps,etc.,alongwithmakingsureof

connections ductility to dissipate energy arising from unexpected accidental event.

LOADS

Material Densities

To be calculated as required. Densities of Typical materials are as follows:

Loads Superimposed and Imposed Loads

Mittar Choudhry

LOADING BREAK DOWN

FLAT ROOF (DEAD LOAD)

 3 Layers Bitumen Roofing Felt

 Timber Frame + 19mm Plywood

0.15 kN/m2

0.20 kN/m2

 Ceiling Finish 0.17 kN/m2

 100mm Thick Hard Insulation

PITCHED ROOF (DEAD LOAD)

 Roof Tiles

Total 0.08 kN/m2 0.60 kN/m2

0.40 kN/m2

 Timber Rafters + Battens 0.20 kN/m2

 Plasterboard Finish + Insulation

TIMBER FLOOR (DEAD LOAD)

 Timber Boarding

 Timber Joists

 Insulation (18mm)

 Ceiling (Plasterboard)

 Services

Load Combinations

0.20 kN/m2

Total 0.80 kN/m2

0.07 kN/m2 0.14 kN/m2

0.06 kN/m2

0.13 kN/m2

0.10 kN/m2

Total 0.50kN/m2

Loads are combined in all valid combinations of adverse and beneficial effects to obtain the most onerous load condition. The Load combinations used are summarized below.

1.4 DL + 1.6 LL

1.2 DL + 1.2 LL + 1.2 WL

0.90 DL + 1.4 WL

Building Regulation Approval

The Owners of The Property are advised that an approval of the Calculations and Drawings by the Local Authority Building Control should be obtained prior to any ordering of material or fabrication. No liability is accepted for any changes that may be required as a result of work having commenced prior to such an approval having been obtained.

Important Notes For Builder

BEAM SPANS SHOWN WITHIN THIS DOCUMENT ARE TO BE USED FOR CALCULATION PURPOSES ONLY. DO NOT ORDER ANY STEEL OR TIMBER WORKS BASED ON THESE DIMENSIONS.

1. All Spans dimensions shown within this document have been taken from information supplied by the architect or client. We trust this information to be correct, but all spans dimensions should be double-checked on-site by the contractor/fabricator prior to construction or ordering material. Any discrepancies are to be reported to the engineer IMMEDIATELY.

2. These calculations are to be used in conjunction with all relevant Architects and Structural Engineers’ drawings and specifications.

3. The Planning and installation of all temporary works and the stability of the structure during construction is the sole responsibility of the contractor.

4. All Steel Beams supported on Block Walls are to sit on spreader plates or padstones specified. If a padstone is not specified, report back to the Structural Engineer IMMEDIATELY.

Tableof Contents

Section MittarChoudhry Sheet no./rev. 5/00

Calc. by M.Salam Date 17/08/2021 Chk'd by Yasser

PITCHED ROOF SNOWLOADING (BS6399)

SNOW LOADING TO BS6399:PART 3:1988

Site location

Locationofsite; London

Sitealtitude; A= 60m

Calculate sitesnow load

From BS6399:Part 3: 1988 - Figure1. Basicsnow load on theground

Basicsnowload; sb = 0.40kN/m2 salt =0.1  s

Sitesnowload;

17/08/2021 App'd by Yasser Date 17/08/2021

+(0.09kN/m2)=0.13kN/m2

1

UniformloadingAsymmetricloading

1

Roof geometry

Rooftype; Pitched

Distanceonplanfromguttertoridge; b= 4.700m

Angleofpitchofroof;  = 36.0deg

Calculate uniform snow load

From BS6399:Part 3: 1988 - Figure3. Snow load shape coefficients for pitched roofs

Snowloadshapecoefficient; 1 = 0.8  [(60deg - ) / 30deg] = 0.64

Uniformroofsnowload; sd1 = 1  s0 = 0.26kN/m2

Calculate asymmetric snow load

From BS6399:Part 3: 1988 - Figure3. Snow load shape coefficients for pitched roofs

Snowloadshapecoefficient; 1 = 1.2  [(60deg - ) / 30deg] = 0.96

Asymmetricroofsnowload; sd1 = 1  s0 = 0.38kN/m2

Snow sliding down roof

Maximumuniformsnowloadonroof; sd_max = 0.38kN/m2

Forcefromslidingsnowload; Fs =sd_max  b  sin()= 1.06 kN/m

BS6399:Part3:1988 Cl.5

BS6399:Part3:1988 Cl.5

BS6399:Part3:1988 Cl.8

Section Mittar Choudhry

Calc. by M.Salam Date 17/08/2021

FLAT ROOF SNOWLOADING (BS6399)

SNOW LOADING TO BS6399:PART 3:1988

Site location

Locationof site; London

Site altitude; A = 60m

Calculate sitesnow load

Chk'd by Yasser Date 17/08/2021

From BS6399:Part 3: 1988 - Figure1. Basicsnow load on theground

Basic snow load; sb = 0.40kN/m2 salt = 0.1  sb + (0.09 kN/m2) =0.13kN/m2

Site snow load;

Uniformloading

Sheet no./rev. 6 / 00

App'd by Yasser Date 17/08/2021

Roof geometry

Roof type; Flat

Angleof pitchof roof;  = 0.0 deg

Calculate uniform snow load

From BS6399:Part 3: 1988 - Figure2. Snow load shape coefficients for flat or monopitch roofs

Snowloadshape coefficient; 1 = 0.80

Uniform roof snow load; sd1 = 1  s0 = 0.32kN/m2

Section Mittar Choudhry

Calc. by M.Salam Date 17/08/2021

B1.10 UKB 254X146X37 (BS5950)

STEEL BEAM ANALYSIS& DESIGN(BS5950)

Chk'd by Yasser Date 17/08/2021

In accordancewith BS5950-1:2000 incorporating Corrigendum No.1

Sheet no./rev. 7 / 00

App'd by Yasser Date 17/08/2021

Section MittarChoudhry Sheet no./rev. 8/00

Calc. by M.Salam Date 17/08/2021

Support conditions

SupportA

SupportB

Applied loading Beamloads

Load combinations

Analysisresults

Chk'd by Yasser Date 17/08/2021

App'd by Yasser Date 17/08/2021

Verticallyrestrained Rotationallyfree

Verticallyrestrained Rotationallyfree

SelfWeight-Deadselfweightofbeam  1 WallLoad-DeadfullUDL3.15kN/m

FlatRoofDeadLoad-DeadpartialUDL1.26kN/mfrom0mmto3000 mm

FlatRoofImposedLoad-ImposedpartialUDL1.26kN/mfrom0mm to3000mm

FlatRoofSnowLoad-SnowpartialUDL0.68kN/mfrom0mmto 3000mm

FlatRoofDeadLoad-DeadpartialUDL0.36kN/mfrom3000mmto 4400mm

FlatRoofImposedLoad-ImposedpartialUDL0.36kN/mfrom3000 mmto4400mm

FlatRoofSnowLoad-SnowpartialUDL0.2kN/mfrom3000mmto 4400mm

B1.11Reaction-Deadpointload53.3kNat3000mm

B1.11Reaction-Imposedpointload9.2kNat3000mm

B1.11Reaction-Snowpointload2kNat3000mm

Section Mittar Choudhry

Calc. by M.Salam

Date 17/08/2021

Chk'd by Yasser

Unfactoreddeadloadreaction at support A; RA_Dead = 27.3kN

Unfactoredimposedload reaction at support A; RA_Imposed = 5.5kN

Unfactoredsnow load reaction at support A; RA_Snow = 2kN

Date 17/08/2021

Sheet no./rev. 9 / 00

App'd by Yasser Date 17/08/2021

Maximum reaction at support B; RB_max = 79.2 kN; RB_min = 79.2 kN

Unfactoreddeadloadreaction at support B; RB_Dead = 45.8kN

Unfactoredimposedload reaction at support B; RB_Imposed = 8 kN

Unfactoredsnow load reaction at support B; RB_Snow = 2.3 kN

Section details

Sectiontype; UKB254x146x37 (Tata Steel Advance)

Steel grade; S275

Fromtable9: Design strength py

Thickness of element; max(T, t) = 10.9mm

Design strength; py = 275 N/mm2

Modulus of elasticity; E = 205000 N/mm2

Lateral restraint Span 1 has full lateral restraint

Effective length factors

Effectivelength factor inmajor axis; Kx = 1.00

Effectivelength factor inminor axis; Ky = 1.00

Effectivelength factor for lateral-torsional buckling; KLT.A = 1.00; K

Classification of crosssections - Section 3.5

Internal compression parts - Table 11

Depth of section; d = 219mm

/ t = 34.8

<= 80

Outstandflanges - Table 11

Widthof section; b= B/ 2 = 73.2mm b/ T = 6.7

1.00

; Class 1 plastic

; Class 1 plastic

Section is class 1 plastic

Section MittarChoudhry

Calc. by M.Salam

Date 17/08/2021

Chk'd by Yasser

Date 17/08/2021

Sheet no./rev. 10/00

App'd by Yasser Date 17/08/2021

Shear capacity- Section 4.2.3

Designshearforce; Fv =max(abs(Vmax),abs(Vmin))= 79.2 kN d/t<70  

Web does not need to be checked for shear buckling

Sheararea; Av =t  D= 1613 mm2

Designshearresistance; Pv =0.6  py  Av = 266.1kN

PASS - Design shear resistance exceeds design shear force

Moment capacity- Section 4.2.5

Designbendingmoment; M=max(abs(Ms1_max),abs(Ms1_min))= 104.8 kNm

Momentcapacitylowshear-cl.4.2.5.2; Mc =min(py  Sxx,1.2  py  Zxx)=132.9 kNm

PASS - Moment capacity exceeds design bending moment

Check vertical deflection - Section 2.5.2

Considerdeflectionduetodead,imposedandsnowloads

Limitingdeflection;; lim =Ls1 /360= 12.222 mm

Maximumdeflectionspan1;  =max(abs(max),abs(min))=11.057 mm

PASS - Maximum deflection does not exceed deflection limit ;

Section MittarChoudhry Sheet no./rev. 11/00

Calc. by M.Salam Date 17/08/2021

B1.11 UKB 254X146X43 (BS5950)

STEEL BEAM ANALYSIS& DESIGN(BS5950)

Chk'd by Yasser Date 17/08/2021

In accordancewith BS5950-1:2000 incorporating Corrigendum No.1

App'd by Yasser Date 17/08/2021

Section MittarChoudhry Sheet no./rev. 12/00

Calc. by M.Salam Date 17/08/2021

Support conditions

SupportA

SupportB

Applied loading Beamloads

Chk'd by Yasser Date 17/08/2021

App'd by Yasser Date 17/08/2021

Verticallyrestrained Rotationallyfree

Verticallyrestrained Rotationallyfree

SelfWeight-Deadselfweightofbeam  1

WallLoad-DeadpartialUDL13.05kN/mfrom0mmto2900mm

PitchedRoofDeadLoad-DeadpartialVDL2.24kN/mat0mmto0 kN/mat2900mm

PitchedRoofImposedLoad-ImposedpartialVDL1.68kN/mat0mm to0kN/mat2900mm

PitchedRoofSnowLoad-SnowpartialVDL0.73kN/mat0mmto0 kN/mat2900mm

B1.12Reaction-Deadpointload55.9kNat2900mm

B1.12Reaction-Imposedpointload12.5kNat2900mm

B1.12Reaction-Snowpointload2.6kNat2900mm

Load combinations

Analysisresults

UnfactoreddeadloadreactionatsupportA; RA_Dead = 45.5kN

UnfactoredimposedloadreactionatsupportA; RA_Imposed = 5.7kN

UnfactoredsnowloadreactionatsupportA; RA_Snow = 1.6 kN

MaximumreactionatsupportB; RB_max = 91.4 kN; RB_min = 91.4 kN

UnfactoreddeadloadreactionatsupportB; RB_Dead = 53.3kN

UnfactoredimposedloadreactionatsupportB; RB_Imposed = 9.2kN

Section MittarChoudhry

Calc. by M.Salam

Date 17/08/2021

Chk'd by Yasser

UnfactoredsnowloadreactionatsupportB; RB_Snow = 2kN

Section details

Date 17/08/2021

Sheet no./rev. 13/00

App'd by Yasser Date 17/08/2021

Sectiontype; UKB254x146x43 (Tata Steel Advance)

Steelgrade; S275

Fromtable9: Design strength py

Thicknessofelement; max(T,t)= 12.7mm

Designstrength; py = 275 N/mm2

Modulusofelasticity; E= 205000 N/mm2

Lateral restraint

Effective length factors

Span1hasfulllateralrestraint

Effectivelengthfactorinmajoraxis; Kx = 1.00

Effectivelengthfactorinminoraxis; Ky = 1.00

Effectivelengthfactorforlateral-torsionalbuckling;KLT.A = 1.00; KLT.B = 1.00;

Classification of crosssections - Section 3.5

Internal compression parts - Table 11

= [275N/mm2 /py]= 1.00

Depthofsection; d= 219mm d/t=30.4   <=80  ; Class1plastic

Outstandflanges - Table 11

Widthofsection; b=B/2= 73.7mm b/T=5.8   <=9  ; Class1plastic

Section is class 1 plastic

Shear capacity- Section 4.2.3

Designshearforce; Fv =max(abs(Vmax),abs(Vmin))= 91.4 kN d/t<70   Web does not need to be checked for shear buckling

Sheararea; Av =t  D= 1869 mm2

Designshearresistance; Pv =0.6  py  Av = 308.4kN

Section MittarChoudhry

Calc. by M.Salam

Moment capacity- Section 4.2.5

Date 17/08/2021

Chk'd by Yasser

Date 17/08/2021

Sheet no./rev. 14/00

App'd by Yasser Date 17/08/2021

PASS - Design shear resistance exceeds design shear force

Designbendingmoment; M=max(abs(Ms1_max),abs(Ms1_min))= 118.3 kNm

Momentcapacitylowshear-cl.4.2.5.2; Mc =min(py  Sxx,1.2  py  Zxx)=155.7 kNm

Check vertical deflection - Section 2.5.2

Considerdeflectionduetodead,imposedandsnowloads

Limitingdeflection;;

PASS - Moment capacity exceeds design bending moment

lim =Ls1 /360= 11.667 mm

Maximumdeflectionspan1;  =max(abs(max),abs(min))=10.304 mm

PASS - Maximum deflection does not exceed deflection limit ;

Section MittarChoudhry Sheet no./rev. 15/00

Calc. by M.Salam Date 17/08/2021 Chk'd by Yasser Date 17/08/2021 App'd by Yasser Date 17/08/2021

B1.12 UKC254X254X89 (BS5950)

STEEL BEAM ANALYSIS& DESIGN(BS5950)

In accordancewith BS5950-1:2000 incorporating Corrigendum No.1

Support conditions

SupportA

SupportB

Applied loading Beamloads

Section MittarChoudhry Sheet no./rev. 16/00

Calc.

Verticallyrestrained Rotationallyfree

Verticallyrestrained Rotationallyfree

SelfWeight-Deadselfweightofbeam  1 WallLoad-DeadfullUDL13.05kN/m

PitchedRoofDeadLoad-DeadpartialVDL0kN/mat0mmto2.96 kN/mat3200mm

PitchedRoofImposedLoad-ImposedpartialVDL0kN/mat0mmto 2.22kN/mat3200mm

PitchedRoofSnowLoad-SnowpartialVDL0kN/mat0mmto0.97 kN/mat3200mm

PitchedRoofDeadLoad-DeadpartialVDL2.96kN/mat3200mmto 0kN/mat6400mm

PitchedRoofImposedLoad-ImposedpartialVDL2.22kN/mat3200 mmto0kN/mat6400mm

PitchedRoofSnowLoad-SnowpartialVDL0.97kN/mat3200mmto 0kN/mat6400mm

FirstFloorDeadLoad-DeadfullUDL1.45kN/m

FirstFloorDeadLoad-ImposedfullUDL2.18kN/m

FlatRoofDeadLoad-DeadpartialUDL0.36kN/mfrom0mmto1700 mm

FlatRoofImposedLoad-ImposedpartialUDL0.36kN/mfrom0mm to1700mm

FlatRoofSnowLoad-SnowpartialUDL0.2kN/mfrom0mmto1700 mm

FlatRoofDeadLoad-DeadpartialUDL0.83kN/mfrom1700mmto 6400mm

FlatRoofImposedLoad-ImposedpartialUDL0.83kN/mfrom1700 mmto6400mm

FlatRoofSnowLoad-SnowpartialUDL0.45kN/mfrom1700mmto 6400mm

Load combinations

Section MittarChoudhry

Calc.

M.Salam

Sheet no./rev. 17/00

Analysisresults

Maximummoment; Mmax = 171.5 kNm; Mmin = 0kNm

Maximumshear; Vmax = 100.9kN; Vmin = -102.9kN

Deflection; max = 17.5mm; min = 0 mm

MaximumreactionatsupportA; RA_max = 100.9kN; RA_min = 100.9 kN

UnfactoreddeadloadreactionatsupportA; RA_Dead = 55.9kN

UnfactoredimposedloadreactionatsupportA; RA_Imposed = 12.5 kN

UnfactoredsnowloadreactionatsupportA; RA_Snow = 2.6 kN

MaximumreactionatsupportB; RB_max = 102.9kN; RB_min = 102.9 kN

UnfactoreddeadloadreactionatsupportB; RB_Dead = 56.5kN

UnfactoredimposedloadreactionatsupportB; RB_Imposed = 13.1 kN

UnfactoredsnowloadreactionatsupportB; RB_Snow = 2.9 kN

Section details

Sectiontype; UKC254x254x89 (Tata Steel Advance)

Steelgrade; S275

Fromtable9: Design strength py

Thicknessofelement; max(T,t)= 17.3mm

Designstrength; py = 265 N/mm2

Modulusofelasticity; E= 205000 N/mm2

Lateral restraint Span1hasfulllateralrestraint

Effective length factors

Effectivelengthfactorinmajoraxis; Kx = 1.00

Effectivelengthfactorinminoraxis; Ky = 1.00

Effectivelengthfactorforlateral-torsionalbuckling;KLT.A = 1.00; KLT.B = 1.00;

Section MittarChoudhry

Calc. by M.Salam

Date 17/08/2021

Chk'd by Yasser

Classification of crosssections - Section 3.5  = [275N/mm2 /py]= 1.02

Internal compression parts - Table 11

Depthofsection; d= 200.3mm

Outstandflanges - Table 11

Date 17/08/2021

Sheet no./rev. 18/00

App'd by Yasser Date 17/08/2021

d/t=19.1   <=80  ; Class1plastic

Widthofsection; b=B/2= 128.2 mm

b/T=7.3   <=9  ; Class1plastic

Section is class 1 plastic

Shear capacity- Section 4.2.3

Designshearforce; Fv =max(abs(Vmax),abs(Vmin))= 102.9 kN d/t<70  

Web does not need to be checked for shear buckling

Sheararea; Av =t  D= 2681 mm2

Designshearresistance; Pv =0.6  py  Av = 426.3kN

PASS - Design shear resistance exceeds design shear force

Moment capacity- Section 4.2.5

Designbendingmoment; M=max(abs(Ms1_max),abs(Ms1_min))= 171.5 kNm

Momentcapacitylowshear-cl.4.2.5.2; Mc =min(py  Sxx,1.2  py  Zxx)=324.3 kNm

PASS - Moment capacity exceeds design bending moment

Check vertical deflection - Section 2.5.2

Considerdeflectionduetodead,imposedandsnowloads

Limitingdeflection;; lim =Ls1 /360= 17.778 mm

Maximumdeflectionspan1;  =max(abs(max),abs(min))=17.482 mm

PASS - Maximum deflection does not exceed deflection limit ;

Section MittarChoudhry Sheet no./rev. 19/00

Calc. by M.Salam Date 17/08/2021 Chk'd by Yasser Date 17/08/2021 App'd by Yasser Date 17/08/2021

B1.15 - B1.16 UKB203X102X23 (BS5950)

STEEL BEAM ANALYSIS& DESIGN(BS5950)

In accordancewith BS5950-1:2000 incorporating Corrigendum No.1

Section MittarChoudhry Sheet no./rev. 20/00

Calc. by M.Salam Date 17/08/2021

Support conditions

SupportA

SupportB

Applied loading Beamloads

App'd by Yasser

Verticallyrestrained Rotationallyfree

Verticallyrestrained Rotationallyfree

SelfWeight-Deadselfweightofbeam  1

WallLoad-DeadfullUDL13.05kN/m

MainPitchedRoofDeadLoad-DeadfullUDL3.28kN/m

MainPitchedRoofImposedLoad-ImposedfullUDL2.46kN/m

MainPitchedRoofSnowLoad-SnowfullUDL1.07kN/m

FirstFloorPitchedRoofDeadLoad-DeadfullUDL0.96kN/m

FirstFloorPitchedRoofImposedLoad-ImposedfullUDL0.72kN/m

FirstFloorPitchedRoofSnowLoad-SnowfullUDL0.32kN/m

Load combinations Loadcombination1

Analysisresults

Maximummoment; Mmax = 12.7 kNm; Mmin = 0kNm

UnfactoreddeadloadreactionatsupportA; RA_Dead = 16 kN

UnfactoredimposedloadreactionatsupportA; RA_Imposed = 2.9kN

UnfactoredsnowloadreactionatsupportA; RA_Snow = 1.3 kN

MaximumreactionatsupportB; RB_max = 28.2 kN; RB_min = 28.2 kN

UnfactoreddeadloadreactionatsupportB; RB_Dead = 16 kN

UnfactoredimposedloadreactionatsupportB; RB_Imposed = 2.9kN

UnfactoredsnowloadreactionatsupportB; RB_Snow = 1.3 kN

Section details

Sectiontype; 2x UKB 203x102x23 (Tata Steel Advance)

Section MittarChoudhry

Calc. by M.Salam

Date 17/08/2021

Steelgrade; S275

Fromtable9: Design strength py

Thicknessofelement;

Chk'd by Yasser

max(T,t)= 9.3 mm

Designstrength; py = 275 N/mm2

Modulusofelasticity; E= 205000 N/mm2

Date 17/08/2021

Lateral restraint

Effective length factors

Span1hasfulllateralrestraint

Effectivelengthfactorinmajoraxis; Kx = 1.00

Effectivelengthfactorinminoraxis; Ky = 1.00

Effectivelengthfactorforlateral-torsionalbuckling;KLT.A = 1.00; KLT.B = 1.00;

Classification of crosssections - Section 3.5

Internal compression parts - Table 11

= [275N/mm2 /py]= 1.00

Depthofsection; d= 169.4mm d/t=31.4

<=80

Outstandflanges - Table 11

Widthofsection; b=B/2= 50.9mm b/T=5.5

Shear capacity- Section 4.2.3

Sheet no./rev. 21/00

App'd by Yasser Date 17/08/2021

; Class1plastic

; Class1plastic

Section is class 1 plastic

Designshearforce; Fv =max(abs(Vmax),abs(Vmin))= 28.2 kN d/t<70 

Web does not need to be checked for shear buckling

Sheararea; Av =t  D= 1097 mm2

Designshearresistance;

Moment capacity- Section 4.2.5

362.1 kN

PASS - Design shear resistance exceeds design shear force

Designbendingmoment; M=max(abs(Ms1_max),abs(Ms1_min))= 12.7kNm

Momentcapacitylowshear-cl.4.2.5.2; Mc =N  min(py  Sxx,1.2  py  Zxx)= 128.7 kNm

Section MittarChoudhry

Calc. by M.Salam

Date 17/08/2021

Chk'd by Yasser

Date 17/08/2021

Sheet no./rev. 22/00

App'd by Yasser Date 17/08/2021

PASS - Moment capacity exceeds design bending moment

Check vertical deflection - Section 2.5.2

Considerdeflectionduetodead,imposedandsnowloads

Limitingdeflection;; lim =Ls1 /360= 5mm

Maximumdeflectionspan1;  =max(abs(max),abs(min))=0.353 mm

PASS - Maximum deflection does not exceed deflection limit ;

Section MittarChoudhry

no./rev. 23/00

Calc. by M.Salam Date 17/08/2021 Chk'd by Yasser Date 17/08/2021 App'd by Yasser Date 17/08/2021

B2.20 UKC152X152X23 (BS5950)

STEEL BEAM ANALYSIS& DESIGN(BS5950)

In accordancewith BS5950-1:2000 incorporating Corrigendum No.1

Section MittarChoudhry Sheet no./rev. 24/00

Calc. by M.Salam Date 17/08/2021

Support conditions

SupportA

SupportB

Applied loading Beamloads

Chk'd by Yasser Date 17/08/2021

App'd by Yasser

Verticallyrestrained Rotationallyfree

Verticallyrestrained Rotationallyfree

SelfWeight-Deadselfweightofbeam  1 WallLoad-DeadfullUDL3.6kN/m CeillingLoad-DeadfullUDL1.68kN/m PitchedRoofDeadLoad-DeadfullUDL3.68kN/m PitchedRoofImposedLoad-ImposedfullUDL2.76kN/m PitchedRoofSnowLoad-SnowfullUDL1.2kN/m

Load combinations

Loadcombination1

Analysisresults Maximummoment;

UnfactoreddeadloadreactionatsupportA; RA_Dead = 11.5kN

UnfactoredimposedloadreactionatsupportA; RA_Imposed = 3.5kN

UnfactoredsnowloadreactionatsupportA; RA_Snow = 1.5 kN

MaximumreactionatsupportB; RB_max = 23.1 kN; RB_min = 23.1 kN

UnfactoreddeadloadreactionatsupportB; RB_Dead = 11.5kN

UnfactoredimposedloadreactionatsupportB; RB_Imposed = 3.5kN

UnfactoredsnowloadreactionatsupportB; RB_Snow = 1.5 kN

Section details

Sectiontype;

UKC152x152x23 (Tata Steel Advance)

Steelgrade; S275

Fromtable9: Design strength py

Thicknessofelement;

Section MittarChoudhry

Calc. by M.Salam

Date 17/08/2021

Chk'd by Yasser

max(T,t)= 6.8 mm

Designstrength; py = 275 N/mm2

Modulusofelasticity; E= 205000 N/mm2

Date 17/08/2021

Sheet no./rev. 25/00

App'd by Yasser Date 17/08/2021

Lateral restraint

Effective length factors

Span1hasfulllateralrestraint

Effectivelengthfactorinmajoraxis; Kx = 1.00

Effectivelengthfactorinminoraxis; Ky = 1.00

Effectivelengthfactorforlateral-torsionalbuckling;KLT.A = 1.00; KLT.B = 1.00;

Classification of crosssections - Section 3.5  = [275N/mm2 /py]= 1.00

Internal compression parts - Table 11

Depthofsection; d= 123.6mm

<=80

; Class1plastic

Outstandflanges - Table 11

Widthofsection; b=B/2= 76.1mm b/T=11.2   <=15  ; Class3semi-compact Section is class 3 semi-compact

Shear capacity- Section 4.2.3

Designshearforce; Fv =max(abs(Vmax),abs(Vmin))= 23.1 kN d/t<70   Web does not need to be checked for shear buckling

Sheararea; Av =t  D= 884mm2

Designshearresistance; Pv =0.6  py  Av = 145.8kN

PASS - Design shear resistance exceeds design shear force

Moment capacity- Section 4.2.5

Designbendingmoment; M=max(abs(Ms1_max),abs(Ms1_min))= 14.4kNm

Effective plasticmodulus- Section 3.5.6

Limitingvalueforclass2compactflange; 2f =10   = 10

Section MittarChoudhry

Calc. by M.Salam Date 17/08/2021

Limitingvalueforclass3semi-compactflange; 3f =15

Limitingvalueforclass2compactweb;

Chk'd by Yasser Date 17/08/2021

Limitingvalueforclass3semi-compactweb; 3w =120   = 120

Effectiveplasticmodulus-cl.3.5.6.2 Seff =min(Zxx +(Sxx -Zxx)  min([((3w /(d/t))

Momentcapacitylowshear-cl.4.2.5.2;

Check vertical deflection - Section 2.5.2

Considerdeflectionduetodead,imposedandsnowloads

Limitingdeflection;;

Sheet no./rev. 26/00

App'd by Yasser Date 17/08/2021

PASS - Moment capacity exceeds design bending moment

lim =Ls1 /360= 6.944 mm

Maximumdeflectionspan1;  =max(abs(max),abs(min))=2.61 mm

PASS - Maximum deflection does not exceed deflection limit ;

BOX FRAME ANALYSIS

ANALYSIS

Geometry

Section MittarChoudhry

Calc. by M.Salam

Date 17/08/2021 Chk'd by Yasser

Date 17/08/2021

Geometry(m) - Steel (BS5950) - UC 254x254x73

Sheet no./rev. 27/00

App'd by Yasser Date 17/08/2021

Loading Selfweightincluded(Selfweightx1)

Self weight - Loading (kN/m)

Section MittarChoudhry

Calc. by M.Salam

Date 17/08/2021

Chk'd by Yasser

Permanent - Loading(kN/m,kN)

Date 17/08/2021

Sheet no./rev. 28/00

App'd by Yasser Date 17/08/2021

Imposed - Loading (kN/m,kN)

Snow - Loading (kN/m,kN)

Load combination factors Load combination

1.4D(Strength)

1.0D+1.0I+1.0RI(Service)

1.4D+1.6I+1.6S(Strength)

1.0D+1.0I+1.0S(Service)

1.2D+1.2I+1.2RI+1.2W(Strength)

1.0D+1.0I+1.0RI+1.0W(Service)

1.0D+1.4W(Strength)

Member Loads

BoxFrameBeam B113

UC254X254X73

BoxFrameBeam B113

UC254X254X73

BoxFrameBeam B113

UC254X254X73

BoxFrameBeam B113

UC254X254X73

BoxFrameBeam B113

UC254X254X73

BoxFrameBeam B113

UC254X254X73

weightPermanentImposedOtherSnowWind

Member

BoxFrameBeam B113

UC254X254X73

BoxFrameBeam B113

UC254X254X73

BoxFrameBeam B113

UC254X254X73

BoxFrameBeam B113

UC254X254X73

BoxFrameBeam B113

UC254X254X73

BoxFrameBeam B113

UC254X254X73

BoxFrameBeam B113

UC254X254X73

BoxFrameBeam B113

UC254X254X73

Results

Reactions

1.4D (Strength)- Local nodereactions- Node:(Horiz (kN), Vert(kN), Mom (kNm))

Section MittarChoudhry

Calc. by M.Salam

Date 17/08/2021

Chk'd by Yasser

Date 17/08/2021

Sheet no./rev. 31/00

App'd by Yasser Date 17/08/2021

1.4D + 1.6I + 1.6RI (Strength) - Local node reactions - Node: (Horiz (kN), Vert (kN),Mom (kNm))

1.0D + 1.0I + 1.0RI (Service) - Local nodereactions- Node: (Horiz (kN), Vert (kN), Mom (kNm))

1:(0,117.8,0) 2 3 4:(0,122.1,0)

BoxFrameBeamB113UC254X254X73

BoxFrameGroundBeamUC254X254X73

1.4D + 1.6I + 1.6S (Strength) - Local node reactions - Node: (Horiz (kN),Vert (kN),Mom (kNm))

Section MittarChoudhry

Calc. by M.Salam Date 17/08/2021

Chk'd by Yasser Date 17/08/2021

Sheet no./rev. 32/00

App'd by Yasser Date 17/08/2021

1.0D + 1.0I + 1.0S (Service) - Local node reactions - Node: (Horiz (kN), Vert (kN),Mom (kNm))

1.2D + 1.2I + 1.2RI + 1.2W (Strength) - Local node reactions - Node: (Horiz (kN), Vert (kN), Mom(kNm))

1.0D + 1.0I + 1.0RI + 1.0W (Service) - Local nodereactions - Node: (Horiz(kN), Vert (kN), Mom (kNm))

2 3

BoxFrameBeamB113UC254X254X73

BoxFrameGroundBeamUC254X254X73

Section MittarChoudhry

Calc. by M.Salam

Date 17/08/2021

Chk'd by Yasser

Date 17/08/2021

Sheet no./rev. 33/00

App'd by Yasser Date 17/08/2021

1.0D + 1.4W (Strength) - Local node reactions- Node: (Horiz(kN), Vert (kN), Mom (kNm))

Forces

Strength combinations - Moment envelope (kNm)

Section MittarChoudhry

Calc. by M.Salam

Date 17/08/2021

Chk'd by Yasser

Date 17/08/2021

Strength combinations- Shear envelope(kN)

Sheet no./rev. 34/00

App'd by Yasser Date 17/08/2021

Strength combinations - Axial force envelope(kN)

Section MittarChoudhry

Calc. by M.Salam Date 17/08/2021

BOX FRAME - B1.13 UC254X254X73 (BS5950)

STEEL MEMBER DESIGN(BS5950)

Chk'd by Yasser Date 17/08/2021

In accordancewith BS5950-1:2000 incorporating Corrigendum No.1

Section details

Sectiontype; UKC254x254x73 (Tata Steel Advance)

Steelgrade; S275

Fromtable9: Design strength py

Thicknessofelement;

max(T,t)= 14.2mm

Designstrength; py = 275 N/mm2

Modulusofelasticity; E= 205000 N/mm2

Lateral restraint

Distancebetweenmajoraxisrestraints; Lx = 5700mm

Distancebetweenminoraxisrestraints; Ly = 0 mm

Effective length factors

Effectivelengthfactorinmajoraxis; Kx = 1.00

Effectivelengthfactorinminoraxis; Ky = 1.00

Effectivelengthfactorforlateral-torsionalbuckling;KLT = 1.00;

Classification of crosssections - Section 3.5  = [275N/mm2 /py]= 1.00

Internal compression parts - Table 11

Depthofsection; d= 200.3mm

Stressratios; r1=min(Fc /(d  t  pyw),1)= 0.104

Outstandflanges - Table 11

Widthofsection;

Sheet no./rev. 35/00

App'd by Yasser Date 17/08/2021

r2=Fc /(A  pyw)= 0.019 d/t=23.3   <=max(80   /(1+r1),40  ); Class1plastic

b=B/2= 127.3 mm

b/T=9.0   <=9  ; Class1plastic

Section is class 1 plastic

Section MittarChoudhry

Calc. by M.Salam Date 17/08/2021

Moment capacity- Section 4.2.5

Chk'd by Yasser Date 17/08/2021

Designbendingmoment; M= 159.5kNm

Momentcapacitylowshear-cl.4.2.5.2;

Compression members - Section 4.7

Sheet no./rev. 36/00

App'd by Yasser Date 17/08/2021

PASS - Moment capacity exceeds design bending moment

Designcompressionforce; Fc = 49.3kN

Effective length for major (x-x) axisbuckling - Section 4.7.3

Effectivelengthforbuckling;

Slendernessratio-cl.4.7.2;

Compressive strength - Section 4.7.5

Limitingslenderness;

Strutcurve-Table23; b

Robertsonconstant;

Perryfactor;

Eulerstress;

Compressivestrength-AnnexC.1;

Compression resistance - Section 4.7.4

)/1000= 0.120

2

Compressionresistance-cl.4.7.4; Pcx =A  pcx = 2181.8 kN PASS - Compression resistance exceeds design compression force

Compression members withmoments- Section 4.8.3

Comb.compression&bendingcheck-cl.4.8.3.2; Fc /(A  py)+M/Mc = 0.604 PASS - Combined bending and compression check is satisfied

Member buckling resistance - Section 4.8.3.3

MaxmajoraxismomentgoverningMb; MLT =Mx = 159.50 kNm

Equivuniformmntfactor-majoraxisflexbuckling;mx = 1.000

Bucklingresistancecheck-cl.4.8.3.3.2; Fc /Pcx +mx  M/Mc  (1+0.5  Fc /Pcx)=0.614 PASS - Member buckling resistance checks are satisfied ;

Section MittarChoudhry

Calc. by M.Salam Date 17/08/2021

Chk'd by Yasser Date 17/08/2021

BOX FRAME - GROUND BEAM UC254X254X73 (BS5950)

STEEL MEMBER DESIGN(BS5950)

In accordancewith BS5950-1:2000 incorporating Corrigendum No.1

Section details

Sectiontype; UKC254x254x73 (Tata Steel Advance)

Steelgrade; S275

Fromtable9: Design strength py

Thicknessofelement;

max(T,t)= 14.2mm

Designstrength; py = 275 N/mm2

Modulusofelasticity; E= 205000 N/mm2

Sheet no./rev. 37/00

App'd by Yasser Date 17/08/2021

Lateral restraint

Distancebetweenmajoraxisrestraints; Lx = 5700mm

Distancebetweenminoraxisrestraints; Ly = 0 mm

Effective length factors

Effectivelengthfactorinmajoraxis; Kx = 1.00

Effectivelengthfactorinminoraxis; Ky = 1.00

Effectivelengthfactorforlateral-torsionalbuckling;KLT = 1.00;

Classification of crosssections - Section 3.5  = [275N/mm2 /py]= 1.00

Internal compression parts - Table 11

Depthofsection; d= 200.3mm

Stressratios; r1=max(-Ft /(d  t  pyw),-0.999)= -0.104 r2=-Ft /(A  pyw)=-0.019 d/t=23.3   <=max(80   /(1+r1),40  ); Class1plastic

Outstandflanges - Table 11

Widthofsection; b=B/2= 127.3 mm b/T=9.0   <=9  ; Class1plastic

Section is class 1 plastic

Section MittarChoudhry

Calc. by M.Salam Date 17/08/2021

Chk'd by Yasser Date 17/08/2021

Sheet no./rev. 38/00

App'd by Yasser Date 17/08/2021

Shear capacity- Section 4.2.3

Designshearforce;

Sheararea;

Designshearresistance;

Shear capacity- Section 4.2.3

Designshearforce;

Moment capacity- Section 4.2.5

Web does not need to be checked for shear buckling

A

= 360.6kN PASS - Design shear resistance exceeds design shear force

Designbendingmoment; M= 17.7 kNm

Momentcapacitylowshear-cl.4.2.5.2;

Tension members- Section 4.6

Z

)=272.8 kNm PASS - Moment capacity exceeds design bending moment

Designtensionforce; Ft = 49.3 kN

Cross-sectionalareaofholes; Ah = 0 mm2

Netareaofcross-section; An =A-Ah = 9310 mm2

Effectivenetareacoefficient; Ke = 1.2

Effectivenetareaofcross-section-cl.3.4.3; Ae =min(Ke  An,A)= 9310mm2

Tensioncapacity-cl.4.6.1; Pt =py  Ae = 2560.3 kN

PASS - Tension capacity exceeds design tension force

Tension memberswith moments - Section 4.8.2

Combinedtensionandbendingcheck-cl.4.8.2.2; Ft /Pt +M/Mc = 0.084

PASS - Combined tension and bending check is satisfied ;

Project 99 Headstone Lane, Harrow, HA2 6JL

Section Mittar Choudhry

Calc. by M.Salam

Date 17/08/2021

BOX FRAME - C1 UC254X254X73 (BS5950)

STEEL MEMBER DESIGN(BS5950)

Chk'd by Yasser

In accordancewith BS5950-1:2000 incorporating Corrigendum No.1

Section details

Sectiontype; UC 254x254x73 (BS4-1)

Steel grade; S275

Fromtable9: Design strength py

Thickness of element; max(T, t) = 14.2mm

Design strength; py = 275 N/mm2

Modulus of elasticity; E = 205000 N/mm2

Date 17/08/2021

Sheet no./rev. 39 / 00

App'd by Yasser Date 17/08/2021

Lateral restraint

Distance between major axis restraints; Lx = 3000mm

Distance between minor axis restraints; Ly = 0 mm

Effective length factors

Effectivelength factor inmajor axis; Kx = 1.00

Effectivelength factor inminor axis; Ky = 1.00

Effectivelength factor for lateral-torsional buckling; KLT = 1.00;

Classification of crosssections - Section 3.5  = [275 N/mm2 / py] = 1.00

Internal compression parts - Table 11

Depth of section; d = 200.3mm

Stressratios; r1= min(Fc /(d  t  pyw), 1) = 0.184 r2 = Fc / (A  pyw) = 0.034 d/ t = 23.3   <= max(80   / (1 + r1),40  ); Class 1 plastic

Outstandflanges - Table 11

Widthof section; b= B/ 2 = 127.3 mm

b/ T = 9.0   <= 9  ; Class 1 plastic

Section is class 1 plastic

Section MittarChoudhry Sheet no./rev. 40/00

Calc.

Shear capacity- Section 4.2.3

Designshearforce;

Sheararea;

Designshearresistance;

Shear capacity- Section 4.2.3

Designshearforce;

Moment capacity- Section 4.2.5

Designbendingmoment;

Momentcapacitylowshear-cl.4.2.5.2;

Compression members - Section 4.7

Designcompressionforce; Fc = 87.3kN

Effective length for major (x-x) axisbuckling - Section 4.7.3

App'd by Yasser Date 17/08/2021

Web does not need to be checked for shear buckling

360.6kN

- Design shear resistance exceeds design shear force

272.8 kNm

- Moment capacity exceeds design bending moment

Effectivelengthforbuckling; LEx =Lx  Kx = 3000mm

Slendernessratio-cl.4.7.2;

Compressive strength - Section 4.7.5

Limitingslenderness;

Strutcurve-Table23; b

Robertsonconstant;

Perryfactor;

Eulerstress;

Compressivestrength-AnnexC.1;

Compression resistance - Section 4.7.4

Compressionresistance-cl.4.7.4;

)/1000= 0.035

= 2465.3 kN PASS - Compression resistance exceeds design compression force

Compression members withmoments- Section 4.8.3

Comb.compression&bendingcheck-cl.4.8.3.2; Fc /(A  py)+M/Mc = 0.517 PASS - Combined bending and compression check is satisfied

Member buckling resistance - Section 4.8.3.3

MaxmajoraxismomentgoverningMb; MLT =Mx = 131.70 kNm

Equivuniformmntfactor-majoraxisflexbuckling;mx = 1.000

Bucklingresistancecheck-cl.4.8.3.3.2; Fc /Pcx +mx  M/Mc  (1+0.5  Fc /Pcx)=0.527 PASS - Member buckling resistance checks are satisfied ;

Section MittarChoudhry

Calc. by M.Salam Date 17/08/2021

BOX FRAME - C2 UC254X254X73 (BS5950)

STEEL MEMBER DESIGN(BS5950)

Chk'd by Yasser

In accordancewith BS5950-1:2000 incorporating Corrigendum No.1

Section details

Date 17/08/2021

Sheet no./rev. 41/00

App'd by Yasser Date 17/08/2021

Sectiontype; UKC254x254x73 (Tata Steel Advance)

Steelgrade; S275

Fromtable9: Design strength py

Thicknessofelement; max(T,t)= 14.2mm

Designstrength; py = 275 N/mm2

Modulusofelasticity; E= 205000 N/mm2

Lateral restraint

Distancebetweenmajoraxisrestraints; Lx = 3000mm

Distancebetweenminoraxisrestraints; Ly = 0 mm

Effective length factors

Effectivelengthfactorinmajoraxis; Kx = 1.00

Effectivelengthfactorinminoraxis; Ky = 1.00

Effectivelengthfactorforlateral-torsionalbuckling;KLT = 1.00;

Classification of crosssections - Section 3.5  = [275N/mm2 /py]= 1.00

Internal compression parts - Table 11

Depthofsection; d= 200.3mm

Stressratios; r1=min(Fc /(d  t  pyw),1)= 0.178

r2=Fc /(A  pyw)= 0.033 d/t=23.3   <=max(80   /(1+r1),40  ); Class1plastic

Outstandflanges - Table 11

Widthofsection; b=B/2= 127.3 mm b/T=9.0   <=9  ; Class1plastic

Section is class 1 plastic

Section MittarChoudhry Sheet no./rev. 42/00

Calc.

Shear capacity- Section 4.2.3

Designshearforce;

Sheararea;

Designshearresistance;

Shear capacity- Section 4.2.3

Designshearforce;

Moment capacity- Section 4.2.5

Designbendingmoment;

Momentcapacitylowshear-cl.4.2.5.2;

Compression members - Section 4.7

Designcompressionforce; Fc = 84.4kN

Effective length for major (x-x) axisbuckling - Section 4.7.3

App'd by Yasser Date 17/08/2021

Web does not need to be checked for shear buckling

= 360.6kN

- Design shear resistance exceeds design shear force

272.8 kNm

- Moment capacity exceeds design bending moment

Effectivelengthforbuckling; LEx =Lx  Kx = 3000mm

Slendernessratio-cl.4.7.2;

Compressive strength - Section 4.7.5

Limitingslenderness;

Strutcurve-Table23; b

Robertsonconstant;

Perryfactor;

Eulerstress;

Compressivestrength-AnnexC.1;

Compression resistance - Section 4.7.4

Compressionresistance-cl.4.7.4; Pcx =A 

)/1000= 0.035

= 2465.3 kN PASS - Compression resistance exceeds design compression force

Compression members withmoments- Section 4.8.3

Comb.compression&bendingcheck-cl.4.8.3.2; Fc /(A  py)+M/Mc = 0.511 PASS - Combined bending and compression check is satisfied

Member buckling resistance - Section 4.8.3.3

MaxmajoraxismomentgoverningMb; MLT =Mx = 130.30 kNm

Equivuniformmntfactor-majoraxisflexbuckling;mx = 1.000

Bucklingresistancecheck-cl.4.8.3.3.2; Fc /Pcx +mx  M/Mc  (1+0.5  Fc /Pcx)=0.520 PASS - Member buckling resistance checks are satisfied ;

Section MittarChoudhry Sheet no./rev. 43/00

Calc. by M.Salam Date 17/08/2021 Chk'd by Yasser

Date 17/08/2021

STEEL CONNECTION (A) BETWEEN B1.12 TO B1.11 (BS5950)

BEAM TO BEAM - CLEAT CONNECTION

Section Details

Supporting Beam - UKB 254x146x43;; Gradesupporting = "S275"

Supported Beam - UKC254x254x89;; Gradesupported = "S275"

Cleats 2x RSA 90x90x10;; Gradecleats = "S275"

Bolts M16 (Grade 8.8)

Connection Details

; Bolteccentricityforsupportedbeam; abolts = 50 mm ; numberofboltrows; nbolts = 3 ; Boltpitch;; pbolts = 50 mm

; Boltgauge; gbolts = 110mm ; Endprojection; t1 = 10 mm ; Cleatenddistance(top&bottom); e1cleats = 40mm

; Cleatedgedistanceonsupportedbeam; e2cleatssupported = 40mm

; Cleatedgedistanceonsupportingbeam; e2cleatssupporting = 40mm

App'd by Yasser Date 17/08/2021

Cleatlength; lcleats =pbolts(nbolts-1)+2e1cleats = 180mm ;SupportedBeamendreaction; Q= 100.9 kN

Notch details

; Topnotchlength; ctopnotch = 80 mm ; Topnotchdepth; dctopnotch = 25 mm

; Bottomnotchlength; cbottomnotch = 80 mm ; Bottomnotchdepth; dcbottomnotch = 25 mm

Check 1- Essential detailingrequirements ; Cleatthickness; tcleats = 10mm; PASS ; Boltgauge; gbolts = 110mm; PASS ; CleatLength; lcleats = 180mm

; Cleat length for torsional requirements: PASS; ; Cleatsfit between beam fillets: PASS

Check 2- Shear capacityof bolt group connecting cleats to web of supported beam (taking account of eccentricity'a') ;;;; Elasticsectionmodulusofboltgroup

Zbolts =nbolts  (nbolts +1)  pbolts /6 = 100 mm

Section MittarChoudhry

Calc. by M.Salam Date 17/08/2021

Forceonoutermostboltduetomoment

Fm =Q  abolts /Zbolts = 50 kN

Forceonboltduetoshear

Fv =Q/nbolts = 33.6kN

Chk'd by Yasser Date 17/08/2021

Resultantforceonboltduetodirectshearandmoment

Fr = (Fv 2 +Fm 2)= 60.6 kN

Shearcapacityofasingleboltindoubleshear

;2  Psbolts = 117.8 kN

Utilisationfactor;Ucheck2shear =Fr /(2  Psbolts)= 0.515

Check 3- Shear and bearing capacityof cleat connected to supported beam for shear ;; pycleats = 275 N/mm2 ;; e1acleats =e1cleats = 40mm ;; Avcleats =0.9  (2  e1acleats +(nbolts -1)  pbolts)  tcleats = 1620 mm2 ; Avnetcleats =Avcleats -nbolts  Dhbolts  tcleats = 1080 mm2

Effectivenetareacoefficient Kecleats = 1.20

Plainshearcapacityofcleats

PvPcleats =min(0.6  pycleats  Avcleats,0.7  Kecleats  pycleats  Avnetcleats)= 249.5kN Av1cleats =(e1acleats +(nbolts -1)  pbolts)  tcleats = 1400 mm2 ; Ateffcleats =(e2cleatssupported -0.5  Dhbolts)  tcleats = 310 mm2

PvBcleats =0.6  pycleats  Av1cleats +0.6  Kecleats  pycleats  Ateffcleats = 292.4 kN

Shearcapacityoftheanglecleatleg; Pvcleats =min(PvPcleats,PvBcleats)= 249.5 kN

;Shearforceonanglecleat;Q/2= 50.5 kN

Utilisationfactor;Ucheck3shear =Q/(2  Pvcleats)= 0.202

Sheet no./rev. 44/00

App'd by Yasser Date 17/08/2021

Shear capacity to web : PASS

Shear capacity of cleats to beam: PASS for bearing ecleats =min(e1cleats,e2cleatssupported)= 40 mm bearingstrengthofthecleat

pbscleats = 460N/mm2 bearingcapacityofthelegoftheanglecleatperbolt

Pbscleats =min(dbolts  tcleats  pbscleats,0.5  ecleats  tcleats  pbscleats)= 73.6kN ;Bearingforceoncleat;Fr /2= 30.3kN

Utilisationfactor;Ucheck3bearing =Fr /(2  Pbscleats)= 0.412

Check 4b - shear and bearing capacityof the supported beam (2notches) ;;;;for shear ;;

Bearing capacity of cleats to beam: PASS

Section MittarChoudhry

Calc. by M.Salam Date 17/08/2021

pysupported = 265N/mm2

Chk'd by Yasser Date 17/08/2021

; Distancetopsupportedbeamto1st hole;etsupported = 80mm

;;; etasupported =etsupported -dctopnotch = 55mm

; ebsupported =Dsupported -etsupported -(nbolts -1)  pbolts = 80 mm

ebasupported =ebsupported -dcbottomnotch = 55 mm

; Avsupported =0.9  (etasupported +(nbolts -1)  pbolts +ebasupported)  tsupported = 1949mm2 ; Avnetsupported =Avsupported -nbolts  Dhbolts  tsupported = 1393mm2

Effectivenetareacoefficient

Kesupported = 1.20

Plainshearcapacityofbeam

Sheet no./rev. 45/00

App'd by Yasser Date 17/08/2021

PvPsupported =min(0.6  pysupported  Avsupported,0.7  Kesupported  pysupported  Avnetsupported)= 310.0 kN

Av1supported =(etasupported +(nbolts -1)  pbolts)  tsupported = 1597 mm2 ;; e3supported =abolts -t1 = 40 mm

Ateffsupported =(e3supported -0.5  Dhbolts)  tsupported = 319mm2

Blockshearcapacityofbeam

PvBsupported =0.6  pysupported  Av1supported +0.6  Kesupported  pysupported  Ateffsupported = 314.8 kN

Shearcapacityofthebeam; Pvsupported =min(PvPsupported,PvBsupported)= 310.0 kN ;Shearforceonbeam;Q= 100.9 kN

Utilisationfactor;Ucheck4shear =Q/Pvsupported = 0.326

for bearing bearingstrengthofthebeam

pbssupported = 460 N/mm2 bearingcapacityofthebeamperbolt

Pbssupported =min(dbolts  tsupported  pbssupported,0.5  e3supported  tsupported  pbssupported)= 76kN ;Resultantbearingforceonbolts;Fr = 60.6 kN

Utilisationfactor;Ucheck4bearing =Fr /Pbssupported = 0.800

Shear capacity of beam : PASS

Bearing capacity of beam : PASS

Check 4c - bending capacity of reduced beam section at thenotch - 2flanges notched ;;;;;; Znotched =tsupported  (Dsupported -dctopnotch -dcbottomnotch)2 /6= 75921mm3

;Momentcapacityofnotchedsection;Mcapnotched =pysupported  Znotched = 20.1kNm ;Momentappliedtonotchedsection;Mappnotched =Q  max(ctopnotch,cbottomnotch)= 8.1kNm

Utilisationfactor;Ucheck4cmoment =Mappnotched /Mcapnotched = 0.401

Moment capacity of notched section : PASS

Check 4d - local stabilityof notched beamsrestrained against lateral torsional buckling - 2 flangesnotched ;;;; Depthoftopnotch;dctopnotch = 25 mm

Lengthoftopnotch;ctopnotch = 80 mm

Depthofbottomnotch;dcbottomnotch = 25mm

Lengthofbottomnotch;cbottomnotch = 80mm

Section MittarChoudhry

Calc. by M.Salam Date 17/08/2021

Checkdepth =max(dctopnotch,dcbottomnotch)= 25 mm

Checklength =max(ctopnotch,cbottomnotch)= 80 mm

; Gradesupported = "S275"

;; dot=Dsupported/tsupported = 25.3

Chk'd by Yasser Date 17/08/2021

Sheet no./rev. 46/00

App'd by Yasser Date 17/08/2021

;Depth of both notches less than limit of D/5 : PASS

climit =if(or(Gradesupported ==“S275”,Gradesupported ==“300”),if(dot<=54.3,Dsupported,160000  Dsupported/dot3), if(dot<=48.0,Dsupported,110000  Dsupported/dot3))

climit = 260.3mm

Length of both notches less than limit : PASS

Check 5- Shear capacityof bolt group connecting cleats to supporting beam

Shearcapacityoftoppairofbolts

;;;;; Psbolts1 =min(Psbolts,0.5  e1cleats  tcleats  pbscleats)= 58.9 kN

Shearcapacityofotherbolts

Psbolts = 58.9 kN

Shearcapacityofboltgroup-sumofboltcapacities

;Psboltssum =2  Psbolts1 +2  (nbolts -1)  Psbolts = 353.3 kN

;Shearonboltgroup;Q= 100.9kN

Utilisationfactor;Ucheck5 =Q/Psboltssum = 0.286

Check 6- Shear and bearing capacityof cleats connected to supporting beam for shear ;; pycleats = 275 N/mm2

;; e1acleats =e1cleats = 40mm

;; Avcleats =0.9  (2  e1acleats +(nbolts -1)  pbolts)  tcleats = 1620 mm2

Effectivenetareacoefficient Kecleats = 1.20 ; Avnetcleats =Avcleats -nbolts  Dhbolts  tcleats = 1080 mm2

Plainshearcapacityofcleats

PvPcleats =min(0.6  pycleats  Avcleats,0.7  Kecleats  pycleats  Avnetcleats)= 249.5kN Av1cleats =(e1acleats +(nbolts -1)  pbolts)  tcleats = 1400 mm2 ; Ateffcleatssupporting =(e2cleatssupporting -0.5  Dhbolts)  tcleats = 310 mm2

Blockshearcapacityofcleats

PvBcleatssupporting =0.6  pycleats  Av1cleats +0.6  Kecleats  pycleats  Ateffcleatssupporting = 292.4 kN

Shearcapacityoftheanglecleatleg; Pvcleatssupporting =min(PvPcleats,PvBcleatssupporting)= 249.5 kN ;Shearforceonanglecleat;Q/2= 50.5 kN

Utilisationfactor;Ucheck6shear =Q/(2  Pvcleatssupporting)= 0.202

Shear capacity of bolt group to supporting beam : PASS

Shear capacity of cleats to supporting beam: PASS for bearing

Section

MittarChoudhry

Calc. by M.Salam Date 17/08/2021

ecleatssupporting =e1cleats = 40 mm bearingstrengthofthecleat

pbscleats = 460N/mm2

Fortopbolt, bearingcapacityofthelegoftheanglecleatperbolt

Chk'd by Yasser

Date 17/08/2021

Sheet no./rev. 47/00

App'd by Yasser Date 17/08/2021

Pbscleatssupporting1 =min(dbolts  tcleats  pbscleats,0.5  ecleatssupporting  tcleats  pbscleats)= 73.6 kN

Forotherbolts, bearingcapacityofthelegoftheanglecleatperbolt

Pbscleatssupporting =dbolts  tcleats  pbscleats = 73.6kN

Capacityofboltgroup;

Pbscleatssupportingsum =2  Pbscleatssupporting1 +2  (nbolts -1)  Pbscleatssupporting = 441.6kN

Bearingforceonboltgroup;Q= 100.9 kN

Utilisationfactor;Ucheck6bearing =Q/Pbscleatssupportingsum = 0.228

Bearing capacity of cleats to supporting beam: PASS

Check 7- Local shear and bearing capacityof supporting beam web for shear;;;;;

;ebsupporting =min(pbolts,Dsupporting -etsupporting -(nbolts -1)  pbolts)= 50 mm Avsupporting =(ebsupporting +(nbolts -1)  pbolts +etsupporting)  tsupporting = 1656 mm2 ; Avnetsupporting =Avsupporting -nbolts  Dhbolts  tsupporting = 1267 mm2 ; pysupporting = 275 N/mm2

Effectivenetareacoefficient

Kesupporting = 1.20

Pvsupporting =min(0.6  pysupporting  Avsupporting,0.7  Kesupporting  pysupporting  Avnetsupporting)= 273.2kN

;Shearloadonsupportingbeam;Q/2= 50.5kN

Utilisationfactor;Ucheck7shear =Q/(2  Pvsupporting)=0.185

Local shear capacity of supporting beam web: PASS for bearing pbssupporting = 460N/mm2

Pbssupporting =dbolts  tsupporting  pbssupporting = 53.0 kN

Q/(2  nbolts)= 16.8kN

Utilisationfactor;Ucheck7bearing =Q/(2  nbolts  Pbssupporting)= 0.317

Local bearing capacity of supporting beam web : PASS

SUMMARY OF RESULTS

Check 2- Capacityof bolt group connecting cleatsto web of supported beam (taking account of eccentricity 'a')

Shearutilisationfactor;Ucheck2shear = 0.515; PASS

Check 3- Capacityof cleat connected to supported beam

Shearutilisationfactor;Ucheck3shear = 0.202; PASS

Bearingutilisationfactor;Ucheck3bearing = 0.412; PASS

Section MittarChoudhry

Calc. by M.Salam Date 17/08/2021

Check 4b - Capacityof the supported beam

Chk'd by Yasser

Date 17/08/2021

Sheet no./rev. 48/00

App'd by Yasser Date 17/08/2021

Shearutilisationfactor;Ucheck4shear = 0.326; PASS

Bearingutilisationfactor;Ucheck4bearing = 0.800; PASS

Check 4c - bending capacity of reduced beam section at thenotch - 2flanges notched

MomentUtilisationfactor;Ucheck4cmoment = 0.401; PASS

Check 4d - local stabilityof notched beamsrestrained against lateral torsional buckling - 2flanges notched

Localstabilitylimit;climit = 260.3 mm; PASS

Check 5- Capacityof bolt group connecting cleatsto supporting beam

Shearutilisationfactor;Ucheck5 = 0.286; PASS

Check 6- Capacityof cleats connected to supporting beam

Shearutilisationfactor;Ucheck6shear = 0.202; PASS

Bearingutilisationfactor;Ucheck6bearing = 0.228; PASS

Check 7- Local capacityof column web

Shearutilisationfactor;Ucheck7shear = 0.185; PASS

Bearingutilisationfactor;Ucheck7bearing = 0.317; PASS

Section MittarChoudhry Sheet no./rev. 49/00

Calc. by M.Salam Date 17/08/2021 Chk'd by Yasser

Date 17/08/2021

STEEL CONNECTION (B) BETWEEN B1.11 TO B1.10 (BS5950)

BEAM TO BEAM - CLEAT CONNECTION

Section Details

Supporting Beam - UKB 254x146x37;; Gradesupporting = "S275"

Supported Beam - UKB254x146x43;; Gradesupported = "S275"

Cleats 2x RSA 90x90x10;; Gradecleats = "S275"

Bolts M16 (Grade 8.8)

App'd by Yasser Date 17/08/2021

Connection Details

; Bolteccentricityforsupportedbeam; abolts = 50 mm ; numberofboltrows; nbolts = 3 ; Boltpitch;; pbolts = 55 mm

; Boltgauge; gbolts = 107mm ; Endprojection; t1 = 10 mm ; Cleatenddistance(top&bottom); e1cleats = 40mm

; Cleatedgedistanceonsupportedbeam; e2cleatssupported = 40mm

; Cleatedgedistanceonsupportingbeam; e2cleatssupporting = 40mm Cleatlength; lcleats =pbolts(nbolts-1)+2e1cleats = 190mm ;SupportedBeamendreaction; Q= 91.4kN

Notch details

; Topnotchlength; ctopnotch = 80 mm ; Topnotchdepth; dctopnotch = 25 mm ; Bottomnotchlength; cbottomnotch = 80 mm ; Bottomnotchdepth; dcbottomnotch = 25 mm

Check 1- Essential detailingrequirements ; Cleatthickness; tcleats = 10mm; PASS ; Boltgauge; gbolts = 107mm; PASS ; CleatLength; lcleats = 190mm

; Cleat length for torsional requirements: PASS; ; Cleatsfit between beam fillets: PASS

Check 2- Shear capacityof bolt group connecting cleats to web of supported beam (taking account of eccentricity'a') ;;;; Elasticsectionmodulusofboltgroup

Zbolts =nbolts  (nbolts +1)  pbolts /6 = 110 mm

Section MittarChoudhry

Calc. by M.Salam Date 17/08/2021

Forceonoutermostboltduetomoment

Fm =Q  abolts /Zbolts = 42 kN

Forceonboltduetoshear

Fv =Q/nbolts = 30.5kN

Chk'd by Yasser Date 17/08/2021

Resultantforceonboltduetodirectshearandmoment

Fr = (Fv 2 +Fm 2)= 51.5 kN

Shearcapacityofasingleboltindoubleshear

;2  Psbolts = 117.8 kN

Utilisationfactor;Ucheck2shear =Fr /(2  Psbolts)= 0.438

Check 3- Shear and bearing capacityof cleat connected to supported beam for shear ;; pycleats = 275 N/mm2 ;; e1acleats =e1cleats = 40mm ;; Avcleats =0.9  (2  e1acleats +(nbolts -1)  pbolts)  tcleats = 1710 mm2 ; Avnetcleats =Avcleats -nbolts  Dhbolts  tcleats = 1170 mm2

Effectivenetareacoefficient Kecleats = 1.20

Plainshearcapacityofcleats

PvPcleats =min(0.6  pycleats  Avcleats,0.7  Kecleats  pycleats  Avnetcleats)= 270.3kN Av1cleats =(e1acleats +(nbolts -1)  pbolts)  tcleats = 1500 mm2 ; Ateffcleats =(e2cleatssupported -0.5  Dhbolts)  tcleats = 310 mm2

PvBcleats =0.6  pycleats  Av1cleats +0.6  Kecleats  pycleats  Ateffcleats = 308.9 kN

Shearcapacityoftheanglecleatleg; Pvcleats =min(PvPcleats,PvBcleats)= 270.3 kN

;Shearforceonanglecleat;Q/2= 45.7 kN

Utilisationfactor;Ucheck3shear =Q/(2  Pvcleats)= 0.169

Sheet no./rev. 50/00

App'd by Yasser Date 17/08/2021

Shear capacity to web : PASS

Shear capacity of cleats to beam: PASS for bearing ecleats =min(e1cleats,e2cleatssupported)= 40 mm bearingstrengthofthecleat

pbscleats = 460N/mm2 bearingcapacityofthelegoftheanglecleatperbolt

Pbscleats =min(dbolts  tcleats  pbscleats,0.5  ecleats  tcleats  pbscleats)= 73.6kN ;Bearingforceoncleat;Fr /2= 25.8kN

Utilisationfactor;Ucheck3bearing =Fr /(2  Pbscleats)= 0.350

Check 4b - shear and bearing capacityof the supported beam (2notches) ;;;;for shear ;;

Bearing capacity of cleats to beam: PASS

Section MittarChoudhry

Calc. by M.Salam Date 17/08/2021

pysupported = 275N/mm2

Chk'd by Yasser Date 17/08/2021

; Distancetopsupportedbeamto1st hole;etsupported = 75mm

;;; etasupported =etsupported -dctopnotch = 50mm

; ebsupported =Dsupported -etsupported -(nbolts -1)  pbolts = 75 mm

ebasupported =ebsupported -dcbottomnotch = 50 mm

; Avsupported =0.9  (etasupported +(nbolts -1)  pbolts +ebasupported)  tsupported = 1358mm2 ; Avnetsupported =Avsupported -nbolts  Dhbolts  tsupported = 969 mm2

Effectivenetareacoefficient

Kesupported = 1.20

Plainshearcapacityofbeam

Sheet no./rev. 51/00

App'd by Yasser Date 17/08/2021

PvPsupported =min(0.6  pysupported  Avsupported,0.7  Kesupported  pysupported  Avnetsupported)= 223.9 kN

Av1supported =(etasupported +(nbolts -1)  pbolts)  tsupported = 1152 mm2 ;; e3supported =abolts -t1 = 40 mm

Ateffsupported =(e3supported -0.5  Dhbolts)  tsupported = 223mm2

Blockshearcapacityofbeam

PvBsupported =0.6  pysupported  Av1supported +0.6  Kesupported  pysupported  Ateffsupported = 234.3 kN

Shearcapacityofthebeam; Pvsupported =min(PvPsupported,PvBsupported)= 223.9 kN ;Shearforceonbeam;Q= 91.4kN

Utilisationfactor;Ucheck4shear =Q/Pvsupported = 0.408

for bearing bearingstrengthofthebeam

pbssupported = 460 N/mm2 bearingcapacityofthebeamperbolt

Pbssupported =min(dbolts  tsupported  pbssupported,0.5  e3supported  tsupported  pbssupported)= 53kN ;Resultantbearingforceonbolts;Fr = 51.5 kN

Utilisationfactor;Ucheck4bearing =Fr /Pbssupported = 0.972

Shear capacity of beam : PASS

Bearing capacity of beam : PASS

Check 4c - bending capacity of reduced beam section at thenotch - 2flanges notched ;;;;;; Znotched =tsupported  (Dsupported -dctopnotch -dcbottomnotch)2 /6= 52719mm3 ;Momentcapacityofnotchedsection;Mcapnotched =pysupported  Znotched = 14.5kNm ;Momentappliedtonotchedsection;Mappnotched =Q  max(ctopnotch,cbottomnotch)= 7.3kNm

Utilisationfactor;Ucheck4cmoment =Mappnotched /Mcapnotched = 0.504

Moment capacity of notched section : PASS

Check 4d - local stabilityof notched beamsrestrained against lateral torsional buckling - 2 flangesnotched ;;;; Depthoftopnotch;dctopnotch = 25 mm

Lengthoftopnotch;ctopnotch = 80 mm

Depthofbottomnotch;dcbottomnotch = 25mm

Lengthofbottomnotch;cbottomnotch = 80mm

Section MittarChoudhry

Calc. by M.Salam Date 17/08/2021

Checkdepth =max(dctopnotch,dcbottomnotch)= 25 mm

Checklength =max(ctopnotch,cbottomnotch)= 80 mm

; Gradesupported = "S275"

;; dot=Dsupported/tsupported = 36.1

Chk'd by Yasser Date 17/08/2021

Sheet no./rev. 52/00

App'd by Yasser Date 17/08/2021

;Depth of both notches less than limit of D/5 : PASS

climit =if(or(Gradesupported ==“S275”,Gradesupported ==“300”),if(dot<=54.3,Dsupported,160000  Dsupported/dot3), if(dot<=48.0,Dsupported,110000  Dsupported/dot3))

climit = 259.6mm

Length of both notches less than limit : PASS

Check 5- Shear capacityof bolt group connecting cleats to supporting beam

Shearcapacityoftoppairofbolts

;;;;; Psbolts1 =min(Psbolts,0.5  e1cleats  tcleats  pbscleats)= 58.9 kN

Shearcapacityofotherbolts

Psbolts = 58.9 kN

Shearcapacityofboltgroup-sumofboltcapacities

;Psboltssum =2  Psbolts1 +2  (nbolts -1)  Psbolts = 353.3 kN

;Shearonboltgroup;Q= 91.4 kN

Utilisationfactor;Ucheck5 =Q/Psboltssum = 0.259

Check 6- Shear and bearing capacityof cleats connected to supporting beam for shear ;; pycleats = 275 N/mm2

;; e1acleats =e1cleats = 40mm

;; Avcleats =0.9  (2  e1acleats +(nbolts -1)  pbolts)  tcleats = 1710 mm2

Effectivenetareacoefficient Kecleats = 1.20 ; Avnetcleats =Avcleats -nbolts  Dhbolts  tcleats = 1170 mm2

Plainshearcapacityofcleats

PvPcleats =min(0.6  pycleats  Avcleats,0.7  Kecleats  pycleats  Avnetcleats)= 270.3kN Av1cleats =(e1acleats +(nbolts -1)  pbolts)  tcleats = 1500 mm2 ; Ateffcleatssupporting =(e2cleatssupporting -0.5  Dhbolts)  tcleats = 310 mm2

Blockshearcapacityofcleats

PvBcleatssupporting =0.6  pycleats  Av1cleats +0.6  Kecleats  pycleats  Ateffcleatssupporting = 308.9 kN

Shearcapacityoftheanglecleatleg; Pvcleatssupporting =min(PvPcleats,PvBcleatssupporting)= 270.3 kN ;Shearforceonanglecleat;Q/2= 45.7 kN

Utilisationfactor;Ucheck6shear =Q/(2  Pvcleatssupporting)= 0.169

Shear capacity of bolt group to supporting beam : PASS

Shear capacity of cleats to supporting beam: PASS for bearing

Section MittarChoudhry

Calc. by M.Salam

ecleatssupporting =e1cleats = 40 mm bearingstrengthofthecleat

pbscleats = 460N/mm2

Date 17/08/2021

Fortopbolt, bearingcapacityofthelegoftheanglecleatperbolt

Chk'd by Yasser

Date 17/08/2021

Sheet no./rev. 53/00

App'd by Yasser Date 17/08/2021

Pbscleatssupporting1 =min(dbolts  tcleats  pbscleats,0.5  ecleatssupporting  tcleats  pbscleats)= 73.6 kN

Forotherbolts, bearingcapacityofthelegoftheanglecleatperbolt

Pbscleatssupporting =dbolts  tcleats  pbscleats = 73.6kN

Capacityofboltgroup;

Pbscleatssupportingsum =2  Pbscleatssupporting1 +2  (nbolts -1)  Pbscleatssupporting = 441.6kN

Bearingforceonboltgroup;Q= 91.4kN

Utilisationfactor;Ucheck6bearing =Q/Pbscleatssupportingsum = 0.207

Bearing capacity of cleats to supporting beam: PASS

Check 7- Local shear and bearing capacityof supporting beam web for shear;;;;;

;ebsupporting =min(pbolts,Dsupporting -etsupporting -(nbolts -1)  pbolts)= 55 mm Avsupporting =(ebsupporting +(nbolts -1)  pbolts +etsupporting)  tsupporting = 1512 mm2 ; Avnetsupporting =Avsupporting -nbolts  Dhbolts  tsupporting = 1172 mm2 ; pysupporting = 275 N/mm2

Effectivenetareacoefficient

Kesupporting = 1.20

Pvsupporting =min(0.6  pysupporting  Avsupporting,0.7  Kesupporting  pysupporting  Avnetsupporting)= 249.5kN

;Shearloadonsupportingbeam;Q/2= 45.7kN

Utilisationfactor;Ucheck7shear =Q/(2  Pvsupporting)=0.183

Local shear capacity of supporting beam web: PASS for bearing pbssupporting = 460N/mm2

Pbssupporting =dbolts  tsupporting  pbssupporting = 46.4 kN

Q/(2  nbolts)= 15.2kN

Utilisationfactor;Ucheck7bearing =Q/(2  nbolts  Pbssupporting)= 0.329

Local bearing capacity of supporting beam web : PASS

SUMMARY OF RESULTS

Check 2- Capacityof bolt group connecting cleatsto web of supported beam (taking account of eccentricity 'a')

Shearutilisationfactor;Ucheck2shear = 0.438; PASS

Check 3- Capacityof cleat connected to supported beam

Shearutilisationfactor;Ucheck3shear = 0.169; PASS

Bearingutilisationfactor;Ucheck3bearing = 0.350; PASS

Section MittarChoudhry

Calc. by M.Salam Date 17/08/2021

Check 4b - Capacityof the supported beam

Chk'd by Yasser

Date 17/08/2021

Sheet no./rev. 54/00

App'd by Yasser Date 17/08/2021

Shearutilisationfactor;Ucheck4shear = 0.408; PASS

Bearingutilisationfactor;Ucheck4bearing = 0.972; PASS

Check 4c - bending capacity of reduced beam section at thenotch - 2flanges notched

MomentUtilisationfactor;Ucheck4cmoment = 0.504; PASS

Check 4d - local stabilityof notched beamsrestrained against lateral torsional buckling - 2flanges notched

Localstabilitylimit;climit = 259.6 mm; PASS

Check 5- Capacityof bolt group connecting cleatsto supporting beam

Shearutilisationfactor;Ucheck5 = 0.259; PASS

Check 6- Capacityof cleats connected to supporting beam

Shearutilisationfactor;Ucheck6shear = 0.169; PASS

Bearingutilisationfactor;Ucheck6bearing = 0.207; PASS

Check 7- Local capacityof column web

Shearutilisationfactor;Ucheck7shear = 0.183; PASS

Bearingutilisationfactor;Ucheck7bearing = 0.329; PASS

Section MittarChoudhry Sheet no./rev. 55/00

Calc. by M.Salam Date 17/08/2021

Chk'd by Yasser Date 17/08/2021

STEEL CONNECTION (C) BETWEEN B1.11 TO B1.13

(BS5950)

BEAM TO BEAM - CLEAT CONNECTION

Section Details

Supporting Beam - UC 254x254x73;;Gradesupporting = "S275"

Supported Beam - UKB254x146x43;; Gradesupported = "S275"

Cleats 2x RSA 90x90x10;; Gradecleats = "S275"

Bolts M16 (Grade 8.8)

Connection Details

; Bolteccentricityforsupportedbeam; abolts = 50 mm ; numberofboltrows; nbolts = 3 ; Boltpitch;; pbolts = 50 mm ; Boltgauge; gbolts = 110mm ; Endprojection; t1 = 10 mm ; Cleatenddistance(top&bottom); e1cleats = 40mm

App'd by Yasser Date 17/08/2021

; Cleatedgedistanceonsupportedbeam; e2cleatssupported = 40mm ; Cleatedgedistanceonsupportingbeam; e2cleatssupporting = 40mm Cleatlength; lcleats =pbolts(nbolts-1)+2e1cleats = 180mm ;SupportedBeamendreaction; Q= 74.5kN

Notch details

; Topnotchlength; ctopnotch = 125mm ; Topnotchdepth; dctopnotch = 30 mm ; Bottomnotchlength; cbottomnotch = 125mm ; Bottomnotchdepth; dcbottomnotch = 30 mm

Check 1- Essential detailingrequirements

; Cleatthickness; tcleats = 10mm; PASS ; Boltgauge; gbolts = 110mm; PASS ; CleatLength; lcleats = 180mm

; Cleat length for torsional requirements: PASS; ; Cleatsfit between beam fillets: PASS

Check 2- Shear capacityof bolt group connecting cleats to web of supported beam (taking account of eccentricity'a') ;;;; Elasticsectionmodulusofboltgroup

Zbolts =nbolts  (nbolts +1)  pbolts /6 = 100 mm

Section MittarChoudhry

Calc. by M.Salam Date 17/08/2021

Forceonoutermostboltduetomoment

Fm =Q  abolts /Zbolts = 37 kN

Forceonboltduetoshear

Fv =Q/nbolts = 24.8kN

Chk'd by Yasser Date 17/08/2021

Resultantforceonboltduetodirectshearandmoment

Fr = (Fv 2 +Fm 2)= 44.8 kN

Shearcapacityofasingleboltindoubleshear

;2  Psbolts = 117.8 kN

Utilisationfactor;Ucheck2shear =Fr /(2  Psbolts)= 0.380

Check 3- Shear and bearing capacityof cleat connected to supported beam for shear ;; pycleats = 275 N/mm2 ;; e1acleats =e1cleats = 40mm ;; Avcleats =0.9  (2  e1acleats +(nbolts -1)  pbolts)  tcleats = 1620 mm2 ; Avnetcleats =Avcleats -nbolts  Dhbolts  tcleats = 1080 mm2

Effectivenetareacoefficient Kecleats = 1.20

Plainshearcapacityofcleats

PvPcleats =min(0.6  pycleats  Avcleats,0.7  Kecleats  pycleats  Avnetcleats)= 249.5kN Av1cleats =(e1acleats +(nbolts -1)  pbolts)  tcleats = 1400 mm2 ; Ateffcleats =(e2cleatssupported -0.5  Dhbolts)  tcleats = 310 mm2

PvBcleats =0.6  pycleats  Av1cleats +0.6  Kecleats  pycleats  Ateffcleats = 292.4 kN

Shearcapacityoftheanglecleatleg; Pvcleats =min(PvPcleats,PvBcleats)= 249.5 kN

;Shearforceonanglecleat;Q/2= 37.3 kN

Utilisationfactor;Ucheck3shear =Q/(2  Pvcleats)= 0.149

Sheet no./rev. 56/00

App'd by Yasser Date 17/08/2021

Shear capacity to web : PASS

Shear capacity of cleats to beam: PASS for bearing ecleats =min(e1cleats,e2cleatssupported)= 40 mm bearingstrengthofthecleat

pbscleats = 460N/mm2 bearingcapacityofthelegoftheanglecleatperbolt

Pbscleats =min(dbolts  tcleats  pbscleats,0.5  ecleats  tcleats  pbscleats)= 73.6kN ;Bearingforceoncleat;Fr /2= 22.4kN

Utilisationfactor;Ucheck3bearing =Fr /(2  Pbscleats)= 0.304

Check 4b - shear and bearing capacityof the supported beam (2notches) ;;;;for shear ;;

Bearing capacity of cleats to beam: PASS

Section MittarChoudhry

Calc. by M.Salam Date 17/08/2021

pysupported = 275N/mm2

Chk'd by Yasser Date 17/08/2021

; Distancetopsupportedbeamto1st hole;etsupported = 80mm

;;; etasupported =etsupported -dctopnotch = 50mm

; ebsupported =Dsupported -etsupported -(nbolts -1)  pbolts = 80 mm

ebasupported =ebsupported -dcbottomnotch = 50 mm

; Avsupported =0.9  (etasupported +(nbolts -1)  pbolts +ebasupported)  tsupported = 1293mm2 ; Avnetsupported =Avsupported -nbolts  Dhbolts  tsupported = 905 mm2

Effectivenetareacoefficient

Kesupported = 1.20

Plainshearcapacityofbeam

Sheet no./rev. 57/00

App'd by Yasser Date 17/08/2021

PvPsupported =min(0.6  pysupported  Avsupported,0.7  Kesupported  pysupported  Avnetsupported)= 209.0 kN

Av1supported =(etasupported +(nbolts -1)  pbolts)  tsupported = 1080 mm2 ;; e3supported =abolts -t1 = 40 mm

Ateffsupported =(e3supported -0.5  Dhbolts)  tsupported = 223mm2

Blockshearcapacityofbeam

PvBsupported =0.6  pysupported  Av1supported +0.6  Kesupported  pysupported  Ateffsupported = 222.4 kN

Shearcapacityofthebeam; Pvsupported =min(PvPsupported,PvBsupported)= 209.0 kN ;Shearforceonbeam;Q= 74.5kN

Utilisationfactor;Ucheck4shear =Q/Pvsupported = 0.357

for bearing bearingstrengthofthebeam

pbssupported = 460 N/mm2 bearingcapacityofthebeamperbolt

Pbssupported =min(dbolts  tsupported  pbssupported,0.5  e3supported  tsupported  pbssupported)= 53kN ;Resultantbearingforceonbolts;Fr = 44.8 kN

Utilisationfactor;Ucheck4bearing =Fr /Pbssupported = 0.845

Shear capacity of beam : PASS

Bearing capacity of beam : PASS

Check 4c - bending capacity of reduced beam section at thenotch - 2flanges notched ;;;;;; Znotched =tsupported  (Dsupported -dctopnotch -dcbottomnotch)2 /6= 47808mm3

;Momentcapacityofnotchedsection;Mcapnotched =pysupported  Znotched = 13.1kNm ;Momentappliedtonotchedsection;Mappnotched =Q  max(ctopnotch,cbottomnotch)= 9.3kNm

Utilisationfactor;Ucheck4cmoment =Mappnotched /Mcapnotched = 0.708

Moment capacity of notched section : PASS

Check 4d - local stabilityof notched beamsrestrained against lateral torsional buckling - 2 flangesnotched ;;;; Depthoftopnotch;dctopnotch = 30 mm

Lengthoftopnotch;ctopnotch = 125mm

Depthofbottomnotch;dcbottomnotch = 30mm

Lengthofbottomnotch;cbottomnotch = 125 mm

Section MittarChoudhry

Calc. by M.Salam Date 17/08/2021

Checkdepth =max(dctopnotch,dcbottomnotch)= 30 mm

Checklength =max(ctopnotch,cbottomnotch)= 125mm

; Gradesupported = "S275"

;; dot=Dsupported/tsupported = 36.1

Chk'd by Yasser Date 17/08/2021

Sheet no./rev. 58/00

App'd by Yasser Date 17/08/2021

;Depth of both notches less than limit of D/5 : PASS

climit =if(or(Gradesupported ==“S275”,Gradesupported ==“300”),if(dot<=54.3,Dsupported,160000  Dsupported/dot3), if(dot<=48.0,Dsupported,110000  Dsupported/dot3))

climit = 259.6mm

Length of both notches less than limit : PASS

Check 5- Shear capacityof bolt group connecting cleats to supporting beam

Shearcapacityoftoppairofbolts

;;;;; Psbolts1 =min(Psbolts,0.5  e1cleats  tcleats  pbscleats)= 58.9 kN

Shearcapacityofotherbolts

Psbolts = 58.9 kN

Shearcapacityofboltgroup-sumofboltcapacities

;Psboltssum =2  Psbolts1 +2  (nbolts -1)  Psbolts = 353.3 kN

;Shearonboltgroup;Q= 74.5 kN

Utilisationfactor;Ucheck5 =Q/Psboltssum = 0.211

Check 6- Shear and bearing capacityof cleats connected to supporting beam for shear ;; pycleats = 275 N/mm2

;; e1acleats =e1cleats = 40mm

;; Avcleats =0.9  (2  e1acleats +(nbolts -1)  pbolts)  tcleats = 1620 mm2

Effectivenetareacoefficient Kecleats = 1.20 ; Avnetcleats =Avcleats -nbolts  Dhbolts  tcleats = 1080 mm2

Plainshearcapacityofcleats

PvPcleats =min(0.6  pycleats  Avcleats,0.7  Kecleats  pycleats  Avnetcleats)= 249.5kN Av1cleats =(e1acleats +(nbolts -1)  pbolts)  tcleats = 1400 mm2 ; Ateffcleatssupporting =(e2cleatssupporting -0.5  Dhbolts)  tcleats = 310 mm2

Blockshearcapacityofcleats

PvBcleatssupporting =0.6  pycleats  Av1cleats +0.6  Kecleats  pycleats  Ateffcleatssupporting = 292.4 kN

Shearcapacityoftheanglecleatleg; Pvcleatssupporting =min(PvPcleats,PvBcleatssupporting)= 249.5 kN ;Shearforceonanglecleat;Q/2= 37.3 kN

Utilisationfactor;Ucheck6shear =Q/(2  Pvcleatssupporting)= 0.149

Shear capacity of bolt group to supporting beam : PASS

Shear capacity of cleats to supporting beam: PASS for bearing

Section Mittar Choudhry

Calc. by M.Salam Date 17/08/2021

ecleatssupporting = e1cleats = 40 mm

bearing strength of thecleat

pbscleats = 460N/mm2

For topbolt,

bearing capacity of theleg of the anglecleat per bolt

Chk'd by Yasser

Date 17/08/2021

Sheet no./rev. 59 / 00

App'd by Yasser Date 17/08/2021

Pbscleatssupporting1 = min(dbolts  tcleats  pbscleats, 0.5  ecleatssupporting  tcleats  pbscleats) = 73.6 kN

For other bolts, bearing capacity of theleg of the anglecleat per bolt

Pbscleatssupporting = dbolts  tcleats  pbscleats = 73.6kN

Capacity of bolt group; Pbscleatssupportingsum = 2  Pbscleatssupporting1 + 2  (nbolts - 1)  Pbscleatssupporting = 441.6kN

Bearingforce on bolt group; Q = 74.5kN

Utilisationfactor; Ucheck6bearing =Q / Pbscleatssupportingsum = 0.169

Bearing capacity of cleats to supporting beam: PASS

Check 7- Local shear and bearing capacityof supporting beam web for shear;;;;;

;ebsupporting = min(pbolts, Dsupporting - etsupporting - (nbolts - 1)  pbolts) = 50 mm

Avsupporting = (ebsupporting + (nbolts - 1)  pbolts + etsupporting)  tsupporting = 1978 mm2 ; Avnetsupporting = Avsupporting - nbolts  Dhbolts  tsupporting = 1514 mm2 ; pysupporting = 275 N/mm2

Effectivenet areacoefficient Kesupporting = 1.20

Pvsupporting = min(0.6  pysupporting  Avsupporting, 0.7  Kesupporting  pysupporting  Avnetsupporting) = 326.4kN

;Shear load onsupporting beam; Q / 2 = 37.3kN

Utilisationfactor; Ucheck7shear = Q /(2  Pvsupporting) =0.114

Local shear capacity of supporting beam web: PASS for bearing pbssupporting = 460N/mm2

Pbssupporting = dbolts  tsupporting  pbssupporting = 63.3 kN

Q /(2  nbolts) = 12.4kN

Utilisationfactor; Ucheck7bearing =Q / (2  nbolts  Pbssupporting) = 0.196

Local bearing capacity of supporting beam web : PASS

SUMMARY OF RESULTS

Check 2- Capacityof bolt group connecting cleatsto web of supported beam (taking account of eccentricity 'a')

Shear utilisation factor; Ucheck2shear = 0.380; PASS

Check 3- Capacityof cleat connected to supported beam

Shear utilisation factor; Ucheck3shear = 0.149; PASS

Bearing utilisation factor; Ucheck3bearing = 0.304; PASS

Section Mittar Choudhry

Calc. by M.Salam

Date 17/08/2021

Check 4b - Capacityof the supported beam

Chk'd by Yasser

Date 17/08/2021

Sheet no./rev. 60 / 00

App'd by Yasser Date 17/08/2021

Shear utilisation factor; Ucheck4shear = 0.357; PASS

Bearingutilisationfactor; Ucheck4bearing = 0.845; PASS

Check 4c - bending capacity of reduced beam section at thenotch - 2flanges notched

Moment Utilisation factor; Ucheck4cmoment = 0.708; PASS

Check 4d - local stabilityof notched beamsrestrained against lateral torsional buckling - 2flanges notched

Local stability limit; climit = 259.6 mm; PASS

Check 5- Capacityof bolt group connecting cleatsto supporting beam

Shear utilisation factor; Ucheck5 = 0.211; PASS

Check 6- Capacityof cleats connected to supporting beam

Shear utilisation factor; Ucheck6shear = 0.149; PASS

Bearingutilisationfactor; Ucheck6bearing = 0.169; PASS

Check 7- Local capacityof column web

Shear utilisation factor; Ucheck7shear = 0.114; PASS

Bearingutilisationfactor; Ucheck7bearing = 0.196; PASS

Project:

Project no:

Author:

Project data

99HeadstoneLane, Harrow, HA2 6JL

210814

M.Salam

Projectname 99HeadstoneLane,Harrow,HA26JL

Projectnumber 210814

Author M.Salam

Description SteelConnection(D),(E),(F),and(G)

Date 17/08/2021

Material

Steel S275 Concrete C25/30

Project:

Project no:

Author:

Project item Steel Connection (D) Between B1.13 to C2

Design

Name SteelConnection(D)BetweenB1.13toC2

Description BoxFrameTopConnection

Analysis Stress,strain/simplifiedloading

Beamsandcolumns Name

Project: Project no:

Author: 99HeadstoneLane, Harrow, HA2 6JL

M.Salam

Project: Project no:

Author:

Cross-sections

Author:

Bolts

Loadeffects(equilibriumnotrequired)

Check Summary

Plates

Design data

Project: Projectno:

Author: 99HeadstoneLane,Harrow,HA26JL 210814

M.Salam

Overallcheck,LE1

Straincheck,LE1

Author:

Equivalentstress,LE1 Bolts NameGradeLoads

B1M208.8-1LE133.219.023.5244.220.237.0OK

B2M208.8-1LE133.619.023.8244.220.237.2OK

B3M208.8-1LE12.815.22.0244.216.217.6OK

B4M208.8-1LE12.715.21.9244.216.217.6OK

B5M208.8-1LE10.618.60.4244.219.820.1OK

B6M208.8-1LE10.618.60.4244.219.820.1OK

B7M208.8-1LE196.223.168.2214.324.573.2OK

B8M208.8-1LE196.223.168.2214.324.573.2OK

B9M208.8-2LE115.867.711.2258.071.979.9OK

B10M208.8-2LE122.664.816.0258.068.980.3OK

B11M208.8-2LE115.867.611.2258.071.979.9OK

B12M208.8-2LE122.664.816.0258.068.980.3OK

B13M208.8-1LE122.365.415.8214.569.580.7OK

B14M208.8-1LE110.567.27.5195.671.476.7OK

B15M208.8-1LE122.365.415.8214.569.580.8OK

B16M208.8-1LE110.567.27.4195.671.476.7OK

Author:

Design data

Welds(Plasticredistribution)

EP1C-bfl1 ⏊10.0 255LE159.20.049.6-5.917.816.010.7OK

EP1C-tfl1 ⏊10.0 255LE1398.51.2-117.81.5219.898.593.6OK

EP1C-w1 ⏊10.0⏊ 240LE1294.00.0-100.2123.1-101.572.628.2OK ⏊10.0⏊ 240LE1292.60.0-102.0-122.2100.772.328.0OK

SP1B-bfl1 ⏊8.0 255LE1169.90.0-41.5-14.7-93.942.029.2OK

SP1B-tfl1 ⏊8.0 255LE155.10.030.0-25.48.213.68.9OK

SP1B-w1 ⏊8.0⏊ 240LE1237.70.06.2137.16.258.732.7OK ⏊8.0⏊ 240LE1237.60.06.1-137.0-6.158.732.7OK

B-bfl1STIFF1a ⏊8.0⏊ 110LE1304.20.0-141.568.4-139.675.259.6OK ⏊8.0⏊ 110LE1156.40.0-67.1-43.968.838.720.8OK

B-w1STIFF1a ⏊8.0⏊ 200LE1120.30.0-48.7-57.9-26.129.717.8OK

⏊8.0⏊ 200LE1128.50.0-8.767.131.331.819.5OK

B-tfl1STIFF1a ⏊8.0⏊ 110LE1112.10.015.463.9-5.327.717.3OK

⏊8.0⏊ 110LE1180.20.0-98.0-40.677.344.525.8OK

B-bfl1STIFF1b ⏊8.0⏊ 110LE1156.20.0-66.344.4-68.538.620.9OK ⏊8.0⏊ 110LE1303.60.0-141.2-69.3138.975.059.7OK

B-w1STIFF1b ⏊8.0⏊ 200LE1128.60.0-8.7-67.2-31.331.819.5OK ⏊8.0⏊ 200LE1120.40.0-48.658.026.029.817.8OK

B-tfl1STIFF1b ⏊8.0⏊ 110LE1180.10.0-98.040.5-77.344.525.8OK ⏊8.0⏊ 110LE1111.90.015.4-63.85.327.717.3OK

Design data

Author:

Billofmaterial

M.Salam

Manufacturingoperations

Fillet:a=10.0254.6

EP1P15.0x254.6-454.1(S275)1Fillet:a=10.0254.6M208.88

Doublefillet:a=10.0239.9

SP1P15.0x258.0-258.0(S275)1M208.84

Fillet:a=8.0254.6 CUT2Fillet:a=8.0254.6

Doublefillet:a=8.0239.9

SP2P15.0x479.0-258.0(S275)1M208.88

STIFF1P15.0x123.0-225.7(S275)2Doublefillet:a=8.0841.8

Welds

Project: Projectno:

Author:

Drawing

P15.0x454-255(S275)

Author:

SP1

P15.0x258-258(S275)

SP2

P15.0x258-479(S275)

Project: Projectno:

Author:

STIFF1

P15.0x226-123(S275)

C,UC254x254x73-Bottomflange1:

Project: Projectno:

Author: 99HeadstoneLane,Harrow,HA26JL 210814

M.Salam

B,UC254x254x73-Bottomflange1:

Project:

Project no:

Author: 99HeadstoneLane, Harrow, HA2 6JL 210814

M.Salam

Project item Steel Connection (E)Between B1.13 to C1

Design

Name SteelConnection(E)BetweenB1.13toC1

Description BoxFrameTopConnection

Analysis Stress,strain/simplifiedloading

Beamsandcolumns Name

Project: Project no:

Author: 99HeadstoneLane, Harrow, HA2 6JL

M.Salam

Project: Project no:

Author:

HeadstoneLane, Harrow, HA2 6JL

Cross-sections

Author:

Bolts

Loadeffects(equilibriumnotrequired)

Check Summary

Plates

Design data

Project: Projectno:

Author: 99HeadstoneLane,Harrow,HA26JL

210814

M.Salam

Overallcheck,LE1

Straincheck,LE1

Author:

Equivalentstress,LE1 Bolts NameGradeLoads

B1M208.8-1LE134.419.924.4244.221.238.6OK

B2M208.8-1LE134.819.924.7244.221.238.8OK

B3M208.8-1LE12.815.92.0244.216.918.3OK

B4M208.8-1LE12.715.91.9244.216.918.3OK

B5M208.8-1LE10.619.30.5244.220.520.8OK

B6M208.8-1LE10.619.30.4244.220.520.8OK

B7M208.8-1LE195.424.267.6214.325.874.0OK

B8M208.8-1LE195.424.267.6214.225.774.0OK

B9M208.8-2LE116.168.111.4258.072.480.6OK

B10M208.8-2LE123.365.116.5258.069.281.0OK

B11M208.8-2LE116.168.111.4258.072.480.5OK

B12M208.8-2LE123.365.116.5258.069.281.0OK

B13M208.8-1LE123.065.716.3214.569.881.5OK

B14M208.8-1LE110.667.67.5195.671.877.2OK

B15M208.8-1LE123.065.716.3214.569.981.5OK

B16M208.8-1LE110.567.67.5195.671.877.1OK

Author:

Design data

Welds(Plasticredistribution)

EP1C-bfl1 ⏊10.0 255LE159.60.050.2-6.017.616.210.8OK

EP1C-tfl1 ⏊10.0 255LE1398.61.3-119.21.5219.698.595.4OK

EP1C-w1 ⏊10.0⏊ 240LE1315.70.0-110.0129.5-111.478.029.3OK ⏊10.0⏊ 240LE1314.20.0-111.9-128.5110.577.629.2OK

SP1B-bfl1 ⏊8.0 255LE1172.90.0-42.8-15.1-95.542.729.7OK

SP1B-tfl1 ⏊8.0 255LE157.30.032.5-25.79.014.19.1OK

SP1B-w1 ⏊8.0⏊ 240LE1244.00.05.6140.75.560.333.0OK ⏊8.0⏊ 240LE1243.90.05.4-140.7-5.460.333.0OK

B-bfl1STIFF1a ⏊8.0⏊ 110LE1316.50.0-146.273.2-144.678.261.1OK ⏊8.0⏊ 110LE1165.80.0-70.7-47.772.241.021.4OK

B-w1STIFF1a ⏊8.0⏊ 200LE1122.40.0-49.9-58.7-26.630.218.0OK ⏊8.0⏊ 200LE1130.90.0-8.868.232.232.319.8OK

B-tfl1STIFF1a ⏊8.0⏊ 110LE1114.00.016.264.9-5.228.217.8OK

⏊8.0⏊ 110LE1184.60.0-100.9-40.979.445.626.5OK

B-bfl1STIFF1b ⏊8.0⏊ 110LE1165.50.0-69.948.3-71.940.921.6OK

⏊8.0⏊ 110LE1315.80.0-145.9-74.2143.778.061.2OK

B-w1STIFF1b ⏊8.0⏊ 200LE1131.00.0-8.8-68.3-32.132.419.9OK ⏊8.0⏊ 200LE1122.50.0-49.958.926.630.318.1OK

B-tfl1STIFF1b ⏊8.0⏊ 110LE1184.50.0-100.840.8-79.345.626.5OK ⏊8.0⏊ 110LE1113.90.016.3-64.95.228.117.8OK

Design data

Author:

Billofmaterial

M.Salam

Manufacturingoperations

Fillet:a=10.0254.6

EP1P15.0x254.6-454.1(S275)1Fillet:a=10.0254.6M208.88

Doublefillet:a=10.0239.9

SP1P15.0x258.0-258.0(S275)1M208.84

Fillet:a=8.0254.6 CUT2Fillet:a=8.0254.6

Doublefillet:a=8.0239.9

SP2P15.0x479.0-258.0(S275)1M208.88

STIFF1P15.0x123.0-225.7(S275)2Doublefillet:a=8.0841.8

Welds

Bolts

Project: Projectno:

Author:

Drawing

P15.0x454-255(S275)

Author:

SP1

P15.0x258-258(S275)

SP2

P15.0x258-479(S275)

Project: Projectno:

Author:

STIFF1

P15.0x226-123(S275)

C,UC254x254x73-Bottomflange1:

Project: Projectno:

Author: 99HeadstoneLane,Harrow,HA26JL 210814

M.Salam

B,UC254x254x73-Bottomflange1:

Project:

Project no:

Author:

Project item Steel Connection (F) Between Ground Beam to C2

Design

Name SteelConnection(F)BetweenGroundBeamtoC2

Description BoxFrameBottomConnection

Analysis Stress,strain/simplifiedloading

Beamsandcolumns

Project: Project no:

Author: 99HeadstoneLane, Harrow, HA2 6JL

Project: Project no:

Author: 99HeadstoneLane, Harrow, HA2 6JL

Cross-sections

Author:

Bolts

Loadeffects(equilibriumnotrequired)

Check Summary

Plates

Design data

Project: Projectno:

Author: 99HeadstoneLane,Harrow,HA26JL 210814

M.Salam

Overallcheck,LE1

Straincheck,LE1

Author:

M.Salam

Equivalentstress,LE1 Bolts

Designdata

B1LE11.61.51.7137.62.53.8OK

B2LE11.51.51.7137.62.53.8OK

B3LE11.81.01.9137.61.73.1OK

B4LE11.81.02.0137.61.73.1OK

B5LE12.50.42.8137.60.72.7OK

B6LE12.50.42.8137.60.72.7OK

B7LE10.31.20.3137.62.02.2OK

B8LE10.31.20.3137.62.02.2OK

B9LE10.82.40.9137.63.94.6OK

B10LE10.52.10.6137.63.43.9OK

B11LE10.82.40.9137.63.94.6OK

B12LE10.52.10.6137.63.43.9OK

B13LE12.41.82.6137.62.94.8OK

B14LE10.22.70.2137.64.54.6OK

B15LE12.41.82.6137.62.94.8OK

B16LE10.22.70.2137.64.54.6OK

Project:

Projectno:

Author: 99HeadstoneLane,Harrow,HA26JL

210814

M.Salam

Welds(Plasticredistribution)

EP1C-bfl1⏊8.0255LE117.60.02.90.010.04.31.7OK

EP1C-tfl1⏊8.0255LE193.20.0-43.19.746.723.016.6OK

EP1C-w1⏊8.0⏊240LE185.00.0-42.5-2.6-42.421.06.9OK ⏊8.0⏊240LE185.10.0-42.42.542.521.06.9OK

SP1B-bfl1⏊8.0255LE126.90.0-17.79.8-6.36.62.1OK

SP1B-tfl1⏊8.0255LE190.70.0-49.713.5-41.722.416.0OK

SP1B-w1⏊8.0⏊240LE157.90.06.232.76.014.311.3OK ⏊8.0⏊240LE157.80.05.9-32.7-6.114.311.4OK

B-bfl1STIFF1a⏊8.0⏊110LE112.10.0-9.24.5-0.53.02.5OK

⏊8.0⏊110LE115.50.013.0-2.2-4.34.22.4OK

B-w1STIFF1a⏊8.0⏊200LE111.50.09.80.83.33.21.5OK

⏊8.0⏊200LE17.90.04.53.12.12.00.9OK

B-tfl1STIFF1a⏊8.0⏊110LE113.00.08.75.41.43.22.7OK

⏊8.0⏊110LE114.70.0-11.9-1.74.63.82.0OK

B-bfl1STIFF1b⏊8.0⏊110LE115.50.013.02.24.34.22.5OK

⏊8.0⏊110LE112.10.0-9.2-4.50.53.02.5OK

B-w1STIFF1b⏊8.0⏊200LE17.90.04.5-3.1-2.11.90.9OK

⏊8.0⏊200LE111.50.09.8-0.8-3.33.21.5OK

B-tfl1STIFF1b⏊8.0⏊110LE114.70.0-12.01.8-4.63.92.0OK

⏊8.0⏊110LE112.90.08.7-5.3-1.43.22.7OK

Designdata

Buckling

Project: Projectno:

Author: 99HeadstoneLane,Harrow,HA26JL 210814

M.Salam

Billofmaterial

Manufacturingoperations

Fillet:a=8.0254.6

EP1P10.0x254.6-454.1(S275)1Fillet:a=8.0254.6M168.88

Doublefillet:a=8.0239.9

SP1P10.0x258.0-258.0(S275)1M168.84

Fillet:a=8.0254.6 CUT2Fillet:a=8.0254.6

Doublefillet:a=8.0239.9

SP2P10.0x479.0-258.0(S275)1M168.88

STIFF1P10.0x123.0-225.7(S275)2Doublefillet:a=8.0841.8

Welds

FilletS2758.011.3509.2 FilletS2758.011.3509.2 DoublefilletS2758.011.31321.6

Bolts

Project: Projectno:

Author:

P10.0x454-255(S275)

SP1

P10.0x258-258(S275)

Author:

SP2

P10.0x258-479(S275)

STIFF1

P10.0x226-123(S275)

Project: Projectno:

Author:

C,UC254x254x73-Topflange1:

B,UC254x254x73-Topflange1:

Project:

Projectno:

Author:

99HeadstoneLane,Harrow,HA26JL

210814

M.Salam

ProjectitemSteelConnection(G)BetweenGroundBeamtoC1

Design

NameSteelConnection(G)BetweenGroundBeamtoC1

DescriptionBoxFrameBottomConnection AnalysisStress,strain/simplifiedloading

Beamsandcolumns

NameCross-sectionβ–Direction

C1-UC254x254x730.0-90.00.0000Node0

B2-UC254x254x730.00.00.0000Node0

Project:

Author:

M.Salam

Project: Projectno:

Author:

M.Salam

Cross-sections

Author:

Loadeffects(equilibriumnotrequired)

Designdata

Project: Projectno:

Author: 99HeadstoneLane,Harrow,HA26JL 210814

M.Salam

Overallcheck,LE1

Straincheck,LE1

Author:

M.Salam

Equivalentstress,LE1 Bolts

Designdata

B1LE11.51.41.7137.62.43.5OK

B2LE11.51.41.6137.62.43.5OK

B3LE10.10.90.1137.61.61.7OK

B4LE10.10.90.1137.61.61.7OK

B5LE10.80.40.9137.60.61.2OK

B6LE10.80.40.9137.60.61.2OK

B7LE10.41.20.4137.62.02.2OK

B8LE10.41.20.4137.62.02.2OK

B9LE10.82.20.9137.63.74.3OK

B10LE10.52.00.6137.63.33.7OK

B11LE10.82.20.9137.63.74.3OK

B12LE10.52.00.6137.63.33.7OK

B13LE12.21.72.5137.62.84.5OK

B14LE10.22.50.2137.64.24.4OK

B15LE12.21.72.5137.62.84.5OK

B16LE10.22.50.2137.64.24.4OK

Project:

Projectno:

Author: 99HeadstoneLane,Harrow,HA26JL

210814

M.Salam

Welds(Plasticredistribution) ItemEdgeThroatth.

EP1C-bfl1⏊8.0255LE18.20.01.00.04.72.00.7OK

EP1C-tfl1⏊8.0255LE189.40.0-41.39.544.822.115.9OK

EP1C-w1⏊8.0⏊240LE180.70.0-40.3-2.9-40.319.97.1OK ⏊8.0⏊240LE180.80.0-40.32.840.420.07.1OK

SP1B-bfl1⏊8.0255LE125.90.0-17.09.5-6.06.42.1OK

SP1B-tfl1⏊8.0255LE186.40.0-47.213.0-39.721.315.3OK

SP1B-w1⏊8.0⏊240LE155.10.05.931.15.713.610.8OK ⏊8.0⏊240LE155.10.05.5-31.1-5.713.610.8OK

B-bfl1STIFF1a⏊8.0⏊110LE112.00.0-9.74.0-0.83.12.5OK

⏊8.0⏊110LE115.10.013.0-1.6-4.14.22.4OK

B-w1STIFF1a⏊8.0⏊200LE111.50.09.81.53.13.21.6OK

⏊8.0⏊200LE17.80.04.72.92.11.91.0OK

B-tfl1STIFF1a⏊8.0⏊110LE112.60.09.14.81.63.12.5OK

⏊8.0⏊110LE114.90.0-12.3-1.04.84.02.4OK

B-bfl1STIFF1b⏊8.0⏊110LE115.10.013.01.64.14.22.4OK

⏊8.0⏊110LE112.00.0-9.7-4.00.83.12.5OK

B-w1STIFF1b⏊8.0⏊200LE17.70.04.7-2.9-2.11.91.0OK

⏊8.0⏊200LE111.50.09.8-1.5-3.13.21.6OK

B-tfl1STIFF1b⏊8.0⏊110LE115.00.0-12.31.1-4.84.02.4OK

⏊8.0⏊110LE112.50.09.1-4.7-1.53.12.5OK

Designdata

Buckling

Project: Projectno:

Author: 99HeadstoneLane,Harrow,HA26JL 210814

M.Salam

Billofmaterial

Manufacturingoperations

Fillet:a=8.0254.6

EP1P10.0x254.6-454.1(S275)1Fillet:a=8.0254.6M168.88

Doublefillet:a=8.0239.9

SP1P10.0x258.0-258.0(S275)1M168.84

Fillet:a=8.0254.6 CUT2Fillet:a=8.0254.6

Doublefillet:a=8.0239.9

SP2P10.0x479.0-258.0(S275)1M168.88

STIFF1P10.0x123.0-225.7(S275)2Doublefillet:a=8.0841.8

Welds

FilletS2758.011.3509.2 FilletS2758.011.3509.2 DoublefilletS2758.011.31321.6

Bolts

Project: Projectno:

Author:

P10.0x454-255(S275)

SP1

P10.0x258-258(S275)

Author:

SP2

P10.0x258-479(S275)

STIFF1

P10.0x226-123(S275)

Project: Projectno:

Author:

C,UC254x254x73-Topflange1:

B,UC254x254x73-Topflange1:

Padstone Calculator ( For Beams B1.10 & B1.15 & B1.16 )

COMPLIES WITH LATEST BRITISH STANDARDS DESIGN CODES

structural calculations for padstones

Beam End Reaction = 40.00 kN (factored)Variable Load SafetyFactor = 1.5

Factored Load at End of BeamPermanent Load SafetyFactor = 1.35

Characteristic strength of masonry= 4.5 N/mm²( Brickwork usually= 4.5 N/mm² )

( 3.6N Blockwork usually= 2.6 N/mm²)

Width of beam end bearing = 100 mm( A Engineering Brick = 13.2 N/mm² )

Length of beam end bearing = 150 mm( B Engineering Brick = 10.5 N/mm² )

( Weak Brickwork = approx 2.8 N/mm² )

( 7.3N Blockwork usually= 4.2 N/mm² )

(10.4N Blockwork usually= 5.4 N/mm² )

γm = 3.0

Bearing Factor = 1.25

Results

Maximum Bearing Stress =1.88N/mm²

Actual Bearing Stress =2.67N/mm²

Padstone Results

Padstone Required

Characteristic strength of Padstone = 50.0 N/mm²( A Engineering Brick = 13.2 N/mm² )

( B Engineering Brick = 10.5 N/mm² )

Width of Padstone = 100 mm( Concrete C15 = 15 N/mm² )

Length of Padstone = 300 mm( Concrete C30 = 30 N/mm² ) ( Concrete C40 = 40 N/mm² ) ( Steel Plate = 275 N/mm² )

Allowable padstone stress =20.83N/mm²

Stress under beam end bearing =2.67N/mm²Therefore Padstone Stress OK

Allowable masonrystress =1.88N/mm²

Stress under padstone =1.33N/mm²Therefore MasonryStress OK

(Therefore, use 2No. C50 Padstone 300mm Length X 100mm Width X 215mm Height)

Padstone Calculator ( For Beams B1.12 & B2.20 )

COMPLIES

WITH LATEST BRITISH STANDARDS DESIGN CODES

structural calculations for padstones

Beam End Reaction = 103.00 kN (factored)Variable Load SafetyFactor = 1.5

Factored Load at End of BeamPermanent Load SafetyFactor = 1.35

Characteristic strength of masonry= 4.5 N/mm²( Brickwork usually= 4.5 N/mm² )

( 3.6N Blockwork usually= 2.6 N/mm²)

Width of beam end bearing = 152 mm( A Engineering Brick = 13.2 N/mm² )

Length of beam end bearing = 100 mm( B Engineering Brick = 10.5 N/mm² )

( Weak Brickwork = approx 2.8 N/mm² )

( 7.3N Blockwork usually= 4.2 N/mm² )

(10.4N Blockwork usually= 5.4 N/mm² )

γm = 3.0

Bearing Factor = 1.25

Results

Maximum Bearing Stress =1.88N/mm²

Actual Bearing Stress =6.78N/mm²

Padstone Results

Padstone Required

Characteristic strength of Padstone = 50.0 N/mm²( A Engineering Brick = 13.2 N/mm² )

( B Engineering Brick = 10.5 N/mm² )

Width of Padstone = 100 mm( Concrete C15 = 15 N/mm² )

Length of Padstone = 600 mm( Concrete C30 = 30 N/mm² ) ( Concrete C40 = 40 N/mm² )

Allowable padstone stress =20.83N/mm²

( Steel Plate = 275 N/mm² )

Stress under beam end bearing =6.78N/mm²Therefore Padstone Stress OK

Allowable masonrystress =1.88N/mm²

Stress under padstone =1.72N/mm²Therefore MasonryStress OK

(Therefore, use C50 Padstone 600mm Length X 100mm Width X 215mm Height)

Turn static files into dynamic content formats.

Create a flipbook
Issuu converts static files into: digital portfolios, online yearbooks, online catalogs, digital photo albums and more. Sign up and create your flipbook.