INTERIOR DESIGN

![]()
INTERIOR DESIGN











穿梭在不同空間 , 也象徵角色 、 氛圍的
轉變 ,而遊走並感受各個場域交錯的過渡
空間 , 也是給予自身轉換與調適的一隅 。


· 基地位置 — 木再生工作室 — 桃園市大溪區 。
· 主要為木頭回收再利用 , 產品多樣且不限木種 。
· 此店多以文創 、 木藝品為主 , 而非傳統木製品 。
· 建築類型是大溪區在清朝時的面寬窄 、 縱深長
的狹長形連棟店面結合住宅的 「街屋」 型式 。
背景分析

業主 & 商業行為設定

男為木藝師 , 女為家庭主婦 , 兩人皆喜
歡日本茶藝文化 , 閒暇時會結伴品茶 。
及��歲 , 需要自我空間,興趣為繪畫。 小 孩
木製 文創
兩位小孩皆為高中男生 , 分別是��以
店內之木製商業行為結合業主夫妻的興趣 — 日本茶藝 , 其中茶具為主要展售商品 。


此設計業主共有四人 、 又分出商業與生活 、 私人與公共空間
, 創造除了許多不同領域 , 穿梭在不同領域之間會產生行為 、
氛圍 、 心境上的變化 , 於是我藉過渡空間完善其中的轉變 。
而在日本文化與建築中 , 過渡空間時常出現 。 鳥居與茶室除了
在建築形式上的轉換感 , 也讓人在使用時有相應的儀式性行為 。
· 茶室 — 進入茶室前需要經過的露庭 、 需蹲下才能進入的躙口 、
供人洗手 、 漱口的小水池 — 蹲踞 , 皆是富含深意的設計 。
· 鳥居 — 建物給人的限縮感 , 穿越亦需虔誠行禮 。

在兩個不同空間交錯的區域 , 創造出一段過渡
空間 , 給人做行為 、 氛圍 、 心境的轉換 。 而
過渡空間從日本茶室與鳥居的量體參照概念 。




門檻 、 跨越
以近似茶室縮小的入口 — 躙口為參照 , 除了縮小 入口外 , 讓人有跨越門檻的一種儀式性行為產生 。
框架 、 限縮
以日本鳥居為參照 , 將除地面之外的三邊內縮 , 創造類似鳥居的出入口 , 讓兩側空間更有區隔 。
窄口 、 改向
同樣以躙口作為參照 , 將通道改成靠近壁面一側 , 改向之外也縮減了入口 , 增強過渡空間感受 。








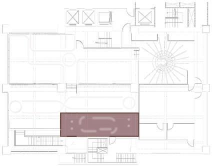
平面圖




















跟隨著中世紀絕妙作品的步調 , 探尋地
獄與藝術的層層交織 , 向著深處體驗的 過程中 , 感受原罪與火鍋之間的火花 。
背景分析


基地位處桃園藝文特區 , 是結合商業 、 藝文 、 生活於一體的樂
土由於基地身處藝文特區 , 關乎基地氛圍與客群特性 , 便選擇藝 文活動作為主題 。 藝文特區的願景是將台灣與世界的藝文活動接
軌 , 於是選擇的主題作品便是歐洲的歷史時期 ⸺ 文藝復興 ,
其中多彩多樣的作品十分值得我們借鏡 , 一探其飽含的深意 。
背景分析

餐廳主題設定

基地條件分析文藝復興的但丁以其神曲為當代及後世所
讚頌 , 將地獄之旅以多層次的形象描繪 , 影響後世人
對地獄的想象 , 亦產生諸多延伸作品 。 波提且利的地獄 圖是參照但丁的 “神曲” 中所描繪的地獄形式 , 而畫中
的地獄形似上寬下窄的漏斗 , 每一層都有詩中的具體場
景 , 由上往下共分為 � 層 , 越往下代表靈魂的刑罰越重 。
設計概念


第一獄 | 靈薄獄
並非大眾認知的地獄那般殘忍 ,
主要是作為地獄的入口及等候審
判之地 , 也是一個靈魂的中立國 。
第四獄 | 滾石獄
其是為了懲罰貪婪之人 , 而貪婪分
為無節制揮霍與吝嗇 , 前者會被罰
從山頂搬巨石到下 , 後者則是相反 。
徘徊、等候 : 此處現象是等候審判的人
們會在此處聚集,靈魂會在此處徘徊、等候 。
第七獄 | 參谷獄
叁谷是地獄的第七獄 , 主要是懲戒
殘暴之徒 , 並有一位著名的怪物鎮
守此地 ⸺ 牛頭怪米諾陶洛斯 。
滾石 : 石頭是這層最主要的特色於及地形 。
輪迴 : 懲罰是上下山交替重複 , 如同一個輪迴 。
地心
地心就是地獄的最底 , 而此處
就是撒旦所處之地 , 但可以見
到的是困在冰中的三頭魔王撒旦 。
血池 : 對他人施暴者會浸泡在沸騰的血中 。
枯木森林 : 不愛惜自身會變枯樹遭女妖啄食。
燃燒沙漠 : 瀆神與放高利貸會受到火雨的折磨 。
撒旦 ⸺ 作為這片區域及整個地獄的代表者,在 此地被限制行動 , 唯有翅膀仍在拍動 。
冰湖 ⸺ 被撒旦翅膀鼓動影響的地形 。
設計概念

透過還原地獄模式 、 畫作中的樣貌 , 讓人感受層層之間的不同特色 , 了解地 獄互動關係 , 並能如同一趟旅程一般 , 慢慢深入遊歷地獄 , 深刻體會其內涵 。



將地獄圖中的高低層次 、
次序關係運用至空間中 。
每個階層將故事關係與場
景樣貌於空間中呈現 。
餐點的辣度隨著階層深入增加 ,
以此呼應地獄越下層罪孽越深。

曲線構造 第一獄 | 靈薄獄
| 滾石獄
| 參谷獄
原始結構




第一層是靈薄獄 , 主要作為櫃檯
及等候區 , 將櫃檯與座位等候區
連接 , 並以等候區分隔空間 ,
使動線呈現排隊結賬及等候兩類。

第三層叁谷獄也是用餐區 , 主要分
為三區 ⸺ 血池 、 沙漠及枯木 ,
於地板以溝槽劃分三區 , 並將各個
特色表現其中 , 並適度往高處延伸 。

第二層是滾石獄用餐區 , 以碎石地
為底 , 再鋪上石板呈現整體以石頭
為主體的環境 , 最後在狹長的兩端
都設置較大的岩石 , 兩邊都既是開
始也是結束 , 象徵周而復始的輪迴 。

最底層是地心 ⸺ 撒旦之地 , 以圓
形自助吧檯呈現 , 圓形將動線 、 視
線集中於中心處 , 此區材質以白灰
色為主 , 除了呈現冰河感 , 亦是為
了凸顯此地為最惡之地 、 地獄終點 。




第一層 ⸺ 靈薄獄的燈條主
要以呈現靈魂徘徊的狀態為
主 , 以等候區為中心環繞 。

第二層 ⸺ 滾石獄的燈條是 呈現兩端的方向性 、 互相交
錯 、 彼此輪迴的狀態 。


第三層 ⸺ 叁谷獄的燈是呈現出 三谷各自分隔 , 而在三區的中間 則有牛頭人守護者佇立的模式 。
地心 ⸺ 吧檯區的天花弧形造 型是為了呈現撒旦的翅膀羽翼 , 彰顯其權威 。














遊走於具歷史感的穀倉 , 感受其中的故事 、
與稻米跟人的過往情懷 , 創造獨立於外界的
時間與空間的感知 , 讓人遊走在一個中介緩 衝 、 類似後院悠閒場域 , 享受歲月靜好 。
背景分析

與四周鄰近關係 區域性質與人流來源

位在舊北投巷陌之間的穀倉,在日治時期到��年代
末都肩負著儲存、碾製稻米的重任,蘊含著當代地域
的稻米發展歷史,也刻畫了一代聚落的城市紋理。
· 建物面積約���坪
· 北投區住宅巷弄中
· 日治時期建物
· 被文資部登錄歷史建物
· 儲存與碾製稻米
· 目前處於閒置荒廢的狀態
背景分析



穀倉位在捷運北投站的舊北投區 , 與新北投的觀光氛圍不同 , 目前是一個靜謐的住宅
區 , 但究其歷史也是有深厚的底蘊 , 亦有許多歷史建物流傳至今 , 北投穀倉便是其一 。

在地居民
日常互動


舊北投
特色置入

穀倉意義
的延續

舊北投與穀倉都沒落沉寂 , 共同的生活連結便是在地米食 , 以此接續穀倉與地域的過往 ,
也賦予閒置的空間新生 , 藉此串起舊北投的過往今日,活絡這塊土地與居民的日常生活 。


以北投本身對於稻米的連接行為構想空間 , 再以 行為對人的日常連接分佈 , 以及設想空間內需求

- 穀物販售
- 品茗空間
- 包廂用餐


設計概念

穀倉具歷史感的故事與空間 、 稻米在過往社會秋收冬藏的特
性 , 都能帶給人對於時間的特別感知 — 一如此基地空間在北
投住宅區一代所扮演的處在中介緩衝 、 類似後院的特別角色 。 以空間上來說 , 位在眾多擁擠住宅區之間的北投穀倉宛若處於 中介的緩衝地帶 , 以台北市來說 , 北投本身也擁有此種特性 ,
除了空間屬性外 , 也能帶給人舒緩、放鬆的氛圍與行為模式 。

入口以小徑、過道的量體形式讓人引入 , 提供一個 心境轉換的過程 , 也以在入口設置米鋪 、 文史空
間讓人能在第一時間意會到穀倉與稻米的主題

在經過較狹窄的小徑過後 , 感受與視野會轉變為較 為寬闊的休憩區 , 予人停留、放鬆 , 並且能有安靜
的場域與足夠的視野觀賞到穀倉的重要節點 。


而在寬闊的休憩空間之後另有較為隱蔽的空間 , 形成柳暗花明又一村之感 , 並在這個類似後院的 隱蔽空間有歡聚的氛圍 。




量體 堆疊
以堆疊的形式構建量體 、 櫃體 , 來對應稻米累積 、 儲存的概念

空間 連通
打開穀倉封閉的連接 , 串起穀倉 建築群各自獨立的空間 。

感官 互通
以較低差距的階層區分空間 , 而 不同階層的人也能互相有所交流 。
垂直 互通
在有高大尺度的穀倉空間 , 用高 度串起感官對穀倉的特別感受 。

空間 聚焦
讓空間有核心可以聚焦 , 大家的 感官亦聚焦在此處 。
感官
錯位
在較隱蔽而高度足夠的空間中 , 在錯層中呈現感官的錯位 , 有人 與人交流的更多可能性 。










