









![]()










Application For University College London Programme: MArch Urban Design
































































































































































































































































































































































































































































































































































































































































































































































































































TIME:2024.2-2024.4IndividualProject
In1904,JinanbecamethefirstcityinmodernChinato openaportforbusiness.




















In recent years, the government has continued to build antique buildings in an attempt to recreate the glory of the old Chinatown, but this lack of in-depth thinking has made the historical memory of the neighbourhood even more blurred for different groups of people!
However, with the development of urban planning, the function of the commercial district gradually disappeared . Gradually, the glorious history of Chinatown appears only in the memories of the older generation.


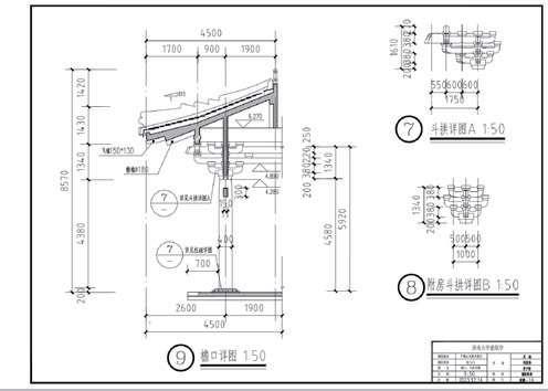
Therefore, I created a project that rearranges the use of public space through the addition of movable architectural installations in a limited street space. The changing architecture recreates the scene of the old merchant city in different periods, reinforcing people's historical memory while deepening the connection between the neighbourhood and the city, and creating a new sense of neighbourhood integration.






SITE:Laoshangbu,ShizhongDistrict, JinanCity,ShandongProvince, China






























































































































































































































































































































httpsJ/c.aiiz.cn/eNiqNS







Understood





















