Selected Works 2018/23 + CV

Page 1

School of Environment and Architecture (SEA) diwakar motwani SELECTED WORKS 2018/23
4. LONG SPANS A SPATIAL INQUIRY ON SATIRE AND HUMOUR 39 40 5. LIGHTNESS & WETNESS ARCHITECTURE AS A RESOURCE 49 50
ONTOLOGY STUDIO A GARDEN OF HYPERLINKS 23 24 CONTENTS
2.
05
3. WHAT IS A TYPE?
1. THESIS DISSERTATION SPATIAL NUANCES OF PLAY, ARCHITECTURE OF WHIMSICAL MUSES 01 02 6. PASSIVE DESIGN AN EXPERIENCE OF COMFORT AND ENERGY 33 34 7. INTERNSHIP & MISCELLANEOUS A SERIES OF WORKS, ITERATED ART, PRODUCTS AND OTHER IDEAS 57 58 63 64
TYPOLOGICAL INQUIRIES

THESIS | DESIGN DISSERTATION

TERM OF 2022-23

BKC, MUMBAI, MAHARASHTRA

PRASAD SHETTY + VASTAVIKTA BHAGAT

MOONLIGHTING + CO-WORKING STUDIO

As Architects, we engage in the business of thinking space and form. The methods of imagining and crafting spaces are hijacked by the cartographic sense, making it a bland practice of delivering efficient, standard and massproduced architecture.

The research opens up ways to see how toys produce different spatiality from the cartographic method and maps the agencies of toys.

The research becomes a dialogue between toys and our ways of imagining space by questioning, ‘How do toys mobilize spatial imaginations?’

01

HOW DO TOYS MOBILIZE SPATIAL IMAGINATIONS?

Various nooks and corners of a crèche in Borivali were identified as samples. These configurations were then investigated on a case-by-case basis via the lens of movements, phonetic/bodily expressions, the kind of toys and personal associations.

The operations yielded a series of fragmented spatialities. These particles of imagination were then stitched together to generate multiple meanings and associations. The children played differently based on the furniture setups and room proportions.

These diverse configurations impacted the way kids chose the type of toys to play with and the kinds of stories and spatial imaginations they made up in their heads.

Upon entering a room as seen on the left, there were a series of objects and toys kept in a curvilinear arrangement. While the play spread across the room, the kids restricted themselves to move and conduct various activities in this arrangement.

The play got more nuanced when the kids started marching; piping ‘oot-ooot” and murmuring “chugg-chugg”. All the expressions hinted towards the spatiality of a train; linear and wiggling.

04

Nightscape

Levels & Steps

Shift in Planes

Settlement (City)

05
Train / Linear / Tunnel
06

ARCHITECTURE OF WHIMSICAL MUSES

Toys liberate the idea of architecture as a serious practice to a more playful, joyful and fuzzy method of imagining spatialities. To reconceptualise what ‘play in architecture’ is, instead of determining a building as playful, a series of whimsical muses are mobilised to imagine spaces playfully. Offices are typically imagined through the container notion of space. Hence, the program chosen was a workspace to challenge orthographic and efficiencydriven thinking of space. These are a series of sketches and imaginations, often drawn on the last pages of notebooks that hold agencies, humour, poetry, etc. and reflect on our lives. These imaginations then are perceived through the lens of affordances.

The whimsical muse of a corporate dinosaur moving among the miniaturized buildings of BKC brings out the idea of porosity by affording a series of bodies moving through the voids created by the strategic placement of multiple workstations.

Another muse breaks the idea of the corporate ladder and perceives it as a complex labyrinthine. This imagination gives ideas to extend the porosity vertically, mocking the hierarchies and power structures.

The last muse talks about the experience of forced laughter and how power influences an idea. The idea of using nets for networking spaces (even though foolish) makes its way and gets employed because of the agency bestowed by a higher authority.

12

Various forces of the site also inform the intervention. 1. The open spaces. 2. The edge conditions maintain their rigidness. are always on the move. 5. The site caters to a particular

1 2 3

The site ranges from clustered buildings to event-friendly rigidness. 3. A degree of strictness is sustained. 4. Small vendors class. 6. Little to no public appropriation.

4 5 6

A series of linked sequences hoisted by a forest of pilotis to hold public.

1 2 3
1 2 3
VIEWS

ONTOLOGICAL INQUIRIES

SPRING OF 2020

FORT, MUMBAI, MAHARASHTRA

ANUJ DAGA + PRATYUSHA SURYAKANT

23 24
LIBRARY

GARDEN OF HYPERLINKS

In the text “Spiderlight”, the author introduces readers to a tool/instrument in a research library that hints about a new methodology for performing research. The tool is flaunted as a productive machine to provoke readers to yearn for it. However, it also gives some inkling about its flaws in the form of neverending footnotes.

This layer of information is so vast, unpredictable and purposeless that it secures more space than the primary text. The footnotes, thus, bleed into the primary text and make it lose its importance and point towards the barrenness of this system.

The ancient, dark, colonial building’s features, as well as the Kafkaesque administrative office, suggested Elphinstone College’s “Department of Archives” as a potential site of intervention. The office was so crammed with paperwork that there was no space to sit and consume the data.

Thus, in correspondence to the footnotes, the intervention is an extension of the archive, where it is portrayed as papers leaking out of the library, precariously forming rickety enclosures to hold people. The methodology is simply deriving various curves and geometry of paper and setting three elements, which join to one another in various permutations. To obtain such shapes, tissue papers were recorded flying through the gust of wind.

26

Current Spread: Elements and the permutations + Model (1:100)

29 1,1 2,2 3,3 1,2 2,3 1,3

Following Spread: Plan + Section

30
Element 1 Element 2 Element 3 Flat Elements
31
32

TYPOLOGICAL INQUIRIES

MONSOON OF 2019

ALIBAUG, MAHARASHTRA

RUPALI

GUPTE + SAMIR RAUT CAFE + HOME

The site was considerably picturesque and people were spotted having long gossips and discussions in the courtyards, gardens and verandas.

The neighbourhood was crammed with evocative residential houses made using bricks and wood with sloped roofs forming an alluring fabric.

An important component of the design is to allow people to reflect their cultural practices on it and to help preserve their existing living patterns so as to respond to the context.

33 34
35 Tryptic narrating Space, Event & Architectonic Detail (8” x 5”)

WHAT IS A TYPE?

As one ascends the stairs through the punctured mezzanines and roofs of any home in Alibaug, it appears that they are wearing colossal apparel owing to the thinness of those elements. Thus the phrase, “DRESSING THROUGH VOIDS” was coined.

This unique interplay of body and space inspired the concept of a body covered in a series of superposing planes with punctures creating various degrees of voids, each void corresponding to the body. To dwell in between these superposing planes, a sensation of confinement close to the body and openness at the plane’s ends is experienced.

The levels, steps, walls and courtyards together form a gesture of directions such that the scheme is not confused with a labyrinth. The architectural vocabularies must highlight the qualities of porosity, evocation and such spaciousness that it reflects an essence of a void. Resting the walls in an overawed manner will yield almost a grid of circulation machines and the idea of the thoroughfare will be lost.

36
37
1 2 3 2 1 3
Above: Model Details (1:100)
|
Right: Ground Floor Plan

LIGHTNESS + WETNESS

WINTER OF 2019

POISAR, MUMBAI, MAHARASHTRA

SHREYA MEHTA + SHAHVEER IRANI

RESCUE + COMMUNITY CENTRE

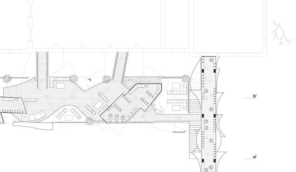
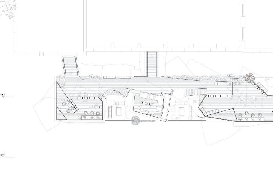
Sunderpada, a flood-prone low-lying settlement in Kandivali, adjacent to the Poiser River (now a nallah), was severely affected by the catastrophic floods of July 26 of 2005 and is completely exhausted every monsoon.

Besides that, they suffer from frequent water shortages. The water which is supplied by BMC is cut on a regular basis, runs timely, and during summers the cuts are longer than usual.

A duality in wetness could be seen, where there is a big flood in one instance and a scarcity in another. While there has been a shift in practices, the built form has also been informed of these situations.

49 50

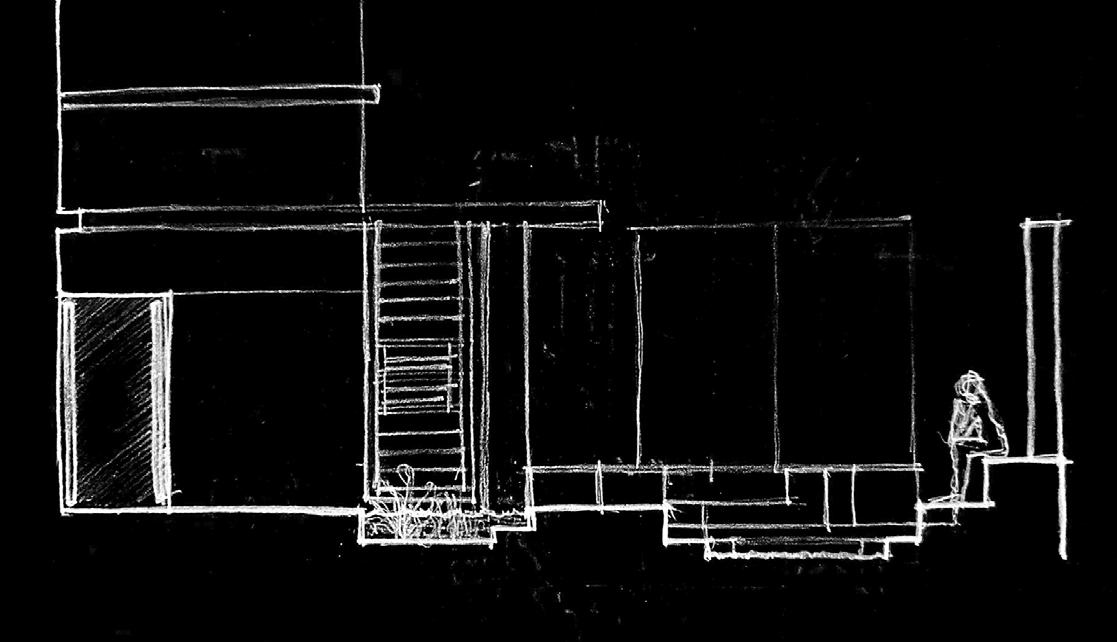
Above: Plan | Right: Sections

Following Spread: Model (1:25) + Joinery / Assembly Details

53

ARCHITECTURE AS RESOURCE

One of the project’s primary concerns was how the centre would establish a sense of ownership among its users so that it could be maintained and cared for.

The centre then works to be an essential resource for the community by gathering about 250 litres of water from fog through the towers on a daily basis, while the roof, through its form, serves as a rainwater harvesting device during the monsoons. Rather than resisting wetness, the structure is elevated to allow floodwater to pass through.

The structure was strengthened and made more efficient as a water-harvesting device thanks to exploration into diagrid structures, hyperboloid structures, and grid shells. The large porous hall becomes of the highest importance during a moment of crisis when people are imagined to be in a rush because it favours an open free layout with no hindrance.

Finally, the materiality communicates the fact that maintenance is simple and that the structure can be dismantled if there is a land dispute with the BMC, as the settlement includes farmland where bamboo may be cultivated.

52
55
56

INTERNSHIP | DUSTUDIO

WINTER OF 2021

AUROVILLE, TAMIL NADU

DHARMESH JADEJA

RESIDENTIAL + INTERIOR + COMMERCIAL + ART

Dustudio is a collaborative, interdisciplinary, architectural design practice based in Auroville. The work of Dustudio aims to create a strong link between the past, present and future of building traditions in the Indian context, using the existing traditional knowledge base as well as innovating within the framework of its social relevance, economic viability, environmental impact and culturally rooted experience.

As a collaborative nature of its practice, it has strong links with craftsmen, NGOs, corporate social programs and like-minded contemporary architectural practices around the country.

63 64
65
66

TKN Villa 50-51

Site Sections (1:100)

SA Residence

Electrical layout & slab details, beam + lintel details on the following spread.

69
70

Renderings from diverse viewpoints eloquently depict the interplay of light and oxide finishes within the restroom, creating a captivating experiential narrative.

77
Artist’s Residency in Koonimedu

Rammed Earth Wall

For environmentally friendly, energyefficient, uniquely textured and visually appealing structure, Dustudio frequently incorporated rammed earth walls into its architectural vocabulary.

90

Mixing soil with fibres, cement, and/or lime to enhance its structural attributes.

Tie rods are used to hold the formwork panels together tightly while pouring the soil mix.

Tribal signs or emblems are also hammered into the formwork, creating carved impressions.

An environmentally friendly alternative.

112

Cards of Curiosity

109

Sound Machines

In an attempt to develop a sense to sculpt sounds through form, it became critical to employ movements to afford a series of sounds.

106

Rethinking Journeys, Itineraries, Itinerants.

97

Rethinking Journeys, Itineraries, Itinerants.

98
+91 845-098-3366 | diwakar.motwani@gmail.com

Turn static files into dynamic content formats.

Create a flipbook
Issuu converts static files into: digital portfolios, online yearbooks, online catalogs, digital photo albums and more. Sign up and create your flipbook.
Selected Works 2018/23 + CV by Diwakar Motwani - Issuu