


![]()



JULIO / JULY 2024
MAIN DOOR ENTRY SET

ACABADO NEGRO MATE
FLAT BLACK FINISH
Revisar notas al final del documento check notes at the end of the document

MAIN DOOR STYLE

PUERTA CON ARCO (IMAGEN ILUSTRATIVA)
ARCH DOOR (ILLUSTRATIVE IMAGE)
JULIO / JULY 2024

El vendedor/desarrollador se reserva el derecho de cambiar materiales, selección de acabados y especificaciones con productos de calidad similar sin previo aviso, piezas y disponibilidad está sujeta a cambios sin previo aviso, por favor tome en cuenta que los colores pueden variar de la pantalla/ impresión. Seller / developer reserves the right to change materials, finishes selections and specifications with similar quality products without prior notice Pieces and availability is subject to changes without notice Please note that colors may vary from the screen/printing to current simples.
Revisar notas al final del documento check notes at the end of the document
BASE INTERIOR, TERRACES AND BALCONIES FLOORING

LOSETA CERÁMICA IMITACIÓN MADERA (25 x 100 cm/ 16 x 100 cm)
WOOD IMITATION CERAMIC TILE
Runingbond layout
JULIO / JULY 2024


El vendedor/desarrollador se reserva el derecho de cambiar materiales, selección de acabados y especificaciones con productos de calidad similar sin previo aviso, piezas y disponibilidad está sujeta a cambios sin previo aviso, por favor tome en cuenta que los colores pueden variar de la pantalla/ impresión. Seller / developer reserves the right to change materials, finishes selections and specifications with similar quality products without prior notice Pieces and availability is subject to changes without notice Please note that colors may vary from the screen/printing to current simples.
PUERTAS
MILLWORK FINISH (DRAWERS FRONTS AND CABINETS DOORS / CLOSETS DOORS)
MILLWORK FINISH

MELAMINICO TOSCANA ₂ TOSCANA MELAMINIC₂
Revisar notas al final del documento check notes at the end of the document

COLOR DE PUERTAS DE INTERCOMUNICACIÓN
INTERIOR DOORS FINISH

DARK BROWN ₂
DARK BROWN ₂
JULIO / JULY 2024

El vendedor/desarrollador se reserva el derecho de cambiar materiales, selección de acabados y especificaciones con productos de calidad similar sin previo aviso, piezas y disponibilidad está sujeta a cambios sin previo aviso, por favor tome en cuenta que los colores pueden variar de la pantalla/ impresión. Seller / developer reserves the right to change materials, finishes selections and specifications with similar quality products without prior notice Pieces and availability is subject to changes without notice Please note that colors may vary from the screen/printing to current simples.
JALADERA PARA PUERTAS Y CAJONES DE GABINETES
CABINETS DOORS AND DRAWERS PULL

CLOSET DOOR HANDLE

CHAPA PARA PUERTAS DE INTERCOMUNICACIÓN
INTERIOR DOORS LEVER

Revisar notas al final del documento check notes at the end of the document
JULIO / JULY 2024


El vendedor/desarrollador se reserva el derecho de cambiar materiales, selección de acabados y especificaciones con productos de calidad similar sin previo aviso, piezas y disponibilidad está sujeta a cambios sin previo aviso, por favor tome en cuenta que los colores pueden variar de la pantalla/ impresión. Seller / developer reserves the right to change materials, finishes selections and specifications with similar quality products without prior notice Pieces and availability is subject to changes without notice Please note that colors may vary from the screen/printing to current simples.
CUBIERTA BASE
EN COCINA
BASE KITCHEN COUNTERTOP

GRANITO LENNON O SIMILAR ₁
LENON GRANITE OR SIMILAR ₁
Revisar notas al final del documento / check notes at the end of the document

BACKSPLASH BASE
EN COCINA
BASE KITCHEN BACKSPLASH

DECORATIVE CERAMIC TILE
Square layout
JULIO / JULY 2024

El vendedor/desarrollador se reserva el derecho de cambiar materiales, selección de acabados y especificaciones con productos de calidad similar sin previo aviso, piezas y disponibilidad está sujeta a cambios sin previo aviso, por favor tome en cuenta que los colores pueden variar de la pantalla/ impresión. Seller / developer reserves the right to change materials, finishes selections and specifications with similar quality products without prior notice Pieces and availability is subject to changes without notice Please note that colors may vary from the screen/printing to current simples.

KITCHEN SINK

TARJA BAJO CUBIERTA DE DOBLE TINA EN ACERO INOXIDABLE (87 x 51 cm)
UNDERMOUNT STAINLESS STEEL DOUBLE SINK (87 x 51 cm)
Revisar notas al final del documento check notes at the end of the document
KITCHEN FAUCET

MONOMANDO EN ACERO INOXIDABLE RESISTENTE A MANCHAS
SINGLE HOLE FAUCET, SPOT RESIST STAINLESS FINISH
JULIO / JULY 2024

El vendedor/desarrollador se reserva el derecho de cambiar materiales, selección de acabados y especificaciones con productos de calidad similar sin previo aviso, piezas y disponibilidad está sujeta a cambios sin previo aviso, por favor tome en cuenta que los colores pueden variar de la pantalla/ impresión. Seller / developer reserves the right to change materials, finishes selections and specifications with similar quality products without prior notice Pieces and availability is subject to changes without notice Please note that colors may vary from the screen/printing to current simples.
BATHROOM FINISHES
BATHROOM VANITIES COUNTERTOP

MARMOL MINA ₁
MINA MARBLE ₁
Revisar notas al final del documento check notes at the end of the document

BATHROOM WALLS COVERING


LOSETA CERÁMICA (30 x 60 cm)
CERAMIC TILE
Polished white / Runingbond layout
JULIO / JULY 2024

El vendedor/desarrollador se reserva el derecho de cambiar materiales, selección de acabados y especificaciones con productos de calidad similar sin previo aviso, piezas y disponibilidad está sujeta a cambios sin previo aviso, por favor tome en cuenta que los colores pueden variar de la pantalla/ impresión. Seller / developer reserves the right to change materials, finishes selections and specifications with similar quality products without prior notice Pieces and availability is subject to changes without notice Please note that colors may vary from the screen/printing to current simples.
BATHROOM FINISHES
LAVAMANOS
BATHROOM SINK

MONTADO BAJO CUBIERTA (52 x 34 x 17 cm) MOUNTED UNDERCOUNT
REGADERA (CEBOLLETA Y MONOMANDO)
SHOWER FAUCET (SHOWERHEAD AND HANDLE)


ACABADO EN CROMO CHROME FINISH
(TODOS LOS ACCESORIOS DE BAÑO EN ACABADO CROMADO) (ALL BATHROOM ACCESORIES ON CHROME FINISH)
JULIO / JULY 2024
MEZCLADORA
SINK FAUCET

ACABADO EN CROMO CHROME FINISH
CRISTALES EN REGADERAS

SHOWER GLASS ON SHOWERS CRISTAL CLARO CLEAR GLASS


El vendedor/desarrollador se reserva el derecho de cambiar materiales, selección de acabados y especificaciones con productos de calidad similar sin previo aviso, piezas y disponibilidad está sujeta a cambios sin previo aviso, por favor tome en cuenta que los colores pueden variar de la pantalla/ impresión. Seller / developer reserves the right to change materials, finishes selections and specifications with similar quality products without prior notice Pieces and availability is subject to changes without notice Please note that colors may vary from the screen/printing to current simples.
APPLIANCES *All units except 1B Lock off
REFRIGERADOR
REFRIGERATOR
Revisar notas al final del documento check notes at the end of the document ELECTRODOMÉSTICOS * Todas las unidades excepto 1B Lock off


SIDE BY SIDE ACERO
INOXIDABLE 21 FT³
(91 x 75 x 175 cm)
STAINLESS STEEL
(91 x 75 x 175 cm)

KITCHEN RECIRCULATION HOOD
DISHWASHER
ESTUFA DE PIE, QUEMADORES DE INDUCCIÓN
(76 x 94.5 x 71.7 cm)
STANDING STAINLESS


ACERO INOXIDABLE
(89.8X 47 x 85 cm )
STAINLESS STEEL
(89.8 X 47 x 85 cm)
STEEEL INDUCTION STOVE.
(76 x 94.5 x 71.7 cm)
ACERO INOXIDABLE
(60.6 X 62.2 x 87.6 cm )
STAINLESS STEEL
(60.6 X 62.2 x 87.6 cm )
JULIO / JULY 2024
CENTRO DE LAVADO
STACKABLE WASHER AND DRYER

CENTRO DE LAVADO (ELÉCTRICO)
(69.19 x 82.30 x 189.20 cm)
STACKABLE ELECTRIC WASHER AND DRYER
(69.19 x 82.30 x 189.20 cm)
*NO APLICA EN FASE 1A NI FASE 1B / NOT AVAILABLE IN FASE 1A NOR FASE 1B

El vendedor/desarrollador se reserva el derecho de cambiar materiales, selección de acabados y especificaciones con productos de calidad similar sin previo aviso, piezas y disponibilidad está sujeta a cambios sin previo aviso, por favor tome en cuenta que los colores pueden variar de la pantalla/ impresión.
Seller / developer reserves the right to change materials, finishes selections and specifications with similar quality products without prior notice Pieces and availability is subject to changes without notice Please note that colors may vary from the screen/printing to current simples.
APPLIANCES *Only 1B unit Lock off
REFRIGERADOR
REFRIGERATOR

ACERO INOXIDABLE 9 FT³
(55.12 x 67.82 x 164.85 cm)
STAINLESS STEEL
(55.12 x 67.82 x 164.85 cm)
COOKTOP

KITCHEN RECIRCULATION HOOD

ACERO INOXIDABLE
(89.8X 47 x 85 cm )
STAINLESS STEEL
(89.8 X 47 x 85 cm)
PARRILLA DE INDUCCION
(58 x 51 x 5.5 cm)
INDUCTION COOKTOP
(58 x 51 x 5.5 cm)
MICROWAVE

ACERO INOXIDABLE 1.1FT³
(51.21 X 40 x 30.61 cm )
STAINLESS STEEL
(51.21 X 40 x 30.61 cm )

CENTRO DE LAVADO
STACKABLE WASHER AND DRYER

CENTRO DE LAVADO (ELÉCTRICO)
(69.19 x 82.30 x 189.20 cm)
STACKABLE ELECTRIC WASHER AND DRYER
(69.19 x 82.30 x 189.20 cm)
*NO APLICA EN FASE 1A NI FASE 1B / NOT AVAILABLE IN FASE 1A NOR FASE 1B
Revisar notas al final del documento check notes at the end of the document
JULIO / JULY 2024

El vendedor/desarrollador se reserva el derecho de cambiar materiales, selección de acabados y especificaciones con productos de calidad similar sin previo aviso, piezas y disponibilidad está sujeta a cambios sin previo aviso, por favor tome en cuenta que los colores pueden variar de la pantalla/ impresión. Seller / developer reserves the right to change materials, finishes selections and specifications with similar quality products without prior notice Pieces and availability is subject to changes without notice Please note that colors may vary from the screen/printing to current simples.

JULIO / JULY 2024
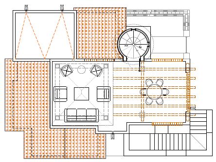
*TORRE TIPO 2, 2LO Y 4
PABILLION AT ROOFTOP
*TOWER TYPE 2, 2LO & 4

Revisar notas al final del documento check notes at the end of the document


PERGOLADO Y TECHUMBRE EN ROOFTOP (NO INCLUYE PALO DE ARCO)
TRELLIS AND ROOFING AT ROOFTOP (PALO DE ARCO NOT INCLUDED)
TORRE TIPO 2, 2LO & 4: $37,751 USD
JULIO / JULY 2024

El vendedor/desarrollador se reserva el derecho de cambiar materiales, selección de acabados y especificaciones con productos de calidad similar sin previo aviso, piezas y disponibilidad está sujeta a cambios sin previo aviso, por favor tome en cuenta que los colores pueden variar de la pantalla/ impresión. Seller / developer reserves the right to change materials, finishes selections and specifications with similar quality products without prior notice Pieces and availability is subject to changes without notice Please note that colors may vary from the screen/printing to current simples.

3er NIVEL AZOTEA / 3rd FLOOR ROOFTOP
DE PALO DE ARCO EN PERGOLADOS EXISTENTES CON SEPARACIÓN MÁXIMA DE ¾”
PALO DE ARCO STICKS ON EXISTING TRELLIS WITH MAXIMUM SPACING OF ¾”
TIPO 4 3er NIVEL AZOTEA / TYPE 4 3rd FLOOR ROOFTOP: $3,080 USD

Revisar notas al final del documento check notes at the end of the document
JULIO / JULY 2024

El vendedor/desarrollador se reserva el derecho de cambiar materiales, selección de acabados y especificaciones con productos de calidad similar sin previo aviso, piezas y disponibilidad está sujeta a cambios sin previo aviso, por favor tome en cuenta que los colores pueden variar de la pantalla/ impresión. Seller / developer reserves the right to change materials, finishes selections and specifications with similar quality products without prior notice Pieces and availability is subject to changes without notice Please note that colors may vary from the screen/printing to current simples.
*SOLO EN PLANTA BAJA Y 3er NIVEL AZOTEA
*ONLY IN GROUND FLOOR & 3rd FLOOR ROOFTOP

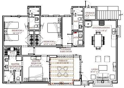
TIPO 2

3er NIVEL AZOTEA / 3rd FLOOR ROOFTOP
TIPO 2LO


PLANTA
SOLO UNIDAD DE 2 RECAMARAS ONLY 2 BEDROOM UNIT
PALO DE ARCO STICKS ON EXISTING TRELLIS WITH MAXIMUM SPACING OF ¾”
TIPO 2 Y 2LO PLANTA BAJA / TYPE 2 & 2LO GROUND FLOOR : $1,701 USD
TIPO 2 Y 2LO 3er NIVEL ROOFTOP / TYPE 2 & 2LO 3rd FLOOR ROOFTOP: $3,128 USD
Revisar notas al final del documento check notes at the end of the document
JULIO / JULY 2024

El vendedor/desarrollador se reserva el derecho de cambiar materiales, selección de acabados y especificaciones con productos de calidad similar sin previo aviso, piezas y disponibilidad está sujeta a cambios sin previo aviso, por favor tome en cuenta que los colores pueden variar de la pantalla/ impresión. Seller / developer reserves the right to change materials, finishes selections and specifications with similar quality products without prior notice Pieces and availability is subject to changes without notice Please note that colors may vary from the screen/printing to current simples.



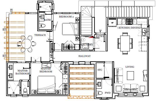
TIPO 5 Y 5LO PLANTA BAJA / TYPE 5 & 5LO GROUND FLOOR : $1,701 USD
Revisar notas al final del documento check notes at the end of the document
JULIO / JULY 2024

El vendedor/desarrollador se reserva el derecho de cambiar materiales, selección de acabados y especificaciones con productos de calidad similar sin previo aviso, piezas y disponibilidad está sujeta a cambios sin previo aviso, por favor tome en cuenta que los colores pueden variar de la pantalla/ impresión. Seller / developer reserves the right to change materials, finishes selections and specifications with similar quality products without prior notice Pieces and availability is subject to changes without notice Please note that colors may vary from the screen/printing to current simples.
I P O 5 & 5LO

2do NIVEL / 2nd FLOOR
TIPO 5 & 5LO TIPO 5 & 5LO


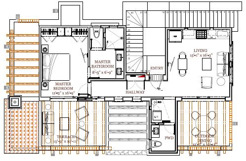
3er NIVEL / 3rd FLOOR
TIPO 5 Y 5LO 2do NIVEL / TYPE 5 & 5LO 2nd FLOOR : $1,261 USD
TIPO 5 Y 5LO 3er NIVEL TERRAZAS / TYPE 5 & 5LO 3rd FLOOR TERRAACES : $3,428 USD
Revisar notas al final del documento check notes at the end of the document
JULIO / JULY 2024

El vendedor/desarrollador se reserva el derecho de cambiar materiales, selección de acabados y especificaciones con productos de calidad similar sin previo aviso, piezas y disponibilidad está sujeta a cambios sin previo aviso, por favor tome en cuenta que los colores pueden variar de la pantalla/ impresión. Seller / developer reserves the right to change materials, finishes selections and specifications with similar quality products without prior notice Pieces and availability is subject to changes without notice Please note that colors may vary from the screen/printing to current simples.




COLOCACIÓN DE PALO DE ARCO EN PERGOLADOS EXISTENTES CON SEPARACIÓN MÁXIMA DE ¾”
TIPO 6 PLANTA BAJA / TYPE 6 GROUND FLOOR : $1,687 USD TIPO 6 2do NIVEL / TYPE 6 2nd FLOOR : $1,261 USD TIPO 6 3er NIVEL TERRAZAS/ TYPE 6 3rd FLOOR TERRACES: $3,428 USD
Revisar notas al final del documento check notes at the end of the document
JULIO / JULY 2024

El vendedor/desarrollador se reserva el derecho de cambiar materiales, selección de acabados y especificaciones con productos de calidad similar sin previo aviso, piezas y disponibilidad está sujeta a cambios sin previo aviso, por favor tome en cuenta que los colores pueden variar de la pantalla/ impresión. Seller / developer reserves the right to change materials, finishes selections and specifications with similar quality products without prior notice Pieces and availability is subject to changes without notice Please note that colors may vary from the screen/printing to current simples.
*SOLO EN TORRES TIPO 2, 2LO,4 3er NIVEL AZOTEA Y TORRES TIPO 5,5LO,6 2do NIVEL Y 3er NIVEL
*ONLY IN TOWERS TYPE 2,2LO,4 3rd FLOOR ROOFTOP & TOWERS TYPE 5,5LO,6 2nd & 3rd FLOOR
Electrodomesticos NO incluidos
Appliances are Not included.


PREPARACION, PARA ASADOR, FORJADO DE BLOCK, INCLUYE CUBIERTA DE GRANITO BASE (2.7 m DE LARGO APROXIMADAMENTE), TARJA SENCILLA CON MEZCLADORA, ALBAÑILERÍA Y PUERTAS DE ALUMINIO, CUBIERTA BASE
MASONRY PREPARATION FOR GRILL , INCLUDES BASE GRANITE COUNTERTOP (2.7 m LONG APPROXIMATELY), SINGLE BOWL SINK WITH FAUCET, MASONERY AND ALUMINUM DOORS, STANDARD COUNTERTOP
Revisar notas al final del documento check notes at the end of the document
COST
$10,120 USD
JULIO / JULY 2024

El vendedor/desarrollador se reserva el derecho de cambiar materiales, selección de acabados y especificaciones con productos de calidad similar sin previo aviso, piezas y disponibilidad está sujeta a cambios sin previo aviso, por favor tome en cuenta que los colores pueden variar de la pantalla/ impresión. Seller / developer reserves the right to change materials, finishes selections and specifications with similar quality products without prior notice Pieces and availability is subject to changes without notice Please note that colors may vary from the screen/printing to current simples.
APPLIANCES FOR BUILT-IN ASADOR GRILL

ASADOR WEBER SUMMIT ACERO INOXIDABLE
GRILL WEBER SUMMIT STAINLESS STEEL
$7,460 USD
Revisar notas al final del documento check notes at the end of the document

REFRIGEDAROR MINIFRIDGE

CENTRO DE BEBIDAS 24” BAJO CUBIERTA, ACERO INOXIDABLE, GE PROFILE
UNDERCOUNTER BEVERAGE
CENTER 24”, STAINLESS STEEL
$2.496 USD JULIO / JULY 2024

El vendedor/desarrollador se reserva el derecho de cambiar materiales, selección de acabados y especificaciones con productos de calidad similar sin previo aviso, piezas y disponibilidad está sujeta a cambios sin previo aviso, por favor tome en cuenta que los colores pueden variar de la pantalla/ impresión. Seller / developer reserves the right to change materials, finishes selections and specifications with similar quality products without prior notice Pieces and availability is subject to changes without notice Please note that colors may vary from the screen/printing to current simples.
Revisar notas al final del documento check notes at the end of the document


$5,158 USD
JULIO / JULY 2024

El vendedor/desarrollador se reserva el derecho de cambiar materiales, selección de acabados y especificaciones con productos de calidad similar sin previo aviso, piezas y disponibilidad está sujeta a cambios sin previo aviso, por favor tome en cuenta que los colores pueden variar de la pantalla/ impresión. Seller / developer reserves the right to change materials, finishes selections and specifications with similar quality products without prior notice Pieces and availability is subject to changes without notice Please note that colors may vary from the screen/printing to current simples.

₁ LAS CUBIERTAS DE PIEDRA NATURAL TENDRÁN VARIACIONES DE COLOR Y VETA DE PLACA A PLACA, SELLADO NO INCLUIDO EN CUBIERTAS O PISOS DE PIEDRA.
₁ NATURAL STONE COUNTERTOPS MAY HAVE COLOR AND GRAIN VARIATION FROM SLAB TO SLAB, SEALED NOT INCLUDED ON COUNTERTOPS OR STONE FLOORING.
₂TAPAS DE CAJONES, PUERTAS DE GABINETES Y CLOSETS EN MELAMINA DECORATIVA , INTERIORES DE CLOSETS Y GABINETES EN MELAMINA BLANCA / PUERTAS INTERIORES DE INTERCOMUNICACIÓN DE MADERA EN COLOR DARK BROWN.
₂DECORATIVE MELAMINIC ON CABINETS DRAWERS, DOORS AND CLOSETS DOORS, INTERIOR OF CLOSETS AND CABINETS ON WHITE MELAMINE / INTERIOR WOOD DOORS ON COLOR DARK BROWN.
TODOS LOS COSTOS DE UPGRADES DE ACABADOS Y/O CONSTRUCCIÓN ESTÁN CALCULADOS ANTES DE INICIAR LA CONSTRUCCIÓN DE LA UNIDAD, UNA VEZ CONSTRUIDO O EN PROCESO DE CONSTRUCCIÓN LOS COSTOS DEBEN SER RECALCULADOS.
THE COSTS FOR ALL FINISHES AND CONSTRUCTION UPGRADES ARE CALCULATED BEFORE STARTING THE UNIT CONSTRUCTION, ONCE CONSTRUCTION IS FINISHED OR ITS ON PROCESS, THE COSTS MUST BE RECALCULATED.
