VANTAGE RESIDENCES I Floor Plans Villas

Page 1

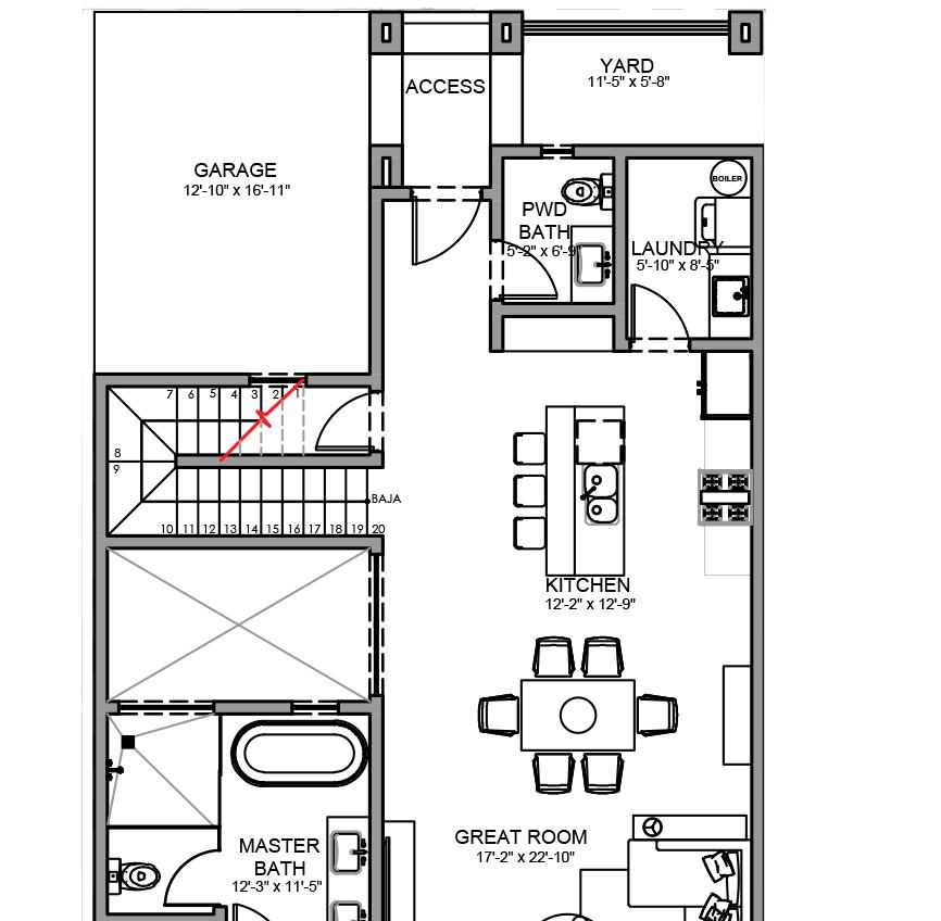
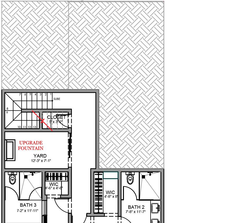
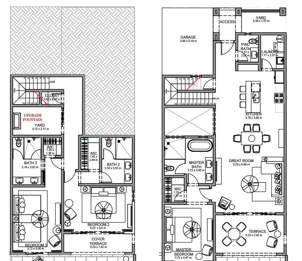
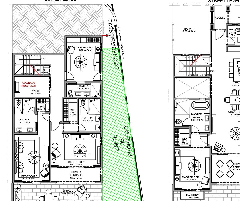
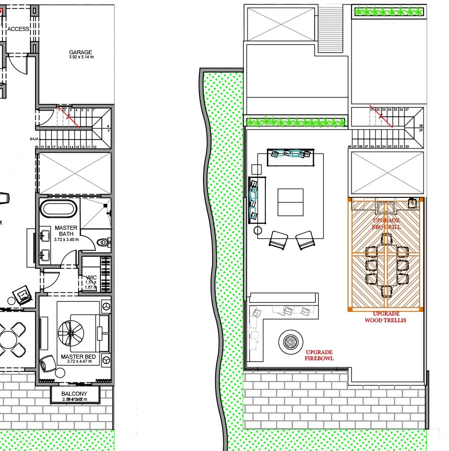
VILLA 01

FEATURES

• Great Room • Kitchen • Indoor Yard

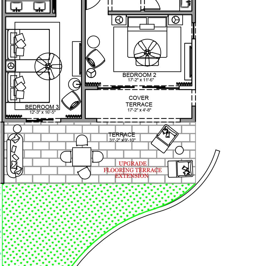
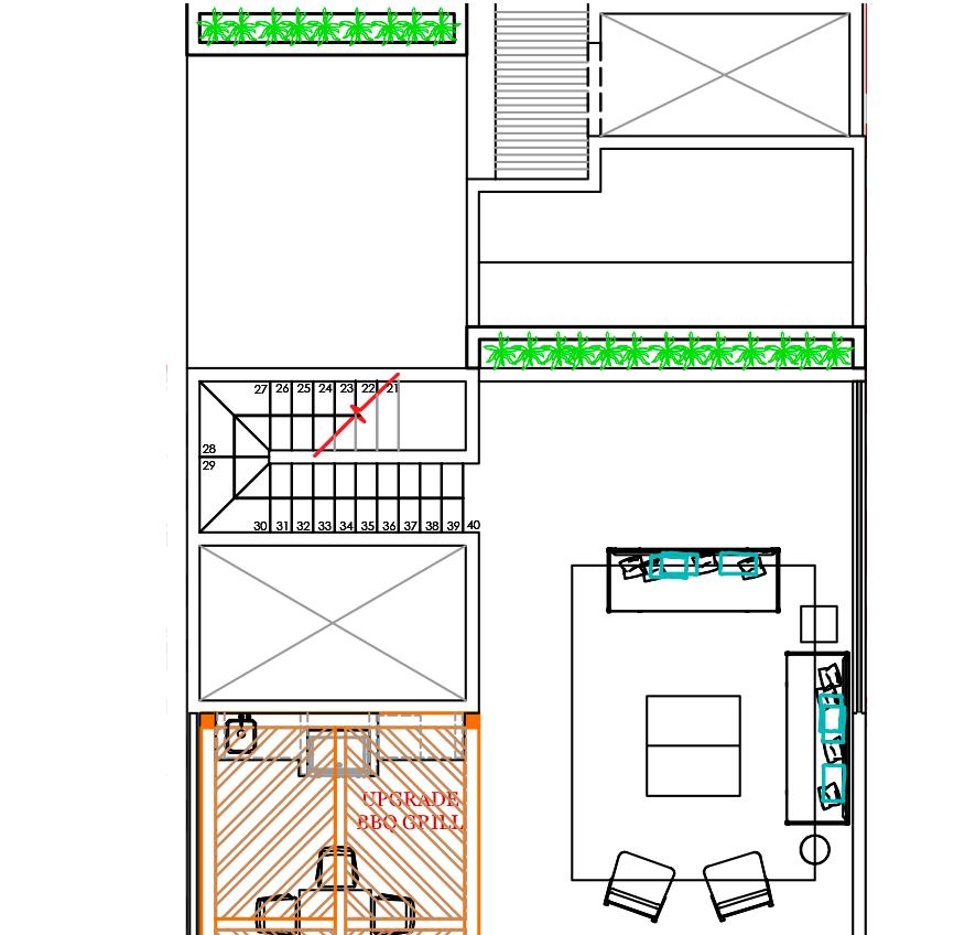
• 4 Bedrooms • 4.5 Baths • Laundry • Garage • Cover Terrace

Rooftop

Yard

Balcony

Mezzanine 11.48 ft

ROOF
SL LL
INTERIORES TERRAZA TERRAZA CUBIERTA YARD GARDEN TOTAL INTERIOR COVER TERRACE TERRACE INTERIORES TERRAZA TERRAZA CUBIERTA YARD BALCONY TOTAL INTERIOR COVER TERRACE GARAGE TOTAL TERRACE 1,292.38 ft2 94.69 ft2 103.19 ft2 304.72 ft2 989.81 ft2 2,480.07 ft2 1,353.39 ft2 183.57 ft2 78.33 ft2 262.11 ft2 25.51 ft2 1,902.91 ft2 1,273.77 ft2 1,273.77 ft2

VILLA 02

FEATURES

• Great Room • Kitchen • Indoor Yard

• 3 Bedrooms

• 3.5 Baths • Laundry • Garage

• Cover Terrace • Rooftop

Yard

Balcony

Mezzanine 11.48 ft

ROOF SL LL INTERIORES TERRAZA TERRAZA CUBIERTA YARD GARDEN TOTAL INTERIOR COVER TERRACE TERRACE INTERIORES TERRAZA TERRAZA CUBIERTA YARD BALCONY TOTAL INTERIOR COVER TERRACE GARAGE TOTAL TERRACE 1,023.63 ft2 94.72 ft2 103.22 ft2 304.72 ft2 581.36 ft2 2,106.59 ft2 1,353.88 ft2 183.63 ft2 78.36 ft2 262.20 ft2 25.51 ft2 1,903.59 ft2 1,340.70 ft2 1,340.70 ft2

VILLA 03

FEATURES

• Great Room • Kitchen • Indoor Yard

• 4 Bedrooms • 4.5 Baths • Laundry • Garage • Cover Terrace • Rooftop

Yard

Balcony

Mezzanine 11.48 ft

ROOF SL LL INTERIORES TERRAZA TERRAZA CUBIERTA YARD GARDEN TOTAL INTERIOR COVER TERRACE TERRACE INTERIORES TERRAZA TERRAZA CUBIERTA YARD BALCONY TOTAL INTERIOR COVER TERRACE GARAGE TOTAL TERRACE 1,292.38 ft2 94.69 ft2 103.19 ft2 304.72 ft2 1,899.36 ft2 3,694.34 ft2 1,353.39 ft2 183.57 ft2 78.33 ft2 262.11 ft2 25.51 ft2 1,902.91 ft2 1,273.77 ft2 1,273.77 ft2

VILLA 04

FEATURES

• Great Room • Kitchen • Indoor Yard

• 3 Bedrooms • 3.5 Baths • Laundry

Garage • Cover Terrace • Rooftop

Yard

Balcony

Mezzanine 11.48 ft

ROOF SL LL INTERIORES TERRAZA TERRAZA CUBIERTA YARD GARDEN TOTAL INTERIOR COVER TERRACE TERRACE INTERIORES TERRAZA TERRAZA CUBIERTA YARD BALCONY TOTAL INTERIOR COVER TERRACE GARAGE TOTAL TERRACE 1,023.63 ft2 94.72 ft2 103.22 ft2 304.72 ft2 413.72 ft2 1,938.95 ft2 1,353.88 ft2 183.63 ft2 78.36 ft2 262.20 ft2 25.51 ft2 1,903.59 ft2 1,340.70 ft2 1,340.70 ft2

VILLA 05

FEATURES

• Great Room • Kitchen • Indoor Yard

• 4 Bedrooms • 4.5 Baths • Laundry • Garage

• Cover Terrace • Rooftop

Yard

Balcony

Mezzanine 11.48 ft

ROOF
INTERIORES TERRAZA TERRAZA CUBIERTA YARD GARDEN TOTAL INTERIOR COVER TERRACE TERRACE INTERIORES TERRAZA TERRAZA CUBIERTA YARD BALCONY TOTAL INTERIOR COVER TERRACE GARAGE TOTAL TERRACE 1,292.38 ft2 94.69 ft2 103.19 ft2 304.72 ft2 1,251.39 ft2 3,046.37 ft2 1,353.39 ft2 183.57 ft2 78.33 ft2 262.11 ft2 25.51 ft2 1,902.91 ft2 1,273.77 ft2 1,273.77 ft2
SL LL

VILLA 06

FEATURES

• Great Room • Kitchen • Indoor Yard

• 3 Bedrooms

• 3.5 Baths • Laundry • Garage

• Cover Terrace • Rooftop

Yard

Balcony

Mezzanine 11.48 ft

ROOF SL LL INTERIORES TERRAZA TERRAZA CUBIERTA YARD GARDEN TOTAL INTERIOR COVER TERRACE TERRACE INTERIORES TERRAZA TERRAZA CUBIERTA YARD BALCONY TOTAL INTERIOR COVER TERRACE GARAGE TOTAL TERRACE 1,023.63 ft2 94.72 ft2 103.22 ft2 304.72 ft2 192.07 ft2 1,720.20 ft2 1,353.88 ft2 183.63 ft2 78.36z ft2 262.20 ft2 25.51 ft2 1,903.59 ft2 1,340.70 ft2 1,340.70 ft2

VILLA 07

FEATURES

• Great Room • Kitchen

• Indoor Yard

• 3 Bedrooms

• 3.5 Baths

• Laundry • Garage

• Cover Terrace • Rooftop

Yard

Balcony

Mezzanine 11.48 ft

ROOF LL INTERIORES TERRAZA TERRAZA CUBIERTA YARD GARDEN TOTAL INTERIOR COVER TERRACE TERRACE INTERIORES TERRAZA TERRAZA CUBIERTA YARD BALCONY TOTAL INTERIOR COVER TERRACE GARAGE TOTAL TERRACE 1,023.63 ft2 94.72 ft2 103.22 ft2 304.72 ft2 192.07 ft2 1,720.20 ft2 1,353.88 ft2 183.63 ft2 78.36 ft2 262.20 ft2 25.51 ft2 1,903.59 ft2 1,340.70 ft2 1,340.70 ft2

VILLA 08

FEATURES

• Great Room • Kitchen • Indoor Yard

• 3 Bedrooms

• 3.5 Baths

• Laundry • Garage • Cover Terrace • Rooftop

Yard

Balcony

Mezzanine 11.48 ft

ROOF
INTERIORES TERRAZA TERRAZA CUBIERTA YARD GARDEN TOTAL INTERIOR COVER TERRACE TERRACE INTERIORES TERRAZA TERRAZA CUBIERTA YARD BALCONY TOTAL INTERIOR COVER TERRACE GARAGE TOTAL TERRACE 1,023.21 ft2 94.50 ft2 103.22 ft2 304.72 ft2 670.35 ft2 2,195.58 ft2 1,353.88 ft2 183.63 ft2 78.36 ft2 258.76 ft2 25.51 ft2 1,900.04 ft2 1,340.70 ft2 1,340.70 ft2
LL

VILLA 09

FEATURES

• Great Room • Kitchen • Indoor Yard

• 4 Bedrooms

• 4.5 Baths

• Laundry • Garage

• Cover Terrace • Rooftop

Yard

Balcony

Mezzanine 11.48 ft

ROOF
INTERIORES TERRAZA TERRAZA CUBIERTA YARD GARDEN TOTAL INTERIOR COVER TERRACE TERRACE INTERIORES TERRAZA TERRAZA CUBIERTA YARD BALCONY TOTAL INTERIOR COVER TERRACE GARAGE TOTAL TERRACE 1,292.85 ft2 94.72 ft2 103.19 ft2 304.72 ft2 670.35 ft2 2,195.58 ft2 1,353.88 ft2 183.63 ft2 78.44 ft2 262.65 ft2 25.50 ft2 1,904.35 ft2 1,336.82 ft2 1,336.82 ft2
SL LL

VILLA 10

FEATURES

• Great Room • Kitchen

• Indoor Yard

• 4 Bedrooms

• 4.5 Baths

• Laundry • Garage

• Cover Terrace • Rooftop

Yard • Balcony

Mezzanine 11.48 ft

ROOF SL LL INTERIORES TERRAZA TERRAZA CUBIERTA YARD GARDEN TOTAL INTERIOR COVER TERRACE TERRACE INTERIORES TERRAZA TERRAZA CUBIERTA YARD BALCONY TOTAL INTERIOR COVER TERRACE GARAGE TOTAL TERRACE 1,292.38 ft2 94.69 ft2 103.19 ft2 304.72 ft2 1,419.46 ft2 3,214.44 ft2 1,353.39 ft2 183.57 ft2 78.33 ft2 262.11 ft2 25.51 ft2 1,902.91 ft2 1,273.77 ft2 1,273.77 ft2

VILLA 11

FEATURES

• Great Room • Kitchen

• Indoor Yard

• 3 Bedrooms

• 3.5 Baths

• Laundry • Garage

• Cover Terrace • Rooftop

Yard • Balcony

ROOF SL LL INTERIORES TERRAZA TERRAZA CUBIERTA YARD GARDEN TOTAL INTERIOR COVER TERRACE TERRACE INTERIORES TERRAZA TERRAZA CUBIERTA YARD BALCONY TOTAL INTERIOR COVER TERRACE GARAGE TOTAL TERRACE 1,023.63 ft2 94.72 ft2 103.22 ft2 304.72 ft2 1,068.25 ft2 2,593.48 ft2 1,353.88 ft2 183.63 ft2 78.36 ft2 262.20 ft2 25.51 ft2 1,903.59 ft2 1,340.70 ft2 1,340.70 ft2
Mezzanine 11.48 ft

VILLA 12

FEATURES

• Great Room • Kitchen • Indoor Yard

• 3 Bedrooms

• 3.5 Baths • Laundry • Garage • Cover Terrace • Rooftop

Yard

Balcony

Mezzanine 11.48 ft

ROOF LL INTERIORES TERRAZA TERRAZA CUBIERTA YARD GARDEN TOTAL INTERIOR COVER TERRACE TERRACE INTERIORES TERRAZA TERRAZA CUBIERTA YARD BALCONY TOTAL INTERIOR COVER TERRACE GARAGE TOTAL TERRACE 1,023.63 ft2 94.72 ft2 103.22 ft2 304.72 ft2 1,019.73 ft2 2,544.96 ft2 1,353.88 ft2 183.63 ft2 78.36 ft2 262.20 ft2 25.51 ft2 1,903.59 ft2 1,340.70 ft2 1,340.70 ft2

VILLA 13

FEATURES

• Great Room • Kitchen • Indoor Yard

• 3 Bedrooms

• 3.5 Baths

• Laundry • Garage

• Cover Terrace • Rooftop

Yard

Balcony

Mezzanine 11.48 ft

ROOF SL LL INTERIORES TERRAZA TERRAZA CUBIERTA YARD GARDEN TOTAL INTERIOR COVER TERRACE TERRACE INTERIORES TERRAZA TERRAZA CUBIERTA YARD BALCONY TOTAL INTERIOR COVER TERRACE GARAGE TOTAL TERRACE 1,023.63 ft2 94.72 ft2 103.22 ft2 304.72 ft2 1,019.73 ft2 2,544.96 ft2 1,353.88 ft2 183.63 ft2 78.36 ft2 258.76 ft2 25.51 ft2 1,900.04 ft2 1,164.77 ft2 1,164.77 ft2

VILLA 14

FEATURES

• Great Room

• Kitchen

• Indoor Yard

• 4 Bedrooms

• 4.5 Baths

• Laundry • Garage

• Cover Terrace

• Rooftop • Yard • Balcony

ROOF SL LL INTERIORES TERRAZA TERRAZA CUBIERTA YARD GARDEN TOTAL INTERIOR COVER TERRACE TERRACE INTERIORES TERRAZA TERRAZA CUBIERTA YARD BALCONY TOTAL INTERIOR COVER TERRACE GARAGE TOTAL TERRACE 1,292.38 ft2 94.69 ft2 103.19 ft2 304.72 ft2 1,241.27 ft2 3,036.26 ft2 1,353.39 ft2 183.57 ft2 78.33 ft2 262.11 ft2 25.51 ft2 1,902.91 ft2 1,237.77 ft2 1,237.77 ft2
Mezzanine 11.48 ft

VILLA 15

FEATURES

• Great Room • Kitchen • Indoor Yard

• 3 Bedrooms

• 3.5 Baths • Laundry • Garage

• Cover Terrace • Rooftop

Yard

Balcony

Mezzanine 11.48 ft

ROOF SL LL INTERIORES TERRAZA TERRAZA CUBIERTA YARD GARDEN TOTAL INTERIOR COVER TERRACE TERRACE INTERIORES TERRAZA TERRAZA CUBIERTA YARD BALCONY TOTAL INTERIOR COVER TERRACE GARAGE TOTAL TERRACE 1,023.63 ft2 94.72 ft2 103.22 ft2 304.72 ft2 303.11 ft2 1,828.34 ft2 1,353.88 ft2 183.63 ft2 78.36 ft2 262.20 ft2 25.51 ft2 1,903.59 ft2 1,340.70 ft2 1,340.70 ft2

VILLA 16

FEATURES

• Great Room • Kitchen

• Indoor Yard

• 3 Bedrooms

• 3.5 Baths

• Laundry • Garage

• Cover Terrace • Rooftop

Yard • Balcony

Mezzanine 11.48 ft

ROOF SL LL INTERIORES TERRAZA TERRAZA CUBIERTA YARD GARDEN TOTAL INTERIOR COVER TERRACE TERRACE INTERIORES TERRAZA TERRAZA CUBIERTA YARD BALCONY TOTAL INTERIOR COVER TERRACE GARAGE TOTAL TERRACE 1,023.21 ft2 94.50 ft2 103.22 ft2 304.72 ft2 1,004.45 ft2 2,529.68 ft2 1,353.88 ft2 183.63 ft2 78.36 ft2 258.76 ft2 25.51 ft2 1,900.04 ft2 1,164.77 ft2 1,164.77 ft2

VILLA 17

FEATURES

• Great Room • Kitchen • Indoor Yard

• 3 Bedrooms

• 3.5 Baths • Laundry • Garage

• Cover Terrace • Rooftop

Yard

Balcony

Mezzanine 11.48 ft

ROOF SL LL INTERIORES TERRAZA TERRAZA CUBIERTA YARD GARDEN TOTAL INTERIOR COVER TERRACE TERRACE INTERIORES TERRAZA TERRAZA CUBIERTA YARD BALCONY TOTAL INTERIOR COVER TERRACE GARAGE TOTAL TERRACE 1,023.63 ft2 94.72 ft2 103.22 ft2 304.72 ft2 306.44 ft2 1,831.67 ft2 1,353.88 ft2 183.63 ft2 78.36 ft2 262.20 ft2 25.51 ft2 1,903.59 ft2 1,340.70 ft2 1,340.70 ft2

VILLA 18

FEATURES

• Great Room • Kitchen • Indoor Yard

• 3 Bedrooms

• 3.5 Baths • Laundry • Garage

• Cover Terrace • Rooftop

Yard

Balcony

Mezzanine 11.48 ft

ROOF SL LL INTERIORES TERRAZA TERRAZA CUBIERTA YARD GARDEN TOTAL INTERIOR COVER TERRACE TERRACE INTERIORES TERRAZA TERRAZA CUBIERTA YARD BALCONY TOTAL INTERIOR COVER TERRACE GARAGE TOTAL TERRACE 1,023.21 ft2 94.50 ft2 103.22 ft2 304.72 ft2 557.48 ft2 2,082.71 ft2 1,353.88 ft2 183.63 ft2 78.36 ft2 258.76 ft2 25.51 ft2 1,900.04 ft2 1,164.77 ft2 1,164.77 ft2

VILLA 19

FEATURES

• Great Room • Kitchen • Indoor Yard

• 4 Bedrooms • 4.5 Baths • Laundry • Garage • Cover Terrace • Rooftop

Yard

Balcony

Mezzanine 11.48 ft

ROOF
INTERIORES TERRAZA TERRAZA CUBIERTA YARD GARDEN TOTAL INTERIOR COVER TERRACE TERRACE INTERIORES TERRAZA TERRAZA CUBIERTA YARD BALCONY TOTAL INTERIOR COVER TERRACE GARAGE TOTAL TERRACE 1,292.85 ft2 94.72 ft2 103.19 ft2 304.72 ft2 666.90 ft2 1,336.82 ft2 1,353.88 ft2 183.63 ft2 78.44 ft2 262.65 ft2 25.50 ft2 1,904.35 ft2 1,336.82 ft2 1,336.82 ft2
SL LL

Turn static files into dynamic content formats.

Create a flipbook
Issuu converts static files into: digital portfolios, online yearbooks, online catalogs, digital photo albums and more. Sign up and create your flipbook.