House Project.

Resort Project at
Avissawella
Major Design Project
Semester V
In this forward-looking resort project for Avissawella, Sri Lanka, I explored how practical and more humanized design approaches and thorough data analytics can shape a destination that harmonizes with its natural and economic environments. By studying diverse visitor profiles, seasonal patterns, and evolving market trends, the project identifies both hidden and emerging opportunities that can elevate guest experiences while protecting local ecosystems. This holistic model integrates innovative technologies—from renewable energy solutions to smart resource management—and offers multiple design alternatives. The goal is to ensure that every strategic decision, from site planning to operations, remains adaptable and resilient against potential failures. Ultimately, this resort concept exemplifies an agile, eco-conscious vision, redefining what it means to create truly sustainable hospitality in a rapidly changing world.


Mapping and Zoning
I used detailed mapping and zoning to identify tourism potentials, ecological variations, contextual threats, opportunities, and user demographics. By layering geographic and market data, I established a structured framework that ensures a design aligned with local ecosystems, community values, and long-term adaptability.



Interior Design and Rendering
I leveraged Revit for precise building information modeling, SketchUp for rapid conceptual development, and Lumion for high-quality rendering. This streamlined workflow captured the resort’s ambiance, textural qualities, and furniture details, delivering a visually immersive experience for stakeholders.


WORKFLOW

Orthographic Projection
Rendering


WORKFLOW


















Clay tile Factory at Waikkala
Factory Design Project
Semester IV
This clay tile manufacturing facility merges cutting-edge structural design with a future-focused, worker-centric ethos. At its core is an ultra-lightweight framework woven together by tensile structures—deploying advanced materials that reduce construction load yet optimize natural light and airflow. Enveloped by lush, green canopies to foster a healthier environment, the factory layout champions worker well-being through expansive ventilation corridors and abundant daylight infiltration. A key highlight is the clay tile promotional zone, featuring interactive showcasing stalls that spotlight the artistry of tile-making while engaging both clients and the broader community. Additionally, the communal restaurant and community kitchen act as economic catalysts for the workforce, offering new income pathways and strengthening social bonds. By harmonizing sustainability, innovative architecture, and worker empowerment, this project ushers in a holistic approach to modern industrial design.











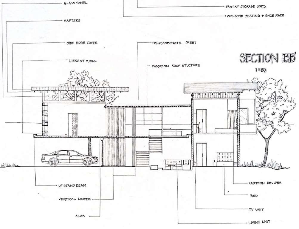
Whispering Woods Oasis at Baddagana
House Design Project
Semester III
This forward-thinking single-family residence experiments with dynamic space-making to foster both family togetherness and individual privacy. By weaving strategic “tree hides” into the structure and embracing an open-plan layout, I optimized cross-ventilation and natural daylight while preserving the pleasure of outdoor living. The result is a home that merges futuristic design sensibilities with practical sustainability, demonstrating how carefully curated indoor–outdoor transitions can elevate comfort, promote wellbeing, and celebrate ecological harmony.







Pod Pano-Rama at Kimbulawala
Personal Space Design Project
This project centers on a futuristic, self-sufficient Pod—a “mothership” for an eco-activist photographer embarking on missions in harsh wetland environments. The design optimizes interior spatial usage, ergonomics, and overall health considerations, while its hydrodynamic form ensures stability and maneuverability on water. A detachable boat extends the Pod’s capabilities, enabling the photographer to venture into remote areas with ease, carrying essential gear to document and protect fragile ecosystems. Through this innovative concept, I balanced functionality, comfort, and ecological responsibility, delivering a next-generation architectural solution perfectly aligned with nature conservation efforts.




