Skip to main content

Dinesh Kumar J architecture Portfolio 2024

Page 1


Education, work experience:

(2019 - 2024)

Bachelors in Architecture (REVA University)

2020

Rural documentation, Mossale village Documentation and measure drawings

2020

ANDC design trophy Concepts, renders

2021

Voluntary intern for Esthétique Architects Conservation documentation Measure drawings

2022

CPK design trophy Concept, design, renders

2023-6 months

Interned at Stapati architects, Bangalore Working drawings Presentations

Site visits

3D works, renders Revit modeling.

Address: No 2 Ambedkar nagar, DJ Halli, B-Block Bengaluru 560045

DINESH KUMAR . J

As an architect i am deeply passionate about design, I’m convinced that architecture has the power to shape society, driving meaningful change and influencing how communities evolve. My focus spans modern, vernacular, and sustainable design, each playing a crucial role in shaping a better future.

(2016 - 2018)

Pre-university (MES Kishora kendra)

Skills:

(2003 - 2016)

Pre-Primary to High school (Navodaya vidyanikethana)

Languages:

English Tamil Kannada Hindi

Mobile: 9900102634

Email: dkumarj007@gmail.com

TABLE OF CONTENT

Threads of transformation ( 1-14 )

Mixed use development ( 15-26 )

Office design ( 27-30 )

Internship work ( 31-46 )

Threads of transformation.

An urban slum redevelopment in Bangalore, Karnataka.

2024

10th Sem Thesis

Softwares utilized:

Autocad

Illustrator

Sketchup

Photoshop

Site details:

Location: DJ halli, Bangalore, Karnataka

Area: 0.92acres (3763sqm)

This project explores the living conditions in urban slums, examining various slum types and techniques for their improvement. It highlights the significance of human interaction in housing projects and its role in enhancing the well-being and happiness of residents.

The design integrates modular precast units for efficient and rapid construction. Given the limited site area, the focus is on creating community gathering spaces on each level of the structure, rather than just at ground level. The staggered arrangement of the units generates small communal areas on each floor, allowing residents to engage with their neighbors, mirroring the closeknit social life of slum communities

Introduction.

Slums analysis.

Concept.

Modularity

Grid arrangement

Block arrangement with common spaces

Housing units.

Modular spaces within units.

fig:1 Kitchen type 1.
fig:3 Living space.
fig:2 Kitchen type 2.
fig:4 Bathroom, toilet and balcony.
Block B.
Img:1 Isometric view.
Img:2 Space between housing blocks
Img:3 Rear view.
Img:4 View in front of units.
Img:5 View in front of units.
Img:6 View

Mixed use development.

A new mixed use project in Hubli, Karnataka

2022

7th Sem AD 6

Softwares utilized:

Revit Autocad Sketchup Photoshop

Site details:

Location: Hubli-Dharwad

Bypass, Maruti Nagar, 580030, India

Area: 32.08 acres (129851.42sqm)

The project is located in Hubli, a rapidly developing district where the introduction of a mixed-use development could accelerate growth and attract more interest. Positioned near key transportation hubs, including highways, airports, and railways, the project is conveniently close to the main city .

This development features a hotel, a mall, apartments, and office spaces, with a focus on playfulness achieved through a deconstructivist architectural style. The design includes parks, jogging tracks, and a pond, with the pathways laid out in a non-linear, dynamic manner to create a more organic feel. Trees are strategically placed, using different species to achieve varied effects

1. Hotel ( 14m, 4 levels )
2. Mall ( 17m, 4 levels )
3. Residential blocks ( 20m, 5 levels )
4. Office ( 15m, 4 levels )
5. Transformer 6. Stp 7. Koi pond
fig:1 Master plan.

Concept.

Deconsructivism

Hotel form development

Basic blocking

Separation of rooms and Circulation

Shopping complex

Dynamic arrangement of rooms

Initial block model

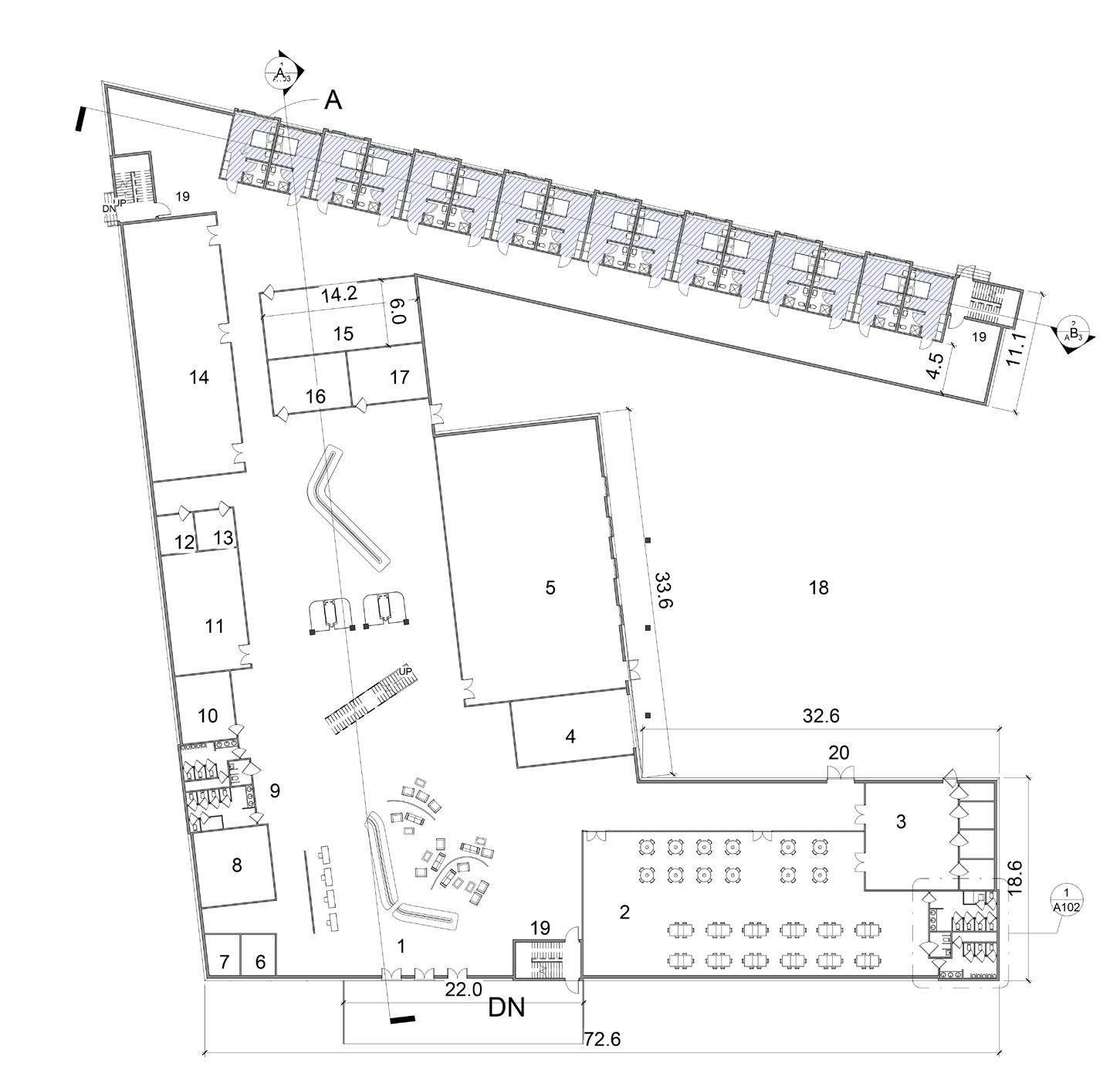
Hotel.

Plans, sections

Hotel room plans

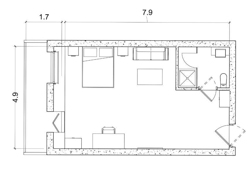
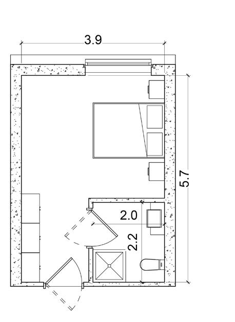
fig: 2 Single bed unit ( 22Sqm )
Img: 1 View of units
fig: 3 Dual bed unit ( 52Sqm )
fig: 4 Suite room unit ( 46Sqm )

5 Ground floor plan.

6 Second floor plan.

1. Lobby, reception

2. Restaurant

3. Kitchen

4. Cafe

5. Multipurpose hall

6. Office

7. Server room

8. Meeting room

9. Toilet

10. Laundry

11. Gym

12. Electrical room

13. Ahu room

14. Brand shop

15. First aid room

16. Pantry

17. Storage

18. Open space

19. Fire escape staircase

20. Service entry

A. Single bedroom ( 22Sqm )

1. Electrical room

2. Ahu room

3. Fire escape staircase

A. Single bedroom ( 22Sqm )

B. Dual bedroom ( 52Sqm )

fig:
fig:
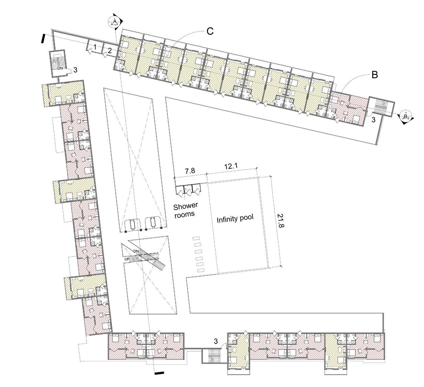
fig: 7 Second floor plan.
fig: 8 Third floor plan.
1. Electrical room
2. Ahu room
3. Fire escape staircase
B. Dual bedroom ( 52Sqm )
C. Suite room ( 42sqm )
1. Electrical room
2. Ahu room
3. Fire escape staircase
B. Dual bedroom ( 52Sqm )
C. Suite room ( 42sqm )
fig: 9 Section AA’
fig: 10 Section BB’
fig: 11 Front elevation
fig: 12 Side elevation
Img: 2 Interior view
Img: 3 View of pool
Img: 4 View of Hotel

Shopping complex.

Plans, sections

fig: 13 Ground floor plan.
fig: 14 Second floor plan.
1. Retail spaces
2. Food stalls Service cores
1. Retail spaces
2. Food stalls Service cores
fig: 15 Second floor plan.
fig: 16 Third floor plan.
1. Retail spaces
2. Food stalls Service cores
1. Retail spaces
2. Food stalls
3. Cinema theater
4. Gaming and play area Service cores
fig: 17 Section AA’.
fig: 18 Section BB’.
fig: 19 Front elevation.
fig: 20 Side elevation.
Img: 5 Exterior view
Img: 6 Interior view
Img: 7 View of Shopping complex

Architects office.

Office space design for architect Laurie baker.

2021

4rd Sem

AD-3

Time problem

Softwares utilized:

Autocad

Sketchup

Illustrator

Photoshop

Site details:

Location: Magrath Rd Bengaluru,Karnataka

Area: 762.5 m2

The project aims to create a functional office space tailored to the needs of architects, with a layout that encourages collaboration. The design integrates jali walls to enhance natural light and Ventilation, providing a well-lit and airy workspace for architects. It also offers a welcoming and open environment for both clients and architects.

Inspired by Ar. Laurie Baker’s principles, the design incorporates elements like filler slabs, jali walls, and brickwork, reflecting his commitment to costeffective construction and harmony with nature. The design features curvilinear forms and extensive use of bricks, allowing the office to blend seamlessly with nature, reflecting his signature style.

fig: 1 Perspective section through the build ing.
fig: 2 Ground floor plan
fig: 3 First floor plan
fig: 4 Second floor plan
fig: 5 Front elevation

Interned at Stapati Professional

2023

8th Sem

Internship 6 months

Softwares utilized:

Autocad

Sketchup

Revit

Photoshop

Powerpoint

Enscape

Details:

Location: 4th

560034

Block, la, Bengaluru,

Stapati Architects Professional works.

Details:

Location: 356, 1st Cross Rd, Block, KoramangaBengaluru, Karnataka

560034

Scope of work:

Working drawings

Detail drawings

Correction drawings

Presentation work

3D works

Revit modeling

Site visits

Renderings

Physical model making

fig: 1 Staircase details.
fig: 2 Furniture detail.

3 Door 1 details.

4 Door 2 details.

fig:
fig:

Thank you.

Turn static files into dynamic content formats.

Create a flipbook
Dinesh Kumar J architecture Portfolio 2024 by Dinesh Kumar J - Issuu