PRTFLIO D

Page 1

ARCHITECTURE

MUHAMMAD DICKY MAULIDA PORTOFOLIO

CONTENS

Tugas Akhir Traditional Sundanese Cultural Center - 2023

Comission Project Redesign for New Regulations Cijantung Hospital - 2023

Render Competition Comfort Behind

Februari 2022

1
MUHAMMAD DICKY MAULIDA 01 SEPTEMBER 2023
2 3

Tugas Akhir

Traditional Sundanese Cultural Center - 2023

Situ Pengasinan sebagai bagian dari Bagian Wilayah Kota Sawangan dan Kawasan Siap Bangun (Kasiba) atau Lingkungan Siap Bangun (Lisiba).Dengan melihat potensi sumberdaya alam dan peluang pengembangan wisata yang cukup menjanjikan

Tujuan dibangunnya pusat seni dan buday di lingkungan situ pengasinan untuk mewadahi dan mengembangkan kesenian dan kebudayaan kota Depok, mewadahi komunitas pecinta lingkungan untuk berdiskusi & melakukan kegiatan postif, mewadahi UMKM dan pelaku ekonomi sekitar agar dapat

SUNDANESE TRADITIONAL

Prinsip Design

layout yang digunakan masih dalam komposisi simetris yaitu persegi panjang

Pada bagian dinding yang menghadap ke arah

datangnya udara dan memiliki tekstur atau pola yang berlubang-lubang dapat diartikan mengalirkan udara dari dalam ruangan dan luar ruangan

dengan mengadaptasi design seperti rumah adat jawa barat yaitu julang ngapak yang

dikombinasikan dengan skylight yang terbuat dari polycarbonate dan dengan material yang dominan menggunakan kayu

MUHAMMAD DICKY MAULIDA 02 SEPTEMBER 2023

Analisis Aksesbilitas

Site dapat diakses melalui jalan utama yaitu Jl. Kasiba Lasiba dan terdapat jalan sekunder disebelah baratnya

Respond : Jalur Main Enterance dan Jalur Service Enterance dibuat terpisah, main enterance dapat di akses melalui Jl. Kasiba Lasiba dan service enterance dapat melalui jalur sekunder disebelahnya

Analisis Vegetasi

Respond : Vegetasi pada sekitar site cukup dominan untuk dipertahankan karena fungsi site juga sebagai kawasan RTH tetapi ada beberapa penataan seperti:

- penanaman tanaman buah dan sayur pada baguian utara site

- penanaman tanaman tanaman peredu disetiap sisi terluar site dan sekaligus berfungsi sebagai pagar alami

Analisis Visibilitas

Respond

A. View ini jelas dijadikan sebagai view utama yang dimana fasad bangunan akan menghadap kearah view ini

B. Karena view ini kurang menarik sehingga dimanfaatkan sebagai sebuah enterance sekaligus parkiran yang dimana hanya sebagai tempa transit

C. view ini juga dimanfaat kan sebagai enterance untuk service dan loading dock karena viewnya juga kurang menarik

D. Untuk view ini dimanfaat kan sebagai ruang outdoor bangunan seperti amphiteater dsb.

Analisis Topografi

Karena tingkat elevasi yang cukup rendah area berkontur yang lumayan dalam pada site tetap dibiarkan tetapihanya diatur landscapingnya

sedangkan area yang memiliki elvasi sangat sedikit mungkin akan dilakukan fill agar konturnya menjadi rata

SITE PLAN MASS DEVELOPMENT 1 2 3 4
main enterance service enterance
MUHAMMAD DICKY MAULIDA 03 SEPTEMBER 2023
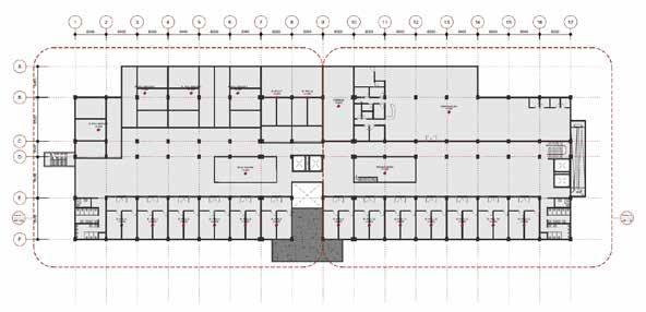
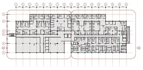
R.WORKSHOP 3D R.WORKSHOP 2D ART GALLERY LOCKER R.LATIHAN SENI TARI SANGGAR SANGGAR RUANG TANAMAN HIAS R.KERAJINAN PLASITIK R.LATIHAN SENI TARI UTAMA MATA KULIAH JUDUL TUGAS TUGAS AKHIR BAR R. Makan 6550 4275 2275 3550 30 DENAH CAFETARIA MATA KULIAH JUDUL TUGAS NAMA KELAS NPM DOSEN JUDUL GAMBAR CATATAN SKALA TANGGAL LEMBAR 4TB04 U RMA GUN UNIVERSITAS GUNADARMA FAKULTAS TEKNIK DAN PERENCANAAN JURUSAN TEKNIK ARSITEKTUR DOSEN DENAH MUHAMMAD DICKY M 24319091 Ir. Irina Mildawani DENAH CAFETARIA TUGAS AKHIR 1 30 R. Sholat Wudhu Wanita Wudhu Pria 6550 2225 4000 1530 1530 950 DENAH MUSHOLLAH WC WC R. KEPALA R. KARYAWAN RAPAT R. KARYAWAN LOBBY R.JANITOR A B C D E F 1 2 6000 3000 3000 6000 2000 5000 6000 1260 3000 2000 3000 6000 1345 3000 4000 1 100 DENAH BANGUNAN PERIMA & PENGELOLA MATA KULIAH JUDUL TUGAS NAMA KELAS NPM DOSEN JUDUL GAMBAR CATATAN SKALA TANGGAL LEMBAR 4TB04 R UNIV S TA S DARMA GUNA UNIVERSITAS GUNADARMA FAKULTAS TEKNIK DAN PERENCANAAN JURUSAN TEKNIK ARSITEKTUR DOSEN DENAH MUHAMMAD DICKY M 24319091 Ir. Irina Mildawani DENAH BANGUNAN PENERIMA & PENGELOLA TUGAS AKHIR 1 100 DENAH CAFETARIA DENAH MUSHOLLAH DENAH PENGELOLA DENAH MASSA UTAMA D E 3649,97019198 3650 1 100 DENAH AULA MATA KULIAH JUDUL TUGAS NAMA KELAS NPM DOSEN JUDUL GAMBAR CATATAN SKALA TANGGAL LEMBAR 4TB04 N A M N UNIVERSITAS GUNADARMA FAKULTAS TEKNIK DAN PERENCANAAN DOSEN DENAH MUHAMMAD DICKY M 24319091 Ir. Irina Mildawani DENAH AULA TUGAS AKHIR 1 100 3650 3650 3650 3650 3650 3650 3650 3650 DENAH AULA MUHAMMAD DICKY MAULIDA 04 SEPTEMBER 2023
FLOOR PLAN

VISIONING

MUHAMMAD DICKY MAULIDA 05 SEPTEMBER 2023

Comission Project

Redesign for New Regulations

Cijantung Hospital - 2023

Rumah Sakit Cijantung merupapakan rumah sakit angkatan darat yang berada didaerah cijantung, dilakukannya revitalisasi dikarenakan untuk memenuhi standar undang undang terbaru yaitu dengan minimal lantai berjumlah 4. Oleh karena itu bangunan ini dibangun juga didasari dengan contoh bangunan sejenis dan peraturan daerah sekitar

menampilkan ekspresi yang tegas dengan menampilkan struktur utama dengan aksen vertikal dan hori-zontal pada fasadnya

menggunakan material ekspose untuk menampilkan kesan minimalis

menerapkan sistem ekonomis dengan menggunakan material yang memiliki harga yang murah dan efisien

MUHAMMAD DICKY MAULIDA 06 SEPTEMBER 2023
SITE PLAN MASS DEVELOPMENT 1 2 3 4 SITE 4 5 SITEADJUST MASSINGDUPLICATE MASSINGVOID MASSINGFACADE FINISHINGDESING ANALISIS MUHAMMAD DICKY MAULIDA 07 SEPTEMBER 2023

FLOOR PLAN

DENAH LANTAI 1 DENAH LANTAI 3 DENAH LANTAI 2 DENAH LANTAI 4 DENAH BASEMENT 1
A
POTONGAN A - POTONGAN B - B DENAH LANTAI 4 DENAH LANTAI 4
MUHAMMAD DICKY MAULIDA 08 SEPTEMBER 2023
DENAH LANTAI 4

VISIONING

MUHAMMAD DICKY MAULIDA 09 SEPTEMBER 2023

Tatanah x Transhome Render Competition

Comfort Behind Februari 2022

mencoba memvisualisasikan suatu rumah tinggal yang berada dibelakang keramaian kota yang dapat tinggal dan berinteraksi dengan nyaman dan menciptakan suasana yang sederhana tanpa adanya banyak ornamen

Karena rumah tinggal merupakan tempat kita pulang dari ramainya hirukpikuk perkotaan

MUHAMMAD DICKY MAULIDA 10 SEPTEMBER 2023

Turn static files into dynamic content formats.

Create a flipbook
Issuu converts static files into: digital portfolios, online yearbooks, online catalogs, digital photo albums and more. Sign up and create your flipbook.
PRTFLIO D by Muhammad Dicky Maulida - Issuu