CHUYÊN ĐỀ KIẾN TRÚC VÀ MÔI TRƯỜNG- DIỆP PHÁT MAJEH REUP

Page 1

GVHD: TS. KTS TRƯƠNG NGUYỄN HOÀNG LONG

SVTH: LÀI DIỆP PHÁT

MSSV: 17510201212

1 TRƯỜNG ĐẠI HỌC KIẾN TRÚC THÀNH PHỐ HỒ CHÍ MINH
BỘ MÔN MÔI TRƯỜNG VÀ THIẾT KẾ BỀN VỮNG BÀI THU HOẠCH KẾT THÚC MÔN HỌC KIẾN
MÔI
KHOA KIẾN TRÚC
TRÚC VÀ
TRƯỜNG
2

MỤC LỤC

I. GIỚI THIỆU CÔNG TRÌNH

II. CÁC GIẢI PHÁP KIẾN TRÚC VÀ BẢNG ĐÁNH GIÁ TỔNG HỢP

a. ĐỊA ĐIỂM BỀN VỮNG

b. NĂNG LƯỢNG

c. VẬT LIỆU BỀN VỮNG

d. NƯỚC

e. CHẤT LƯỢNG MÔI TRƯỜNG TRONG NHÀ

f. BẢNG ĐÁNH GIÁ TỔNG HỢP

III. KIẾN THỨC VÀ KINH NGHIỆM QUA MÔN HỌC

Nguồn tài liệu tham khảo

3

GIOI THIEU CONG TRINH

4

ĐỒ ÁN NHÀ Ở 1: BIỆT THỰ ĐƠN LẬP

• TÊN: BIỆT THỰ MIỀN KÍ ỨC

• Hình thức thể hiện: vẽ tay

• Vị trí khu đất: khu phức hợp thương mại nhà ở, 16/9 Bùi Văn Ba, phường Tân Thuận Đông, Quận 7 , Tp. Hồ Chí Minh.

• Diện tích khu đất: 858 m2 .

• Mật độ xây dựng: ≤ 30%.

• Quy mô công trình : 1 trệt, 1 lửng , 1 lầu.

Khái niệm sơ bộ biệt thự: Biệt thự là loại hình nhà ở được thiết kế và xây dựng

trên một không gian tương đối hoàn thiện và biệt lập tương đối với không gian xây dựng chung. Thông thường, biệt thự được hiểu là nhà ở riêng lẻ có sân vườn (cây xanh, thảm cỏ, vườn hoa, …), có tường rào và lối ra vào riêng biệt. Việc thiết kế biệt thự đòi hỏi phải có nghệ thuật và thẩm mĩ cao.

DIAGRAM CONCEPT KHÔNG GIAN-

NỘI THẤT

5 I. GIỚI
THIỆU CÔNG TRÌNH: GIỚI THIỆU SƠ BỘ
VỊ TRÍ KHU ĐẤT
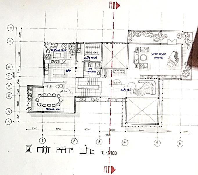
6 I. GIỚI THIỆU CÔNG TRÌNH: GIỚI THIỆU SƠ BỘ MẶT BẰNG TRỆT TỔNG THỂ MẶT BẰNG LỬNG MẶT BẰNG LẦU 1 HÌNH ẢNH CÁC MẶT BẰNG
7 I. GIỚI THIỆU CÔNG TRÌNH: GIỚI THIỆU SƠ BỘ MẶT ĐỨNG VÀ MẶT CẮT CỦA BIỆT THỰ PHỐI CẢNH BIỆT THỰ

GIAI PHAP VA DANH GIA

8

1. LỰA CHỌN KHU ĐẤT

 Khu đất có giá trị sinh thái thấp?

Khu đất biệt thự có vị trí sinh thái tốt, cây xanh nhiều, có cả Rạch

đầu ngựa. Có công viên cây xanh, vỉa hè, ven kênh đều có cây xanh.

 Tận dụng khu đất đã phát triển

Vì khu đất nằm trong khu phức hợp thương mại nhà ở. Tận dụng phát triển thêm nhà ở, có định hướng phát triển quy hoạch nhà ở.

 Kết nối cộng đồng (trong vòng bán kính 500m)

• Nhà hàng Oh Vang (từ khu đất đến nhà hàng: 250m)

• Trà- Café Bệt N3 JSG (350m)

• iCoffee (260m)

• Trạm sạc Vinfast ( 300m)

• An Cường Show gallery (400m)

• ….

 Khoảng cách đến các đầu mối giao thông lớn

9 PHẦN 2: CÁC GIẢI PHÁP KIẾN TRÚC
ĐÁNH GIÁ TỔNG
& BẢNG
HỢP a. ĐỊA ĐIỂM BỀN VỮNG
Vị trí khu đất ra đường Bùi Văn Ba: 400m Vị trí khu đất ra đường Số 7: 1 6 km Vị trí khu đất ra đường Huỳnh Tấn Phát: 1.1 km

2. THIẾT KẾ KHU ĐẤT

PHÂN TÍCH KHU ĐẤT

• Diện tích khu đất: 858 m²

• Công trình sẵn có phía Tây: Công viên cây xanh.

• Công trình sẵn có phía Đông: dãy nhà biệt thự đơn lập tương tự (1 trệt, 1 lửng, 1 lầu)

• Công trình sẵn có phía Nam: cây xanh ven rạch, rạch Đầu Ngựa.

• Công trình sẵn có phía Bắc: dãy nhà biệt thự đơn lập tương tự (1 trệt, 1 lửng, 1 lầu)

• Kết cấu sẵn có quanh khu đất: đa phần là các nhà ở bê tông cốt thép, cây xanh, gỗ,.

• Địa hình: bằng phẳng, không có địa hình dốc hay núi đồi, có rạch nước.

• Mô tả tầm nhìn:

 Phía Nam: Khu đất có tầm nhìn view về kênh rạch

 Phía Tây: có công viên cây xanh.

 Phía Đông và Bắc chỉ là biệt thự

đơn lập thấp tầng.

 Diện tích không phát triển xây dựng

Diện tích đất xây dựng: ≤30% (Yêu cầu ít nhất 20% diện tích không xây dựng)

Diện tích khu đất không phát triển xây dựng: 70%, đảm bảo yêu cầu

⟶ Khu đất có lợi về tầm nhìn, địa hình tốt, cây xanh nhiều.

PHẦN 2: CÁC GIẢI PHÁP KIẾN TRÚC & BẢNG ĐÁNH GIÁ TỔNG HỢP a. ĐỊA ĐIỂM BỀN VỮNG
10

3. HIỆU ỨNG ĐẢO NHIỆT

Tổng diện tích mái đáp ứng hoàn toàn các yêu cầu:

• Hệ số phản xạ (Albedo), mái độ dốc lớn hơn 0.29

• Có thể thiết kế mái xanh trên mái.

• Gắn được pin mặt trời ở hướng đông.

MÁI XANH: Có 2 bên mái bằng, tận dụng mái thiết kế mái xanh

PIN MẶT TRỜI: Mái bên hướng Đông dốc 25%, tận dụng hướng nắng đây áp dụng pin mặt trời trên mái

PHẦN 2: CÁC GIẢI PHÁP KIẾN TRÚC & BẢNG ĐÁNH GIÁ TỔNG HỢP a. ĐỊA ĐIỂM BỀN VỮNG
MINH HỌA GIẢI PHÁP 11
HIỆN TRẠNG BAN ĐẦU

4.

12 PHẦN 2: CÁC GIẢI PHÁP KIẾN TRÚC & BẢNG ĐÁNH GIÁ TỔNG HỢP a. ĐỊA ĐIỂM BỀN VỮNG
NƯỚC MƯA CHẢY TRÀN Hiện tại khu đất đã có khả năng thấm nước, do có vườn cây thảm cỏ. Diện tích có khả năng thấm nước = diện tích thảm cỏ, vườn cây = 287.5 m². Tỉ lệ diện tích có khả năng thấm nước / tổng diện tích khu đất: 287.5 / 858 %= 33,51%

1. THIẾT KẾ THỤ ĐỘNG

HỢP b. NĂNG LƯỢNG

Mặt đứng hướng Đông và Tây

• Diện tích mặt đứng hướng Đông: 178.177 m²

• Diện tích mặt đứng hướng Tây: 121,632 m²

• Diện tích mặt đứng hướng Nam : 261.828 m²

• Diện tích mặt đứng hướng Bắc: 245,328 m²

⟶ Tổng diện tích mặt đứng: 812.965 m²

 Tỉ lê (mặt đứng hướng Đông + Tây) / tổng diện tích mặt đứng: 299.809 /812.965 %= 36.878% ≤ 40%

 Tỉ lê (mặt đứng hướng Đông + Tây) / tổng diện tích mặt đứng: 36.878% ≥ 20% (chưa thỏa)

Tỷ số diện tích cửa sổ - tường

MẶT ĐỨNG HƯỚNG ĐÔNG MẶT ĐỨNG HƯỚNG ĐÔNG

 Tỷ số diện tích cửa sổ - tường của mặt đứng hướng Đông ((1.4x4x2)+(2.5x1.6x3)) /178.177%=13.02% ≤ 30% (đạt yêu cầu)

 Tỷ số diện tích cửa sổ - tường của mặt đứng hướng Đông:

13.02% <15% (đạt yêu cầu)

 Tỷ số diện tích cửa sổ - tường của mặt đứng hướng Tây :

((2.5x1.6*2) + 2.6x 3.6)/ 121.632% =14.304% ≤ 30%

(đạt yêu cầu)

 Tỷ số diện tích cửa sổ - tường của mặt đứng hướng Tây :

14.304% ≤ 15% (đạt yêu cầu)

13 PHẦN 2: CÁC GIẢI
ĐÁNH
PHÁP KIẾN TRÚC & BẢNG
GIÁ TỔNG

1. THIẾT KẾ THỤ ĐỘNG

• Kết cấu chắn nắng

MẶT ĐỨNG HƯỚNG NAM

MẶT ĐỨNG HƯỚNG ĐÔNG

MẶT ĐỨNG HƯỚNG BẮC

MẶT ĐỨNG HƯỚNG TÂY

Các mặt đứng Nam, Bắc, Đông, Tây đều được trang bị các khung lam sẵn, tường bê tông, ít cửa sổ, đều có khả năng chắn nắng tốt

14 PHẦN 2:
CÁC GIẢI PHÁP KIẾN TRÚC & BẢNG ĐÁNH GIÁ TỔNG HỢP b. NĂNG LƯỢNG

2. VỎ CÔNG TRÌNH

• Truyền nhiệt tường và mái

• Mái

Trồng cây trên mái và đặt pin năng lượng mặt trời làm hấp

thụ đáng kể lượng bức xạ mặt trời lên bề mặt mái công trình.

Xung quanh tường công trình bao bọc bởi lớp lam che nắng làm giảm hấp

thụ bức xạ mặt trời vào bề mặt kính.

• Tường

Sử dụng một vật liệu cách nhiệt : bông thủy tinh

(áp dụng cho cả tường và mái)

THÔNG SỐ KỸ THUẬT BÔNG THỦY TINH:

- Màu sắc: Màu vàng nhạt, không vị – không mùi.

- Chủng loại: Dạng cuộn

- Nhiệt độ: -15 độ C – 350 độ C.

-Tỉ trọng: 12 kg/m3– 16kg/m3 – 24 kg/m3– 32kg/m3 – 48 Kg/m3.

- Độ dày: 25 – 50mm.

- Kích thước: 1.2m x 15m – 1.2m x 7.5m

ƯU ĐIỂM BÔNG THỦY TINH

-Bông thủy tinh có Khả năng cách nhiệt cách âm tốt: 95% – 97%.

-Bông thủy tinh Tính năng cách điện, chống cháy tốt.

-Bông thủy tinh Mềm, nhẹ, đàn hồi nhanh.

-Bông thủy tinh Độ bền của sản phẩm cao, chịu được nhiệt độ lên tới 350oC.

-Bông thủy tinh Vận chuyển và thi công tiện lợi.

15 PHẦN 2: CÁC GIẢI PHÁP KIẾN TRÚC & BẢNG ĐÁNH GIÁ TỔNG HỢP b. NĂNG LƯỢNG

2. VỎ CÔNG TRÌNH

• Bức xạ qua cửa sổ

Giải pháp sử dụng kính Low- E để giảm bức xạ qua cửa sổ: Low- E (viết tắt của Low Energy)

• Khả năng khống chế nhiệt lượng: kính phủ LOW-E sẽ phản xạ nhiệt trở lại nguồn của nó, từ đó không gian được làm lạnh bên trong tủ sẽ giữ được lâu hơn, sự trao đổi nhiệt với môi trường bên ngoài luôn được giữ ở mức thấp nhất.

• Khả năng cách nhiệt: tỷ lệ nhiệt lượng ở môi trường bên ngoài trao đổi với không gian bên trong tủ cũng cực kỳ thấp.

• Khả năng cân bằng ánh sáng: không gây chói mắt khi nhìn từ ngoài vào hay có nguồn sáng khác bên ngoài chiếu vào như kính phản quang nên hiệu quả thẩm mỹ cao, trung bày thực phẩm rất tốt.

• Tiết kiệm điện năng: khả năng giữ nhiệt và cách nhiệt cực tốt của kính mà thiết bị làm lạnh sẽ phải hoạt động ít hơn từ đó tiết kiệm đượng một lượng điện năng đáng kể.

• Ngoài ra cũng chính vi khả năng cách nhiệt và khống chế nhiệt lượng mà dòng kính

LOW-E không bị đọng sương hay bám hơi nước trên mặt kính khi tủ hoạt động.

16 PHẦN 2: CÁC GIẢI PHÁP KIẾN TRÚC & BẢNG ĐÁNH GIÁ TỔNG HỢP b. NĂNG LƯỢNG
17 PHẦN 2: CÁC GIẢI PHÁP KIẾN TRÚC & BẢNG ĐÁNH GIÁ TỔNG HỢP b. NĂNG LƯỢNG
VỎ CÔNG TRÌNH • Bức xạ mặt trời trên bề mặt không trong suốt 95% diện tích mái / tường: • Mái xanh • Tường có kết cấu che nắng bên ngoài
2.

1.Kết cấu

Ưu tiên sử dụng vật liệu tái chế lại được, những sản phẩm thân thiện với môi trường, mà chất lượng không giảm.

Thép tái chế

Quá trình tái chế thép góp phần làm giảm lượng điện tiêu thụ tới 80%, ít gây tác động đến môi trường hơn và loại bỏ hoàn toàn nhu cầu khai thác nguyên liệu thô. Cốt thép sử dụng cho bê tông chịu lực, dây điện, đinh và ống kim loại làm từ phế liệu.

Gạch không nung

Có khả năng cách âm, cách nhiệt, chống thấm khá tốt, điều này phù hợp với kết cấu của từng viên gạch cũng như cấp phối vữa bê tông. So với gạch nung thì những viên gạch xây dựng này có kích thước lớn hơn khá nhiều, nó gấp 2 đến 11 lần thể tích, điều này cho phép giảm đi chi phí cho nhân công, đem lại tiến độ công trình nhanh lẹ. Chưa hết, lượng vữa dùng để xây dựng bằng gạch không nung và trát giảm đến 2.5 lần so với gạch truyền thống.

Với gạch không nung, ta có thể tiết kiệm được thời gian, nguồn tài chính và đơn giản một vài khâu quan trọng trong quá trình xây dựng. Nếu quá trình sản xuất có sử dụng chất độn như sỏi, đá, than xỉ… thì nó cũng làm giảm đi trọng lượng một cách đáng kể, đa dạng về chủng loại, màu sắc, kích thước đồng nhất và đạt được yêu cầu về độ thẩm mỹ cao.

18 PHẦN 2: CÁC GIẢI PHÁP KIẾN TRÚC & BẢNG ĐÁNH GIÁ TỔNG HỢP c. VẬT LIỆU BỀN VỮNG

2. Bao che

Do bài biệt thự đã được trang bị hệ thống bao che bằng các lam gỗ, kết hợp với các chậu cây, nên em sẽ không điều chỉnh gì vỏ

bao che. Và do quá trình phân tích cũng đã đề xuất kính chống

bất xạ, tường cách nhiệt, nên em sẽ thêm vật liệu trang trí cho

tường .

Tấm ốp tường từ xơ mướp

Hồi trước xơ mướp đã được dùng làm bông tắm vì tính thấm nước và diệt khuẩn tốt thì nay xơ mướp được ép vào khuôn đúc và nhuộm màu thành một loại tấm ốp tường. Hơn nữa, xơ mướp là một vật liệu dễ dàng tìm thấy, cây mướp cũng dễ trồng, dễ phát triển, khai thác không hề làm tổn hại đến môi trường Em sẽ áp dụng này cho tường, cả trong lẫn ngoại thất

Gạch ốp lát từ sợi gỗ

• Sản phẩm mang tính sinh thái vì nó có thể tái chế và có thể tận dụng những miếng gỗ thừa để lấy sợi.

• Có khả năng chống ẩm thậm chí làm giảm độ ẩm hoặc bốc hơi độ ẩm cho không khí xung quanh góp phần tạo nên môi trường trong nhà dễ chịu rất tốt cho sức khoẻ.

• Có khả năng hấp thụ khí nóng từ không khí xung quanh và phát ra khi nhiệt độ không khí giảm góp phần giảm chi phí năng lượng, tác động môi trường, làm khí hậu ổn định tạo sự thoải mái trong nhà.

• Có khả năng giảm tiếng ồn của âm thanh và hấp thụ âm thanh tốt, góp phần tạo âm thanh yên tĩnh.

19 PHẦN 2: CÁC GIẢI PHÁP KIẾN TRÚC & BẢNG ĐÁNH GIÁ TỔNG HỢP c. VẬT LIỆU BỀN VỮNG

3. Cửa ra cửa vào, cửa sổ

Cửa đi gốm 2 loại là của cửa gỗ công nghiệp và cửa nhựa lõi thép

- Cửa gỗ công nghiệp (cửa gỗ Composite): sẽ giúp hạn chế khai thác rừng bừa bãi. Tuy là gỗ tái chế nhưng nguồn gốc vẫn là gỗ tự nhiên nên chất lượng vẫn tốt dù cho là tái chế từ gỗ bỏ đi.

- Cửa nhựa lõi thép: được nhiều chuyên gia khuyến khích sử dụng vì: + Làm từ chất liệu tổng hợp nên không tàn phá đến thiên nhiên + Bền và tuổi thọ cao nên sử dụng lâu dài được + Khả năng chống chịu cao phù hợp với khí hậu thay đổi nhiều tại Việt Nam + Ngăn ảnh hưởng nắng và tia tử ngoại nhưng vẫn làm cho nhà/ phòng luôn sáng + Cách âm cách nhiệt tốt

Cửa nhựa lõi thép loại 4 cánh

Cửa nhựa lõi thép mở quay 4 cánh

20 PHẦN 2: CÁC GIẢI PHÁP KIẾN TRÚC & BẢNG ĐÁNH GIÁ TỔNG HỢP c. VẬT LIỆU BỀN VỮNG
Cửa gỗ Composite Cửa nhựa lõi thép loại lùa Cửa sổ nhựa lõi thép hất 1 cánh

4. Mái và lát sàn

Mái

Ngoài việc ứng dụng mái xanh, sử dụng pin mặt trời , ta có thể áp dụng them tấm lợp sinh thái.

Tấm lợp sinh thái Onduline là sản phẩm mái đa dụng giả ngói được sản xuất từ nguyên liệu tái sinh thân thiện môi trường có trọng lượng siêu nhẹ thiết kế kiểu dáng dạng sóng và màu sắc giống ngói cải tiến. Tấm lợp sinh thái không bị ăn mòn bởi muối biển, hóa chất , kiềm, ammoniac, không tiếng ồn khi mưa, có tính dẻo dai, linh hoạt. Tấm lợp sinh thái hay còn gọi là ngói sinh thái hay tôn sinh thái với tên tiếng anh là Ecological roofing sheet.

Sàn

Ta có thể áp dụng cho biệt thự 2 loại sàn thân thiện môi trường, có khả năng tái tạo, tái chế. Đó là 2 loại vật liệu là gỗ Sồi và tre.

• Sồi là loài cây đặc hữu ở khu vực Địa Trung Hải. Vỏ cây được thu hoạch 3 năm một lần mà không cần chặt hạ cây khiến nó trở thành một nguồn vật liệu tái tạo lý tưởng. Vỏ cây sồi có đặc tính chống vi khuẩn, côn trùng, chống cháy, dễ bảo quản.

• Sàn tre là vật liệu dễ dùng, dễ lắp ráp, giống như gỗ sồi, tất cả các loại sàn tre đều có độ bền cao. Có một loại sàn tre đặc biệt là sàn tre sợi dệt rất chắc chắn và cứng cáp do cách thức chế tạo, có thể so sánh độ cứng của nó gấp đôi gỗ sồi.

21 PHẦN 2: CÁC GIẢI PHÁP KIẾN TRÚC & BẢNG ĐÁNH GIÁ TỔNG HỢP c. VẬT LIỆU BỀN VỮNG
22 PHẦN 2: CÁC GIẢI PHÁP KIẾN TRÚC & BẢNG ĐÁNH GIÁ TỔNG HỢP c. VẬT LIỆU BỀN VỮNG 5. Vật dụng và thiết bị nội thất Khi cả công trình dùng các vật liệu bền vững, em cũng sẽ áp dụng vật liệu bền vững vào cả nội thất Ghế bố tre Giường tre Giường mây tre Tủ giày tre Tủ kệ tre Cũi tre em bé Đèn mây tre Sọt tre

1. Tái sử dụng nước

TÍCH HỢP HỆ THỐNG TÁI SỬ DỤNG NƯỚC MƯA

Tích hợp hệ thống thu và tái sử dụng nước mưa cho công trình để tưới tiêu sân vườn và xả nước bồn cầu.

Sơ đồ hoạt động:

Bồn nước

Nước mưa rơi xuống mái, một phần nuôi cây, một phần theo máng xuống dưới đấtg. Thoát nước mưa thông qua thẩm thấu qua đất, một phần nước được dự trữ ở bể chứa ngầm, một phần dần dần được xả ra bên ngoài môi trường.

BỂ CHỨA NƯỚC MƯA

23 PHẦN 2: CÁC GIẢI PHÁP KIẾN TRÚC & BẢNG ĐÁNH GIÁ TỔNG HỢP d. NƯỚC
wc wc wc
Tưới cây
Tưới cây, rửa xe

1. Tái sử dụng nước

HỆ THỐNG NƯỚC THẢI KÉP

Công nghệ Biopolus - Xử lý nước thải thân thiện môi trường

Hệ thống phát triển dưới dạng môi trường giống như một vườn cây xanh tốt thực sự dễ chịu và mang nhiều tính tự nhiên, nhân văn, mang lại một cách nhìn thực sự mới, thân thiện đối với các công trình xử lý nước thải của đô thị.

• Giá thể sinh học là loại màng Bioflim cố định. Các giá thể được thiết kế đảm bảo vận hành hoàn hảo nhất. Các giá thể đặt ngập chìm trong bể chứa nước thải và thuận tiện cho việc kiểm tra thường xuyên.

• Các giá thể thiết kế bao gồm các dây neo đáp ứng yêu cầu khi cần kiểm tra và bảo dưỡng từng module không cần phải dừng hoạt động của bể xử lý sinh học. Các giá thể được kéo lên độc lập.

• Các giá thể sinh học bao gồm các lớp song song với mặt phẳng phần giữ màng (Vuông góc với hướng dòng chảy chính), mỗi lớp phải được pha trộn khi sục khí hoàn toàn. Giữa các lớp đều có khoảng trống để lưu thông và khuếch tán khí.

• Giá thể được thiết kế có khả năng chứa ít nhất 8kg sinh khối trên 1 m3 thể tích. Mật độ sinh khối của màng sinh học đạt tới 14 – 18 kg sinh khối/m3, tuỳ thuộc vào nồng độ nước thải đầu vào của trạm xử lý.

24 PHẦN 2: CÁC GIẢI PHÁP KIẾN TRÚC & BẢNG ĐÁNH GIÁ TỔNG HỢP d. NƯỚC

2. Sân vườn sử dụng nước hiệu quả

Em đề xuất cho biệt thự cây:

Cau cảnh là một trong những loại cây được trồng rất nhiều ở các sân vườn biệt thự.

Cây cau cảnh có tác dụng thanh lọc không khí rất tốt, loại bỏ các loại khí độc

hại và hạn chế tia sóng độc hại cho con người.

Trong phong thủy, cây cau như là một biểu tượng bình yên, khai thông vượng khí, mang lại sự tốt đẹp cho gia chủ. Hơn nữa, còn là vật che chắn, bảo vệ ngôi nhà khỏi những điều xấu xa.

Ngoài ra còn trồng thêm cây Lộc vừng, vừa có ý nghĩa phong thủy, tốt cho môi trường, chữa bệnh, che nắng và thích hợp làm cây cảnh

Lộc vừng

25 PHẦN 2: CÁC GIẢI PHÁP KIẾN TRÚC & BẢNG ĐÁNH GIÁ TỔNG HỢP d. NƯỚC
Cau cảnh Cau cảnh
Lộc vừng

1. Thông gió tự nhiên

Biệt thự nằm ngay hướng Nam, nên đón nhận được cả gió Đông Nam, Nam, Tây Nam.

Thông gió tốt cho công trình, dường như thông thoáng toàn bộ nhà. Vì công trình có nhiều lam, thông thoáng tốt.

Chiếm gần 90% cho diện tích công trình.

26 PHẦN 2: CÁC GIẢI PHÁP KIẾN TRÚC & BẢNG ĐÁNH GIÁ TỔNG HỢP E. CHẤT LƯỢNG MÔI TRƯỜNG TRONG NHÀ

2. Hạn chế phát thải VOC

Sơn GRAPHENSTONE (nên dùng)

Đặc điểm:

- Sơn không mùi; màu hoàn thiện mờ tự nhiên; rất dễ lau chùi; hiệu suất che phủ tuyệt vời

- Hấp thụ CO2 (4,8kg/15l); kháng khuẩn, chống mốc, chống côn trùng

- Rất Thoáng khí, không ngưng tụ, chống nồm

- Độ bám dính cao, màn sơn bền chắc, rất mềm dẻo, không nứt

- Vôi chất lượng cao, có chứa các lưới Graphene.

- Không phát thải hợp chất hữu cơ bay hơi VOCs và Formaldehyde

- Đạt chứng chỉ xanh Green Rate level A

-Đạt chứng chỉ VÀNG Cradle to CradleTM

Sơn SUNVIC là hệ thống sơn nước cao cấp, sản xuất trên dây chuyền công nghệ Nhật bản. Sunvic sử dụng 100% nhựa acrylic tạo lớp bảo vệ hoàn hảo tường trong và ngoài nhà. Nhiệt đới hóa chống lại các tác động của thời tiết khắc nghiệt như chống thấm, chống rêu mốc, chống bám bụi, chịu phong hóa, chống nóng…Nên sơn Sunvic có độ bền rất cao.

27 PHẦN 2: CÁC GIẢI PHÁP KIẾN TRÚC & BẢNG ĐÁNH GIÁ TỔNG HỢP
E. CHẤT LƯỢNG MÔI TRƯỜNG TRONG NHÀ

3. Chiếu sáng tự nhiên

Diện tích chiếu sang tầng trệt: 99.5 +10 + 19.25=128.75 m2

• Tỉ lệ chiếu sáng tầng trệt: 128.75 / 215.25 =59.81% > 50% (chưa thỏa 70%)

• Tỉ lệ chiếu sáng tầng lửng:

201.25 / 213.25==94.37%>70% (thỏa yêu cầu)

• Tỉ lệ chiếu sáng tầng 2:

206.25/215.25=95.81% >70% (thỏa yêu cầu)

Tỉ lệ chiếu sáng cả công trình:

Diện tích chiếu sang tầng lửng:

201.25 m2

Diện tích chiếu sang tầng 2: 206. 25 m2

(59.81% + 94.37% +95.81%)/3=83.33 >70%

28 PHẦN 2: CÁC GIẢI PHÁP KIẾN TRÚC & BẢNG ĐÁNH GIÁ TỔNG HỢP E. CHẤT LƯỢNG MÔI TRƯỜNG TRONG NHÀ

2- NĂNG

LƯỢNG

1.1- Lựa chọn khu đất Khu đất có giá trị sinh thái thấp Miêu tả khu đất

Tận dụng khu đất đã phát triển Miêu tả khu đất 1

Khoảng cách đến các đầu mối giao thông/vận tải lớn Tối thiểu 800m

Kết nối cộng đồng

Có ít nhất 5 loại dịch vụ thiết yếu khác nhau trong phạm vi bán kính 0.5 km từ công trình 1

1.2- Thiết kế khu đất Phân tích khu đất xây dựng Mô tả các thông tin sau:

- Diện tích khu đất

- Công trình sẵn có ở phía Đông

- Công trình sẵn có ở phía Bắc

- Công trình sẵn có ở phía Tây

- Công trình sẵn có ở phía Nam

- Mô tả các kết cấu sẵn có tại khu đất xây dựng

- Địa hình

- Mô tả tầm nhìn của khu đất

Diện tích không phát triển xây dựng Ít nhất 20% diện tích khu đất không phát triển xây dựng

1.3- Hiệu ứng đảo nhiệt Tổng diện tích lát và mái có khả năng hạn chế hiệu ứng đảo nhiệt

Tối thiểu 30% diện tích mái đáp ứng yêu cầu sau: 1

- Hệ số phản xạ (Albedo) bề mặt lát lớn hơn 0,29, mái độ dốc nhỏ lớn hơn 0,78, mái độ dốc lớn lớn hơn 0,29

- Mái xanh

- Pin mặt trời

1

5- CHẤT

LƯỢNG MÔI

TRƯỜNG

TRONG NHÀ

1.4- Nước mưa chảy tràn Diện tích trung bình có khả năng thấm nước của khu đất Tối thiểu là 30% 1

2.1- Thiết kế thụ động Mặt đứng hướng Đông và Tây Diện tích mặt đứng hướng Tây + Diện tích mặt đứng hướng Đông / Tổng diện tích mặt đứng ≤ 40% 1

Diện tích mặt đứng hướng Tây + Diện tích mặt đứng hướng Đông / Tổng diện tích mặt đứng ≤ 20% 2

Tỷ số diện tích cửa sổ - tường Tỷ số diện tích cửa sổ - tường của mặt đứng hướng Tây và mặt đứng hướng Đông nhỏ hơn 30% 1

Tỷ số diện tích cửa sổ - tường của mặt đứng hướng Tây và mặt đứng hướng Đông nhỏ hơn 15%

Kết cấu chắn nắng Lắp đặt kết cấu chắn nắng phù hợp cho mặt đứng hướng Bắc và hướng Nam

2.2- Vỏ công trình Truyền nhiệt tường và mái

Lắp đặt kết cấu chắn nắng phù hợp cho mặt đứng hướng Đông và hướng Tây

Có sử dụng một trong các giải pháp sau

- Một lớp khí có độ dày ít nhất 40mm

- Lớp vật liệu cách nhiệt (vật liệu có hệ số dẫn nhiệt ≤ 0.05 W/m.K) có độ dày ít nhất 40mm

- Một kết cấu chắn nắng cố định

- Tường xanh / Mái xanh

Bức xạ mặt trời qua cửa sổ

Kính kiểm soát bức xạ mặt trời / Kính kép Low-E có hệ số hấp thụ bức xạ thấp 1

Bức xạ mặt trời trên bề mặt không trong suốt 95% diện tích mái / tường không trong suốt phải thỏa mãn một trong các yêu cầu dưới đây:

Hệ số phản xạ (Albedo) mái lớn hơn 0,7, tường lớn hơn 0,4

Tường xanh / Mái xanh

Có kết cấu che nắng bên ngoài

hiệu quả Lựa chọn cây trồng Mặt bằng cảnh quan và danh sách các loại cây

5.1- Thông gió tự nhiên Thông gió xuyên phòng hoặc đối lưu 90% diện tích

5.2- Hạn chế phát thải VOC Đề xuất các loại vật liệu sau: sơn và lớp phủ, chất kết dính và chống thấm, cấu

29 BẢNG PHÂN TÍCH ĐÁNH GIÁ GIẢI PHÁP KIẾN TRÚC CÔNG TRÌNH THÂN THIỆN MÔI TRƯỜNG CHỦ ĐỀ HẠNG MỤC GIẢI PHÁP TIÊU CHÍ ĐIỂM ĐÁNH GIÁ 1- ĐỊA ĐIỂM BỀN VỮNG
1
1
1
2
1
1
1
1
BỀN
Kết
1 Bao che 1 Cửa sổ, cửa đi 1 Lát sàn 1 Mái 1 Vật dụng - thiết bị nội thất 1 4- NƯỚC 4.1- Tái sử dụng nước Tích hợp hệ thống tái sử dụng nước mưa Có hệ thống (Hình vẽ - Sơ đồ) 1 Hệ thống nước thải kép Có hệ thống (Hình vẽ - Sơ đồ) 1 4.2- Sân vườn sử dụng nước
1
3- VẬT LIỆU
VỮNG
cấu
1
kiện sàn 1 5.3- Chiếu sáng tự nhiên Diện tích được chiếu sáng tự nhiên (Xem cách tính diện tích trong đề bài) 50% không gian sinh sống có diện tích vùng được chiếu sáng tự nhiên lớn hơn 50% diện tích sàn của không gian đó 1 70% không gian sinh sống có diện tích vùng được chiếu sáng tự nhiên lớn hơn 50% diện tích sàn của không gian đó 2 TỔNG ĐIỂM ĐÁNH GIÁ 30 Chú thích: Đạt được Chưa đạt BẢNG PHÂN TÍCH ĐÁNH GIÁ CHO RA : 30/33 ĐIỂM

KIEN THUC- KINH NGHIEM

30

Qua môn kiến trúc và môi trường, em hiểu rõ được thế nào là kiến trúc và môi trường. Theo em thấy và

mọi người đều thấy thì diễn biến trên thế giới hiện nay với chất lượng môi trường ngày càng suy giảm và

tài nguyên thiên nhiên thì dần cạn kiệt nên việc quan tâm đến vấn đề này khi thiết kế kiến trúc là vô cùng

cần thiết và quan trọng.

Việc vận dụng những biện pháp vào thiết kế một công trình xanh thì em đã học qua các môn học khác

như vật lí kiến trúc, ánh sáng trong công trình v..v..,…nhưng với môn học này em được hiểu hơn vận

dụng vào thực tế như thế nào cho đúng, và việc học được cách tính các thông số kỹ thuật này và thiết kế

công trình không chỉ xanh thôi mà còn phải có tính bền vững và thân thiện môi trường. Ngày nay công

trình xanh đang xuất hiện không ít , có cái là nó vẫn chưa thực sự bền vững, chưa được thân thiện môi trường, cho nên khi em biết và hiểu được các kiến thức như này, em có thể áp dụng vào trong thực tiễn, làm nghề sau này.

Kinh nghiệm khi học thì em đã được nghe thầy giảng , những thứ hay ho từ môn này đều thật thú vị. Nếu ta có thể vận dụng những điều mà em đã học, thì việc Trái Đất sẽ bớt nóng lại, nhà nhà đều mát.

Đây là toàn bộ những gì em hiểu và học được từ môn này. Em cám ơn thầy.

Nguồn tài liệu tham khảo:

• https://minhphucvlxd.com/san-pham/cach-am-cach-nhiet/bong-thuy-tinh-bong-khoang-cach-am-cach-nhiet.htm

• https://cokhichatluong.com/giai-phap-su-dung-vat-lieu-chong-nong-tuong-nha-don-gian-nhat/

• gvcviet.com

• https://www.ashui.com/mag/vatlieu-thietbi/vat-lieu-xay-dung/12492-uu-nhuoc-diem-cua-gach-khong-nung.html

• https://mocphat.vn/san-tre-co-than-thien-voi-moi-truong-khong-uu-va-nhuoc-diem-cua-san-tre-ban-nen-biet/

• http://www.tamnhuaoptuong.com.vn/2019/07/vat-lieu-op-tuong-xu-huong-xanh-ang-uoc.html

• https://angcovat.vn/kinh-nghiem-xay-nha/1395-co-nen-dung-tam-lop-sinh-thai-onduline-kieu-phap-khong.html

• https://mayxinh.com/san-pham/cui-may-tre-em-mxc01

• http://www.sangtaoviet.com.vn/sot-tre-kich-thuoc-35x35x40-c-1063-1065--2527.html

31 III. KIẾN THỨC VÀ KINH NGHIỆM QUA MÔN HỌC
32
33

Get in touch

0764 942 919

diepphatmajeh.architect@gmail.com

Diệp Phát (fb.com/phat.diepphat.5/)

Diệp Phát Majeh diepphat.majeh_art

diepphatmajehart99

https://issuu.com/diepphat.majeh @phtdip

https://www.behance.net/dipphtmajeh

34

Turn static files into dynamic content formats.

Create a flipbook
Issuu converts static files into: digital portfolios, online yearbooks, online catalogs, digital photo albums and more. Sign up and create your flipbook.