Skip to main content

Architectural Portfolio | Diego Ferry

Page 1


DIEGO FERRY

ARCHITECTURAL PORTFOLIO

SELECTED WORKS: 2017-2024

My name is Diego Ferry and I am an architectural designer/ technologist with 2 years of professional experience. Throughout my time in the industry, I have enhanced my experience and understanding of the architectural field through technicality and creativity. I am eager to continuously develop my career and skills in architectural design innovation. I treat each project as an opportunity to learn and engage my curiosity on how a brighter future can be built. Simply put, I see architecture as more than an innovative space, but it is an instrument of distinct experiences that interact with the human senses creating a relationship between people and architecture.

DIEGO FERRY

Toronto Metropolitan University (Ryerson University), Toronto, ON

Bachelor’s Degree of Architectural Science

Graduated with the fundamental knowledge and technical experience of Architectural Science.

JASON CHIU ARCHITECT INC. / ARCHITECTURAL DESIGNER

• Responsible for creative and rational design development in collaboration with the architect.

Drafted numerous conventional drawings for many existing/as-built buildings.

• Knowledgable in developing construction documents and permit applications.

• Engage and coordinate with consultants, contractors, clients, inspectors, and architect.

• Conducted site visits to ensure progression/completion of construction based on the client’s architectural desires and in accordance to the construction documents.

Prepared many reports that analyzes the OBC, zoning by-laws, and feasibility studies. Projects:

• Created a full set of permit drawings for a new construction residential project in Mississauga (client confidential).

Performed construction administration to ensure site work is progressing according to the drawings aswell as closing permits:

• Office corridor renovation (Toronto - commercial)

• Interior office renovation (Etobicoke - commercial)

Daycare plumbing addition (Mississauga - institutional)

Interior condominium unit repair (Mississauga - residential)

SKY SIGHT INC. / ARCHITECTURAL TECHNOLOGIST

• Developed multiple accurate and detailed revit as-built and new models.

• Completed permit drawings for renovations and new construction projects.

Collaborated with senior architectural technologist to create new design ideas. Generated highly detailed exterior and interior renders for different projects. Projects:

• Completed a full set of permit drawings for renovation projects:

• Fire damaged home renovation (Ajax - residential)

Kitchen and Dining room home renovation (Milton - residential)

Developed permit set the drawings for new construction projects:

Custom detached home (Burlington - residential)

• Mixed-use building - medical clinic and apartments (Kitchener - mixed use)

• Created photo realistic renders of a custom home and mixed-use building.

1 2

CONTENTS

INTERLOCKING EXPANSION

CONCOURSE PROFESSIONAL WORKS

Location: Queen St. W, Toronto

Winter 2020 / Integration Studio II

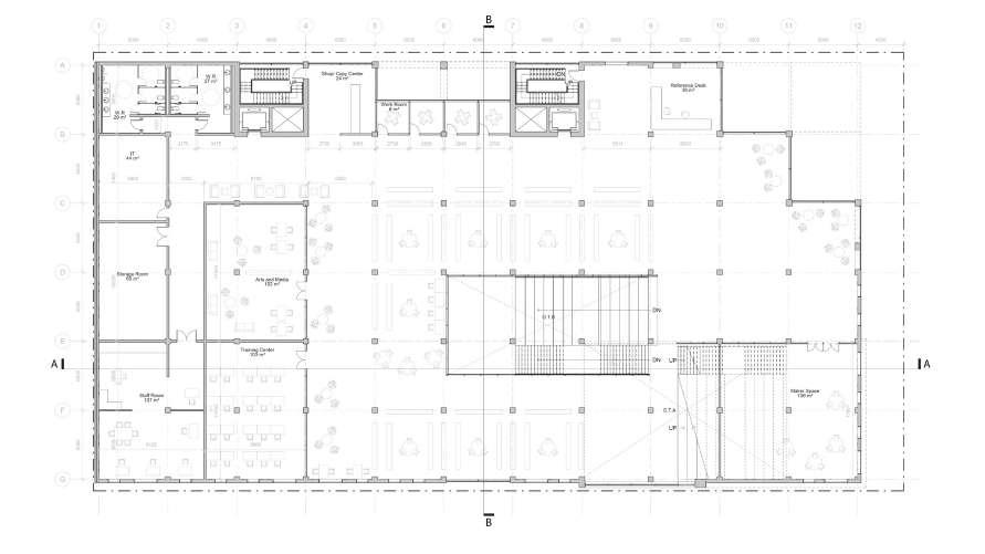
The library design refers to the idea of culture diversity merging into a unified community. It is simply a place of an idea exchange between the knowledge of a variety of people. Understanding a library as a welcoming place led to the concept of Interlocking. This design focuses on unifying different spaces to form one coherent and unique feature within the library. Throughout the building, the Interlocking concept is presented through the main feature stairs which acts as one continuous space and circulation path. As a result, this Interlocking feature merges different entities into one unified space.

Collaborated with Parth Prajapati

The concept of interlocking introduces the idea of unifying different spaces together to create a new area.

Interlocking shown through the use of the feature stairs. Stairs are connected together spatially.

QUEEN ST. W

Continuous circulation throughout the interlocking spaces. The path travels through other spaces within the building.

Not only does the interlocking concepts apply horizontally through the use of the feature staircase but it also applies vertically.

2nd Floor Plan
South Building Section
Exterior Library Render
Interior Render
Staircase Atrium Continuity
Staircase Unifies Floor Levels
Sectional Model of Main Stairs

EXPANSION2MUSEUM

Location: Yorkville Avenue, Toronto

Fall 2020 / Museum of Architecture Studio

The development of a museum of architecture within the transforming site of Yorkville Square portrays the idea of relating to the versatility of the historic and contemporary unity of the area. The museum of architecture recognises this element and inherits an expansion within a historic facade by expressing the connectivity of experiences. The museum layout focuses on emphasizing additional ele ments that create visual and circulation connections within the interior while the exterior expresses the unity of both the old and the new.

floors connection with the

The courtyard can be enclosed and used as an atrium space.
The two laneways act as entrances to the main space. Connects different

floors through visual the atrium space.

Exhibits are connected through circulation. One exhibit leads to another.

Visual connection from one space to another.

2nd Floor Plan

Addition of Main Stairs on the Original Facade
West Building Section
South Building Section

3

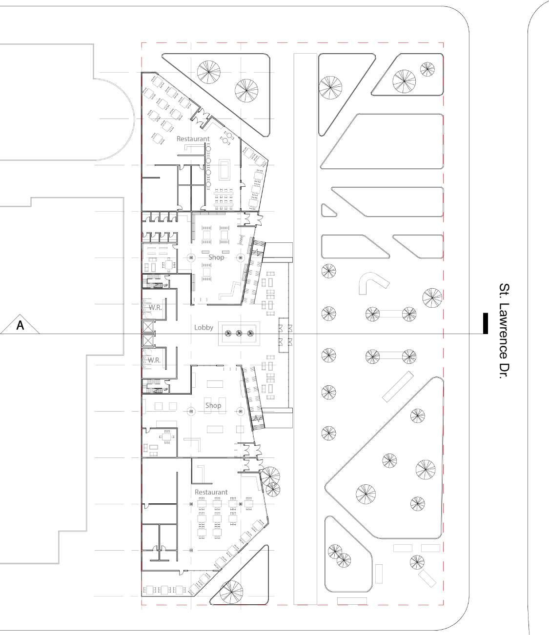
COMMERCIAL/PUBLIC SPACE

Location: Lakeshore Road, Mississauga

Winter 2021 / Adaptive Re-use Studio

Port Credit is known as Mississauga’s “village on the lake” which signifies its cultural commercial program along Lakeshore Rd (Public road of Port Credit) and most importantly its natural feature: Lake Ontario. The urban context of the area shows a disconnect between the public aspect of Lakeshore and the Waterfront. This con course acts as a connector that introduces the interaction between the waterfront and public amenities to express what Port Credit is meant to be.

The angled walls provide a prominent view of the park as people come closer to the site.
The greenery within the site presents the area as an urban park.
Connection of Lakeshore (Public Realm) to Lake Ontario
Ground Floor Plan

2nd Floor Plan

East Building Elevation

PROFESSIONAL WORKS 4

COMMERCIAL & RESIDENTIAL

Ranges from 2022 - 2024

Throughout my experience, I have been heavily involved in numerous commercial and residential projects that developed my understanding and technicality of architecture. The projects displayed on this section include renevation and new construction buildings. My responsibilities include 3D modelling in revit and completing construction documents for permit submission. Furthermore, I have generated renders to provide a better understanding of the architectural composition of the building to be constructed. The skills I have developed professionaly have deepened my understanding of project development and design.

FIRM: JASON CHIU ARCHITECT INC. (JCAi)

PROJECT: NEW CONSTRUCTION DETACHED DWELLING (CLIENT CONFIDENTIAL)

LOCATION: MISSISSAUGA, ONTARIO

Front of House View

FIRM: JASON CHIU ARCHITECT INC. (JCAi)

LOCATION: MISSISSAUGA, ONTARIO

PROJECT: NEW CONSTRUCTION DETACHED DWELLING (CLIENT CONFIDENTIAL)

Courtyard View

of House View

Back

FIRM: SKY SIGHT INC.

PROJECT: NEW CONSTRUCTION DETACHED DWELLING (CLIENT CONFIDENTIAL)

LOCATION: BURLINGTON, ONTARIO

Front of House View
Back of House View

PROJECT: NEW CONSTRUCTION DETACHED DWELLING (CLIENT CONFIDENTIAL)

LOCATION: BURLINGTON, ONTARIO

Interior View
Kitchen View
Living Room View

FIRM: SKY SIGHT INC. (JCAi)

PROJECT: NEW CONSTRUCTION MIXED-USE 3 STOREY BUILDING

LOCATION: KITCHENER, ONTARIO

Exterior Corner View
Exterior Rear View

FIRM: SKY SIGHT INC.

PROJECT: NEW CONSTRUCTION MIXED-USE 3 STOREY BUILDING

LOCATION: KITCHENER, ONTARIO

Reception
Staff Room
Office
Kitchen
Living Room
Master Bedroom
Primary Bathroom
Rooftop Patio

Turn static files into dynamic content formats.

Create a flipbook