

PORTAFOLIO
DIEGO CÉSAR AROTOMA DE LA CRUZ 2025
Diego César Arotoma de la Cruz
06.03.2002
Soy una persona analítica y creativa con habilidades de resolución de problemas. Poseo una sólida ética de trabajo, destacando por mi atención al detalle y capacidad para gestionar proyectos de manera eficiente. Mi enfoque metódico y mi capacidad para colaborar efectivamente complementan mi formación académica en arquitectura.
PERSONAL HABILIDADES DIGITALES
EDUCACIÓN INTERESES
CÓDIGO: TELÉFONO: CORREO: CORREO PERSONAL: U202021B117 933791001 u202201b117@upc.edu.pe diegocesararotoma@gmail.com SketchUp Lumion AutoCad V-Ray Illustrator Photoshop Revit Rhinoceros Enscape InDesign Primaria: Secundaria: Superior:
I.E.P Nuestra Señora De La Merced
I.E.P Saco Oliveros UPC Facultad de Arquitectura Música | Dibujo | Diseño
“La arquitectucra es el arte de organizar el espacio.” Auguste Perret
Taller

Complejo Garagay
San Martin de Porres Taller VII
El proyecto combina educación, comercio, vivienda y cultura, integrando un CETPRO, un mercado con viviendas y un centro de interpretación. Su diseño conecta la comunidad con la huaca cercana, promoviendo la interacción social y la identidad local.
PLANOS:

CONCEPTO:


El Complejo Garagay se encuentra en el distrito de San Martín de Porres, a solo dos cuadras de la importante Av. Universitaria y cerca del Parque Zonal Maytacapac. Esta ubicación estratégica posiciona al complejo como un hito en la zona, consolidándose como un punto de integración para la comunidad y un referente dentro del contexto urbano y cultural del distrito.
El proyecto se emplaza en un entorno que alguna vez fue parte del área ceremonial de la Huaca Garagay, un importante sitio arqueológico de la tradición Chavín, datado alrededor del 1400 a.C.

PROGRAMA:
El proyecto propone recuperar el rol ceremonial de la Huaca Garagay como espacio de encuentro cultural y social, integrando su valor histórico con las dinámicas de la comunidad actual de manera respetuosa y activa.
Mercado comunitario con una plaza central que fomenta el intercambio local la interacción social
El diseño toma como referencia los frisos y la tipología en “U” del templo, generando plazas y espacios públicos que evocan su disposición original y establecen un vínculo visual entre el pasado y el presente.
Centro educativo integral que abarca niveles de inicial, primaria, secundaria y formación técnico-productiva
Mercado comunitario con una plaza central que fomenta el intercambio local la interacción social

Espacio con servicios esenciales como comedor popular, comisaría posta médica para la comunidad Lugar cultural con talleres y recorridos que conectan a los visitantes con la historia de la huaca
Centro educativo integral que abarca niveles de inicial, primaria, secundaria y formación técnico-productiva Espacio con servicios esenciales como comedor popular, comisaría posta médica para la comunidad

Mercado comunitario con una plaza central que fomenta el intercambio local y la interacción social
Centro educativo integral que abarca niveles de inicial, primaria, secundaria formación técnico-productiva
Espacio con servicios esenciales como comedor popular, comisaría y posta médica para la comunidad
Lugar cultural con talleres y recorridos que conectan a los visitantes con la historia de la huaca
El primer piso se organiza en tres volúmenes que corresponden a distintos usos: CETPRO, Centro de Bienestar y Centro de Interpretación, además de un Mercado que impulsa la actividad comercial local. Esta distribución responde a los resultados de la investigación previa, que identificó las necesidades clave de educación, bienestar, comunidad, comercio y patrimonio. Cada volumen está diseñado para cumplir con su función específica, creando un entorno integrado que fomenta la interacción y el desarrollo comunitario.


PLANTA BAJA CORTE







Surco Taller VI Edificio Híbrido
El proyecto es un edificio híbrido de 15 pisos más azotea, integrando funciones comerciales, culturales y residenciales de manera armónica.

El terreno se ubica Frente a la estación de tren Cabitos. Actualmente todo el terreno funciona como una zona comercial y a los alrededores cuenta con edificios como el C.C. Polvos Rosados.

PROGRAMA:
Se mantiene el programa de la 2da etapa, añadiendo 2 torres.
Una torre que funciona como hotel y otra que funciona como departamentos.
TORRE HOTEL:
200 habitaciones
10 suites Lobby Servicio
EDIFICIO
20 Tiendas
1 Teatro
1 Restaurante
1 Sala de exposiciones
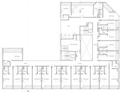
PLANOS:

En la primera planta se ve claramente la división de los 2 volumenes principales y como forman una plaza en el centro del proyecto.

Planta típica del hotel, conforma 200 habitaciones y 10 suites en 15 plantas.
Usuarios:


• Huespedes:
Consta de turistas, familias y estudiantes.
Estudiantes
Turistas
Familias de 1 a 2 hijos
• Comercio y Servicios Independientes:

Consta de tiendas independientes, un restaurante Tanta y un Teatro.
Clientes
Comensales
Actores y audiencia




Taller V
Centro Cultural
Río Lurin
Este encargo consistio en crear un proyecto perteneciente a una propuesta de rehabilitación del río Lince. El edificio se compone de diferentes talleres y servicios.
CONCEPTO:
El concepto del edificio es conexión no solo de manera volumétrica sino en lo que sucede dentro del edificio, se plantea el edifico como un punto de conexion entre personas del lugar y visitantes, estas personas llegarian a desarrollar habilidades artisticas y exponer sus trabajos.




MATERIALIDAD

En la materialidad de planteó pureza. Espacios blancos con carpinteria de madera oscura del lugar. Madera local
Concreto blanco

Zona para Estudio
- Biblioteca
- Aulas
- Centro digital
Zona para Practica
- Talleres
- Auditorio
- Patio de danza
UBICACIÓN:

El edificio se divide en 2 partes, con diferentes usos, se crearon volados oriendados a las vistas del río.



La locación comprende toda la cercania al Río Lurin y al AA.HH. J.C Tello. Antes de la intervención era un lugar abandonado en donde los pobradores desechaban su basura. La parte poblada era en su mayoría vivienda de construcción ilegal y en riesgo debido al suelo.
Rehabilitación
Nexo sobre el río





Via Antigua
AA.HH. J. C. Tello
Panamericana
PLANOS: CORTES:




Planta 1 Planta 2
Corte A-A
Corte B-B

Taller IV
Vivienda Colectiva
Malecón de Miraflores
Este encargo consistio en crear un proyecto multifamiliar cerca al malecón de Miraflores, para esto se tomó en cuenta un estudio previo del entorno y de los residentes.
CONCEPTO:
Se trabajó el concepto se trabajó en diferentes etapas con el fin de materializar la idea y aterrizarla correctamente en el entorno.

El concepto principal era el contraste, este se generaba a partir de la volumetría.
Propuesta Abstracta


Propuesta Arquitectónica


Se empezó abstreyendo una idea en una maqueta.
En esta se optó por crear un contraste en 2 frentes y en el tipo de espacios que se generan.

Propuesta Abstracta
En la segunda etapa se llevo la idea un nivel arquitectonico. Planteando espacios, organización y composición

Propuesta Arquitectónica Propuesta Arquitectonica
Al terminar, se acomodaron estas ideas dentro del terreno conforme a las ideas de espacio y composición de la segunda propuesta y el concepto de la propuesta abastracta.
Terreno:

Lote: 1065 M2
Información:
El proyecto se ubica cerca al malecón de Miraflo- res, en una urbanización separada de bullicio de Lima, el lote elegido para el proyecto es uno de dos frentes opuesto ubicado entre Juan Fanning y Diego Ferre.
Una de las características principales del lugar es la calma que hay en el entorno, esta facilita poder apreciar las relaciones que tiene este lugar con el exterior y las relaciones que se forman dentro del lugar. Percibiendo de mejor manera las sensaciones del espacio.
Propuesta de Acuerdo al Terreno
Propuesta de Acuerdo al Terreno


Propuesta de Acuerdo
Ca. Juan Fanning - Ca. Diego Ferre.


DEPARTAMENTOS:














FLAT 1
Flat C 60
PLANOS:






DUPLEX 1
DUPLEX
DUPLEX 1
Duplex A: 104,60m2
Duplex A: 104,60m2
Duplex C: 106,30m2
Duplex A: 104,60m2
Duplex C: 106,30m2
Duplex D: 86,60m2
Duplex C: 106,30m2
Duplex D: 86,60m2
Duplex E: 108,10m2
Duplex D: 86,60m2
Duplex E: 108,10m2
Duplex E: 108,10m2
DUPLEX 2
DUPLEX 2
DUPLEX 2
Duplex B: 105,90m2
Duplex B: 105,90m2
Duplex B: 105,90m2



DIEGO CÉSAR AROTOMA DE LA CRUZ