Skip to main content

Fire Station Brick

Page 1

PORTAFOLIO

INTEGRANTES: WILLIE DIEGO MARTÍN AMORÓS JAVE. VÍCTOR DANIEL ZELADA PALOMINO. LAURA ALEXANDRA SANCHEZ ZAVALETA. DOCENTES: AIRTON JHON CARUAJULCA MERCADO JERRIME DAVID SILVA MARRUFFO CURSO: TALLER DE DISEÑO 6
INDICE 01 02 07 12 15 PRESENTACIÓN FICHA TÉCNICA / ESTUDIANTES ESTRATEGIAS PROYECTUALES PROGRAMA/ ZONIFICACIÓN PLANIMETRÍA 32 AXONOMETRÍA 35 3D Y RENDERS 36 3D RENDER MAQUETA
08 09 10 UBICACIÓN EMPLAZAMIENTO
23 CORTES Y ELEVACIONES 31 GRÁFICOS 41 RENDERS EXTERIORES 46 RENDERS INTERIORES
Y VOLUMETRÍA ZONIFICACIÓN AFORO
1
PRESENTACIÓN
INFORMACIÓNPERSONAL:
Nacionalidad:Perú DNI:74303064 Gmail:diegoamoros2@gmailcom Colegio:CristoRey Universidad:UniversidadPrivadadelNorte Facultad:ArquitecturayDiseño Especialidad:ArquitecturayUrbanismo ESTUDIOS: 75% Creatividad HABILIDADES: 80% SkecthUp 75% Twinmotion 55% Enscape 80% Autocad 65% Photoshop 55% Ilustrator
Nacimiento:01/11/2002
2
FICHA TÉCNICA

INFORMACIÓNPERSONAL: ESTUDIOS:

60% HABILIDADES: 70% 75% 45% 80% 50%
Creatividad SkecthUp Twinmotion Enscape Autocad Ilustrator 3
Nacimiento:20/05/2001 Nacionalidad:Perú DNI:71133222 Gmail:laurasez13@gmail.com Colegio:LaCatolica Universidad:UniversidadPrivadadelNorte Facultad:ArquitecturayDiseño Especialidad:ArquitecturayUrbanismo
INFORMACIÓNPERSONAL:
Nacionalidad:Perú DNI:75269443 Gmail:vzelada03@gmial.com Colegio:CristoRey Universidad:UniversidadPrivadadelNorte Facultad:ArquitecturayDiseño Especialidad:ArquitecturayUrbanismo ESTUDIOS: 80% Creatividad HABILIDADES: 80% SkecthUp 85% Twinmotion 30% Enscape 85% Autocad 50% Photoshop 60% Ilustrator
4
Nacimiento:03/06/2003
FICHA TÉCNICA
5
6

ESTRATEGIAS PROYECTUALES

2
7

CONTEXTUAL

Perú

VIAS/ACCESOS1

Bidireccional 20.40m Bidireccional 6.20m Jr.ManuelTafur Bidireccional 7.5m JrMateoSilva Bidireccional 9m ingresoprincipal peatonalyvehicular

AvGuillermodlFuente Principales: Jr.MartinArringuri Secundarias:

PREEXISTENCIAS2

40%áreaverde radio200m

Sol:EsteOeste Vientos:SuroesteNoreste Mejororientación: Ejenortesurmenorincidenciasolar, mayorconfort

CONECTIVIDAD4 VISUALES5 POSICIONAMIENTO6

parque recreativo

Elterrenoalestarcercaunparquerecreativose planteaintegrarelproyectoalparque.

Utilizaremoslasmejoresvisuales,esdecirla visualsuryoeste.

Elproyectoseordenaráeneleje, nortesur,debidoalaincidenciasolar, accesibilidadylasmejoresvisuales.

E
VIENTOSYSOL O 3
Lima
8

IMPLANTAR

EMPLAZAMIENTO / VOLUMETRIA

SUSTRAER

PROGRAMAR EMPUJAR

Lote pentagonal con tendencia rectangular,queayudaadefinirlas formasdelproyecto.

Mayorenriquecimientovolumétrico al sustraer parte del volumen creando terraza y mejorando la experienciadelusuario.

JERARQUIA

Creacióndepatiodemaniobrasy retiroparalasbanderasextruyendo losvolúmenespróximosalacalle

ADICIÓN

Diferentes espacios, para diferentes actividades

Servicio Privado Social Gym/privado

TRANSFORMAR

1 3 2 4 5

Mayorimportanciaalazonadela circulaciónfuncionaldelosbomberos, yfuncionesimportantesdeestos.

Volúmenes que agrandan la circulaciónygeneranunamejor volumetríayexperienciadeusuario.

Diseñamosdandomayorimportanciaalaszonasprivadasy alosambientesnecesariosparalosbomberos,congrandes vacíosparamayoramplitudyespacioparaelradiodegiro deloscamiones.

9

ZONIFICACIÓN / AFORO

PRIMERPISO

Seguridad 10% 50personas SUM

Almacéngeneral 5% 10personas 7% 5%

11personas 10personas

1% 2personas SS.HH.devisitas

1% 1personas Depósito Lavandería

Enfermería Cuartoderadio 3%

Sala de maquinas

3% 1% 8personas

7personas 3personas Estacionamiento privado 2% 5personas.

SEGUNDOPISO

Dormitoriosdamas 12% 30personas 12% 30personas Saladeinstrucción

Dormitoriosvarones 12% 30personas SS.HH. 12% 30personas

Ingresoprincipal
10

TERCERPISO

2% 5personas

Comedor Saladeespera

Saladeestar

Oficina de comandancia

CUARTOPISO

30% 2% 1%

5%

Cocina Oficinasadmin. 5% 10alumnos

100personas 5personas 3personas

10personas

Gimnasio Circulaciónvertical

3% 8personas Áreaverde

12% 30personas

11

SEGUNDOPISO

CIRCULACION VERTICAL SALADE INSTRUCCION

PRIMERPISO

CIRCULACION VERTICAL COMPLEMENTOS DESEGURIDAD

SEGURIDAD

ALMACEN GENERAL LAVANDERIA ALMACENDE ENFERMERÍA

SSHH SUM SALADE MAQUINAS ESTACIONAMIENTO

ENFERMERA CUARTODE RADIO PATIODE MANIOBRAS

ZONIFICACIÓN
PROGRAMA /
SSHH DORMITORIOS 12

CUARTOPISO

CIRCULACION VERTICAL GIMNASIO TECHOVERDE

SS.HH

TERCERPISO

CIRCULACION VERTICAL

COMEDOR

ADMINISTRACIÓN

COCINA SSHH SALADE ESTAR

SALADEESPERA SALADE COMANDANCIA

HALLPRINCIPAL

PROGRAMA / ZONIFICACIÓN
13
14
3
15
PLANIMETRÍA
PLOT PLAN 16
PLANO DE TECHOS 17

Calle Secundaria

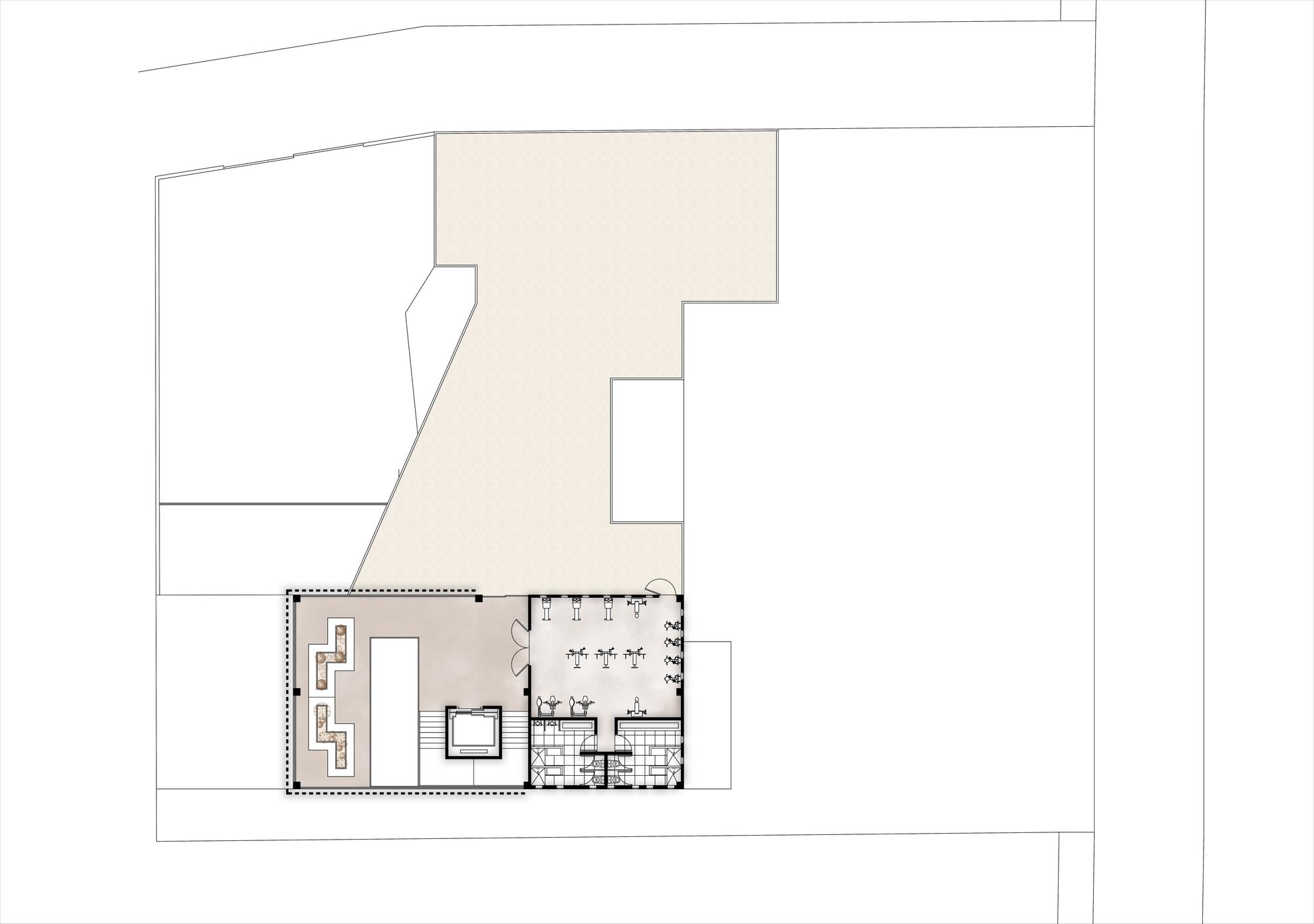
1.Patiodemaniobras 2.IngresoPrincipal 3.Vigilancia 4.Almacéngeneral 5.Implementosdeseguridad 6.Extintores 7.Equipamiento 8.AlmacéndeSUM 9.SUM 10.SS.HH.principal 11.Lavandería 12.Almacéndelaenfermería 13.Enfermería 14.Cuartoderadio 15.Almacéndemáquinas 16.Estacionamientoprivado 17.Áreaverde 18.Zonadebanderas

Arringuri

PRIMERA PLANTA Jr. Martin
2 3 4 5 6 7 8 9 10 11 12 13 14 15 16 17
1 30
18 18

Calle Secundaria

19.HallPrincipal 20.Espaciodeevacuación 21.SaladeInstrucción 22.Halldormitoriodedamas 23.Estanciadedamas 24.Estanciadedamasmayores 25.Duchasdedamas 26.Bañodedamas 27.Bañodevarones 28.Duchasdevarones 29.Halldormitoriodevarones 30.Estanciadevaronesmayores 31.Estanciadevarones 32.Árealibre

SEGUNDA PLANTA
19 20 23 24 32 26 27 25 28 29 31 30 22 21 Jr.
Arringuri
Martin
19

Calle Secundaria

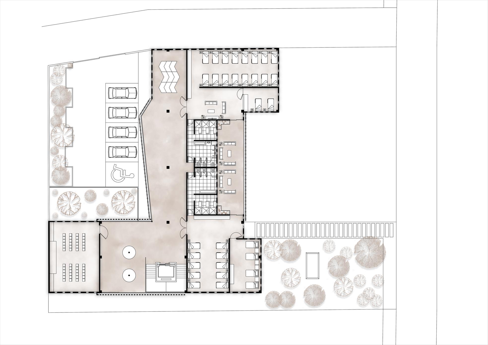
33.HallPrincipal 34.Estar 35.Comedor 36.Cocina 37.Almacén 38.Bañodedamas 39.Bañovarones 40.Balcón 41.Saladeestar 42.Recepción 43.Oficinasadministrativas 44.Oficinadecomandancia 45.Estar

Jr. Martin Arringuri

TERCERA
33 34 35 37 36 38 39 41 42 44 43 45 40
PLANTA
20

Calle Secundaria

46.HallPrincipal 47.Estar 48.Gimnasio 49.Bañosdamas 50.Bañosvarones 51.Árealibre Terraza

Jr. Martin Arringuri

CUARTA PLANTA 47 46 48 49 50
51
21
22

CORTES Y ELEVACIONES

3 23
24 CORTE A-A CORTES GENERALES Almacén Implementosdeseguridad Equipamiento AlmacéndeSUM SUM Dormitorioprivado 1. 2. 3 4. 5. 6. 1 2 3 4 5 6 7 8 9 10 11 11 12 7.Dormitoriodamas 8.Saladeinstrucción 9Cocina 10.Comedor 11.SS.HH. 12.Terraza
CORTES GENERALES CORTE B-B 18Comedor 19.Saladeestar 20.Saladeespera 21 Gimnasio 22.Terraza 25 13 14 15 16 16 16 16 15 17 18 19 20 21 16 22 13.Equipamiento 14.Dormitoriodamas 15.Duchas 16.SS.HH. 17.Dormitoriovarones
CORTES GENERALES CORTE C-C 23Patiodemaniobras 24.Lavandería 25.Estacionamientoprivado 26Terraza 27.SS.HH. 23 24 25 26 27 27 26 26

ELEVACIONES GENERALES

ELEVACIÓN 01 27
ELEVACIONES GENERALES ELEVACIÓN 02 28

ELEVACIONES GENERALES

29 ELEVACIÓN 03
30
4
31
GRÁFICOS

AXONOMETRIA / ISOMÉTRICOS

32
33
34

3D Y RENDERS

5
35
3D MAQUETA 36
37
38 3D
MAQUETA
39
40 3D
MAQUETA

IMAGENES RENDERS EXTERIORES

41
42

IMAGENES RENDERS EXTERIORES

43
44

IMAGENES RENDERS EXTERIORES

45

IMAGENES RENDERS INTERIORES

46
49

IMAGENES RENDERS INTERIORES

50

VIGO DECTORI ARCHITECTS

CAJAMARCA 2022

Turn static files into dynamic content formats.

Create a flipbook