PORTFOLIO Arquitectura

Page 1

1
ESPACIO de RECREACIÓN LUNCH SALA de USOS FLEXIBLES SALA de REUNIONES OFICINA COMPUTACIÓN 2 4 1 3 Anclaje de la piel cubierta Piel exterior colgada: Tensores métalicos Piso: Alfombra gris oscura Piso flotante de madera Piso: Alfombra gris oscura Piso: Deck bastones de Madera V4 3.551.00 V3 3.371.00 2.771.00 V7 2.20 V8 2.20 1.501.00 1.501.00 1.501.00 3.371.00 V6 2.20 2.501.00 V7 2.20 V7 2.20 V7 2.20 V7 2.20 +3.42 +3.42 +3.42 Proyección sobre planta baja 7.90 0.80 SALA de REUNIÓN 2 3 2 3 35.55 36.91 15.36 Anclaje de la piel la cubierta Piel exterior colgada: Tensores métalicos 0.60 0.60 0.60 0.60 OFICINA ADMINISTRACIÓN IMPRESORA 3D VM3 CABINA de METROLOGÍA TORNOS BAÑOS MESAS DE TRABAJO MAQUINARIAS FIJAS 0.73 3.50 0.73 3.75 10.00 0.73 6.90 16.21 0.15 3.85 0.15 3.78 0.15 3.78 Piso: H° Pulido color cemento Piso: Porcelanato crema 50x50cm Pintura Sintética amarilla 10cm 1.20 2.05 +0.15 +0.10 +0.15 +0.15 +0.15 +0.25 MESA DE TRABAJO 1 1 4 4 +0.15 13.37 1.30 5.25 Piso: Rayado ±0.00 Piso: H° Rayado RECREO EXTERIOR Proyección de luz sobre cielorraso Piso: H° Rayado 13.42 2.40
COWORK FACTORY CTDA

TAPA SUPERIOR TIPO MELAMINA

COLOR BLANCO

MADERA DE FONDO CONTRAPACHADA

UTILIDADES

UTILIDADES

MESADA

MESADA PREFABRICADA

MATERIAL RIGIDO TIPO TRESOL.

CAJON DE GUARDADOS

CAJON DE GUARDADOS

“SUB-SECTOR ESC 1.25” 18mm DOBLE CONTRAPACHADA
5 VISTA DE FUNCIONES DEL EQUIPO MATAFUEGOS ART. LIMPIEZA LOKERS LOKERS LOKERS LOKERS ESTACION DE CARGA ESTACION DE CARGA ESTACION DE CARGA ESTACION DE CARGA MICROONDAS FRIGOBAR CAJON DE GUARDADO CAJON DE GUARDADO BASURERO CAFETERA CAJON CERVILLETAS CAJON DE ALARGUES LOKERS LOKERS LOKERS LOKERS LOKERS LOKERS UTILIDADES MERCADERIAS MERCADERIAS UTILIDADES BALDE DE ARENA GUARDADO DE BANQUETAS ADICIONALES HERRAMIENTAS ARCHIVERO ARCHIVERO ARCHIVERO GUARDADO GUARDADO GUARDADO GUARDADO CABLES USB HDMI CARGADORES 5.60 2 2 CIELORRASO DE DURLOCK CON ESPACIO PARA PANTALLA RETRAIBLE COLGANTE 3 3 1 1

ARCHIVERO

HERRAMIENTAS

MATAFUEGOS

HERRAMIENTAS

TAPA SUPERIOR TIPO MELAMINA COLOR BLANCO
MADERA DE FONDO CONTRAPACHADA
2 MELAMINA 18mm DOBLE CONTRAPACHADA
-2.00 +4.40 -2.00 -2.00 DIRECCION BAÑOS BIBLIOTECA PROYECCIÓN VIGA PROYECCIÓN VIGA PROYECCIÓN VIGA PROYECCIÓN VIGA PROYECCIÓN VIGA PROYECCIÓN VIGA PROYECCIÓN VIGA PROYECCIÓNVACÍO PROYECCIÓNVACÍO PROYECCIÓNVACÍO PROYECCIÓNVACÍO PROYECCIÓNVACÍO PROYECCIÓNVACÍO PROYECCIÓNVACÍO PROYECCIÓNVACÍO PROYECCIÓNVACÍO PROYECCIÓNVACÍO .20 .20 17.32 51.87 AULA AULA AULA -2.00 -2.00 PROYECCIÓNVACÍO PROYECCIÓNVACÍO PROYECCIÓNVACÍO PROYECCIÓNVACÍO INGRESO ±0.00 ACHAVAL RODRIGUEZ FRUCTUOSO RIVERA AULA -2.00 PROYECCIÓN LOSA PROYECCIÓN LOSA PROYECCIÓN LOSA PROYECCIÓN LOSA PROYECCIÓN RIEL PROYECCIÓN VACÍO PROYECCIÓN VACÍO PROYECCIÓN VACÍO PROYECCIÓN VACÍO BELGRANO MARCELO. T DE ALVEAR 10
11
3
4
5

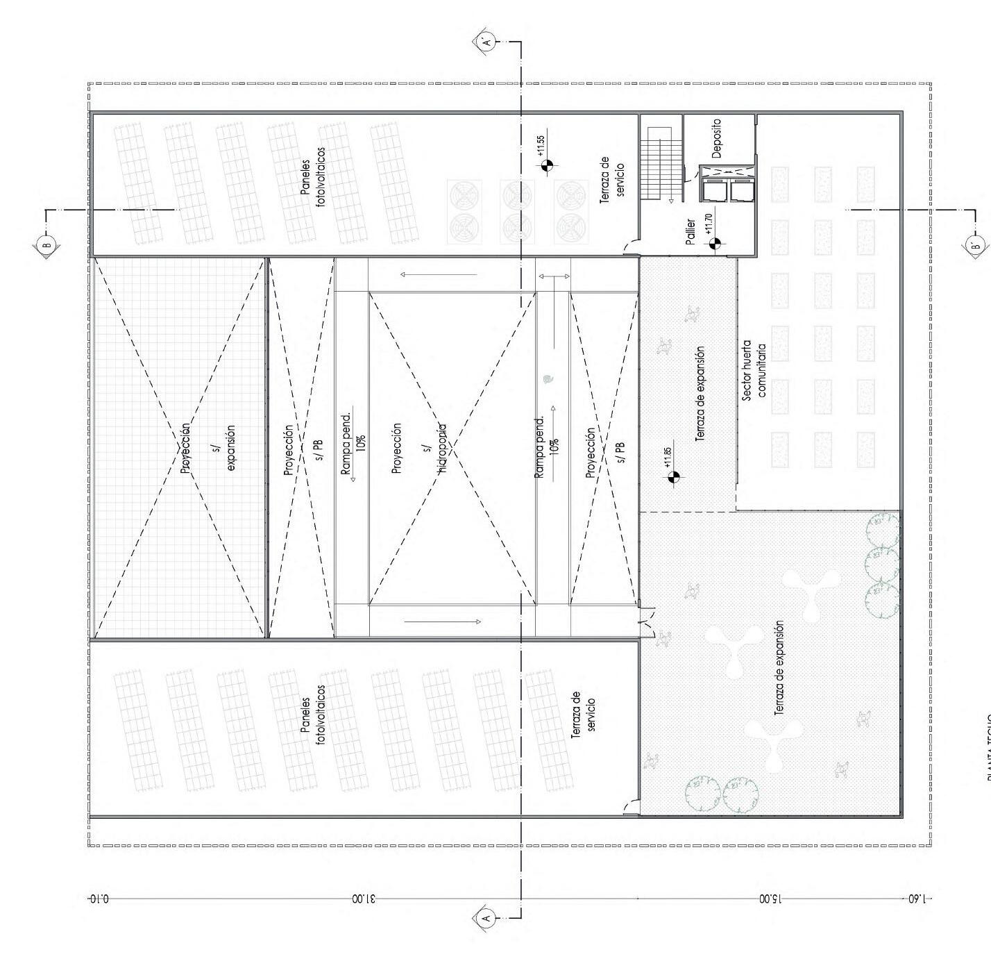
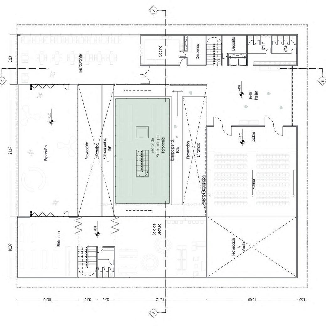
La propuesta en cuanto al progarama del eco parque busca reunir distintas actividades que fomentarán una opción de concientizar la idea de sustentabilidad y ecología encerrandola en un solo foco, también con la creación de actividades que sirvan para la relación personal del individuo pudiendo éstas generar ciudad, enlazando conexiones,turismo, esparcimiento, recorridos, entretenimiento y deporte.

Desarrollado con un enfoque ecológico y sostenible. Estos parques están diseñados para promover la conservación ambiental, el uso eficiente de los recursos naturales y la educación sobre temas relacionados con el medio ambiente.

Conservación de la biodiversidad: El eco parque incluye áreas verdes con una variedad de especies vegetales y animales para promover la conservación de la biodiversidad local,con senderos naturales, estanques o humedales, y espacios destinados a la protección de hábitats naturales.

Corte B-B

Turn static files into dynamic content formats.

Create a flipbook
Issuu converts static files into: digital portfolios, online yearbooks, online catalogs, digital photo albums and more. Sign up and create your flipbook.