Skip to main content

Diana's Portfolio

Page 1

& design

dh

architecture

Hello!

I am Diana, a graduate student at California Baptist University currently pursuing a master’s degree in architecture. In academia, I have discovered a passion for designing architecture that reflects cultures and empowers communities. I enjoy researching site context extensively because it allows me to identify unique opportunities early on while establishing strong design proposals. Throughout my portfolio you will see examples of this while gainning insight to my design process...

951.201.9842

dianahrnndz@outlook.com

10458 Mull Ave. Riverside, CA 92505

REFERENCES

Aaron Greene, M.Arch, AIA, NOMA Professor of Architecture agreene@calbaptist.edu

951.552.8149

Carol Bracey CBU Campus Store Director cbracey@calbaptist.edu

951.552.8193

Eletrice Harris

VP SoCal NOMA vpresident@socalnoma.org

310.729.8976

SOFTWARE

Adobe Ai, Id, Ps, Pr Microsoft Office SketchUp Enscape Revit

LANGUAGES

Spanish, Native English, Expert

LEADERSHIP

President CBU NOMAS

2020-2021

VP CBU NOMAS

2019-2020 Norco College Women’s Soccer Team Captain

DIANA HERNANDEZ

www.linkedin.com/in/dianahrnndz

EDUCATION

Master of Architecture (M.Arch) - April 2023

Bachelor of Architecture (B.Arch) - April 2021

California Baptist University | 8432 Magnolia Ave. Riverside, CA 92504 2017-2023

Associate of Arts (A.A) in Communication, Media, & Languages

Associate of Arts (A.A) in Humanities, Philosophy, & Arts

Norco College | 2001 Third St. Norco, CA 92860 2015-2017

EXPERIENCE

Teaching Assistant / California Baptist University College of Architecture

cavad.calbaptist.edu/programs/architecture-program | 3739 Adams St. Riverside, CA 92504

Aug 2021 - May 2022

Introduced architecture, drafting, drawing, and design tehniques to 30 students. Directed class sessions twice weekly, accomodated students, graded student work.

Architectural Intern / Hammel Green Abrahamson (HGA) hga.com/locations/washington-dc-alexandria | Alexandria, VA (Remote)

Jun 2021 – Aug 2021

Worked with a diverse team on a design-build competition proposal. Responsible for identifying information within RFP and proposals. Effectively assisted in facilitating program design.

Research Intern / Harley Ellis Devereaux (HED)

hed.design | Los Angeles, CA (Remote)

Aug 2020 – Oct 2020

Researched the effects of COVID-19 on K-12 school functions and design. Identified design opportunities within various school settings. Documented findings in a graphic presentation.

Student Worker / California Baptist University Campus Store

bookstore.calbaptist.edu | 8432 Magnolia Ave, Riverside, CA 92504

May 2018 – Oct 2020

Addressed customer questions and concerns to ensure a memorable and pleasant experience. Established quality control by receiving and inspecting products to guarantee their condition. Responsible for keeping locations and inventory on general merchandise and textbooks.

Student Financial Aide / Norco College Student Financial Services

norcocollege.edu/services/enrollment/sfs | 2001 Third St. Norco, CA 92860

Aug 2015 - Sep 2017

Maintained excellent comprehension of information that was constantly being updated. Communicated updates in writing, over the phone, and in person. Detected and resolved student concerns and conflicts in order to ensure quality service.

VOLUNTEER WORK

Project Pipeline Workshop Coordinator / SoCal National Organization of Minority Architects socalnoma.org/project-pipeline | Mar 2020 - Jun 2020

Facilitated creation of student lesson plans, activities, presentations, and program graphics.

RECOGNITIONS

2015-2017 CASH Conference Panel Member

2021

NOMA Foundation Fellow

2020-2021

AIALA Latinx Journeys in Architecture Panel Member

2020

Barbara G. Laurie Design Competition Finalist

2020

Project Pipeline Design Mentor / SoCal National Organization of Minority Architects socalnoma.org/project-pipeline | Jul 2019 - Aug 2019

Mentored children in Project Pipeline, a summer architecture program for students in the greater Los Angeles area. Worked with colleagues to expose students to the career fields of Architecture, Design, and Urban Planning.

Summer Advantage Mentor / Norco College

.norcocollege.edu/services/sp/na | Jun 2017 - July 2017

Recognized for exemplary involvement in school. Selected to mentor recently graduated high school students to facilitate their transition to college. Organized activities and college tours for a group of 30 students along with a partner.

CONTACT
“Whatever good things we build end up building us.”
- Jim Rohnz
MAGGIE’S AT NEWPORT HEIGHTS CANCER PATIENT RESOURCE CENTER RIVERSIDE POETRY FOUNDATION LIBRARY AND PUBLISHING CENTER REDLANDS PERFORMING ARTS CENTER THEATERS AND STUDIOS SOHO BUSINESS INCUBATOR LIVE + WORK BUILDING RAINCROSS MEMORY CARE FACILITY HEALTHCARE AND COMMERCE CHRISTIAN STUDIES CENTER UNIVERSITY OF MICHIGAN OAKLAND H.E.A.T MIXED USE CULTURAL CENTER DESIGN + BUILD COLLABORATIVE PROJECTS CONTENTS 01 06 02 20 03 30 04 44 05 07 06 08 58 82 70 92 diana hernandez arch & design 04

MAGGIE’S AT NEWPORT HEIGHTS

CANCER PATIENT RESOURCE CENTER

diana hernandez arch & design 06

MAGGIE’S AT

Maggie’s essence is the antithesis of a hospital. Although they are always close to a major can cer hospital, they are designed as informal “domestic” buildings. This will especially need to be the case for Maggie’s at Newport, which will be off hospital grounds and instead located in the flourishing residential neighborhood of Newport Heights.

It is crucial Maggie’s is a “good fit” to the residential community in order to successfully emulate a vernacular sense of domesticity, all while demonstrating its devotion to serving the community. Maggie Centers give people with cancer, their families, and friends somewhere to hold them together through difficult times. If anyone is ever feeling broken or alone, they’ll know they can count on Maggie’s at Newport Heights to foster a connection to something greater than them-selves.

NEWPORT COMFORT
AND CHOICE

As part of our empathetic study, we heavily researched cancer. Specifically, its growth, manifestation, and/or remission. We selected two verbs that described the process, drew an abstract sequence, and then went on to build a synthesis model of both verbs in action. The abstract result helped inform our architectural language and decisions throughout the design process. The two verbs represented in the synthesis model are “Lurking” and “Materializing”.

ABSTRACT REPRESENTATION diana hernandez arch & design 08
CANCER LANGUAGE

Maggie’s at Newport Heights fosters connections between one another through open, visible, and alternating community spaces. It also encourages a connection to divine power through intentional light play and nature through framed views and greenery. This is done so users are reminded they are not alone through their expereince.

In an attempt to counteract the loss of power that occurs when someone is experienceing cancer, varrying degrees of privacy and sunlight are offered thriough out the building. Users have the choice of picking their safe space depending on how they are feeling that day. There is a place for everyone.

SHARED AMENITIES SPLIT PROGRAM

MAGGIE’S AT NEWPORT DESIGN APPROACH
ENGRAINMENT DATUM CONNECTION
TOPO
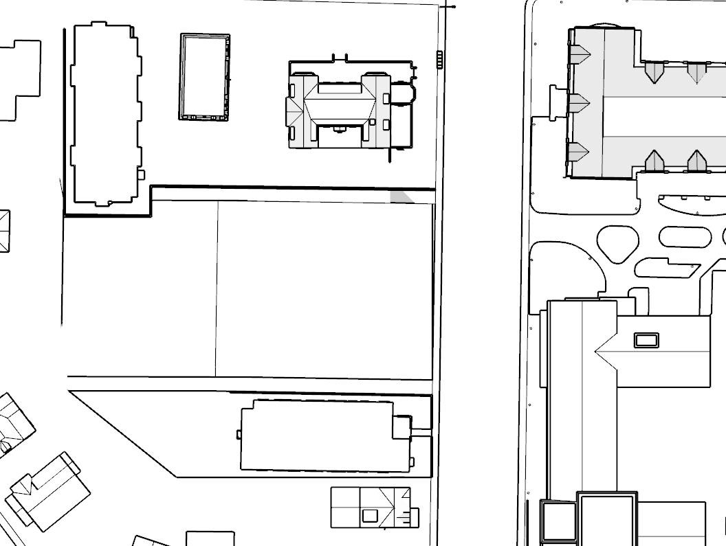
NEWPORT, CA CONTEXT COMMUNITY INFLUENCE LOCAL CONTEXT SHORT TERM RENTAL PARKS NEWPORT HEIGHTS LOCAL CONTEXT SITE BIKE ROUTE HOAG HOSPITAL
SITE PLAN FLOOR 2
LARGE RM MEDIUM RM LOUNGE
diana hernandez arch & design 12
1 LIBRARY FOYER ENTRY KITCHEN PATIO DINNING
SUB FLOOR FLOOR
MEDIUM RM OFFICE
LARGE RM MECH.

The need for community integration and positive distractions resulted in an intersection both outside on the site and within the building. These intersections allow for serendipitous encounters between people.

The highest point of the site is where the park is located so that Maggie’s users are encouraged to stop by and enjoy the open views with community memebers rather than alone.

Architectural style mimics residential beachside

MAGGIE’S AT NEWPORT THE CROSSROADS
Community park is moved to top of slope to secure the best views Parking preserves existing views out to the bay Public path to commercial zone serves as a postitive distraction
vernacular
Existing trees preserved to ensure privacy and shade

TRANSVERSE SECTION

WINTER SOLSTICE

SUMMER SOLSTICE
THERMAL MASS NIGHT FLUSHING SUMMER SUN WINTER SUN THERMAL COMFORT diana hernandez arch & design 14
SHADING
PASSIVE SOLAR

MAGGIE’S AT NEWPORT

ENTRY DATUM
diana hernandez arch & design 16

ENTRANCE

READING ROOM

CONSULT ROOM

SUNKEN DINNING ROOM

diana hernandez arch & design 18

THE POETRY FOUNDATION

LIBRARY/ PUBLISHING HOUSE/ COMMUNITY CENTER

diana hernandez arch & design 20

THE POETRY

The Poetry Foundation is a social hub that will contribute to the growing arts district in Downtown Riverside. Access to shared support and collaborative work zones is achieved through transparency of masses and voids. This transparent display of a lively environment becomes an inspiration to any who lay eyes upon it and more so to those who find themselves immersed within it.

MAINST.
FOUNDATION AN INSPIRING ECOSYSTEM SITE PLAN NINTHST.

Weather in Riverside is most appreciated. It is never too hot or too cold out. Partly because it is situated no more than one hour away from a variety of climate zones. Riverside’s architecture embraces sunny weather and adaptability to occasional rainfall in one way or another. Riverside is conveniently located in SoCal, making it an attractive city for commuters and young professionals to move into.

RIVERSIDE, CA diana hernandez arch & design 22 DESERT MOUNTAINS 50° AVG 82° AVG 75° AVG CITY VEGETATION NEIGHBORHOOD OCEAN OVER 65 UNDER 25 25 - 44 45 - 64 DESERT 82° AVG SITE NEIGHBORHOOD 1900 - 1950 1950 - 2000 2000 - OVER 65 UNDER 25 25 - 44 45 - 64
CONTEXT

VANTAGE POINTS

THE POETRY

Alleys are found at every turn in Downtown Riverside. Some have taken on an aesthetic of their own. Its no wonder why they are taken as “shortcuts” by locals. Cultural diversity is prominent down Main Street in the form of memorial statues; they almost seem as if to be marching to and from city hall. At least about half of the site can enjoy some pleasant views of City Hall and White Park. The homeless of the Santa Ana River spend a lot of their time walking these streets

ALLEYS
HOMELESSNESS CULTURAL PRESENCE
PROPOSED PLAN
FOUNDATION
1. Performance 2. Gallery 3. Public Collection 4. Reception 1. Patio 2. Cafe 3. Public Collection 1. Research Collection 2. Public Collection 3. Open Office 1. Private Offices 2. Public Collection
MAINST. NINTHST. 4 1 1 1 1 3 3 3 2 2 2 3 2 diana hernandez arch & design 24
3. Meeting Rooms

THE POETRY FOUNDATION

LONGITUDINAL SECTION

diana hernandez arch & design 26

MIDDLE PASSAGE

LIBRARY AREA

MAIN ELEVATION

Circulation is visible through out so there is no confusion as to which areas are restricted or not. People are encouraged to frequent all visible areas.

NINTH ELEVATION

diana hernandez arch & design 28

REDLANDS PERFORMING ARTS CENTER

THEATERS / STUDIOS / CULTURAL CENTER

diana hernandez arch & design 30

PERFORMING ARTS CENTER

Over the decades, the city of Redlands has attracted a variety of residents which have all contributed to the unique charm it possess. Their shared pride in its small-town charm and rich history has recently attracted another generation of residents; this time urban commuters. These big city commuters appreciate the vintage town feel just as much as the well-established residents.

Currently, residents celebrate the culture they have cultivated over the years and take pride in remaining a charming and successful low profile town.

CULTIVATING CULTURE
diana hernandez arch & design 32 CONTEXT REDLANDS, CA

This design is tailored in a way that meshes into its context while gradually exposing layers of history, people, and land so that both those who reside in Redlands and those who often visit may enjoy its hidden charm as “The Jewel of the Inland Empire”.

PERFORMING ARTS CENTER “THE JEWEL OF THE INLAND EMPIRE”

*PUSHED OFF OF EDGES

*BUFFERED BY ROWS OF ORANGE TREES

*INSET UNDERGROUND THEATERS “BOX IN BOX” CONSTRUCTION

Threads of interioir and exterioir circulation wrap around the “front of house”. These are sticthed together through materials and structure. Meanwhile, tears in the program reveal shared gathering spaces.

diana hernandez arch & design 34
REDLANDS, CA
CONTEXT

REDLANDS PERFORMING ARTS CENTER

LIBRARY/ PUBLISHING HOUSE/ COMMUNITY CENTER

diana hernandez arch & design 36

MAIN THEATER LOBBY

MAIN THEATER

PROP GALLERY
diana hernandez arch & design 38
TOWARDS BLACK BOX CAFE

LEVEL 2

LEVEL 1

SITE PLAN
PLAZA ENTRY 1 BOX OFFICE

SUB LEVEL 1 MEZZANINE

SUB LEVEL 2

diana hernandez arch & design 40
ENTRY 2

REDLANDS PERFORMING ARTS CENTER

LONGITUDINAL SECTION

diana hernandez arch & design 42

SOHO LIVE + WORK

EMPATHETIC STUDY COLLAGE

URBAN LIVING diana hernandez arch & design 44

The site is located in the heart of Soho, NY. This diagram highlights the two major roads responsible for the majority of traffic that flows around the site. One of which connects directly to New Jersey. It also distinguishes the three prominent districts surrounding the site; a food, commercial and small arts district. Lastly, it outlines the buildings that have roof access and groups them based on proximity. The site is located between several buildings that already have rooftop functions. By including a rooftop function on this site, a rooftop community could be encouraged.

SOHO LIVE+WORK SITE ANALYSIS

The site falls in one of the few cast iron districts in New York. The appearance of these buildings is actually what captured the attention of artists back when Soho was an abandoned manufacturing district. Although there has been a lot of development in Soho through out the years the facades seem to be left intact. There are two notable districts surrounding the site but there seems to be yet another growing district, an art district. Many businesses surrounding the project site include; graphic design offices, printing services, tailor shops, architecture firms, beauty salons, and art galleries.

ROOF ACCESS

diana
arch & design 46 ZONING
hernandez
STREET DENSITY CAST IRON DISTRICT
UP AND COMING ARTS

By shifting activity nodes towards the rooftops, the streets are relieved of congestion and pedestrian traffic. In turn, people are able to take a moment to experience the art that lies within, around, and on the site. By exposing circulation people get an accurate sense of activity through out the building. Floor becomes a “still” floor and the rooftops promote social gatherings and night life.

SOHO LIVE+WORK MODEL PROCESS
diana hernandez arch & design 48

SOHO LIVE+WORK

THE JEWEL AMONGST THE RUINS

URBAN LIVING diana hernandez arch & design 50

GRAND ST. ELEVATION

TRANSVERSE SECTION

LAFAYETTE ST. ELEVATION

diana hernandez arch & design 52
LONGITUDINAL SECTION
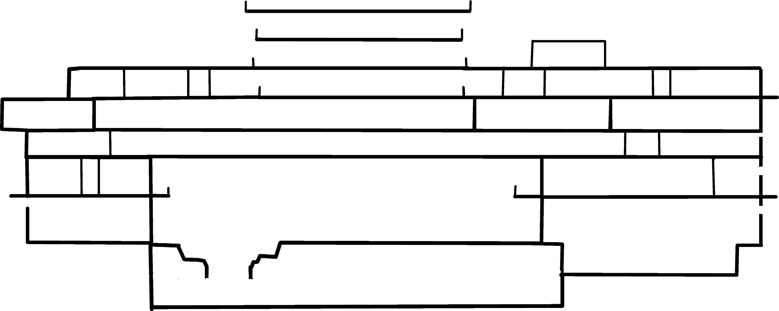
UP UP UP GROUND LEVEL N PRINT SHOP LOBBY VEST. LOUNGE ELEC. RM POST SVC. SVC. MECHANICAL RM GARBAGE RM BICYCLE STORAGE ART GALLERY DN DN DN UP UP UP LEVEL 2 TC STO. ELEC. STO. 1 BED & OFFICE RESERVED OFFICES 1 BED & OFFICE 3 BED STUDIO & OFFICE WORK SPC. DN DN DN UP UP UP TC STO. ELEC. STO. 1 BED & OFFICE 3 BED 2 BED & OFFICE COLLABORATIVE OFFICES STUDIO & OFFICE LEVEL 3 STUDIO & OFFICE BUSSINESS UTILITIES OFFICES RESIDENTIAL OFFICES RESIDENTIAL LOBBY & LOUNGE LIVE & WORK LIVE & WORK
DN DN DN UP UP UP TC STO. ELEC. STO. 1 BED & OFFICE 3 BED 3 BED CRAFT RM PHOTO RM LOUNGE 2 BED & OFFICE 2 BED & OFFICE LEVEL 4 DN DN UP DN UP UP OUTDOOR PATIO WORK SPC. LOUNGE CAFE PATIO SEATING 1 BED & OFFICE 2 BED & OFFICE 2 BED & OFFICE LEVEL 5 DN DN DN VENUE 1 BED & OFFICE 2 BED 2 BED LEVEL 6 diana hernandez arch & design 54 VENUE RESIDENTIAL LIVE & WORK OFFICES RESIDENTIAL OFFICES RESIDENTIAL LIVE & WORK LIVE & WORK PATIO
STUDIO 700
SQ. FEET
1 BED - 1 BATH - OFFICE 1,000 SQ. FEET
diana hernandez arch & design 56
2 BED - 2 BATH - OFFICE 1,150 SQ. FEET 3 BED - 2 BATH 2,000 SQ. FEET

RAINCROSS MEMORY CARE FACILITY

COMMERCIAL FIRST FLOOR

diana hernandez arch & design 58

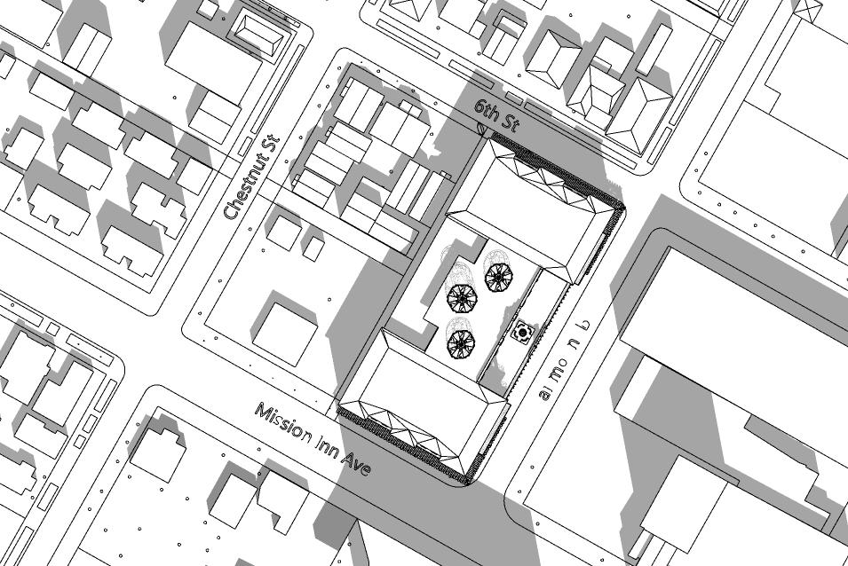
CHESTNUT ST.

Oftentimes, it is the moods and deteriorating health of patients that inevitably portray a somber environment throughout nursing facilities. By creating an ecosystem which patients directly care for and enjoy, a lively environment is restored.

According to studies, dementia patients respond positively to the presence of children, plants, and animals. By carefully designing an ecosystem that displays and celebrates life, we ease patient tensions and ensure they live comfortably during their time in nursing homes.

RESTORING LIVELINESS
MEMORY CARE FACILITY
SIXTHST.
FAIRMOUNT BLVD. MISSIONINNAVE.

MISSION INN ELEVATION

FAIRMOUNT
ELEVATION
diana hernandez arch & design 60 CONTEXT RIVERSIDE, CA NODES
PEDESTRIANS & TRAFFIC
COMMERCIAL DISTRICT LANDSCAPE

RAINCROSS MEMORY CARE FACILITY

PATIENT ROOMS

diana hernandez arch & design 62

MEMORY CARE FACILITY

ENERGY EFFICIENCY

Through the use of software like Sefaira, we are able to verify the solar shading strategies and materials are that are more efficient in securing energry efficiency.

SUMMER SOLSTICE

SUMMER SOLSTICE

SUMMER SOLSTICE

WINTER SOLSTICE

WINTER SOLSTICE

SUMMER SOLSTICE

WINTER SOLSTICE

PEDESTRIAN & TRAFFIC DENSITY

PEDESTRIAN & TRAFFIC DENSITY

SUNRISE

SUMMER SOLSTICE SUNRISE

TREES & OPEN SPACE

TREES & OPEN SPACE

WINTER SOLSTICE SUNRISE

NOON

SUMMER SOLSTICE NOON

ART INFLUENCE

ART INFLUENCE

WINTER SOLSTICE NOON

SUNSET

SUMMER SOLSTICE SUNSET

WINTER SOLSTICE SUNSET

diana hernandez arch & design 64
ANALYSIS RIVERSIDE, CA
SOLAR
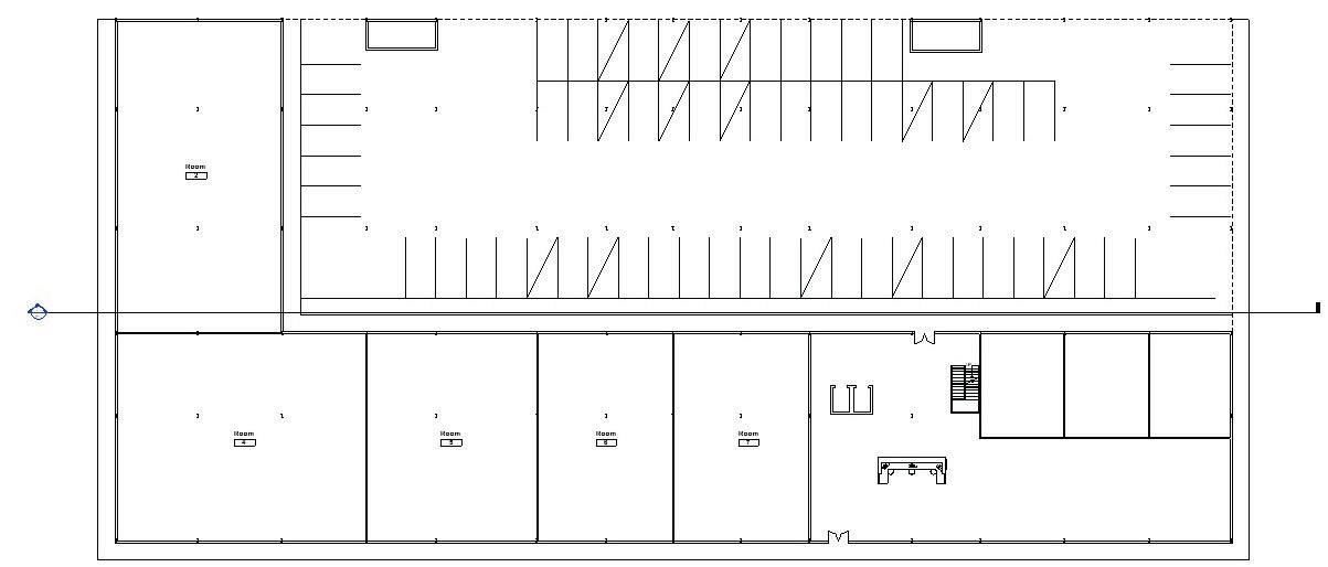
DN Community Space 27 Kitchen 28 Room19 Community Space20 Mechanical Room21 Mechanical Room22 HouseKeeping 23 Linen24 MeetingRoom30 MeetingRoom31 UP Retail 2 Retail 3 Retail 4 Retail 5 ALLEY24'WIDTH Retail 6 Office 8 Office 9 Office11 Office10 Lobby 7 Mechanical 12 Electrical 13
NURSINGHOMELOBBY
FLOOR 1 FLOOR 2
FLOORPLAN1
OFFICES

ROOF SYSTEM

FULLY ADHERED WHITE EPDM ROOF MEMBRANE

2” RIGID FIBER BOARD INSULATION

3/4” PLYWOOD SHEATHING

2X6 WOOD JOISTS

3/4” PLYWOOD SHEATHING

1” ACT CEILING

FLOOR SYSTEM

1/4” WOOD FLOORING ADHESIVE BOND

6” CONCRETE DECK

WALL SYSTEM

2” CEMENT PLASTER METAL LATH BUILDING PAPER

3/4” PLYWOOD SHEATHING

2” RIGID FIBER BOARD INSULATION

2X6 WOOD JOISTS W/ BATT INSULATION

3/4” PLYWOOD SHEATING

3/4” GYPSUM WALL BOARD

FOUNDATION

2” POLISHED CONRETE

10” CONRETE SLAB

diana hernandez arch & design 66

RECREATION AREA DINNING

diana hernandez arch & design 68
PETTING LOUNGE LIVING AREA

CHRISTIAN STUDIES CENTER

UNIVERSITY OF MICHIGAN

diana hernandez arch & design 70

The Christian Studies Center at The University of Michigan encourages students to take pride in practicing their faith on campus and allows them to integrate it into their day to day lifestyles. The lighthearted display of worship entices both Christian and secular users to make their way to its ethereal destination.

Along the way, the emphasis on academic and social gathering spaces provides the opportunity for cross-diciplinary conversations and relationships to spark among fellow students.

A COLLABORATIVE DISPLAY
CHRISTIAN
CENTER
SITE PLAN
STUDIES

MACRO

The University of Michigan has campuses scattered throughout east Ann Arbor. It is difficult for all disciplines to remain centralized on campus . Our site may not be central to the university but it is centered in Ann Arbor and has the potential to become a sacred space for students to practice their faith and find companionship through collaboration.

UNIVERSITY OF MICHIGAN diana hernandez arch & design 72 CONTEXT

The design includes two main points of entry at different elevations given the slope on the site. One includes an outdoor dining area while the other features an open-air gathering space that extends into the lobby. These spaces function as an extension of the campus adjacent to State Street.

Student housing is on the opposite side where other nearby student housing facilities can be found and features a its own alternative entrance. The pitched roofs direct attention to the chapel embeded between both the academic facilities and student housing.

CHRISTIAN STUDIES CENTER STUDENT HOUSING & AMENITIES
TRANSVERSE SECTION

SELF AWARE COLLABORATIVE

STATE STREET

PRIVATE PUBLIC

STUDY

WORSHIP

LIVE

GATHER DIRECT

diana hernandez arch & design 74
DESIGN CONSIDERATIONS
EMBED
PROGRAM
UP UP 2993 SF Storage 2826 SF Mechanical & Electrical 1/8" = 1'-0" 1 Sub Floor 1 UP UP UP DN DN UP 857 SF Public Lecture Room 549 SF Kitchen 151 SF Office 153 SF Director 151 SF Staff Lobby Lobby 1203 SF Reading Room Men's Dormitories Men's Dormitories 1/8" = 1'-0" 1 Ground Floor SUBFLOOR FLOOR 1
DN DN Chapel Lobby 1/8" = 1'-0" 1 Floor 3 DN DN DN UP UP DN 351 SF Seminar Room 1 350 SF Seminar Room 2 Social Gathering Space 1148 SF Prayer Room 2181 SF Library Women's Dormitories Women's Dormitories 1/8" = 1'-0" 1 Floor 2 FLOOR 2 FLOOR 3 diana hernandez arch & design 76

CHRISTIAN STUDIES CENTER

CHAPEL DESIGN

Through estensive research and several light box model contructions, we were able to replicate the desired naturallighting effects we sought out for our chapel designs.

The light in this cahpel was designed in a way that activates different parts of the room through out the day. The foliage in the garden surrounding the chapel atomizes light durring the morning. Reactive glass difuses light and creates an opacity which allows user to foucs on their inmediate surroundings durring noon. Meawhile, light sheds directly on the alter space and draws attention to the cross in the afternoons.

CHAPEL SECTION
ATOMIZATION 9 AM 12 PM 3 PM DISTORTED REALITY HOLY HOUR diana hernandez arch & design 78 CHAPEL LIGHTING
LOBBY LIBRARY

PRAYER ROOM

GARDEN WALK

&
80
diana hernandez arch
design

H.E.A.T

OAKLAND CULTURAL CENTER

diana hernandez arch & design 82

H E A T

The site is in close proximity to the Oracle Arena. It is also near to Martin remainder of a once-extensive marshland at San Leandro Bay. There community organizations, and these areas have access to vital disinvestment began with the exodus of local banks, businesses, thriving neighborhood. While the location here is not dismal, the neglect challenges. Their homes have been passed down through multiple flourish again. While people from every ethnic and racial background demographics remain heavily Black and Latinx. Even with the Black of living and other factors, this area is viewed as “the last frontier” for

Section Perspective
Front Exterior Rendering Side Exterior Rendering

Martin Luther King Shoreline, a 748-acre park protecting the There are many elementary schools, two local libraries, great social services. While these resources have a foundation, businesses, grocery stores, and the other critical components of a neglect is evident. Residents continue to persevere through tough multiple generations and they are eager to see their communities background live in East Oakland, the Coliseum neighborhood Black population’s rapid decline because of the increased cost Black homeownership.

Bridge Exterior Rendering Upper Exterior Rendering
Site Plan diana hernandez arch & design 84
diana hernandez arch & design 86

RECREATION AREA

METRO BRIDGE
diana hernandez arch & design 88

H.E.A.T

MATERIAL ANALYSIS

diana hernandez arch & design 90
PORTABLE THEATER DIANA + ANDRIANI diana hernandez arch & design 92
diana hernandez arch & design 94
DIANA + JUSTIN diana hernandez arch & design 96
ERGONOMIC DESIGN
9” 6” 6 ” 1/2 7/8 1 2 3 4 5 6 7 8 9 7 ” 3/8 4” 2’ - 10 ” 3/8 4’ - 5 ” 3/16 TERRAGLASS Functional P rivacy w ith Flexible
. Partitions Diana Hernandez - Eduardo Padilla R x7 x10 x26 x4 x7 x14 x24 x28
Configuration..
DIANA + EDUARDO diana hernandez arch & design 98
PARTITION REIMAGINED

“When I’m working on a problem, I never think about its beauty, I just think about how to solve the problem, but when I finish it, if the solution is not beautiful, I know it’s wrong.”

Turn static files into dynamic content formats.

Create a flipbook