Skip to main content

CASA DE LAS ARTES/PERFORMANCE_CHICAIZA DIANA

Page 1

CASA DE LAS ARTES PERFORMANCE

DIANA CHICAIZA

ESCUELA DE ARTES ENFOCADO EN CREAR ESPACIOS ÓPTIMOS PARA CADA AMBITO, ADEMAS DE ESPACIOS PÚBLICOS CON CIRCULACIONES

DIRECTAS

¿QUÉ?

Se va a diseñar un edificio / equipamiento en altura, el cual estará destinado a la enseñanza del arte para adolescentes de 11 a 18 años, ubicado en Ambato, Ecuador.

¿CÓMO?

Implementando un nuevo sistema educativo, donde se dará mayor relevancia a los talleres prácticos sin dejar de lado al conocimiento teórico, donde los usuarios se vean motivados a permanecer en los talleres y por ende en la edificacion.

¿PARA QUÉ?

Para incentivar a la juventud Ambateña a participar de los talleres práctico-teóricos y todos los programas educativos que se van a desarrollara en el equipamiento, para asi romper paradigmas y generar un nuevo sistema de educación.

REFERENTE

ZONNIFICACIÓN GENERAL

IMPLANTACION

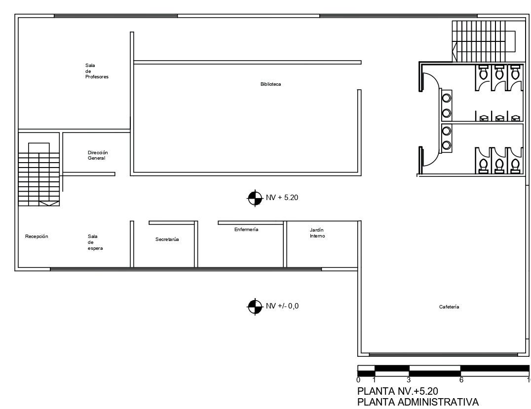
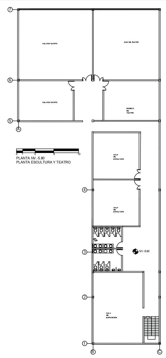
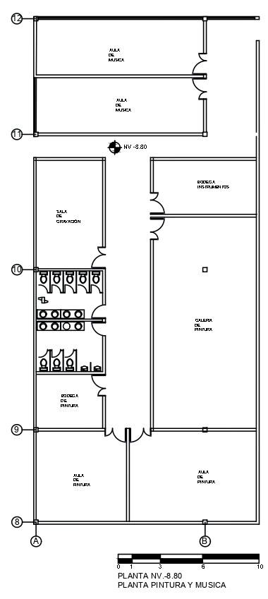
PLANTAS ARQUITECT[ONICAS

FACHADA PRINCIPAL

PERSPECTIVA

AXONOMETRÍA ISOMÉTRICA

Turn static files into dynamic content formats.

Create a flipbook