Skip to main content

Booklet • A mini portfolio

Page 1


PROJECT RUMAH SAYA

DIAJENG ZAHRA RAMADHANTI

Family Stages*

*Mayoritas alur skenario disusun berdasarkan jurnal atau penelitian

A. Based on a survey conducted by Indonesia Property Watch, 50% of Indonesians is able to purchase a house with the help of their parents, and the average age for buying a house is around 28 years, provided they are married and majority have at least 1 child According to a journal published by Neliti, the average Indonesian woman has her first child at the age of 22 years and the birth interval is around 6 years while the TFR (Total Fertility Rate) is around 2. This means that when the second generation buys a house at 28 years, the third generation 1 is 6 years old and third generation 2 is 0 years old. Meanwhile, the first generation is 52 years old, following the average distance between the first and second generations of 24 years in multigenerational data collected by the MAKAMUH group. (4)

Summary:

GEN 1 52 years

GEN 2 28 years

GEN 3-1: 6 years

GEN 3-2: 0 years

B. 8 years later - Based on the retirement age in Indonesia, which is 60 years, the first generation has retired and moved in This is based on an article which mentions a research from Pew Research Center where parents move in to save on child care costs. (6)

C. 12 years later - According to research published in a journal article, the average student has a distance of 151km from home to university. The research was conducted by analyzing data from more than one million students. By calculating the distance from home based on postal code and university. Therefore, with an average distance of 151km, it is assumed that the majority leave home to find somewhere closer to live. (5)

D. 13 years later - Research shows that at least half of seniors aged 65 years or older require specialized care, so the availability of caregivers/ART is an important option. Grandpa is assumed to use a wheelchair for variation purposes (6)

E. 16 years later - 4 years based on average standard university study period in Indonesia (7)

F. 17 years later - The first generation (grandfather) died at the age of 69, based on research data published in a journal which stated that the life expectancy for Indonesian men is 69 years (6)

G. 18 years later - same as C (5)

H. 21 years later - The first generation (grandmother) died at the age of 73.5, based on research data published in a journal which stated that the life expectancy for Indonesian women is 73.5 years. (4)

I. 22 years later - 4 years based on university study period in Indonesia, the third generation 1 left home to after marriage. Third generation 1 is schemed to leave home for variation purposes (3)

J. 25 years later - the third generation 2 married at the age of 25 years (the ideal marriage age for men based on BKKBN recommendations), the arrival of a son-in-law aged 21 years (the ideal marriage age for women based on BKKBN recommendations). The third generation 2 was made to live at home based on journals which stated that multigenerational housing patterns hamper home independence and there is a tendency for children's housing patterns to follow their parents (analysis on home owner and renter parents and their children’s housing choices later in life) (4)

K. 26 years later birth of 4th generation 1, daughter-in-law is 22 years old. same argument as A (5)

L. 32 years later - birth of 4th generation 2 with an interval of 6 years with the previous childbirth. same argument as A (6)

M. 34 years later - same argument as B (6)

N. 39 years later - same argument as D (6)

O. 43 years later - same argument as F (7)

P. 44 years later same argument as C (6)

Q. 47 years later - same argument as H (5)

R. 48 years later - same argument as E (3)

S. 50 years later - same argument as C (4)

B e r d a s a r k a n s e b u a h s t u d * , 4 h a p e n t n g y a n g

p e r u d p e r h a t i k a n d a l a m p o l a b e r u m a h

m u t g e n e r a s

p r e f e r e n s i p r v a s i y a n g b e r a g a m a n t a r

g e n e r a s i p e m b a g a n p e k e r a a n b e r s i h b e r s i h y a n g t i d a k m e r a a k a r e n a p e m b a g a n t e r i t o r i y a n g a b u - a b u b

SKENARIO

KONTEKS TAPAK

F a s e p e r t a m a m e m f a s l i t a s i 4 o r a n g p e n g h u n i , a y a h , i b u , d a n a n a k . K o n s e p

b e r t u m b u h s e c a r a t u m p u k a d a a h “ m i n m u m n t e r v e n t i o n ” u n t u k m e m n m a l i s i r

o r a n g a s n g m a s u k k e d a l a m r u m a h / i n v a s i o n o f s p a c e R u a n g d e p a n d i b u a t m u t f u n g s i s e b a g a i r u a n g t a m u d a n r u a n g m a k a n u n t u k m e m n m a l i s i r u a s t a p a k s e h n g g a d a p a t

d i g u n a k a n u n t u k e b h b a n y a k a r e a h i j a u

B E L U M S E B A G A I P R I M A R Y

L V N G S P A C E ( K O S O N G )

A R E A O K U P A N S T I N G G I D A N

L V N G S P A C E P R I M E R

e n u s a n u n t u k p e n e a s a n a n g a n g a m b a r

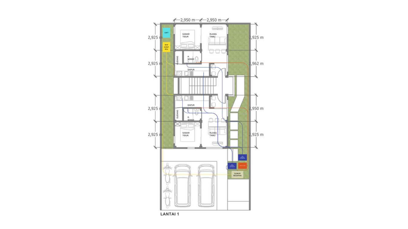
F a s e k e d u a m e m f a s l i t a s i 6 o r a n g p e n g h u n i , n e n e k , k a k e k , a y a h b u , d a n a n a k .

L a n t a i p e r t a m a t e r d i r d a r r u n g t a m u d a n m a k a n , d a p u r , k a m a r t d u r k a m a r

m a n d i , d a n g u d a n g d i k h u s u s k a n u n t u k g e n e r a s p e r t a m a y a n g m e m l i k i p r e f e r e n s i

u n t u k b e r s o s i a l s a s i l e b i h b a n y a k

K a m a r a n a k h a r u s m e m i k k u a l i t a s p r i v a s i y a n g c u k u p n a m u n

B E L U M S E B A G A I P R I M A R Y

L V N G S P A C E ( K O S O N G )

t e t a p m e m b u a t p e m i k k a m a r b e r i n t e r a k s i d e n g a n p e n g h u n i a i n s e h n g g a k a m a r m a n d i d i l e t a k k a n d i l u a r A R E A O K U P A N S I T N G G

D A N L V I N G S P A C E

a n u n t u k p e n e a s a n n g a m b a r

W W R 5 8 %

R

b a n y a k s e b a g a p e n g g a n t i n y a

T a n a m a n y a n g d g u n a k a n h a r u s t a h a n p a n a s , t i d a k b e r g e t a h , d a n t d a k b e r a c u n b a g i m a n u s i a m a u p u n h e w a n p e l i h a r a a n . T a n a m a n y a n g d g u n a k a n a d a l a h p a e m , p a l e m p a r l o r c a a t h e a , d a n k e t a p a n g k e n c a n a

A R E A O K U P A N S I T N G G

D A N L V I N G S P A C E

F o r m a s i p e n g h u n :

U n i t 1

fase 1

fase 2

fase 3

POTONGAN SKEMATIK FASE 1

A y a h , I b u , 2 a n a k DENAH FASE 1 - LANTAI 3

FASE 1 - LANTAI 3 POTONGAN SKEMATIK FASE 2

FASE 1 - LANTAI 4 POTONGAN SKEMATIK FASE 3

DESAIN STRUKTUR

S e m u b e o n + - 2 m m p e k r a a n b e d a s a k a n r a a - a t a p e u p e h u n g a n k h u s u s )

S e n g k a n g d e k u k p a d a b a g a n u u n g d e n g a n a a h b e r b e d a s e a p s e n g k a n g

T u a n g a n o o p a e

P a d a p e e m u a n u a n g a n

o v e a p p n g p c e ) u a n g a n k o o m s e p a n a n g 4 0 D s e s u a p e d o m a n e k n s r u m a h a h a n g e m p a

KONSTRUKSI

D e a s a m b u n g a n

T u a n g a n m e m a n a n g e b e a m d e k u k k e a a s

T u a n g a n b a o k 4 0 x 2 0 4 D 1 9 s e n g k a n g 8 D 2 5 0 m m p e r k a a n b e d a a k a n r e e e n s p e u p e h t u n g a n k h u s u s

D A G R A M J O N T T U L A N G A N B E T O N

T u a n g a n m e n e r u s b a w a h b a o k d e k u k k e a a s 3 0 D s e b a g a p a n a n g p e n y a u

K o n s e p k o n s t r u k s d a n p e m i i h a n m a t e r i a t e r k a i t d e n g a n k e n y a m a n a n t h e r m a l d a n k u a l t a s p e n c a h a y a a n d a n p e n g u d a r a a n y a n g b a k . B e r d a s a r k a n s e b u a h s t u d * d a e r a h t r o p s m e m i k i W W R d e a l s e b e s a r 3 0 % . N a m u n

n t u k a r e a d e n g a n r a d a s i d a n p a p a r a n m a t a h a r i k e m a r a u s a n g y a n g t n g g t e r a d i d e v a s i s e b e s a r 1 5 % , d a n a r e a y a n g m e n e r i m a p r e v a i n g w n d s e b e s a r 4 3 % .

T u a n g a n k o o m m e n e r u s m e e w a e b e a m h n g g a b e e m u d e n g a n u a n g a n o o p a e d e k u k k e a r a h

b e b e d a e p a n a n g 4 0 D

T u a n g a n d b a g m e n a d 3 d k a d e n g a n e n g k a n g u a n g a n b a o k w a b m e n e r u s k e d a a m k o o m

T u a n g a n u m p u a n

T u a n g a n b a o k d e k u k

m e m a n a n g 4 0 D

( 1 4 + 1 5 D u u n g d e k u k 1 1 5 d e a a k e d a a m T u a n g a n a p a n g a n

1 2 + 1 5 D

u u n g d e k u k 1 1 5 d e r a a k e d a a m

T u m p u a n T u m p u a n

J a u r a r h u a n

K e m r n g a n a a p + - 1 5 d e r a a r a n g k a a a p b a a n g a n

D n d n g b a a m e r a h u n u k a n a 3 - 4 ( e k a t r a d a s d a n s o a r e x p o s u r e )

D n d n g b a t a h e b e u n u k a n a 1 - 2 t e r k a k e k u a a n m e n a h a n b e b a n

B n g k a a u m n u m k a c a

W W R s s k + - 1 5 % *

L a p a n g a n

R e e r e n s u k u a n d a n m e o d e k o n s u k s s e r a s a m b u n g a n a d a p a d a h a a m a n e e e n s

n

k a t k a n n a a b e d o d a n m e n g u a n g R T T V R n g b a k R o s e r h e b e , u n u k m e n n g k a k a n c r o s s - v e n p a d a a e a h g h - r a c S e c o n d s k n b a t a m e r a h C a e r a n g u n u k m e n n g k a k a n n a a b e d o d a n m e n g u r a n g O T T V

O v e r h a n g 5 0 c m u n u k

m e n d u n g d a r g a r s h u a n

T u s a n h a u u n t u k k o n s r u k s d a n a a u m a e r a e k a

g e e n t h e m a c o m o t b e r d a s a k a n u g a s s h o p p e r

W W R 5 8 % u n t u k

m e n e r m a

p r e v a n g w n d 5 0 % d u u p A C P m e s h 2 5 %

s e c o n d s k n h e b e

W W R s s k a n a n + - 3 0 % * S e c o n d s k n h e b e h a n y a p a d a a a h s e a t a n a a h b a r a t d b u k a u n t u k m e n e r m a p e v a n g w n d A C P p a n e m o t k a y u u n u k s e c o n d s k n a e a h a d a p a a n R a n g k a a u m n u m

KONSTRUKSI

D n d n g

R a n g k a a u m n u m A C P s h e e D A G R

P a t L b r a c k e

s k u e b a 2 m m

P a n e A C P m o t

k a y u m e s h 4 m m

R a n g k a a u m n u m

m o t k a y u

d a m e t e r 1 0 0 m m

R a n g k a d p a s a n g

d e n g a n d n a b o

B a a d b o o n g k a n a u

d m a s u k k a n b e s b e t o n

d c o r s e m e n d a n p e e k a k h u s u s

D I A G R A M K O N S T R U K S A T A P M R I N G B A J A R N G A N

P e n g g u n a a n A C P s e c o n d s k n u n t u k k e b u t u h a n p r v a s i ( b o c k i n g v s u a l ) , r o s t e r b a t a u n t u k c r o s s - v e n t p a d a

d a e r a h h i g h t r a f f i c ( t a n g g a ) , d a n a t a p m i r n g u n t u k m e m u d a h k a n m a n t e n a n c e

B e s p a s t p d a n b e s

b u a t u n u k m e n g u n c b e s

b e o n d - d n a b o t k e n g

b a k

B e s b e t o n b e h e 1 2 m m

K u a e k a n s e e a h

m e n a d k e s a u a n

k u a n g e b h

7 0 k g c m 2 *

D g o n a w e b b c n g

O v e h a n g R e

W e b b n g a n g b a n g a n

B o o m c h o d b a n g

B m c h o d

UTILITAS

SIMULASI ANALISIS DIGITAL

h a r s a n g 1 0 . 0 0 - 1 6 . 0 0

A r a h U t a r a d a n T i m u r A r a h B a r a t S e a t a n 1 2 4 ( k W h / m 2 r e r a a

r a d a s d i e r m a

A t a s 4 9 6 ( k W h / m 2 ) r e r a a

r a d a s d i e r m a T i m u r

L a n t a 1 - 3 2 5 ( k W h / m 2

r e r a a r a d a s d i e r m a p a d a

s s e n g a h , 7 4 ( k W h / m 2

r e r a a . r a d a s d t e r i m a p a d a

s s p i n g g i r

L a n t a 4 : 1 2 4 ( k W h / m 2

r e r a a r a d a s d i e r m a p a d a s s t e n g a h U t a r a

L a n a i 1 - 3 1 2 4

( k W h / m 2 ) e r a a r a d a s

d i e r m a p a d a s i s t e n g a h 8 6 0 ( k W h / m 2 )

r e r a a . a d a s d e m a

p a d a s s p n g g r

L a n a i 4 8 6 0 ( k W h / m 2

r e r a a r a d i a s i d t e r m a

p a d a s s t e n g a h

S u n e x p o s u r e N o e P e o d e s m u a s i m u a d a r M e - A g u s t u s ( m u s m k e m a r a u d n d o n e s a ) , p a d a a m m a t a h a r s a n g 1 0 0 0 - 1 6 0 0

B a r a t

r a d a s d i e r m a p a d a s i s i

A r a h S e l a t a n d a n T m u r A r a h U t a r a d a n B a r a t B a g a n a t a s

L a n a 1 - 3 2 5 ( k W h / m 2 ) r e r a a

e n g a h 1 2 4 ( k W h / m 2 ) r e r a t a

r a d a s d i e r m a p a d a s i s i p n g g r k a n a n , 8 6 0 k W h m 2 )

r e r a a r a d a s i d t e r m a p a d a

s i s i p n g g r k r

L a n a 4 8 6 0 ( k W h / m 2 ) r e r a a

r a d a s d i e r m a p a d a s i s i

e n g a h

S e a t a n : r e r a a p a p a r a n m a t a h a r 4 3 a m

A t a s : r e r a a p a p a r a n m a t a h a r i 7 7 4 j a m T m u r

L a n a i 1 - 2 r e r a a p a p a r a n

m a t a h a r 4 3 j a m 2 1 9 p a d a s s p n g g r

L a n a i 4 r e r a t a p a p a r a n m a t a h a r 2 1 5 j a m

U t a r a

L a n a i 1 - 3 r e r a t a p a p a r a n

m a t a h a r 4 3 a m 5 1 6 p a d a s i s i

p n g g r

L a n a i 4 r e r a t a p a p a r a n

m a t a h a r 7 7 4 a m

B a r a

L a n a i 1 - 2 r e r a t a p a p a r a n

m a t a h a r 4 3 a m 5 1 6 p a d a s i s i

p n g g r

L a n a i 3 r e r a t a p a p a r a n

m a t a h a r 1 2 9 a m p a d a s s

t e n g a h 5 1 6 p a d a s s p i n g g i r

L a n a i 4 r e r a t a p a p a r a n

m a t a h a r 5 1 6 a m

A t a s r e r a t a p a p a r a n m a a h a j a m

L a n a i 1 L a n t a 2 L a n t a 3 L a n t a i 4

D a y l g h t m a p :

B i r u 5 6 % r e r a t a p a p a r a n d a y l g h t

K u n n g : 7 5 % r e r a a p a p a r a n d a y g h

O r a n g e 8 6 % r e r a t a p a p a r a n d a y i g h t

M e r a h 9 7 % r e r a t a p a p a r a n d a y i g h t

SIMULASI ANALISIS DIGITAL

W n d r o s e :

W n d f r e q u e n t l y p r e v a i s r o m S o u t h ( a p p r o x . 8 5 0

h o u r s y e a r ) W e s t S o u t h w e s t ( a p p r o x 7 5 0 h o u r s / y e a r ) ,

a n d W e s t ( a p p r o x 6 5 0 h o u r s / y e a r )

S r o n g w i n d p r e v a l s r o m E a s t S o u t h e a s t , N o r h

N o r t h w e s t W e s t N o r t h w e s t

R a d i a t o n r o s e O u t e r c r c e n d c a t e s w n d d r e c t o n

E a c h r i n g s a n d c o o r s r e p r e s e n s r a d i a t i o n r e c e v e d ( k W / m 2 ) ( r e d : 3 8 6

o r a n g e : 3 2 8 , g h o r a n g e 2 9 0 , y e l o w : 2 3 1 , g h y e l o w 1 9 3 )

T h e r m a c o m o r

SIMULASI ANALISIS DIGITAL

P a p a r a n s i n a r m a a h a r s a n g p a n a s y a n g d e i m a

m e n u r u n p a d a a r a h T m u r s e b a n y a k 5 5 a m d a 2 1 7

a m s e c o n d a r y s k n d a n b u f e r a n a r a b a n g u n a n d a n

d n d i n g p e m b a t a s

P a p a r a n s i n a m a a h a s a n g ( p a n a s ) y a n g d t e m a m e n u r u n p a d a a r a h B a r a t d a n U a r a m e n u r u n s e b a n y a k e a t a 7 4 a m d a r 3 8 7 j a m k a r e n a a d a n y a s e c o n d a r y s k n d a n b u f e r a n a r a b a n g u n a n d a n d n d n g p e m b a a s P e a k p a d a M a y r e r a a k e b u t u h a n c o o n g 2 3 k W h m 2 )

R a d a s y a n g d t e m a m e n u r u n

p a d a a r a h S e l a t a n m e n u r u n

s e b a n y a k r e r a t a 1 0 5 ( k W h m 2 )

d a r 1 2 0 k W h m 2 k a r e n a

a d a n y a s e c o n d a y s k n

D a y i g h t m a p :

O r a n g e 8 5 % r e r a t a p a p a r a n d a y g h t M e a h : 9 2 % r e r a a p a p a r a n d a y i g h R a d a s y a n g d t e m a m e n u r u n p a d a a r a h b a a t m e n u r u n s e b a n y a k r e r a a 2 1 ( k W h m 2 ) d a r 2 5 ( k W h / m 2 ) k a r e n a a d a n y a a r e a b u f e r a n a r a b a n g u n a n d a n d n d n g p e m b a a s

B r u 5 0 % r e r a t a p a p a r a n d a y g h t

K u n n g 6 4 % e r a t a p a p a r a n d a y g h t

R a d a s y a n g d t e r m a m e n u r u n

p a d a b a g a n a t a s , m e n u r u n

s e b a n y a k r e r a t a 3 8 0 k W h m 2 )

d a r 4 9 6 ( k W h / m 2 ) k a r e n a

a d a n y a a r e a b u f e r a n a r a

b a n g u n a n d a n d n d i n g p e m b a a s

REFERENCE

R a t n a y a k e , M . , L u k a s , S . , B r a i t h w a i t e , S . , N e a v e ,

B u r g e s s , G & M u i r , K ( 2 0 1 9 ) . T h e i n c r e a s

H o u s i n g , T h e o r y a n d S o c e t y , 3 7 ( 3 ) 3 2 2 – 3 3 8

C o u t e r , R . ( 2 0 1 6 ) . P a r e n t a b a c k g r o u n d a n d h o u s i n g o u t c o m e s i n y o u n g a d u l t h o o d . H o u s i n g S t u d i e s 3 3 ( 2 ) , 2 0 1 – 2

M A K A M U H m u t g e n e r a t o n a l f a m i y s u r v e y d a t a H a r r g a n , M . P ( 1 9 9 2 ) . A d v a n t a g e s a n d d i s a d v a n t a g e s o f m u t g e n e r a t o n a l f a m i y h o u s e h o d s : V e w s o f t h r e e g e n e r a t i o n s . J o u r n a l o f A p p l e d G e r o n t o l o g y , 1 1 ( 4 ) 4 5 7 – 4 7 4 d o 1 0 1 1 7 7 / 0 7 3 3 4 6 4 8 9 2 0 1 1 0 0 4 0 6

S o u r a o v á , A , K a y m a k M n a ř k o v á , K & Ž á k o v á , M ( 2 0 2 1 ) B e n g d a u g h t e r a n d m o t h e r M d d l e - a g e d w o m e n n t h r e e - g e n e r a t i o n i v n g J o u r n a l o f I n t e r g e n e r a t i o n a l R e a t i o n s h p s , 2 0 ( 2 ) , 1 9 9 – 2 1 6 d o 1 0 1 0 8 0 / 1 5 3 5 0 7 7 0 2 0 2 1 1 8 8 3 1 7 9

G a e , A , & P a r k , N - K ( 2 0 1 0 ) D e s r e d a n d a c h i e v e d p r v a c y a n d n t e r a c t i o n i n M u t g e n e r a t i o n a l H o m e s H o u s n g a n d S o c i e t y , 3 7 ( 1 ) 2 5 – 4 1 d o : 1 0 . 1 0 8 0 / 0 8 8 8 2 7 4 6 . 2 0 1 0 . 1 1 4 3 0 5 7 9

F e e i n g a t H o m e n a M u t g e n e r a t i o n a l H o u s e h o d T h e I m p o r t a n c e o f C o n t r o

B u r g e s s , G & M u i r , K ( 2 0 1 9 ) . T h e i n c r e a s e i n m u t g e n e r a t i o n a l h o u s e h o l d s n t h e U K : T h e m o t v a t i o n s f o r a n d e x p e r i e n c e s o f m u l t i g e n e r a t i o n a v i n g . H o u s i n g , T

b d

r e t r o f t t n g s o u t o n o r o f f c e b u d n g s i n t h e U A

L o n o , S ( 2 0 1 9 ) P e n d

d o i : 2 7 7 5 - 0 6 5 5 D e p . P U D i r e n C i p t a K a r y a ( 2 0 0 6 ) . P

P e k e r a a n U m u m .

B m a t y u g r a J a t i R . M . , T h o j b J . & A m i u z a , C . B . ( 2 0 1 5 ) . S E C O N D A R

D I S U R A B A Y A .

Turn static files into dynamic content formats.

Create a flipbook