Skip to main content

Architecture Portfolio Drew Haley Smith

Page 1

Drew Haley Smith

Architecture Portfolio 2018-2023

Education

Auburn University:

Bachelor of Architecture

Bachelor of Interior Architecture

Minor in Architectural History

Expected Graduation: May 2023

GPA: 4.0

Work Experience

Chapman Sisson Architects (Winter 2022)

Assisted with presentation layouts, client meetings, and markups.

To Be Done Studio (Winter 2021)

Assisted with site documentation and schematic design concepts for a community center in rural Midway, Alabama.

Foshee Architecture (May 2021–Aug. 2021)

Gained experience hand-sketching designs and details. Gained experience researching code and marketing.

Seay Seay and Litchfield Architects (May 2020–Dec. 2020)

Assisted with construction documents, detail drawings, product research, client meetings, and design presentations.

Chick-fil-A in TigerTown (2016–2018)

Received employee of the month award (October 2017). Gained time-efficiency, teamwork, and problem-solving skills.

Academic Honors

Dean’s List (2018-present)

CADC Book Award (Spring 2022)

DBIA Team Competition (Fall 2022)

Tau Sigma Delta (2021-present)

Honor Society in Architecture and Allied Arts

Academic Experience

Teacher’s Assistant, Auburn University (Fall 2022)

History of World Architecture I

History of Urban Architecture II

CADC Ambassador, Auburn University (2019–2022)

Rural Studio, Auburn University (Spring 2021)

Gained construction experience erecting interior walls, installing blocking, insulation, doors, flooring, and making on-site design improvements. Designed all details for exterior cladding. Designed, built, and installed cabinetry for entire house. Managed budget and scheduling throughout semester.

AIAS Mentorship Director, Auburn Chapter (2021–2022)

AIAS FBD Fundraiser, Auburn Chapter (2019)

Skills

AutoCAD, Revit, Rhino3D, Enscape, Lumion, Adobe Creative Suite, Procreate, Sketching, Physical Models

Awards

Spirit of Auburn Founders Scholarship(Fall 2017)

Lois F. and James Turnipseed, Jr. Fund for Excellence (Fall 2020)

J. Barnett Woodruff, Sr. Endowed Scholarship (Fall 2019)

Friends of Will Sturges Fund for Excellence (Fall 2021)

4 | Drew
Haley Smith
Project Title | 5
334.332.6101 | dhs0016 @ auburn.edu

Table of Contents

To Introduce

Auburn University Olli Center

Auburn, Alabama

This historical preservation project explores how to properly introduce 15,000 square feet of program onto a site with two historic structures.

To Swing

Hotel to Apartments

Montgomery, Alabama

This adaptive reuse project explores how a project can easily swing from a hotel into an apartment by merely renovating a bathroom into a kitchen.

To Scale

Elementary School

Montgomery, Alabama

This 91,618 square foot project explores how a large school building can adapt to the scale of a small child.

To Wander

Mystical Teahouse

Atlanta, Georgia

This adaptive reuse project explores how various architectural tecniques can be used to create a sense of wonder and a “place of escape.”

04
03
01
02 6 |
Drew Haley Smith

To Integrate

After School Facility Auburn, Alabama

This project explores how to integrate a building into a site with a very challenging topography.

To Unfold

This project explored the possibilities of crosslaminated timber (CLT) construction. Simplicity of construction was critical to the success of this project.

07

To Build

Rural Studio: Ophelia’s Home Newbern, Alabama

To Interact

Apartment for a Bug Theoretical Experiment

Project Title | 7

05
Wood Competition Pavilion Auburn, Alabama 06 08
This project, based on the fictional book Metamorphosis, attempts to reconstruct the relationship between two completely different creatures – a girl and a bug.
This design-build project provided an opportunity to gain hands-on construction, scheduling, and budgeting experience. The result was a beautiful home for our client, Ms. Ophelia.

To Introduce

8 |
Drew Haley Smith
This historical preservation project explores how to properly introduce 15,000 square feet of program onto a site with two historic structures. Auburn University Olli Center Auburn, Alabama
Project Title | 9

Section showing how design uses the natural topography to bury larger programmatic elements. New construction does not overpower the scale of the historic structures.

The first design concept was to create a sense of community on the campus. This was accomplished by designing two buildings separated on the basis of interior program but connected by a system of three courtyards. The second and more difficult design challenge was appropriately incorporating 15,000 square feet of program into a historic site.

One strategy was to use the site’s natural topography to determine locations of larger programmatic elements such as the auditorium. In addition, the line of sight from Sunny Slope to the street was preserved, and roof levels were stair-stepped to prevent overpowering the scale of Sunny Slope.

The buildings as a whole can be thought of as a ring with the two historic structures as the gems.

10 |
Drew Haley Smith
To Introduce | 11
12 |
Drew Haley Smith

The diagram above shows the relationship of the three courtyards to each other and to the classrooms. Each classroom has both visual and physical access to the courtyards.

Easily-accessible courtyard creates a sense of community for campus. This is what the main courtyard looks like from a window in Sunny Slope.

Introduce

| 13
To
14 |
The building is wrapped in a glass hallway that provides visual transparency between the classrooms and connects each classroom to the central courtyard This hallway also serves as an additional barrier between the classrooms and the exterior, keeping the classrooms shaded in the summer and warm in the winter. Drew Haley Smith
To Introduce | 15

To Swing

Hotel to Apartments

Montgomery, Alabama

This adaptive reuse project explores how a project can easily swing from a hotel into an apartment by merely renovating a bathroom into a kitchen.

16 |
02
Drew Haley Smith
Project Title | 17

In a typical hotel or apartment, the transition between the outside world and the domestic realm is extremely abrupt (usually just a door separates the two). This project attempts to soften the thresholds between the two by creating a space to “sluff off” the outside world before turning to see the rest of the space revealed.

Materials were strategically chosen to make certain spaces feel bigger than they actually are. When columns interupt walls, they are disguised by creating a wall “system” containing multiple layers (see axon). This hides the column and makes the space appear bigger by giving the wall depth.

Perspective showing how entry creates a soft threshold
18 |
Drew Haley Smith
Perspective of hotel room showing how column in wall is disguised and used to create a wall with dimension
To Swing | 19
Bamboo Stone Light Wood Fabrics Screens

Apartment Plan

This design accomodates two one-bedroom and one two-bedroom apartments, but flexible space provides an opportunity for additional bedrooms if necessary.

Hotel
Plan
20 |
Drew Haley Smith
To Swing | 21
When the project swings from hotel to housing, two of the gardens become a community social space. Restaurant perspective showing interior gardens
22 |
Entrance perspective showing interior gardens Drew Haley Smith The indoor gardens provide an acoustic barrier between apartments and a sectional relationship between floors. No two apartments share a wall.
To Swing | 23
Ground floor plan

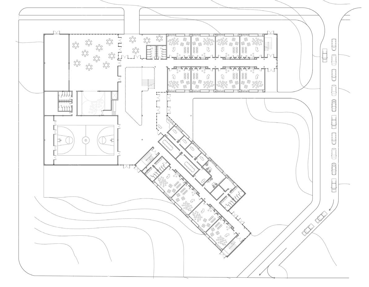
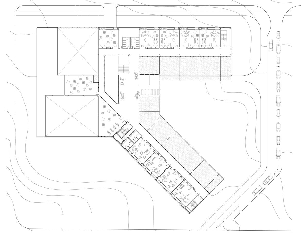
To Scale

Elementary School Montgomery, Alabama

This 91,618 square foot project explores how a large school building can adapt to the scale of a small child.

24 |
Drew Haley Smith
03
Project Title | 25

Site Analysis:

Most “drop off” students use the interstate, so the car entrance is along Maxwell Boulevard. Most students within walking distance live south of the site in a neighborhood called Cottage Hill. These students needed sidewalks with minimal interference with Clay Street. Traffic flow patterns were carefully analyzed to determine direction of travel.

Clasroom wings open like outstretched arms towards residential side of the city to creating a welcoming entrance for students. 5 minute walking radius 10 minute walking radius Classroom wings are oriented for optimal northern light.
26 |
Community and classroom areas organized by topographic slopes. Drew Haley Smith

Building holds street edge

Building opens up towards residential side of the city

Massing Strategy:

In order to make the building as unimposing as possible, larger programatic elements such as the gymnasium and cafetorium were sunk into the hillside. The classroom wings slide out of the hillside and stretch across the site along the east-west axis to provide classrooms with maxiumum high-quality northern and southern light (overhangs protect southern facades). Circulation was designed to be as simple as possible.

Site Strategy:

The building holds the street edge along Maxwell Blvd. in accordance with the city’s wishes. This allowed more exterior space to be protected from the busiest street. These exterior play areas are enclosed and overlooked by the administration offices. Circulation was also carefully considered. All entrances and exits are right hand turns for efficient pick up and drop off.

Classroom wings are stacked to diminish scale of building. Green roof creates a residential language for children. Southern wing opens toward residential side of the city. Tower creates an iconic and welcoming entrance. Maxwell Boulevard Clay Street Exterior Hardscape Playground Area
To Scale | 27
Undulating green roof creates residential language at ground level for young children. It also creates an appealing circulation experience for students in the upstairs classrooms.
28 | Drew
Smith
Perspective showing view of greenroof and media room from classroom hallway
Haley
Perspective looking into the media center from the central space. Notice how the balconies help reduce the building scale around the perimeter. This helps with acoustics and aids in giving the space a more “down to earth” feel. Sketch of experimentations with window and green roof possibilities
To Scale | 29
Thick walls serve as nooks, insulation, and storage space

The site strategy holds the street edge and addresses the residential side of the city. The massing strategy creates a welcoming entrance with a residential feel and diminish scale.

30 | Drew Haley Smith
Longitudinal Section showing how scale diminishes at the human eye level on the exterior.
To Scale | 31
Longitudinal Section showing how scale diminishes at the human eye level on the interior.
32 | Drew
Haley Smith

Mechanical Structure

This three-foot thick wall system serves as storage, seating, sun shading, and insulation. The occupiable windows create miniature “rooms” perfect for the scale of a child. Mechanical systems run through the hallway to give classrooms maximum ceiling heights.

To Scale | 33

To Wander

This adaptive reuse project explores how various architectural tecniques can be used to create a sense of wonder and a “place of escape.”

34 |
04
Drew Haley Smith
Project Title | 35

Initial sketch of meandering and disorienting environment. There are multiple ways to reach any destination. Creating a sense of depth and wonder was extremely important.

The project seems random and organic, but in reality it is meticulously using a series of layers organized layers. For example, the seemingly randomized field of columns actually follows an orderly grid. In this grid, the columns are evenly spread out, but one never sees two columns align. This strategy evokes the feeling of having stepped into a vast forest. In order to create the sense of “escaping into another world,” A meandering environment and disorientation was desired.

36 | Drew Haley Smith
Sketch showing how light sources should be scattered throughout the space—not just at the top

Plan showing how layers weave in and out of each other to create the illusion of depth and stimulate curiosity

Random Field Orderly Grid Seating Area Lily Pads To Wander | 37
38 |
Drew Haley Smith
To Wander | 39

This is a place to observe without feeling observed yourself. Notice how the layers are carefully overlapped so that there are places for both observation and shelter.

40 | Drew Haley Smith
To Wander | 41

To Integrate 05

After School Facility

Auburn, Alabama

This recreation center in includes outdoor and indoor multipurpose basketball courts, locker rooms, and three activity classrooms. The challenge for this project was finding a way to integrate the building with the site’s unique topographic slope.

56 |
Drew Haley Smith
Project Title | 57
58 |
Drew Haley Smith Section showing locker rooms and outdoor court.
To Integrate | 59
Section showing compression and release in entry.

The roofs were designed to block harsh western light, but permit ambient light using a semi-transluscent material. Southern-facing classrooms are protected by balcony overhangs.

After a vigorous game on the courts, players come here to relax and socialize. This room also has premier views of the street and bus stop so students know when their ride has arrived.

60 | Drew Haley Smith

The most important concept for spatial layout was the integration of athletics and academics. Classrooms and the exterior court are on the same level. Both look down into the interior court.

The locker rooms are buried into the hillside but remain on the same level as the indoor court. Second floor plan Interior Court Class 1 Class 2 Class 3 Exterior Court Interior Court
To Integrate | 61
First floor plan
1
62 |
2
Drew Haley Smith
To Integrate | 63
3 4
Drew Haley Smith
Portfolio 2018-2023

Turn static files into dynamic content formats.

Create a flipbook