Skip to main content

CETPRO DE INTEGRACIÓN ESPACIAL

Page 1

TALLER DE ARQUITECTURA III ANALISIS DE SITIO Y TOMA DE PARTIDO DOCENTE: ARQ.VIZCARRA SILVESTRE RONNY GRUPO 7 INTEGRANTES: HILARES ZEVALLOS PAUL FERNANDO TAPIA QUISPE ANGIE MILENA TELLO HERMOZA DHEVY SURYA
EDUCACIÓN TECNICO PRODUCTIVO UNIVERSIDAD ANDINA DEL CUSCO
CENTRO DE

Cetpro Cetpro centro de produccion

TALLER III TALLER III

centro de produccion

tecnico productivo tecnico productivo

indice de planos

Analisis de sitio l-02 l-05

l-01

LAMINA IPORTADA l-03 l-04

PROGRAMA l-06

toma de partido l-08

planimetria l-09

planta. nivel uno l-10

planta. nivel dos l-11

planta. nivel tres l-12

planta. nivel cuatro l-13

l-07

planta. nivel cinco l-14

planta. nivel seis l-15

planta. de techos l-16

planta. de cortes y perspectivas A-A l-17

planta. de cortes y perspectivas B-B l-18

planta. de cortes y perspectivas C-C l-19

planta. de cortes y perspectivas D-D l-20

plano elevacion norte l-22

plano. AXONOMETRIAS plot plan l-R RENDERS

plano elevacion sur plano elevacion oeste plano elevacion este plano de acabados

l-tp l-AS l-23 ESTRUCTURA DE TECHOS

PARURO

EMPLAZAMIENTO

Paruroesunpuebloperuano. Esasimismocapitaldeldistrito de Paruro y la provincia de Paruro en la región Cusco. Tiene una población de 2072 habitantes en el 1993. Está a una altitud de 3068 msnm y situado a unos 64 kilómetros delaciudaddelCusco.

DENSIDAD POBLACIONAL

ANALISIS URBANO

EQUIPAMIENTO URBANO

TOPOGRAFIA

Municipalidad Paruro Terminal Paruro Financiera Credinka Colegio Hermanos Ayar Mercado de Abastos Multiservicio

Comisaria Rural Paruro Ugel Paruro

VIENTOS

Hospedaje Sullca Plaza de Paruro 11:00AMHRS 6:00AMHRS 18:00PMHRS

Los pvientos predominan de NOR ESTE Y OESTE SUR, lo cual nos permitira tener en cuenta al momento de tener la organización espacial de nuestro módulos.

Con la topografía perteneciente al terreno, se tendrá que ver una colocación de bloques dónde este recorrido solar pueda insidir en la mayoria de los espacios para un buen confort térmicoeiluminación..

A L E S

3112 m.s.n.m

INTEGRANTES INTEGRANTES

71% humedad

Friodurante todoelaño. 27mma 1mm

Templada: Fria:

T.Promedio:13° T,Maxima:15° T.Minima:13°

T.Promedio:13° T,Maxima:13° T.Minima:2°

UNIVERSIDAD ANDINA DEL CUSCO ESCUELA PROFESIONAL DE ESCUELA PROFESIONAL DE ARQUITECTURA TALLER DE DISEÑO iii TALLER DE DISEÑO iii cetpro CENTRO DE PRODUCCION CENTRO DE PRODUCCION TECNICO PRODUCTIVO TECNICO PRODUCTIVO docentes docentes RONNY VIZCARRA SILVESTRE LUIS ANGEL DELGADO
HILARES ZEVALLOS PAUL FERNANDO HILARES ZEVALLOS PAUL FERNANDO TAPIA QUISPE ANGIE MILENIA TAPIA QUISPE ANGIE MILENIA TELLO HERMOZA DHEVY SURYA TELLO FORMATO A0 L-AS L-AS
SITIO Distritode Paruro Provincia Paruro
Sur Perú Cusco
ANÁLISIS DE
Emisferio
POLBLACION 3 338 HABITANTES DENSIDAD DE POBLACION DEL DISTRITO PARURO 22,0
hab./Km2
PENDIENTE 2% PENDIENTE 28% Área rural de protección y conservación ecológica Área rural de protección agricola Área de vivienda Área de comercio Área rural de suelo no productivos VEGETACION VIAPRINCIPAL
A S
P E C T O S G E N E R
Capilla Virgen Asunta Plaza de Armas Paruro ASOLEAMIENTO 15:00PMHRS

ANÁLISIS DE SITIO

ACCESIBILIDAD

La accesbilidad a la Provincia de paruro se da principalemnteporlacarreteraCU117,laqueconecta interprovincialmenteynospermitellegaralterrenoya ubicado. Por otro lado, se puede apreciar las diferentesmedidasdeanchodelasvíassecundariasy tipos de vías que conformanlaorganizacióndelatramaurbana.

Asimimo,vemosqueelterrenoestámuypróximoaa dicha carretera, lo que se tomará en cuentta para aislarruidosyconservarunciertoconfortacústico

HISTORICO CULTURAL

LaProvinciadeParuro,entiempoPre –Incafuehabitadapordostribus,una deellasconocidacomolosChelkes,en un espacio territorial que hoy se encuentra en la Comunidad CampesinadeAraypallpa(Colcha),yla otra conocida como los Maskas, quienes se apostaron en la actual capital de la provincia. Durante el tiempo de la expansión Inca estas fueronsometidasyavasalladasporel Tahuantinsuyo.

HITOS

COMISARIA MERCADO

TIPOS DE VIAS

Dentro del limite cerca al terreno, podemos encontrar variedas de vias, estas se encuentran al rededor haciendo que el terreno sea accesible.

INTEGRANTES INTEGRANTES

UNIVERSIDAD ANDINA DEL CUSCO ESCUELA PROFESIONAL DE ESCUELA PROFESIONAL DE ARQUITECTURA TALLER DE DISEÑO iii TALLER DE DISEÑO iii cetpro CENTRO DE PRODUCCION CENTRO DE PRODUCCION TECNICO PRODUCTIVO TECNICO PRODUCTIVO docentes docentes RONNY VIZCARRA SILVESTRE LUIS ANGEL DELGADO
HILARES ZEVALLOS PAUL FERNANDO HILARES ZEVALLOS PAUL FERNANDO TAPIA QUISPE ANGIE MILENIA TAPIA QUISPE ANGIE MILENIA TELLO HERMOZA DHEVY SURYA TELLO
A NIVEL MICRO
Carretera CU 117
Carretera Principal Vias secundarias A NIVEL MACRO PLAZADE ARMAS
VIA PRINCIPAL ZONA URBANA VIA SECUNDARIA ZONA URBANA VIA PRINCIPAL ZONA RURAL
VISTA NORTE VISTA SUR VISTA ESTE VISTA OESTE VISTAS

Y COLORES

PELIGROS

ACCESO DE SERVICIOS

OPORTUNI DADES

igual que con el servicio de agua, el servicio de desagüe no está desarrollado por completo pero si es posible la conexión e instalación.

caso de la electricidad, el servicio se encuentra 100% habilitado.

DEBILI DADES

AME NAZAS

TRANSPORTE

OLORES Y SONIDOS

Al encontrarse en la carretera el sonido del transporte es fuerte

Se puede apreciar el aroma a la vegetacion que rodea

UNIVERSIDAD ANDINA DEL CUSCO ESCUELA PROFESIONAL DE ESCUELA PROFESIONAL DE ARQUITECTURA TALLER DE DISEÑO iii TALLER DE DISEÑO iii cetpro CENTRO DE PRODUCCION CENTRO DE PRODUCCION TECNICO PRODUCTIVO TECNICO PRODUCTIVO docentes docentes RONNY VIZCARRA SILVESTRE LUIS ANGEL DELGADO INTEGRANTES INTEGRANTES HILARES ZEVALLOS PAUL FERNANDO HILARES ZEVALLOS PAUL FERNANDO TAPIA QUISPE ANGIE MILENIA TAPIA QUISPE ANGIE MILENIA TELLO HERMOZA DHEVY SURYA TELLO FORMATO A0 L-AS L-AS ANÁLISIS DE SITIO Rios principales Bajo Medio Alto Muy alto
USO DE SUELOS Industria Vivienda S. públicos Educativo S. públicos Salud Otros usos Zona agricola
Casas de estructura de adobe Casas hechas de ladrillo y material noble
INFRAESTRUCTURA URBANA
Se puede acceder en vehículo privado
posibilidad
transporte interprovicial
destino
Existe la
de tomar
para el
AGUA D ESAGÜE Teniendo
Al
ELECTRICIDAD En el
FLORA FAUNA
en cuenta que la zona no se encuentra ocupada en su mayoría, el servicio de agua se encuentra habilitado aunque no al 100%
TEXTURAS
Molle Chihuaco Toro
F O D A -Ubicación y cercanía a una vía principal -El entorno presenta naturaleza FORTALEZAS
Huanoquite
-Terreno en vía principal -Pendiente que nos deja tener usuales a todo el entorno y naturaleza -Limite de pisos -Uicación y cercanía a una vía principal -Una frente
-Clima en el distrito -Peligro de desborde de rio

ENTORNO INMEDIATO ENTORNO INMEDIATO AREA DE INTERVENCION AREA DE INTERVENCION

Para llegar a una volumetria final lo que se hizo es anlizar el terreno con el entorno, se analizo ejes para seguir un orden a la hora de proponer la volumetria.

ASOLEAMIENTO ASOLEAMIENTO

En el entorno podemos encontrarnos con vias principales y secundarias,la s cuales no serviran como ejes

El terreno limita con bosques y construccione s aledañas.

Duranteeltranscursodelaño,latemperaturageneralmentevaríade1 °Ca22°Cyraravezbajaamenosde-1°Cosubeamásde25°C

12:00 AM

ANALISIS FORMAL

MODULACIÓN MODULACIÓN

Para la forma, inicialmente se utiliza la modulación de fibonacci, el cuál nos genera la proporción en los espacios de programa. Se consideralossiguientesmódulosymedidas:

Finalmente para conseguir un diseño más integrado se genera tipo escalinatas o graderías en los bloques, encontrándose sometidos en la topografíadelterreno.

6:00 AM

6:00 PM

Elterrenoalcontarconunaserirdedesnivelesnosofrece una caracteristica a tomar en cuenta a la hora de distribuirlosvolúmenesplanteados.

TOPOGRAFIA DEL TERRENO TOPOGRAFIA DEL TERRENO

Los veranos soncortos ycómodos; losinviernos soncortos, frescos y mojadosyestánubladodurantetodoelaño.

VIENTOS VIENTOS

La parte más ventosa del año dura 4.4 meses, del 3 de julio al 15 de noviembre, con velocidades promedio del viento de más de 7.7 kilómetrosporhora.

ElmesmásventosodelañoenCcapiesSetiembre,convientosauna velocidadpromediode8.8kilómetrosporhora

El terreno al contar con una serir de desniveles nos ofrece una caracteristica a tomar en cuenta alahoradedistribuirlosvolúmenesplanteados.

Despues de obtener la modulacion, esta se emplazaenelterreno,conelfindeaprovecharlos desniveles con que este cuenta para distribuir los diferetesespaciosquesepropongan.

GraciasalamodulacionFibonaccisenoshacemas facil distribuir los diferentes modulos en los diferentes bloques que se plnatea, para despues garciuasalamodulacionserealicelazonificacion.

CONTEXTO CONTEXTO RIO PARURO RIO PARURO GENERACIÓN GENERACIÓN 2.00 2.00 TOMA DE PARTIDO UNIVERSIDAD ANDINA DEL CUSCO ESCUELA PROFESIONAL DE ESCUELA PROFESIONAL DE ARQUITECTURA TALLER DE DISEÑO iii TALLER DE DISEÑO iii cetpro CENTRO DE PRODUCCION CENTRO DE PRODUCCION TECNICO PRODUCTIVO TECNICO PRODUCTIVO docentes docentes RONNY VIZCARRA SILVESTRE LUIS ANGEL DELGADO INTEGRANTES INTEGRANTES HILARES ZEVALLOS PAUL FERNANDO HILARES ZEVALLOS PAUL FERNANDO TAPIA QUISPE ANGIE MILENIA TAPIA QUISPE ANGIE MILENIA TELLO HERMOZA DHEVY SURYA TELLO FORMATO A0 L-TP L-TP
ANALISIS CONTEXTUAL
El terreno presenta un pendiente del 28% con una altu ra de 30m de altura, del punto mas bajo hasta el punto mas alto,queseriaellímitedelterreno.
PENDIENTEDEL28%
EJES DE TRAMA URBANA EJES DE TRAMA URBANA
TERRENO VACIO ADICIONAR PROLONGAR Y CORTAR ACORTAR DESPLAZAR VOLUMETRIA FINAL

CIRCULACIÓN CIRCULACIÓN

INGRESO

CIRCULACIÓNPRINCIPAL RECORRIDOALTO CIRCULACIÓN SECUNDARIA RECORRIDOALTO-MEDIO

TOMA DE PARTIDO ZONIFICACIÓN ZONIFICACIÓN TANQUE DE RESERVA Y REPARACIONES

CIRCULACIÓNTERCIARIA RECORRIDOMEDIO

COMPLEMENTARIO

AMBIENTE DE CULTIVO

ANALISIS ESPACIAL

circulaciónenpeine T. INSTALACIONES ELÉCTRICAS

BLOQUE 3 BLOQUE 3 BLOQUE 2 BLOQUE 3 BLOQUE 3

T. SOLDADURA Y RECTIFICACIONES AUTOMOTRICES

T, MOTORES DE VEHICULOS

T. MEDICIONES ELÉCTRICAS

L. CONTROL Y CALIDAD

L. FARMACIA

PODOESTÉTICA LOCUCIÓN RADIAL AREA ESPERA + CIRCULACIÓN L. MULTIFUNCIONAL L. SUELOS

HOTELERIA

CORTE Y CONFECCIÓN

DIBUJO TECNICO

COSMETOLOGIA

SH GENERAL COCINA

AULA TEÓRICA 1 AULA TEÓRICA 2 AULA TEÓRICA 3

AULA DE CÓMPUTO BIBLIOTECA

AMBIENTE DE CRIANZA T. INSTALACIONES SANITARIAS SUM 1 TÓPICO + CONSEJERIA

La forma de nuestro proyecto se basa en segui la pendiente que presenta el terreno, junto a una circulacion lineal de bloque a bloque

Por un lado tenemos los espacios públicos de uso común y recreación juntos que se relacionan a través de una zona algo más privada para llegar a las aulas y talleres

LACTARIO SH GENERAL

AREA ESPERA + CIRC. CAFETERIA

T- NEUMÁTICA E HIDRÁULICA VESTIDORES ESTUDIANTES SH GENERAL MODULO ADMINISTRATIVO

ANALISIS FUNCIONAL UNIVERSIDAD ANDINA DEL CUSCO ESCUELA PROFESIONAL DE ESCUELA PROFESIONAL DE ARQUITECTURA TALLER DE DISEÑO iii TALLER DE DISEÑO iii cetpro CENTRO DE PRODUCCION CENTRO DE PRODUCCION TECNICO PRODUCTIVO TECNICO PRODUCTIVO

Además priorizamos utilizar agrupaciones lineales para generar orden y similitud en las distribuciones

docentes docentes RONNY VIZCARRA SILVESTRE LUIS ANGEL DELGADO

INTEGRANTES INTEGRANTES HILARES ZEVALLOS PAUL FERNANDO HILARES ZEVALLOS PAUL FERNANDO TAPIA QUISPE ANGIE MILENIA TAPIA QUISPE ANGIE MILENIA TELLO HERMOZA DHEVY SURYA TELLO

FORMATO A0 L-TP L-TP

COMPLEMENTARIO
circulaciónlineal circulaciónvertical T. CIRCUITOS ELÉCTRICOS Y ELECTRÓNICOS
UNIVERSIDAD ANDINA DEL CUSCO UNIVERSIDAD ANDINA DEL CUSCO ESCUELA PROFESIONAL DE PROFESIONAL DE ARQUITECTURA ARQUITECTURA TALLER DE DISEÑO iii TALLER DE DISEÑO iii cetpro CENTRO DE PRODUCCION CENTRO DE PRODUCCION TECNICO PRODUCTIVO docentes docentes RONNY VIZCARRA SILVESTRE LUIS ANGEL DELGADO INTEGRANTES INTEGRANTES HILARES ZEVALLOS PAUL FERNANDO TAPIA QUISPE ANGIE MILENIA MILENIA TELLO HERMOZA DHEVY SURYA TELLO HERMOZA DHEVY SURYA FORMATO A0 L-TP L-TP Para el control lumínico en algunos espacios, se aplican maderasenciertosluagresdelventanal. TOMA DE PARTIDO TOMA DE PARTIDO PERSPECTIVAS PERSPECTIVAS A. TECNOLÓGICO ESTRUCTURAL ESTRUCTURAL MATERIALIDAD - MATERIALIDADAMBIENTAL AMBIENTAL PIEDRA LISA PIEDRA LISA PIEDRA PULIDA PIEDRA PULIDA CELOSÍAS CELOSÍAS Celosias de madera en las ventanas principales, estas se acomodarandeacuerdoalasituacionnecesaria. CONCRETO ARMADO CONCRETO ARMADO MADERA MADERA CONCRETO CRACKED CONCRETO CRACKED CONCRETO PULIDO CONCRETO PULIDO PLACAS DE CONCRETO PLACAS DE CONCRETO ARMADO ARMADO Las placas de concreto amrmado nos serviran como soporte para el bloque que se encuentra en la parte frontal, gracias a este sistema nos permitira generar luces mas amplicas y espacios mejoriluminaos. Del mismo modo se hacer uso de la splacas de cocnreto armadoparalosmodulosdelaparteposterior,dichaestrutura se apoyara del la topografia para poder sostener estructuralmentelosmodulos. VENTANAS VENTANAS CON CON MELAMINA MELAMINA TECHOS ALARGADOS TECHOS ALARGADOS Al alargar los techos, estos nos brindaran sombra haciendo que el interior del modulo este fresco, logrando un confort térmico CONJUNTO DE PORTICOS CONJUNTO DE PORTICOS
UNIVERSIDAD ANDINA DEL CUSCO UNIVERSIDAD ANDINA DEL CUSCO ESCUELA PROFESIONAL DE ESCUELA PROFESIONAL DE ARQUITECTURA TALLER DE DISEÑO iii TALLER DE DISEÑO iii cetpro CENTRO DE PRODUCCION CENTRO DE PRODUCCION TECNICO PRODUCTIVO TECNICO PRODUCTIVO docentes docentes RONNY VIZCARRA SILVESTRE LUIS ANGEL DELGADO INTEGRANTES INTEGRANTES HILARES ZEVALLOS PAUL FERNANDO HILARES ZEVALLOS PAUL FERNANDO TAPIA QUISPE ANGIE MILENIA TAPIA QUISPE ANGIE MILENIA TELLO HERMOZA DHEVY SURYA TELLO FORMATO A0 L-01 L-01

TALLER

TALLER

TALLER DE RECEPCION HOTELERA 1

ESPACIO LIMPIO Y HERMÉTICO,USO DE INDUMENTARIA DE COCINA,ADQUISION DE TECNICAS CONOCIMIENTOS

ESPACIO LIMPIO, HERMÉTICO Y ADECUADAMENTE VENTILADO QUE CUENTE CON LAS HERRAMIENTAS PARA EL TRABAJO

COCINA,HONEADO,LIMPIEZA DE SERVICIOS,EMPLATADO,SOCIALIZAR

PREPARACIÓN DE COCTELES, LIMPIEZA DE SERVICIOS, EMPLATADO, SOCIALIZAR, CONGELADO LAVADEROS DE DOS POSAS, SILLAS, MESAS REFRIGERADAS Y MESAS DE APOYO 8 12 3 96

ESPACIO CÓMODO, BIEN IMPLEMENTADO, ILUMINADO, VENTILADO Y LIMPIO. PRÁCTICAS DE HOTELERÍA SILLONES, MESAS, CAMA, VELADORES, TV, FRIGOBAR, TELÉFONO, ARMARIO 8 2.20 64

TALLER DE LOCUCIÓN RADIAL 1 ESPACIO CONFORTABLE,ADQUISICION DE CONOCIMIENTO SOBRE ADMINISTRACIÓN HOTELERA

IMPARTIR CLASES,ENSEÑANZA DE MATERIAL INTERACTIVO,SOCIALIZAR MESAS, PUPITRE, SILLAS, ESCRITORIO, PIZARRA, PROYECTOR 8 1.75 64

TALLER DE CIRCUITOS ELECTRICOS Y/O ELECTRONICOS CABINA DE GRABACIÓN, CABINA DE CONTROL 1 ESPACIO CÓMODO, CON POCA ILUMINACIÓN, VENTILADO, CON SISTEMAS DE APOYO ACÚSTICO PRÁCTICAS DE DESENVOLVIMIENTO E IMPARTIR INFORMACIÓN CONOCIMIENTOS MESA DE TRABAJO, SILLAS, MICRÓFONO, CONSOLA, COMPUTADORA, ARMARIO 8 3.10 64

1 ESPACIO VENTILADO, AMPLIO E ILUMINADO CONOCER LAS MAGNITUDES FISICAS MAS IMPORTANTES QUE INTERVIENEN EN LOS CIRCULOS NEUMATICOS E HIDRAULICOS

TALLER

TALLER

TALLER

TALLER DE MOTORES DE VEHÍCULOS -

TALLER

TALLER

LOSAS

TALLER

LAB.

ESTUDIANTES,

MESA DE TRABAJO, BANCAS O TABURETES, MESAS PARA COMPUTADORAS,ESCRITORIO DE DOCENTES,1 SILLA DE DOCENTE,ARMARIOS PIZARRA 16 16 4.50 256

HORNOS TAMAÑOS MEDIO Y GRANDE,BATIDORAS,FREIDORA,REFRIGERADORA 2 PUERTAS,MICROONDAS,ESTUFAS 8 12 3.00 20

DE HULE,CUADRO GENERAL DE MANDO ,CAUTERIZADORA,TOMA A TIERRA 16 16 5.6 256

ESPACIO AMPLIO,SIMULADOR DE CONEXION SANITARIA,ESPACIO PARA HERRAMIENTAS,ALMACEN DE ACCESORIOS PRACTICA Y TEORIA SOBRE MANTENIMENTO DE INSTALASIONES SANITARIAS,USO Y MANIPULACION DE ACCESORIOS SANITARIOS TUVOS Y ACCESORIOS,PEGAMENTO DE DISTINTOS TIPO,PISTOLA DE CALOR,SOPLETE 16 16 5.2 256

ESPACIO AMPLIO, ILUMINADO Y BIEN VENTILADO. LAVADO DE ALIMENTOS, PREPARACIÓN DE ALIMENTOS, UTILIZACIÓN DE ELECTRODOMÉSTICOS MESAS, LAVADEROS, LAMAMANOS, LAVADEROS DE DOS POZAS, ESTANTES 8 16 3.00 128 320 LAB.

ESPACIO DINÁMICO,ENSEÑANZA COMODIDAD ENSEÑANZA Y ESPECIALIZACIÓN SOBRE CUIDADO DE LA PIEL,UÑAS Y ARTE ESTÉTICO SILLAS PARA PEDIRE Y MANICURE,PIZARRA,SILLAS,ESTANTERIA,MESAS DE MANICURA,ESPEJOS CON LUCES,MESAS DE PELUQUERIA 8 12 4.75 96

AULA ESPACIOSA, ILUMINADA CREACIÓN DE PRENDAS DE VESTIR MESAS BANCAS, ESCRITORIO, SILLAS, ESTANTES, MUEBLES, PLANCHADOR PIZARRA 8 12 4 96

96 2112 3840

AMBIENTE DE CULTIVO ÁREA VERDE CON FIN EDUCATIVO, AMPLIA, ORGANIZADA, LIMPIA CORRECTAMENTE IMPLEMENTADA CAPACITACIONES Y ENSEÑANZA EN EL ÁMBITO GANADERO AGRÍCOLA

-AREA DE GESTIÓN ADMN. PEDAGÓGICA

AREA DE ESPERA ESPACIOS AMPLIOS, COMODOS, ILUMINCACIÓN Y VENTILACIÓN, SIN RUIDOS CERCANOS

1 ESTUDIANTES, DOCENTES, PERSONAL DE SERVICIO Y PERSONAL CAPACITADO

IMPLEMENTOS DE LIMPIEZA Y SALUBRIDAD MAMELUCOS, BOTAS, MASCARILLAS), JAULAS, MESAS, BALANZAS, LAVADEROS DE POZAS, ARMARIOS, PIZARRA MÓVIL 16 40 3.50 - 4.80 20 640

DE LIMPIEZA Y SALUBRIDAD MAMELUCOS, BOTAS, MASCARILLAS), JAULAS, MESAS, BALANZAS, LAVADEROS DE POZAS, ARMARIOS, PIZARRA MÓVIL 16 40 7M2 45 640 1280 1280

ESPACIO ACCESIBLE PARA LOS DIFERENTES USUARIOS, CÓMODO, ILUMINADO, SERENO ATENCIÓN AL CLIENTE, ORGANZACIÓN ADMINISTRATIVA, REUNIONES. MOBILIARIO DE OFICINA (ESCRITORIOS, SILLAS, COMPUTADORAS,ETC.), ASIENTOS. 4 1.50 - 3.50

ARTIFICIAL, AMPLIO SERVICIOS GENERALES

20 - 25 32 96 144

O ACCESO A ATENCION DE PRIMEROS AUXILIOS CONSULTA MÉDICA TANQUE DE GAS,MESA DE TRABAJO,CAMILLA 8 9.48 3 32 BE MAESTRANZA ESTUDIANTES, DOCENTES.PERSONAL ADMINISTRATIVO DE SERVICIO ESPACIOS AMPLICOS LIMPIOS APLICAR PRIMEROS AUXILIOS, REPOSAR, NOTIFICAR A LOS PADRES 1 escritorio; 3 sillas; camillas 1 estante para medicamentos 4 9 1 16 CUARTO DE LIMPIEZA - DEPÓSITO ESTUDIANTES, DOCENTES, PERSONAL ADMINISTATIVO ESPACIOS AMPLIOS LIMPIOS DESCANSO Y ALIMENTACION 7mesas ;28sillas; 3 sillones, 1 cocina; 1despensa; -repisas,4 estantes 8 16 2.00 40 128 SERVICIOS

1 32 48 SERVICIOS GENERALES SG

ILUMINCACIÓN CASETA DE SEGURIDAD -

NATURAL 1

SENTARSE, MANEJAR LA ALPTOP, RALIZAR TAREAS MESAS, SILLAS, CASILLEROS, PIZARRA, COMPUTADORES, IMPRESORAS, PROYECTOR 4 1.50 SEGURIDAD CUARTO DE MAQUINAS Y CISTERNAS Personal de seguridad Espacio seguro y correctamente iluminado Mantener los espacios asegurados con vigilancia durante las oras de uso Caseta, silla, escritorio, computadora 4 4.80 1-Feb 16 16 536

DESCANSAR, RELAJARSE, SENTARSE, APRARSE SOFÁ, MESA DE CENTRO 4 1 ALMACÉN GENERAL PERSONAL DE SERVICIO ESPACIO AMPLIO PARA LA CIRCULACION CORRECTA DEL PERSONAL REPARAR DIVERSOS COMPONENTES Y CONSRTRUIR OTROS. SILLA, ESCRITORIO, ARMARIOS 12 - 1 96 520

CON CAFETERÍA O COMEDOR ÁREA DE ESPERA PERSONAL CAPACITADO ESPACIOS AMPLIOS,LIMPIOS Y VENTILADOS ACCESO A MATERIAL DE LIMPIEZA archivadores armarios escritorio, sillas 4 9.48 3 16 192 192

PREPARAR COMIDAS RAPAIDAS, LAVAR, LMPIAR, PREPARAR BEBIDAS MESADA, PROYECCIÓN MUEBLE ALTO, REFRIGERADOR O FRIGOBAR, LAVATORIO, MICROONDAS 4 1 ESTACIONAMIENTO PERSONAL DE SERVICIO ESPACIO CORRECTAMENTE DISTRIBUIDO PARA EL CORRECTO ALMACENAMIENTO DE LOS DISTINTOS ELEMENTOS ALMACENAR Y HACER EL MANTENIMIENTO Y FUNCIONAMIENTO DE LAS INSTALACIONES EQUIPOS DEL LOCAL ESTANTERIA, ESCRITORIO, LAVAMANOS 4 - 1 16 ÁREA DE DESCARGA, MANIOBRAS Y ALMACENAMIENTO Personal de servicio ESPACIOS AMPLIOS Y ORGANIZADOS REALIZAR EL MANTENIMIENTO Y ALMACENAMIENTO DE LOS EQUIPOS PROPIOS DEL CENTRO cisternas, instalaciones contra incendios, maquinas de electricidad 12 12 2 2-Mar 144 VESTUDARIOS DE ESTUDIANTES 3 Personal de servicio y limpieza ESPACIOS AMPLIOS Y ORGANIZADOS ALMACENAR Y MANTENER EN CORRECTAS CONDICIONES LOS EQUIPOS Y HERRAMIENTAS DE TRABAJOS Estantes, una mesa por cada estante 8 2 -May 64 SS.HH DOCENTES Y ESTUDIANTES CASETA DE SEGURIDAD 1 docentes, estudiantes, personal administratico, personal de seguridad, otros. Estacionar vehículos mientras se hacen actividades dentro de la institución ubicación de los vehículos cuando dejan de estar en circulación - 20 10 12.5 200 DEPÓSITOS 1 Personal de servicio espacio amplio, abierto, controlado ubicación de los vehículos de decarga, lmacenar productos para uso de talleres - 0 0SERVICIOS SANITARIOS SERVICIOS SANITARIOS SH 4 Estudiantes Espacio limpio, seguro y cómodo Cambio de vestuarios de los estudiantes Lockers, Sillones o sillas y cajones 8 12 1.6 20 ambos 96 192 192 - 4 Docentes, estudiantes, padres de familia y familiares Espacios limpios, correctamente iluminados y comodo Brindar un ambiente limpio para realizar necesidades higienica y de aceo número de Cubículos con inodoros proporcionales a la cantidad de pisos y m2 del terreno; urinales; lavatorios 8 12 1.6 5-7 personas por baño 96 TOTAL AFORO -200 AREA SUB TOTAL (AST) 7464 AST (CIRCULACION MUROS) 10% 746.40 AREA TOTAL CONSTRUIDA 8,210.40

TIPO REQUERIMIENTOS - FACTORES CONDICIONANTES DE ANALISIS DIMENSIONES ZONA SECTOR AMBIENTES TIPO UNIDAD ESPACIO FUNCIONAL SUB UNIDAD ESPACIOFUNCIONAL (SOLO SI HAY) CANTIDAD (UND) USUARIO NECESIDADES ACTIVIDADES MOBILIARIO Y EQUIPAMIENTO CÁLCULO DE ÁREAS MODULADO PARA CADA UNIDAD ESPACIO-FUNCIONAL INDICE DE OCUPACION (NORMA) AFORO AREA - M2 LARGO ANCHO M2/PERS N DE USUARIOS PARCIAL NETA SUBTOTAL EDUCATIVA PEDAGÓDICOS BÁSICOS APRENDIZAJE DIRIGIDO A AULA TEÓRICA5 ESTUDIANTES Y DOCENTES ESPACIO SEGURO,LIMPIO Y CÓMODO IMPARTIR CLASES,SOCIALIZAR CARPETAS.,PIZARRA,PROYECTOR,ESCRITORIO 8 1.57 35 - 40 64 320 512 AUTO APRENDIZAJE B BIBLIOTECA 1 ESPACIO SILENCIOSO,DINÁMICO Y CONFORT BUSCAR INFORMACIÓN,ESTUDIO Y RELAJO
52 128 192
DE COMPUTO 1 USO DE TECNOLOGÍAS,ADQUISICIÓN DE INFORMACIÓN BUSCAR INFORMACIÓN ONLINE
RELAJO
64
ESTANTERIA,SILLAS,MESAS,ESCRITORIO 8 16 2.00
AULA
,ESTUDIO
PC,MESAS,SILLAS,PROYECTOR,ROUTER,ESCRITORIO 8 2.50 22
TALLERES C
DE REPOSTERÍA1
DE BAR COCTELERÍA 1
1408
DE INSTALACIONES ELÉCTRICAS
AMPLIO CON
16 16 3.00 256
ESPACIO
ILUMINACION NATURAL VENTILACION CRUZADA REALIZACION DE DIFERENTES TAREAS, RELACIONADAS A LA ENERGIA ELECTRICA, SU TRANSFORMACION, APROVECHAMIENTO, MANEJO Y CUIDADOS MESA DE TRABAJO, BANCAS PERSONALES, ESCRITORIO DE DOCENTE,SILLA DE DOCENTE, ARMARIO PIZARRA
DE INSTALACIONES SANITARIAS Espacio amplio, flexible, bien implementado con herramientas y equipamientos básicos para las prácticas pedagógicas. ATENDER, UTILIZAR HERRAMIENTAS PARA REPAR VEHICULOS Y OTRAS FALLAS QUE PRESENTEN, DESABORRLLADURA MESAS DE
256
TRABAJO,TABURETES, ESCRITORIO MEA, SILLA, ESTANTES, LAVADERO DE DOS POZAS, PIZARRA 16 16 3.50
DE COCINA
CON ALTURA ADECUADA
UTILIZACION DEL
CORRECTAMENTE,
NATURAL O ARTIFICAL
BANCAS TABURETES,COMPUTADORA DEL DOCENTE, SILLA, ARMARIO, PIZARRA 16 8.00 128
PARA
TALLER
ILUMINACION
UTILIZACION DE EQUIPOS Y HERRAMIENTAS DE BANCO Y AJUSTE, USAR PLANOS DE TALLER PARA LA FABRICACION DE PIEZAS MECANICAS MES DE TRABAJO,
DE COSMETOLOGIA
AMPLIO BUENA VENTILACION,CONEXIONES ELECTRICAS ADECUADAS,REGULAR LA TEMPRATURA USO DE HERRAMIENTAS DE FUEGO,REPARACIÓN DE CIRCUITOS ELECTRICOS HERRAMIENTAS DE ELETRICIDAD,GUANTES
ESPACIO
DE CORTE CONFECCIÓN
DE FARMACIA
DE CONTROL DE CALIDAD
DEPORTIVAS Y JARDIN INTERNO
SALA DE USO MÚLTIPLE (SUM) ESTUDIANTES, DOCENTES, PERSONAL ADMINISTRATIVO, ILUMINACION NATURAL, VENTILACION, ESPACIO DE DESCANSO, LLEVAR A CABO ENSAYOS PARA DETERMINAR QUE FARMACOS, CARNE ANIMAL, OTROS PRODUCTOS SEAN APTOS PARA CONSUMO HUMANO REFRIGERADORA, MESAS, SILLAS, ESCRITORIOS 8 2.00 32 RECREACIÓN Y DEPORTE E CAMPO AGRÍCOLA GANADERO LOSA MULTIDEPORTIVA 1 Estudiantes, dcentes, personal administrativo, civiles ILUMINACION NATURAL, VENTILACION, ESPACIO DE DESCANSO, RECREACION, DESCANSO Y JUEGOS, DESARROLAR HABILIDADES DEPORTIVAS, COMPETENCIAS DEPORTIVAS CANCHA DEPORTIVA, ARCO DE FUTBOL, BASQUET, MALLA DE VOLEY, GRADERIA 16 32 7.00 30 512 512 512 JARDIN INTERNO NIÑOS, JOVENES, ADULTOS, ADULTOS MAYORES ILUMINACION NATURAL O ARTIFICIAL, ESPACIOS COMODOS OBSERVAR LAS ACTIVIDADES DEPORTIVAS QUE SE ESTAN RELAIZANDO BUTACAS (GRADERIA CON ASIENTO EN DEPORTES),ZONA QUIOSCO Y SS.HH 0 0.5 1-200 SOCIALIZACIÓN D MODULO ADMINISTRATIVO DEPÓSITO 1 ESTUDIANTES,DOCENTES PERSONAL DE SERVICIO. ESPACIO FLEXIBLE, CÓMODO, AMPLIO ENSEÑANZA, REALIZAR CAPACITACIONES, SEMINARIOS DIFERENTES TIPOS EXPOSICIONES SILLAS APILABLES, MESAS, PROYECTOR, ECRAN 16 16 1.00 70 256 256 256 SIMULACIÓN TÉCNICA PRODUCTIVA G AMBIENTE DE CRIANZA DE ANIMALES 1 ESTUDIANTES, DOCENTES, PERSONAL DE SERVICIO Y PERSONAL CAPACITADO ÁREA VERDE CON FIN EDUCATIVO, AMPLIA, ORGANIZADA, LIMPIA CORRECTAMENTE IMPLEMENTADA CAPACITACIONES
DOCENTES, PERSONAL ADMINISTRATIVO, ILUMINACION NATURAL, VENTILACION, ESPACIO DE DESCANSO, TRABAJAR CON FARMACOS, PASTILLAS Y ENTENDER SUS COMPOSICIONES DE MANERA GRÁFICA REFRIGERADORA, PUNTO CLAVE, HORMO ESTERILIZADOR, INCUBADORA 8 2.00 64
Y ENSEÑANZA EN EL ÁMBITO GANADERO AGRÍCOLA IMPLEMENTOS
AMBIENTES COMPLEMENTARIOS BIENESTAR
ADMINISTRATIVA
GESTIÓN
Y PEDAGÓGICA 9
LACTARIO ÁREA DE ESTAR
SENTARSE, DESCANSAR, ESPERAR SOFAS, MESA DE CENTRO, 8 15 32 MÓDULO DOCENTE TÓPICO ÁREA DE KITCHENETTE
SALA DE REUNIONES SENTARSE, DIALOGAR, EXPONER MESA, CREDENZA, SILLA 4 20 16 DEPÓSITO DE MATERIALES DE OFICINA ESPACIOS CON ILUMINCACIÓN ARTIFICIAL GUARDAR MATERIALS DE OFICINA, SACAR ANAQUELES METÁLICOS 2 4 ARCHIVO GUARDAR Y SACAR ARCHIVOS ANAQUELES EMTÁLICOS, ARCHIVADORES 2 5 MÓDULO DE ACOMPAÑAMIENTO Y CONSEJERÍA ÁREA DE TRABAJO 1 DOCENTES ESPAIOS VENTILADOS, BIENESTAR ESTUDIANTIL
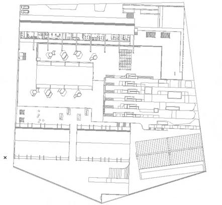
PLANOS PLANTA NIVEL - 01 UNIVERSIDAD ANDINA DEL CUSCO UNIVERSIDAD ANDINA DEL CUSCO ESCUELA PROFESIONAL DE ESCUELA PROFESIONAL DE ARQUITECTURA ARQUITECTURA TALLER DE DISEÑO iii TALLER DE DISEÑO iii cetpro CENTRO DE PRODUCCION CENTRO DE TECNICO PRODUCTIVO docentes docentes RONNY VIZCARRA SILVESTRE LUIS ANGEL DELGADO INTEGRANTES HILARES ZEVALLOS PAUL FERNANDO TAPIA QUISPE ANGIE MILENIA MILENIA TELLO HERMOZA DHEVY SURYA TELLO HERMOZA DHEVY SURYA FORMATO A0 L-04 L-04 8.60 20.60 4.60 8.60 2.60 36.60 8.60 88.20 ESTACIONAMIENTO ALMAC BASURA CUARTO DE MAQUINAS talleres CUARTO DE MAQUINAS gas MAQUINAS elect TALLER AUTOMOTRIZ PRÁCTICA TALLER PRÁCTICA TALLER AUTOMOTRIZ PRÁCTICA P - 00 12.60 8.60 16.60 8.60 16.60 8.60 4.60 12.60 12.60 8.60 16.60 8.60 16.60 8.60 4.60 12.60 88.80 88.80 P 00 C C D D F F H H 1 4 8 D D ESC: 1 150 1 2 1
PLANOS PLANTA NIVEL - 02 UNIVERSIDAD ANDINA DEL CUSCO UNIVERSIDAD ANDINA DEL CUSCO ESCUELA PROFESIONAL DE ESCUELA PROFESIONAL DE ARQUITECTURA TALLER DE DISEÑO iii TALLER DE DISEÑO iii cetpro CENTRO DE PRODUCCION CENTRO DE PRODUCCION TECNICO PRODUCTIVO docentes docentes RONNY VIZCARRA SILVESTRE LUIS ANGEL DELGADO INTEGRANTES INTEGRANTES HILARES ZEVALLOS PAUL FERNANDO TAPIA QUISPE ANGIE MILENIA TAPIA QUISPE ANGIE MILENIA TELLO HERMOZA DHEVY SURYA TELLO HERMOZA DHEVY SURYA FORMATO A0 L-05 L-05 8.60 36.60 2.60 8.60 4.60 20.60 8.60 88.20 ESPACIO SOSIEGO VESTIDORES ESTUDIANTES AREA ADMINISTRATIVA BIBLIOTECA TÓPICO LACTARIO COMPUTO Dep TALLER AUTOMOTRIZ TEORÍA TALLER TEORÍA Salón MODULO DOCENTE Depósito Archivador Recepción mujeres TALLER AUTOMOTRIZ TEORÍA P 60 60 P T 60 P T 00 00 P T 00 P T 60 C C D D F F H H 1 4 8 12.60 8.60 16.60 8.60 16.60 8.60 4.60 12.60 12.60 8.60 16.60 8.60 16.60 8.60 4.60 12.60 88.80 88.80 D D 1 2 1 1 ESC: 1 150 1 2 1
PLANOS PLANTA NIVEL - 03 UNIVERSIDAD ANDINA DEL CUSCO UNIVERSIDAD ANDINA DEL CUSCO ESCUELA PROFESIONAL DE ESCUELA PROFESIONAL DE ARQUITECTURA TALLER DE DISEÑO iii TALLER DE DISEÑO iii cetpro CENTRO DE PRODUCCION CENTRO DE PRODUCCION TECNICO PRODUCTIVO docentes docentes RONNY VIZCARRA SILVESTRE LUIS ANGEL DELGADO INTEGRANTES INTEGRANTES HILARES ZEVALLOS PAUL FERNANDO TAPIA QUISPE ANGIE MILENIA TAPIA QUISPE ANGIE MILENIA TELLO HERMOZA DHEVY SURYA TELLO HERMOZA DHEVY SURYA FORMATO A0 L-06 L-06 8.60 36.60 2.60 8.60 4.60 20.60 8.60 88.20 TEÓRICA TEÓRICA AULA TEÓRICA TEÓRICA TALLER DE TALLER DE BAR COCTELERI TALLER DE COCINA TALLER DE COSMETOLOGIA LABORATORIO MULTIFUNCIONAL LOCUCION RADIAL TALLER DE CORTE CONFECCION LABORATORIO FARMACIA CONTROL DE CALIDAD mujeres AULA TEÓRICA 30 30 30 C C D D F F H H 1 4 8 12.60 8.60 16.60 8.60 16.60 8.60 4.60 12.60 12.60 8.60 16.60 8.60 16.60 8.60 4.60 12.60 88.80 88.80 D D GSPublisherVersion 0.94.100.100 ESC: 1 150 1 2 1
PLANOS PLANTA NIVEL - 04 UNIVERSIDAD ANDINA DEL CUSCO UNIVERSIDAD ANDINA DEL CUSCO ESCUELA PROFESIONAL DE ESCUELA PROFESIONAL DE ARQUITECTURA ARQUITECTURA TALLER DE DISEÑO iii TALLER DE DISEÑO iii cetpro CENTRO DE PRODUCCION CENTRO DE PRODUCCION TECNICO PRODUCTIVO docentes docentes RONNY VIZCARRA SILVESTRE LUIS ANGEL DELGADO INTEGRANTES INTEGRANTES HILARES ZEVALLOS PAUL FERNANDO TAPIA QUISPE ANGIE MILENIA MILENIA TELLO HERMOZA DHEVY SURYA TELLO HERMOZA DHEVY SURYA FORMATO A0 L-07 L-07 TALLER INSTALACIONES TALLER CIRCUITOS ELECTRICOS ELECTRONICOS M CAFETERIA ESPACIO SOSIEGO P T 30 P T 9 30 P 30 C C D D F F H H 8.60 16.60 8.60 16.60 8.60 4.60 12.60 12.60 8.60 16.60 8.60 16.60 8.60 4.60 12.60 88.80 88.80 D D ESC: 1 150 1 2 1
PLANOS PLANTA NIVEL - 05 UNIVERSIDAD ANDINA DEL CUSCO UNIVERSIDAD ESCUELA PROFESIONAL DE ESCUELA PROFESIONAL DE ARQUITECTURA TALLER DE DISEÑO iii TALLER DE DISEÑO iii cetpro CENTRO DE PRODUCCION CENTRO DE PRODUCCION TECNICO PRODUCTIVO TECNICO PRODUCTIVO docentes docentes RONNY VIZCARRA SILVESTRE LUIS ANGEL DELGADO INTEGRANTES INTEGRANTES HILARES ZEVALLOS PAUL FERNANDO HILARES ZEVALLOS PAUL FERNANDO TAPIA QUISPE ANGIE MILENIA TAPIA QUISPE ANGIE MILENIA TELLO HERMOZA DHEVY SURYA TELLO HERMOZA DHEVY SURYA FORMATO A0 L-08 L-08 P 12 30 12 30 D D F F H H 8.60 16.60 8.60 16.60 8.60 4.60 12.60 8.60 16.60 8.60 16.60 8.60 4.60 12.60 88.80 88.80 D D ESC: 1 150 1 2 1
PLANOS PLANTA NIVEL - 06 UNIVERSIDAD ANDINA DEL CUSCO UNIVERSIDAD ANDINA DEL CUSCO ESCUELA PROFESIONAL DE ESCUELA PROFESIONAL DE ARQUITECTURA ARQUITECTURA TALLER DE DISEÑO iii TALLER DE DISEÑO iii cetpro CENTRO DE PRODUCCION CENTRO DE TECNICO PRODUCTIVO docentes docentes RONNY VIZCARRA SILVESTRE LUIS ANGEL DELGADO INTEGRANTES HILARES ZEVALLOS PAUL FERNANDO TAPIA QUISPE ANGIE MILENIA TAPIA QUISPE ANGIE MILENIA TELLO HERMOZA DHEVY SURYA TELLO HERMOZA DHEVY SURYA FORMATO A0 L-09 L-09 TANQUE DE RESERVA MÓDULO DE CRIANZA MÓDULO DE CULTIVO Proyección cubierta losa Deportiva MÓDULO GANADERO MÓDULO DE CULTIVO 15 30 Proyección de bertura para ventilación D D F F H H 8.60 16.60 8.60 16.60 8.60 4.60 12.60 8.60 16.60 8.60 16.60 8.60 4.60 12.60 88.80 88.80 15 30 D D GSPublisherVersion 0.94.100.100 ESC: 1 150 1 1
PLANO DE TECHOS UNIVERSIDAD ANDINA DEL CUSCO UNIVERSIDAD ESCUELA PROFESIONAL DE ESCUELA PROFESIONAL DE ARQUITECTURA ARQUITECTURA TALLER DE DISEÑO iii TALLER DE DISEÑO iii cetpro CENTRO DE PRODUCCION CENTRO DE TECNICO PRODUCTIVO TECNICO PRODUCTIVO docentes docentes RONNY VIZCARRA SILVESTRE LUIS ANGEL DELGADO INTEGRANTES
HILARES ZEVALLOS PAUL FERNANDO TAPIA QUISPE ANGIE MILENIA TAPIA QUISPE ANGIE MILENIA TELLO HERMOZA DHEVY SURYA TELLO HERMOZA DHEVY SURYA FORMATO A0 L-10 L-10 30 Pendiente 18 20 20 30 Pendiente 18 80 16 30 T 16 80 endiente endiente 80 00 14 50 Pendiente 30 30 Pendiente 18 20 80 Pendiente 18 20 80 30 30 12 30 12 30 00 Abertura inclinada para ventilación Cubierta de concreto losa cubierta concreto armado Estructura de concreto Estructura de concreto Cubierta de concreto Cubierta de concreto Abertura inclinada para ventilación Abertura inclinada para ventilación losa cubierta concreto armado cubierta de concreto armado losa cubierta de concreto armado de concreto armado Cubierta de escaleras en aluminio Estructura de concreto C C D D F F H H 1 1 4 4 8 8 12.60 8.60 16.60 8.60 16.60 8.60 4.60 12.60 88.80 12.60 8.60 16.60 8.60 16.60 8.60 4.60 12.60 88.80 6.60 38.60 2.60 8.60 4.60 20.60 8.60 88.20 6.60 36.60 2.60 8.60 4.60 20.60 8.60 88.20 D D 17 80 20 00 Paneles Translucidos de policarbonato cables de acero tipo tensores Estructura de concreto Cubierta de chapa metálica Canaleta de lluvia de acero inox ALZADO ESTE ALZADO OESTE ALZADO ALZADO SUR ESC: 1 200
INTEGRANTES
PERSPECTIVA 1 PERSPECTIVA 2
H H G F D 4.75 3.60 5.72 5.19 NPT. +9.30 NTT. +17.22 NTT. +20.66 NPT.+ 15.30 NPT.+ 19.00 NTT.+ 20.27 Perspectiva entanal Perspectiva uro Cortina T Salidad de servicio ESC:1/100 ÁREA ADMINISTRATIVA ÁREA ADMINISTRATIVA SERVICIOS HIGIENICOS VESTIDORES ESTUDIANTES CIRCULACION DINÁMICA AULA TEÓRICA AULA TEÓRICA AULA TEÓRICA TALLLER CIRCUITOS ELÉCTRICOS ELECTRÓNICOS AMBIENTE CRIANZA DE ANIMALES SERVICOS HIGIENICOS NPT. 0.00 NPT. +3.60 NPT. +6.30 NPT. +12.30 NTT. +14.51 CORTE BB' ESPACIO DE SOSIEGO ESTRUCTURA MODULAR DE CONCRETO ESPACIO COMPLEMENTARIO Estructura mixta de pórticos placas y vigas CORREDOR LATERAL TECHADO CIRCULACION DINAMICA B ESC 1 125 ESC:1/125 PERSPECTIVA 1 PERSPECTIVA 2
D F G 6.00 4.90 7.73 7.75 3.97 5.93 2.66 5.48 7.79 4.11 18.29 13.15 3.80 Perspectiva Perspectiva T Espacio de sociego Doble altura en talleres Ventilacion natural Muro cortina ALMACEN LACTARIO RAMPAS Y ESCALERAS TALLER COSMETOLOGIA RAMPAS Y ESCALERAS SS HH HOMBRES LABORATORIO MULTIFUNCIONAL LABORATORIO FARMACIA LABORATORIO CONTROL DE CALIDAD TALLER NEUMÁTICA HIDRÁULICA MÓDULO GANADERO 3.70 1.07 NPT 0.00 NPT. +3.60 NPT. +6.30 NPT. +9.30 NPT. +12.30 NTT. +14.51 NPT.+ 15.30 NPT.+ 19.00 NTT.+ 20.27 CORTE CC ESC:1/100 PISO ELEVADO
ELEMENTOS
Estructura mixta de pórticos placas vigas El módulo se encuentra elevado 60 cm del suelo ESTRUCTURA
Y
C C ESC 1 125 ESC:1/125 PERSPECTIVA 1 PERSPECTIVA 2
BASAMENTO DE ALBAÑILERÍA Y
ESTANDARIZADOS
MODULAR DE CONCRETO BASAMENTO DE ALBAÑILERÍA
ELEMENTOS ESTANDARIZADOS
ESTRUCTURA
ESTRUCTURA
ESPACIO COMUN 17 15 14 12 11 10 9 8 4 1 16 NPT. +6.30 NPT. +9.30 NPT. +15.30 NPT. +19.00 NTT. +20.66 NPT. +12.30 NPT. +15.50 NTT. +20.05 2.80 0.20 6.00 3.70 3.70 0.50 0.55 0.60 3.00 3.30 3.00 3.00 3.00 0.20 2.35 2.20 Perspectiva Perspectiva 1 Techo ligero soportado por tensores Doble altura en talleres Doble altura en talleres Muro cortina Estructura de cubiertas ESC:1/100 CORTE DD D D ESC 1 125 ESC:1/125 PERSPECTIVA 1 PERSPECTIVA 2
DE CONCRETO COBERTURA LOSA DEPORTIVA
MODULAR DE CONCRETO

Nombre del CETPRO en letras 3d placas de madera

ISOMETRIA DETALLE AXONOMETRICO

ESC:1/500 ESC 1 200

Estructura de la cubierta ligera soportada por tensores

ISOMETRIA DETALLE AXONOMETRICO

ESC:1/500 ESC 1 200

Circulacion dinamina con rampas y ecaleras de altura 3m

ISOMETRIA DETALLE AXONOMETRICO

ESC:1/500 ESC 1 200

ALZADO OESTE

0.00 3.00 6.30 9.30 14.51 15.30 18.30 20.66 11.29 5.60 0.40 1.92 ESC 1/100 Muro perimetral Espacio de sociego Terraza
ESC:1/500 ESC 1 200 ISOMETRIA DETALLE AXONOMETRICO Celosias
de madera para control solar

DESCRIPCIÓN

HOJA DE CRISTAL CON 8MM DE, CON MARCO DE ALUMINIO,CERRADURADEACEROINOX,DESLIZABLE

AMBIENTES

PUERTAS VENTANAS

DESCRIPCIÓN

HOJACONTRAPLACADAENACEROINOX,DERELLENO SÓLIDO, 3 BISAGRAS, TOPE DE PUERTA COLOR TURQUESAHUMOMATTE

DESCRIPCIÓN

REJAHORIZONTALDEMADERADURA

DESCRIPCIÓN

VENTANA SIMÉTRICA CON HOJA INFERIOR FIJA, Y HOJA SUPERIOR PROYECTANTE SUPERARIOR, CON MARCOENACEROINOX

AMBIENTES

DEPÓSITOS ARCHIVADOR ALMACÉN CUARTO DE LIMPIEZA CUARTO DE MAQUINAS

BILIOTECA SALA DECOMPUTO AULAS TEÓRICAS LABORATORIOS

HOJACONTRAPLACADADEACEROINOX,3BISAGRAS, CERRADURA DE ACERO, TOPE DE PUERTA COLOR RAL

ACOMPAÑAMIENTO Y CONSEJERIA TÓPICO LACTARIO SALA DE REUNIÓN

HOJA CONTRAPLACADA EN MADERA, DE RELLENO SÓLIDO, 3 BISAGRAS, TOPE DE PUERTA COLOR NEGROMATE

HOJA CONTRAPLACADA, ENCHAPADA EN FÓRNICA, 3 BISAGRAS,CERADURADEACEROINOX,COLORRAL

DESCRIPCIÓN AMBIENTES DESCRIPCIÓN AMBIENTES DESCRIPCIÓN AMBIENTES DESCRIPCIÓN

HOJA CONTRAPLACADA EN MADERA, ENCHAPADA EN FÓRNICA, 3 BISAGRAS, CERADURA DE ACERO INOX, COLORGRISMATE

AMBIENTES

PUERTA PRINCIPAL DE ÁREA ADMINISTRATIVA SUM BILIOTECA SALA DECOMPUTO AULAS TEÓRICAS DEPÓSITOS ARCHIVADOR ALMACÉN CUARTO DE LIMPIEZA CUARTO DE MAQUINAS S.S HH VESTIDORES

DESCRIPCIÓN

HOJA DE CRISTAL CON 8MM DE, CON MARCO DE ALUMINIO,CERRADURADEACEROINOX,DESLIZABLE

AMBIENTES

CAFETERÍA

UNIVERSIDAD ANDINA DEL CUSCO ESCUELA PROFESIONAL DE ESCUELA PROFESIONAL DE ARQUITECTURA ARQUITECTURA

2 HOJAS, CONTRAPLACADA DE ACERO INOX, 3 BISAGRAS,CERRADURADEACERO,TOPEDEPUERTA COLORRAL

HOJA CONTRAPLACADA EN MADERA, DE RELLENO SÓLIDO, 3 BISAGRAS, TOPE DE PUERTA COLOR AZUL HUMOMATTE

HOJA CONTRAPLACADA EN MADERA, DE RELLENO SÓLIDO, 3 BISAGRAS, TOPE DE PUERTA COLOR LADARILLOOSCUROMATTE

DESCRIPCIÓN AMBIENTES DESCRIPCIÓN AMBIENTES DESCRIPCIÓN AMBIENTES DESCRIPCIÓN

2 HOJAS, CONTRAPLACADA DE ACERO INOX, 3 BISAGRAS,CERRADURADEACERO,TOPEDEPUERTA COLORBLANCOSATINADO

DESCRIPCIÓN

2 HOJAS, CONTRAPLACADA DE ACERO INOX, 3 BISAGRAS,CERRADURADEACERO,RELLENOSOLIDO DEACEROINOX

VENTANFIJA+VENTANDESLIZABLE

DEPÓSITOS ARCHIVADOR ALMACÉN CUARTO DE LIMPIEZA CUARTO DE MAQUINAS

VENTANAPROYECTANTESUPERIOR

S.S HH VESTIDORES

VENTANA DE UNA SOLA HOJA PROYECTANTE SUPERIORCONMARCODEMADERADURA

ACOMPAÑAMIENTO Y CONSEJERIA TÓPICO LACTARIO SALA DE REUNIÓN

DESCRIPCIÓN AMBIENTES DESCRIPCIÓN AMBIENTES DESCRIPCIÓN AMBIENTES DESCRIPCIÓN

VENTANA COMPUESTA POR DOS HOJAS, HOJA FIJA INFERIOIR TIPO ESPEJO , HOJA PROYECTATNTE SUPERIORCONMARCODE ACEROINXO

TALLERES PESADOS SUM

DESCRIPCIÓN

VENTANA DE UNA HOJA FIJA + HOJA PROYECTANTE SUPERIORCONMARCODEMADERADURA

TALLERES PESADOS SUM

VENTANACORREDERACONMARCOENACEROINOX

BILIOTECA SALA DECOMPUTO AULAS TEÓRICAS LABORATORIOS

VENTANAS INTERCALADAS DESLIZABLES EN MAMPARAS

DESCRIPCIÓN AMBIENTES DESCRIPCIÓN AMBIENTES

CAFETERÍA DESCRIPCIÓN

VENTANASENREJASINTERCALADAS ENMAMPARAS

AMBIENTES

TALLERES DE SIMULACIÓN GANADERA Y CULTIVO

INTEGRANTES INTEGRANTES HILARES ZEVALLOS PAUL FERNANDO ZEVALLOS PAUL FERNANDO TAPIA QUISPE ANGIE MILENIA TELLO HERMOZA DHEVY SURYA TELLO

TALLER DE DISEÑO iii TALLER DE DISEÑO iii cetpro
PRODUCTIVO
CENTRO DE PRODUCCION CENTRO DE PRODUCCION TECNICO
docentes docentes RONNY VIZCARRA SILVESTRE LUIS ANGEL DELGADO
FORMATO A0 L-20 L-20
ACABADOS
LABORATORIOS TALLERES PESADOS, ELÉCTRICAS Y SANITARIAS TALLERES PESADOS AUTOMOTRIZ TALLERES LIVIANOS TALLERES DE SIMULACIÓN DE CULTIVO TALLERES DE SIMULACIÓN GANADERA

DESCRIPCIÓN

SUPERFICIE HORIZONTAL SUPERFICIE VERTICAL

DESCRIPCIÓN

SUPERFICIECONLAMINADOSDECAUCHONEGRO

AMBIENTES

RECORRIDO GRADERIAS

DESCRIPCIÓN AMBIENTES

TALLER DE HOTELERIA

TALLER DE LOCUCIÓN RADIAL

TALLER DE RECEPCIÓN HOTELERA TALLER DE DIBUJO TÉCNICO

SUM BILIOTECA SALA DECOMPUTO AULAS TEÓRICAS

DESCRIPCIÓN

PAREDDEPIEDRASLISASENGRISOSCURO

TALLERES DE SIMULACIÓN CULTIVO TALLERES DE SIMULACIÓN GANADERA

DESCRIPCIÓN AMBIENTES

TALLERES PESADOS DEPÓSITOS ARCHIVADOR ALMACÉN CUARTO DE LIMPIEZA CUARTO DE MAQUINAS

S.S HH VESTIDORES LABORATORIOS

DESCRIPCIÓN AMBIENTES DESCRIPCIÓN AMBIENTES DESCRIPCIÓN

AMBIENTES

TALLER DE COSMETOLOGÍA

TALLER DE COCINA TALLER DE REPOSTERIA TALLER DE BAR Y COCTELERIA

DESCRIPCIÓN

TALLERES DE SIMULACIÓN GANADERA

UNIVERSIDAD ANDINA DEL CUSCO ESCUELA PROFESIONAL DE ESCUELA PROFESIONAL DE ARQUITECTURA

DESCRIPCIÓN AMBIENTES

RECORIDO GRADERIAS RECORIDO PASILLOS MODULO DE DOCENTE MODULOS DE OFICINA DE TRABAJO ACOMPAÑAMIENTO Y CONSEJERIA TÓPICO LACTARIO SALA DE REUNIÓN RECORIDO GENERAL EXTERIOR

MADERADURAMACHIHEMBRADO,TIPOTECA SUPERFICIELAMINADAENCOLORNOGAL SUPERFICIEDECEMENTOPULIDOFINO PISODEBALDOSASDECERÁMICABLANCOMATTE PISOFORESTMADERAGRISOSCUROLISA

MUROS EXTERIORES: TALLERES DE SIMULACIÓN GANADERA Y CULTIVO

DESCRIPCIÓN AMBIENTES

MUROS INTERIORES: S.S HH VESTIDORES

PINTADA

Y

DESCRIPCIÓN AMBIENTES

MUROS INTERIORES: MODULO DE DOCENTE MODULOS DE OFICINA DE TRABAJO ACOMPAÑAMIENTO Y CONSEJERIA TÓPICO LACTARIO SALA DE REUNIÓN SUM BILIOTECA SALA DECOMPUTO AULAS TEÓRICAS

DESCRIPCIÓN DESCRIPCIÓN DESCRIPCIÓN

FIJAS A SUPERFICIES VERTICALES CON VIDRIO PERSONALIZADO

AMBIENTES

ELEMENTO EXTERIORES: TALLERES DE SIMULACIÓN GANADERA Y CULTIVO

DESCRIPCIÓN

MAMPARAS

PERSONALIZADO

AMBIENTES

MUROS INTERIORES: TALLERES LIVIANOS CAFETERÍA LABORATIOS

AMBIENTSE MUROS EXTERIORES TODOS LOS AMBIENTES HACIA CORRDOR, PATIOS, Y EXTRIOIR

PAREDACABADOEN CEMENTOPULIDO

MUROS INTERIORES: TALLERES PESADOS DEPÓSITOS ARCHIVADOR ALMACÉN CUARTO DE LIMPIEZA CUARTO DE MAQUINAS

INTEGRANTES INTEGRANTES

HILARES ZEVALLOS PAUL FERNANDO HILARES ZEVALLOS PAUL FERNANDO

TAPIA QUISPE ANGIE MILENIA TAPIA QUISPE ANGIE MILENIA

TELLO HERMOZA DHEVY SURYA TELLO

TALLER DE DISEÑO iii TALLER DE DISEÑO iii cetpro
PRODUCTIVO
CENTRO DE PRODUCCION CENTRO DE PRODUCCION TECNICO
TECNICO PRODUCTIVO docentes docentes RONNY VIZCARRA SILVESTRE LUIS ANGEL DELGADO
FORMATO A0 L-21 L-21
ACABADOS
ELEMENTO EXTERIORES: TALLERES DE SIMULACIÓN GANADERA Y CULTIVO SUPERFICIEDEHORMIGÓNFRATASADO SUPERFICIE DE LOSAS DE PIEDRA RECTANGULARES, LISAS
CON ESMALTE SINTETICOBLANCOMATTE
PARED
TARRAJEADA
ACABADO EN ESTUCO VENECIANO MICROCEMENTOCALROGRIS
PARED
MAMPARAS
PARED ACABADO EN ESTUCO VENECIANO MICROCEMENTO OSCUROGRIS
CON VIDRIO
FIJAS A SUPERFICIES VERTICALES
ESTRUCTURA TECHOS E.TECHO01 E.TECHO02 E.TECHO03 PERFIL ISONOMETRIA PERFIL PERFIL ISONOMETRIA ISONOMETRIA CONCRETO ARMADO MADERA PAJA MADERA PAJA UNIVERSIDAD ANDINA DEL CUSCO ESCUELA PROFESIONAL DE ESCUELA PROFESIONAL DE ARQUITECTURA TALLER DE DISEÑO iii TALLER DE DISEÑO iii cetpro CENTRO DE PRODUCCION CENTRO DE PRODUCCION TECNICO PRODUCTIVO TECNICO PRODUCTIVO docentes docentes RONNY VIZCARRA SILVESTRE LUIS ANGEL DELGADO INTEGRANTES INTEGRANTES HILARES ZEVALLOS PAUL FERNANDO HILARES ZEVALLOS PAUL FERNANDO TAPIA QUISPE ANGIE MILENIA TAPIA QUISPE ANGIE MILENIA TELLO HERMOZA DHEVY SURYA TELLO FORMATO A0 L-23 L-23 CORTE CORTE CORTE
RENDERS UNIVERSIDAD ANDINA DEL CUSCO ESCUELA PROFESIONAL DE ESCUELA PROFESIONAL DE ARQUITECTURA TALLER DE DISEÑO iii TALLER DE DISEÑO iii cetpro CENTRO DE PRODUCCION CENTRO DE PRODUCCION TECNICO PRODUCTIVO TECNICO PRODUCTIVO docentes docentes RONNY VIZCARRA SILVESTRE LUIS ANGEL DELGADO INTEGRANTES INTEGRANTES HILARES ZEVALLOS PAUL FERNANDO HILARES ZEVALLOS PAUL FERNANDO TAPIA QUISPE ANGIE MILENIA TAPIA QUISPE ANGIE MILENIA TELLO HERMOZA DHEVY SURYA TELLO FORMATO A0 r-01 r-01
RENDERS UNIVERSIDAD ANDINA DEL CUSCO ESCUELA PROFESIONAL DE ESCUELA PROFESIONAL DE ARQUITECTURA TALLER DE DISEÑO iii TALLER DE DISEÑO iii cetpro CENTRO DE PRODUCCION CENTRO DE PRODUCCION TECNICO PRODUCTIVO TECNICO PRODUCTIVO docentes docentes RONNY VIZCARRA SILVESTRE LUIS ANGEL DELGADO INTEGRANTES INTEGRANTES HILARES ZEVALLOS PAUL FERNANDO HILARES ZEVALLOS PAUL FERNANDO TAPIA QUISPE ANGIE MILENIA TAPIA QUISPE ANGIE MILENIA TELLO HERMOZA DHEVY SURYA TELLO FORMATO A0 r-02 r-02
RENDERS UNIVERSIDAD ANDINA DEL CUSCO ESCUELA PROFESIONAL DE ESCUELA PROFESIONAL DE ARQUITECTURA TALLER DE DISEÑO iii TALLER DE DISEÑO iii cetpro CENTRO DE PRODUCCION CENTRO DE PRODUCCION TECNICO PRODUCTIVO TECNICO PRODUCTIVO docentes docentes RONNY VIZCARRA SILVESTRE LUIS ANGEL DELGADO INTEGRANTES INTEGRANTES HILARES ZEVALLOS PAUL FERNANDO HILARES ZEVALLOS PAUL FERNANDO TAPIA QUISPE ANGIE MILENIA TAPIA QUISPE ANGIE MILENIA TELLO HERMOZA DHEVY SURYA TELLO FORMATO A0 r-03 r-03
RENDERS UNIVERSIDAD ANDINA DEL CUSCO ESCUELA PROFESIONAL DE ESCUELA PROFESIONAL DE ARQUITECTURA TALLER DE DISEÑO iii TALLER DE DISEÑO iii cetpro CENTRO DE PRODUCCION CENTRO DE PRODUCCION TECNICO PRODUCTIVO TECNICO PRODUCTIVO docentes docentes RONNY VIZCARRA SILVESTRE LUIS ANGEL DELGADO INTEGRANTES INTEGRANTES HILARES ZEVALLOS PAUL FERNANDO HILARES ZEVALLOS PAUL FERNANDO TAPIA QUISPE ANGIE MILENIA TAPIA QUISPE ANGIE MILENIA TELLO HERMOZA DHEVY SURYA TELLO FORMATO A0 r-04 r-04
RENDERS UNIVERSIDAD ANDINA DEL CUSCO ESCUELA PROFESIONAL DE ESCUELA PROFESIONAL DE ARQUITECTURA TALLER DE DISEÑO iii TALLER DE DISEÑO iii cetpro CENTRO DE PRODUCCION CENTRO DE PRODUCCION TECNICO PRODUCTIVO TECNICO PRODUCTIVO docentes docentes RONNY VIZCARRA SILVESTRE LUIS ANGEL DELGADO INTEGRANTES INTEGRANTES HILARES ZEVALLOS PAUL FERNANDO HILARES ZEVALLOS PAUL FERNANDO TAPIA QUISPE ANGIE MILENIA TAPIA QUISPE ANGIE MILENIA TELLO HERMOZA DHEVY SURYA TELLO FORMATO A0 r-05 r-05
RENDERS UNIVERSIDAD ANDINA DEL CUSCO ESCUELA PROFESIONAL DE ESCUELA PROFESIONAL DE ARQUITECTURA TALLER DE DISEÑO iii TALLER DE DISEÑO iii cetpro CENTRO DE PRODUCCION CENTRO DE PRODUCCION TECNICO PRODUCTIVO TECNICO PRODUCTIVO docentes docentes RONNY VIZCARRA SILVESTRE LUIS ANGEL DELGADO INTEGRANTES INTEGRANTES HILARES ZEVALLOS PAUL FERNANDO HILARES ZEVALLOS PAUL FERNANDO TAPIA QUISPE ANGIE MILENIA TAPIA QUISPE ANGIE MILENIA TELLO HERMOZA DHEVY SURYA TELLO FORMATO A0 r-06 r-06

Turn static files into dynamic content formats.

Create a flipbook