ARCHITECTURE AND DESIGN


Vellore Institute of Technology ( VIT - School of Planning and Architecture - VSPARC )
Bachelor of Architecture. B.Arch
![]()


Vellore Institute of Technology ( VIT - School of Planning and Architecture - VSPARC )
Bachelor of Architecture. B.Arch
July 2020 - May 2025
Vellore Institute of Technology ( VIT - School of Planning and Architecture - VSPARC )
Bachelor of Architecture (B.Arch)
Overall Grade: 8.42 (Till 9tth Semester)
June 2018 - May 2020 Narayana Junior College - Ayyappa Campus, Nallakunta, Vijayawada
Intermediate : MPC (Maths, Physics, Chemistry)
Overall Grade : 8.82
MS Office Word I Powerpoint
CAD/Render Autocad I Sketchup I Revit I Lumion I Enscape
Basic: Rhino I Twin Motion
Adobe CC Photoshop I InDesign I Illustrator
June 2023 - Dec 2023 FHD INDIA 8-3 Plot No: 15, Lane No 3, Srinagar Colony, LIC Colony, Yousufguda, Hyderabad, Telangana 500073
Alternate Realities: Mars Homes Edition 3 Honourable Mention : https://thecharette.org/alternaterealities-3-results/
Revit Training Certification USAM CAD SOFT INDIA PVT.LTD
Best Architectural Design Award ECO HUB Project is awarded as Best Architectural Design Award in VIT for Engineers Day
Telugu Mother Toungue
English B2+/C1
Hindi Medium Level
Punctuality and meeting deadlines are my greatest strengths, as I ensure all assigned work is completed on time. I excel in leading and assisting teams, managing multiple projects simultaneously, and drawing inspiration from my surroundings to create impactful designs, all while showcasing strong presentation and communication skills.
+91 9381767542

P.DHEERAJ KUMAR
dheerajkumarpogadadanda @gmail.com
https://www.linkedin.com/in/ dheerajkumar1905

dheerajkumar_pogadadanda
"I am an architecture student who believes that a building is always in the process of becoming; it can never be fully complete. As an architect, I strive to design buildings that are expressive and capable of communicating with people. My approach is rooted in concept-driven designs, and I focus on creating visually compelling projects by emphasizing strong visualization and technical detailing. Additionally, I excel in communication and teamwork, which further enhance my design process."
2024 I Manyam - ECO HUB
I Vizag Daspalla Towers - FHD - Internship work 2024 I Malarchi - Revitalisation of Poomantha Pond

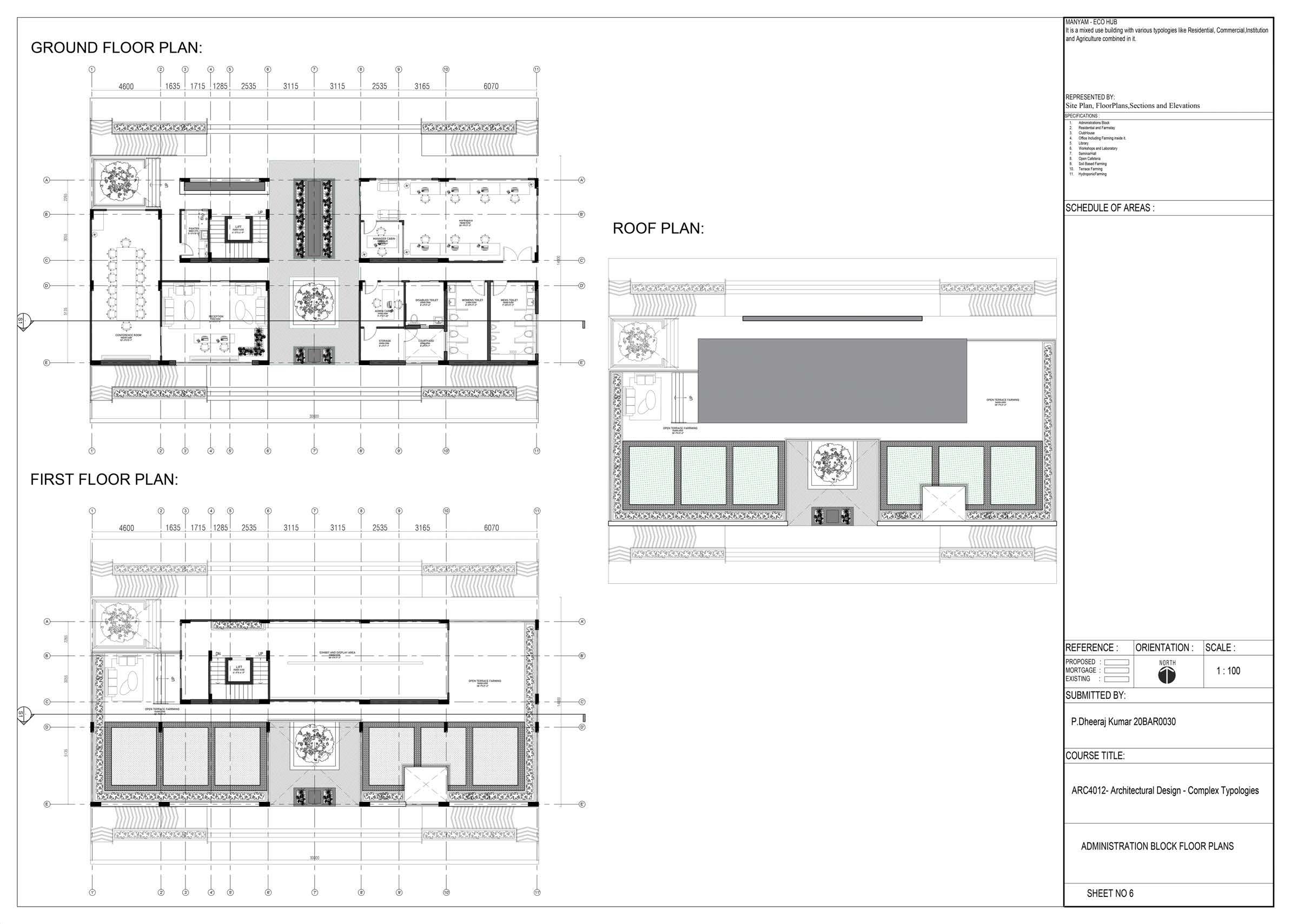
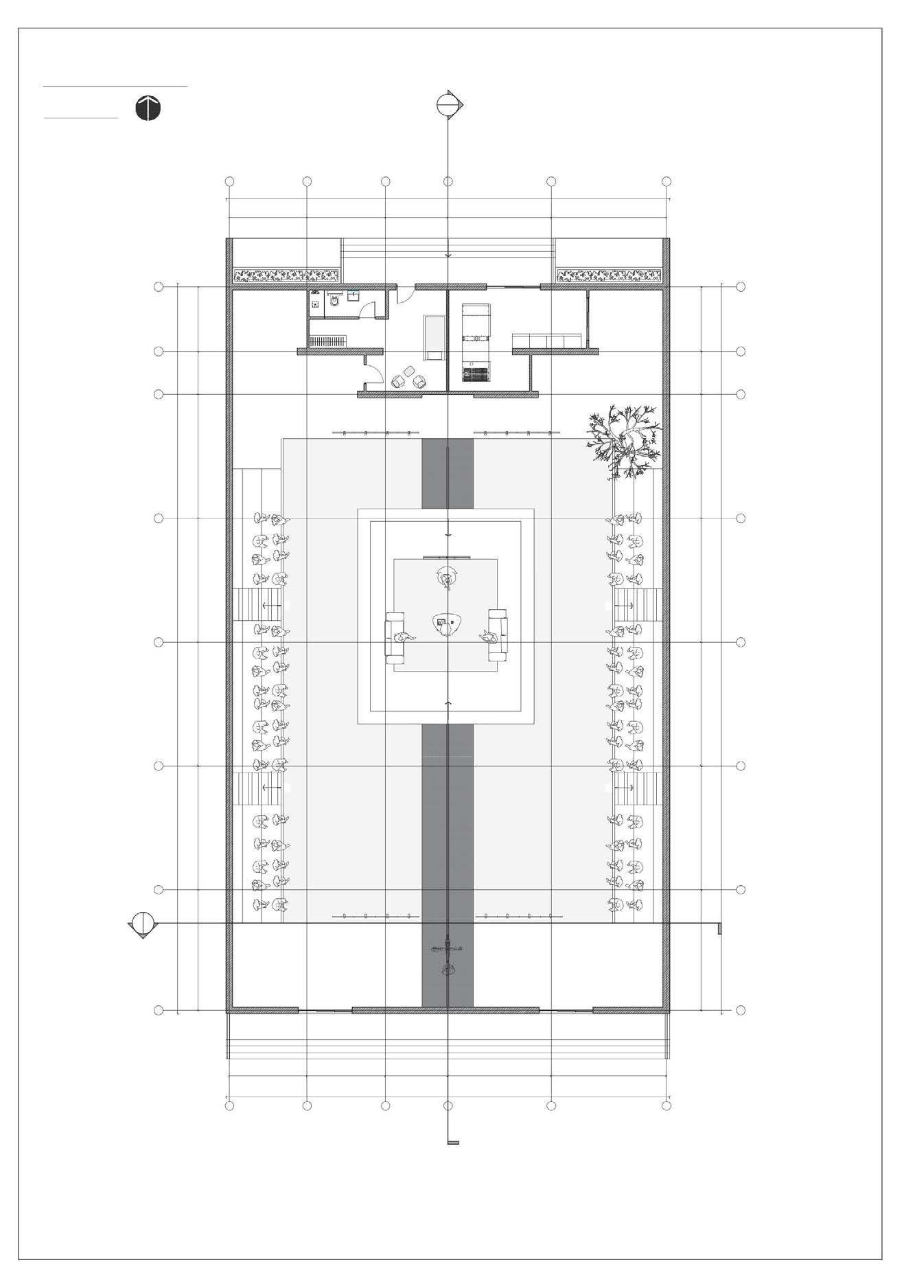
Project: Manyam - Eco Hub
Typology: Mixed Use ( Institution - CommercialResidential)
Eco Hubs: Sustainable Spaces for Present and Future Generations
In the modern era, the focus on integrating teaching, learning, and a deep connection to nature is essential. Eco Hubs should embody sustainability while addressing the needs of both current and future generations.
With the increasing percentage of barren land, converting these wastelands into thriving miniecosystems offers a transformative solution. These spaces can serve as educational and ecological platforms, fostering environmental awareness, biodiversity,andsustainablepractices.
By repurposing barren lands into Eco Hubs, we create vibrant areas that promote environmental restoration andresilience.Thesehubsnotonlybenefitthepresent butalsolayafoundationforagreener,healthierfuture forgenerationstocome.
I haveselecteda7-acrebarrenlandtodevelopanEco Hub,





Site: Bomma Samudhram, Gudipala Chittoor District, Andhra Pradesh, India. Area: 7 Acres
-designed as a multi-functional operational space. The Eco Hub integrates thoughtfully designed office spaces withagriculture,hydroponics,andsoil-basedfarming.It also includes homestay accommodations for visitors participating in workshops. This project features a harmonious blend of commercial, institutional, and residential facilities, creating a dynamic and sustainable environmentwithintheEcoHub.
Features of Eco Hub: Loop: Use it and give it back. This is the main motto of the Eco Hub. It emphasizes utilizing the surrounding environment for human needs, such as constructing buildings, while giving back through sustainable use of spaces.
The concept includes hydroponic farming integrated within office spaces, creating a synergy between greenery and productivity. Using the contour slope of the site for farming and Agriculture.

SiteArea:28327.9sq.m
AdministrationCentre:664sq.m
ReceptionArea-37sq.m
Workspace-61sq.m
ConferenceRoom-48sq.m
Pantry 5.8sq.m
ExhibitionSpace-100sq.m
Storage-6sq.m
Restrooms-30sq.m
AdminCabin-7.5sq.m
GuestStay:1452sq.m
4BedStay-1Room-30sq.m-8Rooms
2BedStay-22sq.m-8Rooms
ClubHouse-953sq.m
BanquetHall-280sq.m
Cafeteria-189sq.m
Kitchen-22sq.m
ConveinenceStore-90sq.m
Storage-12sq.m Gym 90sq.m

EcoTower:5595sq.m
ConferenceRoom-51sq.m
Pantry-9sq.m
Prototypehydronic-55.8sq.m
Office-71sq.m
ReceptionandLobby-70sq.m
ClientRoom-9sq.m
HydroponicFarm-417sq.m
SemiarHall-140sq.m
IndoorFarming-51sq.m
Laboratory-67sq.m
LectureHalls-144sq.m
DiscussionRoom-25sq.m
ThinkRoom-13.33sq.m
Balcony-6.5sq.m
Toilet-24sq.m
OpenCafeteria-93sq.m
Kitchen-18sq.m
RecreationalSpace 165sq.m
TerraceFarming-90sq.m























Incorporating farming and food production into commercial lifestyles fosters a self-sustaining mini-ecosystem for future generations. The Eco Hub aims to revolutionize modern office environments by seamlessly integrating agriculture, promoting sustainability, and redefining the relationship between work and nature.

INFUSING LIFE INTO SPACES

ABOUT:
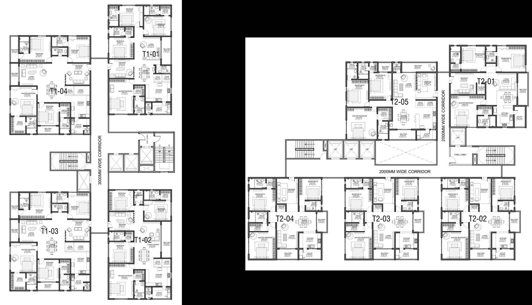
It is a project that involves a residential community in the form of towers, with a clubhouse that provides all the amenities.


Site: Jagadamba Centre, Visakhapatnam District, Andhra Pradesh, India.
Site Division:
1 . SITE A - Towers 1,2,3,4,5,6
2 . SITE D - Towers 7A,7B,7C
3 . CLUBHOUSE











SITE A ELEVATION AND SECTION
EC SUBMITTED DRAWINGS OLDER VERSION WITH 5 TOWERS



SITE D : 9M SETBACK No.of Units - 17
Unit Size 2000 sqft - 2500sq.ft
Facing Units - 9

3300 - 3700sq.ft 2700 - 3000sq.ft
- 2700sq.ft
- 2500sq.ft





SITE D ELEVATION AND SECTION
EC SUBMITTED DRAWINGS OLDER VERSION WITH 3 TOWERS








Site: Tiruvannamalai, Tamilnadu , India
Landmark: Arunachaleswar Temple Area: 8.505 Acres
Encroached Area: 2.49 Acres



Lack of recreational spaces in the city
Empty lands converted into parking areas
Number of ponds reduced
2021 - Floods

Pond-Asanspatialoppurtunity to be converted in recreational area
Ecology of the pond getting affected due to encroachment and dumping
REJUVENATION OF THE SACRED LAKE
ENHANCING CULTURAL ACTIVITY
RESIDENTS &VISITORS


Small group pockets Large group pockets
Health and well-being


Rawbouldersasbackdrop
Stonebuiltstructures:Indianantiquity

Viewpoint Reading nooks


Socialising spots



Lotuspond


Master Plan:











Sections:


Chakra Gardens:





Samatva Balanceandharmony

Prakriti Sanga Connectionwithnature
Smriti Mindlfulness
Sandosa Contentment
Ahimsa Non-violence
Ekatva Inclusivity
Prana Energyflow
Sraddha Sacredness
Lasya Playfulnessandjoy
Sauca Purification Dhyana Meditation
The Chakra Gardens are thoughtfully designed to provide visitors with a sense of peace and tranquility through their surroundings. Located near one of the major ponds of Tiruvannamalai, the gardens symbolize the essence of each chakra. Every chakra is represented through unique landscaping that reflects its distinct characteristics, creating a



SPACES INSIDE ENTRANCE AREA:






Sections:





"If we go on using the Earth uncaringly and without replenishing it, then we are just greedy consumers."

Project: The Triad Stage - Set Design
Typology: Commercial
Thestagedesigngoesbeyondsimplybeingaplatformfor performances;it’saboutcreatingaspatialexperiencethat draws the audience’s undivided attention to the event's core. The concept integrates three essential elements People, Program, and Periphery each interdependent and vital in shaping an environment conducive to focus and engagement.
Program: The program serves as the heart of the space. It’s the main attraction, crafted to capture and hold the audience’sinterest.Everydesignelementaimstospotlight theprogram,makingittheundeniablefocalpoint. Thefigureshowcasesaversatiletalkshowstagedesigned to adapt to various programs and events. Drawing inspirationfromtraditionalrangasthala(theater)concepts, theset'sminimalisticbackgroundiscraftedtoallowsubtle color changes that can alter the mood of the space to match the event's tone. This adaptable design approach not only supports diverse uses but also creates a dynamic atmosphere, enhancing audience engagement by shifting theambianceinlinewiththeprogram'stheme.

People: The audience is integral to the experience, bringing life to the setting. The design ensures that all visual and spatial elements contribute to keeping the audience's attention on the program, making a connectionthatenhancestheirengagement.
Periphery: In stage design, a white background serves as a minimalist yet powerful element that can enhance the audience's focus and create a calm, immersive atmosphere. The neutral quality of white removes distractions, providing a blank canvas that draws attention to the performers and central activity. This background helps in concentrating the viewer's focus directly on the speakers or performers, allowing their presence and expressions to become the focal points. By reflecting ambient lighting evenly, white can soften harsh edges and create a sense of serenity, further emphasizing the intended mood. This calm and concentrated setup is particularly effective for events requiring a focused ambiance, such as debates, talk shows, and performances where the message or artistryisbestappreciatedinanenvironmentfreefrom visualnoise.
Stage Area 1.
Guest Resting Room 2.
Generator Room 3.
Audience Seating Area 4.
Main Stage 5.
Camera Man Space 6.
Storage Area 7.
Axial Planning division of space into :
Performing Area 1.
Guest Resting Area 2.
Technical Service Rom 3.
Circulation Area 4.





Different Lightings according to the mood of program:




















The Nanmathiya Perumal Temple is situated in Thirunangur, a village near Sirkazhi in the Nagapattinam District of Tamil Nadu, India.is one of the revered Vishnu temples and is part of the 11 Divya Desams of Nangur. It is 25th desam of 108 divyadesams. These temples are sacred to Vaishnavism and are praised in the Divya Prabandham, the early medieval Tamil canon. The temple's history and architecture reflect the Chola and Pandya periods, with their rich cultural and architectural contributions to Tamil Nadu's temple heritage


Sacredness doesn't mean only spirituality it should connect with reality and functionality.

A SACRED SPACE CONNECTS EARTH AND HUMAN

A sacred place is sacred yet not sacred—a paradox inspired by the Kailasha Temple at Ellora, carved deep into the earth. The concept, "What's Inside?", draws from the philosophy that every living being harbors inner pain, masked by outward emotions. Similarly, the earth, a living entity, appears calm on its surface but conceals immense inner turmoil.
This design reveals the earth's interior layers, symbolizing our shared struggles, through an underground structure that connects human emotions with the unseen depths of the planet.



Level 1: It indicates the earth's crust which is the first layer of the earth and is mostly in the form of a solid. I connected it with 1st level of human nature showing outside in the form of good manners with inside pain.
Level 2: The aesthenosphere helps the crust to be in a solid state because the heat from the level 3 mantle is very so it acts like a compressor for level 3 and level 1. I indicated this with a spiral ring kind of structure which is also a rock curvature with paint of radium orange color.

Level 3: This level has a temperature of 1000 degrees Celsius. It is in a semi-solid state so I have designed and sculptured it in the form of generation space. This semisolid is represented as a rectangular curve, according to our philosophy, this is the stage that is the layer before the inner emotions and pain which maximum try to reveal the inner emotions of a human.
Level 4: The innermost layer of the Earth, located 5700 km deep with a temperature of 2900°C, inspired my design. I carved a semi-circular shape at the center, symbolizing the core, and added spirals ascending towards the mantle to represent heat transmission. Surrounding curves depict heat waves. Philosophically, the core serves as the reservoir of inner emotions, radiating waves of feelingsoutwardtootherlayers.



Vellore Institute of Technology ( VIT - School of Planning and Architecture - VSPARC ) Bachelor of Architecture. B.Arch
dheerajkumarpogadadanda@gmail.com