











![]()












(Residential, Commercial, Hospitality, Healthcare, Datacentre, Educational and Retail)









(Chemicals, Manufacturing, Process, F&B, Warehousing)









(Road, Airports, Rail, Metro, Bridges, Smart Cities, Utilities)






























































Scan QR Codes to View the Panorama






























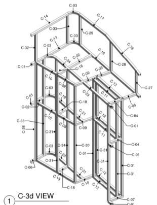
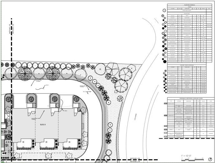
Formwork Modeling & Coordination
Prefabricated Risers



Model Data Checks

Discrepancy Reports

QC Checks












Constructability and Coordination Reports. Mentioned below is an example of Coordination Prioritization Matrix



































There are various features CDE are as Follows:
1.Version control
2.Model comparison
3.Drawing comparison
4.Measurement on drawings
5.Mark-ups & commenting on drawings
6.Transmittals
7.Rfi’s
8.Submittals
9.Issues
10.Folder permissions & access control
11.Reports
12.Project dashboard









As-built Documentation –COBieCompliance



















We undertake assessment of the Program and Prepare Visual Presentation for the same.

















































BBS will be modeled in specific rebar detailing software
like CADS RC, where we from will extract detailed Bar Bending Schedule and element wise details.


Schedule of Drawings to Individual Drawings
Individual Drawings to Specific Views
Specific Views to external links/documents































































































































































QGIS Details

Coordinate Reference SystemWGS 84 / Dubai Local TM I EPSG:3997















































































































































