Skip to main content

Portafolio de Arquitectura

Page 1

PORTAFOLIO

PROYECTOS
DANIEL FERNANDO GRAJALES VANEGAS ARQUITECTO
SELECCIONADOS

PORTAFOLIO

DANIEL FERNANDO GRAJALES VANEGAS ARQUITECTO

PORTAFOLIO DE PROYECTOS

Daniel Fernando Grajales Vanegas

Información de contacto

Celular: 3016078171 danielf.grajales@gmail.com dgrajalesv@unal.edu.co

Medellín, Antioquia, Colombia

Arquitecto de la Universidad Nacional de Colombia; curioso por el impacto que tienen las edificaciones y el espacio construido sobre la calidad de vida de las personas, así como por las diversas maneras en que un espacio es percibido y habitado por ccada individuo.

Durante los último años he desarrollado un gusto personal por el urbanismo y los modos de vida contemporáneos, la escala macro y la micro; con un interés hacia estas ramas del diseño, en la búsqueda por lograr un equilibrio entre ambas dimensiones aparentemente opuestas.

4 Un poco sobre mí

MANEJO DE SOFTWARE

Microsoft Office

Autdodesk Autocad

Autodesk Revit

Autodesk 3ds Max

SketchUp

Lumion

Adobe Photoshop

Adobe Illustrator

Adobe Indesing

V-Ray

FORMACIÓN ACADÉMICA

Arquitecto

Feb 2018 - Abr 2024

Universidad Nacional de Colombia

Sede Medellín

Bachiller Acedémico

2017

I.E. Lucrecio Jaramillo Vélez

Portafolio - Daniel Fernando Grajales Vanegas

EXPERIENCIA

Auxiliar de Arquitectura

Jul 2023 - Ene 2024

Hospital San Vicente Fundación

Apoyo al área de Planta Física en el desarrollo, conceptualización y ejecución de proyectos de adecuaciones al interior del Hospital. Diseño de reformas para las sedes de Medellín y Rionegro. Dibujo de planimetría, renders y levantamientos arquitectónicos. Elaboración de presupuestos y cantidades de obra para la ejecución de los proyectos.

Maquetista

Ene 2023 - Jun 2023

ML Arquitectos

Elaboración de maquetas físicas del proyecto SELVAVIGNON en escala 1:50 de módulos habitacionales y 1:125 de proyecto general para su presentación a futuros clientes.

Práctica Académica Especial (PAE)

Aplicación de protolos BIM

Oct 2021 - Ene 2022

Sistema de Administración y Gestión de la Infraestructura de la Universidad Nacional de Colombia.

Modelado BIM del bloque M3 del campus Robledo de la Universidad Nacional de Colombia sede Medellín. Elaboración de modelo estructural, arquitectónico y MEP de la edificación a partir de información proporcionada por la Universidad y del levantamiento en campo.

5

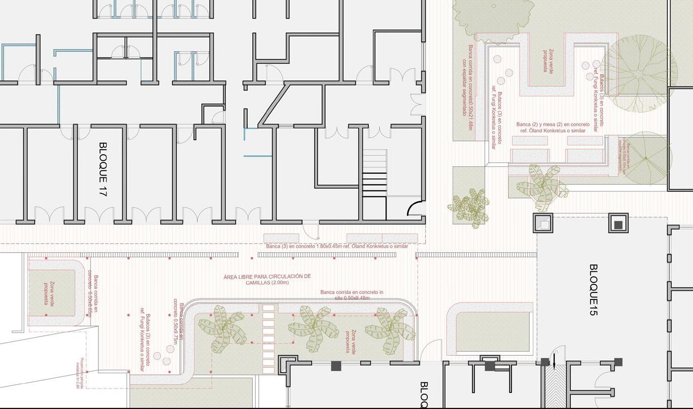
Intervenció Bloque 11 Acceso Hospital Infantil - Software SketchUp + Lumion

DISEÑO URBANO DE ESTANCIAS

Practica Profesional

Hospital San Vicente Fundación

Año

2023 - Diseño presentado

Localización

Barrio Sevilla, Medellín, Colombia

Proyectistas

Daniel Fernando Grajales Vanegas

La propuesta se concibe como una solución a la falta de espacios de estancia y descando al interior del Complejo Hospitalario, tomando como referencia el “Concurso Público para el Complejo Hospitalario San Juan de Dios” en Bogotá.

De este modo, se desarrolla una propuesta de diseño urbano en múltiples espacios del Hospital que sirven como puntos de encuentro para los pacientes y acompañantes, pero que hoy carencen de calidad espacial; buscando favorecer la sensación de bienestar, humanizar el espacio y brindar la mejor experiencia a aquellos que visitan el Hospital San Vicente cada día.

Intervencción acceso Bloque 11 - Escala 1:250

Intervencción Bloque 17 - Escala 1:250

Intervencción Avenida Juan del Corra - Escala 1:250

8 Diseño urbano de Estancias - Hospital San Vicente Fundación Medellín

Se realizan propuestas con diferentes escalas y alcances en el espacio urbano, através de: generar nuevos puntos de encuentro y estancia, modificar e incorporar nuevo mobiliario urbano (supercicies sentables, mesas tipo picnic, pérgolas) y algunas intervenciones paisajisticas donde la función ecológio/ambiental prime sobre la ornamental

9
Portafolio - Daniel Fernando Grajales Vanegas Intervención Avenida Juan del Corral - Software SketchUp + Lumion Intervención Bloque 17 - Software SketchUp + Lumion

Imaginario exterior - Software SketchUp + Lumion

CENTRAL DE REFERENCIACIÓN HOSPITAL RIONEGRO

Practica Profesional

Hospital San Vicente Fundación

Año

2023 - Diseño Ejecutado

Localización

Rionegro, Antioquia

Proyectistas

Daniel Fernando Grajales Vanegas

Se busca habilitar un espacio al interior de la torre A del Hopsital San Vicente Fundacipon de Rionegro para ubicar la Central de Referencia y Contrareferencia; donde sea posilbe ubicar todo el personal requerido por el área y generar igualmente una ventanilla de atención al público.

La propuesta se adapta al diseño interior existente en el nivel, utulizando enchapes de MPF Madecor y simplificando la geometría mediante con el uso de franjas verticales para definir la zona de atención al público.

techoProyecciónluminariaen existente.

techoProyecciónluminariaen existente.

techoProyecciónluminariaen existente.

Ventanacorredizadoblecon panelsuperior. 2.40mx1.60m

Puntodedatos,toma corrientedobleydoble reguladopropuestos sobrecanaleta h=20cm.

Puntodedatos,toma corrientedobleydoble reguladopropuestos sobrecanaleta h=20cm.

Proyecciónluminariaen techo existente.

Puertaconmarcodealuminio ypanelacristalado.

Puntodedatos,toma corrientedobleydoble reguladopropuestos sobrecanaleta h=20cm.

12 Central de Referenciación - Hospital San Vicente Fundación Rionegro 0.12 2.62 5.15 1.50 3.60 3.60 0.24 1.20 0.31 1.75 ÁREA UTIL ESPACIOS DE TRABAJO 14.45m2 Proyección luminaria en techo Ø23cm existente. Proyección luminaria en techo Ø23cm Propuesta. Tablero de corcho 60x90cm Punto de datos, toma corriente doble y doble regulado propuestos sobre canaleta h=20cm. Punto de datos, toma corriente doble y doble regulado propuestos sobre canaleta h=20cm. Punto de datos, toma corriente doble y doble regulado existentes. Proyección luminaria en techo Ø15cm Propuesta. Proyección luminaria en techo Ø15cm Propuesta. Cajonera superior existente. Sillardeventana h=1.00m.
2.40
MuroconrevestimientoenpánelesdeMadecor. Proyección luminaria en techo Ø15cm Propuesta. Proyección luminaria en techo Ø15cm Propuesta. Tablerodecorcho 60x90cm.
MuroconrevestimientoenpánelesdeMadecor.
Referencia. REFERENCIA ENFERMERA LIDER CONTRA REFERENCIA LOGÍSTICA 1 LOGÍSTICA 2 DISPONIBLE
PLANTA PROPUESTA 1 ACCESO 2.17 Proyección salida de aire acondicionado en techo propuesta. Proyección luminaria en techo Ø15cm Propuesta. 02A
codigo de plano. HOSPITAL SAN VICENTE FUNDACIÓN. MEDELLÍN - ANTIOQUIA. PROYECTO: ELABORÓ O ACTUALIZO: FIRMA: REVISADO Y APROVADO POR: FIRMA: FECHA APROBACIÓN: 09/08/2023 VERSIÓN: 01 ESCALA: NOMBRE DEL PLANO: PLANO PROPUESTA NOTA: NUMERO DE PLANO: 001. NOTAS: - NO TOMAR MEDIDAS DIRECTAS SOBRE EL PLANO. - NO HACER MODIFICACIONES A LOS PLANOS SIN LA AUTORIZACION DE LOS ARQUITECTOS ENCARGADOS. - ESTE PLANO ANULA LOS ANTERIORES A ESTA FECHA. - VERIFICAR Y CONFRONTAR LAS MEDIDAS EN EL ESPACIO. - EN CASO DE DIFERENCIA CON LOS PLANOS ESTRUCTURALES, PRIMAN PLANOS ARQUITECTONICOS. CARLOS ISAZA. 1:25. CENTRAL DE REFERENCIACIÓN RIONEGRO CRISTIAN CASTRO. En el área de intervención mostrador de atención al público con 3 puestos de trabajo. propone generar 15m2 aprox. de tal manera que sea posible generar 6 puestos de trabajo al interior de esta: Referencia, Contrarreferencia, Enfermera lider, 2 de Logística puesto adicional; dos de los cuales deben tener ventana para atender. PROPUESTA 1: Se propone levantar dos muros en drywall con revestimiento de Madecor, perpendiculares entre sí separados por franja vertical sobre la cual ubica de 2.40x1.60m dos módulos corredizos para la atención al público. espacio distribuyen puestos trabajo, cada uno con un escritorio de 1.20x0.60m con su respectivo archivador de piso. Igualmente se archivador aéreo existente el espacio y se instalan dos tableros de corcho. Se propone utilizar puerta de vidrio de aluminio 1.20x2.60m para acceder al espacio, de tal que aproveche la luz natural que brinda el ventanal existente. Igualmente, es posible conservar dos toma corriente dobles (uno de ellos regulado) un punto de datos, resulta necesario reubicar dos conjuntos de 2 toma corriente dobles y 1 punto de datos, así instalar dos conjuntos adicionales de 2 corriente dobles 1vpunto de datos para garantizar el suministro a cada puesto de trabajo. Los muros nuevos se representan en rojo, así como las puertas, toma corrientes y demás elementos propuestos. y representan línea punteada roja. Muro con revestimiento en páneles de Madecor 2cm. Ventana corrediza doble con panel superior. 2.40mx1.60m 1.00 1.60 2.60 0.12 0.59 1.32 0.59 0.59 0.59 0.14 CIRCULACIÓN PARA ACCEDER AL ESPACIO ALZADO FRONTAL Proyección luminaria en techo existente. Proyección luminaria en techo Ø15cm Propuesta. Proyección luminaria en techo Ø15cm Propuesta. Punto de datos, toma corriente doble y doble regulado propuestos sobre canaleta h=20cm. Tablero de corcho 60x90cm 0.75 1.20 1.00 0.20 1.60 Punto de datos, toma corriente doble y doble regulado propuestos sobre canaleta h=20cm. Punto de datos, toma corriente doble y doble regulado propuestos sobre canaleta h=20cm. Ventana corrediza doble con panel superior. 2.40mx1.60m REFERENCIA CONTRA REFERENCIA ENFERMERA LIDER 1.00 CIRCULACIÓN ALZADO LATERAL DERECHO SECCIÓN A-A' codigo de plano. HOSPITAL SAN VICENTE FUNDACIÓN. MEDELLÍN - ANTIOQUIA. PROYECTO: ELABORÓ O ACTUALIZO: FIRMA: REVISADO Y APROVADO POR: FECHA APROBACIÓN: 09/08/2023 VERSIÓN: 01 ESCALA: NOMBRE DEL PLANO: ALZADOS Y SECCIONES PROPUESTA NOTA: NUMERO DE PLANO: 002. NOTAS: - NO TOMAR MEDIDAS DIRECTAS SOBRE EL PLANO. - NO HACER MODIFICACIONES A LOS PLANOS SIN LA AUTORIZACION DE LOS ARQUITECTOS ENCARGADOS. - ESTE PLANO ANULA LOS ANTERIORES A ESTA FECHA. - VERIFICAR Y CONFRONTAR LAS MEDIDAS EN EL ESPACIO. - EN CASO DE DIFERENCIA CON LOS PLANOS ESTRUCTURALES, PRIMAN PLANOS ARQUITECTONICOS. CARLOS ISAZA. 1:25. CENTRAL DE REFERENCIACIÓN RIONEGRO CRISTIAN CASTRO. En el área de intervención encuentra mostrador de atención al público con 3 puestos de trabajo. propone generar cerramiento sobre área de aprox. que posible generar puestos de trabajo al interior de esta: Referencia, Contrarreferencia, Enfermera lider, de Logística un puesto adicional; dos de los cuales deben tener ventana para atender. PROPUESTA 1: Se propone levantar dos muros en drywall con revestimiento de Madecor, perpendiculares entre sí y separados franja vertical sobre la cual ubica ventana de 2.40x1.60m dos módulos corredizos para la atención al público. Al del espacio distribuyen los puestos de trabajo, su respectivo archivador de piso. Igualmente se converva un archivador aéreo existente en el espacio se instalan dos tableros de corcho. Se utilizar puerta de vidrio de aluminio 1.20x2.60m para acceder al espacio, de tal que aproveche la luz natural que brinda el ventanal existente. Igualmente, posible dobles (uno de ellos regulado) un punto de datos, pero resulta necesario reubicar dos conjuntos de 2 toma corriente dobles punto de datos, así instalar dos conjuntos adicionales de 2 toma corriente dobles y 1vpunto de datos para garantizar el suministro a cada puesto de trabajo. Los muros nuevos se representan en rojo, así como las puertas, toma corrientes demás elementos propuestos. elementos demoler representan línea punteada roja. Muro con revestimiento en páneles de Madecor 2cm. Ventana corrediza doble con panel superior. 2.40mx1.60m 1.00 1.60 2.60 0.12 0.59 1.32 0.59 0.59 0.59 0.14 CIRCULACIÓN PARA ACCEDER AL ESPACIO ALZADO FRONTAL Proyección luminaria en techo existente. Proyección luminaria en techo Ø15cm Propuesta. Proyección luminaria en techo Ø15cm Propuesta. Punto de datos, toma corriente doble y doble regulado propuestos sobre canaleta h=20cm. Tablero de corcho 60x90cm 0.75 1.20 1.00 0.20 1.60 Punto de datos, toma corriente doble y doble regulado propuestos sobre canaleta h=20cm. Punto de datos, toma corriente doble y doble regulado propuestos sobre canaleta h=20cm. Ventana corrediza doble con panel superior. 2.40mx1.60m REFERENCIA CONTRA REFERENCIA ENFERMERA LIDER CIRCULACIÓN ALZADO LATERAL DERECHO SECCIÓN A-A' codigo de plano. HOSPITAL SAN VICENTE FUNDACIÓN. MEDELLÍN - ANTIOQUIA. PROYECTO: ELABORÓ O ACTUALIZO: FIRMA: REVISADO Y APROVADO POR: FIRMA: FECHA APROBACIÓN: 09/08/2023 VERSIÓN: 01 ESCALA: NOMBRE DEL PLANO: ALZADOS Y SECCIONES PROPUESTA 1 NOTA: NUMERO DE PLANO: 002. NOTAS: - NO TOMAR MEDIDAS DIRECTAS SOBRE EL PLANO. - NO HACER MODIFICACIONES A LOS PLANOS SIN LA AUTORIZACION DE LOS ARQUITECTOS ENCARGADOS. - ESTE PLANO ANULA LOS ANTERIORES A ESTA FECHA. - VERIFICAR Y CONFRONTAR LAS MEDIDAS EN EL ESPACIO. - EN CASO DE DIFERENCIA CON LOS PLANOS ESTRUCTURALES, PRIMAN PLANOS ARQUITECTONICOS. CARLOS ISAZA. 1:25. CENTRAL DE REFERENCIACIÓN RIONEGRO CRISTIAN CASTRO. En el área de intervención encuentra mostrador de atención al público con 3 puestos de trabajo. Se propone generar cerramiento sobre área de aprox. de tal que posible generar puestos de trabajo al interior de esta: Referencia, Contrarreferencia, Enfermera lider, 2 de Logística y un puesto adicional; dos de los cuales deben tener ventana para atender. PROPUESTA 1: Se propone levantar dos muros en drywall con revestimiento de Madecor, perpendiculares entre sí separados franja vertical sobre la cual ubica ventana de 2.40x1.60m dos módulos corredizos para la atención al público. Al interior del espacio distribuyen los 6 puestos de trabajo, cada de su respectivo archivador de piso. Igualmente se converva un archivador aéreo existente en el espacio y se instalan dos tableros de corcho. Se utilizar puerta de vidrio de aluminio 1.20x2.60m acceder al espacio, de tal que aproveche la luz natural que brinda el ventanal existente. Igualmente, posible dos dobles (uno de ellos regulado) y un punto de datos, pero resulta necesario reubicar dos conjuntos de 2 toma corriente dobles 1 punto de datos, así como instalar dos conjuntos adicionales de toma corriente dobles 1vpunto de datos para garantizar el suministro cada puesto de trabajo. Los muros nuevos se representan en rojo, así como las puertas, toma corrientes y demás elementos propuestos. Los y elementos demoler representan línea punteada roja. Muro con revestimiento en páneles de Madecor 2cm. Ventana corrediza doble con panel superior. 2.40mx1.60m 1.00 1.60 2.60 0.12 0.59 1.32 0.59 0.59 0.59 0.14 CIRCULACIÓN PARA ACCEDER AL ESPACIO ALZADO FRONTAL Proyección luminaria en techo existente. Proyección luminaria en techo Ø15cm Propuesta. Proyección luminaria en techo Ø15cm Propuesta. Punto de datos, toma corriente doble y doble regulado propuestos sobre canaleta h=20cm. Tablero de corcho 60x90cm 0.75 1.20 1.00 0.20 1.60 Punto de datos, toma corriente doble y doble regulado propuestos sobre canaleta h=20cm. Punto de datos, toma corriente doble y doble regulado propuestos sobre canaleta h=20cm. Ventana corrediza doble con panel superior. 2.40mx1.60m REFERENCIA CONTRA REFERENCIA ENFERMERA LIDER 1.00 1.60 2.60 CIRCULACIÓN Muro con revestimiento en páneles de Madecor 2cm. ALZADO LATERAL DERECHO SECCIÓN A-A' codigo de plano. HOSPITAL SAN VICENTE FUNDACIÓN. MEDELLÍN - ANTIOQUIA. PROYECTO: ELABORÓ O ACTUALIZO: FIRMA: REVISADO Y APROVADO POR: FIRMA: FECHA APROBACIÓN: 09/08/2023 VERSIÓN: 01 ESCALA: NOMBRE DEL PLANO: ALZADOS Y SECCIONES PROPUESTA NOTA: NUMERO DE PLANO: 002. NOTAS: - NO TOMAR MEDIDAS DIRECTAS SOBRE EL PLANO. - NO HACER MODIFICACIONES A LOS PLANOS SIN LA AUTORIZACION DE LOS ARQUITECTOS ENCARGADOS. - ESTE PLANO ANULA LOS ANTERIORES A ESTA FECHA. - VERIFICAR Y CONFRONTAR LAS MEDIDAS EN EL ESPACIO. - EN CASO DE DIFERENCIA CON LOS PLANOS ESTRUCTURALES, PRIMAN PLANOS ARQUITECTONICOS. CARLOS ISAZA. 1:25. CENTRAL DE REFERENCIACIÓN RIONEGRO CRISTIAN CASTRO. En el área de intervención se un mostrador de atención al público con 3 puestos de trabajo. Se propone generar cerramiento sobre área de 15m2 aprox. de tal que posible generar 6 puestos de trabajo al de Referencia, Contrarreferencia, lider, Logística puesto adicional; dos de los cuales deben tener ventana para atender. PROPUESTA 1: propone levantar dos drywall Madecor, perpendiculares y separados por una franja vertical sobre la cual se ubica una ventana de 2.40x1.60m con dos módulos corredizos para la atención al público. Al interior del espacio distribuyen 6 puestos de trabajo, cada escritorio de 1.20x0.60m respectivo archivador de piso. Igualmente aéreo espacio se instalan dos tableros de corcho. Se propone utilizar una puerta de vidrio con marco de aluminio 1.20x2.60m para acceder al espacio, de tal aproveche la luz natural brinda el ventanal existente. Igualmente, posible dos corriente dobles (uno de ellos regulado) punto de datos, pero resulta necesario reubicar dos conjuntos de toma corriente dobles punto de datos, así como instalar dos conjuntos adicionales de 2 toma corriente dobles 1vpunto de datos garantizar el suministro a cada puesto de trabajo. Los muros nuevos se representan en rojo, así como las puertas, toma corrientes demás elementos propuestos. Los elementos demoler representan línea punteada roja. Alzado frontal, lateral y sección longitudinal - Escala 1:75 Planta Propuesta - Escala 1:75
02A'

Imaginario interior - Software SketchUp + Lumion

Imaginrario Propuesta de diseño alternativa - Software SketchUp + Lumion

En este caso, se propone generar una venta esquinera sobre el costado lateral y una únca franja con enchape de madera, conservando la distribución interior propuesta

13
Portafolio - Daniel Fernando Grajales Vanegas

Imaginario Sala de Conferencias - Software SketchUp + Vray

HABILITACIÓN SALA DE CONFERENCIAS

Practica Profesional

Hospital San Vicente Fundación

Año 2023 - Diseño presentado

Localización

Rionegro, Antioquia

Proyectistas

Daniel Fernando Grajales Vanegas

14

Con el fin de aprovechar de mejor manera el espacio de la Sala de Autopsias en el Bloque 13, el cual se encuentra subutilizado actualmente; se propone partir de la gradería ya existente en el espacio y proponer la creación de una sala de conferencias o pequeño auditorio con capacidad para 62 personas.

La propuesta busca mejorar las condiciones de confort, accesicibilidad e iluminación del espacio; mediante la intervención de las escaleras, mobiliario y los accesos del mismo.

Planta propuesta - Escala 1:75

16 Habilitación Sala de Conferencia - Hospital San Vicente Fundación Medellín S NPA 0.00m NPA +1.08m NPA +1.08m NPA +1.08m NPA +1.80m NPA +1.80m NPA +1.80m NPA +3.00m NPA +3.00m NPA +3.38m S S SALA DE CONFERENCIAS Capacidad: 58/62 personas 52.50 m2 PLANTA PROPUESTA NPA +3.00m Proyección lámpara leed colgante Proyección lámpara leed colgante Proyección lámpara leed colgante Proyección lámpara leed colgante Proyección videobeam 1.04 ACCESO NIVEL 2 NPA +3.38m ACCESO NIVEL 2 0.80 0.80 0.82 0.84 2.60 0.84 0.82 1.04 .30 0.40 0.40 0.40 0.40 0.40 0.40 0.96 0.78 Escalera propuesta Huella: 28cm Contrahuella: 18cm 0.66 0.64 Demolición de muros sillares y reemplazo por pasamanos metálicos B' 01 B 01 A 01 A' 01 Pasamanos tubular metálico en color negro Altura 0.80m Proyección de marco en área de proyección Banca en madera 42x40cm acolchada y espaldar acolchado sobre el muro CAVA Muro superior con acabado estuco y pintura Relleno de escalones para nivelar Gradería y escaleras baldosa Grano Terrazo +01.08m +01.80m +01.08m +00.00m Porción rellenar para
Imaginario interior - Software SketchUp + Vray

Secciones - Escala 1:75

17 Portafolio - Daniel Fernando Grajales Vanegas 0.00m NPA +3.38m +3.00m ACCESO NIVEL 2 NPA +3.38m ACCESO NIVEL 2 0.80 0.80 0.66 0.64 A' 01 Telón de proyección eléctrico 2.03x2.03m Marco en drywall con recubrimiento de madera Banca en madera 42x40cm acolchada y espaldar acolchado sobre el muro Pasamanos tubular metálico en color negro Altura. 0.80m CAVA OFICINA - BODEGA NPA +00.00m NPA +01.08m Muros de gradería con acabado en madera Muro superior con acabado en estuco y pintura Área de presentación con acabado en madera Lámpara leed colgante circular Ø 0.80m NPA +03.00m SECCIÓN B-B' NPA +01.80m Líneadevisual Líneadevisual Líneadevisual Relleno de escalones superiores para nivelar tercera fila Se nivela primera fila con las escaleras propuestas Incremento de nivel 5cm Pasamanos tubular metálico en color negro Altura 0.80m Video beam en soporte metálico Marco en drywall con recubrimiento de madera Adecuación de escalera sobre existente Contrahuella:0.18m Huella:0.28m Telón de proyección eléctrico 2.03x2.03m Área de presentación con acabado en madera Lámpara leed colgante circular Ø 0.80m SECCIÓN A-A' 1.08 Gradería y escaleras en baldosa Grano Terrazo 0.80 0.80 0.80 0.78 1.20 0.80 0.34 0.60 0.48 0.54 NPA +01.08m NPA +01.80m NPA +01.08m NPA +00.00m de existente de escalera a demoler Porción rellenar para igualar a nivel ESCALERAS LATERALES codigo de plano. HOSPITAL SAN FUNDACIÓN. MEDELLÍN - ANTIOQUIA. PROYECTO: ELABORÓ O ACTUALIZO: FIRMA: REVISADO Y APROVADO POR: FIRMA: FECHA APROBACIÓN: 10/10/2023 VERSIÓN: 01 NOMBRE DEL PLANO: PLANO DE PROPUESTA - SECCIONESNOTA: NUMERO DE PLANO: NOTAS: - NO TOMAR MEDIDAS DIRECTAS PLANO. - NO HACER MODIFICACIONES PLANOS SIN LA AUTORIZACION ARQUITECTOS ENCARGADOS. - ESTE PLANO ANULA LOS ANTERIORES ESTA FECHA. - VERIFICAR Y CONFRONTAR EN EL ESPACIO. - EN CASO DE DIFERENCIA CON ESTRUCTURALES, PRIMAN ARQUITECTONICOS. CARLOS ISAZA. HABILITACIÓN SALA DE AUTOPSIAS - BLOQUE CRISTIAN CASTRO. Los elementos a nuevos y a reubicar en color rojo. Los elementos a demoler se representan punteada roja. Se desea aprovechar de mejor manera Sala de Autopsias en el Bloque encuentra subutilizado actualmente. El espacio tiene un total de 52.50m², filas de graderías; así como también escaleras para acceder a estas y accesos el nivel 1 como desde el nivel 2. PROPUESTA : Se propone partir de la gradería ya espacio y proponer la creación conferencias o pequeño auditorio con 62 personas. Se requiere demoler los muros sillares 17cm de espesor para incrementar gradería y mejorar sus condiciones Igualmente, se propone reemplazarlos metálicos tubulares de 80cm de altura, interrumpir la visual. Se propone revestir los muros de como también el suelo del área central sus condicones de acústica y acogedor. Del mismo modo se reemplaza existenes por bancas corridas de con espaldares independientes. Se debido a la capacidad del espacio las escaleras laterales que no normativa de accesibilidad (NSR10-K, 4145) por lo que únicamente se conserva central de 90cm de ancho, a cual cumplir con la normativa (Contrahuellas huellas de 18cm). Finalmente se propone ubicar un marco rededor del área de proyección e incorporar iluminación adicional a la existente.

CENTRO CULTURAL Y DEPORTIVO SAN ANTONIO

Proyecto académico

Taller de Proyectos V Año

2021

Localización

Barrio Guayaquil, Medellín, Colombia

Proyectistas

Daniel Fernando Grajales Vanegas

Juan Felipe Gómez Giraldo

18

- Daniel Fernando Grajales

Construcción Volumétrica

Programa

Ubicado sobre la carrera Bolívar en pleno centro de la ciudad y frente al viaducto del metro, el proyecto utiliza como estrategia la idea de enlazar el Paseo Bolívar a los hitos urbanos existentes, a través de la implantación de una pieza urbanoarquitectónica que sirva como eje de conexión en sentido oriente-occidente buscando diversificar los usos del sector e inyectar actividad cultural, educativa y deportiva al centro.

Se proponen dos torres relacionadas a partir de un patio central de carácter público que permite activar el centro de manzana y extender el primer piso hacia los niveles superiores. De este modo, se conforma una circulación vertical pública que atraviesa una galería, una sala de baile, un museo, una escuela de artes, una casa de la música y un centro deportivo.

19
Portafolio
Vanegas
20 Centro cultural y deportivo San Antonio
Sección A-A’- Escala 1:750
21
Portafolio - Daniel Fernando Grajales Vanegas
22 Centro cultural y deportivo San Antonio
Sección B-B’- Escala 1:750
23
Portafolio - Daniel Fernando Grajales Vanegas Sección C-C’- Escala 1:750

CENTRO COLOMBO AMERICANO SEDE NUTIBARA

Proyecto académico

Taller de Proyectos IX

Año

2023

Localización

Barrio Nutibara, Medellín, Colombia

Proyectistas

Daniel Fernando Grajales Vanegas

Luisa María Sánchez Barrerio

24

Circulaciones

Cerramientos

- Daniel Fernando Grajales Vanegas

Programa

Estructura

La propuesta se inserta en un tejido urbano existente, articulando la relación entre el río Medellín y el cerro nutibara.

El proyecto articula el sistema de actividades entorno a un conjunto de espacios de uso colectivo y desprogramados, agrupando el sistema de circulaciones sobre un núcleo lateral. De este modo es posible aprovechar al máximo potencial del lote y garantizar la correcta ventilación e iluminación de los espacios interiores.

25
Portafolio

exterior Software Vray + SketchUp

Imaginario Portafolio - Daniel Fernando Grajales Vanegas

TORRE DE VIVIENDA SOCAL

BARRIO SEVILLA

Proyecto académico

Taller de Proyectos VI

Año

2021-2022

Localización

Barrio Sevilla, Medellín, Colombia

Proyectistas

Daniel Fernando Grajales Vanegas

Luisa Cardona Montoya

28
Portafolio - Daniel Fernando Grajales Vanegas

Programa

El proyecto se inserta como una pieza de la renovación urbana del barrio Sevilla de Medellín. A nivel arquitectónico, se plantea un patio en u como vacío estructurante en respuesta a la Iglesia el Sagrario; complementario al patio, se define un vacío interno vertical que acompaña a las torres de viviendas y establece una conexión entre el espacio horizontal y el vertical.

Es así cómo se constituye una plataforma de servicios en la cual se ubica un centro de alto rendimiento deportivo con dos torres de vivienda social fija y temporal, donde los corredores abiertos buscan mejorar el confort al interior de los apartamentos al garantizar condiciones tales como ventilación cruzada, iluminación natural, privacidad y posibilidad de encuentro e interelación vecinal.

29
Vanegas
Portafolio - Daniel Fernando
Grajales
30 Torre de vivienda social y centro de alto rendimiento deportivo
Planta de quinto nivel - Escala 1:750 N.P.A. +17.30metros Planta de octavo nivel - Escala 1:750 N.P.A. +23.30metros
31
Portafolio - Daniel Fernando Grajales Vanegas Planta de noveno nivel - Escala 1:750 N.P.A. +26.80metros Planta de cubiertas - Escala 1:750 N.P.A. +61.80metros

Apartamento tipo 1

52.2m2

Apartamento tipo 2

72.5m2

Apartamento tipo 4 - Vivienda para deportistas

57.3m2

32
de vivienda social
centro de alto rendimiento deportivo
Torre
y
33
Portafolio - Daniel Fernando Grajales Vanegas Fachada sur - Escala 1:750 Fachada oriental - Escala 1:750

Imaginario interior habitación - Software Vray + SketchUp

HABITAR EN CÁPSULAS

Proyecto académico

Taller de Proyectos VIII

Año 2022

Localización

Barrio Alejandro Echavarría, Medellín, Colombia

Proyectistas

Daniel Fernando Grajales Vanegas

Maria Fernanda Osorio Gómez

36
Imaginario exterior desde plazoleta interior - Software Vray + SketchUp

Planta de localización - Escala 1:1500

La propuesta parte de la reactivación barrial a través de la generación de nuevas conexiones urbanas con el fin de generar un nuevo ámbito de lo público: lo colectivo como mediador hacia el espacio íntimo.

El proyecto surge entorno al concepto de la cápsula; donde cada módulo de vivienda se plantea como un mecanismo que trabaja por obtener espacios flexibles que, por mínimos que sean alcancen su máximo potencial. Cada módulo se acopla con los demás por medio de espacios colectivos dispuestos en los niveles intermedios que complementan el programa principal.

Es así como se paso a unidades que aprovechan su espacio interior, pero que incentivan la vida comunitaria.

Habitar en Cápsulas
38

Planta de primer nivel - Escala 1:200

N.P.A. 00.00metros

39
Portafolio - Daniel Fernando Grajales Vanegas

Planta de segundo nivel - Escala 1:200

N.P.A.+05.10metros

Planta de tercer nivel - Escala 1:200

N.P.A.+08.16metros

Planta nivel terraza - Escala 1:200

N.P.A.+23.16metros

en Cápsulas 40
Habitar
41 41
Portafolio - Daniel Fernando Grajales Vanegas Detalle isométrico por fachada

Daniel Fernando Grajales Vanegas

ARQUITECTO +57 3016078171

danielf.grajales@gmail.com dgrajalesv@unal.edu.co

Turn static files into dynamic content formats.

Create a flipbook
Portafolio de Arquitectura by Daniel Grajales Vanegas - Issuu