

![]()


Advanced data analytics and computational models
Help companies think through workplace and real estate
Thank you for visiting my portfolio. This collection highlights my work in hospitality design, showcasing thoughtful, customer-centered projects that elevate food service, guest experience, and spatial innovation. While the focus is on hospitality, I’ve also included a curated page featuring four additional branded projects developed during my Master of Science in Business Innovation and Entrepreneurship Academically. These ventures share common threads food services, customer engagement, operational excellence, and headquarters design, all crafted to explore how business architecture, re-imaged, shapes impactful experiences.

As the Founder & CEO of God’Vology, I’m honored to step into this next chapter of growth through the pursuit of my Master of Science in Business Innovation and Entrepreneurship. This portfolio is a gentle glimpse into the early academic roots of our Academic brand where business meets hospitality, and design begins.

This project reflects the core of the program’s emphasis: transforming visionary ideas into scalable business ventures through innovation, strategic insight, and cross-disciplinary collaboration. “Views – Hospitality” was conceptualized and developed as part of the Master of Science in Business Innovation program, representing a strategic fusion of luxury hospitality, brand innovation, and experiential design thinking.
The brand was born from rigorous academic research, market analysis, and feasibility studies aimed at redefining the guest experience within vertical urban environments. Utilizing advanced business modeling tools, service innovation frameworks, and real-time market simulation, Views emerged as a hospitality concept, tailored.
Stainability and Storytelling
Meaningful and Responsible

We design amenity-rich, mixed-use destinations and retail centers that foster shared experiences and community. As vibrant social hubs, these integrated mixed-use developments can connect people and experiences and breathe new life into cities.

Collins Hill & Grill is a high-energy sports bar featuring custom LED ceiling lighting, exceptional food, drive-thru convenience, and a semishared kitchen that connects to nearby retail and services. You need to have that variety and diversity of uses, people, and experiences to be able to give people a reason to show up.


The Digital Lounge offers an intimate, techforward space adjacent to retail, perfect for private bookings, gaming, or social events, bringing a tight-knit community vibe to the heart of the development.
Mixed-Used Faculties anchors the Halo experience with a two-story digital entertainment lounge, fusing technology, live events, and immersive media into a bold, interactive venue designed for next-generation engagement.
Features a dynamic two-story digital entertainment lounge, blending immersive media, live events, and social interaction into a cutting-edge destination experience.
Offering curated culinary and beverage experiences that complement the destination’s vibrant live-work-play environment.
Technology in physical space has evolved to match the expectations of more tech-savvy people who want seamless digital experiences that are more purposefully integrated into the built environment.
Technology activations should directly impact people’s lives, orchestrate shared experiences, and bring value to business through new revenue streams. In 2025 and beyond, generative AI will make a big impact on digital and multisensory placemaking that inspires people to interact and connect.

Food & Drink Services Connecting
Demonstrate positive local impact.
Halo Mixed-Use Development
Residential pent houses and
God’Vology anchors the Halo experience with a twostory digital entertainment lounge, fusing technology, live events, and immersive media into a bold, interactive venue designed for next-generation engagement.




Our Adaptive 14 Design Model is a versatile and innovative framework that integrates flexibility,

Funnel Toussaint is a three-story architectural project designed in under grad for the Toussaint family, located in Dallas, Texas.
The design emphasizes luxury and functionality, with spaces dedicated to entertainment, relaxation, and creativity, making it an ideal retreat for the family’s active and social way of living.
Phase-Based Rollouts:
Feedback Integration:
Material and Design Evolution:
Cross-Functional Alignment:
Evaluate design performance post-implementation and gather data for enhancement.

To establish a clear framework for making design decisions that balance immediate functional needs, quality standards, and
Design, business, and operations teams will collaborate continuously to ensure the design evolves with
Tailored to meet the family’s dynamic lifestyle, which revolves around evolved features of life.


Adopt a tiered design strategy balancing speed, quality, and future growth. Phase one meets urgent functional needs using modular, cost-smart materials. Quality baselines, brand integrity, and supplier standards apply to every variation. Continuous feedback guides phased upgrades, ensuring scalable architecture, enhanced experience, and documented decisions that evolve with client goals and technological opportunities over time.
Quality Assurance Across All Variations





The Glasshouse District - “The Draft Gallery”
We craft emotional, immersive, and memorable experiences combining cultural insights with visionary hospitality design.

This brand exemplifies how innovative thinking can redefine traditional models and create a lasting, transformative impact on both the business and hospitality sectors.
An elevated hospitality concept redefining skyline experiences through luxury, comfort, and curated design.
Stainability and storytelling should be woven into the brand narrative as a given,
Shaping spaces that are not just beautiful but also meaningful and responsible.
Combining stainability, technology, and client-centered strategies, Views – Hospitality is not just a destination

Details:
Increased natural light
LED lighting provides efficient
Carpet Tile is a recyclable
Saline / salt-water pools
Organizations are navigating a period of reaction and recalibration, balancing cost concerns with the need to attract and retain.

Master Planning shapes landscapes and guest journeys that build anticipation, seamlessly flowing into Architecture that frames experiences with moments of wonder. Interior Design deepens the connection, engaging the senses and transforming spaces into lasting memories. Branding weaves it all together, creating an emotional thread that welcomes guests before they arrive and stays with them long after they leave.
We are proud to announce that God’Vology is now an official user and specifying partner of Cosentino surfaces, a global leader in innovative and sustainable surface solutions. At God’Vology, we believe in aligning with brands that reflect our commitment to quality, durability, and environmental responsibility.
By incorporating Cosentino’s cutting-edge materials—such as Dekton® and Silestone®— into our hospitality, commercial, and mixed-use projects, we are able to enhance performance, reduce maintenance, and uphold the aesthetic and functional excellence our clients expect.
To respond to economic volatility and demographic shifts, many organizations have undergone major Real estate realignments and the implementation of new workplace strategies.


Moreover, we are committed to bulk ordering strategies that optimize material use and reduce longterm project costs. This approach not only supports our sustainable design philosophy but also ensures financial efficiency and project consistency across our growing portfolio.
We look forward to building a future where bold design meets responsible innovation.





Away from home for business meetings, this guest appreciates a home-like design but doesn’t Necessarily require space to fully settle in and unpack.
The business traveler demands
Intuitive design, so they can keep Focused, connected, and on pace

Traveling to where their skills are needed, these business professionals require a home base away from their actual homes and families. They require space to unpack and enjoy making their suite their own.
Extended business travelers want the ability to cook their own meals and appreciate great

Vacationing for an extended period of time, these guests choose their stay based on the unique attributes of the hotel and nearby attractions.

Seeking transitional housing due to a natural disaster or a job that requires them to move, these Guests seek all the comforts and conveniences of home.
Vacationers want to explore their local surroundings with a comfortable home-base to return to. They enjoy the added amenities
These guests appreciate that their furry friends are welcomed too, along with the ability to cook their own meals within space

“ FOR VIEWS-HOSPITALITY SIGNATURE BLACK, THE GOAL IS TO CREATE A MEMORABLE EXTENDED STAY PRODUCT IN THE MARKETPLACE USING SIMPLE, LUXIOUS MATERIALS, CLEAR ADJACENCIES, AND STANDARD CONSTRUCTION TECHNIQUES. “
The exterior design is created by combing a set of signature architectural gestures made up of key elements.
Each element has prescriptive direction that allows lexibility and interpretation in color, Material. And inish.
Guests and visitors can access Views – Opacity Indoor Bar & Restaurant directly through the hotel lobby, welcoming all to dine, unwind, and enjoy the atmosphere.
This lexibility provides owners and their Architects the opportunity to customize The Franchise owners can invest in Views –Hospitality Restaurant to earn a stake, with each hotel offering a built-in opportunity to generate diverse income streams and maximize site traffic under one roof.




Views – Hospitality introduces an innovative drive-thru concept designed to serve hotel guests, tourists, and the local community—boosting visibility, convenience, and overall profitability.
The hotel features two streamlined drive-thru ordering lanes, optimizing service efficiency and expanding access to on-site offerings.


A signature continental cuisine restaurant by Views – Hospitality enhances the culinary experience across its building series, offering refined, globally inspired menus.
The hotel’s formal front entrance provides an elegant arrival point for guest drop-offs, valet services, and rideshare pick-ups.


A private north-side entry is reserved exclusively for registered hotel guests, ensuring a secure and seamless access point.
The southern entry features a covered drop-off zone, thoughtfully designed for guest unloading and protected arrivals in any weather.
Mixed-use urban districts Will become a vital draw.
“ FOR VIEWS-HOSPITALITY SIGNATURE BLACK, THE GOAL IS TO CREATE A MEMORABLE EXTENDED STAY PRODUCT IN THE MARKETPLACE USING SIMPLE, LUXIOUS MATERIALS, CLEAR ADJACENCIES, AND STANDARD CONSTRUCTION TECHNIQUES. “
The exterior design is created by combing a set of signature architectural gestures made up of key elements.
Each element has prescriptive direction that allows flexibility and interpretation in color, Material. And finish.
This flexibility provides owners and their Architects the opportunity to customize The exterior and address the local feel

“ MIXED USE HAS BOTH THE BROADEST CAPABILITY AND THE MOST OPPORTUNITY TO BRING PEOPLE TOGETHER IN A ROBUST WAY. YOU NEED TO HAVE THAT VARIETY AND DIVERSITY OF USES, PEOPLE, AND EXPERIENCES TO BE ABLE TO GIVE PEOPLE A REASON TO SHOW UP. ”
Mergers and acquisitions, changing workplace dynamics, AI and other technological advancements, and the growth of consumer-led content and social media are fueling a dramatic shift in the way the media Industry does business
Immersive-experience
Venues will allow companies to capture and retain new audiences.


A/C and Venting on Roof
Cantilever structural pull system Solar located on the Roof
Parking and site planning


Every unit features a signature balcony—an essential element of the Views lifestyle.
and substantial material.
The facade blends dual-tone materials for depth, contrast, and modern appeal.
Authentic and substantial material.
THE EXTERIOR DESIGN IS CREATED BY COMBINING A SET OF SIGNATURE ARCHITECTURAL GESTURES EACH MADE UP OF KEY ELEMENTS THAT MAXIMIZE CONSISTENCY AND BRING PRESENCE TO THE MARKET PLACE. SIMUTLTANEOUSLY, THESE KEY ELEMENTS ALLOW FLEXIBILITY AND INTERPENETRATION IN COLOR, MATERIAL. AND FINISH. THIS FALLIBILITY PROVIDES OWNERS AND THEIR ARCHITECTS THE OPPORTUNITY TO CUSTOMIZE THE EXTERIOR AND ADDRESS THE LOCAL VERNACULAR.
A glowing L-shaped light bar unifies the band’s identity across all buildings.
Authentic and substantial material.
Living areas boast floor-o-ceiling windows, maximizing light and views.
Authentic and substantial material.
Black accent framing defines the window ones with bold, clean contrast.
Authentic and substantial material.
A continuous wrap material overlays the core black structure as the main architectural skin.
Authentic and substantial material.
Each building features a bespoke lighting accent, reinforcing the brand’s elevated feel
Authentic and substantial material.
An LED band traces the cantilever form, giving the brand its glowing architectural signature.
Authentic and substantial material. DID YOU KNOW THERE ARE ADDITIONAL EXTERIOR PAINT AND MATERIAL OPTIONS UPON REQUEST FROM YOUR A&C PARTNERS?
Immersive wellness and multisensory hotels energize the industry.
As entertainment and hospitality continue to blend, experiences such as immersive spas, multisensory yoga retreats, and story-driven


WITH PLACEMAKING, IT’S NOT JUST ABOUT DESIGN; IT’S ALSO ALL OF THE ACTIVATIONS AND EXPERIENCES THAT WILL HAPPEN THERE THAT WILL CONNECT PEOPLE WITH A PLACE.
“STAINABILITY AND STORYTELLING SHOULD BE WOVEN INTO THE BRAND NARRATIVE AS A GIVEN, SHAPING SPACES THAT ARE NOT JUST BEAUTIFUL BUT ALSO MEANINGFUL AND RESPONSIBLE.”
-“ Diane Thorsen, “

DID YOU KNOW THERE ARE ADDITIONAL EXTERIOR PAINT AND MATERIAL OPTIONS UPON REQUEST FROM YOUR A&C PARTNERS?
:
Hospitality Branding
Hospitality Experience
Brand Experience
The hospitality industry is undergoing a transformation toward highly personalized, immersive experiences that resonate with guests. These include sensory journeys that begin before the stay and linger long after. Experiences engage people through scents, textures, lighting, and personalized touches that extend a brand’s connection with the guest beyond the physical space. Meanwhile, hospitality design principles are being adopted in nearly every sector, including the workplace, retail environments, sports, and others, to improve loyalty and brand perception.






Vitro Glass “Solarban® R77”
Lower U-values indicate better insulating performance. Shading Coefficient is the ratio of the total amount of solar energy that passes through a glass relative to 1/8-inch (3.0mm) thick clear glass under the same design
Sliding Window “IFSC-4040-IP”
These windows undergo rigorous testing standards for debris impact, water infiltration and positive pressure to provide protection from hurricanes and impacts from strong storms.

Outdoor (IP65) UltraBright™
Outdoor UltraBright™ Architectural Series is built to last and to make lasting impressions irregularities to add timeless singularity to any design.


Aluminum “Composite panels”
This color’s hyper-realistic design perfectly recreates the depth of Roman travertine’s infamous porous structure, but with a nonporous finish that brings strength and beautiful
This color’s hyper-realistic design perfectly recreates the depth of Roman travertine’s infamous porous structure, but with a nonporous finish that brings strength and beautiful
“Architectural LED Strip Light”
The Architectural Series boasts brilliant brightness, excellent color rendering, and discreet elegance for any size project.
Aluminum “Frameless U Channel”
Easy to install, beautiful and safety, corrosion resistant, stylish and elegant, strong artistry , decoration, protection, practicality.
A smooth finish EIFS material that allows color and texture flexibility. A strong horizontal and vertical directionality with high relief to create shade and shadow on the building facade.
Revealing practical design solutions and ideas for reducing our carbon impact and leading the building
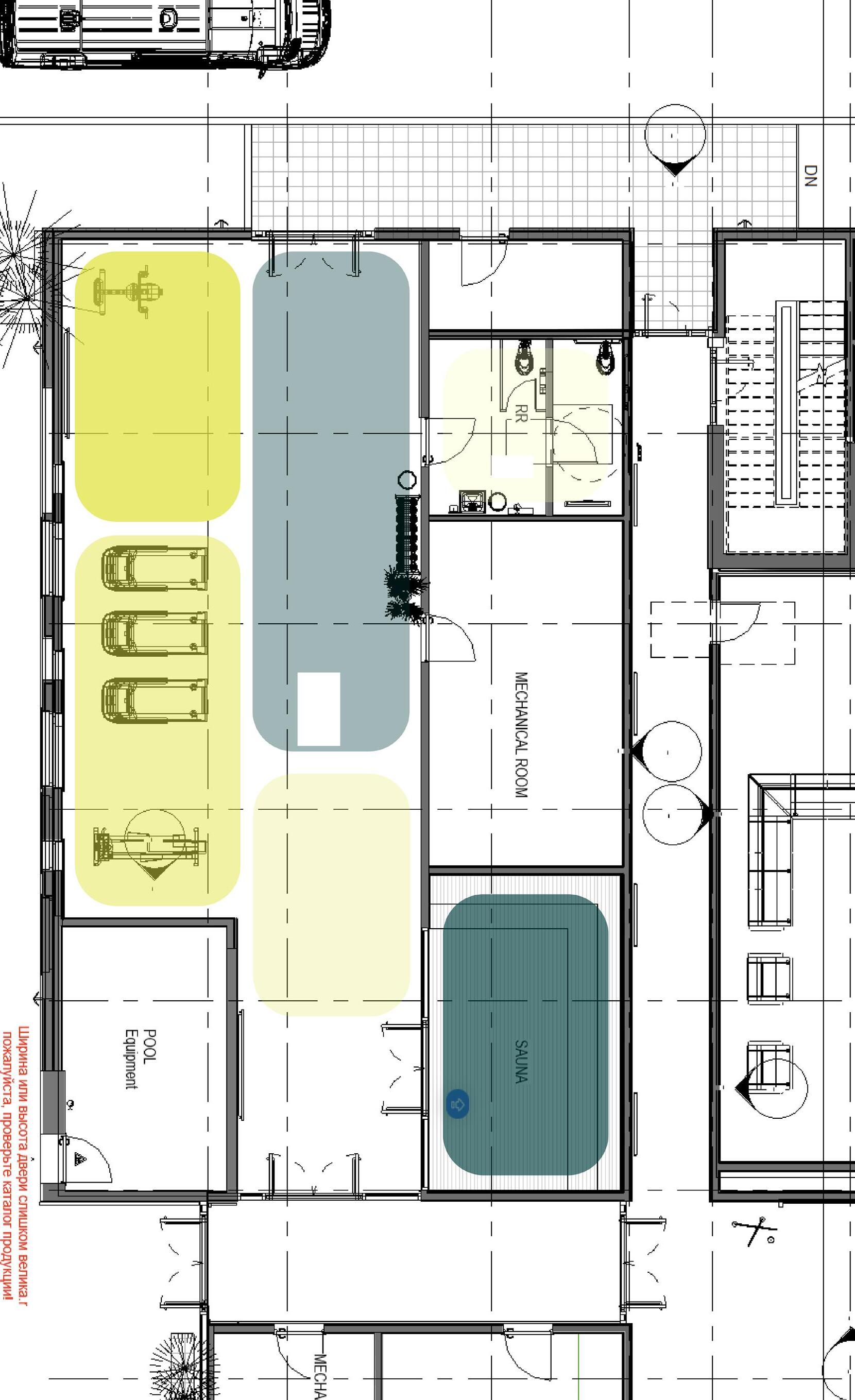
1 Functional Direction Zone – “Core Flow Zone”
Given the dynamic nature of this space, as well as trends and heavy demand, this zone is Designated as a “high-energy” area and as such will serve as the draw and epicenter of Activity for current fitness centers.This zone is placed near the strength zone and cardio zone so equipment can be interchangeable throughout the flow of a HT workout routine.
Required Elements:
•
2 Strength Zone – “Iron Ascent”
This traditional element of a gym is a core pillar for most workout routines. This zone is best supported with functional mirroring as well as impact and acoustical considerations for flooring
Required Elements:
• Ellipticals • Resistance Bands
3 Guest Recovery & Brand Commitment – “The Wellness Sanctum”
The Wellness Sanctum blends luxury and science with the signature L Light, offering organfocused chromatherapy for healing and balance. A full-spectrum wood sauna enhances recovery, while Cosentino Dekton finishes elvate the space. Designed for restoration, it reflects Views Hospitality’s commitment to wellness through light, heat, and intentional architectural design.
Required Elements: •


The REQUIRED Views Vitality concept is achieved by combining the mundane task of doing laundry with View - Hospitality focus on wellness and service. By Booking the guest laundry within the guest accommodations are encouraged and empowered to multi-task. Guest’s can get in a quick workout while their clothing are taken care of by the views - hospitality washing services. Burning calories on a stationary CYCLE or any of the fitness equipment and/or activities enables guests to achieve their Health and wellness goals.
Perch seating and convenience power is also provided for those guest’s wanting to send a few emails, power up their phones or do some casual work.
View - Hospitality understands that flexibility is key and that owners know their markets better than anyone else, so we have developed a new flex model fitness program to meet all your needs.
A focused workout environment provides inspiration for what is needed during peak usage time, maximizing layout efficiencies and suppting a wide array of workout options. Increased integration of functional training accessories reduces demand on single user cardio and strength equipment while increasing facility flexibilit, guest appeal, and overall satisfaction. Not only is activity great for physical well-being, it is good for the soul and goes a long way to resolving stress and anxiety while traveling.
Encouraging better sleep, our immune systems and cognitive health are greatly improved.


Lobby is the heart of the public space design. Providing a variety of seating and amenities, this integral space near the entry supports day to evening activation. Natural light and large windows are an important element which form an immediate connection to the Outdoor Lounge.

Here are some approved, but NOT REQUIRED, ideas to make your hotel perfect for your guests and location.

Enjoy our beautifully designed outdoor pool featuring lounge seating, lush landscaping, and skyline views, an ideal space for relaxation, social gatherings, or unwinding after a productive day.

Guests and professionals can opt into flexible hospitality apartment agreements, offering extended-stay comfort, personalized services, and seamless integration with our full suite of on-site amenities and concierge experiences.

Views Hospitality offers fully equipped office space and business accommodations, providing an efficient, private environment for professionals who value convenience, connectivity, and upscale worklife balance during their stay.

Our thoughtfully curated employee amenities include wellness zones, private lockers, break lounges, and staff-exclusive perks, ensuring a comfortable, engaging, and productive workplace experience for our hospitality team.



The Bedroom Suite is the sanctuary of the guest experience at Views – Hospitality. Thoughtfully designed with comfort and elegance in mind, each suite offers a seamless blend of residential warmth and elevated luxury. Floor-to-ceiling windows flood the space with natural light, creating a strong visual connection to the surrounding skyline and private balcony. Integrated lighting, layered textures, and curated furnishings provide a restful atmosphere that transitions effortlessly from day to night. This serene retreat reflects the brand’s core values—comfort, modernity, and a refined sense of place.
Guests enjoy exclusive access to our concierge services on-site signature dining, wellness amenities, and EVcharging valet parking. Whether you’re visiting for business or leisure, the One-Bedroom Suite at Views delivers a premium hospitality experience that’s personal, polished, and unforgettable.

Each of these elements is REQUIRED to be present in the Brand
The One Bedroom Suite was designed with the core Extended Stay guest in mind. It purposefully provides ample space for multiple guests and is the most exclusive type of suite in the ViewsHospitality guest suite room mix. Defined zones of functionality and experience allow guests to spread out and make the space their own.
Ample storage, lighting and convenient power throughout, Support the typical activities taking place in most luxury homes. Working, studying, gaming, surfing the internet, watching TV, Reading or cluster the furnishings together when desired. The luggage bench, hooks, and walk in closet offer different places for guests to store their belongings and support long term guest.
With the potential for four guests in this room, the required Full Kitchen/ living room spaces to allow guests to visually separate the room from Bedroom suite into two sleeping areas with Two Access Points of Entry. This provides a degree of privacy, As well as the flexibility to begin or end their day at separate Times.
The required signature kitchen provides ample storage for guests Items as well as cookware, dishware and cutlery.
The furniture is hyper functional and Flexible to accommodate all guest Experiences throughout the day.





Refer to Prototype Drawings set for ADA suite layouts




The kitchen storage has been optimized allowing adequate storage for cooking utensils and equipment, as well as, adequate storage for guest’s food supplies.
Open and closed storage opportunities help keep the kitchen looking organized and clutter free.
Properties now offer portable cook top dual burner units.
An open cubby has been included in the kitchen cabinetry design to accommodate this equipment.
The cubby leaves the counter top free for food preparation and dish drying.
• Apartment size refrigerator
• Microwave oven with under-cabinet lighting and venting
• Sink with garbage disposal
• Dishwasher (essential for housekeeping room turnover)
• Coffee maker
• Various pots, utensils and food storage containers to support meal preparation
Guests enjoy exclusive access to our concierge services on-site signature dining, wellness amenities, and EVcharging valet parking. Whether you’re visiting for business or leisure, the One-Bedroom Suite at Views delivers a premium hospitality experience that’s personal, polished, and unforgettable.
An elevated suite experience for up to four guests with a private bedroom, secondary sleeping accommodations and enlarged bathroom.

Each package is a comprehensive collection of furniture, decorative fixtures and interior finishes that have been thoughtfully designed with Views - Hospitality Suites owners and guests in mind. Every product has been fully developed with the specified suppliers to embody the prototype design and align with brand standards. The package includes solutions for new builds, conversions and renovations.
• Packages have supply chain efficiencies that generate substantial cost savings compared to using custom designs and suppliers.
• With specifications, shop drawings and finishes pre-approved, you can realize months of schedule savings for design, approvals and procurement.
•Fabrics are kept in stock and included with upholstered items so there’s no need to procure them separately with additional costs and lead times.
•Suppliers are selected through a competitive process by demonstrating the greatest overall value for hotel owners and pre-approved through a rigorous product development process.
•Pre-approved suppliers have dedicated support teams to service Views-hospitality Suites orders.
•Risk mitigation with owner-centric payment terms and negotiated product warranties.
•Commitment to Views-Hospitality’s Responsible Sourcing Policy and Supplier Diversity.
• Download the latest specifications from https://exampledesign.views-hospitality.com when you embark on a new project. Utilizing a prototype package holistically, with the pre-approved suppliers enables significant savings of time and money.
• If modifications are necessary to meet the needs of the hotel, you can work with the pre-approved suppliers to adjust dimensions, finishes and fabrics, subject to views-hospitality Design Review.
• Connect with the God’Vology Supply Management team of experts at Brand Name @example. com to learn more about implementing the benefits of pre-approved packages.





Vendors List King Studio Suite
Views - Hospitality has worked with specific vendors in an effort to provide a coordinated and longlasting
Design of key elements for the Views - Hospitality Brand. These elements are REQUIRED to be provided by a Views - Hospitality pre-approved vendor
The Studio Suite is the most predominant room type. Natural light and views to the outdoors are maximized and the layout is kept open, accentuating the feeling of ample space.
The Studio Suite was designed with the core Extended Stay guest
In mind. It purposefully provides ample space
• Apartment size refrigerator
• Microwave oven with under-cabinet lighting and venting
• Sink with garbage disposal
• Dishwasher (essential for housekeeping room turnover)
• Coffee maker
• Various pots, utensils and food storage containers to support meal preparation
• Open walk in closet adjacent from bathroom

The signage package is required and may not be customized or partnered with the opposing scheme. Or work with Approved FF&E Packages.
For the Vibrant Scheme, apple green has been utilized to Punctuate the Vibrant theme emulating the color of greenery in the natural environment. The bold green is paired with a Contrasting soft silver to visually lift off of the walls.
For the Dynamic Scheme, a universal gold has been combined with a deep black offering a deeper more contrasting direction Inspired by the built environment in lieu of nature.



Views - Hospitality Locanda artwork should always be comprised of bright, playful, saturated colors infused into the collection of varying subject matter, mediums and styles. Neutral mediums, black and white photography, and sepia print photography are never allowed.
The artwork throughout a Views - Hospitality property should always be eclectic. Subject matter must reference the hotel location, celebrating the neighborhood’s industries, architecture, History, and unique culture as appropriate for the chosen scheme (Vibrant or Dynamic).
Just as the art seen in one’s first home after leaving the nest, the art should convey an eclectic collection of found, bought, gifted, and crafted pieces that emote joy with reference to the hotel’s distinct location.
Always avoid political, racial or religious imagery. Subject matter must be globally sensitive so as not to offend anyone or alienate anyone or any culture.


The collection of art above has been curated for a Views - Hospitality Locanda in Houston, TX. It successfully incorporates very recognizable references to Houston centric industries, culture and history with variety, joy, saturated, color and mixture of style and mediums. Political themes were avoided, ensuring positive celebratory images.

The signage package is required and may not be customized or partnered with opposing schemes.
Views – Hospitality Hotel offers an elevated experience that seamlessly blends exceptional food, curated services, and modern mobility. At the heart of the property is the signature Continental Cursive Bar & Restaurant, serving refined continental cuisine and handcrafted cocktails for both guests and local visitors, with the added convenience of a dual-lane drive-thru for fast, highquality service. Guests enjoy a full suite of premium services including airport transportation, on-site car rentals, and dedicated EV charging stations. Signature-branded parking zones provide easy access for guests and visitors, while thoughtful entry points support smooth arrivals, departures, and valet operations. Every element is designed to create a connected, convenient, and stylish stay, anchored in the brand’s commitment to luxury and innovation..





| Visitor Experience
This is not an offer to sell or a solicitation to buy a franchise. The US Federal Trade Commission and some states and provinces regulate the offer and sale of franchises. Offers will only be made in compliance with applicable law, including providing a Franchise Disclosure Document where required. God’Vology Franchise Holding LLC, educational porpoises only.
BUSINESS - ARCHITECTURE CORPERATION C
Houston, Texas Harris County, 77375
Devonte.deon.collins@gmail.com