Masters of Science Architecture | Business innovation and entrepreneurship portfolio

Page 1


Funnel | Perspective

Funnel Toussaint is a three-story architectural project designed in undergrad for the Toussaint family, located in Dallas, Texas.

The design emphasizes luxury and functionality, with spaces dedicated to entertainment, relaxation, and creativity, making it an ideal retreat for the family’s active and social way of living.

Before The Renders

Conceptual Development: Exploring initial ideas and translating the client’s vision into a cohesive plan, including space utilization, functionality, and aesthetic direction.

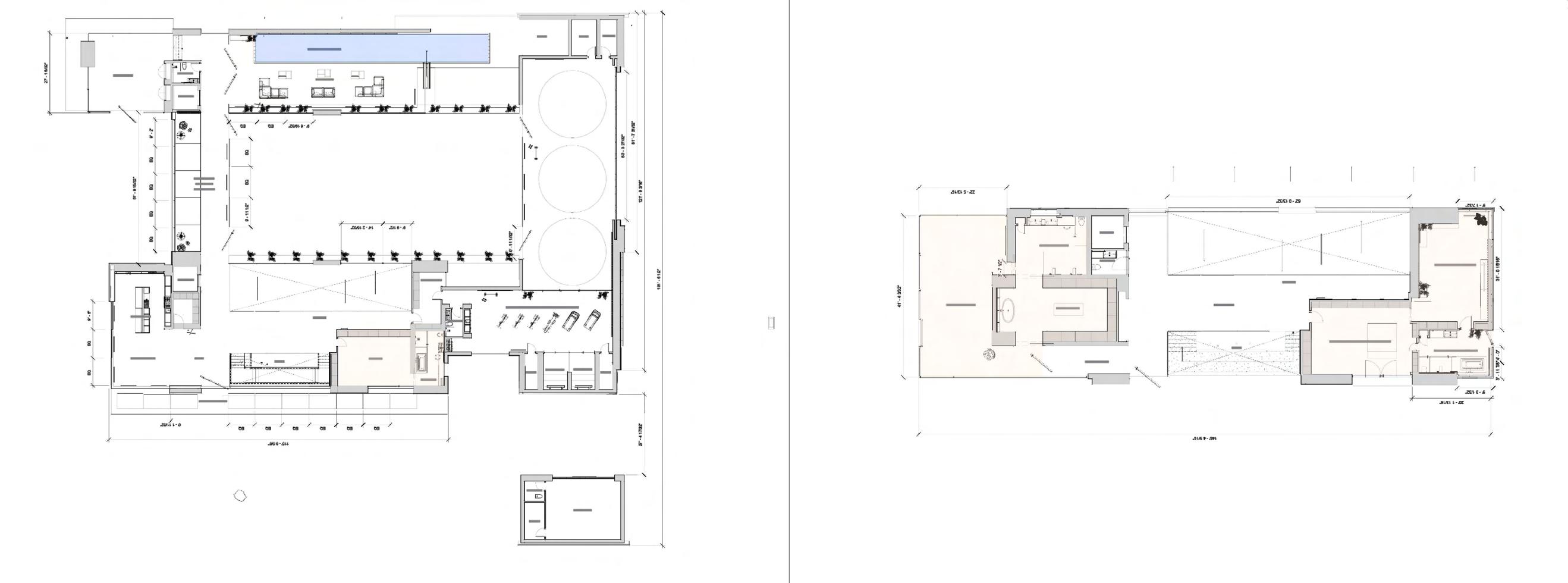
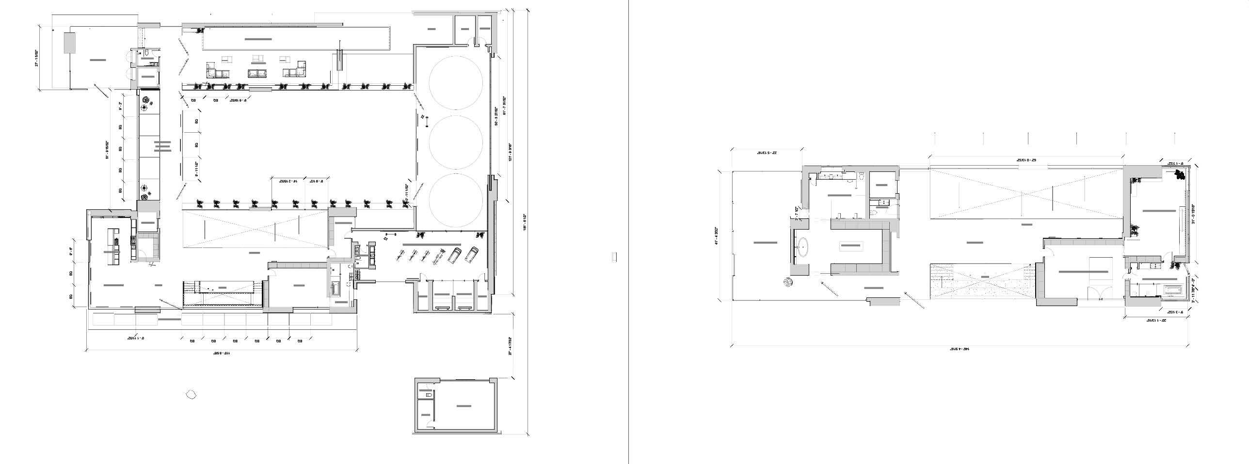
Funnel Toussaint

Our Adaptive 14 Design Model is a versatile and innovative framework that integrates flxibility, efficiecy, and modern aesthetics into architectural projects.

Three Pools Before The Redesign

The home was tailored to meet the family’s dynamic lifestyle, which revolves around sports, music, cooking, and social gatherings. One of its most remarkable features is the trio of pools, with a stunning waterfall cascading into the basementlevel pool.

LA Modern Meets Contemporary Dallas

features top-of-the-line Gaggenau appliances, combining cutting-edge functionality with sleek, modern aesthetics.

The kitchen’s design is tailored for culinary excellence, with a spacious open layout, premium finishes. state-of-the-art

The design reflects a perfect blend of sophistication, comfort, and functionality for the Toussaint family's vibrant lifestyle.

Water Fall Bridge

The home combines clean lines, expansive glass facades, and open-concept living spaces typical of LA modernism, while incorporating the warmth and grandeur that defies Dallas' contemporary style.

Levels - Admin

Its three-story layout seamlessly integrates indoor and outdoor living, featuring spacious entertainment areas and a trio of luxurious pools, including a stunning waterfall cascading into the basement-level pool.

Funnel Toussaint merges the sleek elegance of LA modern architecture with the bold, dynamic elements of contemporary Dallas design.

Before The Renders

Conceptual Development: Exploring initial ideas and translating the client’s vision into a cohesive plan, including space utilization, functionality, and aesthetic direction.

Materials and Company research Process Implementation

Three Pools Before The Redesign

Our Adaptive 14 Design Model is a versatile and innovative framework that integrates flxibility, efficiecy, and modern aesthetics into architectural projects.

"The design showcases a meticulous approach to researching company websites and factory products, enabling the implementation of precise specifications ad seamless integration into the design model. This ensures a cohesive and wellexecuted final poduct tailored to meet both client needs and manufacturing standards."

The home was tailored to meet the family’s dynamic lifestyle, which revolves around sports, music, cooking, and social gatherings. One of its most remarkable features is the trio of pools, with a stunning waterfall cascading into the basementlevel pool.

Water Fall Bridge

The home combines clean lines, expansive glass facades, and open-concept living spaces typical of LA modernism, while incorporating the warmth and grandeur that defies Dallas' contemporary style.

Three story open Area

Its three-story layout seamlessly integrates indoor and outdoor living, featuring spacious entertainment areas and a trio of luxurious pools, including a stunning waterfall cascading into the basement-level pool.

Funnel Vs Perspective

In the top image, Perspective Toussaint reflets the businessoriented vision of the Funnel Toussaint project, where family lifestyle and professional endeavors are seamlessly integrated. This perspective showcases a holistic design approach that merges the family’s passion for sports, music, cooking, and social gatherings with a strong business foundation.

•New Beam Trust

•23 million program to 34 million program

•Newer Technology

• 2nd Design

Lorem ipsum dolor sit amet, consectetur adipisicing elit, sed do eiusmod tempor incididunt ut labore et dolore magna aliqua. Ut enim ad minim veniam, quis nostrud

Ipsum dolor sit amet onsectetu.

LA Modern Meets Contemporary Dallas

The

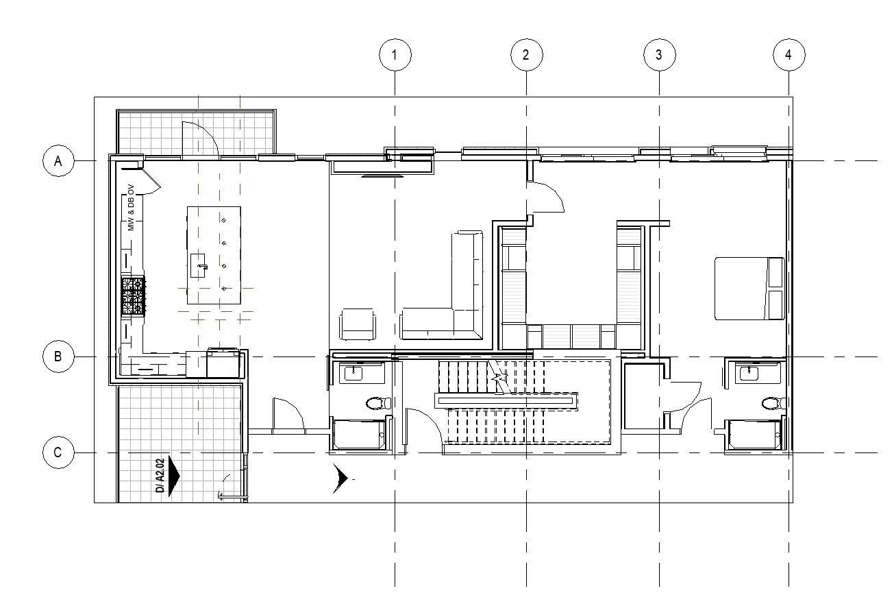
FLOOR PLANS

| Three Pools | 6 Beds 9 Baths

ABOUT US

Creative alignments with like-minded partners will help brands leverage different types of influencers, attract new audiences, grow market share through association, and ultimately deliver on what their audiences care about.

AMAZING CREATION

Project Hove is an ambitious and transformative architectural proposal set to create a significant and lasting impact on the community by integrating music, business, and sports industries. Designed to become an iconic landmark, the development will feature a multi-faceted space that includes a stadium for concerts, luxury hotels, residential units, retail, shopping, office and sponsorship collaborations.

One of the project's highlights will be its sponsor-enhanced buildings, which will feature cutting-edge designs and serve as the world’s finest adult entertainment and music hub, an “adult Disney World” for the music and entertainment industry. This unique tourist destination will be a key attraction for Roc Nation and its partners, providing a space for global events, exclusive concerts, and entertainment experiences that draw visitors from around the world.

Through this integration of diverse industries and innovative architecture, Project Hove will serve as a central hub for music and entertainment, while offering business opportunities, cultural experiences, and residential luxury, further positioning itself as a driving force for tourism and economic growth in its community.

Narrative

Overview:

At the GoodVology Sports Entertainment Facilities we believe that sharing a meal does more than satisfy hunger across communities, cities, and cultures. Here, food is part of an immersive experience that goes beyond eating; it’s about crafting, discovering, celebrating, and investing in unforgettable moments. Whether gathered around tables, private suites, lively bars, or in dynamic outdoor settings across the United States, we create an atmosphere where fans unite to cheer on their favorite teams, blending culinary excellence with the passion of sports.

Design Pattern

Every Ingredient Matters

Each piece of the dinning expereince is important, from the ingredients to the enviorment

Design Expressions

•Set the Scene for the Digital Design Expereince

•Crafted moments to express the vision for the

Strenthgen relastionships with Dinning, Sports lounges, Private Bar, Outdoor Activites, Private rooms, Back of House, and Kitchen/business ops

•Flexibility and Variety to produce revenue driven

Enlivening Senses with Flexibility

Good Meals Make Memories

Food Engages us through smell, taste, touch, and sight and piques our curiosity. While light enhances our sight, emotions, expressions, and feelings

Design Expressions

•moments of joy, surprise and discovery

•Experiential, tactile and textural

•place for experimentation and creativity

• Showcase innovations and Industry*

•Authentic, not fussy or pretenious

• Innovative quality materials, and techonology

The Social act of taking a meal with friends or family is what creates the best memories.

Design Expressions

•Spaces for cross brand collaboration

•Bring excitement and energy to the space

•Modern and connected

• Space to innovate, experiment and learn through wayfinding **

• Private stadium style suites and lounge space

•Indoor - outdoor events and hosting

A reinterpretation of the visual richness of Campaspero stone and its perfect imperfections. Its realistic patterns combine an irregular beige canvas intercepted by gray and cream veins and subtle fossil inlays. The beauty of classic limestone recoded with the strength of Dekton.

•GoodVology Project 1 of 6 RESTAURANTS/QSR/DRIVETHRU

GoodVology Brand Restaurant - Highrise - Hotel

bar and lounge setting. It integrates technology, dining, and entertainment into a unique customer environment.

Drive-thru Detail

•Brand design across all buildings

•Multi-use display and way finding

•3 Spoke GoodVology Digital Design display

•Lounge Setting

•Business and Architectural Integration

Creative alignments with like-minded partners will help brands leverage different types of influencers, attract new audiences, grow market share through association, and ultimately deliver on what their audiences care about.

ABOUT US

This color’s hyper-realistic design perfectly recreates the depth of Roman travertine’s infamous porous structure, but with a non-porous finish that brings strength and beautiful irregularities to add timeless singularity to any design.

"Designed to be a stepping stone in a Residential Development."

Designing The Digital Lounge Experience and Bar as a multi-location, nationwide development involves creating a dynamic and scalable concept that can adapt to different regions, environments, and customer preferences across the United States.

•Dynamic Bar Lighting with Hue Play Bars

•Lounge Setting

•Interactive Mood Zones

•VIP and Private Dining Areas with Custom Lighting Themes

GoodVology Brand

Restaurant - Highrise - Hotel

Polar DEKTON - PIETRA EDITION
The Digital Experience Restaurant

Branding & Aesthetic. upcoming....

Branding & Aesthetic. upcoming....

Colors and Materials: Choose a neutral, modern color palette like grays, whites, or muted blues to create a professional yet relaxing environment. Materials such as wood, metal, and soft fabrics give the space a contemporary feel while maintaining warmth.

Wall-mounted fla -screen TVs or touchscreen displays can enhance the digital experience, providing users with access to interactive content, digital signage, or entertainment.

Re-imagined Into Hospitality upcoming....

Architecture Proposal: The Digital Experience Lounge Headquarters

The GoodVology Digital Experience Lounge & High-Rise is a visionary development designed to revolutionize entertainment, business, and talent acquisition within the music and performance industry. At its core, the project features a state-of-the-art bar and lounge, offering a premier space for social engagement, exclusive entertainment, and VIP events. Complementing this is a world-class training facility equipped for professional dance, fitness, and multimedia performance development. The venue also boasts cuttingedge TV production capabilities, allowing for high-profile corporate events and artist showcases.

A key highlight of the development is the Luxury Digital Art Museum, an immersive space featuring curated, interactive digital art installations and multimedia experiences. Additionally, the project integrates a technology-driven workspace, providing smart, flexible co-working environments tailored for modern professionals and creatives. Sustainability is also at the forefront, with LEED-certified energy efficiency and Tesla solar solutions reducing operational costs and environmental impact.

Beyond entertainment, this proposal establishes a full-scale production network and training hub, offering guest entertainment, luxury amenities, and high-end residential spaces for both emerging and established artists. Designed to attract investors, industry leaders, and nightlife enthusiasts, the GoodVology Digital Experience Lounge & High-Rise is set to redefine urban living by merging high-performance entertainment, innovative technology, and cultural influence into one dynamic destination.

Model Shown With Plans for Artist, Performers, and Residents for Music Label | Performance Company

STUDIO

Green Building Certification: Targeting LEED Silver or higher.

Tesla Solar Energy Solutions: Integration of solar panels for energy efficie cy and taxsaving incentives.

Smart Systems: LED lighting, automated HVAC systems, and natural daylight optimization.

Recycled & Low-VOC Materials: Sustainable floo ing, wall treatments, and furnishings.

Biophilic Design: Indoor greenery to promote wellness and improve air quality.

The NRG AstroDome in Houston, Texas

ABOUT US

DESCRIPTION:

This color’s hyper-realistic design perfectly recreates the depth of Roman travertine’s infamous porous structure, but with a non-porous finish that brings strength and beautiful irregularities to add timeless singularity to any design.

"Designed to be a stepping stone in a Residential Development."

•GodVology Project 4 of 6

GoodVology Brand Restaurant - Highrise - Hotel

Designing The Digital Lounge Experience and Bar as a multi-location, nationwide development involves creating a dynamic and scalable concept that can adapt to different regions, environments, and customer preferences across the United States.

•Digital Design Experience

•Multi-use display and way finding

•Dynamic Bar Lighting with Hue Play Bars

•Lounge Setting

•Interactive Mood Zones

•VIP and Private Dining Areas with Custom

Lighting Themes

MENS BATHROOM
BATHROOM ADA
Digital Experience Design and Way Finding

Digital Restaurant Experience for events - music - awards - sports

Digital experience design (DXD) is the process of creating digital products and services that are engaging, seamless, and meaningful for users. It's a broad approach that considers the entire user journey, from discovery to ongoing engagement.

New Building

PROTOTYPE

•new plan for National build out Entry •NEW BUILDING FLOOR PLANS IN PROGRESS

Good'Vology’s Compact Digital Lounge

QSR: A New Era of Fast Food

This new QSR model is more than just a restaurant, it's a multi-experience, hybrid space that merges fast food convenience with upscale digital dining and lounge culture. It’s built to evolve with the user, throughout different moments of the day or event cycles. Revolutionizes what QSR can mean in the 21st century: not just fast food, but a lifestyle platfom.Creates repeat service opportunities through multi-use programming (meals, events, nightlife).

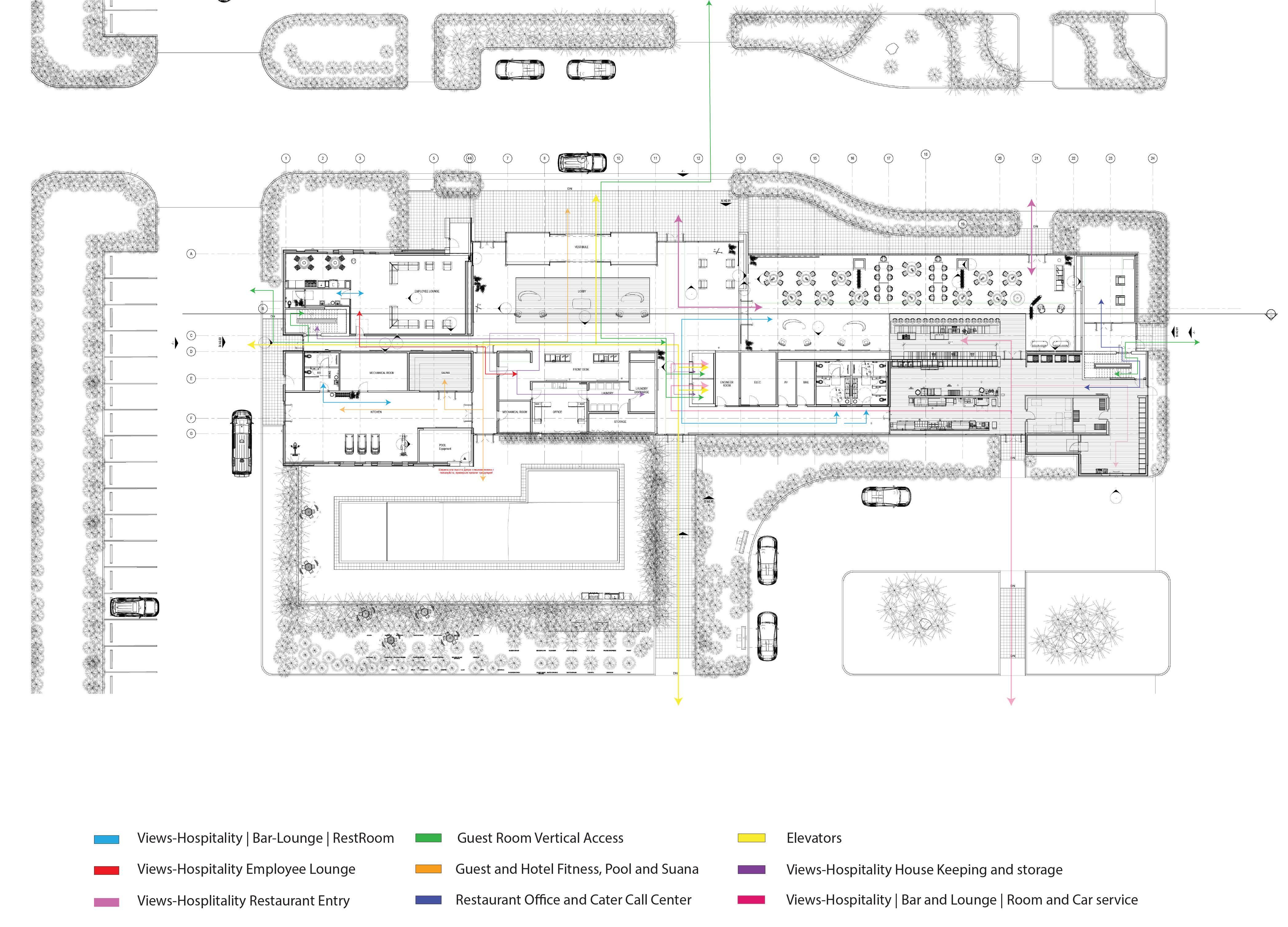
Views-Hospitality

IEN Masters of Science Business Innovation and entreprenuership

Material Selection in Progress Base off Region | Brand Design

By

GoodVology Brand

Restaurant - Highrise - Hotel

Views-Hospitality Hotel is an upscale destination that combines modern luxury with innovative design. Featuring spacious guest rooms and exceptional amenities, the hotel includes the Collins-Hill Digital Lounge, a vibrant space where guests can relax, collaborate, and enjoy seamless connectivity. The lounge offers advanced technology and

comfortable seating, creating an inviting atmosphere for both leisure and business travelers.

• For Entertainment purposes only

•GoodVology Project 5 of 6
"Inspired
Moody Nolan to combine brand design, Adaptive Reuse Architecture with IEN CFROBA

• Pushing Boundaries, Elevating Guest Experiences

•4th floor
• Old Floor Plan

Fire-Rated Doors

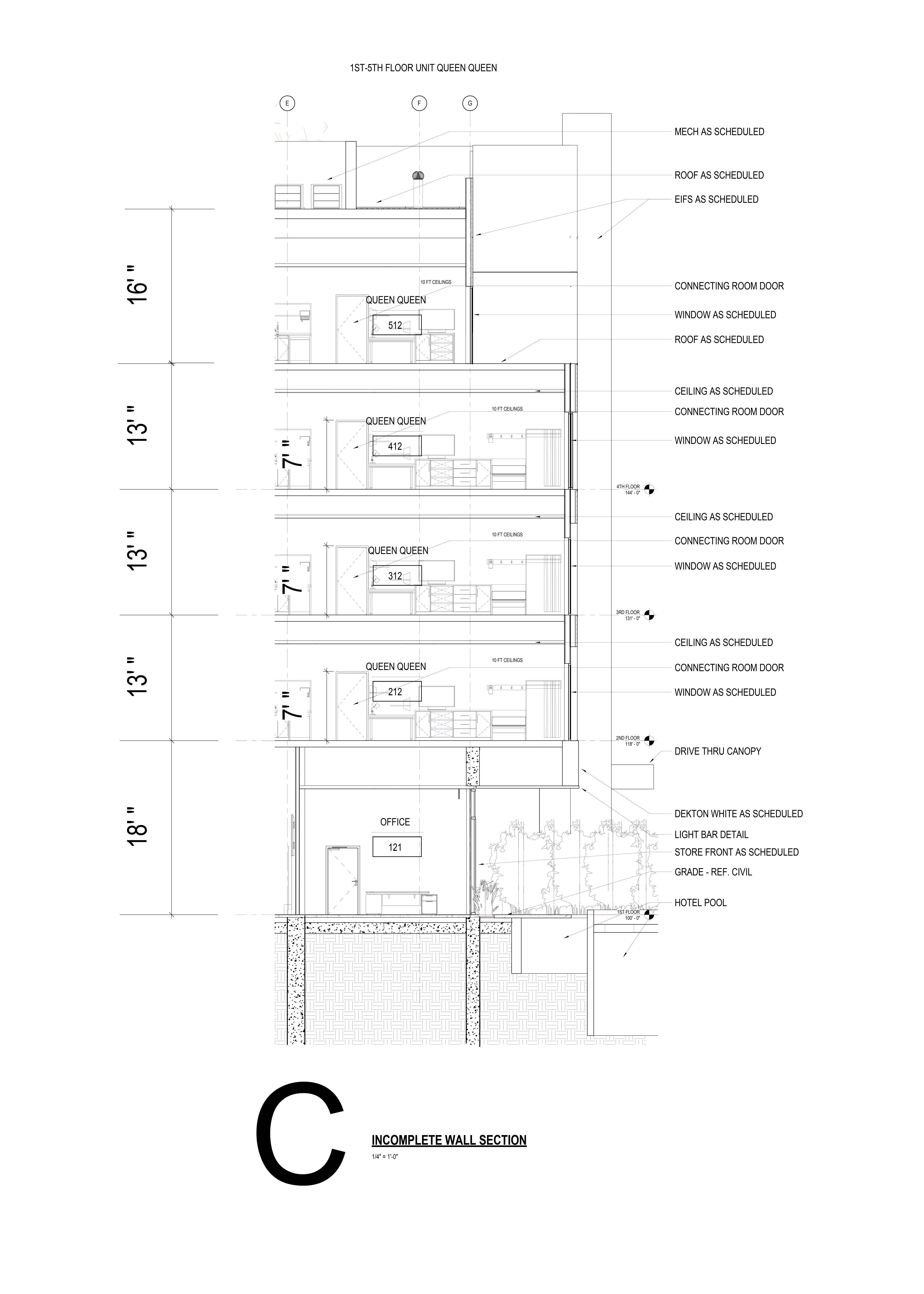
Ensure that transitions between different zones, especially fire escape routes, comply with fire safety regulations. Firerated doors and walls should be installed as needed to protect guests and staff.

Acoustic Insulation

Ensure soundproofing between public spaces (e.g., bars, lounges) and guest areas. Use acoustic-rated walls, doors, and windows to maintain guest privacy and comfort.

Corridor Design

Transitioning from the lobby to guest rooms involves corridors that should be well-lit, have consistent design language, and provide easy navigation.

Cultural storytelling and hospitality

Designing for Equity at Views – Hospitality

we prioritize equitable design solutions that foster inclusivity, comfort, and representation. Our spaces are thoughtfully crafted to serve diverse guests and communities, ensuring every experience reflects a commitment to accessibility, cultural relevance, and elevated hospitality for all.

to Bedroom Transition

Pay attention to the floor maerials when moving between the bathroom (tile or stone) and the bedroom (carpet or wood). Ensure moisture control at the threshold to prevent slips or water damage.

Welcoming the Collins Hill & Grill As a DBA Brand Development

Regenerative Design as the New Luxury

In today’s evolving hospitality landscape, true luxury Hotels are now reimagining their role not just as destinations, but as stewards of the ecosystems and communities they inhabit. Regenerative design is at the forefront of this movement, where architecture works in harmony with local Business landscapes. Hospitality, at its highest form, becomes a catalyst for Business and cultural revitalization.

models, it is rooted in architectural excellence, brand-driven identity, and economic feasibility, offering a platform where function meets aspiration.

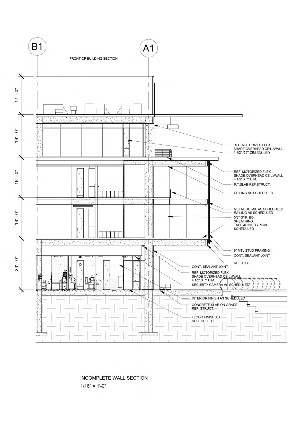
Restaurant and Lounge Ceiling

A continuous ceiling light detail flows from the lobby through double glass doors framed in metal, visually linking the lobby to the bar and lounge. It enhances spatial rhythm, subtly illuminating the threshold while unifying both zones with elegance and intent.

The one-bedroom suite at Views

Hospitality is tailored for corporate executives seeking short-term or extended stays. As the only unit with a private balcony, it offers exclusive outdoor access, blending refined comfort, privacy, and elevated amenities for a premier business travel experience. guest experiences shaped by aspirational lifestyle leadership.

"Third-Party

Integration for Revenue Growth"

Third-party services like DoorDash, Uber Eats, and Grubhub offer dual promotional value increasing hotel food service revenue and increasing brand visibility. These platforms connect global tourists and local communities, expanding the hotel’s reach across industries while reinforcing convenience, accessibility, and modern hospitality engagement strategies.

Competing with Hilton, Marriott, and Hyatt

Views – Hospitality by Good’Vology sets a new standard through research-driven economically strategic, and client-focused design. Every decision responds to the needs of local communities, ensuring that our spaces are both culturally relevant and commercially impactful, redefining modern hospitality. These are defined by GSS (Guest Satisfaction Survey) and ITR (Intent To Recommend).

STUDIO

We design with passion and purpose to shape beautiful communities. We foster an environment where creativity thrives and innovation leads. Every business is empowered to grow and make lasting impact.

Researched Backed Business Design

•Finance statements and analysis

•Property Services

11 mins from IAH AirPort

Main Floor Plan

INNOVATIVE WORKPLACE ENVIRONMENTS - IEN FULL SAIL UNIVERSITY

• Digital Expereince Design Branding

Digital Advertisement OLED Display of building amenities and tv production paid ads + partnerships

GoodVology Brand

Restaurant - Highrise - Hotel

HALO APARTMENT- HIGHRISE

Its innovative design promotes a modern lifestyle with sustainable building practices, cuttingedge technology, and high-end amenities. The development also includes entertainment venues and community spaces, making it a premier destination for both residents and visitors, while fostering a thriving and connected urban experience.

•GoodVology Brand

•GoodVology Digital Lounge

•Full Sail University IEN

• inspired by Gensler Strategist -workplace- approach

•Building in Progress Featuring

•Corperate HQ

•Highend Residential

•Hospitality

•Restaurant

•Entertainment

•Real Estate

•Cleint Inquiry

The financial statementsand nvestment opportunitiesfor Goodvology branddevelopments are Available upon request

Goodvology employs cutting-edge fnancial tools andsustainable practices to maximize profitability

Theincorporation of renewable energy in developments, eco-friendlymaterials like Cosentinos Dekton, andleveraging Adobe Suites and Pevit indesign processes ensures operational efficiency while positioningthe brand at the forefront of innovation

This combinationof financial transparency andstrategicinvestment opportunities as promising and innovation brandforpotentialinvestors lookingto engage in real estate, hospitality, technology,and architecture Assets

GoodVology Brand

Restaurant - Highrise - Hotel

Cantilever Design

navgating structural butterfly engineering of building

The massive cantilever design supports the 3rd to the 13th floo s on the west side of the Halo

Mixed-Use Development. This structural feature is integral to the building's architectural identity, creating a striking visual statement while maximizing the functional use of space beneath. Cantilevered structures, like this one, enable expansive floor a eas to extend outward without the need for vertical support columns below, contributing to the innovative livework-play model of the development. This design element also enhances the building's dynamic form, offering both aesthetic appeal and practical urban solutions from the butterfly engineering

Height For Additional Financal Planning | Structure grid Supports additional Floor levels

New Addition
• AdditionalLevels

Elevation drawings for the HALO Mixed-Use Development

These elevation drawings would provide a comprehensive view of the HALO MixedUse Development, showcasing the building’s massing, material choices, interaction with the urban environment, and integration of luxury features like rooftop amenities and acoustic treatments. Each elevation should offer clarity on both the functional and aesthetic aspects of the design, contributing to the overall success of the project.

STUDIO

We design with passion and purpose to shape beautiful communities. We foster an environment where creativity thrives and innovation leads. Every business is empowered to grow and make lasting impact.

• Researched Backed Business Design

• Finance statements and analysis

• Property Services

• NEW BUILDING FLOOR PLANS IN PROGRESS

Digital Lounge Brand Comes to HALO

Integration with Mixed-Use Development

The residential spaces inside the Halo Highrise are designed to offer a cutting-edge urban living experience, seamlessly blending luxury, functionality, and modern aesthetics. Positioned within a mixed-use development, the Halo Highrise features residential units that cater to individuals seeking a contemporary lifestyle amidst a vibrant environment of business, culture, and entertainment.

HALO Mixed-Use DevelopmentBuilding Details

the architectural detail drawings would focus on key aspects of the building's design, including the façade, structure, material integration, and specialized spaces.

These drawings are crucial for a comprehensive understanding of the HALO Mixed-Use Development, allowing builders, contractors, and consultants to translate design concepts into reality.

IEN: Master of Science

Innovation and Entrepreneurship Master of Science

The program supports the goals and aspirations of traditional entrepreneurs, as well as “intrapreneurs” who will promote innovation and change within companies (or even “inventrepreneurs” who create new products for handoff to others).

Development and Leadership

Creativity and Innovation

Design Proposal: OneBedroom Apartments (5th-11th Floors)

The one-bedroom apartments at HALO highrise combine luxury and functionality in a modern, urban setting. These units are designed to maximize space, comfort, and natural light, providing residents with an upscale living experience. The use of sustainable materials like Dekton, integrated smart home technologies, and highend finises ensures that HALO's onebedroom apartments offer both style and substance, making them an attractive option for individuals seeking refied city living.

HALO Highrise

Design Proposal: TwoBedroom Apartments (5th-11th Floors)

-HALO Highrise Development

The two-bedroom apartments in the HALO highrise offer modern urban living with luxury finises, ample space, and smart home technology. Designed to meet the needs of professionals, small families, or roommates, these units provide a premium living experience, blending comfort and elegance with the dynamic lifestyle of a mixed-use development.

HALO APARTMENT- HIGHRISE

HALO Mixed-Use Development is a visionary urban project designed to redefine city living by integrating residential, commercial, cultural, and entertainment spaces. Featuring luxury apartments, state-of-the-art office spaces, curated retail stores, and a vibrant dining scene, HALO creates a dynamic live-work-play environment. Its innovative design promotes a modern lifestyle with sustainable building practices, cutting-edge technology, and high-end amenities. The development also includes entertainment venues and community spaces, making it a premier destination for both residents and visitors, while fostering a thriving and connected urban experience.

Application of Dekton Material on HALO Mixed-Use Development

The integration of Dekton by Cosentino into the HALO MixedUse Development enhances both the functional and aesthetic qualities of the project. Its versatility allows for wide-ranging applications that meet the demands of a mixed-use space, while its sustainability and durability align with the development’s goals of creating a modern, innovative, and eco-friendly urban environment.

Business Architecture

The Driving force behind my progress remains rooted in Architectural elements of Building Science and global psychological evolution. we discover and process architecture design and planning while guiding one through the implantation of business feasibility studies, models, and implementation stregeties to their associated business developments. this approach aims to attract clients, investors, and stakeholders through collaborative learning and professional development. But is this effort enough to capture the attention of the right guest, employees, owners, tenates customers, tourist, or bank opportunities for funding your business and investments?

We Ambitiously apply market case studies and future innovative implementation stretiegies during the architecture design and planning process to ensure portability oppertunities that are normally missed during competitors in like markets to place your business in new sectors of attraction.

Brands have the opportunity to reframe their message by connecting to people with authenticity and purpose. We help brands build greater business value by imagining new ways of bringing people together, elevating brand experiences from the ordinary to the extraordinary

The Powerful Influence of Business Innovation

Turn static files into dynamic content formats.

Create a flipbook
Issuu converts static files into: digital portfolios, online yearbooks, online catalogs, digital photo albums and more. Sign up and create your flipbook.