Skip to main content

PORTFOLIO OF KRISHAN DEV PANDIT, IOE PURWANCHAL CAMPUS

Page 1

PORTFOLIO R L I T F P O KRISHAN DEV PANDIT 076bar012@ioepc.edu.np O JANKAPURDHAM,DHANUSHA,NEPAL 9816847614 krishanpandit09@gmail.com

TABLEOFCONTENT TABLEOFCONTENT

RESIDENCE DESIGN

COMMERI COMPLEX

SHEET WORK AND MODEL

COW SHED DESIGN

SCHOOL

BOOK LAMP DESIGN

GREEN DC LIGHT IS USED

B1. THE CONCEPT
REFRESHMENT REST . '' E LIF REP PH TRA SEN AG CO
LAMP
TRANSFORMATION

RESIDENCE DESIGN 2.

THE RESIDENCE BUILDING WAS DESIGNED FOR LAWER . THE RESIDENCE IS DESIGN AS COMBINATION OF TRADITIONAL AND MODERN STYLE. THE COURTYARD IS PLACED AT THE CENTER OF RESIDENCE TO PROVIDE BETTER AIR AND SUNLIGHT INSIDE THE RESIDENCE.

CONCEPTUAL SKETCH

CREATING CENTRAL COURTYARD,WHICH ACTS AS AIR TUNNEL IN THE HOUSE

INNER COURTYARD IS CREATED TO CONNECT THE FAMILY EITH NATURE

IT PROVIDES FEELING OF VILLAGE TO THE FAMILY

ZONING

FLOOR PLAN FIRST FLOOR PLAN ROOF FLOOR PLAN
SOUTH ELEVATION EAST ELEVATION NORTH ELEVATION WEST ELEVATION
RENDER IMAGE
NORTH -WEST VIEW NORTH -EAST VIEW
NIGHT VIEWVIEW SECTION X-X

3.SPORTS SCHOOL

swimming pool

THE MAIN IDEA WAS TO DESIGN SPORTS SCHOOL WHICH PROMOTES BOTH SPORTS AND ACADMEIC ACTIVITIES .

CONCEPT

USING NORTH CONTOUR AS VIEWING SPACE FOR COMMUNITY PEOPLE TO WATTCH GAMES

USING CLERESTORY LIGHT IN THE CLASS ROOM

CREATING GATHERING

SPACE F AND COURTYARD

MUTIPLE SPACE

FOOTBAL GROUND IS PLACE TOWARD COUNTER SIDE,WHICH WILL CREATES NOISY .SO ACADEMIC BLOCK IS PLACED AWAY FROM IT

AT
CLASS ROOM AUDITORIUM
ADMIN BLOCK MULTIPURPOSE HALL FOOTBALL GROUND INNER BASKEBALL COURT LIBRARY HOSTEL
BADIMINTON COURT GIRL
BOYS HOTEL

CLASSROOM VIEW PLAN

CLASSROOM VIEW

SECTIO

SOUTH ELVATION

ION AT X-X

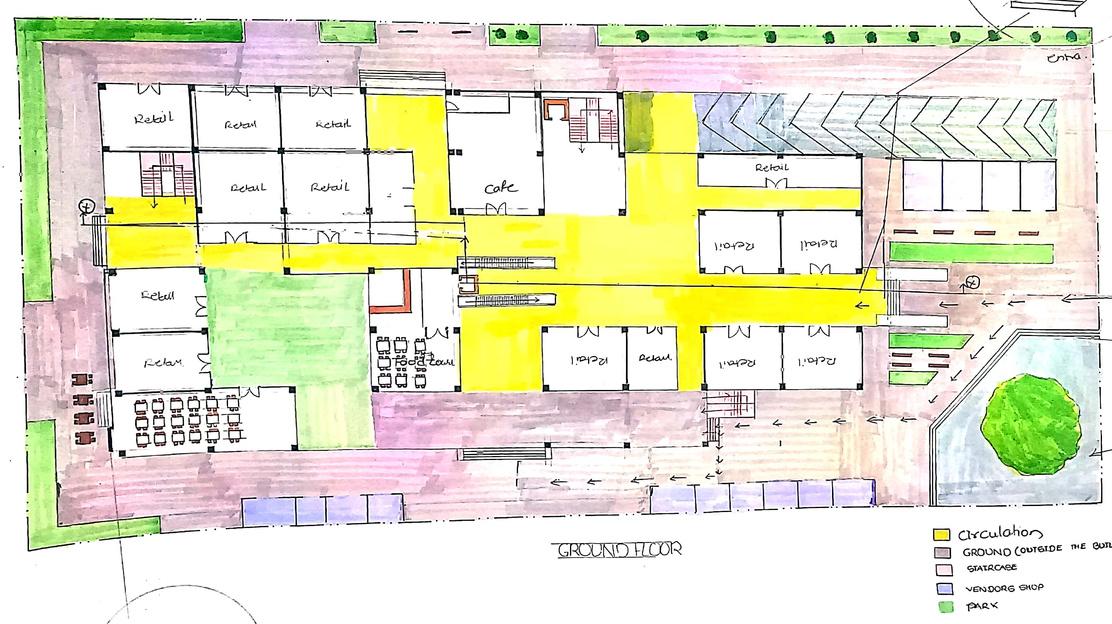
4. COMMERICAL COMPLEX DESIGN

CONCEPTUAL SKETCHES

basement plan

CREATING CHAUTARI AS A TRADITIONAL GATHHERING SPACE

PARK IS REQUIRED IN THE SITE SO PARK IS CREATED IN THE SITE

PLANNING TO DESIGN AS MULTIPLE BLOCK FOR AIR CIRCULATION

FORM DEVELOPMENT

CREATING FOCUS ENTRY

TAKING RECTANGLE SHAPE AS A STABLE SHAPE

CRATING PARK

SEPARATING INTO MUTIPLE BLOCK

CREATING BLOCK AT DIFFERENT LEVEL

first floor plan

second floor plan

third floor plan

fourth floor plan

ENTRY

EAST ELEVATION

WEST ELEVATION

EAST ELEVATION

WEST ELEVATION

SOUTH ELEVATION

NORTH
ELEVATION
ISOMETRIC VIEW
MUTIPLEX LIFT BASEMEN T RETAIL SHOP
SECTION AT X-X

COW SHED DESIGN

THE IDEA WAS TO DESIGN A COW SHED IN MINIMUM LAND AND WITH IN MINIMUM CONSTRUCTION COST THE COW SHED SHOULD ALL THE FACILITIES WITH IN MINIMUM LAND

QUARTER MATERNITY AREA COW SHED FEED STORAGE ISOLATION WARD WATER TANK OFFICE COW DUNG STORAGE
INTERIOR PICTURE OF COW SHED PHYSICAL MODEL

DRAWING

SKETCHES AND PHOTOGRAPHY

MODEL WORKS

KRISHAN DEV PANDIT

076bar012@ioepc.edu.np

krishanpandit09@gmail.com

jankapurdham,dhushna,nepal

Turn static files into dynamic content formats.

Create a flipbook
PORTFOLIO OF KRISHAN DEV PANDIT, IOE PURWANCHAL CAMPUS by DEVKRISHAN - Issuu