






















BIKE RENTALS


BIKER FRIENDLY COFFEEBAR
















MOST OF MY RECENT WORK HAS INVOLVED STEEL CONSTRUCTION. I HAVE LEARNED THAT USING THIS BUILDING TYPE ALLOWS FLEXIBILITY OF THE PROGRAMS WITHIN A BUILDING, WHILE JUSTIFYING THE STRENGTH OF THE MATERIALS USED.













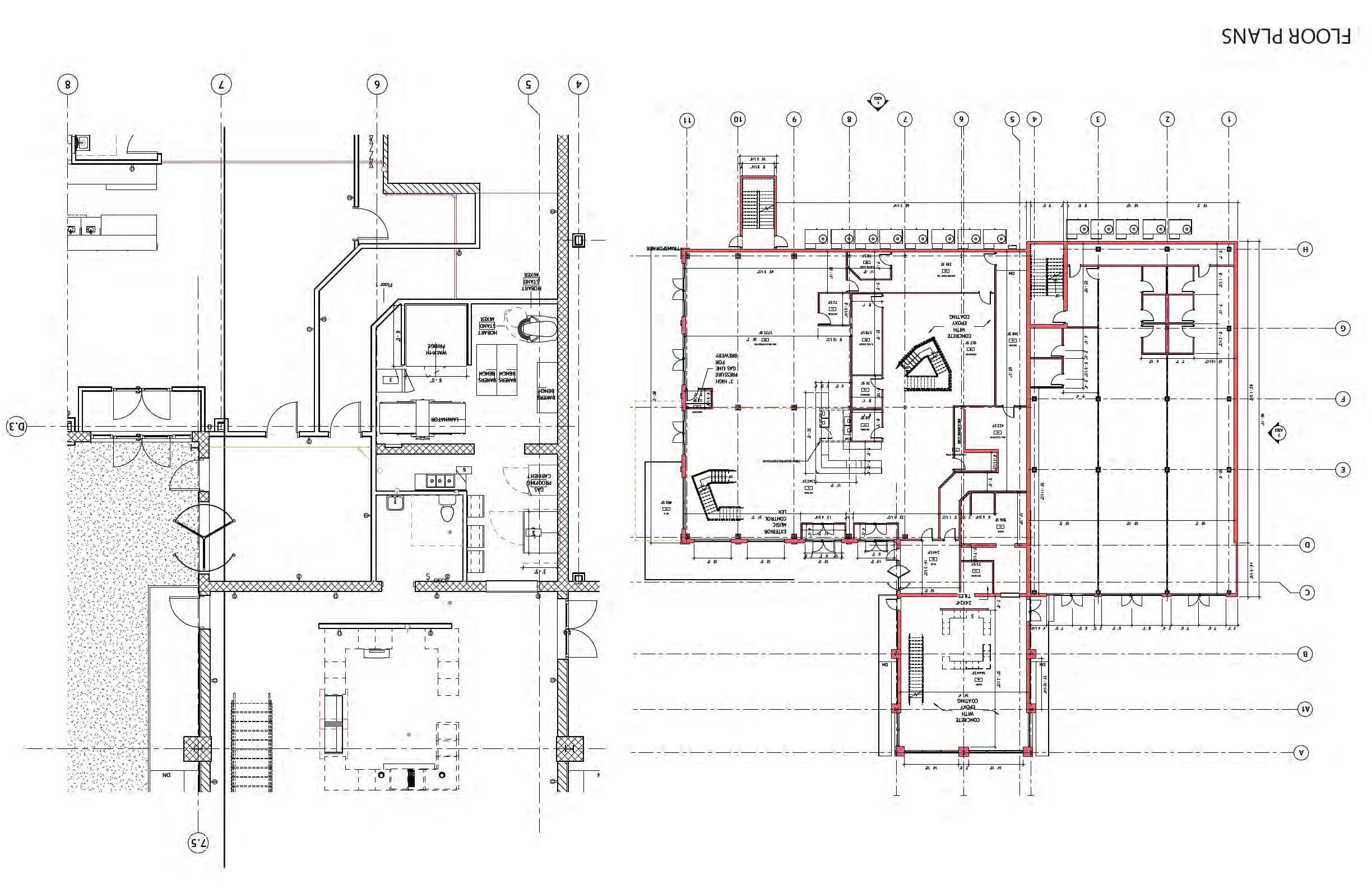
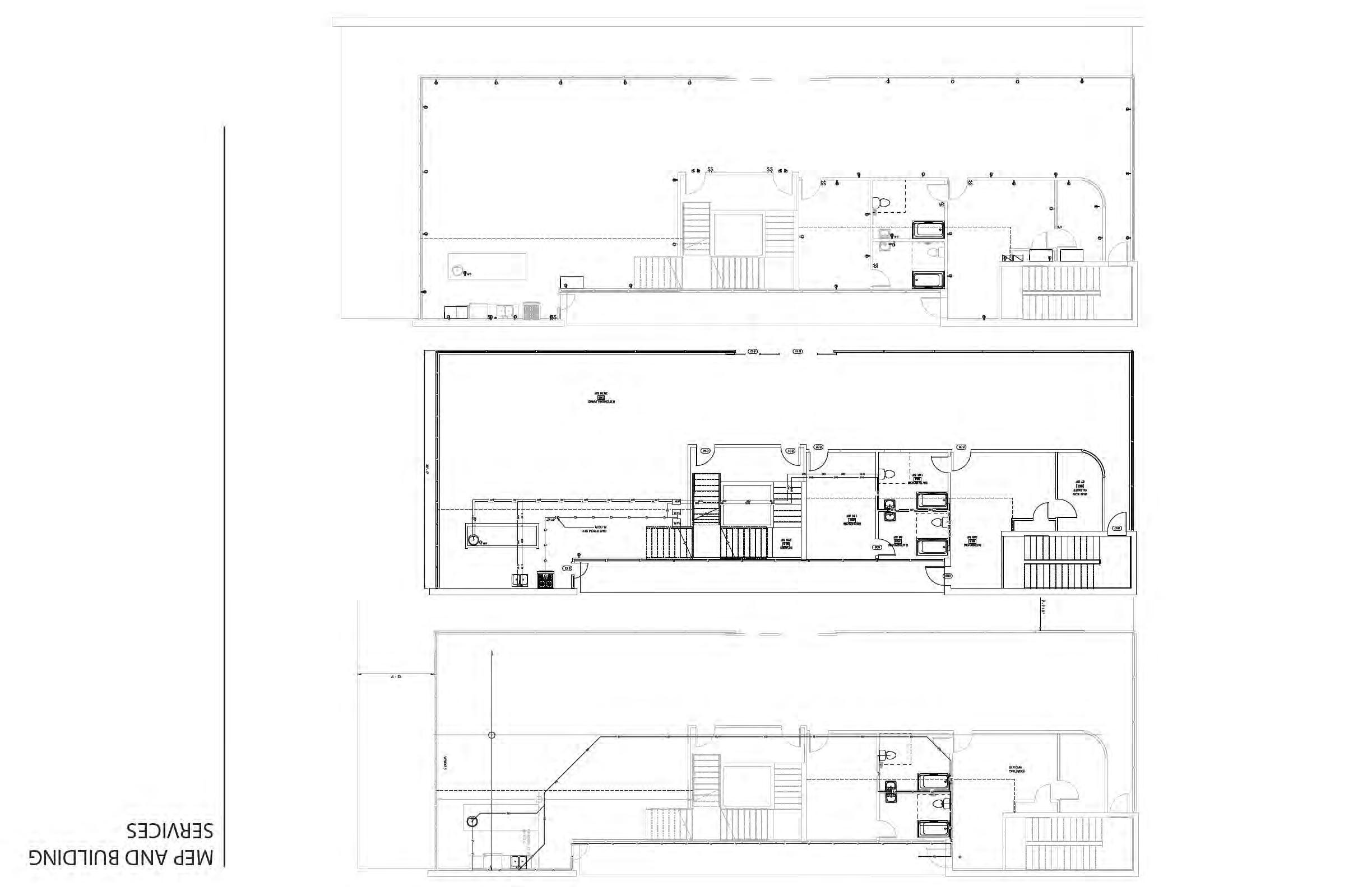
DRAWINGS AND DETAILS






