Skip to main content

ARCHITECTURAL PORTFOLIO

Page 1

CONTENT 2022-23 2022 2022 2023-24 2023 2023 40 20 06 28 14 32 INTERNSHIP WORK
GREEN ESCAPE MOTEL THE WAVE ALAMBANA
WORK
HORIZON COMPETITION

THE WAVE

Mattancherry ,Kerala

Area = 9676 M2

Project = Cultutral Centre

THE WAVE 8th Semester 2024
06
THE WAVE 8th Semester 2024 07
THE WAVE 8th Semester 2024 08
THE WAVE 8th Semester 2024 09
THE WAVE 8th Semester 2024 10
THE WAVE 8th Semester 2024 11

“Community Cove” signifies a place (Block A ) that represents the local community of Mattancherry. It evokes imagery of a cozy, intimate space nestled within the vibrant fabric of the neighborhood, akin to a hidden gem or a sheltered harbor. The word “Community” emphasizes the sense of togetherness, shared values, and close-knit relationships within the area. “Cove” adds a touch of serenity and tranquility, suggesting a safe and welcoming environment where locals can gather, interact, and preserve their cultural heritage.

THE WAVE 8th Semester 2024 12
THE WAVE 8th Semester 2024 13

ALAMBANA

The site offers a compelling opportunity for a housing project. With a 36-meter frontage along the main road, it provides excellent accessibility. Moreover, the scenic backdrop of the mountain range in the front and the Mula River at the rear adds to its appeal. These natural features not only enhance the visual aesthetics but also provide a sense of tranquility and connection with nature, making it an ideal location for architectural development, particularly in the realm of housing projects. The potential here for a harmonious blend of nature and human habitation is truly promising.

PUNE , Maharashtra

Area = 65729 M2

Project =Residential Housing

This spine is deliberately designed with various elevational points along its course, offering dynamic visual and physical experiences. These different levels serve as access points, providing a dynamic landscape that can be explored. Additionally, the varying elevations make it accessible to everyone, including individuals with disabilities, thanks to its sloping design that acts as an inclusive ramp. Along this central spine, the design approach involves placing studio apartments on the left side. This placement is deliberate, as it offers a balanced and comfortable living experience for residents.

ALAMBANA 8th Semester 2024 14
ALAMBANA 8th Semester 2024 15
ALAMBANA 8th Semester 2024 16
ALAMBANA 8th Semester 2024 17
ALAMBANA 8th Semester 2024 18
ALAMBANA 8th Semester 2024 19

GREEN ESCAPE

SamruddhiMahamarg,Maharashtra

Area = 9676 M2

Project = MOTEL

20
Green Escape Motel 6th
2023
Semester
21 Green
6th Semester 2023
Escape Motel
22 Green Escape Motel 6th Semester 2023
23 Green Escape Motel 6th Semester 2023
Green Escape Motel 6th Semester 2023 24
Green Escape Motel 6th Semester 2023 25
Green Escape Motel 6th Semester 2023 26
Green Escape Motel 6th Semester 2023 27

Horizon

Nashik , Maharashtra

Area = 9676 M2

Project = College campus

Horizon, an architectural and arts college, showcases an innovative design using parametric techniques. The buildings’ elevations are thoughtfully crafted to blend harmoniously with the mountainous backdrop of the site, creating a visually stunning integration with nature. The contours of the site play a pivotal role in shaping a fluid and dynamic design, which not only enhances aesthetic appeal but also captures the interest and curiosity of visitors. This design philosophy reflects a commitment to creating an environment that is both engaging and inspiring.

The college’s design goes beyond mere visual appeal; it fosters a deep connection with nature for its students. By creating a sense of living in the arms of nature, the design promotes psychological wellbeing, an essential factor in contemporary education. The natural surroundings and fluid architecture provide a tranquil and stimulating environment, encouraging creativity and reducing stress. This holistic approach to architectural design underscores the importance of mental health and well-being in educational spaces, making Horizon a pioneer in integrating nature with academic life.

Horizon 5th Semester 2023
28
29 Horizon 5th Semester 2023
Horizon 5th Semester 2023 30
31 Horizon 5th Semester 2023

HOUSING

COMPETITION WORK 1st place

Agartala ,Tripura Area = 25000M2

Project = Housing

HUDCO TROPHY 6th Semester 2023 32
33 HUDCO TROPHY 5th Semester 2023
CPK TROPHY 5th Semester 2023 34
35 CPK TROPHY 5th Semester 2023

Baithak

COMPETITION WORK

Provision of a space that creates an interactive environment between different people of all age groups, occupations and mindsets. Provision of well-planned, flexible spaces for students use of locally available material in the design. Encouraging the local artisans, hand-woven Khadi cloth has been inculcated in our structure. Universal design with accessiibility to all floors through stairs as well as ramps.

Varanasi,Uttar Pradesh

Area = 100M2

Project = Interactive space

CPK TROPHY 5th Semester 2023 36
37 CPK TROPHY 5th Semester 2023

Caved iN

COMPETITION WORK

The site is placed such, that it attains the shade of the canopy as well as enjoy the viewpoint present at the highest level of the structure, without causing hinderance to either the view from the street or the structure itself. Height is restricted to 1.5 m above ground in order to avoid blocking the view of gateway from street, which was previously the case with the plaza existing in the garden.

Mumbai ,Maharashtra

Area = 100M2

Project = Interactive space

CPK TROPHY 5th Semester 2023 38
39 CPK TROPHY 5th Semester 2023

INTERNSHIP WORK

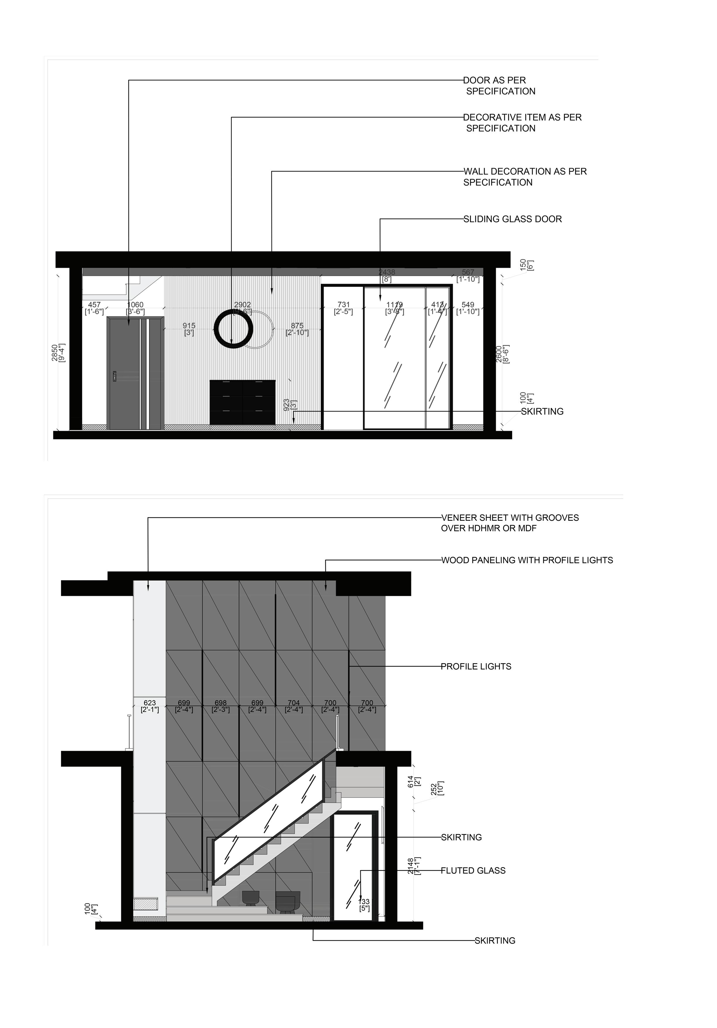
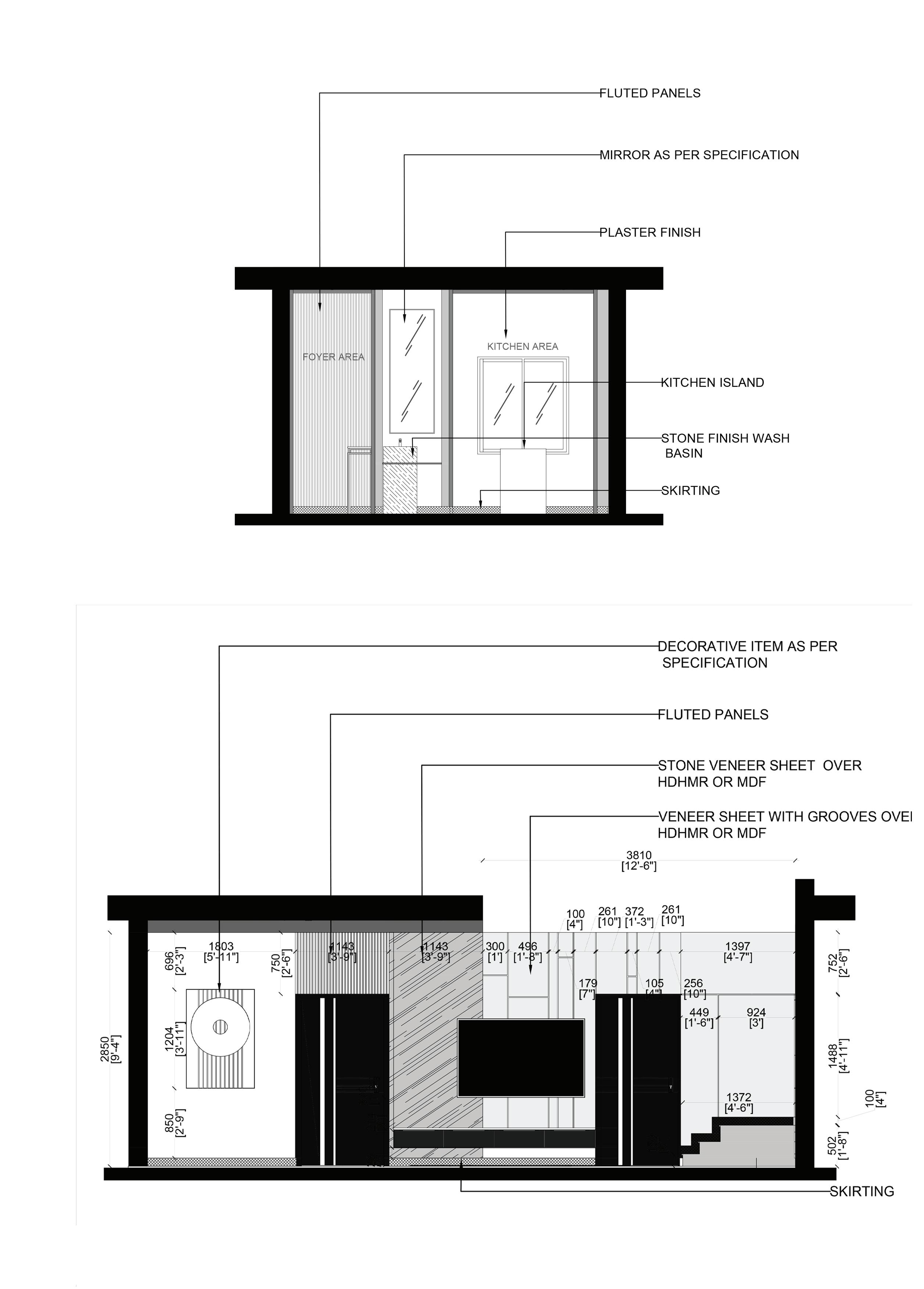
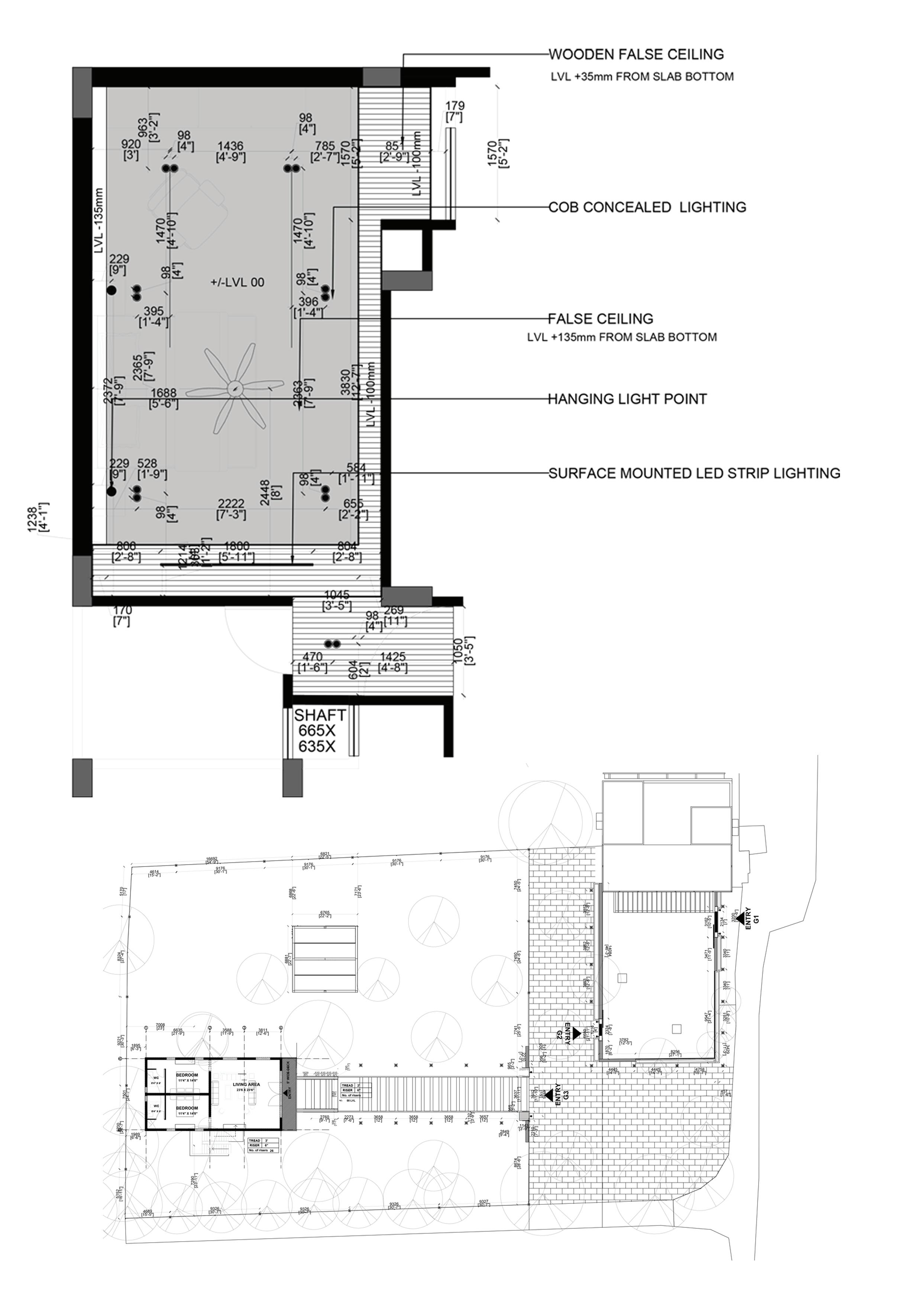
INTERNSHIP 7th Semester 2023 40
INTERNSHIP 7th Semester 2023 41
INTERNSHIP 7th Semester 2023 42
INTERNSHIP 7th Semester 2023 43

Turn static files into dynamic content formats.

Create a flipbook