Skip to main content

Dev Ashar Construction portfolio

Page 1

A COLLECTIVE OF THE DRAWINGS OF B.ARCH AND PROFESSIONAL WORK DEV ASHAR
CONSTRUCTION P O R T F O L I O

Hi, I am dev ashar looking to apply for masters of architecture program in your esteemed university. This is my construction portfolio which contains projects between the semester and my internship at matte black architects

INDEX BREAKFAST COUNTER UP MASTER BEDROOM GROUND FLOOR PLAN WALK-IN WARDROBE C1 9X18 C6 9X26 C4 Ø300 C2 9X18 C3 9X18 C9 Ø300 C8 Ø300 C13 Ø300 C18 Ø300 C17 Ø300 C16 Ø380 C5 9X18 C7 9X18 C12 9X18 C11 9X18 C14 9X18 C15 9X18 C10 9X18 AA AB AC AD AE AF AG AH A1 A2 A3 A4 A5 A8 A9 A10 A6 A7 1990 AJ 4610 205 175 110 1050 3560 110 1800 1910 2890 110 1565 2674 110 449 3000 A1 A2 A3 A4 A5 A8 A9 A10 A6 A7 AA AB AC AD AE AF AG AH AI PROJECT NAME DRAWING TITLE DWG. NO. DRAWING DETAILS SCALE DATE DRAWN BY CHECKED BY SS DA 21.01.2022 X XXX NORTH REV DATE NOTES CENTER LINE LAYOUT FOR MR ATUL JOG AT MURBAD ARCHITECTS CENTER LINE PLAN 01. ARCHITECTURE REPRESENTATION AND DETAILING SEMESTER 6 pg 01 04.VILLA AT MURBAD,MAHRASHTRA INTERNSHIP SEMESTER pg 13 05.INTERIORS AT GOREGAON,MAHRASHTRA INTERNSHIP SEMESTER pg 25 03.VILLA AT PALI,MAHRASHTRA INTERNSHIP SEMESTER pg 05 02.MUNICIPAL DRAWINGS INTERNSHIP SEMESTER 7 pg 03

WORKING DRAWINGS SECONDARY SCHOOL SEMESTER-6

01
02

MUNICIPAL DRAWINGS HOUSING REDEVELOPMENT

SEMESTER-7

03
04
05 SIGN STAMP WORKED ON: DEV ASHAR 1842
PALI KEEPING IN MIND THE CLIMATE AND THE SITE SURROUNDINGS, PALI VILLA IS A HOME WHICH CAREFULLY USES BRICK JALIS AND VEGETATION TO ERASE THE SENSE OF BOUNDARY BETWEEN MAN AND NATURE. THE MODERN VILLA IS JUXTAPOSED WITH REPURPOSED WOODEN PILLARS TO SUPPORT THE DECK ROOF TO WHICH THE WATER FLOWS INTO THE VESSEL WITH THE HELP OF RAIN CHAINS WHICH IMPART A SENSE OF SOUND DURING THE RAINS. I HAVE WORKED ON • DESIGNING • 3D VISUALISATION • PLANS • SITE DOCUMENTATION
VILLA AT
COURTYARD VIEW DECK VIEW DECK VIEW SOUTH VIEW 06 SIGN STAMP WORKED ON: NORTH DEV ASHAR 1842 SKETCHUP AND VRAY
PROJECT NAME DRAWING TITLE DWG. NO. DRAWING DETAILS SCALE DATE DRAWN BY CHECKED BY SS DA 07.04.2022 X : XXX NORTH REV DATE NOTES VILLA DESIGN FOR MR. SUNIL BANDEKAR AT PALI, MAHARASHTRA. FLOOR PLAN CARPET AREA BUILT-UP AREA DECK AREA 925 SQ.FT 1120 SQ.FT 710 SQ.FT 07 SIGN STAMP WORKED ON: NORTH DEV ASHAR 1842 VILLA PLAN
AA AC AE AF A1 A2 AB AA AC AE AF AB A1 A5 A6 A3 A4 A2 PROJECT NAME DRAWING TITLE DWG. NO. DRAWING DETAILS SCALE DATE DRAWN BY CHECKED BY SS DA 07.04.2022 X : XXX NORTH REV DATE NOTES VILLA DESIGN FOR MR. SUNIL BANDEKAR AT PALI, MAHARASHTRA. CENTER LINE LAYOUT A3 A4 A5 A6 4350 190 3080 4350 06 SIGN STAMP WORKED ON: NORTH DEV ASHAR 1842 CENTER LINE PLAN
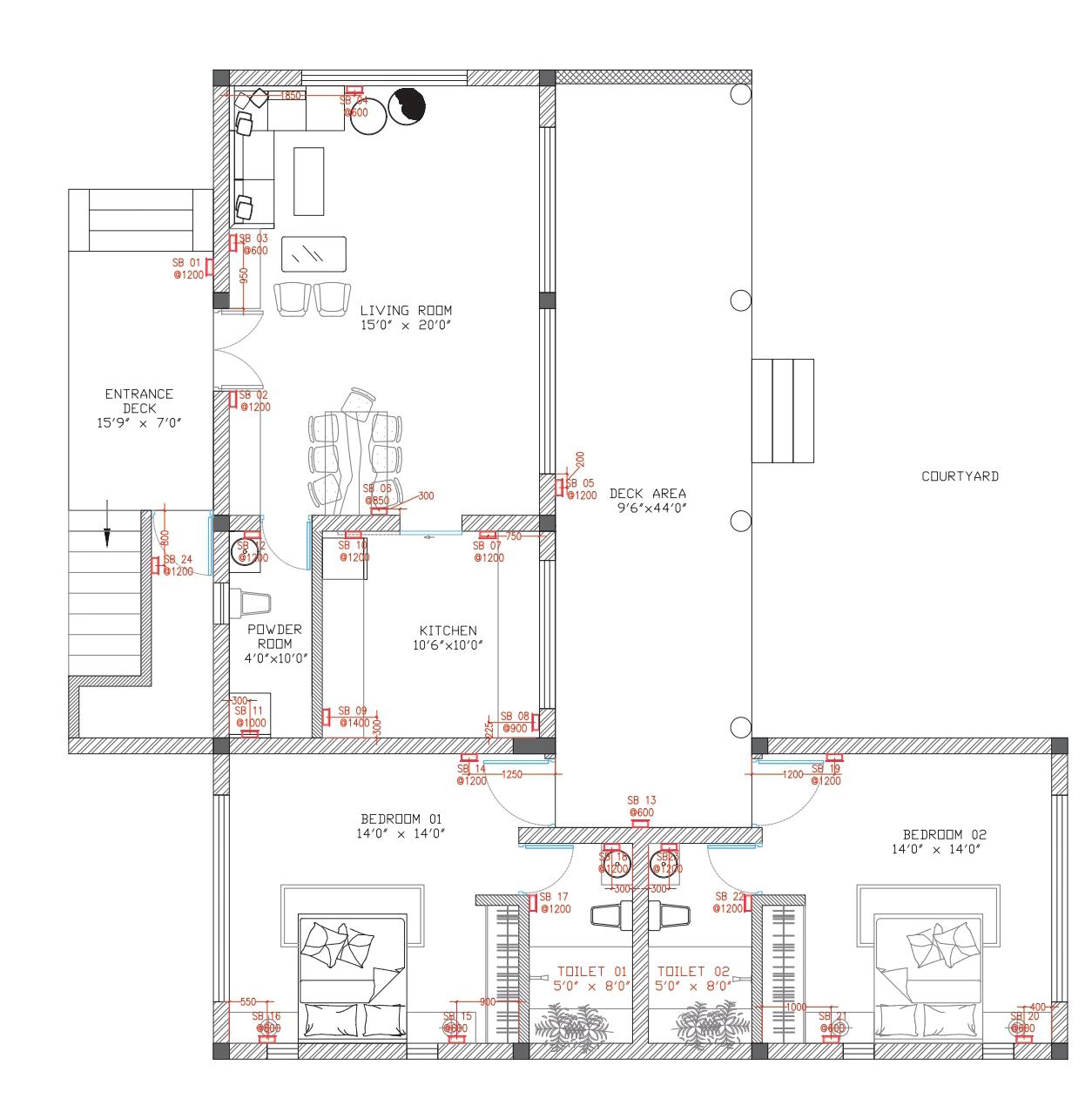
09 SIGN STAMP WORKED ON: NORTH DEV ASHAR 1842 ELECTRICAL DRAWINGS SWITCH BOARD LAYOUT ELECTRICAL LAYOUT
NORTH VIEW 01 WEST VIEW EAST VIEW DECK VIEW 10 SIGN STAMP WORKED ON: NORTH DEV ASHAR 1842 SKETCHUP AND TWINMOTION
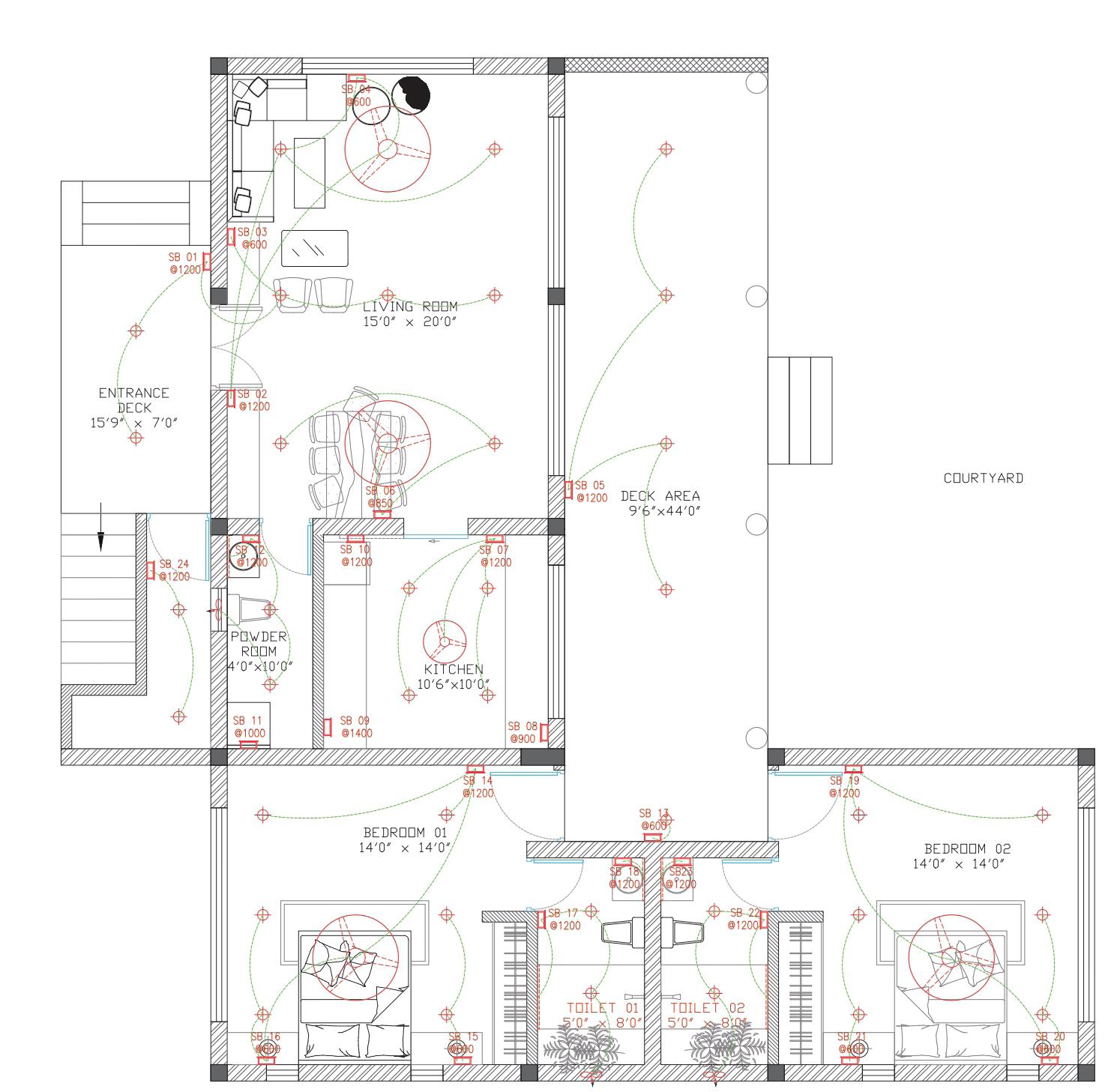
11 SIGN STAMP WORKED ON: NORTH DEV ASHAR 1842 ELECTRICAL DRAWINGS LOOPING LAYOUT SWITCHBOARD CONFIGURATION
BEDROOM VIEW 01 BEDROOM VIEW 02 LIVING ROOM VIEW BATHROOM VIEW 12 SIGN STAMP WORKED ON: DEV ASHAR 1842 SKETCHUP AND TWINMOTION
PARKING 02 PARKING 01 DECK 6'0" X 29'6" BREAKFAST COUNTER KITCHEN 12'0" 10'0" VERANDAH 6'6" X 11'3" UP MASTER BEDROOM 01 12'0" X 12'0" UP POWDER TOILET 3'0" X 5'0" LIVING & DINING AREA 32'6" X 14'0" BEDROOM 01 10'0" X 10'0" BATHROOM 4'6" X 7'0" BATHROOM 4'6" 7'0" GROUND FLOOR PLAN WALK-IN WARDROBE 9'6" X 5'0" DECK 7'0" X 6'0" DOWN TO GAZEBO C1 9X18 C6 9X26 C4 Ø300 C2 9X18 C3 9X18 C9 Ø300 C8 Ø300 C13 Ø300 C18 Ø300 C17 Ø300 C16 Ø380 C5 9X18 C7 9X18 C12 9X18 C11 9X18 C14 9X18 C15 9X18 C10 9X18 AA AB AC AD AE AF AG AH A1 A2 A3 A4 A5 A8 A9 A10 A6 A7 1990 AJ 4610 205 175 110 1050 3560 110 1800 1910 2890 110 1565 2674 110 449 3000 A1 A2 A3 A4 A5 A8 A9 A10 A6 A7 AA AB AC AD AE AF AG AH AI PROJECT NAME DRAWING TITLE DWG. NO. DRAWING DETAILS SCALE DATE DRAWN BY CHECKED BY SS DA 21.01.2022 NORTH REV DATE NOTES CENTER LINE LAYOUT FOR MR ATUL JOG AT MURBAD ARCHITECTS CENTER LINE PLAN MIRROR LIGHT (HEIGHT AS PER MIRROR TOP) SPOT LIGHT STORAGE 13 SIGN STAMP WORKED ON: KEY PLAN NORTH DEV ASHAR 1842 CENTER LINE PLAN VILLAS AT MURBAD THIS PROJECT HAD ALREADY BEGUN IN CONSTRUCTION AND WAS A GREAT LEARNING TO UNDERSTAND ON SITE PLOTTING. THE FOLLOWING ARE THE WORKS THAT I HAD DONE AT MY TIME AT MATTE BLACK ARCHITECTS • PLANS • LAYOUTS CENTER LINE 01
PROJECT NAME DRAWING TITLE DWG. NO. DRAWING DETAILS SCALE DATE DRAWN BY CHECKED BY SS DA 28.01.2022 X XXX NORTH REV DATE NOTES CENTER LINE LAYOUT FOR NIKHIL RAO,MURBAD CENTER LINE LAYOUT POWDER TOI 4'0" X 5'0" BATHROOM 5'0" X 8'0" ENTRY UTILITY AREA 4'0" X 6'6" LIVING ROOM 12'0" X 17'0" DINING AREA 14'0" X 12'0" VERANDAH 8'0" X 11'6" GUEST ROOM 01 12'0" X 12'0" BATHROOM 5'0" X 8'0" MASTER BEDROOM 12'0" X 12'0" SHOE RACK KITCHEN 12'4" X 13'0" 10' WIDE DECK SUNKEN BATH KITCHEN GARDEN BAR GROUND FLOOR PLAN C1 300Ø C2 230X450 C3 230X450 C9 300Ø C15 300Ø C20 300Ø C4 300Ø C19 230X450 C18 230X450 C17 230X450 C16 230X450 C12 230X450 C11 300Ø C5 300Ø C6 230X450 C7 230X450 C8 230X450 C10 300Ø C13 230X750 C14 230X450 AA AB AC AD AE AF AJ AH AG AK AL AP AN A1 A2 A3 A4 A5 A9 A10 A7 A8 AM A6 AA AB AC AD AE AF AJ AH AG AK AL AP AN AM A1 A2 A3 A4 A5 A9 A10 A7 A8 A6 ON HOLD MIRROR LIGHT (HEIGHT AS PER MIRROR TOP) SPOT LIGHT STORAGE 14 SIGN STAMP WORKED ON: KEY PLAN NORTH DEV ASHAR 1842 CENTER LINE PLAN CENTER LINE 02
POWDER
X 5'0" BATHROOM 5'0" X 8'0" ENTRY LIVING ROOM 12'0" X 17'0" DINING AREA 14'0" X 12'0" VERANDAH 8'0" X 11'6" GUEST ROOM 01 12'0" X 12'0" BATHROOM 5'0" X 8'0" MASTER BEDROOM 12'0" X 12'0" SHOE RACK KITCHEN 12'4" X 13'0" 10' WIDE DECK SUNKEN BATH KITCHEN GARDEN BAR GROUND FLOOR PLAN PROJECT NAME DRAWING TITLE DWG. NO. RESIDENTIAL VILLA FOR MR. NIKHIL RAO AT MURBAD, MAHARASHTRA SWITCH BOARD LAYOUT GROUND FLOOR DRAWING DETAILS SCALE DATE DRAWN BY CHECKED BY SS X : XXX NORTH REVISION DATE NOTES BUILT UP AREA: 1645 SQFT TOTAL BUILT UP AREA: 2875 SQFT CARPET AREA: 1225 SQFT TOTAL CARPET AREA: 2328 SQFT DA UTILITY AREA 4'0" X 6'6" CHANDELIER CEILING FAN EXHAUST FAN MIRROR LIGHT (HEIGHT AS PER MIRROR TOP) CEILING LIGHT SPOT LIGHT SPOT LIGHT HANGING LIGHT LIGHT POINT INSIDE STORAGE SB 27 @1200 SB 28 @1200 SB 02 @1200 SB 04 @1200 SB 21 @1200 SB 03 @750 SB 24 @600 SB 23 @600 SB 25 @1200 SB 05 @1200 SB 14 @1200 SB 13 @1200 SB 11 @1200 SB 17 @1200 SB 09 @1200 SB 10 @1200 SB 07 @1200 SB 26 @1200 SB 29 @600 SB 30 @600 SB 32 @1000 SB 08 @1200 SB 16 @1200 SB 18 @1200 SB 12 @1200 SB 15 @1200 SB 06 @450 SB 20 @1200 SB 53 @1200 SB 19 @1200 SB 31 @1000 SB 22 @1000 SB 01 @1200 14.03.2022 MIRROR LIGHT (HEIGHT AS PER MIRROR TOP) SPOT LIGHT STORAGE 15 SIGN STAMP WORKED ON: KEY PLAN NORTH DEV ASHAR 1842 ELECTRICAL DRAWINGS SWITCHBOARD LAYOUT
TOI 4'0"
POWDER TOI 4'0" X 5'0" BATHROOM 5'0" X 8'0" ENTRY LIVING ROOM 12'0" X 17'0" DINING AREA 14'0" X 12'0" VERANDAH 8'0" X 11'6" GUEST ROOM 01 12'0" X 12'0" BATHROOM 5'0" X 8'0" MASTER BEDROOM 12'0" X 12'0" SHOE RACK KITCHEN 12'4" X 13'0" 10' WIDE DECK SUNKEN BATH KITCHEN GARDEN BAR GROUND FLOOR PLAN PROJECT NAME DRAWING TITLE DWG. NO. RESIDENTIAL VILLA FOR MR. NIKHIL RAO AT MURBAD, MAHARASHTRA LOOPING GROUND FLOOR DRAWING DETAILS SCALE DATE DRAWN BY CHECKED BY SS X : XXX NORTH REVISION DATE NOTES BUILT UP AREA: 1645 SQFT TOTAL BUILT UP AREA: 2875 SQFT CARPET AREA: 1225 SQFT TOTAL CARPET AREA: 2328 SQFT DA 14.03.2022 UTILITY AREA 4'0" X 6'6" CHANDELIER CEILING FAN EXHAUST FAN MIRROR LIGHT (HEIGHT AS PER MIRROR TOP) CEILING LIGHT SPOT LIGHT SPOT LIGHT HANGING LIGHT SB 27 SB 28 SB 02 SB 04 SB 21 SB 03 SB 24 SB 23 SB 25 SB 05 SB 14 SB 13 SB 11 SB 17 SB 09 SB 10 SB 07 SB 26 SB 29 SB 30 SB 32 SB 08 SB 16 SB 18 SB 12 SB 15 SB 06 SB 20 SB 19B SB 19 SB 31 SB 22 SB 01 LIGHT POINT INSIDE STORAGE MIRROR LIGHT (HEIGHT AS PER MIRROR TOP) SPOT LIGHT STORAGE 16 SIGN STAMP WORKED ON: KEY PLAN NORTH DEV ASHAR 1842 ELECTRICAL DRAWINGS LOOPING LAYOUT
POWDER
5'0" BATHROOM
8'0" ENTRY LIVING ROOM 12'0" X 17'0" DINING AREA 14'0" X 12'0" VERANDAH 8'0" X 11'6" GUEST ROOM 01 12'0" X 12'0" BATHROOM 5'0" X 8'0" MASTER BEDROOM 12'0" X 12'0" SHOE RACK KITCHEN 12'4" X 13'0" 10' WIDE DECK SUNKEN BATH KITCHEN GARDEN BAR GROUND FLOOR PLAN PROJECT NAME DRAWING TITLE DWG. NO. RESIDENTIAL VILLA FOR MR. NIKHIL RAO AT MURBAD, MAHARASHTRA DRAWING DETAILS SCALE DATE DRAWN BY CHECKED BY SS X : XXX NORTH REVISION DATE NOTES BUILT UP AREA: 1645 SQFT TOTAL BUILT UP AREA: 2875 SQFT CARPET AREA: 1225 SQFT TOTAL CARPET AREA: 2328 SQFT DA UTILITY AREA 4'0" X 6'6" CHANDELIER CEILING FAN EXHAUST FAN MIRROR LIGHT (HEIGHT AS PER MIRROR TOP) CEILING LIGHT SPOT LIGHT SPOT LIGHT HANGING LIGHT LIGHT POINT INSIDE STORAGE SB 27 SB 28 SB 02 SB 04 SB 21 SB 03 SB 24 SB 23 SB 25 SB 05 SB 14 SB 13 SB 11 SB 17 SB 09 SB 10 SB 07 SB 26 SB 29 SB 30 SB 32 SB 08 SB 16 SB 18 SB 12 SB 15 SB 06 SB 20 SB 19B SB 19 SB 31 SB 22 SB 01 14.03.2022 ELECTRICAL PLAN GROUND FLOOR MIRROR LIGHT (HEIGHT AS PER MIRROR TOP) SPOT LIGHT STORAGE 17 SIGN STAMP WORKED ON: KEY PLAN NORTH DEV ASHAR 1842 ELECTRICAL DRAWINGS ELECTRICAL LAYOUT
TOI 4'0" X
5'0" X

SWITCHBOARD CONFIGURATION

PROJECT NAME DRAWING TITLE DWG. NO.

RESIDENTIAL VILLA FOR MR. NIKHIL RAO AT MURBAD, MAHARASHTRA

PROJECT NAME DRAWING TITLE DWG. NO.

FIRST CUT A

FIRST CUT A

RESIDENTIAL VILLA FOR MR. NIKHIL RAO AT MURBAD, MAHARASHTRA

ELECTRICAL DRAWINGS

DEV ASHAR 1842

DRAWING DETAILS SCALE DATE DRAWN BY CHECKED BY SS

SIGN STAMP WORKED ON: KEY PLAN NORTH

X : XXX NORTH REVISION DATE DA 01.03.2022

X : XXX 01.03.2022

DRAWING DETAILS SCALE DATE DRAWN BY CHECKED BY MIRROR LIGHT (HEIGHT AS PER MIRROR TOP) SPOT LIGHT STORAGE 18
SUNKEN BATH
TT AREA
HOME OFFICE
TERRACE 15'4" X 12'4" BAR & PANTRY 4'0" X 6'6" WALK
FIRST FLOOR PLAN PROJECT NAME DRAWING TITLE DWG. NO. RESIDENTIAL VILLA FOR MR. NIKHIL RAO AT MURBAD, MAHARASHTRA SWITCH BOARD LAYOUT FIRST FLOOR DRAWING DETAILS SCALE DATE DRAWN BY CHECKED BY SS X : XXX NORTH REVISION DATE NOTES BUILT UP AREA: 1230 SQFT TOTAL CARPET AREA: 2328 SQFT CARPET AREA: 1103 SQFT TOTAL BUILT UP AREA: 2875 SQFT DA CHANDELIER CEILING FAN EXHAUST FAN MIRROR LIGHT (HEIGHT AS PER MIRROR TOP) CEILING LIGHT SPOT LIGHT SPOT LIGHT HANGING LIGHT SB 44 @600 SB 43 @600 SB 45 @1200 SB 37 @1200 SB 46 @1200 SB 48 @1200 SB 49 @600 SB 50 @600 SB 52 @1000 SB 35 @1200 SB 41 @1200 SB 47 @1200 SB 29 SB 30 @1000 SB 39 @1200 SB 33 @1200 SB 38 @1200 SB 34 @1200 SB 40 @1200 SB 51 @1000 SB 42 @1000 SB 36 @1200 14.03.2022 MIRROR LIGHT (HEIGHT AS PER MIRROR TOP) SPOT LIGHT STORAGE 19 SIGN STAMP WORKED ON: KEY PLAN NORTH DEV ASHAR 1842 ELECTRICAL DRAWINGS SWITCHBOARD LAYOUT
POWER TOI 4'0" X 5'0" BATHROOM 5'0" X 8'0" GUEST ROOM 02 12'0" X 12'0" BATHROOM 5'0" X 8'0" MASTER BEDROOM 02 12'0" X 12'0"
PROJECTOR SCREEN CASUAL SEATING 14'6" X 12'0"
9'4" X 9'6"
8'4" X 8'0"
IN 5'8" X 5'6"

POWER TOI 4'0" X 5'0"

12'4"
FIRST FLOOR PLAN PROJECT NAME DRAWING TITLE DWG. NO. RESIDENTIAL VILLA FOR MR. NIKHIL RAO AT MURBAD, MAHARASHTRA ELECTRICAL PLAN FIRST FLOOR DRAWING DETAILS SCALE DATE DRAWN BY CHECKED BY SS X : XXX NORTH REVISION DATE NOTES BUILT UP AREA: 1230 SQFT TOTAL CARPET AREA: 2328 SQFT CARPET AREA: 1103 SQFT TOTAL BUILT UP AREA: 2875 SQFT DA CHANDELIER CEILING FAN EXHAUST FAN MIRROR LIGHT (HEIGHT AS PER MIRROR TOP) CEILING LIGHT SPOT LIGHT SPOT LIGHT HANGING LIGHT SB 44 SB 43 SB 45 SB 37 SB 46 SB 48 SB 49 SB 50 SB 52 SB 35 SB 41 SB 47 SB 29 SB 30 SB 39 SB 33 SB 38 SB 34 SB 40 SB 51 SB 42 SB 36 14.03.2022 MIRROR LIGHT (HEIGHT AS PER MIRROR TOP) SPOT LIGHT STORAGE 20 SIGN STAMP WORKED ON: KEY PLAN NORTH DEV ASHAR 1842 ELECTRICAL DRAWINGS LOOPING LAYOUT
BATHROOM 5'0" X 8'0" GUEST ROOM 02 12'0" X 12'0" BATHROOM 5'0" X 8'0" MASTER BEDROOM 02 12'0" X 12'0" SUNKEN BATH PROJECTOR SCREEN CASUAL SEATING 14'6" X 12'0" TT AREA 9'4" X 9'6" HOME OFFICE 8'4" X 8'0" TERRACE 15'4" X
BAR & PANTRY 4'0" X 6'6" WALK IN 5'8" X 5'6"
BATH
12'4"
FIRST FLOOR PLAN PROJECT NAME DRAWING TITLE DWG. NO. RESIDENTIAL VILLA FOR MR. NIKHIL RAO AT MURBAD, MAHARASHTRA ELECTRICAL PLAN FIRST FLOOR DRAWING DETAILS SCALE DATE DRAWN BY CHECKED BY SS X : XXX NORTH REVISION DATE NOTES BUILT UP AREA: 1230 SQFT TOTAL CARPET AREA: 2328 SQFT CARPET AREA: 1103 SQFT TOTAL BUILT UP AREA: 2875 SQFT DA CHANDELIER CEILING FAN EXHAUST FAN MIRROR LIGHT (HEIGHT AS PER MIRROR TOP) CEILING LIGHT SPOT LIGHT SPOT LIGHT HANGING LIGHT SB 44 SB 43 SB 45 SB 37 SB 46 SB 48 SB 49 SB 50 SB 52 SB 35 SB 41 SB 47 SB 29 SB 30 SB 39 SB 33 SB 38 SB 34 SB 40 SB 51 SB 42 SB 36 14.03.2022 MIRROR LIGHT (HEIGHT AS PER MIRROR TOP) SPOT LIGHT STORAGE 21 SIGN STAMP WORKED ON: KEY PLAN NORTH DEV ASHAR 1842 ELECTRICAL DRAWINGS ELECTRICAL LAYOUT
POWER TOI 4'0" X 5'0" BATHROOM 5'0" X 8'0" GUEST ROOM 02 12'0" X 12'0" BATHROOM 5'0" X 8'0" MASTER BEDROOM 02 12'0" X 12'0" SUNKEN
PROJECTOR SCREEN CASUAL SEATING 14'6" X 12'0" TT AREA 9'4" X 9'6" HOME OFFICE 8'4" X 8'0" TERRACE 15'4" X
BAR & PANTRY 4'0" X 6'6" WALK IN 5'8" X 5'6"
TITLE DWG. NO. DRAWING DETAILS SCALE DATE DRAWN BY CHECKED BY SS X : XXX NORTH REVISION DATE NOTES
UP
1230 SQFT
SQFT
1103 SQFT
SQFT DA 01.03.2022 DRAWING TITLE DWG. NO. MURBAD, FIRST CUT A DRAWING DETAILS SCALE DATE DRAWN BY X : XXX NORTH REVISION DATE NOTES BUILT UP
DA 01.03.2022 MIRROR LIGHT (HEIGHT AS PER MIRROR TOP) SPOT LIGHT STORAGE 22 SIGN STAMP WORKED ON: KEY PLAN NORTH DEV ASHAR 1842 ELECTRICAL DRAWINGS SWITCHBOARD CONFIGURATION
BUILT
AREA:
TOTAL CARPET AREA: 2328
CARPET AREA:
TOTAL BUILT UP AREA: 2875
AREA: TOTAL CARPET CARPET AREA: TOTAL BUILT
2 B.H.K INTERIORS AT GOREGAON THIS PROJECT HAD REQUIREMENTS LIKE:-
A LIVING ROOM WHICH DOUBLES TO A GET TO GETHER SPACE
A MASTER BEDROOM
A STUDY WHICH ALSO ACTS AS A GYM
A BEDROOM FOR A TEENAGER TO HAVE A GAMING SETUP
ROOF DESIGN FOR THE TERRACE TO BE CONVERTED INTO USABLE SPACE. I HAVE WORKED ON
DESIGNING
3D VISUALISATION
PLANS
SITE DOCUMENTATION 23 SIGN STAMP WORKED ON: DEV ASHAR 1842
CHAIRS UPHOLSTERY GREEN LAMINATE VINYL FLOORING VENITIAN PLASTER BRASS INLAY WHITE MARBLE BAR UNIT VIEW DINING VIEW OAK LAMINATE FUZZY CARPET 24 SIGN STAMP WORKED ON: NORTH DEV ASHAR 1842 SKETCHUP AND VRAY 7'0" 3'0" 10'5" 10'5" 11'11" 3'9" STORAGE INFORMAL SEATING 15'4'' 5'3" PROJECT NAME DRAWING TITLE DWG. NO. RESIDENTIAL INTERIORS FOR MR. ASHISH APTE AT GOREGAON FIRST CUT DRAWING DETAILS SCALE DATE DRAWN BY CHECKED BY SS XXX NORTH REVISION DATE NOTES DA 22.02.2022 UNIT 6'5" 1'8" BALCONY 3'10" DINING VIEW BAR UNIT VIEW

BEDROOM BALCONY 3'10" X 6'

SIDE TABLE 4'2"X1'4"

SIDE TABLE 4'7"X1'4"

WARDROBE 2' X 6'10''

LIVING ROOM 22'5" X 13'0"

INFORMAL SEATING 3'10" X 19'

KITCHEN 7'0" X 4'1" BATHROOM 7'0" X 3'0"

SIDE TABLE 2'2"X1'4"

STORAGE

CROCKERY UNIT 6' X 1'

BATHROOM 3'5" X 19' POWDER 3'2" X 10' BALCONY 13' X 3'9"

BEDROOM 14' X 15'4'' CREDENZA 1'11" X 11' GREEN WALL 6" X 5'3"

FILES STORAGE 1'8" X 7'9" WEIGHTS SHELF 3'3" X 1'6"

Tile drop 25 mm 01. FCB- 2760 02. FCB- 2860

GYM 11'0" X 11'0"

BED ROOM 10'5" X 10'5"

BALCONY 11'11" X 3'9" FCB- 2868

TV UNIT 6'5" X 1'8"

FCB- 2666

PROJECT NAME DRAWING TITLE DWG. NO. RESIDENTIAL INTERIORS FOR MR. ASHISH APTE AT GOREGAON FIRST CUT A DRAWING DETAILS SCALE DATE DRAWN BY CHECKED BY SS X : XXX NORTH REVISION DATE NOTES DA 22.02.2022
25 SIGN STAMP WORKED ON: NORTH DEV ASHAR 1842 HOUSE LAYOUT
SIDE TABLE 3'4"X1'10"
26 SIGN STAMP WORKED ON: NORTH DEV ASHAR 1842 TV UNIT VIEW SEATING VIEW WINDOW SEATING VIEW GYM KITCHEN BATHROOM BED ROOM BALCONY FCB- 2666 STORAGE SIDE TABLE 3'5" 19' 3'2" 10' 14' 15'4'' 6" 5'3" 2' 6'10'' SIDE TABLE PROJECT NAME DRAWING TITLE DWG. NO. RESIDENTIAL INTERIORS FOR MR. ASHISH APTE AT GOREGAON FIRST CUT DRAWING DETAILS SCALE X XXX NORTH REVISION DATE NOTES TV UNIT BALCONY SEATING VIEW WINDOW SEATING VIEW TV UNIT VIEW SKETCHUP AND VRAY
PROJECT NAME DRAWING TITLE DWG. NO. RESIDENTIAL INTERIORS FOR MR. ASHISH APTE AT GOREGAON-EAST, MUMBAI. SWITCHBOARD LAYOUT DRAWING DETAILS SCALE DATE DRAWN BY CHECKED BY SS X XXX NORTH REVISION DATE NOTES DA 24.05.2022 GYM 11'0" X 11'0" KITCHEN 7'0" X 4'1" BATHROOM 7'0" X 3'0" BED ROOM 10'5" X 10'5" BALCONY 11'11" X 3'9" FCB- 2868 FCB- 2666 Tile drop 25 mm 01. FCB- 2760 02. FCB- 2860 STORAGE LIVING ROOM 22'5" X 13'0" BATHROOM 3'5" X 9'9" POWDER 3'9" X 10'3" BALCONY 13' X 3'9" DINING 3'10" X 19'5" BEDROOM 14' X 9'10'' CREDENZA 1'11" X 11' GREEN WALL 6" X 5'3" FILES STORAGE 1'8" X 7'9" WEIGHTS SHELF 3'3" X 1'6" SIDE TABLE WALK IN WARDROBE 12'4" X 6'5'' SB 01 @1200 SB 02 @850 SB 05 @600 SB 12 @1200 SB07 @1000 SB 10 @600 SB 11 @600 SB15 @1200 SB 17 @1200 SB16 @900 SB 18 @1200 SB19 @850 SB 20 @1200 SB 22 @1200 SB 21 @1200 SB 23 @850 SB24 @450 SB 09 @1200 SB 03 @600 SB 08 @1000 SB 06 @1000 SB14 @1200 SB 04 @600 SB 13 @1200 PROJECT NAME DRAWING TITLE DWG. NO. RESIDENTIAL INTERIORS FOR MR. ASHISH APTE AT GOREGAON-EAST, MUMBAI. LOOPING LAYOUT DRAWING DETAILS SCALE DATE DRAWN BY CHECKED BY SS X XXX NORTH REVISION DATE NOTES DA 24.05.2022 GYM 11'0" X 11'0" KITCHEN 7'0" X 4'1" BATHROOM 7'0" X 3'0" BED ROOM 10'5" X 10'5" BALCONY 11'11" X 3'9" FCB- 2868 FCB- 2666 Tile drop 25 mm 01. FCB- 2760 02. FCB- 2860 STORAGE LIVING ROOM 22'5" X 13'0" BATHROOM 3'5" X 9'9" POWDER 3'9" X 10'3" BALCONY 13' X 3'9" DINING 3'10" X 19'5" BEDROOM 14' X 9'10'' CREDENZA 1'11" X 11' GREEN WALL 6" X 5'3" FILES STORAGE 1'8" X 7'9" WEIGHTS SHELF 3'3" X 1'6" TV UNIT 6'5" X 1'8" SIDE TABLE 2'2"X1'4" SIDE TABLE WALK IN WARDROBE 12'4" X 6'5'' WINDOW SEATING SB 01 @1200 SB 02 @850 SB 05 @600 SB 12 @1200 SB07 @1000 SB 10 @600 SB 11 @600 SB15 @1200 SB 17 @1200 SB16 @900 SB 18 @1200 SB19 @850 SB 20 @1200 SB 22 @1200 SB 21 @1200 SB 23 @850 SB24 @450 SB 09 @1200 SB 03 @600 SB 08 @1000 SB 06 @1000 SB14 @1200 SB 04 @600 SB 13 @1200 SIDE TABLE PROJECT NAME DRAWING TITLE DWG. NO. RESIDENTIAL INTERIORS FOR MR. ASHISH APTE AT GOREGAON-EAST, MUMBAI. SWITCHBOARD CONFIGURATION DRAWING DETAILS SCALE DATE DRAWN BY CHECKED BY X : XXX NORTH REVISION 24.05.2022 27 SIGN STAMP WORKED ON: NORTH DEV ASHAR 1842 ELECTRICAL DRAWINGS BREAKING LAYOUT LOOPING LAYOUT SWITCHBOARD CONFIGURATION

DINING 3'10" X 19'5"

BEDROOM 14' X 9'10''

LIVING ROOM 22'5" X 13'0"

BATHROOM 3'5" X 9'9" POWDER 3'9" X 10'3" BALCONY 13' X 3'9"

PROJECT NAME DRAWING TITLE DWG. NO. RESIDENTIAL INTERIORS FOR MR. ASHISH APTE AT GOREGAON-EAST, MUMBAI.

ELECTRICAL LAYOUT DRAWING DETAILS SCALE DATE DRAWN BY CHECKED BY SS

GYM 11'0" X 11'0"

KITCHEN 7'0" X 4'1" BATHROOM 7'0" X 3'0"

PROJECT NAME

X XXX NORTH REVISION DATE NOTES DA 24.05.2022

FCB- 2666 01. FCB- 2760 02. FCB- 2860

BED ROOM 10'5" X 10'5"

BALCONY 11'11" X 3'9" FCB- 2868

STORAGE
CREDENZA 1'11" X 11' GREEN WALL 6" X 5'3" WEIGHTS SHELF 3'3" X 1'6" SIDE TABLE 2'2"X1'4" SIDE TABLE WALK IN WARDROBE 12'4" X 6'5'' WINDOW SEATING SIDE TABLE
DRAWING TITLE DWG. NO. RESIDENTIAL INTERIORS FOR MR. ASHISH APTE AT GOREGAON-EAST, MUMBAI. SWITCHBOARD LAYOUT DRAWING DETAILS SCALE DATE DRAWN BY CHECKED BY SS X XXX NORTH REVISION DATE NOTES DA 24.05.2022 GYM
BATHROOM
X 10'5" BALCONY 11'11" X 3'9" FCB- 2868 FCB- 2666 01. FCB- 2760 02. FCB- 2860 STORAGE LIVING ROOM 22'5" X 13'0" BATHROOM 3'5" X 9'9" POWDER 3'9" X 10'3" BALCONY 13' X 3'9" DINING 3'10" X 19'5" BEDROOM 14' X 9'10'' CREDENZA 1'11" X 11' GREEN WALL 6" X 5'3" FILES STORAGE 1'8" X 7'9" WEIGHTS SHELF 3'3" X 1'6" SIDE TABLE WALK IN WARDROBE 12'4" X 6'5'' SB 01 @1200 SB 02 @850 SB 05 @600 SB 12 @1200 SB07 @1000 SB 10 @600 SB 11 @600 SB15 @1200 SB 17 @1200 SB16 @900 SB 18 @1200 SB19 @850 SB 20 @1200 SB 22 @1200 SB 21 @1200 SB 23 @850 SB24 @450 SB 09 @1200 SB 03 @600 SB 08 @1000 SB 06 @1000 SB14 @1200 SB 04 @600 SB 13 @1200 NORTH REVISION DATE NOTES 28 SIGN STAMP WORKED ON: NORTH DEV ASHAR 1842 ELECTRICAL DRAWINGS ELECTRICAL LAYOUT SWITCHBOARD LAYOUT
11'0" X 11'0" KITCHEN 7'0" X 4'1"
7'0" X 3'0" BED ROOM 10'5"
A A' SECTION AA' PLAN 50 X 50 MM STEEL BOX SECTIONS 50 X 50 MM TRUSS SECTION CUT OUT FOR TANK MAINTAINANCE LADDER PROJECT NAME DRAWING TITLE DWG. NO. TERRACE FOR MR. ASHISH APTE AT GOREGAON FIRST CUT A DRAWING DETAILS SCALE DATE DRAWN BY CHECKED BY SS X : XXX NORTH REVISION DATE NOTES DA 04.05.2022 TERRACE ROOM 50 X 50 MM STEEL BOX SECTIONS 75 X 100 MM STEEL BOX SECTIONS BOXING
TERRACE ROOM TERRACE ROOM LADDER FOR TERRACE 50 X 50 MM TRUSS SECTION 50 X 50 MM STEEL BOX SECTIONS 50 X 50 MM STEEL BOX SECTIONS 29 SIGN STAMP WORKED ON: NORTH DEV ASHAR 1842 ROOF PLAN AND SECTION
ABOVE
30 SIGN STAMP WORKED ON: NORTH DEV ASHAR 1842 SKETCHUP MODEL TWINMOTION RENDERS TERRACE VIEW 01 TERRACE VIEW 02 ROOF VIEW ROOF VIEW
DEV ASHAR CONSTRUCTION PORTFOLIO

Turn static files into dynamic content formats.

Create a flipbook