

![]()



Halo! Saya Devana, mahasiswa arsitektur semester 7 Universitas Tarumanagara. Saya memiliki semangat, dedikasi, prinsip untuk bekerja keras dan cerdas. Bagi saya interaksi terhadap manusia, pengalaman, dan alam adalah guru terbaik. Dari situ saya terus tergerak untuk mengembangkan kemampuan dan kecintaan saya terhadap arsitektur, seni, dan pengabdian kepada masyarakat.
2016 - 2019
2019 - Sekarang
2018 - Sekarang
2020 - Sekarang
SMA Negeri 1 Cianjur
Universitas Tarumanagara
Program Studi Arsitektur
Pemilik Bisnis Agift.florist
Freelance Desain
Program Studi Arsitektur
Oktober 2019
May 2020- May 2021
Jul 2020 - Jun 2021
jun 2021 - jul 2022
Gelar Kesenian 2019
Wakil Ketua Bidang Dekor
Architectural Design Week 2020
Exhibition and Instalation
Ikatan Mahasiswa Arsitektur
Tarumanagara 2020
Anggota Bidang Eksternal
Ikatan Mahasiswa Arsitektur
Tarumanagara 2020
Ketua Bidang Eksternal
Desain Visualisasi
Sketsa Tangan
Kerja Tim & Organisasi
Ilustrasi
Sketsa Arsitektur
Interior Design


Latar Belakang
Tujuan Design Resort
01 04 02 05 03 06
Konsep & Gubahan Massa
Konsep Design Resort
Gubahan Cottage

Tapak
Lokasi Tapak Resort
Regulasi Perkotaan
Gambar
Site Plan
Denah Bangunan Utama
DTP Tipe Deluxe
Aksonometri/isometri
DTP Tipe Family
Aksonometri/isometri
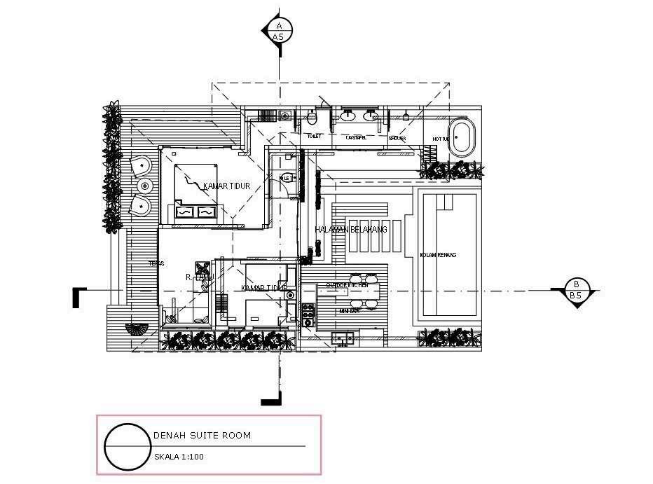
DTP Tipe Suite
Aksonometri/isometri
DTP Tipe Villa
Aksonometri/isometri
Data Zoning Sekitar Tapak
Fasilitas Sekitar Tapak
Render eksterior
Render Interior


Resort merupakan suatu tempat atau kompleks yang dirancang dengan tujuan rekreasi, liburan, atau relaksasi. Resort umumnya menawarkan akomodasi, fasilitas, dan pelayanan untuk para pengunjung yang mencari pengalaman liburan yang menyenangkan dan nyaman.

Design resort kali ini mengharapkan pengunjung dapat merasakan sensasi Liburan yang berkesan dan nyaman bersama keluarga atau kerabat terdekat, berlokasi pada daerah pegunungan dan disuguhi view yang menarik, dengan konsep yang tentunya bisa menyatu dengan alam dilengkapi berbagai fasilitas penunjang yang menarik








Wisata Argo Inkarla


Pintu 3
Kebun Raya cibodas

Tangko Resort J

Luas Tapak : 30.000
KDB : 20%
KB : Maksimal 2 lantai
KDH : 40% 80 Kamar KDH : 30.000 x 40% = 12 000 m²
GSB : 1/2 x lebar jalan = 2 m
KLB : 12.000 / 30.000 = 0,4
80 Kamar
KDH : 23.500 x 40% = 9.400 m²
GSB : 1/2 x lebar jalan = 2 m


N A L I S I S



Lokasi yang menyajikan pemandangan alam yang indah, berada jauh dari keramaian kota yang identik dengan polusi udara dan kebisingan. Selain itu lokasi resort berada pada kawasan yang memilikipeluang usaha lain yang dapat dijadikan pengembangan bagi wisatawan. sehingga lokasi cocok untuk pembangunan resort

bahayagempabumisedang, menurutwargasekitar,kondisi bangunanpadasaatgempabumi hanyamengalamikeretakanpada dindingdanlantai
Peluangkebakaranhutandan lahandisekitartapakterdeteksi sedang,menurutwargasekitar belumpernahterjadikebakaran hutandanlahandiareasekitar
Peluangterjadinyaletusan gunungapiterdeteksirendahsedang.
Bahayatanahkongsorpadaarea tapakterbilangrendah,hanapada titiktitiklembahtertentuyang memilikipeluanglongsoryang tinggi

sistemlahanvolcanickarena beradapadadatarantinggi,di kakigununggedepangrango
Cafe Villa
Areapemukimampenduduk Areaperkebunan WisataArtala
Karakteristiksebagaikawasan limgkunganrendah,tingkat pelayananprasaranandansarana rendah,danmerupakankawasan resapanair




Tapak yang berkontur memiliki kemudahan view pada setiao bangunan, bangunan resort yang akan di bangun akan menyesuaikan sesuai ketinggian kontur yang ada








Menerapkan konsep pada arsitektur sunda yang memiliki konsep yaitu lemahCai, Luhur-Handap, Wadah-Eusi
Bentuk massa bangunan mengambil bentuk menyerupai bangunan tradisional rumah adat sunda
Penerapan Secondary skin atau dinding fasad bangunan menggunakan material anyaman bambu seperti kebanyakan rumah adat sunda
Resort terdapat pada area perkebunan yang asri, selain bangunan yang menarik, fasilitas pada resort ini menyediakan kegiatan menanan sayuran secara langsung,paket hiking, area olahraga dengan view







pada depan dan samping setiap bangunan di beri space untuk kolam

Bagian bangunan yang menonjol diperuntukan bed tub terbuka, agar sirkulasi udara berjalan secara alami

untuk menyimpan tanaman samping bed tub pada tipe ini disediakan area taman outdoor dibagian belakang bangunan

sisi depan bangunan di terapkan kaca dan pintu sliding
memiliki plunge pool pada bagian kiri
Area kamar mandi ditempatkan pada belakang bangunan
pada tipe ini disediakan area infinity pool


bangunan memiliki perbedaan kemunduran agar cahay yang di dapat bisa maksimal















































Program Studi Sarjana Arsitektur
Fakultas Teknik Universitas Tarumanagara
Semester Genap Tahun Akademik 2023/2024
