Destiny Williams Portfolio

Page 1


Portfolio

CONTACT

773-495-0545

dest nyw liams2016@gma l com

www l nkedin com/ n/des t ny-w ll ams-0945361ab

At anta, GA

SKILLS

SketchUP

Revt

BIMLbraryCreaton andMantenance

AutoCAD

AdobeIllustrator

Communication

CientRelatons

Newforma

Procore

LANGUAGE

Englsh

DESTINYWILLIAMS

ARCHITECTURALDESIGNER

PROFESSIONALPROFILE

Goa-orented drafting proessona adept at creatng and revising drawngs usng both traditona and computer-assisted methods

O ers strong attention to accuracy knowledge of multiple architecture sotware programs great teamwork capab ties and experiencewthvariousproecttypes Proecttypesincludeindustra warehouses ofices dspensares and laboratories Currently seeking a place o work to maxmize my knowedge n a the aspects of architectura design

WORKEXPERIENCE

July2021-November2023

ProductionCoordinator WareMalcomb

AsanArchtectura ProductionCoordinator wasresponsbeforthe production of construction documents and providing Revt support on archtecture proects I ut ized Revit sotware to create 2dmensonal plans and 3-dimensona renderngs of proposed structures alsoassstedwthproectcoordnaton companydetals &tempates lbrarycreatonandmantenance

August2016-Aprl2021

FloridaAgricuturalandMechanicalUniversityProjectLst

FAMU2021Hotel

FAMU2020Mxed-UseBu dng

FAMU2020WoodResearchInsttute&Apartments

FAMU2018Caro&NorwayPassiveHomes

FAMU2018Urban nilMixedUseBuidng

EDUCATION

April2021

FloridaAgriculturalandMechanicalUniversity Talahassee,FL

B Arch(BacheorofArchtecture)

362GPA -Graduated MagnaCumLaude WomensBowlingTeam,2016-2021

June2016

WhitneyM YoungHighSchool Chcago,IL

HighSchoolDploma

38GPA WomensBowlingTeam,2012-2016

Design a passive house to be located inCairo, Egypt. Passive strategies used in the design of the house include long narrow floorplan and

Project 1 -Design 2.2 -Revit flat roof.

Design a museum and accompanying history trail in San Marcos.

Project 2 -Design 3.1 -Revit

Design a wood research institute and neighboring apartment complex in Atlanta, GA using current hybrid wood construction technology.

Project 3 -Design 4.2 -Revit

Design a mixed-use buildingincluding a vertical market, condominium, and movie theater to be located at the high line in new

Project 4 -Design 5.1 -Revit York.

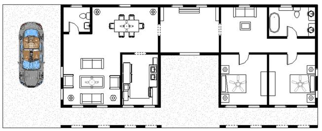
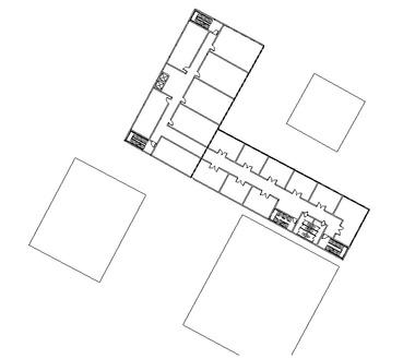
level 3 plan (highline)

level 7 plan

1” = 30’ Model
EAST ELEVATION

additional renders

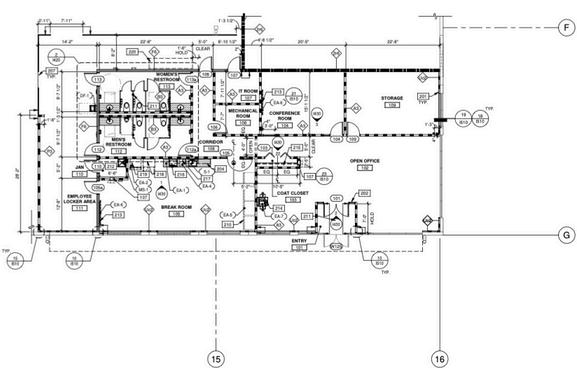
Professional work

WAREHOUSE

WAREHOUSE

3D EXTERIOR VIEW
3D EXTERIOR VIEW

DIVESTING TABLE DESIGN

INTERIOR RENDERINGS

INTERIOR ELEVATION

INTERIOR ELEVATION

FLOOR PLAN

Turn static files into dynamic content formats.

Create a flipbook
Issuu converts static files into: digital portfolios, online yearbooks, online catalogs, digital photo albums and more. Sign up and create your flipbook.
Destiny Williams Portfolio by Destiny Williams - Issuu