Skip to main content

Interior Design Portfolio

Page 1

Destiny Kehler Interior Design Portfolio

:a hypothetical human tendency to interact or be closely associated with other forms of life in nature : a desire or tendency to commune with nature

BIOPHILIA BIOPHILIC DESIGN

Biophilic design is a concept used within the building in dustry to increase occupant connectivity to the natural environment through the use of direct nature, indirect nature, and space and place conditions.

Hi! My name is Destiny Kehler. I am an interior design er, cat mom, and lover of nature. Most of my designs include at least some biophilic elements. This is be cause mental health is so important in today’s world. Incorporating biophilic elements into designs can help to improve moods, reduce stress, improve creativity and productivity, and improve overall mental wellbeing. Whether it is a commercial or residential design, I believe elements of biophilia can be added to each and every project to help improve the quality of life for the people who will inhabit the space.

CONTENTS 01 InMood Furniture Design Office 02 De Vil’s Bar & Lounge
CONTENTS 03 Graphic Design

InMood Furniture Design

This project was a concept for InMood Furniture Design. This bio philic office design utilizes the natural elements of the sun and greenery to bring a feeling of peace and wellbeing. White, brown, and green tones will be the colour palette throughout the space. Together they will create unity and promote an environment of cre ativity and productivity. Modern elements and circular shapes add ed into the space will help blend technology and nature together.

It will be an open concept with glass walls for the mezzanine of fices to allow for a more open and connected feeling. Whether it’s upper management, designers, sales, or clients; everyone will feel connected with one another.

01 01
Reception Desk
InMood Furniture Design 02 General Materials and Finishes 1. Comfortable Concrete Modular Carpet Tile 3. Glacial Black Natural Stone Ledger Panels 5. The Lowdown Modular Carpet Tile 7. Current 4x12 Wall Tiles 1 2 3 4 6 7 8 5 2. Oasis Ceramic Floor Tile 4. Empira Black Quartz Countertop 6. Boca Stretch Hex Tiles 8. Frontier Plus Performance Luxury Vinyl Tile
Scale: 3/16" = 1'-0" FUNITURE PLAN T2 D1 D2 WC SINK2 F2 MEZZANINE FURNITURE PLAN1 C1 C2 C3 C4 T1 T2 D1 D2 D3 D4 D5 D6 D7 D8 S1 S2 S3 S4 SINK1 F1 MW FR WC SINK2 F2 03 Mezzanine Furniture Plan Furniture Plan Steelcase Currency Enhanced Buzzimilk Stool & Table
04 InMood Furniture Design
Steelcase
Answer
Panel Steelcase Elective Elements Steelcase Answer Beam
Steelcase Flex Personal Spaces
Forest Chair
Specialty Furniture

Sky Factory is a company that creates realistic illu sions of nature. Views to nature have been positive ly correlated with worker satisfaction and produc tivity. People favor posi tive experiences of nature — a clear sunny day, an expansive panorama from a commanding position, water running through a stream, the endless shift ing of clouds in the sky. Sky Factory’s products are not meant to replace those genuine experi ences, but to make them available in interior spaces (where we spend so much of our contemporary lives) that are devoid of access to these experiences of nature.

12'11'-8" 9' 21' LEGEND Building Section Scale: 1/4" = 1'-0" 1 102 TRANSITION FROM ACOUSTICAL CEILING TILES TO DRYWALL ACOUSTIBUILT CEILING TILES DRYWALL, HANGING FROM ARMSTRONG'S DRYWALL GRID SKYFACTORY CEILING APPLICATION S LEGEND: SYMBOL NAME ACOUSTIBUILT ACOUSTIC CEILING TILES SYSTEMALUX LINEAR LED SKYFACTORY CEILING APPLICATION ION LED 2IN SQUARE RECESSED LIGHT 05 Building Section
Reflected Ceiling Plan
NAME: PROJECT INMOOD FURNITURE DESIGN 06 InMood Furniture Design Sky
Factory Virtual Skylight Image
07 Specialty Lighting Sales Team Pods Eden Eva Eden Adamo Eden Eden Heracleum the Big O Kingdom kdc77.01
08 InMood Furniture Design Waiting Area Executive Offices

De Vil’s Bar & Lounge

De Vil’s is located in the district of Yorkville, in Toronto. Yorkville is known as the posh and upscale area of the city. De Vil’s was in spired by the Disney Villan, Cruella De Vil. Not just the black and white theme, but also the high fashion scense that she portrayed in the 2021 film Cruella, starring Emma Stone. Like the character in the movies, De Vil’s aims to make a statement. Not only do the materials chosen portray luxury and class, they were also chosen whenever possible to be sustainable and eco-friendly materials.

09
02
Lounge & Bar
10 De Vil’s Bar & Lounge General Materials and Finishes 1. Paint - Twilight Zone 3. Wallcovering - Arras - Licorice 5. Delegate Colorbody Porcelain Tiles 7. Soundscapes Shapes - White 9. Wallcovering - White Decor - White Wavy 2. Wallcovering - Arras - Glacier White 4. Stronghold 30 6. Soundscapes Shapes - Black 8. Empira Black Quartz Countertop 10. My City Colorbody Porcelain Floor Tiles 1 2 3 4 5 6 7 8 9 10
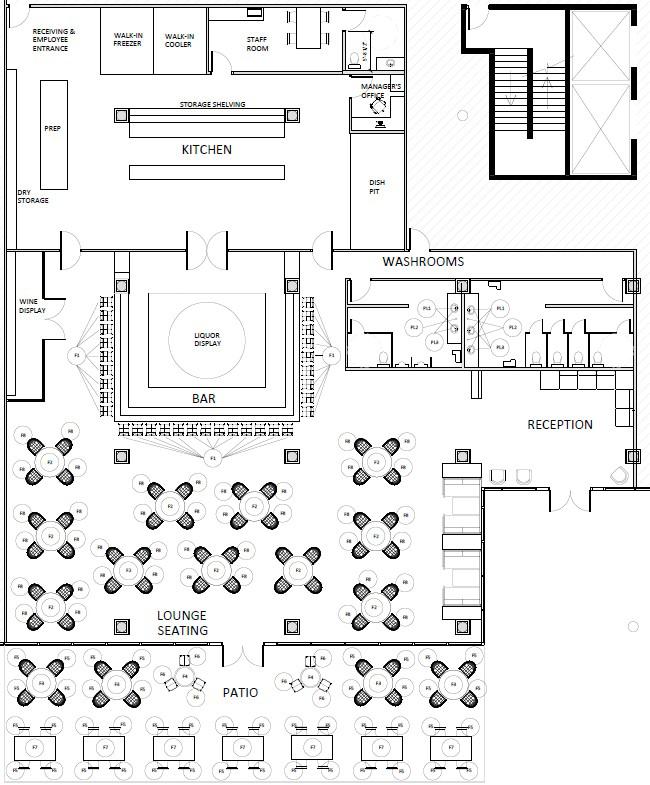
11 Furniture Plan
12 De Vil’s Bar & Lounge Specialty Furniture Between Us Barstool Circula 52” Dining Table Circula Bar TableStool_One Chair_One Faz Dining Table ZUPY Dining Chair

Back View of Liquor Display

The process to come up with the idea for the liquor display was as fol lows. I wanted something that would be fashionable and glamourous. Along the glamorous line, I ended up thinking about diamonds. A cut di amond has a very unique shape, and is very recognizable. While thinking about it, I flipped the shape upside down and decided to use the geome try as shelving for the liquor bottles. So as an upside down diamond, this liquor display is covered in mirrors, and actually slowly spins, so you can view the bottles on all sides of the display.

13
14 De Vil’s Bar & Lounge
Side View of Liquor Display

Lighting

15 Lounge Seating Specialty
Cardito 1 LED Linear Suspension Melt Lucid Outdoor Suspension
16 De Vil’s Bar & Lounge Patio Seating Montefio 1 LED Mini Pendant Cardito LED Vanity Light Stencil Pendant Alfi 8 Light Curve Suspension

03

Graphic Design

Atlantis

Atlantis is my rendition of the mythic underwater city. It is a Photoshop composite of 9 separate photos, creating an adver tisement for my interior design.

25

Dragon’s Rage

Dragon’s Rage shows my love of fantasy stories. Another Pho toshop composite, I was envisioning almost a scene out of a Lord of the Rings book and used that inspiration to create this piece.

Graphic Design 26

The Foran

The Foran is a chimera I designed in Photoshop. Mixing a fox with hummingbird wings and ram’s horns, I imagined this crea ture as something out of a Disney movie.

27

Starbucks

Starbucks was drawn in two-point perspective in Illustrator. I got my inspiration to draw my local Starbucks, as I was work ing there at the time.

Graphic Design 28

Turn static files into dynamic content formats.

Create a flipbook