Skip to main content

Master Plan Design. Portfolio 2022.

Page 1

SMK BUDI UTOMO LAMPUNG TIMUR, LAMPUNG 2022

SITE EKSISTING

MASTERPLAN SMK BUDI UTOMO D. GEDUNG SERBAGUNA C. AREA PARKIR MOTOR B. AREA KELAS A. AREA KANTOR, MASJID DAN WORKSHOP

SITE ENTRANCE JALANKETERANGANPRIMER 1. GERBANG MASUK MASJID 2. GERBANG UTAMA 3. GERBANG GALERI)(GERBANGSELATANMASUK 4. GERBANG MASUK UTARA 5. GERBANG MASUK UTARA (GEDUNG KELAS) 6. GERBANG MASUK GSG 5 4 1 2 3 6

AKSONOMETRI MASTERPLAN

POTONGAN KAWASAN A A B B POTONGAN A A POTONGAN B B

A. AREA KANTOR, MASJID DAN WORKSHOP

PERSPEKTIF

RENOVASI BANGUNAN LAMA SEBELUM SESUDAH

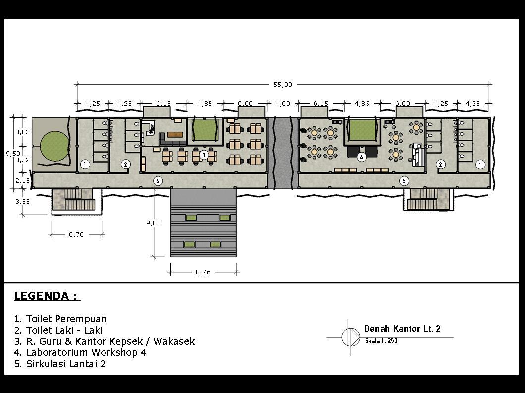
DENAH KANTOR

DENAH WORKSHOP UTARA UTARA

WORKSHOPMASJID KANTORAC B A BC B

MASJID SEBELUM SESUDAH EKSTERIOR MASJID EKSTERIOR MASJID SHAF PEREMPUANINTERIOR MASJID SHAF LAKI LAKI KOLAM

DENAH MASJID

PERSPEKTIF DEPAN PINTU MASUK PERSPEKTIF SAMPING KANAN PERSPEKTIF BELAKANG PERSPEKTIF MASJID PERSPEKTIF SAMPING KANAN

PERSPEKTIF

B. AREA KELAS

GEDUNG KELAS

GEDUNG KELAS

DENAH GEDUNG KELAS PINTUPINTU

PERSPEKTIF ROOFTOP

interior

GALERI PERSPEKTIF DEPAN PERSPEKTIF SAMPING

PERSPEKTIF

DENAH GALERI

KANTIN PERSPEKTIF DEPAN

DENAH KANTIN

PERSPEKTIF CAFE

C. AREA PARKIR

PARKIR MOTOR GERBANG UTARA SEBELUM SESUDAH Dapat menampung sekitar 1000 kendaraan bermotor

D. SERBAGUNAGEDUNG

DENAH GSG

PERSPEKTIF GSG

Turn static files into dynamic content formats.

Create a flipbook