
design&architecture
ADA Student Center
phase: ongoing
scope: interior design


phase: ongoing scope: interior design, technical drawings
Port Baku Tower
01 03 05
Dashalty village Private Villas Historic Caravanserai
scope: technical drawings, facade design

phase: ongoing scope: interior concept
phase: ongoing scope: interior concept
Dashalty village Hotel Building

phase: finished scope: technical drawings
Office Interior Retail Store


02 04 06
ADA
Student Center
phase: ongoing
scope: interior design
The interior design of the ADA University Student Center was developed to create a seamless connection with the surrounding landscape. The project scope covered interior design, visual collages,and the preparation of functional zoning layouts.
The open-ceiling design reveals the surrounding trees directly from inside, and this visual continuity is supported by the use of green accents throughout the interior.
Inspired by the atmosphere of San Miguel, industrial-style lighting fixtures were incorporated to reinforce an authentic, characterful ambiance.
This choice enhances the overall visual identity of the space while staying true to the project’s conceptual source.



The project plan defines the functional and structural relationships between the spaces, providing detailed information about the purpose of each space and how they are interconnected.
The moodboard, on the other hand, visually expresses the overall atmosphere and feeling of the project.







Port Baku Tower
Office interior
phase: ongoing
scope: interior design
We designed the main functional zones of a 1,140 m² office in Port Baku Tower 2, shaping the 344 m² open workspace, a 48 m² kitchen area, and a 119 m² executive meeting room.
The office zone was designed as a bright, open workspace with a strong focus on comfort and clarity. Soft neutral tones, perforated acoustic ceilings, and custom circular lighting create a calm, evenly lit environment suitable for long working hours.
Integrated planter dividers bring greenery directly into the workflow, improving visual comfort and separating teams without building solid walls. All wall elevations and technical furniture drawings were completed ensuring a precise and well-coordinated package.






Dashalty village
Private villas
scope: technical drawings, facade design
This project involves the design development of a private villa complex in the Shusha region, located in Dashalty village. The development consists of 10 villas connected to a main hotel and designed to operate as a unified hospitality system. The Villa displayed below is only type - 1 among 3 villa types.
The scope of the project includes full technical design development, façade design, interior functional planning, and coordination between disciplines.
The interior design phase is currently in progress.






















































































































Elevation view between axis C’-A













































































Elevation view between axis 1-4






































































Elevation view between axis 4-1



























































Elevation view between axis A-C’













phase: ongoing scope: interior concept
This hotel project in Dashalty Village incorporates an interior concept that blends modern design elements with the region’s cultural and natural heritage.
The concept focuses on creating a welcoming atmosphere through the use of warm materials, including wood and stone, complemented by contemporary design features.
The space is thoughtfully organized with functional zoning layouts, offering guests a comfortable and immersive experience. The design incorporates modular ceiling structures and unique wall treatments to enhance the aesthetic appeal, while maintaining a connection to the local surroundings. The carefully selected furniture and decorative elements further enrich the hotel’s ambiance, ensuring a harmonious balance between luxury and tradition.





Caravanserai
phase: ongoing scope: interior concept
This project revitalizes a historical caravanserai, blending traditional architectural elements with modern functionality.
The design preserves the essence of the original structure while introducing new uses, ensuring a balance between heritage conservation and contemporary needs.
The interior features spacious communal areas, creating a welcoming environment for both visitors and local communities The scope involves conseptual collages of the interior.






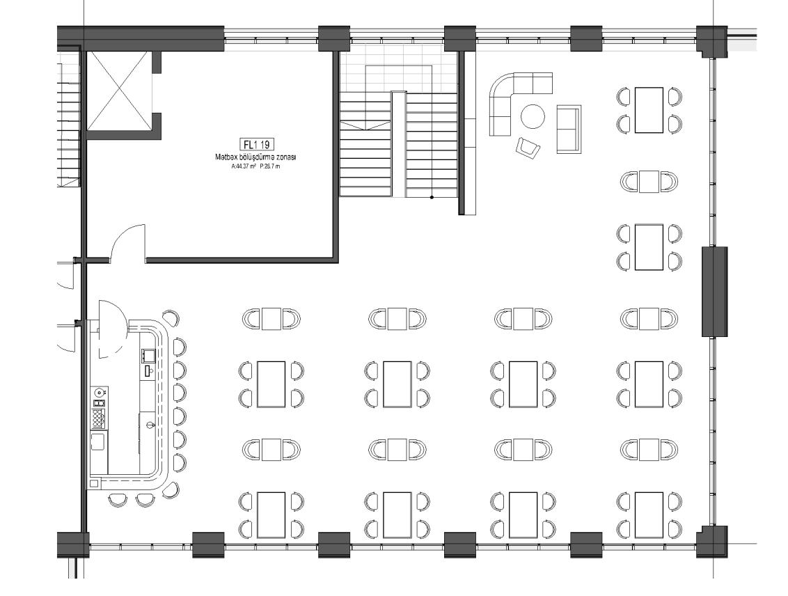
Retail Store
phase: finished scope: technical design
The project features a refined boutique interior with a focus on clean geometry, integrated display systems, and efficient circulation. Neutral tones are paired with marble accents and warm lighting to highlight merchandise, while a bold reception counter anchors the space.
The retail area was adapted to an existing shell, with the interior design concept developed by a teammate. My scope included completing the full technical design package, detailed furniture design, and all project deliverables.

Soyunma
otağı 1 2.56 m²
Soyunma otağı 1 2.56 m²
Soyunma otağı 1 2.58 m²
Mebel yerləşmə planı
A -döşəmə üstü mebellər
B -tavandan mebellər
C -masalar
D -döşəmə üstü hündür güzgü
E -resepşen masası
elektrik çıxışı-led h:yerdən
elektrik çıxışı-led h:yerdən
elektrik çıxışı-led h:yerdən
elektrik çıxışı-led h:yerdən
elektrik çıxışı-led h:yerdən
elektrik çıxışı-led h:yerdən
elektrik çıxışı-led h:yerdən
elektrik çıxışı-led h:yerdən
elektrik çıxışı-led h:yerdən
elektrik çıxışı-led h:yerdən



elektrik çıxışı-led h:yerdən

elektrik çıxışı-led h:yerdən
elektrik çıxışı-led h:yerdən


elektrik çıxışı-led h:yerdən




elektrik çıxışı vitrin üçün h:yerdən (uzun kabel buraxılsın)
maneken maneken maneken maneken maneken maneken
elektrik çıxışı vitrin üçün h:yerdən (uzun kabel buraxılsın)


elektrik çıxışı-led h:yerdən
elektrik çıxışı-led h:yerdən









