R

KOTA PARIÑA | 2024

EDUCATION
![]()

KOTA PARIÑA | 2024

EDUCATION
Quezon City, Metro Manila
designs kota@gmail com
09663816935
University of the East - Caloocan
Bachelor of Science in Interior Design | GWA: 1.36; Magna Cum Laude
AFFILIATION ACHIEVEMENT
19th Estilo De Vida Interior Design Competition | 2022
Top 7 Finalist (out of 65 Entries)
Society of Interior Design Students (SIDS) | 2020 - 2024
Vice President (Internal), 2023 - 2024
Public Relations Officer, 2022 - 2023
Membership Committee Head, 2022 - 2023
SEMINARS
SOFTWARE
CAD/Render
AutoCad | Sketchup | Enscape |
Vray for Sketchup | D5
MS Office
Adobe CC
Photoshop | InDesign |
Lightroom Word | Powerpoint | Excel
UE BSID - FIN 4304: Seminars and Workshops in Interior Design (SWID)
Design Dialogue: Understanding Latest Trends in the New Normal | 2021
Design Dialogue: A glowing Horizon about ID Practice in the New Normal | 2021
Design Dialogue: Empowering Interior Design | 2021
ID-ology: Embracing the Fullest Potentials of Interior Design | 2022
ID-ology: Adapting IDEAS | 2022
ID-ology: A Sneak Peak Beyond the Future Potential of Interior Design | 2022
UP Design Core
Design Dialogues: Set the Stage | 2020
UE BSID - Building Utilities Webinar Series
Part 1: Construction Sites for Interior Designers | 2020
Part 2: Lighting Design | 2020





1 2 3 4 5 6

Notes Verdant Blush 12 - 15 Kudupul: Nightbloom Sinag of Likha Gabay 4 - 7 Beige Tanaw Batibot 8 - 11 16 - 19 20 - 23 24 - 17
Public Children’s Library
19th Estilo De Vida Entry - Top 7 Finalist
Design: Contemporary
Year: 2022
Area: 36 sq.m

A place where imagination comes to life
Likha-Gabay translates children’s vision into reality. The space features different zones based on the four-space model, providing various functions and activities within the library The design centers around children’s development – implementing an ideal space for respite and promoting learning, creativity, and overall well-being





Master Bedroom
Design: Contemporary Minimalist Year: 2023 Area: 24 sq.m
Contemporary Minimalist bedroom incorporating neutral palette, natural wood, soft & diffused lighting, and a clutter-free design is the epitome of modern tranquility The soft, muted colors create a peaceful ambiance, while the uncluttered layout provides a sense of order and calm The gentle lighting casts a warm glow across the room, inviting you to rest and relax. The furnishings are simple, with clean lines and minimal ornamentation, allowing the space to breathe and providing an unobtrusive backdrop to your dreams It is a space of clarity, simplicity, and quiet beauty - a true reflection of the contemporary minimalist design philosophy






2 Rendered Perspectives
Master Bathroom

Design: Contemporary Eclectic Year: 2023
Area: 13.11 sq.m
The design of the space centers around a portrait of a woman in a meadow by a parisian illustrator, Luca di Napoli. The portrait is the focal point and heavily influences the aesthetics of the space, especially the pallete of pink and green.







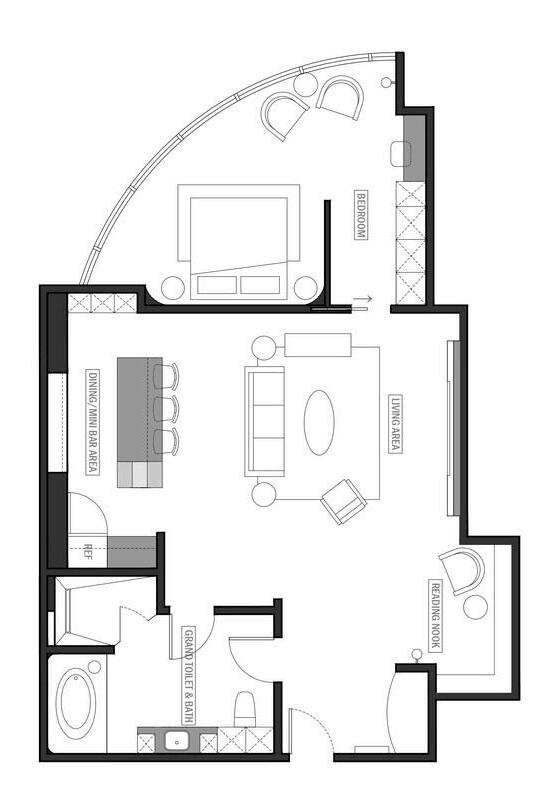
Design: Contemporary Suave
Year: 2023
Area: 133 sq.m
The concept of the space came from the flower named Kadupul. It’s infamous for being the most expensive flower in the world. The space took inspiration to the characteristics of the flower by reimagining a space that comes alive at night through lighting.







Bookcase with Seat

Design: Modern Year: 2022
How Glorious a Greeting the Sun gives the Mountains - John Muir
Sinag-Tanaw’s concept came from children’s vision Inspired by a kid’s drawing of a landscape with hills, peaking the glory of the sun








3D Render and Editing Study
A studio shot using 3ds Max, Corona renderer, and Adobe Photoshop for post-production The scene is composed of Batibot Chairs stacked on one another and how the butterflies influenced its chaos.
It is a creative and literal depiction of the butterfly effect




