Abigail taylor
d e s i g n · p o r t f o l i o

![]()
d e s i g n · p o r t f o l i o








Object Analysis

Lee Hall I Analysis


Internship
Experience





Influenced by the strong winds along the coast of Barcelona, Spain this project takes inspiration from how wind forms nature and how to channel wind as an energy source. The form is based on how wind shapes sand dunes, seen in both the interior structures that house the program and the exterior facade. Taking the concept of wind even further, small diamond shaped wind turbines are embedded along the facade that catch the breeze and spin to generate energy sustaining the whole site.






























































To produce 30,000 kW, typical for a building of 10,500m ², about 1,000 wind turbines are required.

Integrated bio-swales help to provide areas of refuge on the site & create biodiveristy.
Prioritizing the longevity of the site, during off seasons there are large exterior covered areas that can be used for a variety of events.
The less energy required, the excess energy can be distributed to surrounding local facilities.

Form - First Pass

Form - Second Pass

Form - Final

What if the workplace was more open to make interacting/ comunicating with coworkers easier, with privacy still in mind?

77% of workers belive that open-plan workspace contributed to their productivity, moreover,
46% of employees working from home feel less stressed

What if nature can be incorporated into the workplace?

One study showed that the presence of plants in offices can lower stress and anxiety levels by up to 37%, as well as decreasing tiredness by up to 38%.


The plaza design is a “less is more” design in that it is not overly designed to allow the city to use the space however they like. The geometry of the building is carried onto the design of the plaza ground, using the striations to direct movement along the site. The scrim of the building works as public seating at the base that invites a spectator-spectacle realtionship. The scrim the space for spectators to stop and watch, with the open space housing pop-up events and all the street activities of NYC.
























This semester of ARCH 2520, we have created a civic center housng many varying facilities including a black box theater, exhibit, studio spaces, classrooms, and some administration spaces. The meshing of these areas with the goal of creating an engaging environment for the inhabitants. Being located right on the corner of downtown Cayce, SC its exterior is meant to be inviting for guests to stop in for a visit.

















BUILDING
Sq ft







Sq ft












AMPHITHEATER
Sq ft




















South Elevation




North Elevation






West Elevation

0´10´30´60´

East Elevation









The grand canopy that encompasses the center forms a wide exterior gathering space and the interior is sectioned between public and private spaces but with a central circulation path to further engage occupants. The envision for this civic center is to become a common space for the community of Cayce standing tall and preeminent on the corner of the town through its geometry and variation in its elevations, but also inviting through its materials and incorporation within the site. Through all the architectural decisions made, the common goal was to create an enjoyable facility for all of Cayce to bring the community together and serve the needs of the town.









Polyvalent Models - Massing Analyses from precedent Ballet Memphis by Archimania




Precedent Analyses:

Implemented Analyses:

















Labels:
Steel Stud
stud
Decking
Cieling





























board
pole



















































Gypsum Board
board
Concrete Finish Flooring






















































Throughout this past module we have analyzed a wall detail from a building of our choosing to learn more behind the construction of building. From this we cultivated a field house addition to the Snow Facility Outdoor Fitness Center. In my project, I analyzed the bay window detail from Coffread House in Charleston, South Carolina designed by W.G. Clark and Charles Menefee. I drew inspiration from the materials glass and concrete and the simplicity these materials create together. In designing my field house, I incorporated these materials into my design, tweaking the brick pattern to allow for more air and light throughout the field house. I also included bay windows in all the showers to create a beautiful moment for individuals while decompressing after a long workout outdoors. The overall appeal curated in my design could be described as both open through the interplay between interior and exterior spaces, as well as secluded and private being off the beaten path.
















































































Perspective Rendering
Perspective Sections




























For Glueless & Clueless, we were tasked to make a city composed of different elements including wood blocks, stick structure, a 3-D printed element, and all on laser cut topography. This project’s main purpose was to get us accustomed to using different model making elements, as well as think about different ways to incorporate structure into topography. First we created our topography by taking lines from a photo of a tree trunk and tracing the rings and extruding them to create a very unrealistic challenging topo. We also wanted to find ways to form paths along the topo where it was steeper to help connect the different structures, as well as cut small gathering spaces into the topo where people could congregate. For our wood blocks, we kept the block shape very simple and cut into the topo areas where they could sit within the earth. For our stick structure we created bridge that also holds two of the wood blocks using a wedging method that helps increase the strength of the bridge and in theory could be made without using glue. Finally, for our 3-D printed piece my partner and I went through a long process of trial and error to successfully print our organic shaped structure that is placed within the topo, all except a small portion that peaks through the top intended to bring light down into the space. All the different elements serve different purposes, but are still connected to easily guide occupiers throughout the ‘city.’






First, in studying the geometry, hierarchy and parti of my tea steeper I was able to learn more about how it was made, the order of its components and the simplified essence of the object. I also learned some key communication elements within architectureplans, elevations, and sections, and reimagined them abstractly to create an environment through their space.
Crafting my object throughout this module by hand and in Rhino, I learned more about the relationship between both the solid space it occupies and the void spaces within and surrounding. In further analyzing the essence of my object I designed a wall constructed of the predominant geometry and characteristics thatmake up the tea steeper.
In investigating the movement of my tea steeper I learned more about how the motion of my object creates space, and the importance of functionality. Using these same aspects I reimagined my previous wall into a physical model that spins, weaves, slides and opens creating a plethora of functions and space.
My project Co-habitating is about the interaction of life and of spaces. The give and take relationship between birds and plants, but also the meshing of natural landscape and man-made structures. It is an escape from the business of life, a literal walk in the park. It is adaptable for a variety of uses, including spinnable bird houses and terrariums, pull out bird baths or planters, and openable windows and doors to allow light through, hang bird feeders or weave. greenery through.
Geometry, Hierarchy and Parti Analyses






































I had the privilege of working on the schematics of this project during my summer internship of 2023. It is a new Restore location for Habitat for Humanity, where the town wanted to have retail space for the community that is located off a main road to help change the direction of the area. The town council gave our firm a packet of requirements they would like met for the project, such as a storefront directly facing the road that would invite passer-bys off the street, vertical and color variation among facades, a large percentage of glass and space for amenities for the town, such as a collage that will be located on the back of the building, bike racks and benches/outdoor seating for occupants. Having shopped at Restore locations my whole life with my mom, the requirements placed on this new location are unlike any location I have ever been to. It is more intentional in creating a place for the town, a place that is inviting and representative of the culture. Through working on this project I first hand got to see how architecture practically can be used to provide for a group of people larger than the original purpose of the building. With all the requirements placed on it and large inclusion of the city council on the project, it is meant to be the first of many new buildings coming to the area that are focused in a new direction of having the community in mind. What better building to start this trend in the town than Habitat for Humanity, an organization that is based all around providing and helping communities. This project is also important to me because I was given greater responsibility and freedom in helping with the design of the building to meet the requirements and really give the town a building they would want to visit and be proud of.


PROPOSED BUILDING 21,600 SF AREA
















































































ALL GAPS & CONNECTIONS BETWEEN WALL & ACCESSORY WITH ANTIMICROBIAL SEALANTS.
7. SD-0 & PT-0 TO BE PROVIDED AND LOCATED BY OWNER, NOT IN CONTRACT, NOT LOCATED ON PLANS
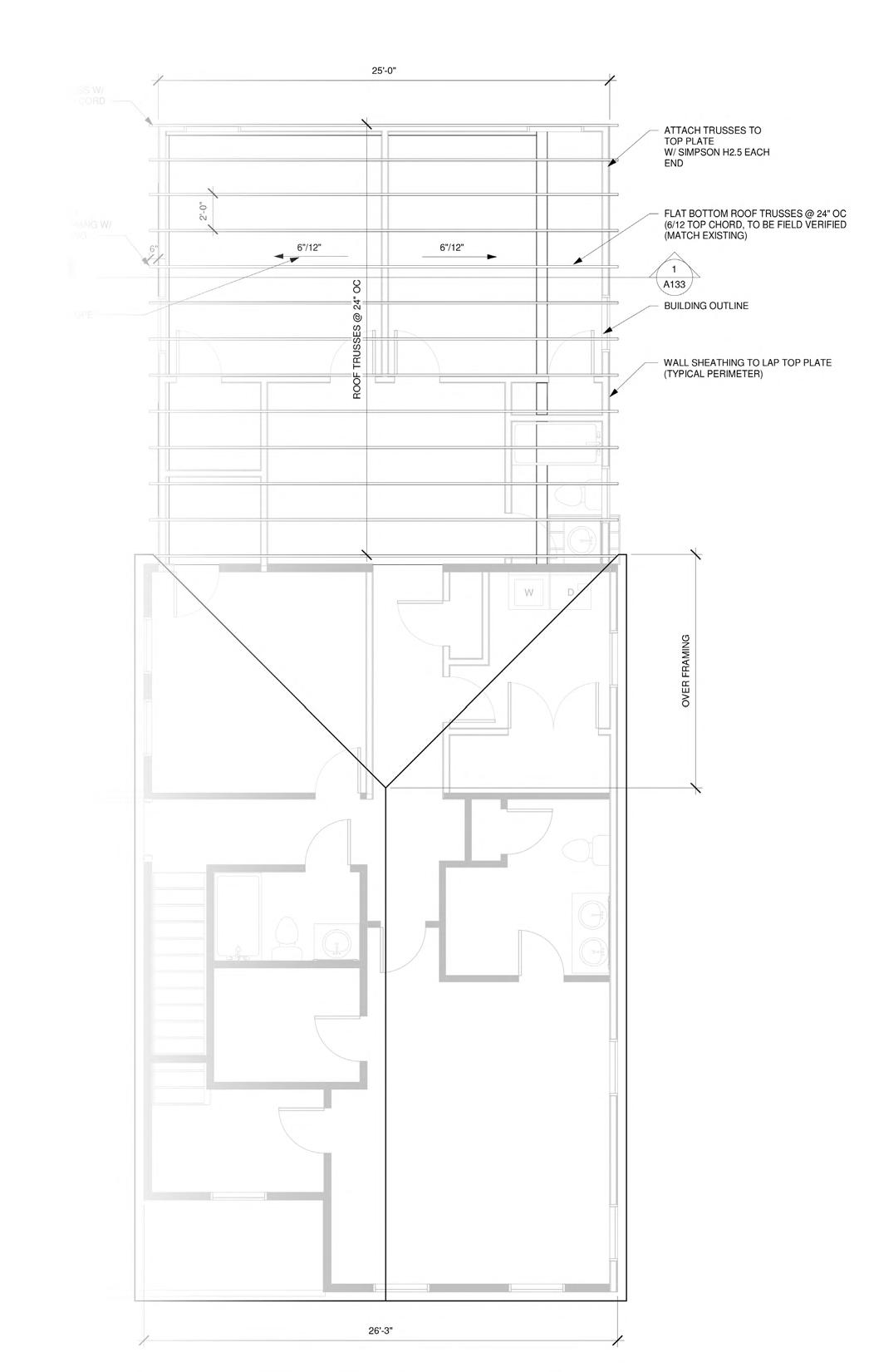
The Kean Residence is the first and only residential I have worked on so far. This project has given me a plethora of experience in thinking about all the details of a project down to the placement of reciprocals or matching of all floor elevations. With this high level of attention to detail required of residentials, I was given a lot of responsibility within this project of making sure all drawings are clear, keeping my sheets well organized and including details on every little element of the design so it is clear for the contractor and construction crew. This project included an addition onto their forever home, with new additions both on the first and and second floor, to the framing/roofing, new landscaping of backyard and driveway, and a new garage. Because of the amount that went along with this project I have worked on it every time I return back to my internship, from my first summer in 2022, to during my winter break that same year, to my last summer in 2023. It has given me a lot of opportunity to learn about the framing of residentials, learning about typical dimensions of not only framing elements but how large a carport should be, or the size of an average swimming pool in the backyard. The drawings and renders included help to some of the different elements of the design I helped work on. From the kitchen layout, to unique details like a spiral staircase, to the layout of the backyard, to a small snippet of our framing plans. Also through this project I further develop my skills in Revit, as well as meeting and communicating with clients to pitch new ideas or change details to fit their needs.