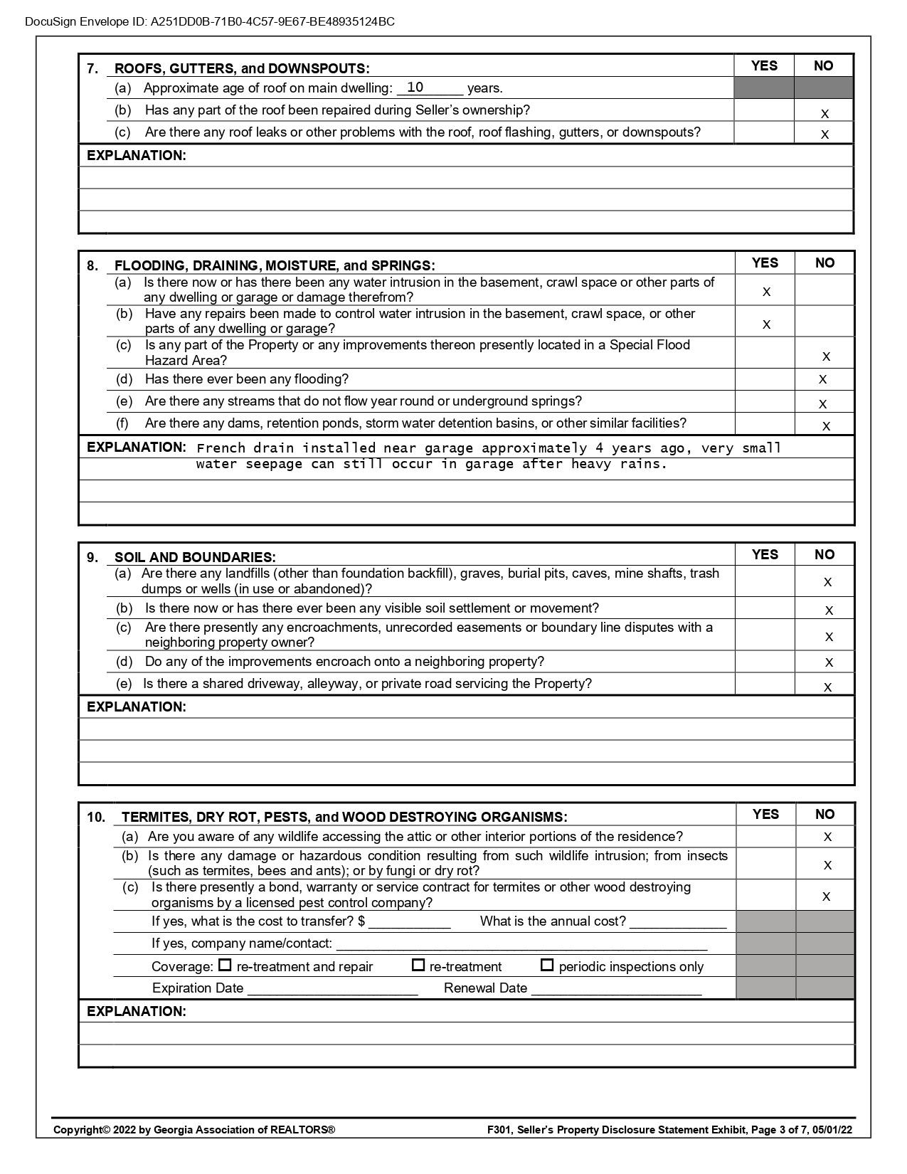
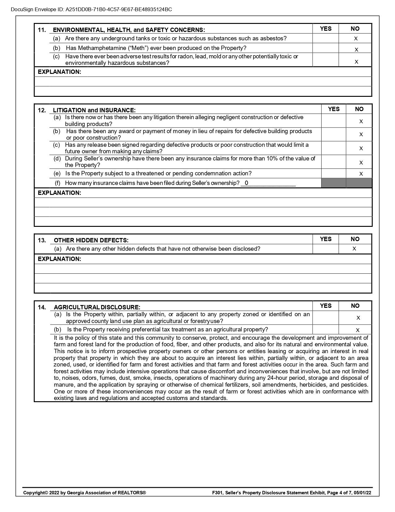
53 Blackberry Court Ellijay, Georgia 30536

Page 1

Welcometo:

53 Blackberry Court Ellijay, Georgia 30536

THANK

FOR VIEWING OUR PROPERTY

YOU

Turn static files into dynamic content formats.

Create a flipbook
Issuu converts static files into: digital portfolios, online yearbooks, online catalogs, digital photo albums and more. Sign up and create your flipbook.
53 Blackberry Court Ellijay, Georgia 30536 by DesignedByDavenport - Issuu